Вантовые конструкции — устройство и классификация
К вантовым конструкциям можно отнести большое множество конструктивных сооружений, таких как мосты, всевозможные подвешенные конструкции, кровельные конструкции и множество других подобных. Сходство всех видов вантовых конструкций основано на том, что все конструкции подобного типа имеют так опорные части жесткого типа, и специальных тросов, которые растянуты на данных опорах, так же растяжками могут быть специальные стержни. Все материалы для растяжки выполняются из особо прочной стали, опорные части конструкции, как правило, имеют состав из железа и бетона.
Применение такого вида конструкций на сегодняшний день используется в довольно широких масштабах, поскольку вантовые конструкции выполняют не только масштабные задачи, но и могут использоваться в ремонте, как украшение и полезные сооружения в строительстве зданий, для отделки фасадов и даже внутри помещения. Вантовая конструкция является столь популярной, поскольку сам процесс ее изготовления не является чрезвычайно усложненным с технической точки зрения. Данная конструкция имеет распорный тип.
Разновидности вантовых конструкций
Вантовые конструкции могут иметь конструктивные подразделения, так и они могут являться пространственными и быть конструкциями плоскостного типа. В свою очередь вантовые конструкции плоскостного типа имеют еще несколько подразделений, а именно бывают однопоясного типа, ванты которых располагают параллельно. Такой тип применяется как правило для сооружения мостов вантового типа и всевозможных пролетов, которые могут располагаться между зданиями.
Следующим типом вантово-плосткостных конструкций является вантовая конструкция блочного типа. Такие конструкции выполнены следующим образом, к вантам этой конструкции подвешиваются специальные прочностные балки, для укрепления конструкции. Данный тип конструкции так же используется в строительстве мостов, а так же для сооружения самолетных ангаров.

И, наконец еще одним типом вантовой конструкции плоскостного типа является конструкции представляющие собой двухпоясные, заранее укрепленные, которые имеют в составе несколько вант, которые являются стабилизированными. Если говорить о форме вантовой конструкции, то этот момент будет зависеть от расположения кольца, которое располагается внутри радиальной по форме конструкции. Так она может иметь форму чаши, форму шатра, и наконец, быть конической формы. Говоря о пространственного типа вантовых конструкциях, следует отметить, что данный тип конструкций, наиболее часто применяется в таком назначении как создание кровли зданий. Например, больших торговых центров, а чаще таких зданий как стадионы и спортивные центры.
Устройство и конструкции вантовых конструкций
Конструктивно данный тип вантовых конструкций представляет собой множество пересекающихся вантовых тросов, которые образуют, таким образом, сети. Данный тип конструкций можно разделить на такие типы по форме, как конструкции ортогонального типа, радиально-кольцевой формы, и наконец, на конструкции косоугольного вида.
Данный тип вантовых конструкций часто применяется, поскольку имеет различные прочностные характеристики, а так же разные характеристики жесткости самих вант. К тому же данный тип конструкций способен к выдерживанию большого числа нагрузок, а следовательно, с их помощью можно осуществить строительств большого безопорного пролета.
Преимуществом использования вантовых конструкций является то что данный тип конструкций имеет высокопрочные качества и данные конструкции являются абсолютно безопасными в использовании. Именно эти качества и делают вантовые конструкции столь популярными на сегодняшний день.
promplace.ru
вантовые конструкции — это… Что такое вантовые конструкции?
- вантовые конструкции
- ва́нтовые констру́кции
-
геометрически неизменяемый тип висячей конструкции. Выполнены только из прямолинейных элементов (вантов) и часто называются вантовыми фермами. Как и в висячих конструкциях, все элементы вантовой фермы работают на растяжение, что позволяет использовать в качестве несущих частей фермы канаты из стальной проволоки. Вантовые фермы применяют в конструкциях мостов, где проезжая часть подвешивается на множестве косых тросов, крепящих её к высоким пилонам. При этом тросы натянуты от верхней точки пилона или от разных его уровней и расходятся веерообразно или параллельно, подобно струнам арфы. В вантовых мостах тросы делают предварительно напряжёнными, поэтому они предельно натянуты, не провисают и делают всё сооружение геометрически неизменяемым. При такой конструкции балка моста под проезжей частью может быть непривычно тонкой, поэтому вантовый мост является одним из самых экономичных и изящных мостов.

Вантовый мост в г. Севилья, Испания
Энциклопедия «Техника». — М.: Росмэн. 2006.
.
- Ванкеля двигатель
- вантуз
Смотреть что такое «вантовые конструкции» в других словарях:
ВАНТОВЫЕ КОНСТРУКЦИИ — разновидность висячих конструкций, несущими элементами к рых являются ванты. В. к. состоят из вант и элементов, воспринимающих сжатие, балок, жёстких ферм, арок, рам, плит, оболочек (см. рис.). К ст. Вантовые конструкции. Каток с вантовым… … Большой энциклопедический политехнический словарь
Вантовые конструкции — разновидность висячих конструкций (См. Висячие конструкции) … Большая советская энциклопедия
Вантовые конструкции — Висячие покрытия, кровли, мосты, и иные конструкции, основанные на сочетании работы жестких опор и растяжении стальных тросов/стержней. Источник: Словарь архитектурно строительных терминов … Строительный словарь
вантовые конструкции — строит. конструкции, основанные на сочетании растяжения специальных стержней (канатов, кабелей и т.п.) и жестких опор и креплений (висячие мосты, покрытия и т.п.) … Универсальный дополнительный практический толковый словарь И. Мостицкого
Вантовые конструкции — Висячие покрытия, кровли, мосты, и иные конструкции, основанные на сочетании работы жестких опор и растяжении стальных тросов/стержней … Словарь строителя
Конструкции прочие — Термины рубрики: Конструкции прочие Временная перегородка Геодезическая съёмка отклонений строительных конструкций Консольные системы … Энциклопедия терминов, определений и пояснений строительных материалов
Конструкции вантовые — висячие покрытия, кровли, мосты, и иные конструкции, основанные на сочетании работы жестких опор и растяжении стальных тросов, стержней. [Словарь архитектурно строительных терминов] Рубрика термина: Конструкции прочие Рубрики энциклопедии:… … Энциклопедия терминов, определений и пояснений строительных материалов
КОНСТРУКЦИИ БАЙТОВЫЕ — [СИСТЕМА БАЙТОВАЯ] висячие конструкции, основными несущими элементами которых являются ванты, вантовые сетки или вантовые фермы (Болгарский язык; Български) вантови конструкции (Чешский язык; Čeština) zavěšené [lanové] konstrukce; lanová… … Строительный словарь
Висячие конструкции
— строительные конструкции, в которых основные элементы, несущие нагрузку (тросы, кабели, цепи, сетки, листовые мембраны и т.п.), испытывают только растягивающие усилия. Работа В. к. на растяжение позволяет полностью использовать… … Большая советская энциклопедияИстория архитектуры — Предположительно, эта страница или раздел нарушает авторские права. Её содержимое, вероятно, скопировано с http://nestudent.ru/show.php?id=80519 p=4 практически без изменений. Пожалуйста, проверьте … Википедия
dic.academic.ru
ВАНТОВЫЕ КОНСТРУКЦИИ • Большая российская энциклопедия
В книжной версии
Том 4. Москва, 2006, стр. 585
Скопировать библиографическую ссылку:
Авторы: Д. Г. Копаница
ВА́НТОВЫЕ КОНСТРУ́КЦИИ, геометрически неизменяемые висячие конструкции, осн. несущими элементами которых являются гибкие растянутые прямолинейные ванты. Ванты закрепляются на пилонах или крепятся к конструкции замкнутого контура округлой (кольцо, эллипс) либо прямоугольной формы. Ванты делают предварительно напряжёнными, что, при соответствующем подборе геометрич. системы установки вант, позволяет им под действием эксплуатац. нагрузок воспринимать сжимающие усилия без появления деформации сжатия. В результате вантовая система, несмотря на наличие только гибких элементов, работает как жёсткая ферма. Поэтому В. к. часто называют вантовыми фермами.

Мост с пролётными строениями комбинированной арочно-вантовой системы в г. Бильбао (Испания, 1998).
В. к. могут быть плоскими (гл. обр. вантовые мосты) и пространственными (напр., покрытия обществ. и пром. зданий с большими пролётами). В. к. в виде пространственных оболочек обычно имеют двоякую кривизну. Наиболее простой из них является покрытие в форме седла, состоящее из двух перекрёстных (поперечной и продольной) систем вант, которые закреплены в жёсткой конструкции, воспринимающей сжимающие усилия от вант. Поперечные ванты предварительно натягиваются, обеспечивая пространственную жёсткость конструкции. По перекрёстной системе вант укладывают кровельные плиты, которые при надлежащем сопряжении стыков образуют монолитную оболочку, значительно повышающую жёсткость системы в целом. Благодаря своей лёгкости и экономичности В. к. являются одним из наиболее эффективных решений для покрытий зданий с большими пролётами.
Возможна комбинация арочных и вантовых систем, в которых ванты воспринимают распор и обеспечивают устойчивость арки из плоскости.
bigenc.ru
Конструкции вантовых пролетных строений
Ванты. Изготавливают ванты из стальных проволочных крученых канатов заводского производства или из пучков параллельных проволок. Применяют однопрядные и многопрядные канаты из круглой проволоки диаметром 3–5 мм и канаты закрытого типа из проволок круглого и фасонного сечения. Прочность холоднотянутой проволоки канатов и пучков 12–18 МПа. Применение более прочной проволоки нежелательно, так как она склонна к коррозионному растрескиванию.
В однопрядном канате вокруг центральной проволоки спирально навито несколько слоев проволоки, причем последовательные слои имеют противоположные направления скручивания (рис. 6.11, а). Однопрядные канаты после двухкратной предварительной вытяжки обладают достаточно высокой продольной жесткостью (Е = 1,7∙105 МПа). Вытягивают их усилием, на 20% превышающим расчетное сопротивление каната, с выдержкой под этим усилием в течение 30–45 мин. Это снимает свивочные напряжения и канат получает остаточную деформацию. Однопрядные канаты требуют специальной защиты от коррозии. Они выпускаются промышленностью относительно небольших диаметров (от 20,0 до 40,5 мм) и имеют невысокую несущую способность. Поэтому использовать их рационально только в легких вантовых мостах. Многопрядные канаты образуют свивкой отдельных проволочных прядей. Применяют крестовую свивку каната, при которой проволоку в пряди и сами пряди навивают в противоположных направлениях (рис. 6.11. б). Промышленность выпускает такие канаты диаметрами 36,0–73,5 мм при несущей способности до 3855 кН. Многопрядные канаты имеют много пустот между проволоками и прядями, позволяющими им распрямляться при растяжении каната, что увеличивает их деформативность (после двухкратной вытяжки Е = 1,5∙105 МПа). Кроме того, большая поверхность проволок, доступная атмосферным воздействиям, требует серьезной защиты от коррозии.
Рис. 6.11 – Проволочные элементы, применяемые в вантовых мостах
В новом типе многопрядных канатов пустоты между прядями заполняют дополнительными прядями небольшого сечения, благодаря чему уменьшается рыхлость и деформативность каната, повышается его несущая способность. Однако коррозионная стойкость каната существенно не увеличивается.
В закрытых канатах только средняя часть сечения образуется прядью из круглых проволок. На эту прядь навивают один–два слоя из проволок трапецеидального сечения и один – четыре наружных слоя из проволок фасонного Z–образного сечения (рис. 6.11, в). Закрытые канаты обладают высокими продольной жесткостью после вытяжки (Е = 1,7∙105МПа) и коррозионной стойкостью. При растяжении каната спирально навитые фасонные проволоки плотно прижимаются друг к другу, образуя надежную защиту против проникновения влаги внутрь каната. Поэтому в большинстве эксплуатируемых мостов ванты образованы из канатов закрытого типа. Они выпускаются нашей промышленностью диаметрами от 30,5 до 71,5 мм и несущей способностью до 5 000 кН. За рубежом в мостах используют закрытые канаты больших диаметров и несущей способности. Например, в мосту Кельбранд (ФРГ, 1974 г.) с основным пролетом 325 м в вантах применены закрытые канаты диаметрами до 110 мм и несущей способностью до 13 150 кН.
Расчетное сопротивление стальных крученых канатов при применении их в постоянных вантовых мостах принимают равным 0,42–0,45 от их нормативного сопротивления.
Начали применять ванты из пучков параллельно уложенных проволок диаметрами 5–7 мм (рис. 6.11, г), формируемых обычно по схеме 1+6+12+18… проволок с увеличением числа в каждом последующем слое на 6. Подлине пучки обвязывают оцинкованной проволокой диаметром 1,5 мм. Ванты из пучков параллельных проволок обладают более высокой продольной жесткостью (Е = 2,0∙105 МПа), чем ванты из крученых канатов. Благодаря отсутствию начальных напряжений, вызываемых в канатах спиральной свивкой, прочность проволок в пучках используется лучше. По этой же причине усталостная прочность пучков, особенно в местах заделки их концов в анкерные стаканы, выше, а технология изготовления проще, чем канатов. Это позволяет делать пучки более мощными и тем упростить конструкцию вант. Например, ванты Московского моста через р. Днепр в Киеве образованы пучками из 91 проволоки диаметром по 5 мм, а ванты моста через р. Рейн в г. Манхейме (ФРГ, 1972 г.) – из 259 проволок диаметром по 7 мм. Недостаток пучков из параллельных проволок – низкая коррозионная стойкость. Кроме того, пучки сравнительно большого диаметра обладают значительной изгибной жесткостью. Поэтому их трудно транспортировать, что, как правило, вызывает необходимость изготавливать пучки на месте строительства. Использование в пучках проволок одинаковой длины может вызвать в них значительные дополнительные напряжения в местах перегиба на пилоне при непрерывном переводе одной ванты в другую. Для снижения напряжений в Японии изготавливают криволинейные пучки, имеющие на участке перегиба ту же кривизну, что и седло опирания вант на пилоне.
В каждом конкретном случае выбирают канаты закрытого типа или же пучки параллельно уложенных проволок на основании анализа технико–экономической целесообразности того или иного решения.
В мостах с радиально–вантовыми фермами ванты образуют из нескольких стальных канатов с рассредоточенным их расположением в поперечном сечении ванты (рис. 6.12. а, б). Такое расположение канатов целесообразно использовать и в поясах решетчатых вантовых ферм относительно небольших пролетов. Оно позволяет проще решать конструкцию узлов сопряжения раскосов и поясов ферм. В фермах больших пролетов пояса обычно образуют кабелем шестигранного или круглого сечения, формируемым из стальных канатов или пучков параллельных проволок.
В многовантовых мостах каждая ванта может образовываться одним канатом закрытого типа большого диаметра или пучком параллельных проволок (рис. 6.12, в). При небольшом числе вант, поддерживающих балочную часть моста, каждую из них образуют группой канатов или пучков параллельных проволок, объединяемых в кабель (рис. 6.12, г – ж). Для сохранения формы поперечного сечения таких вант их через каждые 3–5 м перевязывают несколькими рядами оцинкованной проволоки диаметром 1,5 мм. В местах разводки ванты на отдельные ветки ставят специальные стальные обоймы (рис. 6.12, з).
С учетом условий крепления вант к балкам жесткости и пилонам предпочтительнее кабели прямоугольной формы (см. рис. 6.12, г, д). При одной плоскости вант и размещении их на разделительной полосе проезда могут оказаться целесообразными ванты с однорядным по горизонтали расположением в них канатов или пучков. Такое конструктивное решение упрощает регулирование натяжения вант в процессе монтажа конструкций и замену отдельных канатов или пучков в период эксплуатации моста. Кроме того, при такой конструкции ванты длина всех канатов или пучков, входящих в нее, будет одинаковой. Это облегчает их заготовку и разметку. Некоторый недостаток вант прямоугольного сечения и особенно развитого по вертикали (см. рис. 6.12, д) – их худшие аэродинамические характеристики, в сравнении с вантами шестигранного сечения (см. рис. 6.12, ж).

Рис. 6.12 – Поперечные сечения вант и обойма для обжатия вант перед их разведением на отдельные канаты или пучки
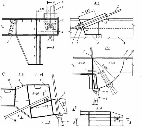
Одним из важных элементов конструкции вант являются концевые анкеры канатов и пучков параллельных проволок, при помощи которых ванты присоединяют к балкам жесткости и пилонам. Наиболее широко используемое конструктивное решение анкеровки концов канатов или пучков – заделка их в конические полости стальных стаканов заливкой специальными сплавами при температуре плавления до 450 °С. В мостостроении используют цинково–алюминиевый сплав ЦАМ=9=1,5.
Форма анкерных стаканов и приспособлений для их закрепления в конструкции, а также захвата для натяжения ванты при помощи домкратов могут быть различными. Они зависят от принятой конструкции закрепления вант в узлах и типа применяемых натяжных устройств. Например, в радиально–вантовых фермах используется анкерное закрепление (рис. 6.13, а), анкерный стакан которого имеет выступы с отверстиями для концов стальной серьги, служащей для закрепления каната или пучка в узлах фермы. Концы серьги закрепляют в выступах стакана гайками и контргайками, что позволяет регулировать длину ванты. В вантовых мостах с балками жесткости используют преимущественно анкерные стаканы, показанные на (рис. 6.13, б). Один из этих анкерных стаканов цилиндрической формы имеет с одной стороны коническую полость для заделки в ней каната или пучка, а с другой цилиндрическую полость с нарезкой для закрепления специальной траверсы, при помощи которой домкратами натягивают канат (пучок). Обычно анкерному стакану для облегчения придают коническую форму, а для закрепления натяжных приспособлений на стакане около более широкого его торца устраивают два выступа (рис. 6.13, в).

Рис. 6.13 – Концевые анкеры вант: 1 – серьга; 2 – стальной анкерный стакан; 3 – гайки; 4 – канат или пучок; 5 – коническая полость стакана; 6 – место для расплетенного конца каната или разведенного на отдельные проволоки конца пучка; 7 – резьба для закрепления натяжной траверсы; 8 – выступ для закрепления натяжной траверсы; 9 – проушина; 10 – шайба, усиливающая проушину; 11 – заглушка; 12 – полимерное заполнение; 13 – упорная плита; 14 – защитная оболочка; 15 – спираль из вязальной проволоки; 16 – уплотнительная втулка; 17 – концевые головки проволок пучка
При расчетных усилиях в канатах или пучках, образующих ванты, не превосходящих 1000 кН, можно применять анкерные стаканы в виде прямоугольного параллелепипеда с рассверленной в нем цилиндрической полостью для закрепления конца каната (пучка). К анкерным стаканам приваривают проушины, служащие для закрепления их в узлах с помощью стержней–шарниров (рис. 6.13, г).
Недостаток горячей заливки анкерных стаканов – нагревание проволок каната (пучка), что заметно снижает их усталостную прочность на участке, примыкающем к анкеру. В связи с этим иногда применяют холодную заливку анкерных стаканов. Например, за рубежом используют холодную заливку анкерных стаканов смесью эпоксидной смолы с отвердителем (6%), цинковой пыли (14%) и стальных шариков (80%). Кроме того, каждую проволоку пучка дополнительно закрепляют при помощи высадных головок в кольце, установленном в анкерном стакане (рис. 6.13, д).
Важный показатель конструкции вант – защита их от коррозии. Для защиты вант, образованных из наиболее стойких против коррозии крученых канатов закрытого типа, достаточна грунтовка их свинцовым суриком и покраска (2–3 раза) масляной краской. Борозды между отдельными канатами ванты заполняют специальной мастикой на основе эпоксидной смолы. Ванты из открытых крученых канатов обычно обматывают виток к витку вязальной проволокой последующей грунтовкой и покраской масляной краской в несколько слоев. В последнее время для защиты от коррозии вант, образованных из открытых крученых канатов и пучков параллельных проволок, используют полимерные материалы. Например, ванты моста через р. Прейри (Канада, 1969 г.) защищены в условиях завода полиэтиленовым покрытием толщиной 5 мм после предварительной вытяжки канатов. Пучки из параллельных проволок, образующие ванты моста через р. Парана (Аргентина, 1975 г.), защищены полиэтиленовыми оболочками с толщиной стенок 5 мм, а пространство между оболочкой и пучком заполнено цементным раствором.
На Московском мосту через р. Днепр для защиты проволок пучка от коррозии зазоры между ними заполняли долговечным синтетическим каучуком, затем пучок обвертывали двумя слоями пропитанной стеклоткани, одним слоем стальной оцинкованной ленты и прокрашивали.
Балочная часть вантовых мостов с балками жесткости. Эта часть пролетных троений состоит из собственно балок жесткости и конструкции проезжей части.
Конструкция проезжей части может состоять из поперечных балок и продольных балок, на которые укладывается железобетонная плита (рис. 6.14, а), или только из поперечных балок, поддерживающих такую плиту. Железобетонную плиту обычно объединяют с балками проезжей части для совместной работы. Балки жесткости на всей длине работают на изгибающие моменты обоих знаков. Это делает целесообразной конструкцию проезжей части со стальной ортотропной плитой, входящей в состав поперечного сечения балок жесткости (Рис. 6.14, б, в).

Рис. 6.14 – Поперечные разрезы балочной части вантовых мостов с балками жесткости: 1 – плоскость вант; 2– двутавровая балка жесткости; 3 – поперечная балка; 4 – железобетонная плита проезжей часты; 5 – продольные балки; 6 – нижние продольные связи; 7 – стальная ортотропная плита проезжей части; 8 – подкос; 9 – коробчатая балка жесткости; 10 – тяга; 11 – балка жесткости коробчатых конструкций; 12 – поперечные связи
В мостах относительно небольших пролетов с двумя плоскостями вант и в многовантовых мостах, имеющих малую длину панели вантовой системы, можно применять балки двутаврового сечения (см. рис. 6.14, а, б). Однако для прощения конструкции прикрепления вант к балкам, а также повышения крутильной жесткости балочной части моста предпочтительно коробчатое сечение балок жесткости (см. рис. 6.14, в). Высокая поперечная и крутильная жесткость коробчатых балок, связанных стальной ортотропной плитой проезжей части, позволяет отказаться от устройства связей между ними, ограничиваясь только постановкой вертикальных диафрагм в местах прикрепления к балкам вант и в опорных сечениях. Ветровые и другие поперечные нагрузки воспринимаются в этом случае жестким диском ортотропной плиты проезжей части для повышения крутильной жесткости балочной части пролетного строения целесообразно ширину коробчатых балок принимать по возможности большей. Например, в мосту через р. Рейн в Кельне ширина коробчатых балок равна 3,2 м, а в Московском мосту через р. Днепр в Киеве она доведена до 5 м. В мостах с одной плоскостью вант, а иногда и в мостах с двумя плоскостями вант балку жесткости и конструкцию проезжей части устраивают в виде единой жесткой на кручение коробчатой конструкции (рис. 6.14, г, д, е). В системах с одной плоскостью вант применяют обычно двухсекционные коробчатые конструкции с размещением третьей вертикальной стенки в плоскости вант и креплением их к ней (см. рис. 6.14, д, е).
В широких мостах с целью более полного использования материала нижней ребристой плиты коробчатой конструкции балки ширина ее обычно значительно меньше ширины моста за счет выноса одновременно части конструкции проезжей части и тротуаров на консоли. Такое конструктивное решение позволяет снизить объем кладки опор моста. Кроме того, длинные консоли скрадывают высоту балки жесткости и придают мосту более легкий вид.
Для облегчения работы длинных консолей они могут поддерживаться подкосами или тягами, поставленными в плоскости поперечных ребер ортотропной плиты (см. рис. 6.14, г, е). Для уменьшения длины консолей можно наружные стенки коробчатой балки ставить наклонно (см. рис. 6.14, г. д). Устройство наклонных стенок, кроме того, улучшает условия обтекания балок ветровым потоком.
При очень большом пролете моста могут оказаться целесообразными балки жесткости в виде сквозных ферм.
Балки и фермы жесткости вантовых мостов по всей длине имеют постоянную высоту. Конструкции отдельных элементов и узлов балочной части вантовых мостов, за исключением узлов прикрепления к балкам или фермам жесткости вант, не имеют специфических особенностей в сравнении с пролетными строениями балочных систем.
Крепление вант к балкам жесткости и пилонам. Узлы прикрепления Вант к балкам жесткости являются в конструктивном отношении наиболее сложными узлами вантовых систем, особенно при малом количестве вант, когда необходимо в одном узле закрепить большое число канатов или проволочных пучков, образующих каждую из вант.
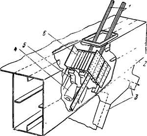
Конструкция закрепления в балке жесткости коробчатого сечения ванты, образуемой кабелем квадратного сечения из 16 канатов диаметром каждый 67 мм, показана на (рис. 6.15). Ванта, введенная в коробку балки, обжата стальной обоймой и разведена веерообразно по фасаду и в плане на отдельные канаты. Между стенками коробчатой балки установлены пять наклонных балок–диафрагм, на которые через стальные прокладки специальной конфигурации оперты анкерные стаканы канатов ванты. Натяжение канатов регулируют домкратами с траверсой, закрепляемой за выступы анкерных стаканов.

Рис. 6.15 – Конструкция прикрепления ванты к коробчатой балке жесткости: 1 – стальная обойма; 2 – канаты ванты; 3 – стальные опорные подкладки; 4 – вилкообразные шайбы; 5 – концевые анкеры; 6 – ребра жесткости; 7 – поперечная диафрагма коробчатой балки жесткости; 8 – места установки домкратов для натяжения ванты; 9 – высокопрочные болты; 10 – опорные балки–диафрагмы
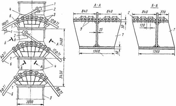
Два примера конструкции прикрепления вант к балкам жесткости в многовантовых мостах, в которых каждая ванта образована одним–двумя канатами или пучками параллельных проволок, приведены на (рис. 6.16). В первом примере ванта, состоящая из двух канатов, прикреплена к одностенчатой балке жесткости при помощи консоли коробчатого сечения с наружной стороны балки в плоскости поперечного ребра стальной ортотропной плиты проезжей части (рис. 6.16, а). Каждый из канатов, образующих ванту, стальным кольцом, закрепленным при помощи резьбы на анкерном стакане, опирается на трубу, вваренную в коробку консоли. Натяжение каната регулируется домкратами при помощи траверсы, закрепляемой на резьбе в хвостовой части анкерного стакана. В натянутом положении канат закрепляется тем же концом. Во втором примере конструкции прикрепления одноканатной ванты к консоли балки жесткости коробчатой конструкции (например: см. рис. 6.14, г) ванта при помощи анкерного стакана и небольшой траверсы оперта на коробчатую конструкцию, прикрепленную к концу консоли балки жесткости в плоскости поперечного ребра ортотропной плиты проезжей части (рис. 6.16, б). Нижние грани вертикальных стенок этой конструкции очерчены по дуге круга. Это позволяет опирать на нее ванты, имеющие различный угол наклона к оси балки жесткости, изменяя только местоположение опорной траверсы (см. разрез Г–Г на рис. 6.16, б). Опорные коробки, при помощи которых ванты крепят к консоли балки жесткости, связаны между собой подлине моста продольными балками, расположенными в плоскости их внешних вертикальных листов. Это способствует более равномерной передаче распора вант на коробчатую конструкцию балочной клетки пролетного строения.

Рис. 6.16 – Конструкция прикрепления вант к балке жесткости в многовантовых местах: 1 – ось ванты; 2 – канат (пучок) ванты; 3 – траверса; 4 – анкерный стакан; 5 – балка жесткости; 6 – упорная труба; 7 – опорное кольцо; 8 – внешний лист опорной коробки; 9 – внутренний лист опорной коробки; 10 – продольная балка, связывающая опорные коробки; 11 – тяга; 12 – вилкообразная шайба; 13 – переменный размер
Для исключения работы консолей балки жесткости на изгиб вертикальными составляющими усилий в вантах опорные коробки вант связаны тягами с нижней ребристой плитой балки жесткости (см. рис. 6.14, г). Горизонтальные составляющие усилий в вантах, направленные поперек моста, воспринимаются ортотропной плитой проезжей части.
Прикрепление вант к наружным стенкам балок жесткости при помощи небольших консолей (см. рис. 6.16, а) или к консолям балок жесткости коробчатой конструкции (см. рис. 6.16, б) имеет определенные конструктивные и монтажные преимущества по сравнению с закреплением их внутри коробчатых балок. Кроме того, такое крепление не требует увеличения ширины моста из–за стеснения ее вантами.
Прикрепление вант к наружным стенкам балок жесткости возможно и в мостах с небольшим числом мощных вант. Например, ванты построенного в 1980 г. моста через р. Шексну, наклонены к балкам, состоят каждая из 8–16 закрытых канатов диаметром по 71,5 мм и прикреплены к наружным стенкам коробчатых балок шириной 1,8 м. При этом в узле все канаты прикрепляемой ванты размещены в одной вертикальной плоскости.
Конструкция прикрепления ванты, образованной двумя пучками параллельных проволок, к верхнему узлу решетчатой фермы жесткости трехпролетной вантовой системы с центральным пролетом 220 м приведена на (рис. 6.17).

Рис. 6.17 – Конструкция прикрепления ванты к верхнему поясу решетчатой балки жесткости: 1 – канаты ванты; 2 – верхний пояс балки жесткости; 3 – раскосы балки жесткости; 4 – концевые анкеры; 5 – опорный башмак; 6 – анкерная конструкция
В мостах, имеющих мощные ванты–оттяжки, закрепление которых в балках жесткости встречает конструктивные трудности, можно оттяжками обогнуть торцы балок, передавая на них горизонтальные составляющие усилий в оттяжках, а концы закрепить в кладке опор.
Конструкция опирания или закрепления вант на пилоне зависит от того: опираются ли все ванты на одну общую опорную часть или каждая их пара, образуемая расположенными по разным сторонам пилона вантами, опирается самостоятельно; прикрепляются ли ванты жестко к пилону или опираются на него через подвижные опорные части; обрывается ли каждая ванта на пилоне и самостоятельно прикрепляется к нему или они пропускаются через пилон без обрыва. Неподвижное закрепление вант, пропускаемых через пилон без разрыва, обеспечивают за счет сил трения между канатами и седлом. Эти силы при необходимости могут быть увеличены прижатием канатов к седлу при помощи накладок и высокопрочных болтов. В опорной поверхности седла устраивают желоба, соответствующие форме канатов, образующих ванты. Желоба можно заменить постановкой под канаты и между канатами прокладок из мягкого металла, которые обеспечат плотное опирание канатов всей поверхностью и равномерную передачу давления на седло. Экспериментальными исследованиями установлено, что условия опирание каната и интенсивность его поперечного обжатия существенно влияют на усталостную прочность материала каната. Поэтому радиус опорной поверхности седла, а следовательно, и длину опирания на него канатов назначают из условий ограничения интенсивности их поперечного обжатия до 10–25 кН/см. Грани седла на входе и выходе из него канатов должны иметь пологие закругления, чтобы обеспечить плавный переход от состояния поперечного сжатия каната к состоянию свободного подвешивания.
В конструкции неподвижного закрепления вант, расположенных в пролетном строении по веерной схеме в А–образном пилоне моста через р. Шексну, часть канатов всех вант смежных пролетов системы не прерываются на пилоне (рис. 6.18). Канаты верхней и средней пар вант, ненужные в одном из пролетов, оборваны и заанкерены на пилоне с упором анкерных стаканов в специальные траверсы. Все конструкции стального пилона и опорных частей вант сварные. Такая конструкция опирания вант на пилоне отличается простотой укладки и закрепления канатов вант в опорных частях, что обусловлено однорядным расположением канатов. В мостах с параллельным расположением вант канаты или пучки, образующие их и сходящиеся в одной точке на пилоне, пропущены обычно с одной его стороны на другую без разрыва и оперты на пилон неподвижно или же неподвижно закреплена только одна пара вант, а остальные оперты подвижно.

Рис. 6.18 – Конструкция опирания и закрепления вант на А–образном пилоне: 1 – концевые анкеры; 2 – вилкообразные шайбы; 3 – прижимные планки; 4 – монтажные стыки; 5 – пилон; 6 – ванты; 7 – неподвижные опорные части вант; 8 – опорные траверсы; 9 – высокопрочные болты
В многовантовых мостах каждая ванта закреплена на пилоне, как правило, самостоятельно (рис. 6.19). Для закрепления вант в тело пилона вмонтирована стальная коробка с балками–диафрагмами, на которые опираются концевые анкеры вант.

Рис. 6.19 – Конструкция опирания вант на пилоне многовантового моста: 1 – стальная коробка: 2 – концевые анкеры; 3 – стальные опорные башмаки; 4 – опорные двутавровые балки; 5 – ванты; 6 – железобетонный пилой
Опирание вантовых пролетных строений с балками жесткости. Внешне безраспорные вантовые пролетные строения с балками жесткости по характеру опорных реакций подобны балочным системам. Поэтому, как и в любой балочной конструкции, они должны иметь одну шарнирно–неподвижную и остальные шарнирно–подвижные опорные части. В том случае, когда стойки пилона не связаны с балками жесткости и защемлены в опорах, а ванты неподвижно прикреплены к стойкам, пролетные строения можно во всех опорных точках ставить на шарнирно–подвижные опорные части, продольные силы, действующие на него в этом случае, будут вантами передаваться на пилоны. При этом обеспечивается симметричность температурных деформаций пролетных строений. Однако они будут испытывать продольные перемещения, вызываемые изгибом пилонов, что усложняет устройство деформационных швов.
Отличительная особенность вантовых пролетных строений с балками жесткости – наличие значительных отрицательных опорных реакций и прежде всего на опорах, поддерживающих балки жесткости в местах прикрепления к ним вант–оттяжек. Например, отрицательная опорная реакция на крайней правой опоре моста в Кельне составляет 16 400 кН. что послужило причиной применения опорных конструкций, способных работать на знакопеременные усилия.
В эксплуатируемых мостах наиболее употребительны шарнирно–подвижные опорные конструкции балок жесткости в виде качающихся стоек, имеющих шарниры на верхнем и нижнем концах. Такая конструкция опирания балок жесткости (рис. 6.20, а) принята, например, на крайних опорах трехпролетного моста через р. Прейри в Монреале (Канада. 1969 г.). Здесь две качающиеся стойки, поддерживающие конец двухсекционной коробчатой балки жесткости, поставлены симметрично относительно средней стенки балки, к которой прикреплена ванта–оттяжка. Опорные проушины верхних шарниров стоек при помощи поперечных ребер прикреплены к верхней плите и средней стенке балки жесткости, а проушины нижнего шарнира каждой стойки объединены в башмаки, прикрепленные анкерами к кладке устоя. Качающиеся стойки этого моста рассчитаны на отрицательную опорную реакцию, равную 11 350 кН.

Рис. 6.20 – Конструкция опирания и закрепления на концевых опорах балки жесткости: 1 – анкерная качающаяся стойка; 2 – стержень–шарнир; 3 – конструкция прикрепления качающихся стоек; 4 – разделительная полоса проезжей части; 5 – усиленная средняя стенка коробчатой конструкции балки жесткости; 6 – анкерные стержни; 7 – стальная ортотропная плита проезжей части; 8 – усиление проушины; 9 – проушина; 10 – анкерное устройство нижней проушины; 11 – слой раствора; 12 – железобетонная стенка опоры моста; 13 – опорная поперечная балка; 14 – концевые анкеры; 15 – железобетонное пролетное строение; 16 – опорная консоль; 17 – катковая опорная часть; 18 – стальные канаты; 19 – вилкообразные шайбы; 20 – балка жесткости
При необходимости обеспечить свободу перемещений балочной части пролетного строения как в продольном, так и в поперечном направлениях анкерные качающиеся стойки делают шарнирными в обоих направлениях.
Высота качающейся стойки определяется размером возможного продольного перемещения ее верхнего шарнира вместе с пролетным строением. Она должна быть такой, чтобы стойка после наклона, вызванного таким перемещением, могла свободно возвращаться в вертикальное положение. Практически это обеспечивается при отклонении стойки от вертикали не более чем на 15°.
Шарнирно–неподвижная анкерная опорная часть может быть образована объединением верхних опорных проушин и нижних опорных башмаков с проушинами (рассмотренной опорной конструкции) общим шарниром без стойки.
Конструкция опирания балок жесткости может состоять и из обычных опорных частей, работающих только на положительную опорную реакцию, и дополнительных анкерных элементов, воспринимающих отрицательную опорную реакцию. Например, конструкция опирания такого типа (рис. 6.20, б) применена на крайних опорах балок жесткости моста через р. Эльбу, в Гамбурге (ФРГ, 1974 г.). Здесь балка жесткости коробчатой конструкции (см. рис. 6.14, г) оперта на обычные катковые опорные части, а в качестве анкерных элементов использованы стальные канаты, закрепленные верхними концами в опорной поперечной балке, а нижними в кладке опоры моста. Для уменьшения отрицательной опорной реакции, воспринимаемой анкерными элементами, конец балки жесткости пригружен опирающимся на него железобетонным пролетным строением соседнего пролета моста.
vse-lekcii.ru
ВАНТОВЫЕ КОНСТРУКЦИИ — это… Что такое ВАНТОВЫЕ КОНСТРУКЦИИ?
- ВАНТОВЫЕ КОНСТРУКЦИИ
разновидность висячих конструкций, несущими элементами к-рых являются ванты. В. к. состоят из вант_ и элементов, воспринимающих сжатие, — балок, жёстких ферм, арок, рам, плит, оболочек (см. рис.).
К ст. Вантовые конструкции. Каток с вантовым покрытием в г. Брауншвейге, ФРГ
Большой энциклопедический политехнический словарь. 2004.
- ВАНТОВАЯ СИСТЕМА
- ВАНТОВЫЙ МОСТ
Смотреть что такое «ВАНТОВЫЕ КОНСТРУКЦИИ» в других словарях:
вантовые конструкции — геометрически неизменяемый тип висячей конструкции. Выполнены только из прямолинейных элементов (вантов) и часто называются вантовыми фермами. Как и в висячих конструкциях, все элементы вантовой фермы работают на растяжение, что позволяет… … Энциклопедия техники
Вантовые конструкции — разновидность висячих конструкций (См. Висячие конструкции) … Большая советская энциклопедия
Вантовые конструкции — Висячие покрытия, кровли, мосты, и иные конструкции, основанные на сочетании работы жестких опор и растяжении стальных тросов/стержней. Источник: Словарь архитектурно строительных терминов … Строительный словарь
вантовые конструкции — строит. конструкции, основанные на сочетании растяжения специальных стержней (канатов, кабелей и т.п.) и жестких опор и креплений (висячие мосты, покрытия и т.п.) … Универсальный дополнительный практический толковый словарь И. Мостицкого
Вантовые конструкции — Висячие покрытия, кровли, мосты, и иные конструкции, основанные на сочетании работы жестких опор и растяжении стальных тросов/стержней … Словарь строителя
Конструкции прочие — Термины рубрики: Конструкции прочие Временная перегородка Геодезическая съёмка отклонений строительных конструкций Консольные системы … Энциклопедия терминов, определений и пояснений строительных материалов
Конструкции вантовые — висячие покрытия, кровли, мосты, и иные конструкции, основанные на сочетании работы жестких опор и растяжении стальных тросов, стержней. [Словарь архитектурно строительных терминов] Рубрика термина: Конструкции прочие Рубрики энциклопедии:… … Энциклопедия терминов, определений и пояснений строительных материалов
КОНСТРУКЦИИ БАЙТОВЫЕ — [СИСТЕМА БАЙТОВАЯ] висячие конструкции, основными несущими элементами которых являются ванты, вантовые сетки или вантовые фермы (Болгарский язык; Български) вантови конструкции (Чешский язык; Čeština) zavěšené [lanové] konstrukce; lanová… … Строительный словарь
Висячие конструкции — строительные конструкции, в которых основные элементы, несущие нагрузку (тросы, кабели, цепи, сетки, листовые мембраны и т.п.), испытывают только растягивающие усилия. Работа В. к. на растяжение позволяет полностью использовать… … Большая советская энциклопедия
История архитектуры — Предположительно, эта страница или раздел нарушает авторские права. Её содержимое, вероятно, скопировано с http://nestudent.ru/show.php?id=80519 p=4 практически без изменений. Пожалуйста, проверьте … Википедия
dic.academic.ru
Вантовые конструкции
При строительстве мостов, спортивных сооружений и различных кровлей широко применяются вантовые конструкции. С их помощью можно покрыть большие пространства, не требуя применения каких-либо внутренних перегородок.
При применении таких конструкций, главное, чтобы были правильно соблюдены компьютерные расчеты. Это поможет уравновесить силовые нагрузки. А во избежание провисания конструкции, на этапе сборки ванты максимально натягивают.
Подобные конструкции начали использовать достаточно давно. Они включали в себя ванты или оттяжки, в сочетании с матерчатой оболочкой. Но раньше они применялись только для временных сооружений переносного типа, таких как палатки, навесы, шатры.
Использовать в конструкциях тросы стали после освоения металла, как строительного материала. Тросы стали работать исключительно на растяжение. Методы восприятия сил сжатия в конструкциях совершенствовались тысячелетиями. После изобретения железобетона, создавались конструкции, которые воспринимали изгибающие усилия. И в конце 19 века появились первые подвесные вантовые покрытия, патент на которые был получен русским инженером В.Р. Шуховым. Через год после этого, конструкции были продемонстрированы в Нижнем Новгороде в покрытиях павильона Всероссийской выставки. Но, чтобы их стали применять в архитектуре, понадобилось еще полвека.
Такие подвесные перекрытия могут изготавливаться из различных материалов и обладать разной геометрической формой. Несущая система имеет в своем составе ванты с вертикальными или наклонными подвесками, легкие несущие балки или плиты покрытия. Ванты крепятся на стойках, расчаленных в продольном или поперечном направлении. Стойки, в свою очередь, располагаются в один или несколько рядов.
Вантовые конструкции можно подразделить на плоские и пространственные. Трос, на котором крепятся воспринимающие местную нагрузку элементы, принадлежит к разряду плоских конструкций. К ним можно отнести канатные дороги, висячие мосты, системы трубопроводов, висячие покрытия и подвесные переходы. Отличительной особенностью плоской конструкции является то, что все элементы работают на растяжение.
Пространственные же конструкции широко применяются в системах покрытий общественных и промышленных зданий и сооружений, то есть в местах, где предусмотрены большие площади пролетов. Такие конструкции могут различаться по степени увеличения коэффициента стабильности и жесткости. Согласно инженерному проекту, конструкции бывают однопоясными, двухпоясными или седловидными. Но все типы достаточно сложны и в то же время надежны.
Среди последних сооружений, сделанных на основе вантовых конструкций, можно выделить футбольные комплексы, мега-комплексы и производственные помещения. В технологии их строительства необходимо только предельно соблюдать технологию и использовать качественные материалы. Технология вантовых конструкций на сегодняшнее время находится в состоянии постоянного развития.
okostroy.ru
ТЕХНОЛОГИЯ МОНТАЖА ВАНТОВЫХ КОНСТРУКЦИЙ | Железобетонные каркасы
Вантовым называют покрытие, имеющее в качестве опоры натянутые стальные канаты (ванты). Байтовая система, в свою очередь, опирается на опорный контур, воспринимающий все горизонтальные и вертикальные нагрузки.
Опорный контур может устраиваться в виде рядов колонн или стен с контрфорсами, быть незамкнутым или замкнутым.
Как правило, ванты натягивают на замкнутое железобетонное кольцо, опирающееся на колонны. Кольцо полностью воспринимает горизонтальные нагрузки и исключает возникновение изгибающих напряжений в колоннах.
Помещения, перекрываемые вантовыми конструкциями, в плане могут быть прямоугольными, овальными или круглыми, а ванты — располагаться параллельно, радиально или перекрестно по главным направлениям поверхности оболочки.
В качестве вант могут быть использованы стальные стержни, пряди или канаты, в том числе объединенные для удобства установки в фермы.
Для уменьшения прогиба от эксплуатационных нагрузок и возможности появления трещин висячая оболочка подвергается предварительному напряжению путем натяжения вант и подвешивания дополнительных пригрузов.
Для отвода воды и удобства ведения монтажных работ кроме несущего каната может дополнительно устанавливаться верхний — стабилизирующий канат (рис. 1). Пример устройства Байтового перекрытия приведен на рис 2.
Рис.1.: а и б — соответственно при незамкнутом и замкнутом опорном контуре; в — при натяжении и при грузке вантовых ферм; 1 — опорный контур; 2 — ванты; 3 — стабилизирующий канат, 4 — центральная цилиндрическая опора; 5 — несущий канат.
Последовательность выполнения работ при перекрытии пролета вантовыми канатами:
- вантовый канат, намотанный на барабан, подают краном к месту установки, один конец каната закрепляют анкером в опорном контуре.
- канат раскатывают, оснащают контрольными грузами, поднимают в проектное положение, натягивают электролебедкой и закрепляют в опорном контуре с противоположной стороны;
- после установки всех продольных канатов производят геодезическую проверку положения точек вантовой сети;
- устанавливают поперечные ванты (на рис. 2 не показаны), закрепляют их пересечения с рабочими вантами;
- укладывают плиты покрытия в направлении от нижней к верхней;
- производят натяжение загруженной вантовой сети, бетонирование стыков и контурных участков.
Технология перекрытия
Вантовыми фермами была использована при строительстве Дворца спорта «Юбилейный* в Санкт-Петербурге.
Здание, круглое в плане, высотой 20 м, диаметром 93 м, включает в себя спортивную арену, трибуны, обслуживающие и вспомогательные помещения. Распор от натяжения тросов воспринимается металлическими колоннами и железобетонным кольцом, которое через консоли крепится к 48 колоннам.
Байтовые полуфермы собирались внизу на стендах, наносилось антикоррозийное покрытие, устанавливались анкерные муфты и т.п.
Монтаж полуферм осуществлялся с помощью башенного крана, перемещающегося по кольцевым путям, проложенным вокруг здания, и сводился к подъему вантовых ферм и закреплению их с одной стороны к металлическим кольцам, а с другой — к заводке тросов с муфтам гнезд на колоннах.
Несущий и стабилизирующий тросы (соответственно диаметром 65 и 42,5 м) крепились на колоннах на разных уровнях, что позволило сократить высоту здания и установить в местах излома поверхности кровли приемные воронки для внутреннего водостока.
В качестве плит покрытия использовались стальные панели трапециевидной формы, покрываемые затем пенопластом и рубероидным ковром.
Рис.2. Технологические схемы перекрытия больших пролетов висячими конструкциями:
а — вантовыми канатами; б — Байтовыми фермами; 1 — электролебедка; 2 — башенные краны. 3 — вантовый канат; 4 — траверса, 5 — постоянная цилиндри-ческая опора из двух колец и стоек; б — установленная ферма. 7 — опорное железобетонное кольцо; 8 — временная монтажная опора; 9 — монтируемая вантовая ферма, 10 — трибуна
Монтаж висячего покрытия с использованием вантовых ферм включает в себя следующие технологические операции:
- установка с помощью стрелового крана временной центральной монтажной опоры и монтаж на ее верхней части постоянной цилиндрической опоры в виде двух колец, соединенных стальными стойками;
- изготовление, подъем и установка попарно вантовых полуферм и наружных связей — сначала по двум перпендикулярным осям, затем подряд с двух диаметрально противоположных сторон;
- первоначальное натяжение установленных полуферм;
- раскружаливание и демонтаж временной монтажной опоры;
- монтаж сборных элементов покрытия с заделкой стыков;
- напряжение всей вантовой системы в несколько этапов — по две фермы, расположенные перпендикулярно друг другу;
- установка внутренних связей по фермам и кровле;
- замоноличивание покрытия и контурных участков.
beton-karkas.ru
