ΠΡΡΠΎΠ²Π°Ρ ΡΡΡΠ°Π½ΠΎΠ²ΠΊΠ° Π£Π Π 2Π2: ΡΠ΅Ρ Π½ΠΈΡΠ΅ΡΠΊΠΈΠ΅ Ρ Π°ΡΠ°ΠΊΡΠ΅ΡΠΈΡΡΠΈΠΊΠΈ
ΠΡΡΠΎΠ²Π°Ρ ΡΡΡΠ°Π½ΠΎΠ²ΠΊΠ° Π£Π Π 2Π2 ΡΠ²Π»ΡΠ΅ΡΡΡ ΠΎΠ΄Π½ΠΎΠΉ ΠΈΠ· ΡΠ°ΠΌΡΡ ΡΠ½ΠΈΠ²Π΅ΡΡΠ°Π»ΡΠ½ΡΡ Π² ΡΠ²ΠΎΠ΅ΠΌ ΠΊΠ»Π°ΡΡΠ΅. ΠΠ°ΡΠΈΠ½Π° ΠΏΡΠ΅Π΄Π½Π°Π·Π½Π°ΡΠ΅Π½Π° Π΄Π»Ρ ΡΠΎΠ·Π΄Π°Π½ΠΈΡ ΡΠΊΠ²Π°ΠΆΠΈΠ½ Π²Π·ΡΡΠ²Π½ΠΎΠ³ΠΎ ΠΈ Π²ΠΎΠ΄ΠΎΠ·Π°Π±ΠΎΡΠ½ΠΎΠ³ΠΎ ΡΠΈΠΏΠ°, ΡΠ°Π·Π²Π΅Π΄ΠΊΠΈ ΡΠ°Π·Π»ΠΈΡΠ½ΡΡ ΠΌΠ΅ΡΡΠΎΡΠΎΠΆΠ΄Π΅Π½ΠΈΠΉ. ΠΡΠΎΠΌΠ΅ ΡΠΎΠ³ΠΎ, ΠΎΠ½Π° ΠΈΡΠΏΠΎΠ»ΡΠ·ΡΠ΅ΡΡΡ Π² ΡΡΠ΅ΡΠ΅ Π½Π΅ΡΡΠ΅ΠΏΠ΅ΡΠ΅ΡΠ°Π±ΠΎΡΠΊΠΈ, Π³Π΅ΠΎΡΠΈΠ·ΠΈΠΊΠ΅, ΡΠ°Π·ΡΠ°Π±ΠΎΡΠΊΠ΅ ΠΏΠΎΠ»Π΅Π·Π½ΡΡ ΠΈΡΠΊΠΎΠΏΠ°Π΅ΠΌΡΡ , ΠΈΠ½ΠΆΠ΅Π½Π΅ΡΠ½ΠΎΠΉ Π³Π΅ΠΎΠ»ΠΎΠ³ΠΈΠΈ. Π Π°ΡΡΠΌΠΎΡΡΠΈΠΌ Π΅Π΅ Ρ Π°ΡΠ°ΠΊΡΠ΅ΡΠΈΡΡΠΈΠΊΠΈ ΠΈ ΠΎΡΠΎΠ±Π΅Π½Π½ΠΎΡΡΠΈ.

ΠΠ°ΠΊ ΡΡΡΡΠΎΠ΅Π½Π° ΠΌΠ°ΡΠΈΠ½Π°?
ΠΡΡΠΎΠ²Π°Ρ ΡΡΡΠ°Π½ΠΎΠ²ΠΊΠ° Π£Π Π 2Π2 Π² ΡΡΠ°ΡΠ½ΠΎΠΉ ΠΊΠΎΠΌΠΏΠ»Π΅ΠΊΡΠ°ΡΠΈΠΈ Π±Π°Π·ΠΈΡΡΠ΅ΡΡΡ Π½Π° ΡΡΠΈΠ»Π΅Π½Π½ΠΎΠΉ ΡΠ°ΠΌΠ΅ Π½Π΅ΡΡΡΠ΅Π³ΠΎ ΡΠΈΠΏΠ°. ΠΠ½Π° ΠΌΠΎΠ½ΡΠΈΡΡΠ΅ΡΡΡ Π½Π° Π±Π°Π·ΠΎΠ²ΠΎΠΉ ΠΎΡΠ½ΠΎΠ²Π΅ ΠΌΠΎΠ΄Π΅ΡΠ½ΠΈΠ·ΠΈΡΠΎΠ²Π°Π½Π½ΠΎΠ³ΠΎ Π°Π²ΡΠΎΠΌΠΎΠ±ΠΈΠ»Ρ ΠΠΠ-131. ΠΡΡΠ·ΠΎΠ²ΠΈΠΊ ΠΎΡΠ»ΠΈΡΠ°Π΅ΡΡΡ ΠΏΠΎΠ²ΡΡΠ΅Π½Π½ΡΠΌ ΠΏΠΎΠΊΠ°Π·Π°ΡΠ΅Π»Π΅ΠΌ ΠΏΡΠΎΡ ΠΎΠ΄ΠΈΠΌΠΎΡΡΠΈ, ΡΡΠΎ ΠΏΠΎΠ·Π²ΠΎΠ»ΡΠ΅Ρ ΠΏΡΠΎΠ²ΠΎΠ΄ΠΈΡΡ Π±ΡΡΠ΅Π½ΠΈΠ΅ ΠΈ ΡΠ°Π·Π²Π΅Π΄ΠΊΡ ΠΏΡΠ°ΠΊΡΠΈΡΠ΅ΡΠΊΠΈ Π² Π»ΡΠ±ΡΡ ΡΡΠ»ΠΎΠ²ΠΈΡΡ .
ΠΡΠ΅Π΄ΡΡΠΌΠΎΡΡΠ΅Π½ ΠΏΠ΅ΡΠ΅ΠΌΠ΅ΡΠ°ΡΡΠΈΠΉΡΡ Π³ΠΈΠ΄ΡΠ°Π²Π»ΠΈΡΠ΅ΡΠΊΠΈΠΉ Π²ΡΠ°ΡΠ°ΡΡΠΈΠΉΡΡ ΠΌΠ΅Ρ Π°Π½ΠΈΠ·ΠΌ, ΠΏΡΠΈ ΠΏΠΎΠΌΠΎΡΠΈ ΠΊΠΎΡΠΎΡΠΎΠ³ΠΎ ΠΌΠΎΠΆΠ½ΠΎ ΠΏΡΠΎΠΈΠ·Π²ΠΎΠ΄ΠΈΡΡ ΡΠ»Π΅Π΄ΡΡΡΠΈΠ΅ ΠΌΠ°Π½ΠΈΠΏΡΠ»ΡΡΠΈΠΈ:
- ΠΠΎΠ΄Π½ΠΈΠΌΠ°ΡΡ ΠΈ ΠΎΠΏΡΡΠΊΠ°ΡΡ Π±ΡΡΠΎΠ²ΠΎΠ΅ ΠΏΡΠΈΡΠΏΠΎΡΠΎΠ±Π»Π΅Π½ΠΈΠ΅.
- ΠΡΠΏΠΎΠ»Π½ΡΡΡ Π½Π°ΡΠ°ΡΠΈΠ²Π°Π½ΠΈΠ΅ Π΄Π»ΠΈΠ½Ρ, Π½Π΅ ΠΎΡΡΡΠ²Π°ΡΡΡ ΠΎΡ Π·Π°Π±ΠΎΡ.
- Π£Π»ΡΡΡΠ°ΡΡ ΠΏΠΎΠΊΠ°Π·Π°ΡΠ΅Π»Ρ ΠΊΠ°ΡΠ΅ΡΡΠ²Π° Π±ΡΡΠΎΠ²ΡΡ ΡΠ°Π±ΠΎΡ.
ΠΠΈΠ΄ΡΠ°Π²Π»ΠΈΡΠ΅ΡΠΊΠΈΠΉ ΠΏΡΠΈΠ²ΠΎΠ΄ ΡΡΡΠ΅ΡΡΠ²Π΅Π½Π½ΠΎ ΠΎΠ±Π»Π΅Π³ΡΠ°Π΅Ρ Π²Π΅ΡΡ ΠΏΡΠΎΡΠ΅ΡΡ. Π£ΠΏΡΠ°Π²Π»ΡΠ΅ΡΡΡ ΡΠ»Π΅ΠΌΠ΅Π½Ρ ΠΏΡΠΈ ΠΏΠΎΠΌΠΎΡΠΈ ΠΏΡΠ»ΡΡΠ° Ρ ΠΌΠ΅ΡΡΠ° Π±ΡΡΠΈΠ»ΡΡΠΈΠΊΠ°. Π’Π°ΠΊΠΎΠ΅ Π²Π·Π°ΠΈΠΌΠΎΠ΄Π΅ΠΉΡΡΠ²ΠΈΠ΅ Π³Π°ΡΠ°Π½ΡΠΈΡΡΠ΅Ρ ΡΡΠ²ΡΡΠ²ΠΈΡΠ΅Π»ΡΠ½ΠΎΠ΅ ΠΈ ΠΎΠΏΠ΅ΡΠ°ΡΠΈΠ²Π½ΠΎΠ΅ Π±ΡΡΠ΅Π½ΠΈΠ΅. ΠΠΈΠ½Π΅ΠΌΠ°ΡΠΈΡΠ΅ΡΠΊΠ°Ρ ΠΊΠΎΠ½ΡΡΡΡΠΊΡΠΈΡ Π°Π³ΡΠ΅Π³ΠΈΡΡΠ΅Ρ Ρ ΠΌΠΎΡΠΎΡΠΎΠΌ Π³ΡΡΠ·ΠΎΠ²ΠΈΠΊΠ° ΠΏΡΠΈ ΠΏΠΎΠΌΠΎΡΠΈ:
- ΠΠ°ΡΠΎΡΠΎΠ² Π±ΡΡΠΎΠ²ΠΎΠ³ΠΎ ΡΠΈΠΏΠ° (ΠΠ-50, ΠΠ-250/100, ΠΠ¨-10-ΠΠ).
- ΠΡΠ°ΡΠ°ΡΡΠ΅Π³ΠΎΡΡ ΠΌΠ΅Ρ Π°Π½ΠΈΠ·ΠΌΠ°, ΠΊΠΎΠΌΠΏΡΠ΅ΡΡΠΎΡΠ°, Π³ΠΈΠ΄ΡΠ°Π²Π»ΠΈΡΠ΅ΡΠΊΠΎΠ³ΠΎ ΠΌΠΎΡΠΎΡΠ°.
- Π Π°Π·Π΄Π°ΡΠΎΡΠ½ΠΎΠΉ ΠΈ ΠΏΠ΅ΡΠ΅Π΄Π°ΡΡΠ΅ΠΉ ΠΊΠΎΡΠΎΠ±ΠΊΠΈ, ΡΠ·Π»ΠΎΠΌ ΠΎΡΠ±ΠΎΡΠ° ΠΌΠΎΡΠ½ΠΎΡΡΠΈ ΡΠ°ΠΌΠΎΠΉ ΡΡΡΠ°Π½ΠΎΠ²ΠΊΠΈ.
ΠΠΏΠΈΡΠ°Π½ΠΈΠ΅ Π±ΡΡΠΎΠ²ΠΎΠΉ ΡΡΡΠ°Π½ΠΎΠ²ΠΊΠΈ Π£Π Π 2Π2
Π Π°ΡΡΠΌΠ°ΡΡΠΈΠ²Π°Π΅ΠΌΠ°Ρ ΡΠ΅Ρ Π½ΠΈΠΊΠ° ΠΌΠΎΠΆΠ΅Ρ ΡΠ°ΠΊΠΆΠ΅ ΡΡΡΠ°Π½Π°Π²Π»ΠΈΠ²Π°ΡΡΡΡ Π½Π° Π³ΡΡΠ΅Π½ΠΈΡΠ½ΠΎΠΉ Π±Π°Π·Π΅ ΠΈΠ»ΠΈ ΠΎΡΠ½ΠΎΠ²Π΅ ΡΠ°Π½Π½ΠΎΠ³ΠΎ ΡΠΈΠΏΠ°. ΠΡΠΈ ΠΎΠΏΡΠΈΠΈ Π²Ρ ΠΎΠ΄ΡΡ Π² Π΄ΠΎΠΏΠΎΠ»Π½ΠΈΡΠ΅Π»ΡΠ½ΠΎΠ΅ ΠΈΡΠΏΠΎΠ»Π½Π΅Π½ΠΈΠ΅. ΠΠ·Π³ΠΎΡΠ°Π²Π»ΠΈΠ²Π°Π΅ΡΡΡ ΠΎΠ½ΠΎ ΠΏΠΎΠ΄ Π·Π°ΠΊΠ°Π·, ΠΏΠΎΡΠΊΠΎΠ»ΡΠΊΡ Π£Π Π 2Π2 ΡΡΠ½ΠΊΡΠΈΠΎΠ½ΠΈΡΡΠ΅Ρ ΠΎΡ ΡΠΈΠ»ΠΎΠ²ΠΎΠ³ΠΎ Π°Π³ΡΠ΅Π³Π°ΡΠ° ΡΠΎΠ±ΡΡΠ²Π΅Π½Π½ΠΎΠΉ ΠΊΠΎΠ»Π΅ΡΠ½ΠΎΠΉ Π±Π°Π·Ρ, ΠΌΠ°ΡΠΈΠ½Π° Π½Π΅ ΡΠΏΠΎΡΠΎΠ±Π½Π° ΡΠ°Π±ΠΎΡΠ°ΡΡ Π°Π²ΡΠΎΠ½ΠΎΠΌΠ½ΠΎ Π±Π΅Π· ΠΎΠ±Π΅ΡΠΏΠ΅ΡΠ΅Π½ΠΈΡ Π΄ΠΎΠ±Π°Π²ΠΎΡΠ½ΠΎΠ³ΠΎ ΠΏΠΈΡΠ°Π½ΠΈΡ.

Π Π³Π»Π°Π²Π½ΠΎΠΌΡ Π΄ΠΎΡΡΠΎΠΈΠ½ΡΡΠ²Ρ ΡΠ°ΡΡΠΌΠ°ΡΡΠΈΠ²Π°Π΅ΠΌΠΎΠΉ ΡΠ΅Ρ Π½ΠΈΠΊΠΈ ΠΎΡΠ½ΠΎΡΠΈΡΡΡ ΠΊΠΎΠ½ΡΡΡΡΠΊΡΠΈΡ, ΠΊΠΎΡΠΎΡΠ°Ρ ΠΏΠΎΠ»Π½ΠΎΡΡΡΡ Π²ΡΠΏΠΎΠ»Π½Π΅Π½Π° ΠΏΠΎ ΠΎΡΠ΅ΡΠ΅ΡΡΠ²Π΅Π½Π½ΠΎΠΉ ΡΠ΅Ρ Π½ΠΎΠ»ΠΎΠ³ΠΈΠΈ Ρ ΠΏΡΠΈΠΌΠ΅Π½Π΅Π½ΠΈΠ΅ΠΌ ΠΈΡΠΊΠ»ΡΡΠΈΡΠ΅Π»ΡΠ½ΠΎ ΡΠΎΡΡΠΈΠΉΡΠΊΠΈΡ Π΄Π΅ΡΠ°Π»Π΅ΠΉ. ΠΠ°Π½Π½ΡΠΉ ΡΠ°ΠΊΡΠΎΡ ΠΏΠΎΠ·Π²ΠΎΠ»ΡΠ΅Ρ ΡΠ΄Π΅ΡΠ΅Π²ΠΈΡΡ ΡΠΊΡΠΏΠ»ΡΠ°ΡΠ°ΡΠΈΡ Π±Π΅Π· ΠΏΠΎΡΠ΅ΡΠΈ ΠΊΠ°ΡΠ΅ΡΡΠ²Π°. ΠΡΠΎΠΌΠ΅ ΡΠΎΠ³ΠΎ, ΡΠΏΠ΅ΡΡΠ΅Ρ Π½ΠΈΠΊΠ° ΠΈΠΌΠ΅Π΅Ρ Π²ΡΡΠΎΠΊΡΡ ΡΠ΅ΠΌΠΎΠ½ΡΠΎΠΏΡΠΈΠ³ΠΎΠ΄Π½ΠΎΡΡΡ Ρ Π²ΠΎΠ·ΠΌΠΎΠΆΠ½ΠΎΡΡΡΡ Π·Π°ΠΊΠ°Π·Π° ΡΡΠ΅Π±ΡΠ΅ΠΌΡΡ Π·Π°ΠΏΡΠ°ΡΡΠ΅ΠΉ ΠΏΡΠΈ ΠΌΠ°ΠΊΡΠΈΠΌΠ°Π»ΡΠ½ΠΎ Π±ΡΡΡΡΠΎΠΉ Π΄ΠΎΡΡΠ°Π²ΠΊΠ΅. ΠΠΎΡΠΊΠΎΠ»ΡΠΊΡ Π²ΡΠ΅ ΡΠ°ΡΡ ΠΎΠ΄Π½ΡΠ΅ ΡΠ»Π΅ΠΌΠ΅Π½ΡΡ ΠΏΡΠΎΠΈΠ·Π²ΠΎΠ΄ΡΡΡΡ Π½Π° ΡΠΏΠ΅ΡΠΈΠ°Π»ΠΈΠ·ΠΈΡΠΎΠ²Π°Π½Π½ΡΡ Π·Π°Π²ΠΎΠ΄Π°Ρ Π² Π ΠΎΡΡΠΈΠΈ, ΠΏΡΠΈ Π·Π°ΠΊΠ°Π·Π΅ Π΄Π΅ΡΠ°Π»Π΅ΠΉ Π½Π΅Ρ Π½Π΅ΠΎΠ±Ρ ΠΎΠ΄ΠΈΠΌΠΎΡΡΠΈ ΠΆΠ΄Π°ΡΡ Π½Π΅ΡΠΊΠΎΠ»ΡΠΊΠΎ ΠΌΠ΅ΡΡΡΠ΅Π², ΠΊΠ°ΠΊ Π² ΡΠ»ΡΡΠ°Π΅ Ρ Π·Π°ΡΡΠ±Π΅ΠΆΠ½ΡΠΌΠΈ ΠΏΠΎΡΡΠ°Π²ΡΠΈΠΊΠ°ΠΌΠΈ. ΠΡΡΠΎΠ²Π°Ρ ΡΡΡΠ°Π½ΠΎΠ²ΠΊΠ° Π£Π Π 2Π2 ΠΌΠΎΠΆΠ΅Ρ ΡΠΊΡΠΏΠ»ΡΠ°ΡΠΈΡΠΎΠ²Π°ΡΡΡΡ Π² ΡΠ°ΠΌΡΡ ΡΠ»ΠΎΠΆΠ½ΡΡ ΡΡΠ»ΠΎΠ²ΠΈΡΡ . ΠΠ°ΡΠΈΠ½Π° ΠΎΡΠ»ΠΈΡΠ½ΠΎ ΡΠ΅Π±Ρ ΠΏΠΎΠΊΠ°Π·Π°Π»Π° Π½Π° Π―ΠΌΠ°Π»Π΅ ΠΈ Π² Π―ΠΊΡΡΠΈΠΈ.
ΠΡΠΎΠ±Π΅Π½Π½ΠΎΡΡΠΈ
ΠΠ°Π½Π½Π°Ρ ΡΠ΅Ρ Π½ΠΈΠΊΠ° ΡΠΊΡΠΏΠ»ΡΠ°ΡΠΈΡΡΠ΅ΡΡΡ Π΄Π»Ρ Π³Π΅ΠΎΠ»ΠΎΠ³ΠΈΡΠ΅ΡΠΊΠΈΡ ΠΈΡΡΠ»Π΅Π΄ΠΎΠ²Π°Π½ΠΈΠΉ, Ρ Π²ΠΎΠ·ΠΌΠΎΠΆΠ½ΠΎΡΡΡΡ ΡΠ°Π·Π²Π΅Π΄ΠΊΠΈ Π»ΡΠ±ΡΡ ΡΡΠΎΠ²Π½Π΅ΠΉ Π΄ΠΎ 300 ΠΌΠ΅ΡΡΠΎΠ². ΠΠ½Π° ΡΠ°ΠΊΠΆΠ΅ ΠΏΡΠΈΠΌΠ΅Π½ΡΠ΅ΡΡΡ Π΄Π»Ρ ΡΠΎΠ·Π΄Π°Π½ΠΈΡ ΡΠΊΠ²Π°ΠΆΠΈΠ½ Π²ΠΎΠ΄ΠΎΠ·Π°Π±ΠΎΡΠ½ΠΎΠ³ΠΎ Π½Π°Π·Π½Π°ΡΠ΅Π½ΠΈΡ, ΡΠΎΠΎΡΡΠΆΠ°Π΅ΠΌΡΡ Π² ΡΠ΅Π»ΡΡ ΠΎΠ±ΡΡΡΡΠΎΠΉΡΡΠ²Π° ΡΠΈΡΡΠ΅ΠΌΡ ΠΏΠΎΠ΄Π°ΡΠΈ Π²ΠΎΠ΄Ρ ΡΠ°Π·Π»ΠΈΡΠ½ΠΎΠ³ΠΎ ΠΏΡΠ΅Π΄Π½Π°Π·Π½Π°ΡΠ΅Π½ΠΈΡ (ΠΏΡΠΎΠΌΡΡΠ»Π΅Π½Π½ΠΎΠ³ΠΎ ΠΈ Π±ΡΡΠΎΠ²ΠΎΠ³ΠΎ ΠΈΡΠΏΠΎΠ»ΡΠ·ΠΎΠ²Π°Π½ΠΈΡ). ΠΡΠΎΠ±Π΅Π½Π½ΠΎΡΡΡΡ ΠΌΠ°ΡΠΈΠ½Ρ ΡΠ²Π»ΡΠ΅ΡΡΡ Π²ΠΎΠ·ΠΌΠΎΠΆΠ½ΠΎΡΡΡ ΡΠΈΠ½Ρ ΡΠΎΠ½Π½ΠΎΠΉ ΠΏΡΠΎΠΌΡΠ²ΠΊΠΈ ΠΈΠ»ΠΈ ΠΏΡΠΎΠ΄ΡΠ²ΠΊΠΈ ΠΎΠ±ΡΠ°Π±Π°ΡΡΠ²Π°Π΅ΠΌΡΡ ΡΡΡΠ΅ΠΊΠΎΠ². Π‘ΡΠΎΠΈΡ ΠΎΡΠΌΠ΅ΡΠΈΡΡ, ΡΡΠΎ ΠΎΠ±ΡΠΈΠΉ ΠΏΡΠΎΡΠ΅ΡΡ ΠΏΡΠΈ ΡΡΠΎΠΌ Π½Π΅ ΠΎΡΡΠ°Π½Π°Π²Π»ΠΈΠ²Π°Π΅ΡΡΡ, ΡΡΠΎ ΠΎΠ±Π΅ΡΠΏΠ΅ΡΠΈΠ²Π°Π΅Ρ Π±Π΅ΡΠΏΠ΅ΡΠ΅Π±ΠΎΠΉΠ½ΠΎΡΡΡ ΠΏΡΠΎΠ²Π΅Π΄Π΅Π½ΠΈΡ ΡΠ°Π±ΠΎΡ.
Π‘ΠΎΠ΅Π΄ΠΈΠ½Π΅Π½ΠΈΠ΅ ΠΈ ΡΠ°Π·Π±ΠΎΡΠΊΠ° ΡΡΡΠ± Π²ΡΠΏΠΎΠ»Π½ΡΡΡΡΡ Π·Π° ΡΡΠ΅Ρ Π²ΠΈΠ½ΡΠΎΠ² ΠΏΡΠΈ ΠΏΠΎΠΌΠΎΡΠΈ Π²ΡΠ°ΡΠ°ΡΠ΅Π»Ρ, ΡΡΠΎ ΠΏΠΎΠ·Π²ΠΎΠ»ΡΠ΅Ρ ΠΈΡΠΊΠ»ΡΡΠΈΡΡ ΠΏΡΠΈΠΌΠ΅Π½Π΅Π½ΠΈΠ΅ Π΄ΠΎΠΏΠΎΠ»Π½ΠΈΡΠ΅Π»ΡΠ½ΡΡ ΡΡΡΡΠΎΠΉΡΡΠ². ΠΠ»Π°Π³ΠΎΠ΄Π°ΡΡ Π½Π°Π»ΠΈΡΠΈΡ Π³ΠΈΠ΄ΡΠ°Π²Π»ΠΈΡΠ΅ΡΠΊΠΎΠ³ΠΎ ΡΠΈΠ»ΠΈΠ½Π΄ΡΠ°, ΠΎΠ±Π΅ΡΠΏΠ΅ΡΠΈΠ²Π°ΡΡΠ΅Π³ΠΎ ΠΏΠΎΠ΄ΡΠ΅ΠΌΠ½ΠΎ-ΡΠΏΡΡΠΊΠ½ΡΠ΅ ΠΌΠ°Π½ΠΈΠΏΡΠ»ΡΡΠΈΠΈ, Π΄Π°ΠΆΠ΅ ΠΏΡΠΈ Π±ΡΡΠ΅Π½ΠΈΠΈ ΠΏΠ½Π΅Π²ΠΌΠ°ΡΠΈΡΠ΅ΡΠΊΠΈΠΌΠΈ ΡΠ΄Π°ΡΠ½ΠΈΠΊΠ°ΠΌΠΈ ΠΊΠΎΠ½ΡΡΠΎΠ»ΠΈΡΡΠ΅ΡΡΡ ΡΡΠ΅Π±ΡΠ΅ΠΌΠΎΠ΅ ΠΏΠΎΡΡΠΎΡΠ½Π½ΠΎΠ΅ Π΄Π°Π²Π»Π΅Π½ΠΈΠ΅ Π½Π° Π·Π°Π±ΠΎΠΉ.

Π’Π΅Ρ Π½ΠΈΡΠ΅ΡΠΊΠΈΠ΅ Ρ Π°ΡΠ°ΠΊΡΠ΅ΡΠΈΡΡΠΈΠΊΠΈ Π±ΡΡΠΎΠ²ΠΎΠΉ ΡΡΡΠ°Π½ΠΎΠ²ΠΊΠΈ Π£Π Π 2Π2
ΠΠΈΠΆΠ΅ ΠΏΡΠΈΠ²Π΅Π΄Π΅Π½Ρ ΠΏΠ°ΡΠ°ΠΌΠ΅ΡΡΡ ΡΠ΅Ρ Π½ΠΈΡΠ΅ΡΠΊΠΎΠ³ΠΎ ΠΏΠ»Π°Π½Π° ΡΠ°ΡΡΠΌΠ°ΡΡΠΈΠ²Π°Π΅ΠΌΠΎΠΉ ΡΠ΅Ρ Π½ΠΈΠΊΠΈ:
- Π‘ΡΠ°ΡΡΠΎΠ²ΡΠΉ Π΄ΠΈΠ°ΠΌΠ΅ΡΡ ΡΠ°Π±ΠΎΡΡ β 19 ΡΠΌ.
- ΠΠ»ΡΠ±ΠΈΠ½Π° Π±ΡΡΠ΅Π½ΠΈΡ ΡΠΊΠ²Π°ΠΆΠΈΠ½ (Π³Π΅ΠΎΡΠΈΠ·ΠΈΡΠ΅ΡΠΊΠΈΡ /ΡΡΡΡΠΊΡΡΡΠ½ΡΡ /ΡΠ½Π΅ΠΊΠΎΠ²ΡΡ /) β 100/300/30 ΠΌ.
- ΠΠ½Π°Π»ΠΎΠ³ΠΈΡΠ½ΡΠΉ ΠΏΠΎΠΊΠ°Π·Π°ΡΠ΅Π»Ρ ΠΏΡΠΈ ΠΏΡΠΎΠ΄ΡΠ²ΠΊΠ΅ β 30 ΠΌ.
- ΠΠ°ΠΊΡΠΈΠΌΠ°Π»ΡΠ½ΡΠΉ ΠΈΡΠΎΠ³ΠΎΠ²ΡΠΉ Π΄ΠΈΠ°ΠΌΠ΅ΡΡ Π±ΡΡΠ΅Π½ΠΈΡ β 11,8 ΡΠΌ.
- ΠΠ±ΠΎΡΠΎΡΠΈΡΡΠΎΡΡΡ (1/2/3 ΡΠΊΠΎΡΠΎΡΡΡ) β 140/225/325 Π²ΡΠ°ΡΠ΅Π½ΠΈΠΉ Π² ΠΌΠΈΠ½ΡΡΡ.
- ΠΡΡΡΡΡΠΈΠΉ ΠΌΠΎΠΌΠ΅Π½Ρ (1/2/3 ΡΠΊΠΎΡΠΎΡΡΡ) β 2010/1210/830 ΠΠΌ.
- ΠΠΎΠΊΠ°Π·Π°ΡΠ΅Π»Ρ Π΄Π°Π²Π»Π΅Π½ΠΈΡ Π² ΡΠΈΡΡΠ΅ΠΌΠ΅ β 100 ΠΊΠ³/ΡΠΌ2.
- ΠΡΡΠ·ΠΎΠΏΠΎΠ΄ΡΠ΅ΠΌΠ½ΠΎΡΡΡ ΠΌΠ°ΡΡΡ/ΠΈΠ½ΡΡΡΡΠΌΠ΅Π½ΡΠ° β 6000/4600 ΠΊΠ³Ρ.
- ΠΠ°Π±Π°ΡΠΈΡΡ β 8,08/2,5/3,5 ΠΌ. Π ΡΠ°Π±ΠΎΡΠ΅ΠΌ ΠΏΠΎΠ»ΠΎΠΆΠ΅Π½ΠΈΠΈ Π²ΡΡΠΎΡΠ° Π΄ΠΎΡΡΠΈΠ³Π°Π΅Ρ 8,38 ΠΌ.
- ΠΠ΅Ρ β Π΄ΠΎ 13,8 Ρ.
- Π’ΠΈΠΏ ΠΊΠΎΠΌΠΏΡΠ΅ΡΡΠΎΡΠ° β ΠΠ‘ΠΠ£-4ΠΠ£1-5/9.
ΠΠΊΡΠΏΠ»ΡΠ°ΡΠ°ΡΠΈΡ
ΠΡΡΠΎΠ²Π°Ρ ΡΡΡΠ°Π½ΠΎΠ²ΠΊΠ° Π£Π Π 2Π2 ΠΎΠ±ΠΎΡΡΠ΄ΠΎΠ²Π°Π½Π° Π³ΠΈΠ΄ΡΠ°Π²Π»ΠΈΡΠ΅ΡΠΊΠΎΠΉ ΡΠΈΡΡΠ΅ΠΌΠΎΠΉ Ρ ΠΌΠ°Π½ΠΎΠΌΠ΅ΡΡΠ°ΠΌΠΈ, ΠΊΠΎΡΠΎΡΡΠ΅ Π³Π°ΡΠ°Π½ΡΠΈΡΡΡΡ ΠΎΠΏΡΠΈΠΌΠ°Π»ΡΠ½ΡΠΉ ΡΠ΅ΠΆΠΈΠΌ ΡΠ°Π±ΠΎΡΡ ΠΌΠ΅Ρ Π°Π½ΠΈΠ·ΠΌΠ°. ΠΡΠΈ ΠΏΠΎΠΌΠΎΡΠΈ ΡΠΏΠ΅ΡΠΈΠ°Π»ΡΠ½ΡΡ ΡΠΈΠ»ΡΡΡΠΎΠ² ΠΏΡΠΎΠΈΠ·Π²ΠΎΠ΄ΠΈΡΡΡ ΠΎΡΠΈΡΡΠΊΠ° ΠΌΠ°ΡΠ»Π°, ΡΡΠΎ ΠΏΠΎΠ·Π²ΠΎΠ»ΡΠ΅Ρ Π² Π½Π΅ΡΠΊΠΎΠ»ΡΠΊΠΎ ΡΠ°Π· ΠΏΡΠΎΠ΄Π»ΠΈΡΡ ΡΠΊΡΠΏΠ»ΡΠ°ΡΠ°ΡΠΈΠΎΠ½Π½ΡΠ΅ ΡΡΠΎΠΊΠΈ ΡΠ·Π»ΠΎΠ². Π£ΡΡΠ°Π½ΠΎΠ²Π»Π΅Π½Π½ΡΠΉ Π°Π²Π°ΡΠΈΠΉΠ½ΡΠΉ Π½Π°ΡΠΎΡ ΠΌΠ΅Ρ Π°Π½ΠΈΡΠ΅ΡΠΊΠΎΠ³ΠΎ ΡΠΈΠΏΠ° ΠΏΠΎΠ·Π²ΠΎΠ»ΡΠ΅Ρ Π²ΡΡΡΠ½ΡΡ Π΄Π΅Π°ΠΊΡΠΈΠ²ΠΈΡΠΎΠ²Π°ΡΡ ΡΡΡΠ°Π½ΠΎΠ²ΠΊΡ Π² ΡΠ»ΡΡΠ°Π΅ ΠΏΠΎΠ»ΠΎΠΌΠΊΠΈ Π°Π²ΡΠΎΠΌΠΎΠ±ΠΈΠ»Ρ.
ΠΠΎΠ΄ΡΠ΅ΠΌ ΡΠ°Π±ΠΎΡΠ΅Π³ΠΎ ΠΈΠ½ΡΡΡΡΠΌΠ΅Π½ΡΠ° ΠΏΡΠ΅Π΄ΡΡΠΌΠΎΡΡΠ΅Π½ Π² ΡΠ΅ΡΡΡΠ΅Ρ ΡΠ΅ΠΆΠΈΠΌΠ°Ρ : Π½ΠΎΡΠΌΠ°Π»ΡΠ½ΠΎΠΌ, Π°Π²Π°ΡΠΈΠΉΠ½ΠΎΠΌ, Π±ΡΡΡΡΠΎΠΌ ΠΈ ΠΌΠ΅Π΄Π»Π΅Π½Π½ΠΎΠΌ. ΠΠ³ΠΎ ΠΌΠΎΠΆΠ½ΠΎ ΠΏΠΎΠ΄Π²Π΅ΡΠΈΠ²Π°ΡΡ Π² Π»ΡΠ±ΠΎΠΉ ΠΈΠ· ΠΏΡΠΈΠΏΠΎΠ΄Π½ΡΡΡΡ ΠΏΠΎΠ·ΠΈΡΠΈΠΉ Π±Π»Π°Π³ΠΎΠ΄Π°ΡΡ ΠΎΠΏΠΎΡΠ½ΡΠΌ Π²ΡΠ΄Π²ΠΈΠ³Π°ΡΡΠΈΠΌΡΡ Π΄ΠΎΠΌΠΊΡΠ°ΡΠ°ΠΌ. Π‘ΠΏΡΡΠΊΠ°ΡΡΡΡ ΠΈΠ½ΡΡΡΡΠΌΠ΅Π½Ρ ΡΠ°ΠΊΠΆΠ΅ ΠΌΠΎΠΆΠ΅Ρ Π² Π½Π΅ΡΠΊΠΎΠ»ΡΠΊΠΈΡ ΡΠ΅ΠΆΠΈΠΌΠ°Ρ . ΠΡΠΎΡΡΠ°Ρ, Π½ΠΎ Π½Π°Π΄Π΅ΠΆΠ½Π°Ρ Π³ΠΈΠ΄ΡΠ°Π²Π»ΠΈΡΠ΅ΡΠΊΠ°Ρ ΡΠΈΡΡΠ΅ΠΌΠ° ΠΏΠΎΠ·Π²ΠΎΠ»ΡΠ΅Ρ ΠΎΡΡΡΠ΅ΡΡΠ²Π»ΡΡΡ ΠΏΠΎΠ»Π½ΠΎΡΠ΅Π½Π½ΠΎΠ΅ ΡΠΏΡΠ°Π²Π»Π΅Π½ΠΈΠ΅ Π°Π³ΡΠ΅Π³Π°ΡΠΎΠΌ Π±Π΅Π· ΠΎΡΠΎΠ±ΡΡ ΠΏΡΠΎΠ±Π»Π΅ΠΌ.

ΠΠΎΡΠΎΠ± ΠΎΡΠ±ΠΎΡΠ° ΠΌΠΎΡΠ½ΠΎΡΡΠΈ ΠΎΠ±ΠΎΡΡΠ΄ΠΎΠ²Π°Π½ ΠΎΠ΄Π½ΠΎΠΉ ΠΏΠ΅ΡΠ΅Π΄Π°ΡΠ΅ΠΉ ΠΈ ΠΌΡΡΡΠΎΠΉ Π²ΠΊΠ»ΡΡΠ΅Π½ΠΈΡ. ΠΠ΅ΡΠ°Π»Ρ Π·Π°ΡΠΈΠΊΡΠΈΡΠΎΠ²Π°Π½Π° Π² Π²Π΅ΡΡ Π½Π΅ΠΌ ΠΎΡΡΠ΅ΠΊΠ΅ ΠΊΠ°ΡΡΠ΅ΡΠ° ΡΠ°Π·Π΄Π°ΡΠΎΡΠ½ΠΎΠΉ ΠΊΠΎΡΠΎΠ±ΠΊΠΈ ΠΠΠΠ°. ΠΠΊΡΠΈΠ²Π°ΡΠΈΠΈ ΡΠ°Π·Π΄Π°ΡΠΊΠΈ ΡΠ°ΠΌΠΎΠΉ ΡΡΡΠ°Π½ΠΎΠ²ΠΊΠΈ ΠΎΡΡΡΠ΅ΡΡΠ²Π»ΡΠ΅ΡΡΡ ΠΏΠΎΡΡΠ΅Π΄ΡΡΠ²ΠΎΠΌ ΠΊΠ°ΡΠ΄Π°Π½Π½ΠΎΠ³ΠΎ Π²Π°Π»Π° ΠΈ ΡΠ·Π»Π° ΠΎΡΠ±ΠΎΡΠ° ΠΌΠΎΡΠ½ΠΎΡΡΠΈ. ΠΡΠΈ ΠΏΠΎΠΌΠΎΡΠΈ ΡΡΠΎΠ³ΠΎ Π±Π»ΠΎΠΊΠ° Π²ΡΠ°ΡΠ΅Π½ΠΈΠ΅ ΠΏΠ΅ΡΠ΅Π΄Π°Π΅ΡΡΡ Π½Π° Π±ΡΡΠΎΠ²ΡΠ΅ ΠΈ ΠΌΠ°ΡΠ»ΡΠ½ΡΠ΅ Π½Π°ΡΠΎΡΡ.
ΠΡΠ°ΡΠ°ΡΠ΅Π»Ρ
ΠΠ΅Ρ Π°Π½ΠΈΠ·ΠΌ Π²ΡΠ°ΡΠ΅Π½ΠΈΡ Π±ΡΡΠΎΠ²ΠΎΠΉ ΡΡΡΠ°Π½ΠΎΠ²ΠΊΠΈ Π£Π Π 2Π2 , ΡΠΎΡΠΎ ΠΊΠΎΡΠΎΡΠΎΠΉ ΠΈΠΌΠ΅Π΅ΡΡΡ Π²ΡΡΠ΅, Π²ΠΊΠ»ΡΡΠ°Π΅Ρ Π² ΡΠ΅Π±Ρ ΠΊΠΎΡΠΎΠ±ΠΊΡ Ρ ΡΡΠ΅ΠΌΡ Π²Π°Π»Π°ΠΌΠΈ ΠΈ ΡΠ°ΠΊΠΈΠΌ ΠΆΠ΅ ΠΊΠΎΠ»ΠΈΡΠ΅ΡΡΠ²ΠΎΠΌ ΡΠΊΠΎΡΠΎΡΡΠ΅ΠΉ, Π° ΡΠ°ΠΊΠΆΠ΅ ΡΠΈΠ»ΠΈΠ½Π΄ΡΠΈΡΠ΅ΡΠΊΠΈΠ΅ ΠΈ Π·ΡΠ±ΡΠ°ΡΡΠ΅ ΡΠ»Π΅ΠΌΠ΅Π½ΡΡ. ΠΡΠ°ΡΠ°ΡΠ΅Π»Ρ ΡΠ°Π·ΠΌΠ΅ΡΠ°Π΅ΡΡΡ Π² ΡΡΠ°Π»ΡΠ½ΠΎΠΌ Π»ΠΈΡΠΎΠΌ ΠΊΠΎΡΠΏΡΡΠ΅, ΡΡΠΎ ΠΎΠ±Π΅ΡΠΏΠ΅ΡΠΈΠ²Π°Π΅Ρ ΠΏΡΠΎΡΠ½ΠΎΡΡΡ ΠΈ Π½Π°Π΄Π΅ΠΆΠ½ΠΎΡΡΡ ΡΠ·Π»Π°. ΠΠ° ΠΊΠΎΠ½ΡΡΠΎΠ»ΡΠ½ΠΎΠΌ ΠΏΡΠ»ΡΡΠ΅ ΠΏΡΠΎΠΈΠ·Π²ΠΎΠ΄ΠΈΡΡΡ ΡΠ΅Π³ΡΠ»ΠΈΡΠΎΠ²ΠΊΠ° ΠΎΠ±ΠΎΡΠΎΡΠΎΠ² ΡΠΏΠΈΠ½Π΄Π΅Π»Ρ, ΠΎΡ Π½ΡΠ»Π΅Π²ΠΎΠ³ΠΎ ΡΠ΅ΠΆΠΈΠΌΠ° Π΄ΠΎ ΠΌΠ°ΠΊΡΠΈΠΌΠ°Π»ΡΠ½ΠΎΠ³ΠΎ ΠΏΠΎΠΊΠ°Π·Π°ΡΠ΅Π»Ρ.
ΠΠΈΠ΄ΡΠ°Π²Π»ΠΈΡΠ΅ΡΠΊΠΈΠΉ Π΄ΠΎΠΌΠΊΡΠ°Ρ ΠΏΠΎΠ΄Π°ΡΠΈ Π²ΠΊΠ»ΡΡΠ°Π΅Ρ Π² ΡΠ΅Π±Ρ ΡΡΠΎΠΊ ΠΈ ΡΠΈΠ»ΠΈΠ½Π΄Ρ, ΠΊΠΎΡΠΎΡΡΠΉ ΠΏΡΠΈΠ½ΠΈΠΌΠ°Π΅Ρ ΡΠ°ΡΡΡ ΡΠ΅Π°ΠΊΡΠΈΠ²Π½ΠΎΠΉ Π½Π°Π³ΡΡΠ·ΠΊΠΈ. ΠΠ³ΡΠ΅Π³Π°Ρ ΠΎΠ±ΠΎΡΡΠ΄ΠΎΠ²Π°Π½ ΠΎΠ΄Π½ΠΎΠΉ ΡΡΡΠΏΠ΅Π½ΡΡ ΠΏΠ°ΡΠ½ΠΎΠ³ΠΎ Π΄Π΅ΠΉΡΡΠ²ΠΈΡ. ΠΠ°ΡΡΠ° ΠΈΠΌΠ΅Π΅Ρ Π-ΠΎΠ±ΡΠ°Π·Π½ΡΡ ΠΊΠΎΠ½ΡΠΈΠ³ΡΡΠ°ΡΠΈΡ, ΡΠ΄Π΅Π»Π°Π½Π° ΠΈΠ· ΡΠ²Π΅Π»Π»Π΅ΡΠΎΠ² Ρ Π΄ΠΎΠ±Π°Π²ΠΎΡΠ½ΡΠΌΠΈ ΠΏΠΎΠΏΠ΅ΡΠ΅ΡΠΈΠ½Π°ΠΌΠΈ. ΠΠΎ Π²Π½ΡΡΡΠ΅Π½Π½Π΅ΠΉ ΡΠ°ΡΡΠΈ ΡΠ°Π·ΠΌΠ΅ΡΠ΅Π½ Π½Π΅ ΡΠΎΠ»ΡΠΊΠΎ Π΄ΠΎΠΌΠΊΡΠ°Ρ, Π½ΠΎ ΠΈ Π΄Π²Π΅ ΡΡΡΠ±Ρ, Π½Π° ΠΊΠΎΡΠΎΡΡΡ Π΄Π΅ΠΉΡΡΠ²ΡΠ΅Ρ Π½Π°Π³ΡΡΠ·ΠΊΠ°. ΠΠΎΠ΄ΠΎΠ±Π½ΠΎΠ΅ ΡΠ΅ΡΠ΅Π½ΠΈΠ΅ ΠΏΠΎΠ·Π²ΠΎΠ»ΡΠ΅Ρ ΠΎΠΏΡΠΈΠΌΠΈΠ·ΠΈΡΠΎΠ²Π°ΡΡ ΡΠ°Π±ΠΎΡΡ Π±ΡΡΠ° Π² ΡΡΠΆΠ΅Π»ΡΡ ΡΡΠ»ΠΎΠ²ΠΈΡΡ . Π¦Π΅Π½ΡΡΠΈΡΡΡΡΠΈΠΉ ΡΡΠΎΠ» ΠΎΠ±Π»Π΅Π³ΡΠ°Π΅Ρ ΡΠΊΡΠΏΠ»ΡΠ°ΡΠ°ΡΠΈΡ ΠΈΠ½ΡΡΡΡΠΌΠ΅Π½ΡΠ°.

ΠΡΠΎΡΠΈΠ΅ ΠΌΠ΅Ρ Π°Π½ΠΈΠ·ΠΌΡ
Π ΡΡΡΡΠΎΠΉΡΡΠ²ΠΎ Π±ΡΡΠΎΠ²ΠΎΠΉ ΡΡΡΠ°Π½ΠΎΠ²ΠΊΠΈ Π£Π Π 2Π2 Π²Ρ ΠΎΠ΄ΠΈΡ ΡΠ°Π»Π΅Π²Π°Ρ ΡΠΈΡΡΠ΅ΠΌΠ°, ΠΏΠΎΠ·Π²ΠΎΠ»ΡΡΡΠ°Ρ ΡΠ΄Π²ΠΎΠΈΡΡ Ρ ΠΎΠ΄ Π²ΡΠ°ΡΠ°ΡΡΠ΅Π³ΠΎΡΡ ΡΡΡΡΠΎΠΉΡΡΠ²Π°, ΠΎΠ½Π° ΠΈΠΌΠ΅Π΅Ρ ΡΡΠΈΠ»Π΅Π½Π½ΡΡ ΠΊΠΎΠ½ΡΡΡΡΠΊΡΠΈΡ Ρ Π΄Π²ΡΠΌΡ Π½Π°ΡΡΠΆΠ½ΡΠΌΠΈ ΠΏΡΠΈΡΠΏΠΎΡΠΎΠ±Π»Π΅Π½ΠΈΡΠΌΠΈ.
ΠΠ»Π΅Π²Π°ΡΠΎΡ ΠΎΡΠ²Π΅ΡΠ°Π΅Ρ Π·Π° ΡΠ²ΠΈΠ½ΡΠΈΠ²Π°Π½ΠΈΠ΅ ΠΈΠ»ΠΈ ΡΠ°Π·Π²ΠΈΠ½ΡΠΈΠ²Π°Π½ΠΈΠ΅ ΡΠ°Π±ΠΎΡΠΈΡ ΡΡΡΠ± ΠΈ ΠΈΠ½ΡΡΡΡΠΌΠ΅Π½ΡΠ°. ΠΠ½ ΠΈΠΌΠ΅Π΅Ρ ΠΊΠ°ΡΠ΅ΡΡΠ²Π΅Π½Π½ΠΎΠ΅ ΠΊΡΠ΅ΠΏΠ»Π΅Π½ΠΈΠ΅ ΠΈ ΡΡΡΡΠΎΠΉΡΡΠ²ΠΎ, ΠΏΡΠΎΡΡ Π² ΡΠΏΡΠ°Π²Π»Π΅Π½ΠΈΠΈ. ΠΠ°ΡΡΠΎΠ½Ρ Π΄Π»Ρ ΡΠ½Π΅ΠΊΠΎΠ² Π΄Π°ΡΡ Π²ΠΎΠ·ΠΌΠΎΠΆΠ½ΠΎΡΡΡ Π½Π°ΡΠ°ΡΠΈΠ²Π°ΡΡ ΠΈ ΠΏΠΎΠ΄Π½ΠΈΠΌΠ°ΡΡ ΡΠ·Π»Ρ Π±Π΅Π·ΠΎΠΏΠ°ΡΠ½ΠΎ Ρ ΠΊΠΎΠ½ΡΡΠΎΠ»Π΅ΠΌ ΠΊΠ°ΡΠ΅ΡΡΠ²Π° Π±ΡΡΠ΅Π½ΠΈΡ. ΠΡΠΎΠ±Π΅Π½Π½ΠΎΡΡΠΈ ΡΡΡΠΎΠ΅Π½ΠΈΡ Π²ΡΠ°ΡΠ°ΡΠ΅Π»ΡΠ½ΠΎΠ³ΠΎ ΠΏΡΠΈΡΠΏΠΎΡΠΎΠ±Π»Π΅Π½ΠΈΡ ΠΏΠΎΠ·Π²ΠΎΠ»ΡΡΡ ΠΎΠ±Π΅ΡΠΏΠ΅ΡΠΈΡΡ ΡΠ΄Π²ΠΎΠ΅Π½Π½ΡΡ ΡΠΊΠΎΡΠΎΡΡΡ ΠΏΠ΅ΡΠ΅ΠΌΠ΅ΡΠ΅Π½ΠΈΡ. Π ΡΡΠ°Π½ΡΠΏΠΎΡΡΠ½ΡΡ ΠΏΠΎΠ·ΠΈΡΠΈΡ ΠΌΠ°ΡΡΠ° ΠΏΠ΅ΡΠ΅Π²ΠΎΠ΄ΠΈΡΡΡ Π°Π²ΡΠΎΠΌΠ°ΡΠΈΡΠ΅ΡΠΊΠΈ, Π² ΡΠ»ΡΡΠ°Π΅ Π²ΡΡ ΠΎΠ΄Π° ΠΈΠ· ΡΡΡΠΎΡ ΠΏΡΠΈΠ²ΠΎΠ΄Π½ΠΎΠ³ΠΎ ΠΌΠΎΡΠΎΡΠ° ΠΈΠ»ΠΈ ΡΡΠ°Π½ΡΠΌΠΈΡΡΠΈΠΈ. ΠΡΠΈ ΠΏΠΎΠΌΠΎΡΠΈ ΠΎΠΏΠΎΡΠ½ΡΡ Π΄ΠΎΠΌΠΊΡΠ°ΡΠΎΠ² ΠΎΡΡΡΠ΅ΡΡΠ²Π»ΡΠ΅ΡΡΡ ΡΠ°Π·Π³ΡΡΠ·ΠΊΠ° Π±Π°Π·ΠΎΠ²ΠΎΠ³ΠΎ Π°Π²ΡΠΎΠΌΠΎΠ±ΠΈΠ»Ρ.
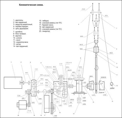
Π‘Ρ Π΅ΠΌΠ°
ΠΠΈΠΆΠ΅ ΠΏΡΠΈΠ²Π΅Π΄Π΅Π½ΠΎ ΡΡ Π΅ΠΌΠ°ΡΠΈΡΠ΅ΡΠΊΠΎΠ΅ ΠΈΠ·ΠΎΠ±ΡΠ°ΠΆΠ΅Π½ΠΈΠ΅ Π±ΡΡΠΎΠ²ΠΎΠΉ ΡΡΡΠ°Π½ΠΎΠ²ΠΊΠΈ Π£Π Π 2Π2, Ρ Π°ΡΠ°ΠΊΡΠ΅ΡΠΈΡΡΠΈΠΊΠΈ ΠΊΠΎΡΠΎΡΠΎΠΉ Π±ΡΠ»ΠΈ ΡΠ°ΡΡΠΌΠΎΡΡΠ΅Π½Ρ Π²ΡΡΠ΅, Π° ΡΠ°ΠΊΠΆΠ΅ ΡΠ°ΡΡΠΈΡΡΠΎΠ²ΠΊΠ° ΡΠΈΡΡΠΎΠ²ΡΡ ΠΎΠ±ΠΎΠ·Π½Π°ΡΠ΅Π½ΠΈΠΉ.

- Π£Π·Π΅Π» Π±ΡΡΠΎΠ²ΠΎΠ³ΠΎ Π½Π°ΡΠΎΡΠ°.
- ΠΠΎΡΠΎΠ± ΠΎΡΠ±ΠΎΡΠ° ΠΌΠΎΡΠ½ΠΎΡΡΠΈ.
- ΠΡΠΈΠ²ΠΎΠ΄ Π½Π°ΡΠΎΡΠ°.
- ΠΠΎΠΌΠΊΡΠ°Ρ Π³ΠΈΠ΄ΡΠ°Π²Π»ΠΈΡΠ΅ΡΠΊΠΎΠ³ΠΎ ΡΠΈΠΏΠ°
- ΠΠΎΠΌΠΏΡΠ΅ΡΡΠΎΡΡ.
- Π Π°Π·Π΄Π°ΡΠΊΠ°.
- ΠΠΎΠ΄ΡΠ΅ΠΌΠΎΡΠ½ΡΠΉ ΡΠΈΠ»ΠΈΠ½Π΄Ρ.
- ΠΡΠ°ΡΠ°ΡΠ΅Π»ΡΠ½ΡΠΉ ΠΌΠ΅Ρ Π°Π½ΠΈΠ·ΠΌ.
- ΠΠ°ΡΠ΅ΡΠΊΠ°.
- ΠΠ»Π΅Π²Π°ΡΠΎΡ.
- Π¨Π½Π΅ΠΊΠΎΠ²ΡΠΉ ΠΏΠ°ΡΡΠΎΠ½.
- Π£Π·Π΅Π» Π³Π΅ΡΠΌΠ΅ΡΠΈΠ·Π°ΡΠΈΠΈ.
- Π Π°Π±ΠΎΡΠ°Ρ ΠΌΠ°ΡΡΠ°.
- ΠΠΏΠΎΡΠ½ΡΠΉ Π΄ΠΎΠΌΠΊΡΠ°Ρ.
- Π’Π°Π»Π΅Π²ΠΎΠ΅ ΠΎΠ±ΠΎΡΡΠ΄ΠΎΠ²Π°Π½ΠΈΠ΅.
- Π‘ΠΈΡΡΠ΅ΠΌΠ° ΡΠΏΡΠ°Π²Π»Π΅Π½ΠΈΡ.
- ΠΠ°Π·ΠΎΠ²ΠΎΠ΅ ΡΡΠ°Π½ΡΠΏΠΎΡΡΠ½ΠΎΠ΅ ΡΡΠ΅Π΄ΡΡΠ²ΠΎ.
- Π Π°ΠΌΠ°.
- Π Π°ΡΠΏΡΠ΅Π΄Π΅Π»ΠΈΡΠ΅Π»Ρ.
- ΠΠ±Π²ΡΠ·ΠΊΠ° Π³ΠΈΠ΄ΡΠ°Π²Π»ΠΈΡΠ΅ΡΠΊΠΎΠ³ΠΎ ΡΠ·Π»Π°.
fb.ru
ΡΡΡΡΠΎΠΉΡΡΠ²ΠΎ, ΡΠ΅Ρ Π½ΠΈΡΠ΅ΡΠΊΠΈΠ΅ Ρ Π°ΡΠ°ΠΊΡΠ΅ΡΠΈΡΡΠΈΠΊΠΈ, ΡΠΎΡΠΎ ΠΈ Π²ΠΈΠ΄Π΅ΠΎ

ΠΠ»Ρ ΠΈΠ½ΠΆΠ΅Π½Π΅ΡΠ½ΠΎ-Π³Π΅ΠΎΠ»ΠΎΠ³ΠΈΡΠ΅ΡΠΊΠΈΡ ΡΠ°Π±ΠΎΡ Π½Π΅ΠΎΠ±Ρ ΠΎΠ΄ΠΈΠΌΠ° ΡΠΏΠ΅ΡΡΠ΅Ρ Π½ΠΈΠΊΠ°, ΠΊΠΎΡΠΎΡΠ°Ρ ΠΏΠΎΠ·Π²ΠΎΠ»ΠΈΡ ΠΏΡΠ°Π²ΠΈΠ»ΡΠ½ΠΎ ΠΏΡΠΎΠ±ΡΡΠΈΡΡ ΠΏΠΎΠΈΡΠΊΠΎΠ²ΡΡ ΡΠΊΠ²Π°ΠΆΠΈΠ½Ρ (Π³Π°Π·, Π½Π΅ΡΡΡ ΠΈΠ»ΠΈ ΠΏΠΎΠ»Π΅Π·Π½ΡΠ΅ ΠΈΡΠΊΠΎΠΏΠ°Π΅ΠΌΡΠ΅) ΠΈΠ»ΠΈ ΠΎΡΠ³Π°Π½ΠΈΠ·ΠΎΠ²Π°ΡΡ ΡΡΡΠ΅ΠΊ Π΄Π»Ρ ΠΏΠΎΠ΄Π°ΡΠΈ ΠΏΠΎΠ΄Π·Π΅ΠΌΠ½ΡΡ Π²ΠΎΠ΄ Π½Π° ΠΏΠΎΠ²Π΅ΡΡ Π½ΠΎΡΡΡ. ΠΡΠ΅ ΡΠ°ΡΠ΅ Π΄Π»Ρ ΡΡΠΈΡ ΡΠ΅Π»Π΅ΠΉ ΠΈΡΠΏΠΎΠ»ΡΠ·ΡΠ΅ΡΡΡ ΡΡΡΠ°Π½ΠΎΠ²ΠΊΠ° Π£Π Π-2Π2, ΠΊΠΎΡΠΎΡΠ°Ρ ΠΌΠΎΠΆΠ΅Ρ Π±ΡΡΡ ΡΡΡΠ°Π½ΠΎΠ²Π»Π΅Π½Π° Π½Π° ΡΠ°Π·Π»ΠΈΡΠ½ΠΎΠΉ Π±Π°Π·Π΅. Π ΡΡΠ°Π½Π΄Π°ΡΡΠ½ΠΎΠΉ ΠΊΠΎΠΌΠΏΠ»Π΅ΠΊΡΠ°ΡΠΈΠΈ β ΡΡΠΎ ΠΠΠ-131, ΠΊΠΎΡΠΎΡΡΠΉ ΠΈΠΌΠ΅Π΅Ρ ΠΏΠΎΠ²ΡΡΠ΅Π½Π½ΡΠ΅ Ρ Π°ΡΠ°ΠΊΡΠ΅ΡΠΈΡΡΠΈΠΊΠΈ ΠΏΡΠΎΡ ΠΎΠ΄ΠΈΠΌΠΎΡΡΠΈ.
ΠΡΠΎΠ±Π΅Π½Π½ΠΎΡΡΠΈ Π±ΡΡΠΎΠ²ΠΎΠΉ ΡΡΡΠ°Π½ΠΎΠ²ΠΊΠΈ Π£Π Π 2Π°2
ΠΡΡΠΎΠ²Π°Ρ ΡΡΡΠ°Π½ΠΎΠ²ΠΊΠ° ΠΌΠΎΠΆΠ΅Ρ Π±ΡΡΡ ΡΠΌΠΎΠ½ΡΠΈΡΠΎΠ²Π°Π½Π° ΠΈ Π½Π° Π³ΡΡΠ΅Π½ΠΈΡΠ½ΠΎΠΉ, ΠΈ Π½Π° ΡΠ°Π½Π½ΠΎΠΉ Π±Π°Π·Π΅, Π½ΠΎ ΡΡΠΎ ΡΠ²Π»ΡΠ΅ΡΡΡ Π΄ΠΎΠΏΠΎΠ»Π½ΠΈΡΠ΅Π»ΡΠ½ΡΠΌ ΠΈΡΠΏΠΎΠ»Π½Π΅Π½ΠΈΠ΅ΠΌ. ΠΠ½ΠΎ Π·Π°ΠΊΠ°Π·ΡΠ²Π°Π΅ΡΡΡ ΠΎΡΠ΄Π΅Π»ΡΠ½ΠΎ, ΡΠ°ΠΊ ΠΊΠ°ΠΊ ΡΠ°ΠΌ Π£Π Π-2Π2 ΡΠ°Π±ΠΎΡΠ°Π΅Ρ ΠΎΡ Π΄Π²ΠΈΠ³Π°ΡΠ΅Π»Ρ ΡΠ²ΠΎΠ΅ΠΉ ΠΊΠΎΠ»Π΅ΡΠ½ΠΎΠΉ Π±Π°Π·Ρ, ΡΠΎ Π΅ΡΡΡ Π½Π΅ ΠΈΠΌΠ΅Π΅Ρ Π²ΠΎΠ·ΠΌΠΎΠΆΠ½ΠΎΡΡΠΈ ΡΠΎΠ±ΡΡΠ²Π΅Π½Π½ΠΎΠΉ ΠΈΠ½Π΄ΠΈΠ²ΠΈΠ΄ΡΠ°Π»ΡΠ½ΠΎΠΉ ΡΠ°Π±ΠΎΡΡ Π±Π΅Π· ΠΎΠ±Π΅ΡΠΏΠ΅ΡΠ΅Π½ΠΈΡ Π΄ΠΎΠΏΠΎΠ»Π½ΠΈΡΠ΅Π»ΡΠ½ΠΎΠ³ΠΎ ΠΏΠΈΡΠ°Π½ΠΈΡ.
ΠΡΠ½ΠΎΠ²Π½ΡΠΌ ΠΏΠ»ΡΡΠΎΠΌ ΡΡΠΎΠΉ ΡΠΏΠ΅ΡΡΠ΅Ρ Π½ΠΈΠΊΠΈ ΡΠ²Π»ΡΠ΅ΡΡΡ ΡΠΎ, ΡΡΠΎ ΠΎΠ½Π° ΠΏΡΠΎΠΈΠ·Π²ΠΎΠ΄ΠΈΡΡΡ ΠΏΠΎΠ»Π½ΠΎΡΡΡΡ ΠΏΠΎ ΡΠΎΡΡΠΈΠΉΡΠΊΠΎΠΉ ΡΠ΅Ρ Π½ΠΎΠ»ΠΎΠ³ΠΈΠΈ ΠΈ ΠΈΡΠΊΠ»ΡΡΠΈΡΠ΅Π»ΡΠ½ΠΎ ΠΈΠ· ΡΠΎΡΡΠΈΠΉΡΠΊΠΈΡ Π·Π°ΠΏΠ°ΡΠ½ΡΡ ΡΠ°ΡΡΠ΅ΠΉ. ΠΡΠΎ Π΄Π°Π΅Ρ Π²ΠΎΠ·ΠΌΠΎΠΆΠ½ΠΎΡΡΡ ΠΈ ΠΊΠ°ΡΠ΅ΡΡΠ²Π΅Π½Π½ΠΎΠΉ ΠΈ Π½Π΅Π΄ΠΎΡΠΎΠ³ΠΎΠΉ ΡΠΊΡΠΏΠ»ΡΠ°ΡΠ°ΡΠΈΠΈ, ΠΈ Π±ΡΡΡΡΠΎΠ³ΠΎ ΡΠ΅ΠΌΠΎΠ½ΡΠ° Ρ Π·Π°ΠΊΠ°Π·ΠΎΠΌ Π½Π΅ΠΎΠ±Ρ ΠΎΠ΄ΠΈΠΌΡΡ Π΄Π΅ΡΠ°Π»Π΅ΠΉ Π² ΠΎΠΏΠ΅ΡΠ°ΡΠΈΠ²Π½ΠΎΠΌ ΡΠ΅ΠΆΠΈΠΌΠ΅. Π£ΡΡΠ°Π½ΠΎΠ²ΠΊΠ° ΠΌΠΎΠΆΠ΅Ρ Π»Π΅Π³ΠΊΠΎ ΠΈΡΠΏΠΎΠ»ΡΠ·ΠΎΠ²Π°ΡΡΡΡ Π² ΡΠ°ΠΌΡΡ ΡΠ»ΠΎΠΆΠ½ΡΡ ΡΡΠ»ΠΎΠ²ΠΈΡΡ . ΠΡΠΈΠΌΠ΅ΡΠ°ΠΌΠΈ ΠΊΠ°ΡΠ΅ΡΡΠ²Π΅Π½Π½ΠΎΠΉ ΡΠ°Π±ΠΎΡΡ ΡΠ²Π»ΡΡΡΡΡ Π±ΡΡΠ΅Π½ΠΈΡ Π² Π―ΠΊΡΡΠΈΠΈ ΠΈ Π½Π° Π―ΠΌΠ°Π»Π΅.
ΠΡΠΎΠΈΠ·Π²ΠΎΠ΄ΠΈΡΠ΅Π»Π΅ΠΌ ΡΠ²Π»ΡΠ΅ΡΡΡ ΠΠ°Π²ΠΎΠ΄ ΠΡΡΠΎΠ²ΡΡ ΠΠ°ΡΠΈΠ½, ΠΊΠΎΡΠΎΡΡΠΉ ΠΎΠ±Π΅ΡΠΏΠ΅ΡΠΈΠ²Π°Π΅Ρ Π±ΡΡΡΡΡΡ Π΄ΠΎΡΡΠ°Π²ΠΊΡ Π³ΠΎΡΠΎΠ²ΡΡ ΡΡΡΠ°Π½ΠΎΠ²ΠΎΠΊ ΠΈ Π½Π°ΠΏΡΡΠΌΡΡ, ΠΈ ΡΠ΅ΡΠ΅Π· Π΄ΠΈΠ»Π΅ΡΡΠΊΡΡ ΡΠ΅ΡΡ. ΠΠΎΡΡΠΎΠΌΡ Π½Π΅ Π½ΡΠΆΠ½ΠΎ ΠΆΠ΄Π°ΡΡ Π½Π΅ΡΠΊΠΎΠ»ΡΠΊΠΎ ΠΌΠ΅ΡΡΡΠ΅Π², ΠΊΠ°ΠΊ Π² ΡΠ»ΡΡΠ°Π΅ Ρ ΠΈΠ½ΠΎΡΡΡΠ°Π½Π½ΡΠΌΠΈ Π°Π½Π°Π»ΠΎΠ³Π°ΠΌΠΈ, Π΄Π°ΠΆΠ΅ ΠΏΡΠΈ Π·Π°ΠΊΠ°Π·Π΅ ΠΈΠ½Π΄ΠΈΠ²ΠΈΠ΄ΡΠ°Π»ΡΠ½ΠΎΠΉ ΠΊΠΎΠ»Π΅ΡΠ½ΠΎΠΉ Π±Π°Π·Ρ.
ΠΠ° ΡΠΎΡΠΎ Π±ΡΡΠΎΠ²Π°Ρ ΡΡΡΠ°Π½ΠΎΠ²ΠΊΠ° Π£Π Π 2Π°2
ΠΡΠΏΠΎΠ»ΡΠ·ΡΡΡΡΡ Π£Π Π-2Π2 Π½Π΅ ΡΠΎΠ»ΡΠΊΠΎ Π΄Π»Ρ Π³Π΅ΠΎΠ»ΠΎΠ³ΠΈΡΠ΅ΡΠΊΠΎΠΉ ΡΠ°Π·Π²Π΅Π΄ΠΊΠΈ Π»ΡΠ±ΡΡ ΡΡΠΎΠ²Π½Π΅ΠΉ (ΡΠΎ ΡΠΊΠ²Π°ΠΆΠΈΠ½Π°ΠΌΠΈ Π΄ΠΎ 300 ΠΌΠ΅ΡΡΠΎΠ²). ΠΠΎ ΠΈ Π΄Π»Ρ ΡΠΎΠ·Π΄Π°Π½ΠΈΡ Π²ΠΎΠ΄ΠΎΠ·Π°Π±ΠΎΡΠ½ΡΡ ΡΠΊΠ²Π°ΠΆΠΈΠ½ Π΄Π»Ρ ΠΎΡΠ³Π°Π½ΠΈΠ·Π°ΡΠΈΠΈ ΠΏΠΎΠ΄Π°ΡΠΈ ΠΏΠΈΡΡΠ΅Π²ΠΎΠΉ ΠΈΠ»ΠΈ ΡΠ΅Ρ Π½ΠΈΡΠ΅ΡΠΊΠΎΠΉ Π²ΠΎΠ΄Ρ Π΄Π»Ρ ΠΏΡΠΎΠΌΡΡΠ»Π΅Π½Π½ΡΡ ΠΈΠ»ΠΈ Π±ΡΡΠΎΠ²ΡΡ ΡΠ΅Π»Π΅ΠΉ. ΠΠ»ΡΡΠΎΠΌ ΡΡΡΠ°Π½ΠΎΠ²ΠΊΠΈ ΡΠ²Π»ΡΠ΅ΡΡΡ ΡΠΎ, ΡΡΠΎ ΠΏΡΠΎΠΈΠ·Π²ΠΎΠ΄ΠΈΡΡΡ ΠΎΠ΄Π½ΠΎΠ²ΡΠ΅ΠΌΠ΅Π½Π½Π°Ρ ΠΏΡΠΎΠ΄ΡΠ²ΠΊΠ° Π»ΠΈΠ±ΠΎ ΠΏΡΠΎΠΌΡΠ²ΠΊΠ° ΠΏΡΠΎΠ±ΡΡΠΈΠ²Π°Π΅ΠΌΡΡ ΡΡΡΠ΅ΠΊΠΎΠ². ΠΡΠΈ ΡΡΠΎΠΌ ΠΏΡΠΎΡΠ΅ΡΡ Π½Π΅ ΠΎΡΡΠ°Π½Π°Π²Π»ΠΈΠ²Π°Π΅ΡΡΡ. ΠΡΠΎ ΠΆΠ΅ ΠΊΠ°ΡΠ°Π΅ΡΡΡ ΠΈ Π½Π°ΡΠ°ΡΠΈΠ²Π°Π½ΠΈΡ Π±ΡΡΠΎΠ²ΠΎΠ³ΠΎ ΠΈΠ½ΡΡΡΡΠΌΠ΅Π½ΡΠ°. ΠΠ³ΠΎ ΠΌΠΎΠΆΠ½ΠΎ ΠΏΡΠΎΠΈΠ·Π²ΠΎΠ΄ΠΈΡΡ Π±Π΅Π· ΠΎΡΡΡΠ²Π° ΠΎΡ ΡΠ°ΠΌΠΎΠ³ΠΎ Π·Π°Π±ΠΎΡ, ΡΡΠΎ ΠΎΠ±Π΅ΡΠΏΠ΅ΡΠΈΠ²Π°Π΅Ρ ΠΎΠΏΡΠΈΠΌΠΈΠ·Π°ΡΠΈΡ ΠΏΡΠΎΡΠ΅ΡΡΠ°.
Π‘Π²ΠΈΠ½ΡΠΈΠ²Π°Π½ΠΈΠ΅/ΡΠ°Π·Π²ΠΈΠ½ΡΠΈΠ²Π°Π½ΠΈΠ΅ ΡΡΡΠ± ΠΏΡΠΎΠΈΠ·Π²ΠΎΠ΄ΠΈΡΡΡ Π·Π° ΡΡΠ΅Ρ Π²ΡΠ°ΡΠ°ΡΠ΅Π»Ρ, ΡΡΠΎ Π΄Π°Π΅Ρ Π²ΠΎΠ·ΠΌΠΎΠΆΠ½ΠΎΡΡΡ Π·Π°Π±ΡΡΡ ΠΎΠ± ΠΈΡΠΏΠΎΠ»ΡΠ·ΠΎΠ²Π°Π½ΠΈΠΈ Π΄ΠΎΠΏΠΎΠ»Π½ΠΈΡΠ΅Π»ΡΠ½ΡΡ ΠΌΠ΅Ρ Π°Π½ΠΈΠ·ΠΌΠΎΠ².
ΠΠ°ΠΆΠ΅ ΠΏΡΠΈ Π±ΡΡΠ΅Π½ΠΈΠΈ ΠΏΠ½Π΅Π²ΠΌΠ°ΡΠΈΡΠ΅ΡΠΊΠΈΠΌΠΈ ΡΠ΄Π°ΡΠ½ΠΈΠΊΠ°ΠΌΠΈ ΠΎΠ±Π΅ΡΠΏΠ΅ΡΠΈΠ²Π°Π΅ΡΡΡ Π»ΡΡΡΠ΅Π΅ ΡΠ°Π±ΠΎΡΠ΅Π΅ Π΄Π°Π²Π»Π΅Π½ΠΈΠ΅ Π½Π° Π·Π°Π±ΠΎΠΉ. ΠΠΈΠ΄ΡΠΎΡΠΈΠ»ΠΈΠ½Π΄Ρ ΠΏΠΎΠ΄Π°ΡΠΈ ΠΎΠ±Π΅ΡΠΏΠ΅ΡΠΈΠ²Π°Π΅Ρ ΠΈ ΠΎΠΏΠ΅ΡΠ°ΡΠΈΠΈ ΠΏΠΎΠ΄ΡΠ΅ΠΌΠ°/ΡΠΏΡΡΠΊΠ°, ΠΈ ΠΏΠΎΠ΄Π°ΡΠΈ ΠΈΠ½ΡΡΡΡΠΌΠ΅Π½ΡΠ° Π½Π° Π·Π°Π±ΠΎΠΉ.Π£ΡΡΡΠΎΠΉΡΡΠ²ΠΎ
Π ΡΡΠ°Π½Π΄Π°ΡΡΠ½ΠΎΠΉ ΠΊΠΎΠΌΠΏΠ»Π΅ΠΊΡΠ°ΡΠΈΠΈ Π£Π Π-2Π2 ΡΠΌΠΎΠ½ΡΠΈΡΠΎΠ²Π°Π½Π° Π½Π° ΡΠΊΡΠ΅ΠΏΠ»Π΅Π½Π½ΠΎΠΉ Π½Π΅ΡΡΡΠ΅ΠΉ ΡΠ°ΠΌΠ΅, ΠΊΠΎΡΠΎΡΠ°Ρ ΡΡΡΠ°Π½ΠΎΠ²Π»Π΅Π½Π° Π½Π° Π±Π°Π·Π΅ ΡΠ»ΡΡΡΠ΅Π½Π½ΠΎΠ³ΠΎ ΠΠΠ-131. ΠΠ½ ΠΈΠΌΠ΅Π΅Ρ ΠΏΠΎΠ²ΡΡΠ΅Π½Π½ΡΡ ΠΏΡΠΎΡ ΠΎΠ΄ΠΈΠΌΠΎΡΡΡ, ΡΡΠΎ ΠΏΠΎΠ΄Ρ ΠΎΠ΄ΠΈΡ Π΄Π»Ρ Π»ΡΠ±ΡΡ ΡΡΠ»ΠΎΠ²ΠΈΠΉ ΡΠ°Π·Π²Π΅Π΄ΠΊΠΈ ΠΈ Π±ΡΡΠ΅Π½ΠΈΡ.
ΠΠ»Π°Π³ΠΎΠ΄Π°ΡΡ ΠΏΠ΅ΡΠ΅ΠΌΠ΅ΡΠ°ΡΡΠ΅ΠΌΡΡΡ Π²ΡΠ°ΡΠ°ΡΠ΅Π»Ρ, ΠΊΠΎΡΠΎΡΡΠΉ ΠΎΠ±ΠΎΡΡΠ΄ΠΎΠ²Π°Π½ Π³ΠΈΠ΄ΡΠΎΠΏΡΠΈΠ²ΠΎΠ΄ΠΎΠΌ, Π²ΠΎΠ·ΠΌΠΎΠΆΠ½Ρ:
- ΠΏΠΎΠ΄ΡΠ΅ΠΌ ΠΈ ΡΠΏΡΡΠΊ Π±ΡΡΠΎΠ²ΠΎΠ³ΠΎ ΠΈΠ½ΡΡΡΡΠΌΠ΅Π½ΡΠ°;
- Π½Π°ΡΠ°ΡΠΈΠ²Π°Π½ΠΈΠ΅ Π΄Π»ΠΈΠ½Ρ Π±Π΅Π· ΠΎΡΡΡΠ²Π° ΠΎΡ Π·Π°Π±ΠΎΡ;
- ΡΠ»ΡΡΡΠ΅Π½ΠΈΠ΅ ΠΊΠ°ΡΠ΅ΡΡΠ²Π° Π±ΡΡΠ΅Π½ΠΈΡ.
ΠΠ»Π°Π³ΠΎΠ΄Π°ΡΡ Π³ΠΈΠ΄ΡΠΎΠΏΡΠΈΠ²ΠΎΠ΄Ρ Π·Π½Π°ΡΠΈΡΠ΅Π»ΡΠ½ΠΎ ΠΎΠ±Π»Π΅Π³ΡΠ΅Π½Ρ Π²ΡΠ΅ ΡΠ°Π±ΠΎΡΡ. ΠΠ³ΠΎ ΡΠΏΡΠ°Π²Π»Π΅Π½ΠΈΠ΅ ΠΏΡΠΎΠΈΠ·Π²ΠΎΠ΄ΠΈΡΡΡ Ρ ΠΏΡΠ»ΡΡΠ° Π±ΡΡΠΈΠ»ΡΡΠΈΠΊΠ°, ΠΊΠΎΡΠΎΡΡΠΉ ΠΎΠ±Π΅ΡΠΏΠ΅ΡΠΈΠ²Π°Π΅Ρ ΡΡΠ²ΡΡΠ²ΠΈΡΠ΅Π»ΡΠ½ΠΎΠ΅ ΠΏΠΎ ΡΠ΅Π³ΡΠ»ΡΡΠΈΠΈ ΠΈ ΠΎΠΏΠ΅ΡΠ°ΡΠΈΠ²Π½ΠΎΠ΅ Π±ΡΡΠ΅Π½ΠΈΠ΅.
ΠΠΈΠ½Π΅ΠΌΠ°ΡΠΈΡΠ΅ΡΠΊΠ°Ρ ΡΠΈΡΡΠ΅ΠΌΠ° ΡΠ΅Π°Π»ΠΈΠ·ΠΎΠ²Π°Π½Π° ΡΠ΅ΡΠ΅Π· Π΄Π²ΠΈΠ³Π°ΡΠ΅Π»Ρ ΠΠΠ-131 Ρ ΠΏΠΎΠΌΠΎΡΡΡ:
- Π±ΡΡΠΎΠ²ΠΎΠ³ΠΎ Π½Π°ΡΠΎΡΠ° ΠΠ-50, Π½Π°ΡΠΎΡΠΎΠ² ΠΠ250/100 ΠΈ ΠΠ¨-10-ΠΠ;
- ΠΊΠΎΠΌΠΏΡΠ΅ΡΡΠΎΡΠ°, Π³ΠΈΠ΄ΡΠΎΠΌΠΎΡΠΎΡΠ° ΠΈ Π²ΡΠ°ΡΠ°ΡΠ΅Π»Ρ;
- ΠΊΠΎΡΠΎΠ±ΠΎΠΊ ΠΏΠ΅ΡΠ΅Π΄Π°Ρ ΠΈ ΡΠ°Π·Π΄Π°ΡΠΎΡΠ½ΠΎΠΉ, Π° ΡΠ°ΠΊΠΆΠ΅ ΠΎΡΠ±ΠΎΡΠ° ΠΌΠΎΡΠ½ΠΎΡΡΠΈ ΠΈ ΡΠ°Π·Π΄Π°ΡΠΎΡΠ½ΠΎΠΉ ΡΠ°ΠΌΠΎΠΉ ΡΡΡΠ°Π½ΠΎΠ²ΠΊΠΈ.

ΠΠΎ ΠΌΠ°ΡΡΠ΅ Π²ΡΠ°ΡΠ°ΡΠ΅Π»Ρ ΠΏΠ΅ΡΠ΅ΠΌΠ΅ΡΠ°Π΅ΡΡΡ Π±Π»Π°Π³ΠΎΠ΄Π°ΡΡ ΡΠ°Π»Π΅Π²ΠΎΠΉ ΡΠΈΡΡΠ΅ΠΌΠ΅ ΠΈ Π³ΠΈΠ΄ΡΠΎΠΏΡΠΈΠ²ΠΎΠ΄Ρ.
Π Π³ΠΈΠ΄ΡΠ°Π²Π»ΠΈΡΠ΅ΡΠΊΠΎΠΉ ΡΠΈΡΡΠ΅ΠΌΠ΅ ΡΡΡΠ°Π½ΠΎΠ²Π»Π΅Π½Ρ ΠΌΠ°Π½ΠΎΠΌΠ΅ΡΡΡ Π΄Π»Ρ ΠΎΠ±Π΅ΡΠΏΠ΅ΡΠ΅Π½ΠΈΡ ΠΎΠΏΡΠΈΠΌΠ°Π»ΡΠ½ΡΡ ΡΠ΅ΠΆΠΈΠΌΠΎΠ² Π±ΡΡΠ΅Π½ΠΈΡ. ΠΠ»Π°Π³ΠΎΠ΄Π°ΡΡ ΡΠΈΠ»ΡΡΡΠ°ΠΌ ΠΏΡΠΎΠΈΠ·Π²ΠΎΠ΄ΠΈΡΡΡ ΠΎΡΠΈΡΡΠΊΠ° ΠΌΠ°ΡΠ»Π°, ΡΡΠΎ ΠΏΡΠΎΠ΄Π»Π΅Π²Π°Π΅Ρ ΡΡΠΎΠΊΠΈ ΡΠΊΡΠΏΠ»ΡΠ°ΡΠ°ΡΠΈΠΈ Π² ΡΠ°Π·Ρ. ΠΡΠ½Π°ΡΠ΅Π½ΠΈΠ΅ Π°Π²Π°ΡΠΈΠΉΠ½ΡΠΌ ΡΡΡΠ½ΡΠΌ Π½Π°ΡΠΎΡΠΎΠΌ Π΄Π°Π΅Ρ Π²ΠΎΠ·ΠΌΠΎΠΆΠ½ΠΎΡΡΡ Π² ΡΡΡΠ½ΠΎΠΌ ΡΠ΅ΠΆΠΈΠΌΠ΅ ΠΎΡΠΊΠ»ΡΡΠΈΡΡ ΡΡΡΠ°Π½ΠΎΠ²ΠΊΡ ΠΏΡΠΈ Π²ΡΡ ΠΎΠ΄Π΅ ΠΈΠ· ΡΡΡΠΎΡ Π°Π²ΡΠΎΠΌΠΎΠ±ΠΈΠ»Ρ. ΠΠΎΠ·ΠΌΠΎΠΆΠ½Ρ ΠΏΠΎΠ΄ΡΠ΅ΠΌΡ ΠΈΠ½ΡΡΡΡΠΌΠ΅Π½ΡΠ° Π² Π°Π²Π°ΡΠΈΠΉΠ½ΠΎΠΌ, ΠΌΠ΅Π΄Π»Π΅Π½Π½ΠΎΠΌ, Π±ΡΡΡΡΠΎΠΌ ΠΈ Π½ΠΎΡΠΌΠ°Π»ΡΠ½ΡΡ ΡΠ΅ΠΆΠΈΠΌΠ°Ρ . ΠΠΎΠΆΠ½ΠΎ ΠΏΠΎΠ΄Π²Π΅ΡΠΈΠ²Π°ΡΡ ΠΈΠ½ΡΡΡΡΠΌΠ΅Π½Ρ Π² Π»ΡΠ±ΠΎΠΌ ΠΈΠ· ΠΏΡΠΈΠΏΠΎΠ΄Π½ΡΡΡΡ ΠΏΠΎΠ»ΠΎΠΆΠ΅Π½ΠΈΠΉ. ΠΠΏΠΎΡΠ½ΡΠ΅ Π΄ΠΎΠΌΠΊΡΠ°ΡΡ Π²ΡΠ΄Π²ΠΈΠ³Π°ΡΡΡΡ. Π‘ΠΏΡΡΠΊ ΠΈΠ½ΡΡΡΡΠΌΠ΅Π½ΡΠ° ΠΌΠΎΠΆΠ΅Ρ Π±ΡΡΡ ΠΈ Π±ΡΡΡΡΡΠΌ, ΠΈ Π½ΠΎΡΠΌΠ°Π»ΡΠ½ΡΠΌ. ΠΡΠΎΡΡΠ°Ρ ΠΈ Π½Π°Π΄Π΅ΠΆΠ½Π°Ρ ΡΠΈΡΡΠ΅ΠΌΠ° Π³ΠΈΠ΄ΡΠ°Π²Π»ΠΈΠΊΠΈ Π΄Π°Π΅Ρ Π²ΠΎΠ·ΠΌΠΎΠΆΠ½ΠΎΡΡΡ ΠΏΠΎΠ»Π½ΠΎΡΠ΅Π½Π½ΠΎΠ³ΠΎ ΡΠΏΡΠ°Π²Π»Π΅Π½ΠΈΡ Π±Π΅Π· ΠΏΡΠΎΠ±Π»Π΅ΠΌ.
Π ΠΊΠΎΡΠΎΠ±ΠΊΠ΅ ΠΎΡΠ±ΠΎΡΠ° ΠΌΠΎΡΠ½ΠΎΡΡΠΈ ΡΠ΅Π°Π»ΠΈΠ·ΠΎΠ²Π°Π½Π° ΠΎΠ΄Π½Π° ΠΏΠ΅ΡΠ΅Π΄Π°ΡΠ° (ΠΌΠ΅Ρ Π°Π½ΠΈΡΠ΅ΡΠΊΠ°Ρ ΠΈ Ρ ΠΌΡΡΡΠΎΠΉ Π²ΠΊΠ»ΡΡΠ΅Π½ΠΈΡ). ΠΠ½Π° Π·Π°ΠΊΡΠ΅ΠΏΠ»Π΅Π½Π° Π² Π²Π΅ΡΡ Π½Π΅ΠΉ ΡΠ°ΡΡΠΈ ΠΊΠ°ΡΡΠ΅ΡΠ° ΡΠ°ΠΌΠΎΠΉ ΠΊΠΎΡΠΎΠ±ΠΊΠΈ ΡΠ°Π·Π΄Π°ΡΠΈ ΠΠΠ-131. ΠΠΊΠ»ΡΡΠ΅Π½ΠΈΠ΅ ΡΠ°Π·Π΄Π°ΡΠΎΡΠ½ΠΎΠΉ ΠΊΠΎΡΠΎΠ±ΠΊΠΈ ΡΠ°ΠΌΠΎΠΉ ΡΡΡΠ°Π½ΠΎΠ²ΠΊΠΈ ΠΏΡΠΎΠΈΡΡ ΠΎΠ΄ΠΈΡ ΡΠ΅ΡΠ΅Π· Π²Π°Π» ΠΊΠ°ΡΠ΄Π°Π½Π½ΡΠΉ ΠΈ ΠΎΡΠ±ΠΎΡ ΠΌΠΎΡΠ½ΠΎΡΡΠΈ. ΠΠ»Π°Π³ΠΎΠ΄Π°ΡΡ ΡΡΠΎΠΉ ΠΊΠΎΡΠΎΠ±ΠΊΠ΅ Π²ΡΠ°ΡΠ΅Π½ΠΈΠ΅ ΠΏΠ΅ΡΠ΅Π΄Π°Π΅ΡΡΡ ΠΈ Π½Π° Π±ΡΡΠΎΠ²ΠΎΠΉ Π½Π°ΡΠΎΡ, ΠΈ Π½Π° ΠΌΠ°ΡΠ»ΡΠ½ΡΠ΅ Π½Π°ΡΠΎΡΡ.
ΠΡΠ°ΡΠ°ΡΠ΅Π»Ρ ΠΏΡΠ΅Π΄ΡΡΠ°Π²Π»Π΅Π½ ΡΡΠ΅Ρ Π²Π°Π»ΠΎΠ²ΠΎΠΉ ΠΊΠΎΡΠΎΠ±ΠΊΠΎΠΉ Ρ ΡΡΠ΅ΠΌΡ ΡΠΊΠΎΡΠΎΡΡΡΠΌΠΈ ΠΈ ΠΏΠ΅ΡΠ΅Π΄Π°ΡΠ°ΠΌΠΈ ΡΠΈΠ»ΠΈΠ½Π΄ΡΠΈΡΠ΅ΡΠΊΠΈΠΌΠΈ ΠΈ Π·ΡΠ±ΡΠ°ΡΡΠΌΠΈ.
ΠΠ½ ΡΠ°ΡΠΏΠΎΠ»Π°Π³Π°Π΅ΡΡΡ Π² Π»ΠΈΡΠΎΠΌ ΠΊΠΎΡΠΏΡΡΠ΅ ΠΈΠ· ΡΡΠ°Π»ΠΈ, ΡΡΠΎ Π³Π°ΡΠ°Π½ΡΠΈΡΡΡΡ Π»ΡΡΡΡΡ Π½Π°Π΄Π΅ΠΆΠ½ΠΎΡΡΡ. ΠΠ° ΠΏΡΠ»ΡΡΠ΅ ΠΌΠΎΠΆΠ½ΠΎ ΡΠ΅Π³ΡΠ»ΠΈΡΠΎΠ²Π°ΡΡ ΡΠ°ΡΡΠΎΡΡ Π²ΡΠ°ΡΠ΅Π½ΠΈΡ ΡΠΏΠΈΠ½Π΄Π΅Π»Ρ β ΠΎΡ Π½ΡΠ»Ρ Π²ΠΏΠ»ΠΎΡΡ Π΄ΠΎ ΠΌΠ°ΠΊΡΠΈΠΌΡΠΌΠ°. Π‘Ρ Π΅ΠΌΠ° Π²ΡΠ°ΡΠ°ΡΠ΅Π»Ρ ΡΠΏΠΈΠ½Π΄Π΅Π»ΡΠ½ΠΎΠ³ΠΎ ΡΠΈΠΏΠ°
ΠΠ»Π°Π³ΠΎΠ΄Π°ΡΡ ΡΠΎΠΌΡ, ΡΡΠΎ Π³ΠΈΠ΄ΡΠΎΠ΄ΠΎΠΌΠΊΡΠ°Ρ ΠΏΠΎΠ΄Π°ΡΠΈ ΡΠΎΡΡΠΎΠΈΡ ΠΈΠ· ΡΡΠΎΠΊΠΎΠ²ΠΎΠΉ ΠΈ ΡΠΈΠ»ΠΈΠ½Π΄ΡΠΈΡΠ΅ΡΠΊΠΎΠΉ ΡΠ°ΡΡΠΈ, ΠΏΠΎΡΠ»Π΅Π΄Π½ΡΡ ΠΏΡΠΈΠ½ΠΈΠΌΠ°Π΅Ρ Π½Π° ΡΠ΅Π±Ρ ΡΠ°ΡΡΡ ΡΠ΅Π°ΠΊΡΠΈΠ²Π½ΠΎΠΉ Π½Π°Π³ΡΡΠ·ΠΊΠΈ Π²ΡΠ°ΡΠ΅Π½ΠΈΡ. ΠΠ½ ΠΈΠΌΠ΅Π΅Ρ ΠΎΠ΄Π½Ρ ΡΡΡΠΏΠ΅Π½Ρ Π΄Π²ΠΎΠΉΠ½ΠΎΠ³ΠΎ Π΄Π΅ΠΉΡΡΠ²ΠΈΡ. Π‘Π°ΠΌΠ° ΠΌΠ°ΡΡΠ° Π²ΡΠΏΠΎΠ»Π½Π΅Π½Π° Π-ΠΎΠ±ΡΠ°Π·Π½ΠΎΠΉ ΡΠΎΡΠΌΡ ΠΈΠ· ΡΠ²Π΅Π»Π»Π΅ΡΠΎΠ² Ρ Π΄ΠΎΠΏΠΎΠ»Π½ΠΈΡΠ΅Π»ΡΠ½ΡΠΌΠΈ ΠΏΠΎΠΏΠ΅ΡΠ΅ΡΠ½ΡΠΌΠΈ Π±Π°Π»ΠΊΠ°ΠΌΠΈ. ΠΠ½ΡΡΡΠΈ Π½Π°Ρ ΠΎΠ΄ΠΈΡΡΡ Π½Π΅ ΡΠΎΠ»ΡΠΊΠΎ Π³ΠΈΠ΄ΡΠΎΠ΄ΠΎΠΌΠΊΡΠ°Ρ, Π½ΠΎ ΠΈ 2 ΡΡΡΠ±Ρ, ΠΏΡΠΈΠ½ΠΈΠΌΠ°ΡΡΠΈΠ΅ Π½Π° ΡΠ΅Π±Ρ Π½Π°Π³ΡΡΠ·ΠΊΡ. Π’Π°ΠΊΠ°Ρ ΠΆΠ΅ΡΡΠΊΠ°Ρ ΠΊΠΎΠ½ΡΡΡΡΠΊΡΠΈΡ Π΄Π°Π΅Ρ Π»ΡΡΡΠΈΠ΅ ΠΏΠΎΠΊΠ°Π·Π°Π½ΠΈΡ ΠΏΠΎ Π±ΡΡΠ΅Π½ΠΈΡ Π΄Π°ΠΆΠ΅ Π² ΡΡΠΆΠ΅Π»ΡΡ ΡΡΠ»ΠΎΠ²ΠΈΡΡ . ΠΠ°Π»ΠΈΡΠΈΠ΅ ΡΡΠΎΠ»Π° Π΄Π»Ρ ΡΠ΅Π½ΡΡΠ°ΡΠΈΠΈ Π΄Π°Π΅Ρ Π²ΠΎΠ·ΠΌΠΎΠΆΠ½ΠΎΡΡΡ Π±ΠΎΠ»Π΅Π΅ ΠΏΡΠΎΡΡΠΎΠ³ΠΎ ΠΈΡΠΏΠΎΠ»ΡΠ·ΠΎΠ²Π°Π½ΠΈΡ Π±ΡΡΠΎΠ²ΠΎΠ³ΠΎ ΠΈΠ½ΡΡΡΡΠΌΠ΅Π½ΡΠ°.
Π’Π°Π»Π΅Π²Π°Ρ ΡΠΈΡΡΠ΅ΠΌΠ° Π΄Π°Π΅Ρ Π²ΠΎΠ·ΠΌΠΎΠΆΠ½ΠΎΡΡΡ ΡΠ΄Π²ΠΎΠΈΡΡ Ρ ΠΎΠ΄ Π²ΡΠ°ΡΠ°ΡΠ΅Π»Ρ ΠΈ ΠΈΠΌΠ΅Π΅Ρ Π½Π°Π΄Π΅ΠΆΠ½ΡΡ ΠΈ ΠΏΡΠΎΡΡΡΡ ΠΊΠΎΠ½ΡΡΡΡΠΊΡΠΈΡ (Π΄Π²ΡΡ ΠΊΠ°Π½Π°ΡΠ½ΡΡ ΠΈ Ρ 2 Π½Π°ΡΡΠΆΠ½ΡΠΌΠΈ ΡΡΡΡΠΎΠΉΡΡΠ²Π°ΠΌΠΈ).
ΠΠ»Π΅Π²Π°ΡΠΎΡ Π΄Π°Π΅Ρ Π²ΠΎΠ·ΠΌΠΎΠΆΠ½ΠΎΡΡΡ Π²ΡΠΏΠΎΠ»Π½Π΅Π½ΠΈΡ ΡΠ²ΠΈΠ½ΡΠΈΠ²Π°Π½ΠΈΡ/ΡΠ°Π·Π²ΠΈΠ½ΡΠΈΠ²Π°Ρ ΡΡΡΠ± Π΄Π»Ρ Π±ΡΡΠ΅Π½ΠΈΡ ΠΈ ΡΠΏΡΡΠΊΠ°/ΠΏΠΎΠ΄ΡΠ΅ΠΌΠ° ΠΈΠ½ΡΡΡΡΠΌΠ΅Π½ΡΠ°. ΠΠΌ Π»Π΅Π³ΠΊΠΎ ΡΠΏΡΠ°Π²Π»ΡΡΡ Π±Π»Π°Π³ΠΎΠ΄Π°ΡΡ ΠΊΠ°ΡΠ΅ΡΡΠ²Π΅Π½Π½ΠΎΠΌΡ ΠΊΡΠ΅ΠΏΠ»Π΅Π½ΠΈΡ ΠΈ ΡΡΡΡΠΎΠΉΡΡΠ²Ρ. ΠΠ°ΡΡΠΎΠ½Ρ Π΄Π»Ρ ΡΠ½Π΅ΠΊΠΎΠ² ΠΏΠΎΠ·Π²ΠΎΠ»ΡΡΡ Π½Π°ΡΠ°ΡΠΈΠ²Π°ΡΡ ΠΈ ΠΏΠΎΠ΄Π½ΠΈΠΌΠ°ΡΡ ΡΠ½Π΅ΠΊΠΈ Π² Π±Π΅Π·ΠΎΠΏΠ°ΡΠ½ΠΎΠΌ ΡΠ΅ΠΆΠΈΠΌΠ΅, Π³Π°ΡΠ°Π½ΡΠΈΡΠΎΠ²Π°ΡΡ ΠΊΠ°ΡΠ΅ΡΡΠ²ΠΎ ΡΠ½Π΅ΠΊΠΎΠ²ΠΎΠ³ΠΎ Π±ΡΡΠ΅Π½ΠΈΡ.ΠΠ»Π°Π³ΠΎΠ΄Π°ΡΡ ΠΌΠ΅Ρ Π°Π½ΠΈΠ·ΠΌΡ ΠΏΠ΅ΡΠ΅ΠΌΠ΅ΡΠ΅Π½ΠΈΡ Π²ΡΠ°ΡΠ°ΡΠ΅Π»Ρ (Π³ΠΈΠ΄ΡΠΎΠ΄ΠΎΠΌΠΊΡΠ°Ρ ΠΏΠ»ΡΡ ΠΏΠΎΠ»ΠΈΠΏΠ»Π°ΡΡΠ½Π°Ρ ΡΠΈΡΡΠ΅ΠΌΠ°) ΠΎΠ±Π΅ΡΠΏΠ΅ΡΠΈΠ²Π°Π΅ΡΡΡ ΡΠ΄Π²ΠΎΠ΅Π½Π½Π°Ρ ΡΠΊΠΎΡΠΎΡΡΡ Π΄Π²ΠΈΠΆΠ΅Π½ΠΈΡ. ΠΠ°ΡΡΠ° ΠΏΠ΅ΡΠ΅Π²ΠΎΠ΄ΠΈΡΡΡ Π°Π²ΡΠΎΠΌΠ°ΡΠΈΡΠ΅ΡΠΊΠΈ Π² ΡΡΠ°Π½ΡΠΏΠΎΡΡΠ½ΠΎΠ΅ ΠΏΠΎΠ»ΠΎΠΆΠ΅Π½ΠΈΠ΅, Π΅ΡΠ»ΠΈ ΠΏΡΠΎΠΈΡΡ ΠΎΠ΄ΠΈΡ ΠΏΠΎΠ»ΠΎΠΌΠΊΠ° ΡΡΠ°Π½ΡΠΌΠΈΡΡΠΈΠΈ Π»ΠΈΠ±ΠΎ ΠΏΡΠΈΠ²ΠΎΠ΄Π½ΠΎΠ³ΠΎ Π΄Π²ΠΈΠ³Π°ΡΠ΅Π»Ρ. ΠΠΏΠΎΡΠ½ΡΠ΅ Π΄ΠΎΠΌΠΊΡΠ°ΡΡ Π΄Π°ΡΡ ΡΠ°Π·Π³ΡΡΠ·ΠΊΡ ΡΠ°ΡΡΠΈ ΠΠΠ-131 Π°Π²ΡΠΎΠΌΠ°ΡΠΈΡΠ΅ΡΠΊΠΈ ΠΏΡΠΈ ΠΏΠΎΠ΄ΡΠ΅ΠΌΠ΅ ΠΈΠ½ΡΡΡΡΠΌΠ΅Π½ΡΠ°.
Π’Π΅Ρ Π½ΠΈΡΠ΅ΡΠΊΠΈΠ΅ Ρ Π°ΡΠ°ΠΊΡΠ΅ΡΠΈΡΡΠΈΠΊΠΈ
ΠΠ»ΡΠ±ΠΈΠ½Π° ΠΈ Π΄ΠΈΠ°ΠΌΠ΅ΡΡ Π±ΡΡΠ΅Π½ΠΈΡ:
| ΠΠ°ΡΠ°ΠΌΠ΅ΡΡΡ | ΠΠ΄.ΠΈΠ·ΠΌΠ΅ΡΠ΅Π½ΠΈΡ | ΠΠΎΠΊΠ°Π·Π°ΡΠ΅Π»ΠΈ |
| ΠΠ»ΡΠ±ΠΈΠ½Π° Π±ΡΡΠ΅Π½ΠΈΡ | ΠΌ | |
| Π‘ΡΡΡΠΊΡΡΡΠ½ΡΠ΅ ΡΠΊΠ²Π°ΠΆΠΈΠ½Ρ Ρ ΠΏΡΠΎΠΌΡΠ²ΠΊΠΎΠΉ | ΠΌ | 300 |
| ΠΠ΅ΠΎΡΠΈΠ·ΠΈΡΠ΅ΡΠΊΠΈΠ΅ ΡΠΊΠ²Π°ΠΆΠΈΠ½Ρ | ||
| β Ρ ΠΏΡΠΎΠΌΡΠ²ΠΊΠΎΠΉ | ΠΌ | 100 |
| β Ρ ΠΏΡΠΎΠ΄ΡΠ²ΠΊΠΎΠΉ | ΠΌ | 30 |
| β ΡΠ½Π΅ΠΊΠ°ΠΌΠΈ | ΠΌ | 30 |
| ΠΠΈΠ°ΠΌΠ΅ΡΡ Π±ΡΡΠ΅Π½ΠΈΡ Π½Π°ΡΠ°Π»ΡΠ½ΡΠΉ (Ρ ΠΏΡΠΎΠΌΡΠ²ΠΊΠΎΠΉ) | ΠΌΠΌ | 190 |
| ΠΠΈΠ°ΠΌΠ΅ΡΡ Π±ΡΡΠ΅Π½ΠΈΡ ΠΊΠΎΠ½Π΅ΡΠ½ΡΠΉ (Ρ ΠΏΡΠΎΠΌΡΠ²ΠΊΠΎΠΉ) | ||
| ΠΌΠΌ | 118 | |
| β ΡΡΡΡΠΊΡΡΡΠ½ΠΎ-ΠΏΠΎΠΈΡΠΊΠΎΠ²ΡΠ΅ ΡΠΊΠ²Π°ΠΆΠΈΠ½Ρ | ΠΌΠΌ | 93 |
| ΠΠΈΠ°ΠΌΠ΅ΡΡ Π±ΡΡΠ΅Π½ΠΈΡ Ρ ΠΏΡΠΎΠ΄ΡΠ²ΠΊΠΎΠΉ | ΠΌΠΌ | 118 |
| ΠΠΈΠ°ΠΌΠ΅ΡΡ Π±ΡΡΠ΅Π½ΠΈΡ ΡΠ½Π΅ΠΊΠ°ΠΌΠΈ | ΠΌΠΌ | 135 |
Π₯Π°ΡΠ°ΠΊΡΠ΅ΡΠΈΡΡΠΈΠΊΠΈ Π²ΡΠ°ΡΠ°ΡΠ΅Π»Ρ ΠΏΠΎΠ΄Π²ΠΈΠΆΠ½ΠΎΠ³ΠΎ ΡΠΈΠΏΠ° Ρ Ρ ΠΎΠ΄ΠΎΠΌ 5200 ΠΌΠΌ.
| ΠΠΎ ΡΠ°ΡΡΠΎΡΠ΅ Π²ΡΠ°ΡΠ°Π½Π΅Π½ΠΈΡ | ΠΠΎ ΠΌΠΎΠΌΠ΅Π½ΡΡ | ||
| ΠΠ΅ΡΠ²Π°Ρ ΡΠΊΠΎΡΠΎΡΡΡ | 140 ΠΎΠ±/ΠΌΠΈΠ½ | 2010Π/ΠΌ | 205 ΠΊΠ³Ρ/ΠΌ |
| ΠΡΠΎΡΠ°Ρ ΡΠΊΠΎΡΠΎΡΡΡ | 225 ΠΎΠ±/ΠΌΠΈΠ½ | 1210 Π/ΠΌ | 123 ΠΊΠ³Ρ/ΠΌ |
| Π’ΡΠ΅ΡΡΡ ΡΠΊΠΎΡΠΎΡΡΡ | 325 ΠΎΠ±/ΠΌΠΈΠ½ | 830 Π/ΠΌ | 85 ΠΊΠ³Ρ/ΠΌ |
Π’Π΅Ρ Π½ΠΈΡΠ΅ΡΠΊΠΈΠ΅ Ρ Π°ΡΠ°ΠΊΡΠ΅ΡΠΈΡΡΠΈΠΊΠΈ Π±ΡΡΠΎΠ²ΠΎΠΉ ΡΡΡΠ°Π½ΠΎΠ²ΠΊΠΈ Π£Π Π 2Π°2 ΠΏΡΠ΅Π΄ΡΡΠ°Π²Π»Π΅Π½Ρ Π² ΡΠ°Π±Π»ΠΈΡΠ΅:
| ΠΠ°ΡΠ°ΠΌΠ΅ΡΡΡ | ΠΠ΄. ΠΈΠ·ΠΌΠ΅ΡΠ΅Π½ΠΈΡ | ΠΠΎΠΊΠ°Π·Π°ΡΠ΅Π»ΠΈ |
| ΠΡΠΈΠ²ΠΎΠ΄ Π²ΡΠ°ΡΠ°ΡΠ΅Π»Ρ | ||
| Π’ΠΈΠΏ | Π°ΠΊΡΠΈΠ°Π»ΡΠ½ΠΎ-ΠΏΠΎΡΡΠ½Π΅Π²ΠΎΠΉ | |
| Π Π°Π±. Π΄Π°Π²Π»Π΅Π½ΠΈΠ΅ Π³ΠΈΠ΄ΡΠΎΡΠΈΡΡΠ΅ΠΌΡ | ΠΠΠ° | 980 |
| ΠΊΠ³Ρ/ΡΠΌ2 | 100 | |
| ΠΠ΅Ρ Π°Π½ΠΈΠ·ΠΌ ΡΠΏΡΡΠΊΠ°/ΠΏΠΎΠ΄Π°ΡΠΈ/ΠΏΠΎΠ΄ΡΠ΅ΠΌΠ° ΠΈΠ½ΡΡΡΡΠΌΠ΅Π½ΡΠ° | ||
| ΠΠΎΠΌΠΊΡΠ°Ρ Ρ ΠΏΠΎΠ»ΠΈΠΏΠ»Π°ΡΡΠ½ΠΎΠΉ ΡΠΈΡΡΠ΅ΠΌΠΎΠΉ | Π³ΠΈΠ΄ΡΠ°Π²Π»ΠΈΡΠ΅ΡΠΊΠΈΠΉ | |
| ΠΡΡΠ·ΠΎΠΏΠΎΠ΄ΡΠ΅ΠΌΠ½ΠΎΡΡΡ | Π | 45 |
| ΠΊΠ³Ρ | 4600 | |
| Π£ΡΠΈΠ»ΠΈΠ΅ Π²Π½ΠΈΠ· (ΠΏΡΠΈ Π΄Π°Π²Π»Π΅Π½ΠΈΠΈ 85 ΠΊΠ³Ρ/ΡΠΌ2) | Π | 25500 |
| Π‘ΠΊΠΎΡΠΎΡΡΡ ΠΏΠΎΠ΄ΡΠ΅ΠΌΠ° | ΠΌ./ΡΠ΅ΠΊ | 0-1,1 |
| ΠΡΡΠΈΠ»ΡΠ½ΡΠ΅ ΡΡΡΠ±Ρ | ||
| ΠΠΈΠ°ΠΌΠ΅ΡΡ | ΠΌΠΌ | 50 (60,3) |
| ΠΠ»ΠΈΠ½Π° | ΠΌΠΌ | 4500 |
| ΠΠ°ΡΡΠ° | ||
| Π’ΠΈΠΏ | Π‘Π²Π°ΡΠ½ΠΎΠΉ Ρ Π³ΠΈΠ΄ΡΠ°Π²Π»ΠΈΡΠ΅ΡΠΊΠΈΠΌΠΈ Π΄ΠΎΠΌΠΊΡΠ°ΡΠ°ΠΌΠΈ | |
| ΠΡΡΠ·ΠΎΠΏΠΎΠ΄ΡΠ΅ΠΌΠ½ΠΎΡΡΡ | Π | 58800 |
| ΠΊΠ³Ρ | 6000 | |
| ΠΠΎΠΌΠΏΡΠ΅ΡΡΠΎΡ | ||
| Π’ΠΈΠΏ | ΠΠ‘ΠΠ£-4ΠΠ£1-5/9 | |
| ΠΠ°ΠΊΡ. ΠΏΡΠΎΠΈΠ·Π²ΠΎΠ΄ΠΈΡΠ΅Π»ΡΠ½ΠΎΡΡΡ | ΠΌ3/ΠΌΠΈΠ½ | 10 (Β±0,5) |
| ΠΠ°Π²Π»Π΅Π½ΠΈΠ΅ (Π½ΠΎΠΌΠΈΠ½Π°Π»ΡΠ½ΠΎΠ΅, ΠΈΠ·Π±ΡΡΠΎΡΠ½ΠΎΠ΅, Π½Π° Π²ΡΡ ΠΎΠ΄Π΅) | ΠΠΠ° | 0,8 |
| ΠΊΠ³Ρ/ΡΠΌ2 | 8 | |
| ΠΡΡΠΎΠ²ΠΎΠΉ Π½Π°ΡΠΎΡ | ||
| Π’ΠΈΠΏ | ΠΠ-32 | |
| ΠΠΎΠ΄Π°ΡΠ° | ||
| β Ρ ΠΏΠΎΡΡΠ½Π΅ΠΌ Π΄ΠΈΠ°ΠΌΠ΅ΡΡΠΎΠΌ 100 ΠΌΠΌ | ΠΌ3/ΡΠ°Ρ | Π½Π΅ ΠΌΠ΅Π½Π΅Π΅ 26,3 |
| β Ρ ΠΏΠΎΡΡΠ½Π΅ΠΌ Π΄ΠΈΠ°ΠΌΠ΅ΡΡΠΎΠΌ 110 ΠΌΠΌ | ΠΌ3/ΡΠ°Ρ | Π½Π΅ ΠΌΠ΅Π½Π΅Π΅ 32,4 |
| ΠΠ°Π²Π»Π΅Π½ΠΈΠ΅ Π½Π° Π²ΡΡ ΠΎΠ΄Π΅ (Π½Π°ΠΈΠ±ΠΎΠ»ΡΡΠ΅Π΅) | ||
| β Ρ ΠΏΠΎΡΡΠ½Π΅ΠΌ Π΄ΠΈΠ°ΠΌΠ΅ΡΡΠΎΠΌ 100 ΠΌΠΌ | ΠΠΠ | Π½Π΅ ΠΌΠ΅Π½Π΅Π΅ 3,2 |
| β Ρ ΠΏΠΎΡΡΠ½Π΅ΠΌ Π΄ΠΈΠ°ΠΌΠ΅ΡΡΠΎΠΌ 110 ΠΌΠΌ | ΠΠΠ° | Π½Π΅ ΠΌΠ΅Π½Π΅Π΅ 2,6 |
ΠΠΈΠ΄Π΅ΠΎ ΠΎΠ±Π·ΠΎΡ Π±ΡΡΠΎΠ²ΠΎΠΉ ΡΡΡΠ°Π½ΠΎΠ²ΠΊΠΈ Π£Π Π 2Π°2:
allspectech.com
ΠΡΡΠΎΠ²Π°Ρ ΡΡΡΠ°Π½ΠΎΠ²ΠΊΠ° Π£Π Π-2Π2 (ΠΎΠ±Π·ΠΎΡ) β ΡΠ»Π΅ΠΊΡΡΠΎΠ½Π½ΡΠΉ ΠΊΠ°ΡΠ°Π»ΠΎΠ³ ΠΏΡΠΎΠ΄ΡΠΊΡΠΈΠΈ,ΡΠ°Π·ΡΠ°Π±ΠΎΡΠΊΠ° ΠΌΠΎΠ±ΠΈΠ»ΡΠ½ΡΡ ΠΏΡΠΈΠ»ΠΎΠΆΠ΅Π½ΠΈΠΉ,ΠΠΠ‘,Π°Π²ΡΠΎΠΌΠ°ΡΠΈΠ·ΠΈΡΠΎΠ²Π°Π½Π½ΡΠ΅ ΠΎΠ±ΡΡΠ°ΡΡΠΈΠ΅ ΡΠΈΡΡΠ΅ΠΌΡ,ΡΠ΅ΠΌΠΈΠ½Π°ΡΡ ΠΏΠΎ Π½Π΅ΡΡΠ΅Π³Π°Π·ΠΎΠ²ΠΎΠΉ ΡΠ΅ΠΌΠ°ΡΠΈΠΊΠ΅,ΡΠ°Π·ΡΠ°Π±ΠΎΡΠΊΠ° Π‘Π’Π£,Π‘Π’Π£
ΠΠ° ΡΠ΅Π³ΠΎΠ΄Π½ΡΡΠ½ΠΈΠΉ Π΄Π΅Π½Ρ ΡΠ°ΠΌΠΎΡ
ΠΎΠ΄Π½ΡΠ΅ Π±ΡΡΠΎΠ²ΡΠ΅ ΡΡΡΠ°Π½ΠΎΠ²ΠΊΠΈ ΡΠΈΠΏΠ° Π£Π Π-2Π2 ΠΈ ΠΈΡ
ΠΌΠΎΠ΄ΠΈΡΠΈΠΊΠ°ΡΠΈΠΈ ΡΠ²Π»ΡΡΡΡΡ Π½Π°ΠΈΠ±ΠΎΠ»Π΅Π΅ Π²ΠΎΡΡΡΠ΅Π±ΠΎΠ²Π°Π½Π½ΡΠΌΠΈ ΠΏΡΠΈ ΠΏΡΠΎΠ²Π΅Π΄Π΅Π½ΠΈΠΈ ΠΈΠ½ΠΆΠ΅Π½Π΅ΡΠ½ΠΎ-Π³Π΅ΠΎΠ»ΠΎΠ³ΠΈΡΠ΅ΡΠΊΠΈΡ
ΠΈΠ·ΡΡΠΊΠ°Π½ΠΈΠΉ.
ΠΠΎΠΏΡΠ»ΡΡΠ½ΠΎΡΡΡ Π±ΡΡΠΎΠ²ΡΡ ΡΡΡΠ°Π½ΠΎΠ²ΠΎΠΊ ΡΠΈΠΏΠ° Π£Π Π-2Π2 ΡΠ²ΡΠ·Π°Π½Π° Ρ ΠΈΡ ΡΠ½ΠΈΠ²Π΅ΡΡΠ°Π»ΡΠ½ΠΎΡΡΡΡ, ΠΊΠ°ΠΊ Π² ΠΏΠ»Π°Π½Π΅ ΠΌΠΎΠ½ΡΠ°ΠΆΠ° Π½Π° ΡΠ°Π·Π»ΠΈΡΠ½ΡΡ ΡΡΠ°Π½ΡΠΏΠΎΡΡΠ½ΡΡ Π±Π°Π·Ρ — ΠΊΠΎΠ»Π΅ΡΠ½ΡΡ, Π³ΡΡΠ΅Π½ΠΈΡΠ½ΡΡ ΠΈΠ»ΠΈ Π½Π° ΡΠ°Π½ΠΈ, ΡΠ°ΠΊ ΠΈ Π² Π²ΠΎΠ·ΠΌΠΎΠΆΠ½ΠΎΡΡΠΈ ΠΏΡΠΈΠΌΠ΅Π½Π΅Π½ΠΈΡ ΡΡΡΠ°Π½ΠΎΠ²ΠΎΠΊ Π΄Π»Ρ ΡΠ°Π·Π»ΠΈΡΠ½ΡΡ ΡΠΏΠΎΡΠΎΠ±ΠΎΠ² Π±ΡΡΠ΅Π½ΠΈΡ (Π²ΡΠ°ΡΠ°ΡΠ΅Π»ΡΠ½ΠΎΠ³ΠΎ, ΡΠ΄Π°ΡΠ½ΠΎ-Π²ΡΠ°ΡΠ°ΡΠ΅Π»ΡΠ½ΠΎΠ³ΠΎ), Π° ΡΠ°ΠΊΠΆΠ΅ Ρ ΠΏΡΠΎΡΡΠΎΡΠΎΠΉ ΡΠΏΡΠ°Π²Π»Π΅Π½ΠΈΡ ΠΈ ΡΠ΅Ρ Π½ΠΈΡΠ΅ΡΠΊΠΎΠ³ΠΎ ΠΎΠ±ΡΠ»ΡΠΆΠΈΠ²Π°Π½ΠΈΡ. ΠΡΡΠΎΠ²Π°Ρ ΡΡΡΠ°Π½ΠΎΠ²ΠΊΠ° Π£Π Π-2Π2 ΠΈ Π΅Π΅ ΠΌΠΎΠ΄ΠΈΡΠΈΠΊΠ°ΡΠΈΠΈ — Π΅Π΄ΠΈΠ½ΡΡΠ²Π΅Π½Π½Π°Ρ Π³ΠΈΠ΄ΡΠΎΡΠΈΡΠΈΡΠΎΠ²Π°Π½Π½Π°Ρ Π±ΡΡΠΎΠ²Π°Ρ ΡΡΡΠ°Π½ΠΎΠ²ΠΊΠ° ΡΠΎΡΡΠΈΠΉΡΠΊΠΎΠ³ΠΎ ΠΏΡΠΎΠΈΠ·Π²ΠΎΠ΄ΡΡΠ²Π°, ΠΈΠ·Π³ΠΎΡΠΎΠ²Π»Π΅Π½Π½Π°Ρ ΠΈΠ· ΠΎΡΠ΅ΡΠ΅ΡΡΠ²Π΅Π½Π½ΡΡ ΠΌΠ°ΡΠ΅ΡΠΈΠ°Π»ΠΎΠ², ΡΠ·Π»ΠΎΠ² ΠΈ Π΄Π΅ΡΠ°Π»Π΅ΠΉ, ΠΈ ΡΠΏΠΎΡΠΎΠ±Π½Π° ΠΊΠΎΠ½ΠΊΡΡΠΈΡΠΎΠ²Π°ΡΡ Ρ Π»ΡΠ±ΠΎΠΉ Π·Π°ΡΡΠ±Π΅ΠΆΠ½ΠΎΠΉ Π±ΡΡΠΎΠ²ΠΎΠΉ ΡΠ΅Ρ Π½ΠΈΠΊΠΎΠΉ Π΄Π°Π½Π½ΠΎΠ³ΠΎ ΠΊΠ»Π°ΡΡΠ° ΠΏΡΠΈ Π±ΡΡΠ΅Π½ΠΈΠΈ ΠΈΠ½ΠΆΠ΅Π½Π΅ΡΠ½ΠΎ-Π³Π΅ΠΎΠ»ΠΎΠ³ΠΈΡΠ΅ΡΠΊΠΈΡ ΡΠΊΠ²Π°ΠΆΠΈΠ½ Π³Π»ΡΠ±ΠΈΠ½ΠΎΠΉ Π΄ΠΎ 100 ΠΌ.
Π³. ΠΠΈΡΠ½ΡΠΉ (Π―ΠΊΡΡΠΈΡ)
Π Π΄Π°Π½Π½ΠΎΠΌ ΠΎΠ±Π·ΠΎΡΠ΅ ΠΌΠ½Π΅ Π±Ρ Ρ ΠΎΡΠ΅Π»ΠΎΡΡ ΠΎΠΏΠΈΡΠ°ΡΡ ΡΠ²ΠΎΠΉ ΠΎΠΏΡΡ ΠΈΡΠΏΠΎΠ»ΡΠ·ΠΎΠ²Π°Π½ΠΈΡ Π±ΡΡΠΎΠ²ΠΎΠΉ ΡΡΡΠ°Π½ΠΎΠ²ΠΊΠΈ Π£Π Π-2Π2 Π½Π° ΡΠ°ΡΡΠΈ ΠΠΠΠΠ 43114 ΠΈ Π’ΠΠ-21 Ρ ΠΊΠΎΠΌΠΏΡΠ΅ΡΡΠΎΡΠΎΠΌ 4ΠΠ£ ΠΏΡΠΈ Π±ΡΡΠ΅Π½ΠΈΠΈ ΠΈΠ½ΠΆΠ΅Π½Π΅ΡΠ½ΠΎ-Π³Π΅ΠΎΠ»ΠΎΠ³ΠΈΡΠ΅ΡΠΊΠΈΡ ΡΠΊΠ²Π°ΠΆΠΈΠ½ Π³Π»ΡΠ±ΠΈΠ½ΠΎΠΉ 60-100 ΠΌ ΠΈ Π±ΡΡΠ΅Π½ΠΈΠ΅ Ρ ΠΏΠ»Π°Π²ΡΡΠ΅Π΄ΡΡΠ². Π’Π°ΠΊΠΈΠ΅ ΡΠΊΠ²Π°ΠΆΠΈΠ½Ρ Π±ΡΡΠΈΠ»ΠΈ Π² Π―ΠΊΡΡΠΈΠΈ Π½Π° Π½Π°ΠΌΡΠ²Π½ΡΡ Π΄Π°ΠΌΠ±Π°Ρ Ρ Π²ΠΎΡΡΠΎΡ ΡΠ°Π½ΠΈΠ»ΠΈΡ Π³Π»ΡΠ±ΠΈΠ½ΠΎΠΉ 40-100 ΠΌ. ΠΡΡΠΎΡΠ° Π΄Π°ΠΌΠ± 40-90 ΠΌ.Β Π’Π΅Ρ Π½ΠΎΠ³Π΅Π½Π½ΡΠΉ Π³ΡΡΠ½Ρ, ΡΠ»Π°Π³Π°ΡΡΠΈΠΉ ΡΠ΅Π»ΠΎ ΠΏΠ»ΠΎΡΠΈΠ½Ρ, Π½Π°Ρ ΠΎΠ΄ΠΈΡΡΡ Π² ΡΠ°Π»ΠΎΠΌ ΡΠΎΡΡΠΎΡΠ½ΠΈΠΈ ΠΈ ΠΏΡΠ΅Π΄ΡΡΠ°Π²Π»Π΅Π½ Π²ΠΎΠ΄ΠΎΠ½Π°ΡΡΡΠ΅Π½Π½ΡΠΌ ΠΏΠ΅ΡΠΊΠΎΠΌ — ΠΊΡΡΠΏΠ½ΡΠΌ, ΡΡΠ΅Π΄Π½Π΅ΠΉ ΠΊΡΡΠΏΠ½ΠΎΡΡΠΈ ΠΈ ΠΏΡΠ»Π΅Π²Π°ΡΡΠΌ. ΠΠΎΠ΄ΡΡΠΈΠ»Π°ΡΡΠΈΠ΅ ΠΏΠΎΡΠΎΠ΄Ρ, ΡΠ»ΠΎΠΆΠ΅Π½Π½ΡΠ΅ Π²ΡΠ²Π΅ΡΡΠ΅Π½Π½ΡΠΌΠΈ ΠΌΠ΅ΡΠ³Π΅Π»ΡΠΌΠΈ ΠΈ ΡΡΠ΅ΡΠΈΠ½ΠΎΠ²Π°ΡΡΠΌΠΈ ΠΈΠ·Π²Π΅ΡΡΠ½ΡΠΊΠ°ΠΌΠΈ Π½Π°Ρ ΠΎΠ΄ΡΡΡΡ Π² ΠΌΠ½ΠΎΠ³ΠΎΠ»Π΅ΡΠ½Π΅ΠΌΠ΅ΡΠ·Π»ΠΎΠΌ ΡΠΎΡΡΠΎΡΠ½ΠΈΠΈ. ΠΡΠΈ Π΄Π°Π½Π½ΠΎΠΌ Π³Π΅ΠΎΠ»ΠΎΠ³ΠΈΡΠ΅ΡΠΊΠΎΠΌ ΡΠ°Π·ΡΠ΅Π·Π΅ Π±ΡΡΠΈΡΡ Ρ ΠΏΡΠΎΠΌΡΠ²ΠΊΠΎΠΉ Π·Π°ΠΊΠ°Π·ΡΠΈΠΊ Π·Π°ΠΏΡΠ΅ΡΠΈΠ» ΠΈΠ·-Π·Π° Π²ΠΎΠ·ΠΌΠΎΠΆΠ½ΠΎΡΡΠΈ ΠΏΡΠΎΡΠ²Π»Π΅Π½ΠΈΡ Β«ΡΠΈΡΠΎΠ½ΠΎΠ²Β». ΠΡΠΈ Π±ΡΡΠ΅Π½ΠΈΠΈ ΡΠΊΠ²Π°ΠΆΠΈΠ½ Π² ΠΏΠΎΠ΄ΠΎΠ±Π½ΡΡ ΡΠ°Π·ΡΠ΅Π·Π°Ρ , ΠΊΠΎΠ½Π΅ΡΠ½ΠΎ ΠΆΠ΅, Π½Π΅ΠΎΠ±Ρ ΠΎΠ΄ΠΈΠΌΠΎ ΠΏΠ΅ΡΠ΅ΠΊΡΡΠ²Π°ΡΡ ΠΏΠ΅ΡΠΊΠΈ ΠΎΠ±ΡΠ°Π΄Π½ΡΠΌΠΈ ΡΡΡΠ±Π°ΠΌΠΈ Π΄ΠΎ Π³Π»ΡΠ±ΠΈΠ½Ρ ΠΊΠΎΡΠ΅Π½Π½ΡΡ ΠΏΠΎΡΠΎΠ΄. Π Π΄Π°Π½Π½ΠΎΠΌ ΡΠ»ΡΡΠ°Π΅ ΠΌΡ ΠΎΡΡΠ°Π½ΠΎΠ²ΠΈΠ»ΠΈΡΡ Π½Π° ΠΏΡΠΈΠΌΠ΅Π½Π΅Π½ΠΈΠΈ ΠΊΠΎΠΌΠΏΡΠ΅ΡΡΠΎΡΠ° Π΄Π»Ρ ΠΎΠ±ΡΠ°Π΄ΠΊΠΈ ΡΠΊΠ²Π°ΠΆΠΈΠ½, Π° ΠΈΠΌΠ΅Π½Π½ΠΎ — ΡΠΎΠ΅Π΄ΠΈΠ½ΡΠ»ΠΈ ΠΎΠ³ΠΎΠ»ΠΎΠ²Π½ΠΈΠΊ ΠΎΠ±ΡΠ°Π΄Π½ΠΎΠΉ ΡΡΡΠ±Ρ Ρ ΠΊΠΎΡΠΎΡΠΊΠΎΠΉ Π±ΡΡΠΈΠ»ΡΠ½ΠΎΠΉ ΡΡΡΠ±ΠΎΠΉ ΠΈ Ρ Π²ΡΠ°ΡΠ΅Π½ΠΈΠ΅ΠΌ, ΠΈ ΠΏΡΠΎΠ΄ΡΠ²ΠΊΠΎΠΉ Π²ΠΎΠ·Π΄ΡΡ ΠΎΠΌ Π·Π°Π±ΡΡΠΈΠ²Π°Π»ΠΈ ΠΎΠ±ΡΠ°Π΄Π½ΡΡ ΡΡΡΠ±Ρ Ρ ΠΏΠ΅ΡΠΈΠΎΠ΄ΠΈΡΠ΅ΡΠΊΠΎΠΉ Π·Π°ΡΠΈΡΡΠΊΠΎΠΉ ΠΈ ΠΎΡΠ±ΠΎΡΠΎΠΌ ΠΎΠ±ΡΠ°Π·ΡΠΎΠ². ΠΡΠΈ ΠΏΠΎΠ»Π½ΠΎΠΉ ΠΎΡΡΠ°Π½ΠΎΠ²ΠΊΠ΅ ΠΏΡΠΎΡ ΠΎΠ΄ΠΊΠΈ Π΄ΠΎΠ±ΠΈΠ²Π°Π»ΠΈ ΠΎΠ±ΡΠ°Π΄Π½ΡΡ ΡΡΡΠ±Ρ ΡΠ²Π΅ΡΡ Ρ 2.0 — Β 3.0 ΠΌ Β ΠΏΠ½Π΅Π²ΠΌΠΎΡΠ΄Π°ΡΠ½ΠΈΠΊΠΎΠΌ Π-130. Π’Π°ΠΊΠΈΠΌ ΠΎΠ±ΡΠ°Π·ΠΎΠΌ ΡΠ΄Π°Π²Π°Π»ΠΎΡΡ ΠΎΠ±ΡΠ°Π΄ΠΈΡΡ ΡΠΊΠ²Π°ΠΆΠΈΠ½Ρ Π΄ΠΎ Π³Π»ΡΠ±ΠΈΠ½Ρ 15-17 ΠΌ ΡΡΡΠ±Π°ΠΌΠΈ Π-168 ΠΌΠΌ, Π·Π°ΡΠ΅ΠΌ ΠΏΠ΅ΡΠ΅Ρ ΠΎΠ΄ΠΈΠ»ΠΈ Π½Π° ΠΌΠ΅Π½ΡΡΠΈΠΉ Π΄ΠΈΠ°ΠΌΠ΅ΡΡ — 146 ΠΌΠΌ. ΠΠΈΠ°ΠΌΠ΅ΡΡΠΎΠΌ 146 ΠΌΠΌ ΠΎΠ±ΡΠ°ΠΆΠΈΠ²Π°Π»ΠΈ Π΄ΠΎ 45-55 ΠΌ ΠΈ Π΄Π°Π»Π΅Π΅ 127 ΠΌΠΌ. ΠΠ±ΡΠ°Π΄Π½ΡΠ΅ ΡΡΡΠ±Ρ ΠΏΡΠΈΠΌΠ΅Π½ΡΠ»ΠΈ Π΄Π»ΠΈΠ½ΠΎΠΉ 1.0; 1.5; 2.0 ΠΈ 4.0 ΠΌ. ΠΠΎΠ΄ΡΡΠΈΠ»Π°ΡΡΠΈΠ΅ ΠΏΠΎΡΠΎΠ΄Ρ ΠΏΡΠΎΡ ΠΎΠ΄ΠΈΠ»ΠΈ Β«Π²ΡΡΡ ΡΡΒ» ΠΊΠΎΠ»ΠΎΠ½ΠΊΠΎΠ²ΡΠΌ ΡΠΏΠΎΡΠΎΠ±ΠΎΠΌ ΡΡΡΠ±Π°ΠΌΠΈ Π΄Π»ΠΈΠ½ΠΎΠΉ 4.0-4.5 ΠΌ. ΠΠΌΠ΅ΡΡΠΎ ΡΠ°ΡΠΈΠΊΠ° ΠΏΡΠΈΠΌΠ΅Π½ΡΠ»ΠΈ ΠΏΠ΅ΡΠ΅Ρ ΠΎΠ΄Π½ΠΈΠΊ Π-50/Π-50 Ρ ΠΏΠΎΠΏΠ΅ΡΠ΅ΡΠ½ΡΠΌ ΠΎΡΠ²Π΅ΡΡΡΠΈΠ΅ΠΌ ΠΌΠ΅ΠΆΠ΄Ρ ΠΏΠ°Π·Π°ΠΌΠΈ Π-12-14 ΠΌΠΌ. Π ΡΠ°ΠΊΠΈΡ ΠΏΠΎΡΠΎΠ΄Π°Ρ ΠΎΡΠ²Π΅ΡΡΡΠΈΠ΅ Π² ΠΏΠ΅ΡΠ΅Ρ ΠΎΠ΄Π½ΠΈΠΊΠ΅ ΡΠ°Π±ΠΎΡΠ°Π΅Ρ ΠΊΠ°ΠΊ ΠΏΡΠΈ Π±ΡΡΠ΅Π½ΠΈΠΈ Ρ ΡΠ°ΡΠΈΠΊΠΎΠΌ. Π‘ ΡΠ°ΠΊΠΈΠΌ ΠΏΠ΅ΡΠ΅Ρ ΠΎΠ΄Π½ΠΈΠΊΠΎΠΌ Π·Π° 1 ΡΠ΅ΠΉΡ ΠΏΡΠΎΡ ΠΎΠ΄ΠΈΠ»ΠΈ Π΄ΠΎ 2.8 ΠΌ.
ΠΡΡΠ΅Π½ΠΈΠ΅ Ρ ΠΏΠ»Π°Π²ΡΡΠ΅Π΄ΡΡΠ² (Π±Π°ΡΠΆΠ°, ΠΏΠΎΠ½ΡΠΎΠ½, ΠΏΠ»ΠΎΡ ΠΈ Ρ.ΠΏ.) Π½Π΅ ΡΠ°ΠΊ ΡΠΆ ΠΈ ΡΠ»ΠΎΠΆΠ½ΠΎ, ΠΊΠ°ΠΊ ΠΏΡΠ΅Π΄ΡΡΠ°Π²Π»ΡΠ΅ΡΡΡ Π΄Π°ΠΆΠ΅ ΠΎΠΏΡΡΠ½ΡΠΌ Π±ΡΡΠΎΠ²ΠΈΠΊΠ°ΠΌ. Π‘Π°ΠΌΠΎΠ΅ ΡΠ»ΠΎΠΆΠ½ΠΎΠ΅ — ΡΡΡΠ°Π½ΠΎΠ²ΠΈΡΡ ΠΏΠ»Π°Π²ΡΡΠ΅Π΄ΡΡΠ²ΠΎ (Π΄Π°Π»Π΅Π΅ — Π±Π°ΡΠΆΠ°) ΠΆΠ΅ΡΡΠΊΠΎ Π½Π° ΡΠΎΡΠΊΡ Π±ΡΡΠ΅Π½ΠΈΡ. ΠΠ°ΠΏΡΠΈΠΌΠ΅Ρ, Π½Π° Ρ. Π’Π°Π· Π±ΡΡΠΈΠ»ΠΈ ΡΠΊΠ²Π°ΠΆΠΈΠ½Ρ Π³Π»ΡΠ±ΠΈΠ½ΠΎΠΉ 40 ΠΌ ΠΎΡ Π΄Π½Π° ΡΠ΅ΠΊΠΈ Ρ Π±Π°ΡΠΆΠΈ Ρ Π΄Π²ΡΠΌΡ ΡΠΊΠΎΡΡΠΌΠΈ. ΠΠ²ΡΡ ΡΠΊΠΎΡΠ΅ΠΉ Π±ΡΠ»ΠΎ Π½Π΅Π΄ΠΎΡΡΠ°ΡΠΎΡΠ½ΠΎ. Π Π΄Π°Π½Π½ΠΎΠΉ ΡΠΈΡΡΠ°ΡΠΈΠΈ Π²ΡΡ ΠΎΠ΄ Π±ΡΠ» ΠΎΠ΄ΠΈΠ½ — Β ΠΏΠΎΡΠ»Π΅ ΡΡΡΠ°Π½ΠΎΠ²ΠΊΠΈ ΡΠΊΠΎΡΠ΅ΠΉ, Π½Π° Π²ΡΠ΅ Π²ΡΠ΅ΠΌΡ Π±ΡΡΠ΅Π½ΠΈΡ, Β ΠΊΠ°ΡΠ΅Ρ ΡΡΠΎΡΠ» Π½Π° Β«ΠΏΠΎΠ΄ΡΠ°Π±ΠΎΡΠΊΠ΅Β» Ρ ΠΏΡΠΎΡΠΈΠ²ΠΎΠΏΠΎΠ»ΠΎΠΆΠ½ΠΎΠ³ΠΎ Π±ΠΎΡΡΠ° ΠΎΡ ΡΠΊΠΎΡΠ΅ΠΉ. ΠΠΎΡΠ»Π΅ ΡΡΡΠ°Π½ΠΎΠ²ΠΊΠΈ Π±Π°ΡΠΆΠΈ Π½Π° ΡΠΎΡΠΊΡ Π±ΡΡΠ΅Π½ΠΈΡ 3 ΡΠ°ΡΠ° ΠΏΠ΅ΡΠ΅ΡΡΠ² Π΄ΠΎ ΠΏΠΎΠ»Π½ΠΎΠΉ ΡΠΈΠΊΡΠ°ΡΠΈΠΈ Π±Π°ΡΠΆΠΈ Π² ΠΎΠ΄Π½ΠΎΠΉ ΡΠΎΡΠΊΠ΅. ΠΠ°ΡΠ΅ΠΌ Π½Π°ΡΠΈΠ½Π°Π»ΠΈ ΠΎΠΏΡΡΠΊΠ°ΡΡ ΠΎΠ±ΡΠ°Π΄Π½ΡΠ΅ ΡΡΡΠ±Ρ Π΄ΠΎ Π΄Π½Π° ΡΠ΅ΠΊΠΈ. Π’ΡΡΠ±Ρ ΠΏΡΠΈΠΌΠ΅Π½ΡΠ»ΠΈ Π — 168*7 ΠΌΠΌ Ρ ΡΠ΅Π·ΡΠ±ΠΎΠΉ Β«ΡΡΡΠ±Π° Π² ΡΡΡΠ±ΡΒ» (ΡΡΠΎ Π»ΡΡΡΠΈΠΉ Π²Π°ΡΠΈΠ°Π½Ρ ΡΠΎΠ΅Π΄ΠΈΠ½Π΅Π½ΠΈΡ) ΠΈ Π½Π° ΡΡΡΠΊΠ°Ρ ΡΠ΅Π·ΡΠ±Ρ ΠΎΠ±ΡΠ·Π°ΡΠ΅Π»ΡΠ½Π°Ρ Β«ΠΏΡΠΈΡ Π²Π°ΡΠΊΠ°Β» ΡΠ²Π°ΡΠΊΠΎΠΉ Π² ΡΡΠ΅Ρ — ΡΠ΅ΡΡΡΠ΅Ρ ΡΠΎΡΠΊΠ°Ρ (Π²ΠΎ Π²ΡΠ΅ΠΌΡ ΠΏΠΎΠ΄ΡΠ΅ΠΌΠ° ΡΡΡΠ± Β«ΠΏΡΠΈΡ Π²Π°ΡΠΊΠ°Β» Π»Π΅Π³ΠΊΠΎ ΡΠ½ΠΈΠΌΠ°Π΅ΡΡΡ ΡΠ»ΠΈΡΠΌΠ°ΡΠΈΠ½ΠΊΠΎΠΉ). ΠΡ, Π° Π΄Π°Π»Π΅Π΅ Π±ΡΡΠ΅Π½ΠΈΠ΅, ΠΊΠ°ΠΊ Ρ ΠΏΠΎΠ²Π΅ΡΡ Π½ΠΎΡΡΠΈ Π·Π΅ΠΌΠ»ΠΈ, Π³Π»Π°Π²Π½ΠΎΠ΅ Π½Π΅ Π΄Π΅Π»Π°ΡΡ ΡΠ΅Π·ΠΊΠΈΡ Π΄Π²ΠΈΠΆΠ΅Π½ΠΈΠΉ Π³ΠΈΠ΄ΡΠ°Π²Π»ΠΈΠΊΠΎΠΉ Π²ΠΎ Π²ΡΠ΅ΠΌΡ ΡΠΏΡΡΠΊΠΎΠΏΠΎΠ΄ΡΠ΅ΠΌΠ½ΡΡ ΠΎΠΏΠ΅ΡΠ°ΡΠΈΠΉ.
Ρ. Π’Π°Π· (Π―ΠΌΠ°Π»)
Β 
Ρ. Π’Π°Π· (Π―ΠΌΠ°Π»)
Π’Π°ΠΊΠΈΠΌ ΠΎΠ±ΡΠ°Π·ΠΎΠΌ ΠΌΠΎΠΆΠ½ΠΎ ΡΠΊΠ°Π·Π°ΡΡ, ΡΡΠΎ ΠΏΡΠΈ Π±ΡΡΠ΅Π½ΠΈΠΈ ΠΈΠ½ΠΆΠ΅Π½Π΅ΡΠ½ΠΎ-Π³Π΅ΠΎΠ»ΠΎΠ³ΠΈΡΠ΅ΡΠΊΠΈΡ ΡΠΊΠ²Π°ΠΆΠΈΠ½ Π±ΡΡΠΎΠ²ΠΎΠΉ ΡΡΡΠ°Π½ΠΎΠ²ΠΊΠΎΠΉ Π£Π Π-2Π2 ΡΡΠΏΠ΅ΡΠ½ΠΎ ΠΏΡΠΈΠΌΠ΅Π½ΡΠ΅ΡΡΡ Π±ΡΡΠ΅Π½ΠΈΠ΅ Ρ ΠΏΡΠΎΠ΄ΡΠ²ΠΊΠΎΠΉ Π·Π°Π±ΠΎΡ ΡΠΆΠ°ΡΡΠΌ Π²ΠΎΠ·Π΄ΡΡ ΠΎΠΌ ΠΈ ΠΏΡΠΎΠΌΡΠ²ΠΊΠΎΠΉ ΠΆΠΈΠ΄ΠΊΠΈΠΌΠΈ ΠΎΡΠΈΡΡΠ½ΡΠΌΠΈ Π°Π³Π΅Π½ΡΠ°ΠΌΠΈ (Π²ΠΎΠ΄Π°, Π³Π»ΠΈΠ½ΠΈΡΡΡΠΉ ΡΠ°ΡΡΠ²ΠΎΡ, ΡΠΌΡΠ»ΡΡΠΈΠΈ), Π±ΡΡΠ΅Π½ΠΈΠ΅ Ρ ΠΏΠΎΠ²Π΅ΡΡ Π½ΠΎΡΡΠΈ Π²ΠΎΠ΄Ρ ΠΈ ΡΠΎ Π»ΡΠ΄Π°. Π ΡΡΠ»ΠΎΠ²ΠΈΡΡ ΠΊΡΠ°ΠΉΠ½Π΅Π³ΠΎ Π‘Π΅Π²Π΅ΡΠ° Π£Π Π-2Π2 ΠΏΠΎΠΊΠ°Π·Π°Π»Π° Ρ ΠΎΡΠΎΡΠΈΠ΅ ΡΠ΅Π·ΡΠ»ΡΡΠ°ΡΡ ΠΏΠΎ ΠΏΡΠΎΡ ΠΎΠ΄ΠΊΠ΅ ΡΠΊΠ²Π°ΠΆΠΈΠ½ ΠΈ ΠΎΡΠ±ΠΎΡΡ ΠΎΠ±ΡΠ°Π·ΡΠΎΠ² Π² ΠΌΠ½ΠΎΠ³ΠΎΠ»Π΅ΡΠ½Π΅ΠΌΠ΅ΡΠ·Π»ΡΡ Π³ΡΡΠ½ΡΠ°Ρ . ΠΡΠΈ Π±ΡΡΠ΅Π½ΠΈΠΈ Β«Π²ΡΡΡ ΡΡΒ» Π² ΠΌΠ½ΠΎΠ³ΠΎΠ»Π΅ΡΠ½Π΅ΠΌΠ΅ΡΠ·Π»ΡΡ ΠΈ ΡΠ°Π»ΡΡ Π³ΡΡΠ½ΡΠ°Ρ Π±ΡΡΠΎΠ²Π°Ρ ΡΡΡΠ°Π½ΠΎΠ²ΠΊΠ° Π£Π Π-2Π2 Π²ΡΠΏΠΎΠ»Π½ΡΠ΅Ρ ΠΎΡΠ½ΠΎΠ²Π½ΡΠ΅ ΡΡΠ΅Π±ΠΎΠ²Π°Π½ΠΈΡ ΠΈΠ½ΠΆΠ΅Π½Π΅ΡΠ½ΠΎ-Π³Π΅ΠΎΠ»ΠΎΠ³ΠΈΡΠ΅ΡΠΊΠΈΡ ΠΈΠ·ΡΡΠΊΠ°Π½ΠΈΠΉ — ΠΎΡΠ±ΠΎΡ ΠΎΠ±ΡΠ°Π·ΡΠΎΠ² (ΠΌΠΎΠ½ΠΎΠ»ΠΈΡΠΎΠ²) Ρ Π½Π΅Π½Π°ΡΡΡΠ΅Π½Π½ΠΎΠΉ ΡΡΡΡΠΊΡΡΡΠΎΠΉ ΠΈ Π΅ΡΡΠ΅ΡΡΠ²Π΅Π½Π½ΠΎΠΉ Π²Π»Π°ΠΆΠ½ΠΎΡΡΡΡ.
Π’Π°ΠΊΠΆΠ΅ Π½Π΅ΠΎΠ±Ρ ΠΎΠ΄ΠΈΠΌΠΎ ΠΎΡΠΌΠ΅ΡΠΈΡΡ, ΡΡΠΎ Π±ΡΡΠΎΠ²Π°Ρ ΡΡΡΠ°Π½ΠΎΠ²ΠΊΠ° Π£Π Π-2Π2 ΠΏΡΠΈ ΠΈΠ½ΠΆΠ΅Π½Π΅ΡΠ½ΠΎ-Π³Π΅ΠΎΠ»ΠΎΠ³ΠΈΡΠ΅ΡΠΊΠΈΡ ΠΈΠ·ΡΡΠΊΠ°Π½ΠΈΡΡ Π²ΡΠΏΠΎΠ»Π½ΡΠ΅Ρ ΠΏΠΎΠ»Π½ΡΠΉ ΠΊΠΎΠΌΠΏΠ»Π΅ΠΊΡ ΠΏΠΎΠ»Π΅Π²ΡΡ ΠΎΠΏΡΡΠ½ΡΡ ΠΈ ΠΎΠΏΡΡΠ½ΠΎ — ΡΠΈΠ»ΡΡΡΠ°ΡΠΈΠΎΠ½Π½ΡΡ ΡΠ°Π±ΠΎΡ:
- ΠΡΠΎΠ²Π΅Π΄Π΅Π½ΠΈΠ΅ ΡΡΠ°ΠΌΠΏΠΎΠ²ΡΡ ΠΈΡΠΏΡΡΠ°Π½ΠΈΠΉ (ΠΎΠΏΡΠ΅Π΄Π΅Π»Π΅Π½ΠΈΠ΅ Π²Β ΠΏΠΎΠ»Π΅Π²ΡΡ ΡΡΠ»ΠΎΠ²ΠΈΡΡ ΠΌΠΎΠ΄ΡΠ»Ρ Π΄Π΅ΡΠΎΡΠΌΠ°ΡΠΈΠΈ Π, ΠΠΠ° ΠΏΠ΅ΡΡΠ°Π½ΡΡ , Π³Π»ΠΈΠ½ΠΈΡΡΡΡ , ΠΎΡΠ³Π°Π½ΠΎ-ΠΌΠΈΠ½Π΅ΡΠ°Π»ΡΠ½ΡΡ ΠΈΒ ΠΎΡΠ³Π°Π½ΠΈΡΠ΅ΡΠΊΠΈΡ Π³ΡΡΠ½ΡΠΎΠ² ΠΏΠΎΒ ΠΠΠ‘Π’Β 20276-99) Ρ ΠΏΡΠΈΠΌΠ΅Π½Π΅Π½ΠΈΠ΅ΠΌ ΡΡΠ°ΠΌΠΏΠ° Π¨Π60;
- Π‘ΡΠ°ΡΠΈΡΠ΅ΡΠΊΠΎΠ΅ Π·ΠΎΠ½Π΄ΠΈΡΠΎΠ²Π°Π½ΠΈΠ΅ Π½Π΅ΠΌΠ΅ΡΠ·Π»ΡΡ ΠΏΠ΅ΡΡΠ°Π½ΡΡ ΠΈΒ Π³Π»ΠΈΠ½ΠΈΡΡΡΡ Π³ΡΡΠ½ΡΠΎΠ² ΠΏΠΎΒ ΠΠΠ‘Π’Β 19912-2001Β (ΠΊΠΎΠΌΠΏΠ»Π΅ΠΊΡΠ½Π°Ρ ΠΎΡΠ΅Π½ΠΊΠ° ΡΠΈΠ·ΠΈΠΊΠΎ-ΠΌΠ΅Ρ Π°Π½ΠΈΡΠ΅ΡΠΊΠΈΡ ΡΠ²ΠΎΠΉΡΡΠ² Π³ΡΡΠ½ΡΠΎΠ² Π²Β ΡΠΎΠΎΡΠ²Π΅ΡΡΡΠ²ΠΈΠΈ cΒ Π‘ΠΒ 11-105-97), Β Ρ ΠΏΡΠΈΠΌΠ΅Π½Π΅Π½ΠΈΠ΅ΠΌ Π²ΠΈΠ½ΡΠΎΠ²ΠΎΠ³ΠΎ Π·ΠΎΠ½Π΄ΠΈΡΠΎΠ²ΠΎΡΠ½ΠΎΠ³ΠΎ ΠΌΠ΅Ρ Π°Π½ΠΈΠ·ΠΌΠ° ΠΠΠ-01 ΡΡΠΈΠ»ΠΈΠ΅ ΠΏΠΎΠ΄Π°ΡΠΈ ΡΠ²Π΅Π»ΠΈΡΠΈΠ²Π°Π΅ΡΡΡ Π΄ΠΎ 10 Ρ.Ρ;
- ΠΠΏΡΡΠ½ΡΠ΅ ΠΎΡΠΊΠ°ΡΠΊΠΈ ΠΈΠ· ΡΠΊΠ²Π°ΠΆΠΈΠ½Ρ (ΠΎΠΏΡΠ΅Π΄Π΅Π»Π΅Π½ΠΈΠ΅ ΠΊΠΎΡΡΡΠΈΡΠΈΠ΅Π½ΡΠ° ΡΠΈΠ»ΡΡΡΠ°ΡΠΈΠΈ ΠΈ Π΄Π΅Π±ΠΈΡΠ° Π²ΠΎΠ΄ΠΎΠ½ΠΎΡΠ½ΡΡ ΠΏΠ»Π°ΡΡΠΎΠ²).
Π£Π΄Π°ΡΠ½ΡΠΉΒ (Π―ΠΊΡΡΠΈΡ), ΡΡΡΠΎΡΠ½Π°Ρ ΠΎΠΏΡΡΠ½Π°ΡΒ ΠΎΡΠΊΠ°ΡΠΊΠ°
Π³. ΠΡΠΈΠ½ΡΠΊ
Β Β Β Β Β Β Β Β Β Β Β Β Β Β Β Β Β Β Β Β Β Β Β Β Β Β Β Β Β Β Β Β Β Β Β Β Β Β Β Β Β Β Β Β Β Β Β Β Β Β Β Β Β Β Β Β Β Β Β Β Β Β Β
transenergostroy.ru
ΠΡΡΠΎΠ²Π°Ρ ΡΡΡΠ°Π½ΠΎΠ²ΠΊΠ° ΡΡΠ±-2Π°2
Π
ΡΡΠΎΠ²Π°Ρ
ΡΡΡΠ°Π½ΠΎΠ²ΠΊΠ° Π£Π Π-2Π2ΠΏΡΠ΅Π΄Π½Π°Π·Π½Π°ΡΠ΅Π½Π°
Π΄Π»Ρ Π²ΡΠ°ΡΠ°ΡΠ΅Π»ΡΠ½ΠΎΠ³ΠΎ Π±ΡΡΠ΅Π½ΠΈΡ
Π΄ΠΎΠ»ΠΎΡΠ°ΠΌΠΈ ΠΈ ΡΠ²Π΅ΡΠ΄ΠΎΡΠΏΠ»Π°Π²Π½ΡΠΌΠΈ ΠΊΠΎΡΠΎΠ½ΠΊΠ°ΠΌΠΈ.
ΠΡΠ΅
ΠΌΠ΅Ρ
Π°Π½ΠΈΠ·ΠΌΡ, Π²Ρ
ΠΎΠ΄ΡΡΠΈΠ΅ Π² ΡΡΡΠ°Π½ΠΎΠ²ΠΊΡ (ΡΠΈΡ.
11), Π² ΡΠΎΠΌ ΡΠΈΡΠ»Π΅ ΡΠ°Π·Π΄Π°ΡΠΎΡΠ½Π°Ρ ΠΊΠΎΡΠΎΠ±ΠΊΠ°,
ΠΏΠ΅ΡΠ΅Π΄Π°ΡΡΠ°Ρ Π²ΡΠ°ΡΠ΅Π½ΠΈΠ΅ ΠΎΡ Ρ
ΠΎΠ΄ΠΎΠ²ΠΎΠ³ΠΎ Π΄Π²ΠΈΠ³Π°ΡΠ΅Π»Ρ
Π°Π²ΡΠΎΠΌΠΎΠ±ΠΈΠ»Ρ, Π±ΡΡΠΎΠ²ΠΎΠΉ Π½Π°ΡΠΎΡ ΠΠ-32 ΠΈΠ»ΠΈ
ΠΊΠΎΠΌΠΏΡΠ΅ΡΡΠΎΡ ΠΠ’-7, ΠΌΠ°ΡΡΠ° Ρ ΠΊΡΠΎΠ½Π±Π»ΠΎΠΊΠΎΠΌ,
ΠΏΠΎΠ΄Π²ΠΈΠΆΠ½ΡΠΌ Π²ΡΠ°ΡΠ°ΡΠ΅Π»Π΅ΠΌ ΠΈ ΠΎΠ΄Π½ΠΎΡΠΈΠ»ΠΈΠ½Π΄ΡΠΎΠ²ΡΠΌ
Π³ΠΈΠ΄ΡΠΎΠΏΠΎΠ΄ΡΠ΅ΠΌΠ½ΠΈΠΊΠΎΠΌ Π΄Π²ΡΡΡΠΎΡΠΎΠ½Π½Π΅Π³ΠΎ Π΄Π΅ΠΉΡΡΠ²ΠΈΡ,
ΠΏΡΠ»ΡΡ ΡΠΏΡΠ°Π²Π»Π΅Π½ΠΈΡ ΠΌΠ΅Ρ
Π°Π½ΠΈΠ·ΠΌΠ°ΠΌΠΈ ΡΡΡΠ°Π½ΠΎΠ²ΠΊΠΈ,
ΠΌΠ°ΡΠ»ΡΠ½ΡΠ΅ Π±Π°ΠΊΠΈ Π΄Π»Ρ ΠΎΠ±Π΅ΡΠΏΠ΅ΡΠ΅Π½ΠΈΡ ΠΌΠ°ΡΠ»ΠΎΠΌ
Π³ΠΈΠ΄ΡΠΎΡΠΈΡΡΠ΅ΠΌΡ Π±ΡΡΠΎΠ²ΠΎΠΉ ΡΡΡΠ°Π½ΠΎΠ²ΠΊΠΈ
ΡΠΌΠΎΠ½ΡΠΈΡΠΎΠ²Π°Π½Ρ Π½Π° ΡΠ°ΠΌΠ΅, Π·Π°ΠΊΡΠ΅ΠΏΠ»Π΅Π½Π½ΠΎΠΉ Π½Π°
ΡΠ°ΡΡΠΈ Π°Π²ΡΠΎΠΌΠΎΠ±ΠΈΠ»Ρ ΠΠΠ-131.
ΠΡΡΠΎΠ²ΠΎΠΉ ΡΡΡΠ°Π½ΠΎΠ²ΠΊΠ΅ΠΏΡΠΈΠ΄Π°Π΅ΡΡΡ Π΄Π²ΡΠΎΡΠ½ΡΠΉ ΠΏΡΠΈΡΠ΅ΠΏ Π΄Π»Ρ ΠΏΠ΅ΡΠ΅Π²ΠΎΠ·ΠΊΠΈ ΡΡΡΠ±, ΡΠ½Π΅ΠΊΠΎΠ² ΠΈ ΠΈΠ½ΡΡΡΡΠΌΠ΅Π½ΡΠ°. ΠΠ° Π½Π΅ΠΌ ΡΡΡΠ°Π½ΠΎΠ²Π»Π΅Π½ ΠΊΠΎΠ½ΡΠΎΠ»ΡΠ½ΠΎ-ΠΏΠΎΠ²ΠΎΡΠΎΡΠ½ΡΠΉ ΠΊΡΠ°Π½ Π΄Π»Ρ ΠΏΠΎΠ³ΡΡΠ·ΠΎΡΠ½ΠΎ-ΡΠ°Π·Π³ΡΡΠ·ΠΎΡΠ½ΡΡ ΡΠ°Π±ΠΎΡ. Π£ΡΡΠ°Π½ΠΎΠ²ΠΊΠ° ΠΈΠΌΠ΅Π΅Ρ ΠΏΠΎΠ΄Π²ΠΈΠΆΠ½ΡΠΉ Π²ΡΠ°ΡΠ°ΡΠ΅Π»Ρ, ΠΊΠΎΡΠΎΡΡΠΉ ΠΈΡΠΏΠΎΠ»ΡΠ·ΡΠ΅ΡΡΡ Π² ΠΏΡΠΎΡΠ΅ΡΡΠ΅ Π±ΡΡΠ΅Π½ΠΈΡ, Π½Π°ΡΠ°ΡΠΈΠ²Π°Π½ΠΈΡ ΠΈΠ½ΡΡΡΡΠΌΠ΅Π½ΡΠ° Π±Π΅Π· ΠΎΡΡΡΠ²Π° Π΅Π³ΠΎ ΠΎΡ Π·Π°Π±ΠΎΡ ΠΈ Π²ΡΠΏΠΎΠ»Π½ΡΠ΅Ρ ΡΠΎΠ²ΠΌΠ΅ΡΡΠ½ΠΎ Ρ Π³ΠΈΠ΄ΡΠΎΠΏΠΎΠ΄ΡΠ΅ΠΌΠ½ΠΈΠΊΠΎΠΌ ΡΠ°Π±ΠΎΡΡ ΠΏΠΎ ΡΠΏΡΡΠΊΠΎ-ΠΏΠΎΠ΄ΡΠ΅ΠΌΡ ΠΈΠ½ΡΡΡΡΠΌΠ΅Π½ΡΠ° ΠΈ ΠΏΡΠΈΠ½ΡΠ΄ΠΈΡΠ΅Π»ΡΠ½ΡΡ ΠΏΠΎΠ΄Π°ΡΡ Π΅Π³ΠΎ Π½Π° Π·Π°Π±ΠΎΠΉ. ΠΠΈΠ½Π΅ΠΌΠ°ΡΠΈΠΊΠ° ΠΈ ΠΌΠΎΡΠ½ΠΎΡΡΡ Π²ΡΠ°ΡΠ°ΡΠ΅Π»Ρ ΠΎΠ±Π΅ΡΠΏΠ΅ΡΠΈΠ²Π°ΡΡ ΡΠ°ΠΊΠΆΠ΅ ΡΠ²ΠΈΠ½ΡΠΈΠ²Π°Π½ΠΈΠ΅ ΠΈ ΡΠ°Π·Π²ΠΈΠ½ΡΠΈΠ²Π°Π½ΠΈΠ΅ Π±ΡΡΠΈΠ»ΡΠ½ΡΡ ΡΡΡΠ±, Π±Π»Π°Π³ΠΎΠ΄Π°ΡΡ ΡΠ΅ΠΌΡ ΠΎΡΠΏΠ°Π΄Π°Π΅Ρ Π½Π΅ΠΎΠ±Ρ ΠΎΠ΄ΠΈΠΌΠΎΡΡΡ Π² ΡΠΏΠ΅ΡΠΈΠ°Π»ΡΠ½ΡΡ ΠΌΠ΅Ρ Π°Π½ΠΈΠ·ΠΌΠ°Ρ Π΄Π»Ρ ΡΡΠΎΠΉ ΡΠ΅Π»ΠΈ.
ΠΡΠ°ΡΠ΅Π½ΠΈΠ΅ ΠΎΡ Ρ ΠΎΠ΄ΠΎΠ²ΠΎΠ³ΠΎ Π΄Π²ΠΈΠ³Π°ΡΠ΅Π»Ρ Π°Π²ΡΠΎΠΌΠΎΠ±ΠΈΠ»Ρ ΠΏΡΠΈ n = 1800 ΠΎΠ±/ΠΌΠΈΠ½ ΡΠ΅ΡΠ΅Π· ΠΊΠΎΡΠΎΠ±ΠΊΡ ΠΏΠ΅ΡΠ΅Π΄Π°Ρ, ΡΠ°Π·Π΄Π°ΡΠΎΡΠ½ΡΡ ΠΊΠΎΡΠΎΠ±ΠΊΡ Π°Π²ΡΠΎΠΌΠΎΠ±ΠΈΠ»Ρ Ρ ΠΏΠΎΠΌΠΎΡΡΡ ΠΊΠ°ΡΠ΄Π°Π½Π½ΡΡ Π²Π°Π»ΠΎΠ² ΠΏΠ΅ΡΠ΅Π΄Π°Π΅ΡΡΡ Π½Π° ΡΠ°Π·Π΄Π°ΡΠΎΡΠ½ΡΡ ΠΊΠΎΡΠΎΠ±ΠΊΡ Π±ΡΡΠΎΠ²ΠΎΠΉ ΡΡΡΠ°Π½ΠΎΠ²ΠΊΠΈ.
ΠΠ° ΡΡΡΠ°Π½ΠΎΠ²ΠΊΠ΅ ΠΈΠΌΠ΅Π΅ΡΡΡ Π°Π²Π°ΡΠΈΠΉΠ½ΡΠΉ ΡΡΡΠ½ΠΎΠΉ ΠΌΠ°ΡΠ»ΠΎΠ½Π°ΡΠΎΡ, ΠΏΠΎΠ·Π²ΠΎΠ»ΡΡΡΠΈΠΉ ΠΏΠ΅ΡΠ΅ΠΌΠ΅ΡΠ°ΡΡ Π²ΡΠ°ΡΠ°ΡΠ΅Π»Ρ ΠΈ ΡΠΊΠ»Π°Π΄ΡΠ²Π°ΡΡ ΠΌΠ°ΡΡΡ. Π‘ ΠΏΠΎΠΌΠΎΡΡΡ ΠΌΠ°Π½ΠΎΠΌΠ΅ΡΡΠΎΠ² Π½Π° Π½Π°Π³Π½Π΅ΡΠ°ΡΠ΅Π»ΡΠ½ΠΎΠΉ Π»ΠΈΠ½ΠΈΠΈ ΠΌΠΎΠΆΠ½ΠΎ ΡΡΠ΄ΠΈΡΡ ΠΎ ΠΊΡΡΡΡΡΠ΅ΠΌ ΠΌΠΎΠΌΠ΅Π½ΡΠ΅ ΠΈ ΠΎΡΠ΅Π²ΠΎΠΉ Π½Π°Π³ΡΡΠ·ΠΊΠ΅ Π½Π° Π·Π°Π±ΠΎΠΉ. ΠΡΠ°ΡΠ°ΡΠ΅Π»Ρ ΠΏΡΠ΅Π΄ΡΡΠ°Π²Π»ΡΠ΅Ρ ΡΠΎΠ±ΠΎΠΉ ΡΡΠ΅Ρ ΡΠΊΠΎΡΠΎΡΡΠ½ΡΡ ΠΊΠΎΡΠΎΠ±ΠΊΡ Ρ ΡΠΈΠ»ΠΈΠ½Π΄ΡΠΈΡΠ΅ΡΠΊΠΎΠΉ ΠΏΡΡΠΌΠΎΠ·ΡΠ±ΠΎΠΉ ΠΏΠ΅ΡΠ΅Π΄Π°ΡΠ΅ΠΉ Π² ΡΡΠ°Π»ΡΠ½ΠΎΠΌ Π»ΠΈΡΠΎΠΌ ΠΊΠΎΡΠΏΡΡΠ΅. Π‘ ΠΏΡΠ»ΡΡΠ° ΡΠΏΡΠ°Π²Π»Π΅Π½ΠΈΡ ΠΌΠΎΠΆΠ½ΠΎ ΠΈΠ·ΠΌΠ΅Π½ΡΡΡ ΠΈ ΡΠ΅Π²Π΅ΡΡΠΈΡΠΎΠ²Π°ΡΡ Π½Π° ΠΊΠ°ΠΆΠ΄ΠΎΠΉ ΠΏΠ΅ΡΠ΅Π΄Π°ΡΠ΅ ΡΠ°ΡΡΠΎΡΡ Π²ΡΠ°ΡΠ΅Π½ΠΈΡ ΡΠΏΠΈΠ½Π΄Π΅Π»Ρ ΠΎΡ Π½ΡΠ»Ρ Π΄ΠΎ ΠΌΠ°ΠΊΡΠΈΠΌΡΠΌΠ° Π·Π° ΡΡΠ΅Ρ Π΄ΡΠΎΡΡΠ΅Π»ΠΈΡΠΎΠ²Π°Π½ΠΈΡ ΠΆΠΈΠ΄ΠΊΠΎΡΡΠΈ, ΠΏΠΎΠ΄Π²ΠΎΠ΄ΠΈΠΌΠΎΠΉ ΠΊ Π³ΠΈΠ΄ΡΠΎΠ΄Π²ΠΈΠ³Π°ΡΠ΅Π»Ρ Π²ΡΠ°ΡΠ°ΡΠ΅Π»Ρ. ΠΠ»Ρ Π±ΡΡΠ΅Π½ΠΈΡ Ρ ΠΏΡΠΎΠΌΡΠ²ΠΊΠΎΠΉ ΠΈ ΠΏΡΠΎΠ΄ΡΠ²ΠΊΠΎΠΉ ΡΠΏΠΈΠ½Π΄Π΅Π»Ρ Π²ΡΠΏΠΎΠ»Π½Π΅Π½ ΠΏΠΎΠ»ΡΠΌ. ΠΠ° Π²Π΅ΡΡ Π½ΠΈΠΉ ΠΊΠΎΠ½Π΅Ρ Π΅Π³ΠΎ Π½Π°ΡΠ°ΠΆΠ΅Π½ ΡΠ°Π»ΡΠ½ΠΈΠΊ-Π²Π΅ΡΡΠ»ΡΠ³ ΠΈ ΠΏΡΠΈΠΊΡΠ΅ΠΏΠ»Π΅Π½ ΠΊ ΠΊΡΡΡΠ΅ ΠΊΠΎΡΠΏΡΡΠ° Π²ΡΠ°ΡΠ°ΡΠ΅Π»Ρ. ΠΠ° Π½ΠΈΠΆΠ½ΠΈΠΉ ΠΊΠΎΠ½Π΅Ρ ΡΠΏΠΈΠ½Π΄Π΅Π»Ρ Π½Π° ΡΠ»ΠΈΡΠ΅Π²ΠΎΠΉ ΠΏΠΎΡΠ°Π΄ΠΊΠ΅ Π½Π°ΡΠ°ΠΆΠ΅Π½ ΡΠ°ΡΠ½ΠΈΡΠ½ΡΠΉ ΡΠ»Π΅Π²Π°ΡΠΎΡ ΠΈΠ»ΠΈ ΠΏΠ°ΡΡΠΎΠ½ (ΠΏΡΠΈ Π±ΡΡΠ΅Π½ΠΈΠΈ ΡΠ½Π΅ΠΊΠ°ΠΌΠΈ), ΠΊΠΎΡΠΎΡΡΠ΅ ΠΊΡΠ΅ΠΏΡΡΡΡ ΠΊ ΠΊΡΡΡΠΊΠ΅ ΠΊΠΎΡΠΏΡΡΠ° ΠΏΠΎΠ»ΡΡ ΠΎΠΌΡΡΠ°ΠΌΠΈ.
ΠΠ°ΡΡΠ° ΡΡΡΠ°Π½ΠΎΠ²ΠΊΠΈ — ΡΠ²Π°ΡΠ½Π°Ρ ΠΈΠ· ΡΡΡΠ±-ΡΠ²Π΅Π»Π»Π΅ΡΠΎΠ². ΠΠ½Π° ΠΎΠΏΠΈΡΠ°Π΅ΡΡΡ Π½Π° ΠΎΠΏΠΎΡΡ, ΡΡΡΠ°Π½ΠΎΠ²Π»Π΅Π½Π½ΡΠ΅ Π½Π° ΡΠ°ΠΌΠ΅, ΠΈ ΡΠ°ΡΠ½ΠΈΡΠ½ΠΎ Π½Π° Π½ΠΈΡ Π·Π°ΠΊΡΠ΅ΠΏΠ»Π΅Π½Π°. ΠΠΎΠ΄ΡΠ΅ΠΌ ΠΈ ΠΎΠΏΡΡΠΊΠ°Π½ΠΈΠ΅ ΠΌΠ°ΡΡΡ ΠΎΡΡΡΠ΅ΡΡΠ²Π»ΡΡΡΡΡ Π³ΠΈΠ΄ΡΠΎΡΠΈΠ»ΠΈΠ½Π΄ΡΠΎΠΌ.
Π‘ ΠΏΠΎΠΌΠΎΡΡΡ ΡΡΡΠ°Π½ΠΎΠ²ΠΊΠΈ Π£Π Π-2Π2 ΠΌΠΎΠΆΠ½ΠΎ Π±ΡΡΠΈΡΡ Ρ ΠΎΡΠΈΡΡΠΊΠΎΠΉ Π·Π°Π±ΠΎΡ ΠΏΡΠΎΠΌΡΠ²ΠΎΡΠ½ΠΎΠΉ ΠΆΠΈΠ΄ΠΊΠΎΡΡΡΡ ΠΈΠ»ΠΈ ΠΏΡΠΎΠ΄ΡΠ²ΠΊΠΎΠΉ Π·Π°Π±ΠΎΡ, Π΄Π»Ρ ΡΠ΅Π³ΠΎ Π½Π° ΡΡΡΠ°Π½ΠΎΠ²ΠΊΠ΅ ΠΌΠΎΠ½ΡΠΈΡΡΠ΅ΡΡΡ Π±ΡΡΠΎΠ²ΠΎΠΉ Π½Π°ΡΠΎΡ ΠΈΠ»ΠΈ ΠΊΠΎΠΌΠΏΡΠ΅ΡΡΠΎΡ, Π° Π² Π±Π»Π°Π³ΠΎΠΏΡΠΈΡΡΠ½ΡΡ ΡΡΠ»ΠΎΠ²ΠΈΡΡ ΠΌΠΎΠΆΠ½ΠΎ Π±ΡΡΠΈΡΡ ΡΠ½Π΅ΠΊΠΎΠ²ΡΠΌ ΡΠΏΠΎΡΠΎΠ±ΠΎΠΌ. Π’Π΅Ρ Π½ΠΈΡΠ΅ΡΠΊΠ°Ρ Ρ Π°ΡΠ°ΠΊΡΠ΅ΡΠΈΡΡΠΈΠΊΠ° Π±ΡΡΠΎΠ²ΠΎΠΉ ΡΡΡΠ°Π½ΠΎΠ²ΠΊΠΈ ΠΏΡΠΈΠ²Π΅Π΄Π΅Π½Π° Π² ΡΠ°Π±Π». 4.
Π’Π°Π±Π»ΠΈΡΠ° 4. Π’Π΅Ρ Π½ΠΈΡΠ΅ΡΠΊΠ°Ρ Ρ Π°ΡΠ°ΠΊΡΠ΅ΡΠΈΡΡΠΈΠΊΠ° Π±ΡΡΠΎΠ²ΠΎΠΉ ΡΡΡΠ°Π½ΠΎΠ²ΠΊΠΈ Π£Π Π-2Π2
Β Β
ΠΠ°ΡΠ°ΠΌΠ΅ΡΡΡ | ΠΠ½Π°ΡΠ΅Π½ΠΈΡ ΠΏΠ°ΡΠ°ΠΌΠ΅ΡΡΠΎΠ² |
ΠΠ»ΡΠ±ΠΈΠ½Π° Π±ΡΡΠ΅Π½ΠΈΡ, ΠΌ, ΠΏΡΠΈ Π΄ΠΈΠ°ΠΌΠ΅ΡΡΠ΅ ΡΠΊΠ²Π°ΠΆΠΈΠ½, ΠΌΠΌ: Β Β Β Β 118 Ρ ΠΏΡΠΎΠΌΡΠ²ΠΊΠΎΠΉΒ Β Β Β Β Β 93 Ρ ΠΏΡΠΎΠΌΡΠ²ΠΊΠΎΠΉΒ Β Β Β Β Β 135 Ρ ΠΏΡΠΎΠ΄ΡΠ²ΠΊΠΎΠΉΒ Β Β Β Β Β 135 ΡΠ½Π΅ΠΊΠ°ΠΌΠΈ | 100 200 30 30 |
ΠΠ°ΡΠ°Π»ΡΠ½ΡΠΉ Π΄ΠΈΠ°ΠΌΠ΅ΡΡ ΡΠΊΠ²Π°ΠΆΠΈΠ½Ρ, ΠΌΠΌ | 190 |
ΠΠΈΠ°ΠΌΠ΅ΡΡ Π±ΡΡΠΈΠ»ΡΠ½ΡΡ ΡΡΡΠ±, ΠΌΠΌ | 60,3 |
Π§Π°ΡΡΠΎΡΠ° Π²ΡΠ°ΡΠ΅Π½ΠΈΡ, ΠΎΠ±/ΠΌΠΈΠ½ | 140; 225; 325 |
ΠΡΡΡΡΡΠΈΠ΅ ΠΌΠΎΠΌΠ΅Π½ΡΡ, ΠΏΠ΅ΡΠ΅Π΄Π°Π²Π°Π΅ΠΌΡΠ΅ Π²ΡΠ°ΡΠ°ΡΠ΅Π»Π΅ΠΌ, Π . ΠΌ | 1580; 990; 690 |
Π’ΠΈΠΏ ΠΏΠΎΠ΄Π°ΡΠΈ | ΠΠ°Π½Π°ΡΠ½Π°Ρ Ρ ΠΏΡΠΈΠ²ΠΎΠ΄ΠΎΠΌ ΠΎΡ Π³ΠΈΠ΄ΡΠΎΡΠΈΠ»ΠΈΠ½Π΄ΡΠ° |
Π‘ΠΊΠΎΡΠΎΡΡΡ ΠΏΠΎΠ΄Π°ΡΠΈ, ΠΌ/Ρ:Β Π²Π²Π΅ΡΡ Β Β Β Β Β Β Β Β Β Β Β Β Β Β Β Β Β Β Β Β Β Β Β Β Β Β Β Β Β Β Β Β Β Β Β Β Β Β Π²Π½ΠΈΠ· | 0-0,6 0-1,1 |
ΠΠ»ΠΈΠ½Π° Ρ ΠΎΠ΄Π° ΠΏΠΎΠ΄Π°ΡΠΈ, ΠΌΠΌ | 5200 |
ΠΡΡΠ·ΠΎΠΏΠΎΠ΄ΡΠ΅ΠΌΠ½ΠΎΡΡΡ, ΠΊΠ | 40 |
ΠΡΠΈΠ½ΡΠ΄ΠΈΡΠ΅Π»ΡΠ½Π°Ρ Π½Π°Π³ΡΡΠ·ΠΊΠ° Π½Π° ΠΈΠ½ΡΡΡΡΠΌΠ΅Π½Ρ, ΠΊΠ | 26 |
ΠΠ°ΡΡΠ°: Β Β Β Β Β Β Π²ΡΡΠΎΡΠ° ΠΌΠ°ΡΡΡ, ΠΌΠΌ Β Β Β Β Β Π΄Π»ΠΈΠ½Π° Π±ΡΡΠΈΠ»ΡΠ½ΡΡ ΡΡΡΠ±, ΠΌΠΌ Β Β Β Β Β ΡΠ³ΠΎΠ» Π½Π°ΠΊΠ»ΠΎΠ½Π° ΠΌΠ°ΡΡΡ ΠΎΡ Π³ΠΎΡΠΈΠ·ΠΎΠ½ΡΠ°Π»ΠΈ, Π³ΡΠ°Π΄ΡΡ | Π‘Π²Π°ΡΠ½Π°Ρ ΠΈΠ· ΡΡΡΠ± 8370 4500 90 |
ΠΠΎΡΠ½ΠΎΡΡΡ, ΠΏΠ΅ΡΠ΅Π΄Π°Π²Π°Π΅ΠΌΠ°Ρ ΡΠ°Π·Π΄Π°ΡΠΎΡΠ½ΠΎΠΉ ΠΊΠΎΡΠΎΠ±ΠΊΠΎΠΉ Π°Π²ΡΠΎΠΌΠΎΠ±ΠΈΠ»Ρ Π΄Π»Ρ ΠΏΡΠΈΠ²ΠΎΠ΄Π° ΠΌΠ°ΡΠ»ΠΎΡΡΠ°Π½ΡΠΈΠΈ ΠΈ Π±ΡΡΠΎΠ²ΠΎΠ³ΠΎ Π½Π°ΡΠΎΡΠ°, ΠΊΠΡ | 44 |
ΠΡΡΠΎΠ²ΠΎΠΉ Π½Π°ΡΠΎΡ: Β Β Β Β Β ΠΏΠΎΠ΄Π°ΡΠ°, Π»/Ρ Β Β Β Β Β Π΄Π°Π²Π»Π΅Π½ΠΈΠ΅, ΠΠΠ° | ΠΠ-32 10 4,0 |
ΠΠΎΠΌΠΏΡΠ΅ΡΡΠΎΡ: Β Β Β Β Β ΠΏΠΎΠ΄Π°ΡΠ°, ΠΌΒ³/ΠΌΠΈΠ½ Β Β Β Β Β Π΄Π°Π²Π»Π΅Π½ΠΈΠ΅, ΠΠΠ° | ΠΠ’-7 6 0,45 |
ΠΠ°Π±Π°ΡΠΈΡΡ Π² ΡΡΠ°Π½ΡΠΏΠΎΡΡΠ½ΠΎΠΌ ΠΏΠΎΠ»ΠΎΠΆΠ΅Π½ΠΈΠΈ, ΠΌΠΌ | 8820Ρ 2450Ρ 3370 |
ΠΠ°ΡΡΠ° ΡΡΡΠ°Π½ΠΎΠ²ΠΊΠΈ, ΠΊΠ³ | 10080 |
Π ΡΠΎΠΌ ΡΠΈΡΠ»Π΅ ΠΌΠΎΠ½ΡΠΈΡΡΠ΅ΠΌΠΎΠ³ΠΎ ΠΎΠ±ΠΎΡΡΠ΄ΠΎΠ²Π°Π½ΠΈΡ, ΠΊΠ³ | 4370 |

Π ΠΈΡ. 11. ΠΡΡΠΎΠ²Π°Ρ ΡΡΡΠ°Π½ΠΎΠ²ΠΊΠ° Π£Π Π-2Π2.
Π° — Π²ΠΈΠ΄ ΡΠ±ΠΎΠΊΡ;Π±— Π²ΠΈΠ΄ ΡΠ²Π΅ΡΡ Ρ;1— ΠΊΠΎΡΠΎΠ±ΠΊΠ° ΠΎΡΠ±ΠΎΡΠ° ΠΌΠΎΡΠ½ΠΎΡΡΠΈ;2 — ΡΠΈΠ»ΠΈΠ½Π΄Ρ ΠΏΠΎΠ΄ΡΠ΅ΠΌΠ° ΠΌΠ°ΡΡΡ;3 — Π²ΡΠ°ΡΠ°ΡΠ΅Π»Ρ;4 — ΠΏΡΠ»ΡΡ ΡΠΏΡΠ°Π²Π»Π΅Π½ΠΈΡ;5 — ΡΠ»Π΅Π²Π°ΡΠΎΡ Π΄Π»Ρ ΡΡΡΠ± ΠΈ ΠΏΠ°ΡΡΠΎΠ½ Π΄Π»Ρ ΡΠ½Π΅ΠΊΠΎΠ²;6 — Π°Π²ΡΠΎΠΌΠΎΠ±ΠΈΠ»Ρ;7 — ΠΌΠ°ΡΡΠ°;8 — ΡΠ°Π»Π΅Π²Π°Ρ ΡΠΈΡΡΠ΅ΠΌΠ°;9 — ΡΠ°ΠΌΠ°;10 — ΡΡΡΠ°Π½ΠΎΠ²ΠΊΠΈ Π±ΡΡΠΎΠ²ΠΎΠ³ΠΎ Π½Π°ΡΠΎΡΠ° ΠΈ ΠΊΠΎΠΌΠΏΡΠ΅ΡΡΠΎΡΠ°;11— Π³ΠΈΠ΄ΡΠΎΠ΄ΠΎΠΌΠΊΡΠ°Ρ ΠΏΠΎΠ΄Π°ΡΠΈ;12— ΡΠ°Π·Π΄Π°ΡΠΎΡΠ½Π°Ρ ΠΊΠΎΡΠΎΠ±ΠΊΠ°;13 — ΠΎΠ±Π²ΡΠ·ΠΊΠ° Π³ΠΈΠ΄ΡΠΎΡΠΈΡΡΠ΅ΠΌΡ;14— ΠΊΠ°ΡΠ΅ΡΠΊΠ°;15 — ΠΎΠΏΠΎΡΠ½ΡΠΉ Π΄ΠΎΠΌΠΊΡΠ°Ρ.
studfiles.net
Π£Π Π2Π2 β ΠΡΡΠΎΠΠΈΠΊΠΈ
ΠΡΡΠΎΠ²Π°Ρ ΡΡΡΠ°Π½ΠΎΠ²ΠΊΠ° Π£Π Π2Π2Π£Π Π-2Π2 — ΡΡΠΎ ΡΡΡΠ°Π½ΠΎΠ²ΠΊΠ° ΡΠ°Π·Π²Π΅Π΄ΠΎΡΠ½ΠΎΠ³ΠΎ Π±ΡΡΠ΅Π½ΠΈΡ ΡΠΆΠ΅ ΡΡΠ°Π²ΡΠ°Ρ Π»Π΅Π³Π΅Π½Π΄ΠΎΠΉ ΡΡΠ΅Π΄ΠΈ Π±ΡΡΠΎΠ²ΠΈΠΊΠΎΠ². ΠΡΠΎΡ ΡΡΠ°Π½ΠΎΠΊ Ρ Π³ΠΈΠ΄ΡΠ°Π²Π»ΠΈΡΠ΅ΡΠΊΠΈΠΌ ΠΏΠΎΠ΄Π²ΠΈΠΆΠ½ΡΠΌ Π²ΡΠ°ΡΠ°ΡΠ΅Π»Π΅ΠΌ, ΠΏΡΠ΅Π΄Π½Π°Π·Π½Π°ΡΠ΅Π½ΡΠΉ Π΄Π»Ρ Π±ΡΡΠ΅Π½ΠΈΡ ΠΏΠΎΠΈΡΠΊΠΎΠ²ΡΡ ΡΠΊΠ²Π°ΠΆΠΈΠ½, ΠΈ Π³Π΅ΠΎΠ»ΠΎΠ³ΠΎΡΠ°Π·Π²Π΅Π΄ΠΊΠΈ. ΠΠΎΠ»ΡΡΠΎΠ΅ ΠΊΠΎΠ»ΠΈΡΠ΅ΡΡΠ²ΠΎ ΡΡΠΈΡ ΡΡΠ°Π½ΠΊΠΎΠ² ΠΎΠΏΡΠ΅Π΄Π΅Π»ΠΈΠ»ΠΎ ΡΠ°Π·Π²ΠΈΡΡΡ ΡΠ΅ΠΌΠΎΠ½ΡΠ½ΡΡ Π±Π°Π·Ρ. Π ΡΠ΅Π½ΡΡΠ°Π»ΡΠ½ΡΡ ΡΠ΅Π³ΠΈΠΎΠ½Π°Ρ ΡΡΡΠ°Π½Ρ ΠΎΠ½ ΠΏΠΎΠ»ΡΠ·ΡΠ΅ΡΡΡ Π±Π΅ΡΠ΅Π½Π½ΡΠΌ ΡΠΏΡΠΎΡΠΎΠΌ Ρ Π±ΡΡΠΈΠ»ΡΡΠΈΠΊΠΎΠ² Π²ΠΎΠ΄Ρ. Π Π·Π°Π²ΠΈΡΠΈΠΌΠΎΡΡΠΈ ΠΎΡ ΠΊΠ²Π°Π»ΠΈΡΠΈΠΊΠ°ΡΠΈΠΈ Π±ΡΡΠΎΠ²ΠΎΠ³ΠΎ ΠΌΠ°ΡΡΠ΅ΡΠ°, Π½Π° Π½Π΅ΠΌ Π΄Π΅Π»Π°ΡΡ Π΄Π°ΠΆΠ΅ ΠΏΡΠΎΠΌΡΡΠ»Π΅Π½Π½ΡΠ΅ ΡΠΊΠ²Π°ΠΆΠΈΠ½Ρ! ΠΠ°Π½Π½Π°Ρ Π±ΡΡΠΎΠ²Π°Ρ ΡΡΡΠ°Π½ΠΎΠ²ΠΊΠ° ΠΊΠΎΠΌΠΏΠ»Π΅ΠΊΡΡΠ΅ΡΡΡ ΠΊΠ°ΠΊ Π±ΡΡΠΎΠ²ΡΠΌΠΈ Π½Π°ΡΠΎΡΠ°ΠΌΠΈ Π΄Π»Ρ Π±ΡΡΠ΅Π½ΠΈΡ Ρ ΠΏΡΠΎΠΌΡΠ²ΠΊΠΎΠΉ, ΡΠ°ΠΊ ΠΈ ΠΊΠΎΠΌΠΏΡΠ΅ΡΡΠΎΡΠΎΠΌ Π΄Π»Ρ Π±ΡΡΠ΅Π½ΠΈΡ Ρ ΠΏΡΠΎΠ΄ΡΠ²ΠΊΠΎΠΉ Π²ΠΎΠ·Π΄ΡΡ ΠΎΠΌ. ΠΠ»Π°ΡΡΠΈΡΠ΅ΡΠΊΠΈΠΉ Π²Π°ΡΠΈΠ°Π½Ρ Π±ΡΡΠ΅Π½ΠΈΡ Π½Π° Π²ΡΠΎΡΠΎΠΉ Π²ΠΎΠ΄ΠΎΠ½ΠΎΡΠ½ΡΠΉ Π³ΠΎΡΠΈΠ·ΠΎΠ½Ρ (Π½Π° ΠΈΠ·Π²Π΅ΡΡΠ½ΡΠΊ) Π² ΠΠΎΠ΄ΠΌΠΎΡΠΊΠΎΠ²ΡΠ΅ β ΡΠ½Π°ΡΠ°Π»Π° Π±ΡΡΠΈΡΡΡ ΡΠΊΠ²Π°ΠΆΠΈΠ½Π° Ρ ΠΏΡΠΎΠΌΡΠ²ΠΊΠΎΠΉ Π΄ΠΎ ΠΈΠ·Π²Π΅ΡΡΠ½ΡΠΊΠΎΠ²ΠΎΠ³ΠΎ ΡΠ»ΠΎΡ, Π·Π°ΡΠ΅ΠΌ ΡΡΠ°Π²ΠΈΡΡΡ ΠΏΠ½Π΅Π²ΠΌΠΎΡΠ΄Π°ΡΠ½ΠΈΠΊ, ΠΏΡΠΎΡ ΠΎΠ΄ΠΈΡΡΡ ΡΠ»ΠΎΠΉ ΠΈΠ·Π²Π΅ΡΡΠ½ΡΠΊΠ° β ΠΈ ΡΠΊΠ²Π°ΠΆΠΈΠ½Π° Π½Π° Π²ΠΎΠ΄Ρ ΠΏΠΎΡΡΠΈ Π³ΠΎΡΠΎΠ²Π°.
Π’Π°ΠΊΠΆΠ΅ Π½Π° Π£Π Π-2Π°2 Π²ΠΎΠ·ΠΌΠΎΠΆΠ½ΠΎ Π±ΡΡΠ΅Π½ΠΈΠ΅ ΡΠ½Π΅ΠΊΠ°ΠΌΠΈ Π½Π° Π³Π»ΡΠ±ΠΈΠ½Ρ Π΄ΠΎ 30 ΠΌΠ΅ΡΡΠΎΠ² (ΠΡΡΡ ΡΠ»ΡΡΠ°ΠΈ Π±ΡΡΠ΅Π½ΠΈΡ ΡΠ²ΡΡΠ΅ 50ΠΌΠ΅ΡΡΠΎΠ² Π³Π»ΡΠ±ΠΈΠ½ΠΎΠΉ )
Π£ΡΡΠ°Π½ΠΎΠ²ΠΊΠ° ΡΠ°Π·Π²Π΅Π΄ΠΎΡΠ½ΠΎΠ³ΠΎ Π±ΡΡΠ΅Π½ΠΈΡ Π£Π Π-2Π2 ΡΠΏΡΠΎΠ΅ΠΊΡΠΈΡΠΎΠ²Π°Π½Π° Π΄Π»Ρ Π±ΡΡΠ΅Π½ΠΈΡ Π²ΡΠ°ΡΠ°ΡΠ΅Π»ΡΠ½ΡΠΌ ΡΠΏΠΎΡΠΎΠ±ΠΎΠΌ Π³Π΅ΠΎΡΠΈΠ·ΠΈΡΠ΅ΡΠΊΠΈΡ ΡΠΊΠ²Π°ΠΆΠΈΠ½ Ρ ΠΏΡΠΎΠΌΡΠ²ΠΊΠΎΠΉ (ΠΎΡΠΈΡΡΠΊΠΎΠΉ Π·Π°Π±ΠΎΡ ΡΠΊΠ²Π°ΠΆΠΈΠ½Ρ Π±ΡΡΠΎΠ²ΡΠΌ ΡΠ°ΡΡΠ²ΠΎΡΠΎΠΌ — ΠΏΡΠΈ ΠΏΠΎΠΌΠΎΡΠΈ Π±ΡΡΠΎΠ²ΠΎΠ³ΠΎ Π³ΡΡΠ·Π΅Π²ΠΎΠ³ΠΎ Π½Π°ΡΠΎΡΠ°), ΠΏΡΠΎΠ΄ΡΠ²ΠΊΠΎΠΉ (ΠΎΡΠΈΡΡΠΊΠΎΠΉ Π·Π°Π±ΠΎΡ ΡΠΊΠ²Π°ΠΆΠΈΠ½Ρ ΡΠΆΠ°ΡΡΠΌ Π²ΠΎΠ·Π΄ΡΡ ΠΎΠΌ — ΠΏΡΠΈ ΠΏΠΎΠΌΠΎΡΠΈ ΠΊΠΎΠΌΠΏΡΠ΅ΡΡΠΎΡΠ°) ΠΈΠ»ΠΈ ΡΠ½Π΅ΠΊΠΎΠ²ΠΎΠ³ΠΎ Π±ΡΡΠ΅Π½ΠΈΡ.
Π£ΡΡΠ°Π½ΠΎΠ²ΠΊΠ° ΠΌΠΎΠΆΠ΅Ρ Π±ΡΡΡ ΡΠΌΠΎΠ½ΡΠΈΡΠΎΠ²Π°Π½Π° Π½Π° ΡΠ°ΡΡΠΈ Π°Π²ΡΠΎΠΌΠΎΠ±ΠΈΠ»Π΅ΠΉ ΠΏΠΎΠ²ΡΡΠ΅Π½Π½ΠΎΠΉ ΠΏΡΠΎΡ ΠΎΠ΄ΠΈΠΌΠΎΡΡΠΈ ΡΠ°ΠΊΠΈΡ ΠΊΠ°ΠΊ Π£Π ΠΠ, ΠΠΠ, ΠΠΠΠΠ, ΠΠΠ£Π , Π° ΡΠ°ΠΊΠΆΠ΅ Π΄ΡΡΠ³ΠΈΡ ΠΌΠ°ΡΠΎΠΊ; Π½Π° Π³ΡΡΠ΅Π½ΠΈΡΠ½ΡΡ ΡΠ°ΡΡΠΈ ΠΠ’ΠΠΠ£, Π’Π’-4, ΠΠΠ-71 ΠΈ Π΄ΡΡΠ³ΠΈΡ . ΠΡΡΠΎΠ²Π°Ρ ΡΡΡΠ°Π½ΠΎΠ²ΠΊΠ° Π·Π°ΠΏΠΈΡΠ°Π½Π° ΠΎΡ ΠΠΠ — ΠΊΠΎΡΠΎΠ±ΠΊΠΈ ΠΎΡΠ±ΠΎΡΠ° ΠΌΠΎΡΠ½ΠΎΡΡΠΈ ΠΎΡ Π΄Π²ΠΈΠ³Π°ΡΠ΅Π»Ρ ΡΡΠ°Π½ΡΠΏΠΎΡΡΠ½ΠΎΠ³ΠΎ ΡΡΠ΅Π΄ΡΡΠ²Π°.
Π‘ΠΎΡΡΠ°Π²Π»ΡΡΡΠΈΠ΅ ΠΠ»Π΅ΠΌΠ΅Π½ΡΡΠΡΡΠΎΠ²Π°Ρ ΡΡΡΠ°Π½ΠΎΠ²ΠΊΠ° Π£Π Π-2Π°2 ΡΠΎΡΡΠΎΠΈΡ ΠΈΠ· ΡΠ°ΠΌΡ, Π½Π° ΠΊΠΎΡΠΎΡΠΎΠΉ ΡΠΌΠΎΠ½ΡΠΈΡΠΎΠ²Π°Π½Π° ΠΌΠ°ΡΡΠ° Ρ ΠΏΠΎΠ΄Π²ΠΈΠΆΠ½ΡΠΌ Π³ΠΈΠ΄ΡΠ°Π²Π»ΠΈΡΠ΅ΡΠΊΠΈΠΌ Π²ΡΠ°ΡΠ°ΡΠ΅Π»Π΅ΠΌ, Π³ΠΈΠ΄ΡΠΎΠ΄ΠΎΠΌΠΊΡΠ°Ρ ΠΏΠ΅ΡΠ΅ΠΌΠ΅ΡΠ΅Π½ΠΈΡ Π²ΡΠ°ΡΠ°ΡΠ΅Π»Ρ, Π³ΠΈΠ΄ΡΠ°Π²Π»ΠΈΡΠ΅ΡΠΊΠΈΠ΅ Π΄ΠΎΠΌΠΊΡΠ°ΡΡ Π΄Π»Ρ ΠΎΠΏΠΎΡΠ° Π±ΡΡΠΎΠ²ΠΎΠΉ ΡΡΡΠ°Π½ΠΎΠ²ΠΊΠΈ Π½Π°Π·Π΅ΠΌΠ»Π΅, Π³ΠΈΠ΄ΡΠ°Π²Π»ΠΈΡΠ΅ΡΠΊΠΈΠΉ Π΄ΠΎΠΌΠΊΡΠ°Ρ ΠΏΠΎΠ΄Π½ΠΈΠΌΠ°ΡΡΠΈΠΉ ΠΌΠ°ΡΡΡ, ΡΠ°Π·Π΄Π°ΡΠΎΡΠ½Π°Ρ ΠΊΠΎΡΠΎΠ±ΠΊΠ°, Π³ΠΈΠ΄ΡΠ°Π²Π»ΠΈΡΠ΅ΡΠΊΠ°Ρ ΡΠΈΡΡΠ΅ΠΌΠ°, ΠΏΡΠ»ΡΡ ΡΠΏΡΠ°Π²Π»Π΅Π½ΠΈΡ Π±ΡΡΠΎΠ²ΠΎΠΉ ΡΡΡΠ°Π½ΠΎΠ²ΠΊΠΎΠΉ. ΡΠ°ΠΊΠΆΠ΅ Π½Π° ΠΏΠ»Π°ΡΡΠΎΡΠΌΠ΅ Π±ΡΡΠΎΠ²ΠΎΠΉ ΡΡΡΠ°Π½ΠΎΠ²ΠΊΠΈ Π£Π Π-2Π°2 ΡΠΌΠΎΠ½ΡΠΈΡΠΎΠ²Π°Π½Ρ Π±ΡΡΠΎΠ²ΠΎΠΉ Π½Π°ΡΠΎΡ ΠΈΠ»ΠΈ ΠΊΠΎΠΌΠΏΡΠ΅ΡΡΠΎΡ, Π² Π½Π΅ΠΊΠΎΡΠΎΡΡΡ ΠΌΠΎΠ΄ΠΈΡΠΈΠΊΠ°ΡΠΈΡΡ Π΅ΡΡΡ Π΄Π²Π° Π½Π°ΡΠΎΡΠ°, Π»ΠΈΠ±ΠΎ Π΄Π²Π° ΠΊΠΎΠΌΠΏΡΠ΅ΡΡΠΎΡΠ°, Π΅ΡΡΡ Π½Π°ΡΠΎΡ ΠΈ ΠΊΠΎΠΌΠΏΡΠ΅ΡΡΠΎΡ ΠΈ Π΄Π°ΠΆΠ΅ Π½Π°ΡΠΎΡ ΠΈ Π΄Π²Π° ΠΊΠΎΠΌΠΏΡΠ΅ΡΡΠΎΡΠ° Π½Π° ΠΎΠ΄Π½ΠΎΠΉ Π±ΡΡΠΎΠ²ΠΎΠΉ ΡΡΡΠ°Π½ΠΎΠ²ΠΊΠ΅ ΡΡΠ±-2Π°2.
Π’Π°Π±Π»ΠΈΡΠ° 1. Π’Π΅Ρ Π½ΠΈΡΠ΅ΡΠΊΠ°Ρ Ρ Π°ΡΠ°ΠΊΡΠ΅ΡΠΈΡΡΠΈΠΊΠ° Π±ΡΡΠΎΠ²ΠΎΠΉ ΡΡΡΠ°Π½ΠΎΠ²ΠΊΠΈ Π£Π Π-2Π2
| ΠΠ°ΡΠ°ΠΌΠ΅ΡΡΡ | ΠΠ½Π°ΡΠ΅Π½ΠΈΡ ΠΏΠ°ΡΠ°ΠΌΠ΅ΡΡΠΎΠ² |
| ΠΠ»ΡΠ±ΠΈΠ½Π° Π±ΡΡΠ΅Π½ΠΈΡ, ΠΌ, ΠΏΡΠΈ Π΄ΠΈΠ°ΠΌΠ΅ΡΡΠ΅ ΡΠΊΠ²Π°ΠΆΠΈΠ½, ΠΌΠΌ:
| 100 |
| ΠΠ°ΡΠ°Π»ΡΠ½ΡΠΉ Π΄ΠΈΠ°ΠΌΠ΅ΡΡ ΡΠΊΠ²Π°ΠΆΠΈΠ½Ρ, ΠΌΠΌ | 190 |
| ΠΠΈΠ°ΠΌΠ΅ΡΡ Π±ΡΡΠΈΠ»ΡΠ½ΡΡ ΡΡΡΠ±, ΠΌΠΌ | 60.3, 63.5 |
| Π§Π°ΡΡΠΎΡΠ° Π²ΡΠ°ΡΠ΅Π½ΠΈΡ, ΠΎΠ±/ΠΌΠΈΠ½ | 140; 225; 325 |
| ΠΡΡΡΡΡΠΈΠ΅ ΠΌΠΎΠΌΠ΅Π½ΡΡ, ΠΏΠ΅ΡΠ΅Π΄Π°Π²Π°Π΅ΠΌΡΠ΅ Π²ΡΠ°ΡΠ°ΡΠ΅Π»Π΅ΠΌ, Π . ΠΌ | 1580; 990; 690 |
| Π’ΠΈΠΏ ΠΏΠΎΠ΄Π°ΡΠΈ | ΠΠ°Π½Π°ΡΠ½Π°Ρ Ρ ΠΏΡΠΈΠ²ΠΎΠ΄ΠΎΠΌ ΠΎΡ Π³ΠΈΠ΄ΡΠΎΡΠΈΠ»ΠΈΠ½Π΄ΡΠ° |
| Π‘ΠΊΠΎΡΠΎΡΡΡ ΠΏΠΎΠ΄Π°ΡΠΈ, ΠΌ/Ρ: Π²Π²Π΅ΡΡ
| 0-0,6 |
| ΠΠ»ΠΈΠ½Π° Ρ ΠΎΠ΄Π° ΠΏΠΎΠ΄Π°ΡΠΈ, ΠΌΠΌ | 5200 |
| ΠΡΡΠ·ΠΎΠΏΠΎΠ΄ΡΠ΅ΠΌΠ½ΠΎΡΡΡ, ΠΊΠ | 40 |
| ΠΡΠΈΠ½ΡΠ΄ΠΈΡΠ΅Π»ΡΠ½Π°Ρ Π½Π°Π³ΡΡΠ·ΠΊΠ° Π½Π° ΠΈΠ½ΡΡΡΡΠΌΠ΅Π½Ρ, ΠΊΠ | 26 |
| ΠΠ°ΡΡΠ°:
| Π‘Π²Π°ΡΠ½Π°Ρ ΠΈΠ· ΡΡΡΠ±
|
| ΠΠΎΡΠ½ΠΎΡΡΡ, ΠΏΠ΅ΡΠ΅Π΄Π°Π²Π°Π΅ΠΌΠ°Ρ ΡΠ°Π·Π΄Π°ΡΠΎΡΠ½ΠΎΠΉ ΠΊΠΎΡΠΎΠ±ΠΊΠΎΠΉ Π°Π²ΡΠΎΠΌΠΎΠ±ΠΈΠ»Ρ Π΄Π»Ρ ΠΏΡΠΈΠ²ΠΎΠ΄Π° ΠΌΠ°ΡΠ»ΠΎΡΡΠ°Π½ΡΠΈΠΈ ΠΈ Π±ΡΡΠΎΠ²ΠΎΠ³ΠΎ Π½Π°ΡΠΎΡΠ°, ΠΊΠΡ | 44 |
| ΠΡΡΠΎΠ²ΠΎΠΉ Π½Π°ΡΠΎΡ:
| ΠΠ-32
|
| ΠΠΎΠΌΠΏΡΠ΅ΡΡΠΎΡ:
| ΠΠ’-7
|
| ΠΠ°Π±Π°ΡΠΈΡΡ Π² ΡΡΠ°Π½ΡΠΏΠΎΡΡΠ½ΠΎΠΌ ΠΏΠΎΠ»ΠΎΠΆΠ΅Π½ΠΈΠΈ, ΠΌΠΌ | 8820Ρ 2450Ρ 3370 |
| ΠΠ°ΡΡΠ° ΡΡΡΠ°Π½ΠΎΠ²ΠΊΠΈ, ΠΊΠ³ | 10080 |
| Π ΡΠΎΠΌ ΡΠΈΡΠ»Π΅ ΠΌΠΎΠ½ΡΠΈΡΡΠ΅ΠΌΠΎΠ³ΠΎ ΠΎΠ±ΠΎΡΡΠ΄ΠΎΠ²Π°Π½ΠΈΡ, ΠΊΠ³ | 4370 |
ΠΡΠΎΠΈΠ·Π²ΠΎΠ΄ΠΈΡΠ΅Π»ΠΈ Π£Π Π2Π2
- ΠΠ°Π²ΠΎΠ΄ ΠΈΠΌΠ΅Π½ΠΈ ΠΠΎΡΠΎΠ²ΡΠΊΠΎΠ³ΠΎ
- Π‘ΠΏΠ΅ΡΠ±ΡΡΠΌΠ°Ρ
- ΠΠΠΠΠ’
- ΠΠΠ (ΠΠΊΠ°ΡΠ΅ΡΠΈΠ½Π±ΡΡΠ³)
- ΠΠ°Π²ΠΎΠ΄ Π±ΡΡΠΎΠ²ΠΎΠΉ ΡΠ΅Ρ Π½ΠΈΠΊΠΈ (Π‘Π°Π½ΠΊΡ-ΠΠ΅ΡΠ΅ΡΠ±ΡΡΠ³)
- Π£ΡΠ°Π»Π‘ΠΏΠ΅ΡΠΠ²ΡΠΎ
ΠΠΎΠ΄ΠΈΡΠΈΠΊΠ°ΡΠΈΠΈ Π£Π Π2Π2
- Π£Π Π-2Π3
- Π£Π Π-1Π2
- Π£Π Π-4Π’
- Π£Π Π-2ΠΠ’
- Π£Π Π-2Π2Π
- Π£Π Π-51
- Π£Π Π-2Π
- Π£Π Π-2Π-2Π’
- Π£Π Π-12.ZBT
- Π£Π Π-10-2Π¨
- Π£Π Π-5ΠΠ
Π‘Π²ΠΎΠ΄Π½Π°Ρ ΡΠ°Π±Π»ΠΈΡΠ° ΠΏΡΠΎΠΈΠ·Π²ΠΎΠ΄ΠΈΡΠ΅Π»Π΅ΠΉ ΠΌΠΎΠ΄ΠΈΡΠΈΠΊΠ°ΡΠΈΠΉ
sibzno.com
Π£Π Π 2Π2 ΠΈ Π£Π Π 2Π3

ΠΠΎΡΠ½ΡΠ΅ ΠΈ Π½Π°Π΄Π΅ΠΆΠ½ΡΠ΅ Π±ΡΡΠΎΠ²ΡΠ΅ ΡΡΡΠ°Π½ΠΎΠ²ΠΊΠΈ Π½Π° Π±Π°Π·Π΅ Π³ΡΡΠ·ΠΎΠ²ΠΎΠ³ΠΎ ΡΠ°ΡΡΠΈ Π£ΡΠ°Π» ΡΡΠΈΡΠ°ΡΡΡΡ ΡΠ΅Π΄Π΅Π²ΡΠΎΠΌ ΡΠΎΠ²Π΅ΡΡΠΊΠΎΠΉ ΠΈ ΡΠΎΡΡΠΈΠΉΡΠΊΠΎΠΉ ΡΠ΅Ρ Π½ΠΈΠΊΠΈ. ΠΠ½ΠΈ ΡΠ²Π»ΡΡΡΡΡ Π½Π°ΠΈΠ±ΠΎΠ»Π΅Π΅ ΡΠ΄Π°ΡΠ½ΡΠΌ ΡΠΈΠ½ΡΠ΅Π·ΠΎΠΌ Π²Π΅Π·Π΄Π΅Ρ ΠΎΠ΄Π½ΠΎΠ³ΠΎ Π°Π²ΡΠΎΠΌΠΎΠ±ΠΈΠ»Ρ Ρ Π±ΡΡΠΎΠ²ΡΠΌΠΈ Π²ΠΎΠ·ΠΌΠΎΠΆΠ½ΠΎΡΡΡΠΌΠΈ ΡΠ°ΠΌΠΎΠ³ΠΎ Π°ΠΏΠΏΠ°ΡΠ°ΡΠ°, ΡΠ΅Π³ΡΠ»ΡΡΠ½ΠΎ ΠΏΠΎΠ»ΡΡΠ°ΡΡ ΡΠ΄ΠΎΠ±Π½ΡΠ΅ ΠΈ ΡΡΡΠ΅ΠΊΡΠΈΠ²Π½ΡΠ΅ ΠΎΠ±Π½ΠΎΠ²Π»Π΅Π½ΠΈΡ, ΠΏΠΎΠ»ΡΠ·ΡΡΡΡ ΡΠΈΡΠΎΠΊΠΈΠΌ ΡΠΏΡΠΎΡΠΎΠΌ Π² Π ΠΎΡΡΠΈΠΈ ΠΈ Ρ Π·Π°ΡΡΠ±Π΅ΠΆΠ½ΡΡ Π±ΡΡΠΎΠ²ΠΈΠΊΠΎΠ².
ΠΡΠΎΠ±Π΅Π½Π½ΠΎΡΡΠΈ Π±ΡΡΠΎΠ²ΡΡ ΡΡΡΠ°Π½ΠΎΠ²ΠΎΠΊ Π½Π° Π±Π°Π·Π΅ Π£ΡΠ°Π»
ΠΠ»Π°Π²Π½Π°Ρ ΠΎΡΠΎΠ±Π΅Π½Π½ΠΎΡΡΡ ΡΡΠΈΡ Π°Π³ΡΠ΅Π³Π°ΡΠΎΠ² β Π°Π²ΡΠΎΠΌΠΎΠ±ΠΈΠ»Ρ Π£ΡΠ°Π»-4320, Π½Π°ΡΠ°Π²ΡΠΈΠΉ Π²ΡΠΏΡΡΠΊΠ°ΡΡΡΡ Π£ΡΠ°Π»ΡΡΠΊΠΈΠΌ Π°Π²ΡΠΎΠΌΠΎΠ±ΠΈΠ»ΡΠ½ΡΠΌ Π·Π°Π²ΠΎΠ΄ΠΎΠΌ (Π³. ΠΠΈΠ°ΡΡ) Π΅ΡΠ΅ Π² 1977-ΠΌ Π³ΠΎΠ΄Ρ. ΠΠ΅ΡΠ²ΠΎΠ½Π°ΡΠ°Π»ΡΠ½ΠΎ ΡΡΠ° ΠΌΠ°ΡΠΈΠ½Π° ΡΠΎΠ·Π΄Π°Π²Π°Π»Π°ΡΡ Π΄Π»Ρ Π°ΡΠΌΠ΅ΠΉΡΠΊΠΈΡ ΡΠ΅Π»Π΅ΠΉ, Π³Π΄Π΅ Π΄ΠΎ ΡΠΈΡ ΠΏΠΎΡ ΠΏΡΠΈΠΌΠ΅Π½ΡΠ΅ΡΡΡ Π² ΠΊΠ°ΡΠ΅ΡΡΠ²Π΅ ΡΠ½ΠΈΡΠΈΡΠΈΡΠΎΠ²Π°Π½Π½ΠΎΠΉ Π²ΠΎΠ΅Π½Π½ΠΎΠΉ Π°Π²ΡΠΎΡΠ΅Ρ Π½ΠΈΠΊΠΈ.
ΠΠΎΠ·ΠΌΠΎΠΆΠ½ΠΎΡΡΠΈ Β«Π£ΡΠ°Π»Π°Β» ΡΠ½ΠΈΠΊΠ°Π»ΡΠ½Ρ Π΄Π»Ρ ΠΊΠΎΠ»Π΅ΡΠ½ΠΎΠ³ΠΎ Π³ΡΡΠ·ΠΎΠ²ΠΈΠΊΠ°: ΠΈΠΌΠ΅Ρ Π³ΡΡΠ·ΠΎΠΏΠΎΠ΄ΡΠ΅ΠΌΠ½ΠΎΡΡΡ ΠΎΠΊΠΎΠ»ΠΎ 12-ΡΠΈ ΡΠΎΠ½Π½ ΠΈ ΡΠ°Π·Π²ΠΈΠ²Π°Ρ ΡΠΊΠΎΡΠΎΡΡΡ Π΄ΠΎ 85-ΡΠΈ ΠΊΠΌ/Ρ, ΠΎΠ½ ΡΠ²ΠΎΠ±ΠΎΠ΄Π½ΠΎ ΠΏΡΠ΅ΠΎΠ΄ΠΎΠ»Π΅Π²Π°Π΅Ρ ΠΏΠΎΠ΄ΡΠ΅ΠΌΡ Ρ ΡΠ³Π»ΠΎΠΌ Π½Π°ΠΊΠ»ΠΎΠ½Π° Π΄ΠΎ 600, ΠΊΠ°Π½Π°Π²Ρ Π³Π»ΡΠ±ΠΈΠ½ΠΎΠΉ Π΄ΠΎ 2-Ρ ΠΌΠ΅ΡΡΠΎΠ², ΡΠ΅ΡΠ½ΠΎΠΉ Π±ΡΠΎΠ΄ Π΄ΠΎ 1,5 ΠΌΠ΅ΡΡΠΎΠ² Π³Π»ΡΠ±ΠΈΠ½ΠΎΠΉ. ΠΡΠ΅ ΡΡΠΎ ΡΡΠ°Π»ΠΎ ΡΠ΅Π°Π»ΡΠ½ΠΎ Π΄ΠΎΡΡΠΈΠΆΠΈΠΌΡΠΌ Π±Π»Π°Π³ΠΎΠ΄Π°ΡΡ ΠΎΡΠΎΠ±Π΅Π½Π½ΠΎΡΡΡΠΌ ΠΊΠΎΠ½ΡΡΡΡΠΊΡΠΈΠΈ:
- ΠΠΎΡΠ½ΡΠΌ Π΄ΠΈΠ·Π΅Π»ΡΠ½ΡΠΌ Π΄Π²ΠΈΠ³Π°ΡΠ΅Π»ΡΠΌ ΠΠ°ΠΌΠΠ-740 (209 Π».Ρ.), Π―ΠΠ-236 (210 Π».Ρ.) ΠΈΠ»ΠΈ Π―ΠΠ-238 (230 Π».Ρ).
- ΠΡΡΡΡΡΠ΅ΠΌΡ ΠΌΠΎΠΌΠ΅Π½ΡΡ, ΠΏΡΠΈΠ½ΠΈΠΌΠ°ΡΡΠ΅ΠΌΡ ΠΌΠ°ΠΊΡΠΈΠΌΠ°Π»ΡΠ½ΠΎΠ΅ Π·Π½Π°ΡΠ΅Π½ΠΈΠ΅ Π΄ΠΎ 673 Π*ΠΌ.
- ΠΠΎΠ»Π½ΠΎΠΌΡ ΠΏΡΠΈΠ²ΠΎΠ΄Ρ Π½Π° ΠΊΠΎΠ»Π΅ΡΠ½ΡΡ Π±Π°Π·Ρ, ΠΈΠΌΠ΅ΡΡΡΡ ΡΡ Π΅ΠΌΡ ΡΡΡΠ°Π½ΠΎΠ²ΠΊΠΈ 6*6.
- ΠΠΎΡΠΎΠΆΠ½ΠΎΠΌΡ ΠΏΡΠΎΡΠ²Π΅ΡΡ ΡΠΈΡΠΈΠ½ΠΎΠΉ Π΄ΠΎ 400 ΠΌΠΌ.
- ΠΠ°Π΄Π΅ΠΆΠ½ΠΎΠΉ Π³ΠΈΠ΄ΡΠΎΡΠΈΡΡΠ΅ΠΌΠ΅, ΠΏΠ΅ΡΠ΅Π΄Π°ΡΡΠ΅ΠΉ Π΄Π²ΠΈΠΆΠ΅Π½ΠΈΠ΅ Π²ΡΠ΅ΠΌΡ Π΄ΠΎΠΏΠΎΠ»Π½ΠΈΡΠ΅Π»ΡΠ½ΠΎΠΌΡ ΠΎΠ±ΠΎΡΡΠ΄ΠΎΠ²Π°Π½ΠΈΡ.

ΠΡΡΠΎΠ²ΡΠ΅ ΡΡΡΠ°Π½ΠΎΠ²ΠΊΠΈ Π½Π° Π±Π°Π·Π΅ Β«Π£ΡΠ°Π»Π°Β» ΡΡΠ°Π½ΠΎΠ²ΡΡΡΡ Π»ΡΡΡΠΈΠΌ Π²ΡΠ±ΠΎΡΠΎΠΌ Π΄Π»Ρ ΠΏΡΠΎΠ²Π΅Π΄Π΅Π½ΠΈΡ ΡΠ°Π±ΠΎΡ Π² ΠΎΡΠ΄Π°Π»Π΅Π½Π½ΡΡ ΡΠ°ΠΉΠΎΠ½Π°Ρ ΠΈ ΡΡΡΠ΄Π½ΠΎΠ΄ΠΎΡΡΡΠΏΠ½ΡΡ ΠΌΠ΅ΡΡΠ°Ρ , ΠΊΡΠ΄Π° Π΄ΠΎΡΡΠ°Π²ΠΊΠ° Π±ΡΡΠΈΠ»ΡΠ½ΠΎΠ³ΠΎ ΠΎΠ±ΠΎΡΡΠ΄ΠΎΠ²Π°Π½ΠΈΡ ΡΠ²ΡΠ·Π°Π½Π° Ρ ΠΏΡΠΎΠ±Π»Π΅ΠΌΠ°ΠΌΠΈ ΠΏΠ΅ΡΠ΅ΡΠ΅ΡΠ΅Π½Π½ΠΎΠΉ ΠΌΠ΅ΡΡΠ½ΠΎΡΡΠΈ ΠΈ Π±Π΅Π·Π΄ΠΎΡΠΎΠΆΡΡ. ΠΠ΅ΡΠΈΡΡΡΠΉ Π»ΠΈΠ±ΠΎ Π±ΠΎΠ»ΠΎΡΠΈΡΡΡΠΉ ΠΊΡΠ°ΠΉ, Π° ΡΠ°ΠΊΠΆΠ΅ Π½Π΅Π±ΠΎΠ»ΡΡΠΈΠ΅ ΠΎΠ²ΡΠ°Π³ΠΈ Π½Π΅ ΡΡΠ°Π½ΡΡ ΠΏΡΠ΅ΠΏΡΡΡΡΠ²ΠΈΠ΅ΠΌ Π΄Π»Ρ ΠΏΠΎΠΈΡΠΊΠΎΠ²ΠΈΠΊΠΎΠ² ΠΈ Π³Π΅ΠΎΠ΄Π΅Π·ΠΈΡΡΠΎΠ², ΡΠ°Π±ΠΎΡΠ°ΡΡΠΈΡ Π½Π° Π½ΠΈΡ .
ΠΠΠ’ΠΠ ΠΠ‘ΠΠ! Π£ΡΠ°Π»-4320 ΡΠΌΠΎΠ³ ΡΡΠ°ΡΡ ΠΎΡΠ½ΠΎΠ²ΠΎΠΉ Π΄Π»Ρ Π±ΡΡΠΎΠ²ΠΎΠΉ ΡΡΡΠ°Π½ΠΎΠ²ΠΊΠΈ Π±Π»Π°Π³ΠΎΠ΄Π°ΡΡ ΡΡΡΠΎΠ΅Π½ΠΈΡ ΠΏΠ»Π°ΡΡΠΎΡΠΌΡ, ΠΊΠΎΡΠΎΡΠ°Ρ ΠΈΡΠΏΠΎΠ»ΡΠ·ΡΠ΅ΡΡΡ Π² ΠΊΠ°ΡΠ΅ΡΡΠ²Π΅ ΡΠ½ΠΈΠ²Π΅ΡΡΠ°Π»ΡΠ½ΠΎΠ³ΠΎ ΡΡΠ°Π½ΡΠΏΠΎΡΡΠ½ΠΎΠ³ΠΎ ΡΡΠ΅Π΄ΡΡΠ²Π° Π΄Π»Ρ Π²ΡΠ΅Ρ ΡΠΈΠΏΠΎΠ² Π³ΡΡΠ·ΠΎΠ² β ΠΎΡ ΡΡΡΠΎΠΉΠΌΠ°ΡΠ΅ΡΠΈΠ°Π»ΠΎΠ² Π²ΡΡΠΎΠΊΠΎΠ³ΠΎ ΡΠΎΠ½Π½Π°ΠΆΠ° Π΄ΠΎ ΠΏΠ°ΡΡΠ°ΠΆΠΈΡΡΠΊΠΈΡ ΠΏΠ΅ΡΠ΅Π²ΠΎΠ·ΠΎΠΊ.
Π’Π΅Ρ Π½ΠΈΡΠ΅ΡΠΊΠΈΠ΅ Ρ Π°ΡΠ°ΠΊΡΠ΅ΡΠΈΡΡΠΈΠΊΠΈ ΠΏΠΎΠΏΡΠ»ΡΡΠ½ΡΡ ΠΌΠΎΠ΄Π΅Π»Π΅ΠΉ
ΠΠ° Π±Π°Π·Π΅ Β«Π£ΡΠ°Π»-4320Β» ΡΠΎΠ·Π΄Π°Π½ΠΎ Π½Π΅ΡΠΊΠΎΠ»ΡΠΊΠΎ Π»ΠΈΠ½Π΅Π΅ΠΊ Π±ΡΡΠΈΠ»ΡΠ½ΡΡ ΡΡΡΠ°Π½ΠΎΠ²ΠΎΠΊ Ρ ΠΌΠΎΠ΄ΠΈΡΠΈΠΊΠ°ΡΠΈΡΠΌΠΈ, ΡΠ°ΠΌΡΠΌΠΈ Π²ΠΎΡΡΡΠ΅Π±ΠΎΠ²Π°Π½Π½ΡΠΌΠΈ ΠΈΠ· ΠΊΠΎΡΠΎΡΡΡ ΡΠ²Π»ΡΡΡΡΡ Π£Π Π-2Π2 ΠΈ Π£Π Π-2Π3, ΠΊΠΎΡΠΎΡΡΠ΅ ΠΏΡΠΎΠΈΠ·Π²ΠΎΠ΄ΡΡΡΡ Π·Π°Π²ΠΎΠ΄Π°ΠΌΠΈ Β«Π‘ΠΏΠ΅ΡΠΡΡΠΠ°ΡΒ» (ΠΠ·Π΅ΡΡΠΊ), ΠΈΠΌ. ΠΠΎΡΠΎΠ²ΡΠΊΠΎΠ³ΠΎ (Π§Π΅Π»ΡΠ±ΠΈΠ½ΡΠΊ), Β«ΠΠ°ΠΌΠΠΒ» (ΠΠ°Π±Π΅ΡΠ΅ΠΆΠ½ΡΠ΅ Π§Π΅Π»Π½Ρ). ΠΠ½ΠΈ ΠΈΡΠΏΠΎΠ»ΡΠ·ΡΡΡΡΡ Π΄Π»Ρ ΡΠΎΠ·Π΄Π°Π½ΠΈΡ ΡΠΊΠ²Π°ΠΆΠΈΠ½ Π½Π° ΡΡΠ΅Π΄Π½ΡΡ Π³Π»ΡΠ±ΠΈΠ½Ρ (Π΄ΠΎ 300 ΠΌ.), ΠΈΠΌΠ΅Ρ ΠΎΡΠ½ΠΎΠ²Π½ΠΎΠ΅ ΠΎΡΠ»ΠΈΡΠΈΠ΅ Π² ΠΌΠ°ΠΊΡΠΈΠΌΠ°Π»ΡΠ½ΠΎ Π²ΠΎΠ·ΠΌΠΎΠΆΠ½ΠΎΠΌ Π΄ΠΈΠ°ΠΌΠ΅ΡΡΠ΅ ΡΠ²Π΅ΡΠ»Π΅Π½ΠΈΡ, ΠΊΠΎΡΠΎΡΡΠΉ ΡΡΠ΅Π±ΡΠ΅ΡΡΡ Π΄Π»Ρ ΠΊΠΎΠ½ΠΊΡΠ΅ΡΠ½ΡΡ ΠΏΠΎΡΠΎΠ΄ ΠΈ ΠΏΠΎΡΡΠ°Π²Π»Π΅Π½Π½ΡΡ Π·Π°Π΄Π°Ρ ΡΠ²ΠΎΠΉ ΡΠΏΠ΅ΡΠΈΠ°Π»ΡΠ½ΡΠΉ.
Π£Π Π 2Π2
ΠΡΡΠΎΠ²Π°Ρ Π£Π Π-2Π2 β ΡΡΠΎ ΡΠ°Π±ΠΎΡΠ° ΠΏΡΠΈ Π»ΡΠ±ΡΡ ΠΊΠ»ΠΈΠΌΠ°ΡΠΈΡΠ΅ΡΠΊΠΈΡ ΠΈ ΠΏΠΎΠ³ΠΎΠ΄Π½ΡΡ ΡΡΠ»ΠΎΠ²ΠΈΡΡ , Π±ΡΡΠ΅Π½ΠΈΠ΅ Π²ΡΠ΅Ρ Π²ΠΈΠ΄ΠΎΠ² ΠΏΠΎΡΠ², ΠΏΡΠΎΡΡΠΎΡΠ° ΡΠΏΡΠ°Π²Π»Π΅Π½ΠΈΡ ΠΈ ΠΎΠ±ΡΠ»ΡΠΆΠΈΠ²Π°Π½ΠΈΡ. ΠΠ»Π°Π²Π½ΠΎΠ΅ Π΅Π΅ ΠΏΡΠ΅Π΄Π½Π°Π·Π½Π°ΡΠ΅Π½ΠΈΠ΅ β Π±ΡΡΠ΅Π½ΠΈΠ΅ ΠΏΠΎΠΈΡΠΊΠΎΠ²ΡΡ Π»ΠΈΠ±ΠΎ Π³Π΅ΠΎΡΠΈΠ·ΠΈΡΠ΅ΡΠΊΠΈΡ ΡΠΊΠ²Π°ΠΆΠΈΠ½ Π΄Π»Ρ ΠΈΠ·ΡΡΠ΅Π½ΠΈΡ ΠΏΠ»Π°ΡΡΠΎΠ² Π³ΡΡΠ½ΡΠ°, ΠΏΠΎΠΈΡΠΊΠ° ΠΌΠ΅ΡΡΠΎΡΠΎΠΆΠ΄Π΅Π½ΠΈΠΉ Π½Π΅ΡΡΠΈ, Π³Π°Π·Π° ΠΈ Π΄Ρ., Π° ΡΠ°ΠΊΠΆΠ΅ Π΄Π»Ρ ΠΏΠΎΡΠ»Π΅Π΄ΡΡΡΠ΅Π³ΠΎ Π²ΠΎΠ΄ΠΎΠ·Π°Π±ΠΎΡΠ°.
Π€ΠΎΡΠΎ Π±ΡΡΠΎΠ²ΠΎΠΉ ΡΡΡΠ°Π½ΠΎΠ²ΠΊΠΈ Π£Π Π 2Π2 Π½Π° Π±Π°Π·Π΅ Π£Π ΠΠ
Π£ΡΡΠ°Π½ΠΎΠ²ΠΊΠ° ΠΎΡΠ½Π°ΡΠ΅Π½Π° Π²ΡΠ°ΡΠ°ΡΠ΅Π»Π΅ΠΌ Π² ΠΊΠ°ΡΠ΅ΡΡΠ²Π΅ ΡΠ°Π±ΠΎΡΠ΅Π³ΠΎ ΠΈΠ½ΡΡΡΡΠΌΠ΅Π½ΡΠ° Π΄Π»Ρ Π±ΡΡΠ΅Π½ΠΈΡ Π½Π°ΡΡΡ ΠΎ ΡΠ½Π΅ΠΊΠ°ΠΌΠΈ, Ρ ΠΏΡΠΎΠΌΡΠ²ΠΊΠΎΠΉ Π»ΠΈΠ±ΠΎ ΠΏΡΠΎΠ΄ΡΠ²ΠΊΠΎΠΉ. Π Π°Π±ΠΎΡΠΈΠΉ ΠΎΡΠ³Π°Π½ ΠΏΠ΅ΡΠ΅ΠΌΠ΅ΡΠ°Π΅ΡΡΡ ΠΏΠΎ ΠΌΠ°ΡΡΠ΅ ΠΏΠΎΡΡΠ΅Π΄ΡΡΠ²ΠΎΠΌ Π³ΠΈΠ΄ΡΠΎΡΠΈΠ»ΠΈΠ½Π΄ΡΠΎΠ² Ρ ΡΠΊΡΠ΅ΠΏΠ»Π΅Π½ΠΈΠ΅ΠΌ Π² ΡΠ°Π»Π΅Π²ΠΎΠΉ ΡΠΈΡΡΠ΅ΠΌΠ΅. ΠΡΡΠΈΠ»ΠΊΠ° Π΄ΠΎΠΏΠΎΠ»Π½ΠΈΡΠ΅Π»ΡΠ½ΠΎ ΠΊΠΎΠΌΠΏΠ»Π΅ΠΊΡΡΠ΅ΡΡΡ Π½Π°Π±ΠΎΡΠ°ΠΌΠΈ ΠΎΠ±ΠΎΡΡΠ΄ΠΎΠ²Π°Π½ΠΈΡ Π΄Π»Ρ Π½Π°ΠΊΠ»ΠΎΠ½Π½ΠΎΠ³ΠΎ ΡΠ²Π΅ΡΠ»Π΅Π½ΠΈΡ ΠΈ ΡΡΡΡΠΎΠΉΡΡΠ²Π° ΠΎΡΠ²Π΅ΡΡΡΠΈΠΉ Ρ Π³ΠΈΠ΄ΡΠΎΡΡΠ°Π½ΡΠΏΠΎΡΡΠΎΠΌ ΠΊΠ΅ΡΠ½Π°.
Π’Π΅Ρ Π½ΠΈΡΠ΅ΡΠΊΠΈΠ΅ Ρ Π°ΡΠ°ΠΊΡΠ΅ΡΠΈΡΡΠΈΠΊΠΈ Π£Π Π-2Π2 ΠΎΡΠ²Π΅ΡΠ΅Π½Ρ Π² ΡΠ»Π΅Π΄ΡΡΡΠ΅ΠΉ ΡΠ°Π±Π»ΠΈΡΠ΅:
| ΠΠΎΠΊΠ°Π·Π°ΡΠ΅Π»ΠΈ | ΠΠ΄. ΠΈΠ·ΠΌΠ΅ΡΠ΅Π½ΠΈΡ | ΠΠ½Π°ΡΠ΅Π½ΠΈΡ |
| ΠΠ±ΡΠ°Ρ ΠΌΠ°ΡΡΠ° | Ρ | 13,830 |
| Π Π°Π±ΠΎΡΠΈΠ΅ Π³Π°Π±Π°ΡΠΈΡΡ, ΡΠΈΡΠΈΠ½Π°/Π΄Π»ΠΈΠ½Π°/Π²ΡΡΠΎΡΠ° | ΠΌ | 2,50/8,33/8,38 |
| ΠΠ°ΠΊΡ. Π³Π»ΡΠ±ΠΈΠ½Π° ΠΏΠΎΠΈΡΠΊΠΎΠ²ΠΎΠ³ΠΎ ΡΠ²Π΅ΡΠ»Π΅Π½ΠΈΡ (ΡΠ½Π΅ΠΊΠΎΠΌ/Ρ ΠΏΡΠΎΠΌΡΠ²ΠΊΠΎΠΉ) | ΠΌ | 30/100 |
| ΠΠΈΠ°ΠΌΠ΅ΡΡ ΡΠ²Π΅ΡΠ»Π΅Π½ΠΈΡ Π½Π°ΡΠ°Π»ΡΠ½ΡΠΉ | ΠΌΠΌ | 190 |
| ΠΠΈΠ°ΠΌΠ΅ΡΡ ΠΏΠΎΠΈΡΠΊΠΎΠ²ΠΎΠ³ΠΎ Π²Π΅ΡΠ»Π΅Π½ΠΈΡ ΠΊΠΎΠ½Π΅ΡΠ½ΡΠΉ (Ρ ΠΏΡΠΎΠ΄ΡΠ²ΠΊΠΎΠΉ/Ρ ΠΏΡΠΎΠΌΡΠ²ΠΊΠΎΠΉ/ΡΠ½Π΅ΠΊΠΎΠΌ) | ΠΌΠΌ | 118/93/135 |
| ΠΠΎΠΏΡΡΡΠΈΠΌΠ°Ρ Π½Π°Π³ΡΡΠ·ΠΊΠ° Π½Π° ΠΊΡΡΠΊ | ΠΊΠ³Ρ | 5100 |
ΠΠΠ’ΠΠ ΠΠ‘ΠΠ! Π£ΡΡΠ°Π½ΠΎΠ²ΠΊΠ° Π±ΡΡΠ΅Π½ΠΈΡ Π£Π Π-2Π2 β ΡΡΠΎ Π΅Π΄ΠΈΠ½ΡΡΠ²Π΅Π½Π½Π°Ρ ΠΎΡΠ΅ΡΠ΅ΡΡΠ²Π΅Π½Π½Π°Ρ Π±ΡΡΠΈΠ»ΠΊΠ°, ΠΈΠΌΠ΅ΡΡΠ°Ρ ΠΏΠΎΠ»Π½ΠΎΡΡΡΡ Π³ΠΈΠ΄ΡΠΎΡΠΈΡΠΈΡΠΎΠ²Π°Π½Π½ΠΎΠ΅ ΡΠΏΡΠ°Π²Π»Π΅Π½ΠΈΠ΅, ΠΊΠΎΡΠΎΡΠ°Ρ ΡΠΎΠ±ΡΠ°Π½Π° ΠΈΠ· Π΄Π΅ΡΠ°Π»Π΅ΠΉ ΠΈ ΡΠ·Π»ΠΎΠ² ΡΠΎΠ»ΡΠΊΠΎ ΡΠΎΡΡΠΈΠΉΡΠΊΠΎΠ³ΠΎ ΠΏΡΠΎΠΈΠ·Π²ΠΎΠ΄ΡΡΠ²Π° ΠΈ ΠΏΡΠΈ ΡΡΠΎΠΌ Π»Π΅Π³ΠΊΠΎ ΠΊΠΎΠ½ΠΊΡΡΠΈΡΡΠ΅Ρ Ρ Π»ΡΠ±ΠΎΠΉ ΠΈΠΌΠΏΠΎΡΡΠ½ΠΎΠΉ ΡΠ΅Ρ Π½ΠΈΠΊΠΎΠΉ ΡΠ²ΠΎΠ΅Π³ΠΎ ΠΊΠ»Π°ΡΡΠ°.
ΠΠΈΠ΄Π΅ΠΎ ΠΎΠ±Π·ΠΎΡ Π±ΡΡΠΎΠ²ΠΎΠΉ ΡΡΡΠ°Π½ΠΎΠ²ΠΊΠΈ Π£Π Π 2Π2:
Π£Π Π 2Π3
Π£ΡΡΠ°Π½ΠΎΠ²ΠΊΠ° Π£Π Π-2Π3 ΠΏΡΠ΅Π΄Π½Π°Π·Π½Π°ΡΠ°Π΅ΡΡΡ Π΄Π»Ρ ΡΡΡΡΠΎΠΉΡΡΠ²Π° ΡΠΊΠ²Π°ΠΆΠΈΠ½ Π°Π±ΡΠΎΠ»ΡΡΠ½ΠΎ ΡΠ°Π·Π»ΠΈΡΠ½ΠΎΠ³ΠΎ Π½Π°Π·Π½Π°ΡΠ΅Π½ΠΈΡ β ΠΏΠΎΠΈΡΠΊΠΎΠ²ΡΡ , Π³Π΅ΠΎΡΠΈΠ·ΠΈΡΠ΅ΡΠΊΠΈΡ , Π²ΠΎΠ΄ΡΠ½ΡΡ ΠΈ Π΄Ρ. ΠΡΡΠ΅Π½ΠΈΠ΅ Ρ Π΅Π΅ ΠΏΠΎΠΌΠΎΡΡΡ ΠΏΡΠΎΠΈΠ·Π²ΠΎΠ΄ΠΈΡΡΡ ΠΈΠ½ΡΡΡΡΠΌΠ΅Π½ΡΠΎΠΌ Π² Π²ΠΈΠ΄Π΅ Π²ΡΠ°ΡΠ°ΡΠ΅Π»Ρ Ρ ΠΎΠ΄Π½ΠΎΠ²ΡΠ΅ΠΌΠ΅Π½Π½ΠΎΠΉ ΠΎΡΠΈΡΡΠΊΠΎΠΉ ΡΠΊΠ²Π°ΠΆΠΈΠ½Ρ ΠΏΡΠΎΠ΄ΡΠ²ΠΎΠΌ ΠΈ ΠΏΡΠΎΠΌΡΠ²ΠΊΠΎΠΉ, Π° ΡΠ°ΠΊΠΆΠ΅ ΡΠ½Π΅ΠΊΠΎΠΌ ΠΈ ΠΏΠΎΠ³ΡΡΠΆΠ½ΡΠΌ ΠΏΠ½Π΅Π²ΠΌΠΎΡΠ΄Π°ΡΠ½ΠΈΠΊΠΎΠΌ.
Π€ΠΎΡΠΎ Π±ΡΡΠΎΠ²ΠΎΠΉ ΡΡΡΠ°Π½ΠΎΠ²ΠΊΠΈ Π£Π Π 2Π3 Π½Π° Π±Π°Π·Π΅ Π£Π ΠΠ
ΠΡΡΠ΅Π½ΠΈΠ΅ ΠΌΠΎΠΆΠ΅Ρ ΠΏΡΠΎΠ²ΠΎΠ΄ΠΈΡΡΡΡ Π½Π° Π³ΡΡΠ½ΡΠ°Ρ Π²ΡΠ΅Ρ ΠΊΠ°ΡΠ΅Π³ΠΎΡΠΈΠΉ, ΡΡΠΎ Π²ΠΎΠ·ΠΌΠΎΠΆΠ½ΠΎ ΠΊΠ°ΠΊ Π±Π»Π°Π³ΠΎΠ΄Π°ΡΡ Π²ΡΡΠΎΠΊΠΎΠΉ ΠΌΠΎΡΠ½ΠΎΡΡΠΈ, ΡΠ°ΠΊ ΠΈ ΡΠΏΡΠ°Π²Π»Π΅Π½ΠΈΡ Π°Π±ΡΠΎΠ»ΡΡΠ½ΠΎ Π²ΡΠ΅ΠΌΠΈ ΠΎΠΏΠ΅ΡΠ°ΡΠΈΡΠΌΠΈ (ΠΏΠΎΠ΄ΡΠ΅ΠΌΠΎΠΌ, ΠΏΠΎΠ΄Π°ΡΠ΅ΠΉ, Π²ΡΠ°ΡΠ΅Π½ΠΈΠ΅ΠΌ) ΠΏΠΎΡΡΠ΅Π΄ΡΡΠ²ΠΎΠΌ Π³ΠΈΠ΄ΡΠΎΡΠΈΡΡΠ΅ΠΌΡ ΠΌΠ°ΡΠΈΠ½Ρ. Π£ΡΡΠ°Π½ΠΎΠ²ΠΊΠ° ΠΊΠΎΠΌΠΏΠ»Π΅ΠΊΡΡΠ΅ΡΡΡ Π»Π΅Π±Π΅Π΄ΠΊΠΎΠΉ ΠΎΠ΄Π½ΠΎΠ³ΠΎ ΠΈΠ· Π΄Π²ΡΡ Π²Π°ΡΠΈΠ°Π½ΡΠΎΠ²: Π½Π° 700 ΠΊΠ³ ΠΈΠ»ΠΈ Π½Π° 1800 ΠΊΠ³, Π° ΡΠ°ΠΊΠΆΠ΅ ΠΊΠΎΠΌΠΏΠ»Π΅ΠΊΡΠΎΠΌ ΠΠΠ (ΡΠΈΡΡΠ΅ΠΌΠ° ΠΊΠ΅ΡΠ½Π°) ΠΈ ΠΎΠ±ΠΎΡΡΠ΄ΠΎΠ²Π°Π½ΠΈΠ΅ΠΌ Π΄Π»Ρ Π½Π°ΠΊΠ»ΠΎΠ½Π½ΠΎΠ³ΠΎ Π±ΡΡΠ΅Π½ΠΈΡ.
Π’Π΅Ρ Π½ΠΈΡΠ΅ΡΠΊΠΈΠ΅ Ρ Π°ΡΠ°ΠΊΡΠ΅ΡΠΈΡΡΠΈΠΊΠΈ Π£Π Π-2Π3:
| ΠΠΎΠΊΠ°Π·Π°ΡΠ΅Π»ΠΈ | ΠΠ΄. ΠΈΠ·ΠΌΠ΅ΡΠ΅Π½ΠΈΡ | ΠΠ½Π°ΡΠ΅Π½ΠΈΡ |
| ΠΠ±ΡΠ°Ρ ΠΌΠ°ΡΡΠ° | Ρ | 13,830 |
| Π Π°Π±ΠΎΡΠΈΠ΅ Π³Π°Π±Π°ΡΠΈΡΡ, ΡΠΈΡΠΈΠ½Π°/Π΄Π»ΠΈΠ½Π°/Π²ΡΡΠΎΡΠ° | ΠΌ | 2,50/8,53/8,38 |
| ΠΠ°ΠΊΡ. Π³Π»ΡΠ±ΠΈΠ½Π° ΠΏΠΎΠΈΡΠΊΠΎΠ²ΠΎΠ³ΠΎ ΡΠ²Π΅ΡΠ»Π΅Π½ΠΈΡ (ΡΠ½Π΅ΠΊΠΎΠΌ/Ρ ΠΏΡΠΎΠΌΡΠ²ΠΊΠΎΠΉ) | ΠΌ | 30/300 |
| ΠΠ»ΡΠ±ΠΈΠ½Π° Π³Π΅ΠΎΡΠΈΠ·ΠΈΡΠ΅ΡΠΊΠΎΠ³ΠΎ ΡΠ²Π΅ΡΠ»Π΅Π½ΠΈΡ (Ρ ΠΏΡΠΎΠ΄ΡΠ²ΠΊΠΎΠΉ/Ρ ΠΏΡΠΎΠΌΡΠ²ΠΊΠΎΠΉ) | ΠΌ | 30/100 |
| ΠΠΈΠ°ΠΌΠ΅ΡΡ ΡΠ²Π΅ΡΠ»Π΅Π½ΠΈΡ Π½Π°ΡΠ°Π»ΡΠ½ΡΠΉ | ΠΌΠΌ | 450 |
| ΠΠΈΠ°ΠΌΠ΅ΡΡ ΠΏΠΎΠΈΡΠΊΠΎΠ²ΠΎΠ³ΠΎ ΡΠ²Π΅ΡΠ»Π΅Π½ΠΈΡ (Ρ ΠΏΡΠΎΠ΄ΡΠ²ΠΊΠΎΠΉ/Ρ ΠΏΡΠΎΠΌΡΠ²ΠΊΠΎΠΉ/ΡΠ½Π΅ΠΊΠΎΠΌ) | ΠΌΠΌ | 294/10/150 |
| ΠΠΎΠΏΡΡΡΠΈΠΌΠ°Ρ Π½Π°Π³ΡΡΠ·ΠΊΠ° Π½Π° ΠΊΡΡΠΊ | ΠΊΠ³Ρ | 6300 |
ΠΠΠΠΠ! ΠΠ΄Π½ΠΈΠΌ ΠΈΠ· Π½Π°ΠΈΠ±ΠΎΠ»Π΅Π΅ Π²Π°ΠΆΠ½ΡΡ Π΄ΠΎΠΏΠΎΠ»Π½Π΅Π½ΠΈΠΉ Π£Π Π-2Π3, ΠΎΡΠ»ΠΈΡΠ°ΡΡΠΈΡ Π΅Π΅ ΠΎΡ Π£Π Π-2Π2, ΡΠ²Π»ΡΠ΅ΡΡΡ ΠΎΡΠ½Π°ΡΠ΅Π½ΠΈΠ΅ Π±ΠΎΠ»Π΅Π΅ ΠΌΠΎΡΠ½ΡΠΌ Π²ΡΠ°ΡΠ°ΡΠ΅Π»ΡΠ½ΡΠΌ ΡΠ»Π΅ΠΌΠ΅Π½ΡΠΎΠΌ ΠΏΠ»Π°Π½Π΅ΡΠ°ΡΠ½ΠΎΠΉ ΠΊΠΎΠ½ΡΡΡΡΠΊΡΠΈΠΈ, Π° ΡΠ°ΠΊΠΆΠ΅ ΠΌΠ°ΡΡΠ° ΡΡΠΈΠ»Π΅Π½Π½ΠΎΠΉ ΠΊΠΎΠ½ΡΡΡΡΠΊΡΠΈΠΈ. ΠΡΠΈ ΡΡΠΎΠ²Π΅ΡΡΠ΅Π½ΡΡΠ²ΠΎΠ²Π°Π½ΠΈΡ ΠΏΠΎΠ·Π²ΠΎΠ»ΠΈΠ»ΠΈ ΠΏΠΎΠ²ΡΡΠΈΡΡ ΡΠΊΠΎΡΠΎΡΡΡ Π±ΡΡΠ΅Π½ΠΈΡ Π² 2 ΡΠ°Π·Π°.
allspectech.com
ΠΠ±Π·ΠΎΡ Π±ΡΡΠΎΠ²ΠΎΠΉ ΡΡΡΠ°Π½ΠΎΠ²ΠΊΠΈ Π£Π Π 2Π°2: ΡΡΡΡΠΎΠΉΡΡΠ²ΠΎ, ΡΠ΅Ρ Π½ΠΈΡΠ΅ΡΠΊΠΈΠ΅ Ρ Π°ΡΠ°ΠΊΡΠ΅ΡΠΈΡΡΠΈΠΊΠΈ

ΠΠ»Ρ ΠΈΠ½ΠΆΠ΅Π½Π΅ΡΠ½ΠΎ-Π³Π΅ΠΎΠ»ΠΎΠ³ΠΈΡΠ΅ΡΠΊΠΈΡ ΡΠ°Π±ΠΎΡ Π½Π΅ΠΎΠ±Ρ ΠΎΠ΄ΠΈΠΌΠ° ΡΠΏΠ΅ΡΡΠ΅Ρ Π½ΠΈΠΊΠ°, ΠΊΠΎΡΠΎΡΠ°Ρ ΠΏΠΎΠ·Π²ΠΎΠ»ΠΈΡ ΠΏΡΠ°Π²ΠΈΠ»ΡΠ½ΠΎ ΠΏΡΠΎΠ±ΡΡΠΈΡΡ ΠΏΠΎΠΈΡΠΊΠΎΠ²ΡΡ ΡΠΊΠ²Π°ΠΆΠΈΠ½Ρ (Π³Π°Π·, Π½Π΅ΡΡΡ ΠΈΠ»ΠΈ ΠΏΠΎΠ»Π΅Π·Π½ΡΠ΅ ΠΈΡΠΊΠΎΠΏΠ°Π΅ΠΌΡΠ΅) ΠΈΠ»ΠΈ ΠΎΡΠ³Π°Π½ΠΈΠ·ΠΎΠ²Π°ΡΡ ΡΡΡΠ΅ΠΊ Π΄Π»Ρ ΠΏΠΎΠ΄Π°ΡΠΈ ΠΏΠΎΠ΄Π·Π΅ΠΌΠ½ΡΡ Π²ΠΎΠ΄ Π½Π° ΠΏΠΎΠ²Π΅ΡΡ Π½ΠΎΡΡΡ. ΠΡΠ΅ ΡΠ°ΡΠ΅ Π΄Π»Ρ ΡΡΠΈΡ ΡΠ΅Π»Π΅ΠΉ ΠΈΡΠΏΠΎΠ»ΡΠ·ΡΠ΅ΡΡΡ ΡΡΡΠ°Π½ΠΎΠ²ΠΊΠ° Π£Π Π-2Π2, ΠΊΠΎΡΠΎΡΠ°Ρ ΠΌΠΎΠΆΠ΅Ρ Π±ΡΡΡ ΡΡΡΠ°Π½ΠΎΠ²Π»Π΅Π½Π° Π½Π° ΡΠ°Π·Π»ΠΈΡΠ½ΠΎΠΉ Π±Π°Π·Π΅. Π ΡΡΠ°Π½Π΄Π°ΡΡΠ½ΠΎΠΉ ΠΊΠΎΠΌΠΏΠ»Π΅ΠΊΡΠ°ΡΠΈΠΈ β ΡΡΠΎ ΠΠΠ-131, ΠΊΠΎΡΠΎΡΡΠΉ ΠΈΠΌΠ΅Π΅Ρ ΠΏΠΎΠ²ΡΡΠ΅Π½Π½ΡΠ΅ Ρ Π°ΡΠ°ΠΊΡΠ΅ΡΠΈΡΡΠΈΠΊΠΈ ΠΏΡΠΎΡ ΠΎΠ΄ΠΈΠΌΠΎΡΡΠΈ.
ΠΡΠΎΠ±Π΅Π½Π½ΠΎΡΡΠΈ Π±ΡΡΠΎΠ²ΠΎΠΉ ΡΡΡΠ°Π½ΠΎΠ²ΠΊΠΈ Π£Π Π 2Π°2
ΠΡΡΠΎΠ²Π°Ρ ΡΡΡΠ°Π½ΠΎΠ²ΠΊΠ° ΠΌΠΎΠΆΠ΅Ρ Π±ΡΡΡ ΡΠΌΠΎΠ½ΡΠΈΡΠΎΠ²Π°Π½Π° ΠΈ Π½Π° Π³ΡΡΠ΅Π½ΠΈΡΠ½ΠΎΠΉ, ΠΈ Π½Π° ΡΠ°Π½Π½ΠΎΠΉ Π±Π°Π·Π΅, Π½ΠΎ ΡΡΠΎ ΡΠ²Π»ΡΠ΅ΡΡΡ Π΄ΠΎΠΏΠΎΠ»Π½ΠΈΡΠ΅Π»ΡΠ½ΡΠΌ ΠΈΡΠΏΠΎΠ»Π½Π΅Π½ΠΈΠ΅ΠΌ. ΠΠ½ΠΎ Π·Π°ΠΊΠ°Π·ΡΠ²Π°Π΅ΡΡΡ ΠΎΡΠ΄Π΅Π»ΡΠ½ΠΎ, ΡΠ°ΠΊ ΠΊΠ°ΠΊ ΡΠ°ΠΌ Π£Π Π-2Π2 ΡΠ°Π±ΠΎΡΠ°Π΅Ρ ΠΎΡ Π΄Π²ΠΈΠ³Π°ΡΠ΅Π»Ρ ΡΠ²ΠΎΠ΅ΠΉ ΠΊΠΎΠ»Π΅ΡΠ½ΠΎΠΉ Π±Π°Π·Ρ, ΡΠΎ Π΅ΡΡΡ Π½Π΅ ΠΈΠΌΠ΅Π΅Ρ Π²ΠΎΠ·ΠΌΠΎΠΆΠ½ΠΎΡΡΠΈ ΡΠΎΠ±ΡΡΠ²Π΅Π½Π½ΠΎΠΉ ΠΈΠ½Π΄ΠΈΠ²ΠΈΠ΄ΡΠ°Π»ΡΠ½ΠΎΠΉ ΡΠ°Π±ΠΎΡΡ Π±Π΅Π· ΠΎΠ±Π΅ΡΠΏΠ΅ΡΠ΅Π½ΠΈΡ Π΄ΠΎΠΏΠΎΠ»Π½ΠΈΡΠ΅Π»ΡΠ½ΠΎΠ³ΠΎ ΠΏΠΈΡΠ°Π½ΠΈΡ.
ΠΡΠ½ΠΎΠ²Π½ΡΠΌ ΠΏΠ»ΡΡΠΎΠΌ ΡΡΠΎΠΉ ΡΠΏΠ΅ΡΡΠ΅Ρ Π½ΠΈΠΊΠΈ ΡΠ²Π»ΡΠ΅ΡΡΡ ΡΠΎ, ΡΡΠΎ ΠΎΠ½Π° ΠΏΡΠΎΠΈΠ·Π²ΠΎΠ΄ΠΈΡΡΡ ΠΏΠΎΠ»Π½ΠΎΡΡΡΡ ΠΏΠΎ ΡΠΎΡΡΠΈΠΉΡΠΊΠΎΠΉ ΡΠ΅Ρ Π½ΠΎΠ»ΠΎΠ³ΠΈΠΈ ΠΈ ΠΈΡΠΊΠ»ΡΡΠΈΡΠ΅Π»ΡΠ½ΠΎ ΠΈΠ· ΡΠΎΡΡΠΈΠΉΡΠΊΠΈΡ Π·Π°ΠΏΠ°ΡΠ½ΡΡ ΡΠ°ΡΡΠ΅ΠΉ. ΠΡΠΎ Π΄Π°Π΅Ρ Π²ΠΎΠ·ΠΌΠΎΠΆΠ½ΠΎΡΡΡ ΠΈ ΠΊΠ°ΡΠ΅ΡΡΠ²Π΅Π½Π½ΠΎΠΉ ΠΈ Π½Π΅Π΄ΠΎΡΠΎΠ³ΠΎΠΉ ΡΠΊΡΠΏΠ»ΡΠ°ΡΠ°ΡΠΈΠΈ, ΠΈ Π±ΡΡΡΡΠΎΠ³ΠΎ ΡΠ΅ΠΌΠΎΠ½ΡΠ° Ρ Π·Π°ΠΊΠ°Π·ΠΎΠΌ Π½Π΅ΠΎΠ±Ρ ΠΎΠ΄ΠΈΠΌΡΡ Π΄Π΅ΡΠ°Π»Π΅ΠΉ Π² ΠΎΠΏΠ΅ΡΠ°ΡΠΈΠ²Π½ΠΎΠΌ ΡΠ΅ΠΆΠΈΠΌΠ΅. Π£ΡΡΠ°Π½ΠΎΠ²ΠΊΠ° ΠΌΠΎΠΆΠ΅Ρ Π»Π΅Π³ΠΊΠΎ ΠΈΡΠΏΠΎΠ»ΡΠ·ΠΎΠ²Π°ΡΡΡΡ Π² ΡΠ°ΠΌΡΡ ΡΠ»ΠΎΠΆΠ½ΡΡ ΡΡΠ»ΠΎΠ²ΠΈΡΡ . ΠΡΠΈΠΌΠ΅ΡΠ°ΠΌΠΈ ΠΊΠ°ΡΠ΅ΡΡΠ²Π΅Π½Π½ΠΎΠΉ ΡΠ°Π±ΠΎΡΡ ΡΠ²Π»ΡΡΡΡΡ Π±ΡΡΠ΅Π½ΠΈΡ Π² Π―ΠΊΡΡΠΈΠΈ ΠΈ Π½Π° Π―ΠΌΠ°Π»Π΅.
ΠΡΠΎΠΈΠ·Π²ΠΎΠ΄ΠΈΡΠ΅Π»Π΅ΠΌ ΡΠ²Π»ΡΠ΅ΡΡΡ ΠΠ°Π²ΠΎΠ΄ ΠΡΡΠΎΠ²ΡΡ ΠΠ°ΡΠΈΠ½, ΠΊΠΎΡΠΎΡΡΠΉ ΠΎΠ±Π΅ΡΠΏΠ΅ΡΠΈΠ²Π°Π΅Ρ Π±ΡΡΡΡΡΡ Π΄ΠΎΡΡΠ°Π²ΠΊΡ Π³ΠΎΡΠΎΠ²ΡΡ ΡΡΡΠ°Π½ΠΎΠ²ΠΎΠΊ ΠΈ Π½Π°ΠΏΡΡΠΌΡΡ, ΠΈ ΡΠ΅ΡΠ΅Π· Π΄ΠΈΠ»Π΅ΡΡΠΊΡΡ ΡΠ΅ΡΡ. ΠΠΎΡΡΠΎΠΌΡ Π½Π΅ Π½ΡΠΆΠ½ΠΎ ΠΆΠ΄Π°ΡΡ Π½Π΅ΡΠΊΠΎΠ»ΡΠΊΠΎ ΠΌΠ΅ΡΡΡΠ΅Π², ΠΊΠ°ΠΊ Π² ΡΠ»ΡΡΠ°Π΅ Ρ ΠΈΠ½ΠΎΡΡΡΠ°Π½Π½ΡΠΌΠΈ Π°Π½Π°Π»ΠΎΠ³Π°ΠΌΠΈ, Π΄Π°ΠΆΠ΅ ΠΏΡΠΈ Π·Π°ΠΊΠ°Π·Π΅ ΠΈΠ½Π΄ΠΈΠ²ΠΈΠ΄ΡΠ°Π»ΡΠ½ΠΎΠΉ ΠΊΠΎΠ»Π΅ΡΠ½ΠΎΠΉ Π±Π°Π·Ρ.
ΠΠ° ΡΠΎΡΠΎ Π±ΡΡΠΎΠ²Π°Ρ ΡΡΡΠ°Π½ΠΎΠ²ΠΊΠ° Π£Π Π 2Π°2
ΠΡΠΏΠΎΠ»ΡΠ·ΡΡΡΡΡ Π£Π Π-2Π2 Π½Π΅ ΡΠΎΠ»ΡΠΊΠΎ Π΄Π»Ρ Π³Π΅ΠΎΠ»ΠΎΠ³ΠΈΡΠ΅ΡΠΊΠΎΠΉ ΡΠ°Π·Π²Π΅Π΄ΠΊΠΈ Π»ΡΠ±ΡΡ ΡΡΠΎΠ²Π½Π΅ΠΉ (ΡΠΎ ΡΠΊΠ²Π°ΠΆΠΈΠ½Π°ΠΌΠΈ Π΄ΠΎ 300 ΠΌΠ΅ΡΡΠΎΠ²). ΠΠΎ ΠΈ Π΄Π»Ρ ΡΠΎΠ·Π΄Π°Π½ΠΈΡ Π²ΠΎΠ΄ΠΎΠ·Π°Π±ΠΎΡΠ½ΡΡ ΡΠΊΠ²Π°ΠΆΠΈΠ½ Π΄Π»Ρ ΠΎΡΠ³Π°Π½ΠΈΠ·Π°ΡΠΈΠΈ ΠΏΠΎΠ΄Π°ΡΠΈ ΠΏΠΈΡΡΠ΅Π²ΠΎΠΉ ΠΈΠ»ΠΈ ΡΠ΅Ρ Π½ΠΈΡΠ΅ΡΠΊΠΎΠΉ Π²ΠΎΠ΄Ρ Π΄Π»Ρ ΠΏΡΠΎΠΌΡΡΠ»Π΅Π½Π½ΡΡ ΠΈΠ»ΠΈ Π±ΡΡΠΎΠ²ΡΡ ΡΠ΅Π»Π΅ΠΉ. ΠΠ»ΡΡΠΎΠΌ ΡΡΡΠ°Π½ΠΎΠ²ΠΊΠΈ ΡΠ²Π»ΡΠ΅ΡΡΡ ΡΠΎ, ΡΡΠΎ ΠΏΡΠΎΠΈΠ·Π²ΠΎΠ΄ΠΈΡΡΡ ΠΎΠ΄Π½ΠΎΠ²ΡΠ΅ΠΌΠ΅Π½Π½Π°Ρ ΠΏΡΠΎΠ΄ΡΠ²ΠΊΠ° Π»ΠΈΠ±ΠΎ ΠΏΡΠΎΠΌΡΠ²ΠΊΠ° ΠΏΡΠΎΠ±ΡΡΠΈΠ²Π°Π΅ΠΌΡΡ ΡΡΡΠ΅ΠΊΠΎΠ². ΠΡΠΈ ΡΡΠΎΠΌ ΠΏΡΠΎΡΠ΅ΡΡ Π½Π΅ ΠΎΡΡΠ°Π½Π°Π²Π»ΠΈΠ²Π°Π΅ΡΡΡ. ΠΡΠΎ ΠΆΠ΅ ΠΊΠ°ΡΠ°Π΅ΡΡΡ ΠΈ Π½Π°ΡΠ°ΡΠΈΠ²Π°Π½ΠΈΡ Π±ΡΡΠΎΠ²ΠΎΠ³ΠΎ ΠΈΠ½ΡΡΡΡΠΌΠ΅Π½ΡΠ°. ΠΠ³ΠΎ ΠΌΠΎΠΆΠ½ΠΎ ΠΏΡΠΎΠΈΠ·Π²ΠΎΠ΄ΠΈΡΡ Π±Π΅Π· ΠΎΡΡΡΠ²Π° ΠΎΡ ΡΠ°ΠΌΠΎΠ³ΠΎ Π·Π°Π±ΠΎΡ, ΡΡΠΎ ΠΎΠ±Π΅ΡΠΏΠ΅ΡΠΈΠ²Π°Π΅Ρ ΠΎΠΏΡΠΈΠΌΠΈΠ·Π°ΡΠΈΡ ΠΏΡΠΎΡΠ΅ΡΡΠ°.
Π‘Π²ΠΈΠ½ΡΠΈΠ²Π°Π½ΠΈΠ΅/ΡΠ°Π·Π²ΠΈΠ½ΡΠΈΠ²Π°Π½ΠΈΠ΅ ΡΡΡΠ± ΠΏΡΠΎΠΈΠ·Π²ΠΎΠ΄ΠΈΡΡΡ Π·Π° ΡΡΠ΅Ρ Π²ΡΠ°ΡΠ°ΡΠ΅Π»Ρ, ΡΡΠΎ Π΄Π°Π΅Ρ Π²ΠΎΠ·ΠΌΠΎΠΆΠ½ΠΎΡΡΡ Π·Π°Π±ΡΡΡ ΠΎΠ± ΠΈΡΠΏΠΎΠ»ΡΠ·ΠΎΠ²Π°Π½ΠΈΠΈ Π΄ΠΎΠΏΠΎΠ»Π½ΠΈΡΠ΅Π»ΡΠ½ΡΡ ΠΌΠ΅Ρ Π°Π½ΠΈΠ·ΠΌΠΎΠ². ΠΠ°ΠΆΠ΅ ΠΏΡΠΈ Π±ΡΡΠ΅Π½ΠΈΠΈ ΠΏΠ½Π΅Π²ΠΌΠ°ΡΠΈΡΠ΅ΡΠΊΠΈΠΌΠΈ ΡΠ΄Π°ΡΠ½ΠΈΠΊΠ°ΠΌΠΈ ΠΎΠ±Π΅ΡΠΏΠ΅ΡΠΈΠ²Π°Π΅ΡΡΡ Π»ΡΡΡΠ΅Π΅ ΡΠ°Π±ΠΎΡΠ΅Π΅ Π΄Π°Π²Π»Π΅Π½ΠΈΠ΅ Π½Π° Π·Π°Π±ΠΎΠΉ. ΠΠΈΠ΄ΡΠΎΡΠΈΠ»ΠΈΠ½Π΄Ρ ΠΏΠΎΠ΄Π°ΡΠΈ ΠΎΠ±Π΅ΡΠΏΠ΅ΡΠΈΠ²Π°Π΅Ρ ΠΈ ΠΎΠΏΠ΅ΡΠ°ΡΠΈΠΈ ΠΏΠΎΠ΄ΡΠ΅ΠΌΠ°/ΡΠΏΡΡΠΊΠ°, ΠΈ ΠΏΠΎΠ΄Π°ΡΠΈ ΠΈΠ½ΡΡΡΡΠΌΠ΅Π½ΡΠ° Π½Π° Π·Π°Π±ΠΎΠΉ.
Π£ΡΡΡΠΎΠΉΡΡΠ²ΠΎ
Π ΡΡΠ°Π½Π΄Π°ΡΡΠ½ΠΎΠΉ ΠΊΠΎΠΌΠΏΠ»Π΅ΠΊΡΠ°ΡΠΈΠΈ Π£Π Π-2Π2 ΡΠΌΠΎΠ½ΡΠΈΡΠΎΠ²Π°Π½Π° Π½Π° ΡΠΊΡΠ΅ΠΏΠ»Π΅Π½Π½ΠΎΠΉ Π½Π΅ΡΡΡΠ΅ΠΉ ΡΠ°ΠΌΠ΅, ΠΊΠΎΡΠΎΡΠ°Ρ ΡΡΡΠ°Π½ΠΎΠ²Π»Π΅Π½Π° Π½Π° Π±Π°Π·Π΅ ΡΠ»ΡΡΡΠ΅Π½Π½ΠΎΠ³ΠΎ ΠΠΠ-131. ΠΠ½ ΠΈΠΌΠ΅Π΅Ρ ΠΏΠΎΠ²ΡΡΠ΅Π½Π½ΡΡ ΠΏΡΠΎΡ ΠΎΠ΄ΠΈΠΌΠΎΡΡΡ, ΡΡΠΎ ΠΏΠΎΠ΄Ρ ΠΎΠ΄ΠΈΡ Π΄Π»Ρ Π»ΡΠ±ΡΡ ΡΡΠ»ΠΎΠ²ΠΈΠΉ ΡΠ°Π·Π²Π΅Π΄ΠΊΠΈ ΠΈ Π±ΡΡΠ΅Π½ΠΈΡ.
ΠΠ»Π°Π³ΠΎΠ΄Π°ΡΡ ΠΏΠ΅ΡΠ΅ΠΌΠ΅ΡΠ°ΡΡΠ΅ΠΌΡΡΡ Π²ΡΠ°ΡΠ°ΡΠ΅Π»Ρ, ΠΊΠΎΡΠΎΡΡΠΉ ΠΎΠ±ΠΎΡΡΠ΄ΠΎΠ²Π°Π½ Π³ΠΈΠ΄ΡΠΎΠΏΡΠΈΠ²ΠΎΠ΄ΠΎΠΌ, Π²ΠΎΠ·ΠΌΠΎΠΆΠ½Ρ:
- ΠΏΠΎΠ΄ΡΠ΅ΠΌ ΠΈ ΡΠΏΡΡΠΊ Π±ΡΡΠΎΠ²ΠΎΠ³ΠΎ ΠΈΠ½ΡΡΡΡΠΌΠ΅Π½ΡΠ°;
- Π½Π°ΡΠ°ΡΠΈΠ²Π°Π½ΠΈΠ΅ Π΄Π»ΠΈΠ½Ρ Π±Π΅Π· ΠΎΡΡΡΠ²Π° ΠΎΡ Π·Π°Π±ΠΎΡ;
- ΡΠ»ΡΡΡΠ΅Π½ΠΈΠ΅ ΠΊΠ°ΡΠ΅ΡΡΠ²Π° Π±ΡΡΠ΅Π½ΠΈΡ.
ΠΠ»Π°Π³ΠΎΠ΄Π°ΡΡ Π³ΠΈΠ΄ΡΠΎΠΏΡΠΈΠ²ΠΎΠ΄Ρ Π·Π½Π°ΡΠΈΡΠ΅Π»ΡΠ½ΠΎ ΠΎΠ±Π»Π΅Π³ΡΠ΅Π½Ρ Π²ΡΠ΅ ΡΠ°Π±ΠΎΡΡ. ΠΠ³ΠΎ ΡΠΏΡΠ°Π²Π»Π΅Π½ΠΈΠ΅ ΠΏΡΠΎΠΈΠ·Π²ΠΎΠ΄ΠΈΡΡΡ Ρ ΠΏΡΠ»ΡΡΠ° Π±ΡΡΠΈΠ»ΡΡΠΈΠΊΠ°, ΠΊΠΎΡΠΎΡΡΠΉ ΠΎΠ±Π΅ΡΠΏΠ΅ΡΠΈΠ²Π°Π΅Ρ ΡΡΠ²ΡΡΠ²ΠΈΡΠ΅Π»ΡΠ½ΠΎΠ΅ ΠΏΠΎ ΡΠ΅Π³ΡΠ»ΡΡΠΈΠΈ ΠΈ ΠΎΠΏΠ΅ΡΠ°ΡΠΈΠ²Π½ΠΎΠ΅ Π±ΡΡΠ΅Π½ΠΈΠ΅.
ΠΠΈΠ½Π΅ΠΌΠ°ΡΠΈΡΠ΅ΡΠΊΠ°Ρ ΡΠΈΡΡΠ΅ΠΌΠ° ΡΠ΅Π°Π»ΠΈΠ·ΠΎΠ²Π°Π½Π° ΡΠ΅ΡΠ΅Π· Π΄Π²ΠΈΠ³Π°ΡΠ΅Π»Ρ ΠΠΠ-131 Ρ ΠΏΠΎΠΌΠΎΡΡΡ:
- Π±ΡΡΠΎΠ²ΠΎΠ³ΠΎ Π½Π°ΡΠΎΡΠ° ΠΠ-50, Π½Π°ΡΠΎΡΠΎΠ² ΠΠ250/100 ΠΈ ΠΠ¨-10-ΠΠ;
- ΠΊΠΎΠΌΠΏΡΠ΅ΡΡΠΎΡΠ°, Π³ΠΈΠ΄ΡΠΎΠΌΠΎΡΠΎΡΠ° ΠΈ Π²ΡΠ°ΡΠ°ΡΠ΅Π»Ρ;
- ΠΊΠΎΡΠΎΠ±ΠΎΠΊ ΠΏΠ΅ΡΠ΅Π΄Π°Ρ ΠΈ ΡΠ°Π·Π΄Π°ΡΠΎΡΠ½ΠΎΠΉ, Π° ΡΠ°ΠΊΠΆΠ΅ ΠΎΡΠ±ΠΎΡΠ° ΠΌΠΎΡΠ½ΠΎΡΡΠΈ ΠΈ ΡΠ°Π·Π΄Π°ΡΠΎΡΠ½ΠΎΠΉ ΡΠ°ΠΌΠΎΠΉ ΡΡΡΠ°Π½ΠΎΠ²ΠΊΠΈ.

ΠΠΎ ΠΌΠ°ΡΡΠ΅ Π²ΡΠ°ΡΠ°ΡΠ΅Π»Ρ ΠΏΠ΅ΡΠ΅ΠΌΠ΅ΡΠ°Π΅ΡΡΡ Π±Π»Π°Π³ΠΎΠ΄Π°ΡΡ ΡΠ°Π»Π΅Π²ΠΎΠΉ ΡΠΈΡΡΠ΅ΠΌΠ΅ ΠΈ Π³ΠΈΠ΄ΡΠΎΠΏΡΠΈΠ²ΠΎΠ΄Ρ.
Π Π³ΠΈΠ΄ΡΠ°Π²Π»ΠΈΡΠ΅ΡΠΊΠΎΠΉ ΡΠΈΡΡΠ΅ΠΌΠ΅ ΡΡΡΠ°Π½ΠΎΠ²Π»Π΅Π½Ρ ΠΌΠ°Π½ΠΎΠΌΠ΅ΡΡΡ Π΄Π»Ρ ΠΎΠ±Π΅ΡΠΏΠ΅ΡΠ΅Π½ΠΈΡ ΠΎΠΏΡΠΈΠΌΠ°Π»ΡΠ½ΡΡ ΡΠ΅ΠΆΠΈΠΌΠΎΠ² Π±ΡΡΠ΅Π½ΠΈΡ. ΠΠ»Π°Π³ΠΎΠ΄Π°ΡΡ ΡΠΈΠ»ΡΡΡΠ°ΠΌ ΠΏΡΠΎΠΈΠ·Π²ΠΎΠ΄ΠΈΡΡΡ ΠΎΡΠΈΡΡΠΊΠ° ΠΌΠ°ΡΠ»Π°, ΡΡΠΎ ΠΏΡΠΎΠ΄Π»Π΅Π²Π°Π΅Ρ ΡΡΠΎΠΊΠΈ ΡΠΊΡΠΏΠ»ΡΠ°ΡΠ°ΡΠΈΠΈ Π² ΡΠ°Π·Ρ. ΠΡΠ½Π°ΡΠ΅Π½ΠΈΠ΅ Π°Π²Π°ΡΠΈΠΉΠ½ΡΠΌ ΡΡΡΠ½ΡΠΌ Π½Π°ΡΠΎΡΠΎΠΌ Π΄Π°Π΅Ρ Π²ΠΎΠ·ΠΌΠΎΠΆΠ½ΠΎΡΡΡ Π² ΡΡΡΠ½ΠΎΠΌ ΡΠ΅ΠΆΠΈΠΌΠ΅ ΠΎΡΠΊΠ»ΡΡΠΈΡΡ ΡΡΡΠ°Π½ΠΎΠ²ΠΊΡ ΠΏΡΠΈ Π²ΡΡ ΠΎΠ΄Π΅ ΠΈΠ· ΡΡΡΠΎΡ Π°Π²ΡΠΎΠΌΠΎΠ±ΠΈΠ»Ρ. ΠΠΎΠ·ΠΌΠΎΠΆΠ½Ρ ΠΏΠΎΠ΄ΡΠ΅ΠΌΡ ΠΈΠ½ΡΡΡΡΠΌΠ΅Π½ΡΠ° Π² Π°Π²Π°ΡΠΈΠΉΠ½ΠΎΠΌ, ΠΌΠ΅Π΄Π»Π΅Π½Π½ΠΎΠΌ, Π±ΡΡΡΡΠΎΠΌ ΠΈ Π½ΠΎΡΠΌΠ°Π»ΡΠ½ΡΡ ΡΠ΅ΠΆΠΈΠΌΠ°Ρ . ΠΠΎΠΆΠ½ΠΎ ΠΏΠΎΠ΄Π²Π΅ΡΠΈΠ²Π°ΡΡ ΠΈΠ½ΡΡΡΡΠΌΠ΅Π½Ρ Π² Π»ΡΠ±ΠΎΠΌ ΠΈΠ· ΠΏΡΠΈΠΏΠΎΠ΄Π½ΡΡΡΡ ΠΏΠΎΠ»ΠΎΠΆΠ΅Π½ΠΈΠΉ. ΠΠΏΠΎΡΠ½ΡΠ΅ Π΄ΠΎΠΌΠΊΡΠ°ΡΡ Π²ΡΠ΄Π²ΠΈΠ³Π°ΡΡΡΡ. Π‘ΠΏΡΡΠΊ ΠΈΠ½ΡΡΡΡΠΌΠ΅Π½ΡΠ° ΠΌΠΎΠΆΠ΅Ρ Π±ΡΡΡ ΠΈ Π±ΡΡΡΡΡΠΌ, ΠΈ Π½ΠΎΡΠΌΠ°Π»ΡΠ½ΡΠΌ. ΠΡΠΎΡΡΠ°Ρ ΠΈ Π½Π°Π΄Π΅ΠΆΠ½Π°Ρ ΡΠΈΡΡΠ΅ΠΌΠ° Π³ΠΈΠ΄ΡΠ°Π²Π»ΠΈΠΊΠΈ Π΄Π°Π΅Ρ Π²ΠΎΠ·ΠΌΠΎΠΆΠ½ΠΎΡΡΡ ΠΏΠΎΠ»Π½ΠΎΡΠ΅Π½Π½ΠΎΠ³ΠΎ ΡΠΏΡΠ°Π²Π»Π΅Π½ΠΈΡ Π±Π΅Π· ΠΏΡΠΎΠ±Π»Π΅ΠΌ.
Π ΠΊΠΎΡΠΎΠ±ΠΊΠ΅ ΠΎΡΠ±ΠΎΡΠ° ΠΌΠΎΡΠ½ΠΎΡΡΠΈ ΡΠ΅Π°Π»ΠΈΠ·ΠΎΠ²Π°Π½Π° ΠΎΠ΄Π½Π° ΠΏΠ΅ΡΠ΅Π΄Π°ΡΠ° (ΠΌΠ΅Ρ Π°Π½ΠΈΡΠ΅ΡΠΊΠ°Ρ ΠΈ Ρ ΠΌΡΡΡΠΎΠΉ Π²ΠΊΠ»ΡΡΠ΅Π½ΠΈΡ). ΠΠ½Π° Π·Π°ΠΊΡΠ΅ΠΏΠ»Π΅Π½Π° Π² Π²Π΅ΡΡ Π½Π΅ΠΉ ΡΠ°ΡΡΠΈ ΠΊΠ°ΡΡΠ΅ΡΠ° ΡΠ°ΠΌΠΎΠΉ ΠΊΠΎΡΠΎΠ±ΠΊΠΈ ΡΠ°Π·Π΄Π°ΡΠΈ ΠΠΠ-131. ΠΠΊΠ»ΡΡΠ΅Π½ΠΈΠ΅ ΡΠ°Π·Π΄Π°ΡΠΎΡΠ½ΠΎΠΉ ΠΊΠΎΡΠΎΠ±ΠΊΠΈ ΡΠ°ΠΌΠΎΠΉ ΡΡΡΠ°Π½ΠΎΠ²ΠΊΠΈ ΠΏΡΠΎΠΈΡΡ ΠΎΠ΄ΠΈΡ ΡΠ΅ΡΠ΅Π· Π²Π°Π» ΠΊΠ°ΡΠ΄Π°Π½Π½ΡΠΉ ΠΈ ΠΎΡΠ±ΠΎΡ ΠΌΠΎΡΠ½ΠΎΡΡΠΈ. ΠΠ»Π°Π³ΠΎΠ΄Π°ΡΡ ΡΡΠΎΠΉ ΠΊΠΎΡΠΎΠ±ΠΊΠ΅ Π²ΡΠ°ΡΠ΅Π½ΠΈΠ΅ ΠΏΠ΅ΡΠ΅Π΄Π°Π΅ΡΡΡ ΠΈ Π½Π° Π±ΡΡΠΎΠ²ΠΎΠΉ Π½Π°ΡΠΎΡ, ΠΈ Π½Π° ΠΌΠ°ΡΠ»ΡΠ½ΡΠ΅ Π½Π°ΡΠΎΡΡ.
ΠΡΠ°ΡΠ°ΡΠ΅Π»Ρ ΠΏΡΠ΅Π΄ΡΡΠ°Π²Π»Π΅Π½ ΡΡΠ΅Ρ Π²Π°Π»ΠΎΠ²ΠΎΠΉ ΠΊΠΎΡΠΎΠ±ΠΊΠΎΠΉ Ρ ΡΡΠ΅ΠΌΡ ΡΠΊΠΎΡΠΎΡΡΡΠΌΠΈ ΠΈ ΠΏΠ΅ΡΠ΅Π΄Π°ΡΠ°ΠΌΠΈ ΡΠΈΠ»ΠΈΠ½Π΄ΡΠΈΡΠ΅ΡΠΊΠΈΠΌΠΈ ΠΈ Π·ΡΠ±ΡΠ°ΡΡΠΌΠΈ. ΠΠ½ ΡΠ°ΡΠΏΠΎΠ»Π°Π³Π°Π΅ΡΡΡ Π² Π»ΠΈΡΠΎΠΌ ΠΊΠΎΡΠΏΡΡΠ΅ ΠΈΠ· ΡΡΠ°Π»ΠΈ, ΡΡΠΎ Π³Π°ΡΠ°Π½ΡΠΈΡΡΡΡ Π»ΡΡΡΡΡ Π½Π°Π΄Π΅ΠΆΠ½ΠΎΡΡΡ. ΠΠ° ΠΏΡΠ»ΡΡΠ΅ ΠΌΠΎΠΆΠ½ΠΎ ΡΠ΅Π³ΡΠ»ΠΈΡΠΎΠ²Π°ΡΡ ΡΠ°ΡΡΠΎΡΡ Π²ΡΠ°ΡΠ΅Π½ΠΈΡ ΡΠΏΠΈΠ½Π΄Π΅Π»Ρ β ΠΎΡ Π½ΡΠ»Ρ Π²ΠΏΠ»ΠΎΡΡ Π΄ΠΎ ΠΌΠ°ΠΊΡΠΈΠΌΡΠΌΠ°.
Π‘Ρ Π΅ΠΌΠ° Π²ΡΠ°ΡΠ°ΡΠ΅Π»Ρ ΡΠΏΠΈΠ½Π΄Π΅Π»ΡΠ½ΠΎΠ³ΠΎ ΡΠΈΠΏΠ°
ΠΠ»Π°Π³ΠΎΠ΄Π°ΡΡ ΡΠΎΠΌΡ, ΡΡΠΎ Π³ΠΈΠ΄ΡΠΎΠ΄ΠΎΠΌΠΊΡΠ°Ρ ΠΏΠΎΠ΄Π°ΡΠΈ ΡΠΎΡΡΠΎΠΈΡ ΠΈΠ· ΡΡΠΎΠΊΠΎΠ²ΠΎΠΉ ΠΈ ΡΠΈΠ»ΠΈΠ½Π΄ΡΠΈΡΠ΅ΡΠΊΠΎΠΉ ΡΠ°ΡΡΠΈ, ΠΏΠΎΡΠ»Π΅Π΄Π½ΡΡ ΠΏΡΠΈΠ½ΠΈΠΌΠ°Π΅Ρ Π½Π° ΡΠ΅Π±Ρ ΡΠ°ΡΡΡ ΡΠ΅Π°ΠΊΡΠΈΠ²Π½ΠΎΠΉ Π½Π°Π³ΡΡΠ·ΠΊΠΈ Π²ΡΠ°ΡΠ΅Π½ΠΈΡ. ΠΠ½ ΠΈΠΌΠ΅Π΅Ρ ΠΎΠ΄Π½Ρ ΡΡΡΠΏΠ΅Π½Ρ Π΄Π²ΠΎΠΉΠ½ΠΎΠ³ΠΎ Π΄Π΅ΠΉΡΡΠ²ΠΈΡ. Π‘Π°ΠΌΠ° ΠΌΠ°ΡΡΠ° Π²ΡΠΏΠΎΠ»Π½Π΅Π½Π° Π-ΠΎΠ±ΡΠ°Π·Π½ΠΎΠΉ ΡΠΎΡΠΌΡ ΠΈΠ· ΡΠ²Π΅Π»Π»Π΅ΡΠΎΠ² Ρ Π΄ΠΎΠΏΠΎΠ»Π½ΠΈΡΠ΅Π»ΡΠ½ΡΠΌΠΈ ΠΏΠΎΠΏΠ΅ΡΠ΅ΡΠ½ΡΠΌΠΈ Π±Π°Π»ΠΊΠ°ΠΌΠΈ. ΠΠ½ΡΡΡΠΈ Π½Π°Ρ ΠΎΠ΄ΠΈΡΡΡ Π½Π΅ ΡΠΎΠ»ΡΠΊΠΎ Π³ΠΈΠ΄ΡΠΎΠ΄ΠΎΠΌΠΊΡΠ°Ρ, Π½ΠΎ ΠΈ 2 ΡΡΡΠ±Ρ, ΠΏΡΠΈΠ½ΠΈΠΌΠ°ΡΡΠΈΠ΅ Π½Π° ΡΠ΅Π±Ρ Π½Π°Π³ΡΡΠ·ΠΊΡ. Π’Π°ΠΊΠ°Ρ ΠΆΠ΅ΡΡΠΊΠ°Ρ ΠΊΠΎΠ½ΡΡΡΡΠΊΡΠΈΡ Π΄Π°Π΅Ρ Π»ΡΡΡΠΈΠ΅ ΠΏΠΎΠΊΠ°Π·Π°Π½ΠΈΡ ΠΏΠΎ Π±ΡΡΠ΅Π½ΠΈΡ Π΄Π°ΠΆΠ΅ Π² ΡΡΠΆΠ΅Π»ΡΡ ΡΡΠ»ΠΎΠ²ΠΈΡΡ . ΠΠ°Π»ΠΈΡΠΈΠ΅ ΡΡΠΎΠ»Π° Π΄Π»Ρ ΡΠ΅Π½ΡΡΠ°ΡΠΈΠΈ Π΄Π°Π΅Ρ Π²ΠΎΠ·ΠΌΠΎΠΆΠ½ΠΎΡΡΡ Π±ΠΎΠ»Π΅Π΅ ΠΏΡΠΎΡΡΠΎΠ³ΠΎ ΠΈΡΠΏΠΎΠ»ΡΠ·ΠΎΠ²Π°Π½ΠΈΡ Π±ΡΡΠΎΠ²ΠΎΠ³ΠΎ ΠΈΠ½ΡΡΡΡΠΌΠ΅Π½ΡΠ°.
Π’Π°Π»Π΅Π²Π°Ρ ΡΠΈΡΡΠ΅ΠΌΠ° Π΄Π°Π΅Ρ Π²ΠΎΠ·ΠΌΠΎΠΆΠ½ΠΎΡΡΡ ΡΠ΄Π²ΠΎΠΈΡΡ Ρ ΠΎΠ΄ Π²ΡΠ°ΡΠ°ΡΠ΅Π»Ρ ΠΈ ΠΈΠΌΠ΅Π΅Ρ Π½Π°Π΄Π΅ΠΆΠ½ΡΡ ΠΈ ΠΏΡΠΎΡΡΡΡ ΠΊΠΎΠ½ΡΡΡΡΠΊΡΠΈΡ (Π΄Π²ΡΡ ΠΊΠ°Π½Π°ΡΠ½ΡΡ ΠΈ Ρ 2 Π½Π°ΡΡΠΆΠ½ΡΠΌΠΈ ΡΡΡΡΠΎΠΉΡΡΠ²Π°ΠΌΠΈ). ΠΠ»Π΅Π²Π°ΡΠΎΡ Π΄Π°Π΅Ρ Π²ΠΎΠ·ΠΌΠΎΠΆΠ½ΠΎΡΡΡ Π²ΡΠΏΠΎΠ»Π½Π΅Π½ΠΈΡ ΡΠ²ΠΈΠ½ΡΠΈΠ²Π°Π½ΠΈΡ/ΡΠ°Π·Π²ΠΈΠ½ΡΠΈΠ²Π°Ρ ΡΡΡΠ± Π΄Π»Ρ Π±ΡΡΠ΅Π½ΠΈΡ ΠΈ ΡΠΏΡΡΠΊΠ°/ΠΏΠΎΠ΄ΡΠ΅ΠΌΠ° ΠΈΠ½ΡΡΡΡΠΌΠ΅Π½ΡΠ°. ΠΠΌ Π»Π΅Π³ΠΊΠΎ ΡΠΏΡΠ°Π²Π»ΡΡΡ Π±Π»Π°Π³ΠΎΠ΄Π°ΡΡ ΠΊΠ°ΡΠ΅ΡΡΠ²Π΅Π½Π½ΠΎΠΌΡ ΠΊΡΠ΅ΠΏΠ»Π΅Π½ΠΈΡ ΠΈ ΡΡΡΡΠΎΠΉΡΡΠ²Ρ. ΠΠ°ΡΡΠΎΠ½Ρ Π΄Π»Ρ ΡΠ½Π΅ΠΊΠΎΠ² ΠΏΠΎΠ·Π²ΠΎΠ»ΡΡΡ Π½Π°ΡΠ°ΡΠΈΠ²Π°ΡΡ ΠΈ ΠΏΠΎΠ΄Π½ΠΈΠΌΠ°ΡΡ ΡΠ½Π΅ΠΊΠΈ Π² Π±Π΅Π·ΠΎΠΏΠ°ΡΠ½ΠΎΠΌ ΡΠ΅ΠΆΠΈΠΌΠ΅, Π³Π°ΡΠ°Π½ΡΠΈΡΠΎΠ²Π°ΡΡ ΠΊΠ°ΡΠ΅ΡΡΠ²ΠΎ ΡΠ½Π΅ΠΊΠΎΠ²ΠΎΠ³ΠΎ Π±ΡΡΠ΅Π½ΠΈΡ.
ΠΠ»Π°Π³ΠΎΠ΄Π°ΡΡ ΠΌΠ΅Ρ Π°Π½ΠΈΠ·ΠΌΡ ΠΏΠ΅ΡΠ΅ΠΌΠ΅ΡΠ΅Π½ΠΈΡ Π²ΡΠ°ΡΠ°ΡΠ΅Π»Ρ (Π³ΠΈΠ΄ΡΠΎΠ΄ΠΎΠΌΠΊΡΠ°Ρ ΠΏΠ»ΡΡ ΠΏΠΎΠ»ΠΈΠΏΠ»Π°ΡΡΠ½Π°Ρ ΡΠΈΡΡΠ΅ΠΌΠ°) ΠΎΠ±Π΅ΡΠΏΠ΅ΡΠΈΠ²Π°Π΅ΡΡΡ ΡΠ΄Π²ΠΎΠ΅Π½Π½Π°Ρ ΡΠΊΠΎΡΠΎΡΡΡ Π΄Π²ΠΈΠΆΠ΅Π½ΠΈΡ. ΠΠ°ΡΡΠ° ΠΏΠ΅ΡΠ΅Π²ΠΎΠ΄ΠΈΡΡΡ Π°Π²ΡΠΎΠΌΠ°ΡΠΈΡΠ΅ΡΠΊΠΈ Π² ΡΡΠ°Π½ΡΠΏΠΎΡΡΠ½ΠΎΠ΅ ΠΏΠΎΠ»ΠΎΠΆΠ΅Π½ΠΈΠ΅, Π΅ΡΠ»ΠΈ ΠΏΡΠΎΠΈΡΡ ΠΎΠ΄ΠΈΡ ΠΏΠΎΠ»ΠΎΠΌΠΊΠ° ΡΡΠ°Π½ΡΠΌΠΈΡΡΠΈΠΈ Π»ΠΈΠ±ΠΎ ΠΏΡΠΈΠ²ΠΎΠ΄Π½ΠΎΠ³ΠΎ Π΄Π²ΠΈΠ³Π°ΡΠ΅Π»Ρ. ΠΠΏΠΎΡΠ½ΡΠ΅ Π΄ΠΎΠΌΠΊΡΠ°ΡΡ Π΄Π°ΡΡ ΡΠ°Π·Π³ΡΡΠ·ΠΊΡ ΡΠ°ΡΡΠΈ ΠΠΠ-131 Π°Π²ΡΠΎΠΌΠ°ΡΠΈΡΠ΅ΡΠΊΠΈ ΠΏΡΠΈ ΠΏΠΎΠ΄ΡΠ΅ΠΌΠ΅ ΠΈΠ½ΡΡΡΡΠΌΠ΅Π½ΡΠ°.
Π’Π΅Ρ Π½ΠΈΡΠ΅ΡΠΊΠΈΠ΅ Ρ Π°ΡΠ°ΠΊΡΠ΅ΡΠΈΡΡΠΈΠΊΠΈ
ΠΠ»ΡΠ±ΠΈΠ½Π° ΠΈ Π΄ΠΈΠ°ΠΌΠ΅ΡΡ Π±ΡΡΠ΅Π½ΠΈΡ:
| ΠΠ°ΡΠ°ΠΌΠ΅ΡΡΡ | ΠΠ΄.ΠΈΠ·ΠΌΠ΅ΡΠ΅Π½ΠΈΡ | ΠΠΎΠΊΠ°Π·Π°ΡΠ΅Π»ΠΈ |
| ΠΠ»ΡΠ±ΠΈΠ½Π° Π±ΡΡΠ΅Π½ΠΈΡ | ΠΌ | |
| Π‘ΡΡΡΠΊΡΡΡΠ½ΡΠ΅ ΡΠΊΠ²Π°ΠΆΠΈΠ½Ρ Ρ ΠΏΡΠΎΠΌΡΠ²ΠΊΠΎΠΉ | ΠΌ | 300 |
| ΠΠ΅ΠΎΡΠΈΠ·ΠΈΡΠ΅ΡΠΊΠΈΠ΅ ΡΠΊΠ²Π°ΠΆΠΈΠ½Ρ | ||
| β Ρ ΠΏΡΠΎΠΌΡΠ²ΠΊΠΎΠΉ | ΠΌ | 100 |
| β Ρ ΠΏΡΠΎΠ΄ΡΠ²ΠΊΠΎΠΉ | ΠΌ | 30 |
| β ΡΠ½Π΅ΠΊΠ°ΠΌΠΈ | ΠΌ | 30 |
| ΠΠΈΠ°ΠΌΠ΅ΡΡ Π±ΡΡΠ΅Π½ΠΈΡ Π½Π°ΡΠ°Π»ΡΠ½ΡΠΉ (Ρ ΠΏΡΠΎΠΌΡΠ²ΠΊΠΎΠΉ) | ΠΌΠΌ | 190 |
| ΠΠΈΠ°ΠΌΠ΅ΡΡ Π±ΡΡΠ΅Π½ΠΈΡ ΠΊΠΎΠ½Π΅ΡΠ½ΡΠΉ (Ρ ΠΏΡΠΎΠΌΡΠ²ΠΊΠΎΠΉ) | ||
| β Π³Π΅ΠΎΡΠΈΠ·ΠΈΡΠ΅ΡΠΊΠΈΠ΅ ΡΠΊΠ²Π°ΠΆΠΈΠ½Ρ | ΠΌΠΌ | 118 |
| β ΡΡΡΡΠΊΡΡΡΠ½ΠΎ-ΠΏΠΎΠΈΡΠΊΠΎΠ²ΡΠ΅ ΡΠΊΠ²Π°ΠΆΠΈΠ½Ρ | ΠΌΠΌ | 93 |
| ΠΠΈΠ°ΠΌΠ΅ΡΡ Π±ΡΡΠ΅Π½ΠΈΡ Ρ ΠΏΡΠΎΠ΄ΡΠ²ΠΊΠΎΠΉ | ΠΌΠΌ | 118 |
| ΠΠΈΠ°ΠΌΠ΅ΡΡ Π±ΡΡΠ΅Π½ΠΈΡ ΡΠ½Π΅ΠΊΠ°ΠΌΠΈ | ΠΌΠΌ | 135 |
Π₯Π°ΡΠ°ΠΊΡΠ΅ΡΠΈΡΡΠΈΠΊΠΈ Π²ΡΠ°ΡΠ°ΡΠ΅Π»Ρ ΠΏΠΎΠ΄Π²ΠΈΠΆΠ½ΠΎΠ³ΠΎ ΡΠΈΠΏΠ° Ρ Ρ ΠΎΠ΄ΠΎΠΌ 5200 ΠΌΠΌ.
| ΠΠΎ ΡΠ°ΡΡΠΎΡΠ΅ Π²ΡΠ°ΡΠ°Π½Π΅Π½ΠΈΡ | ΠΠΎ ΠΌΠΎΠΌΠ΅Π½ΡΡ | ||
| ΠΠ΅ΡΠ²Π°Ρ ΡΠΊΠΎΡΠΎΡΡΡ | 140 ΠΎΠ±/ΠΌΠΈΠ½ | 2010Π/ΠΌ | 205 ΠΊΠ³Ρ/ΠΌ |
| ΠΡΠΎΡΠ°Ρ ΡΠΊΠΎΡΠΎΡΡΡ | 225 ΠΎΠ±/ΠΌΠΈΠ½ | 1210 Π/ΠΌ | 123 ΠΊΠ³Ρ/ΠΌ |
| Π’ΡΠ΅ΡΡΡ ΡΠΊΠΎΡΠΎΡΡΡ | 325 ΠΎΠ±/ΠΌΠΈΠ½ | 830 Π/ΠΌ | 85 ΠΊΠ³Ρ/ΠΌ |
Π’Π΅Ρ Π½ΠΈΡΠ΅ΡΠΊΠΈΠ΅ Ρ Π°ΡΠ°ΠΊΡΠ΅ΡΠΈΡΡΠΈΠΊΠΈ Π±ΡΡΠΎΠ²ΠΎΠΉ ΡΡΡΠ°Π½ΠΎΠ²ΠΊΠΈ Π£Π Π 2Π°2 ΠΏΡΠ΅Π΄ΡΡΠ°Π²Π»Π΅Π½Ρ Π² ΡΠ°Π±Π»ΠΈΡΠ΅:
| ΠΠ°ΡΠ°ΠΌΠ΅ΡΡΡ | ΠΠ΄. ΠΈΠ·ΠΌΠ΅ΡΠ΅Π½ΠΈΡ | ΠΠΎΠΊΠ°Π·Π°ΡΠ΅Π»ΠΈ |
| ΠΡΠΈΠ²ΠΎΠ΄ Π²ΡΠ°ΡΠ°ΡΠ΅Π»Ρ | ||
| Π’ΠΈΠΏ | Π°ΠΊΡΠΈΠ°Π»ΡΠ½ΠΎ-ΠΏΠΎΡΡΠ½Π΅Π²ΠΎΠΉ | |
| Π Π°Π±. Π΄Π°Π²Π»Π΅Π½ΠΈΠ΅ Π³ΠΈΠ΄ΡΠΎΡΠΈΡΡΠ΅ΠΌΡ | ΠΠΠ° | 980 |
| ΠΊΠ³Ρ/ΡΠΌ2 | 100 | |
| ΠΠ΅Ρ Π°Π½ΠΈΠ·ΠΌ ΡΠΏΡΡΠΊΠ°/ΠΏΠΎΠ΄Π°ΡΠΈ/ΠΏΠΎΠ΄ΡΠ΅ΠΌΠ° ΠΈΠ½ΡΡΡΡΠΌΠ΅Π½ΡΠ° | ||
| ΠΠΎΠΌΠΊΡΠ°Ρ Ρ ΠΏΠΎΠ»ΠΈΠΏΠ»Π°ΡΡΠ½ΠΎΠΉ ΡΠΈΡΡΠ΅ΠΌΠΎΠΉ | Π³ΠΈΠ΄ΡΠ°Π²Π»ΠΈΡΠ΅ΡΠΊΠΈΠΉ | |
| ΠΡΡΠ·ΠΎΠΏΠΎΠ΄ΡΠ΅ΠΌΠ½ΠΎΡΡΡ | Π | 45 |
| ΠΊΠ³Ρ | 4600 | |
| Π£ΡΠΈΠ»ΠΈΠ΅ Π²Π½ΠΈΠ· (ΠΏΡΠΈ Π΄Π°Π²Π»Π΅Π½ΠΈΠΈ 85 ΠΊΠ³Ρ/ΡΠΌ2) | Π | 25500 |
| Π‘ΠΊΠΎΡΠΎΡΡΡ ΠΏΠΎΠ΄ΡΠ΅ΠΌΠ° | ΠΌ./ΡΠ΅ΠΊ | 0-1,1 |
| ΠΡΡΠΈΠ»ΡΠ½ΡΠ΅ ΡΡΡΠ±Ρ | ||
| ΠΠΈΠ°ΠΌΠ΅ΡΡ | ΠΌΠΌ | 50 (60,3) |
| ΠΠ»ΠΈΠ½Π° | ΠΌΠΌ | 4500 |
| ΠΠ°ΡΡΠ° | ||
| Π’ΠΈΠΏ | Π‘Π²Π°ΡΠ½ΠΎΠΉ Ρ Π³ΠΈΠ΄ΡΠ°Π²Π»ΠΈΡΠ΅ΡΠΊΠΈΠΌΠΈ Π΄ΠΎΠΌΠΊΡΠ°ΡΠ°ΠΌΠΈ | |
| ΠΡΡΠ·ΠΎΠΏΠΎΠ΄ΡΠ΅ΠΌΠ½ΠΎΡΡΡ | Π | 58800 |
| ΠΊΠ³Ρ | 6000 | |
| ΠΠΎΠΌΠΏΡΠ΅ΡΡΠΎΡ | ||
| Π’ΠΈΠΏ | ΠΠ‘ΠΠ£-4ΠΠ£1-5/9 | |
| ΠΠ°ΠΊΡ. ΠΏΡΠΎΠΈΠ·Π²ΠΎΠ΄ΠΈΡΠ΅Π»ΡΠ½ΠΎΡΡΡ | ΠΌ3/ΠΌΠΈΠ½ | 10 (Β±0,5) |
| ΠΠ°Π²Π»Π΅Π½ΠΈΠ΅ (Π½ΠΎΠΌΠΈΠ½Π°Π»ΡΠ½ΠΎΠ΅, ΠΈΠ·Π±ΡΡΠΎΡΠ½ΠΎΠ΅, Π½Π° Π²ΡΡ ΠΎΠ΄Π΅) | ΠΠΠ° | 0,8 |
| ΠΊΠ³Ρ/ΡΠΌ2 | 8 | |
| ΠΡΡΠΎΠ²ΠΎΠΉ Π½Π°ΡΠΎΡ | ||
| Π’ΠΈΠΏ | ΠΠ-32 | |
| ΠΠΎΠ΄Π°ΡΠ° | ||
| β Ρ ΠΏΠΎΡΡΠ½Π΅ΠΌ Π΄ΠΈΠ°ΠΌΠ΅ΡΡΠΎΠΌ 100 ΠΌΠΌ | ΠΌ3/ΡΠ°Ρ | Π½Π΅ ΠΌΠ΅Π½Π΅Π΅ 26,3 |
| β Ρ ΠΏΠΎΡΡΠ½Π΅ΠΌ Π΄ΠΈΠ°ΠΌΠ΅ΡΡΠΎΠΌ 110 ΠΌΠΌ | ΠΌ3/ΡΠ°Ρ | Π½Π΅ ΠΌΠ΅Π½Π΅Π΅ 32,4 |
| ΠΠ°Π²Π»Π΅Π½ΠΈΠ΅ Π½Π° Π²ΡΡ ΠΎΠ΄Π΅ (Π½Π°ΠΈΠ±ΠΎΠ»ΡΡΠ΅Π΅) | ||
| β Ρ ΠΏΠΎΡΡΠ½Π΅ΠΌ Π΄ΠΈΠ°ΠΌΠ΅ΡΡΠΎΠΌ 100 ΠΌΠΌ | ΠΠΠ | Π½Π΅ ΠΌΠ΅Π½Π΅Π΅ 3,2 |
| β Ρ ΠΏΠΎΡΡΠ½Π΅ΠΌ Π΄ΠΈΠ°ΠΌΠ΅ΡΡΠΎΠΌ 110 ΠΌΠΌ | ΠΠΠ° | Π½Π΅ ΠΌΠ΅Π½Π΅Π΅ 2,6 |
magistraltrade.ru




