ΠΠ΅Π½ΡΠΎΡΠ½ΡΠΉ ΠΊΠΎΠ½Π²Π΅ΠΉΠ΅Ρ β ΡΡΡΡΠΎΠΉΡΡΠ²ΠΎ ΠΈ ΠΏΡΠΈΠΌΠ΅Π½Π΅Π½ΠΈΠ΅
Π Π΅Π΄ΠΊΠΎΠ΅ ΠΏΡΠΎΠΌΡΡΠ»Π΅Π½Π½ΠΎΠ΅ ΠΏΡΠΎΠΈΠ·Π²ΠΎΠ΄ΡΡΠ²ΠΎ ΠΎΠ±Ρ ΠΎΠ΄ΠΈΡΡΡ Π±Π΅Π· ΠΊΠΎΠ½Π²Π΅ΠΉΠ΅ΡΠ½ΡΡ Π»ΠΈΠ½ΠΈΠΉ, ΠΊΠΎΡΠΎΡΡΠ΅ ΠΌΠΎΠ³ΡΡ ΠΎΡΠ»ΠΈΡΠ°ΡΡΡΡ ΠΊΠΎΠ½ΡΡΡΡΠΊΡΠΈΠ²Π½ΠΎ, ΠΏΠΎ ΡΠΈΠΏΡ ΠΏΠ΅ΡΠ΅ΠΌΠ΅ΡΠ°Π΅ΠΌΡΡ Π³ΡΡΠ·ΠΎΠ², ΠΏΡΠΎΠΈΠ·Π²ΠΎΠ΄ΠΈΡΠ΅Π»ΡΠ½ΠΎΡΡΠΈ, Π΄ΠΎΠΏΡΡΡΠΈΠΌΡΠΌ ΡΠ΅ΠΆΠΈΠΌΠ°ΠΌ ΡΠ°Π±ΠΎΡΡ ΠΈ Ρ. Π΄. Π ΡΡΠ΄Ρ Π½Π°ΠΈΠ±ΠΎΠ»Π΅Π΅ ΠΏΠΎΠΏΡΠ»ΡΡΠ½ΡΡ ΠΎΠΊΠ°Π·Π°Π»ΠΈΡΡ Π»Π΅Π½ΡΠΎΡΠ½ΡΠ΅ ΠΊΠΎΠ½Π²Π΅ΠΉΠ΅ΡΡ, ΡΡΡΡΠΎΠΉΡΡΠ²ΠΎ ΠΈ ΠΏΡΠΈΠΌΠ΅Π½Π΅Π½ΠΈΠ΅ ΠΊΠΎΡΠΎΡΡΡ Π½Π΅ΠΎΠ±Ρ ΠΎΠ΄ΠΈΠΌΠΎ ΡΠΎΡΠ½ΠΎ Π·Π½Π°ΡΡ Π΄Π»Ρ ΠΏΡΠ°Π²ΠΈΠ»ΡΠ½ΠΎΠ³ΠΎ Π²ΡΠ±ΠΎΡΠ° ΠΎΠ±ΠΎΡΡΠ΄ΠΎΠ²Π°Π½ΠΈΡ.
ΠΠ΅Π½ΡΠΎΡΠ½ΡΠ΅ ΠΊΠΎΠ½Π²Π΅ΠΉΠ΅ΡΡ ΠΏΡΠΈΠ·Π²Π°Π½Ρ ΠΎΠ±Π΅ΡΠΏΠ΅ΡΠΈΡΡ Π½Π΅ΠΏΡΠ΅ΡΡΠ²Π½ΠΎΡΡΡ ΡΠ΅Ρ Π½ΠΎΠ»ΠΎΠ³ΠΈΡΠ΅ΡΠΊΠΎΠ³ΠΎ ΠΏΡΠΎΡΠ΅ΡΡΠ° Π΄ΠΎΡΡΠ°Π²ΠΊΠΈ, ΡΡΠ°Π½ΡΠΏΠΎΡΡΠΈΡΠΎΠ²ΠΊΠΈ ΡΡΡΡΡ, ΠΈΠ·Π΄Π΅Π»ΠΈΠΉ ΠΊ ΠΌΠ΅ΡΡΡ ΠΎΠ±ΡΠ°Π±ΠΎΡΠΊΠΈ, ΠΏΠ΅ΡΠ΅ΡΠ°Π±ΠΎΡΠΊΠΈ, ΠΈΠ·Π³ΠΎΡΠΎΠ²Π»Π΅Π½ΠΈΡ ΠΈ Π΄Π°Π»ΡΡΠ΅ Π² ΡΠΎΠΎΡΠ²Π΅ΡΡΡΠ²ΠΈΠΈ Ρ ΡΠ΅Ρ Π½ΠΎΠ»ΠΎΠ³ΠΈΡΠ΅ΡΠΊΠΎΠΉ ΠΊΠ°ΡΡΠΎΠΉ ΠΊΠΎΠ½ΠΊΡΠ΅ΡΠ½ΠΎΠ³ΠΎ ΠΏΡΠΎΠΈΠ·Π²ΠΎΠ΄ΡΡΠ²Π΅Π½Π½ΠΎΠ³ΠΎ ΡΠΈΠΊΠ»Π°.
ΠΠΎΠ½ΡΡΡΡΠΊΡΠΈΠ²Π½ΡΠ΅ ΠΎΡΠΎΠ±Π΅Π½Π½ΠΎΡΡΠΈ Π»Π΅Π½ΡΠΎΡΠ½ΡΡ
ΡΡΠ°Π½ΡΠΏΠΎΡΡΠ΅ΡΠΎΠ² ΠΎΠ±Π΅ΡΠΏΠ΅ΡΠΈΠ²Π°ΡΡ ΠΏΠ΅ΡΠ΅ΠΌΠ΅ΡΠ΅Π½ΠΈΠ΅ ΡΡΠΏΡΡΠΈΡ
ΠΈ ΠΊΡΡΠΊΠΎΠ²ΡΡ
ΠΌΠ°ΡΠ΅ΡΠΈΠ°Π»ΠΎΠ² ΠΏΡΠΈ ΡΠ°Π·Π½ΠΎΠΌ ΡΠ³Π»Π΅ Π½Π°ΠΊΠ»ΠΎΠ½Π° — ΠΎΡ 0 Π΄ΠΎ 90 Π³ΡΠ°Π΄ΡΡΠΎΠ². ΠΠ»ΠΈΠ½Π° ΡΠ°ΠΊΠΈΡ
ΡΡΠ°ΡΡ ΠΈ ΠΈΡ
ΡΠΎΡΡΠ°Π² β ΠΊΠΎΠΌΠ±ΠΈΠ½Π°ΡΠΈΡ Π³ΠΎΡΠΈΠ·ΠΎΠ½ΡΠ°Π»ΡΠ½ΡΡ
ΠΈ Π½Π°ΠΊΠ»ΠΎΠ½Π½ΡΡ
ΡΡΠ°ΡΡΠΊΠΎΠ², ΠΌΠΎΠ³ΡΡ Π²Π°ΡΡΠΈΡΠΎΠ²Π°ΡΡ Π² ΡΠΈΡΠΎΠΊΠΈΡ
ΠΏΡΠ΅Π΄Π΅Π»Π°Ρ
: Π΄ΠΎ 10-12 ΠΊΠΌ Π² Π΄Π»ΠΈΠ½Ρ Ρ ΡΠΎΠ²Π΅ΡΡΠ΅Π½Π½ΠΎ ΡΠ°Π·Π½ΡΠΌ ΠΊΠΎΠ»ΠΈΡΠ΅ΡΡΠ²ΠΎΠΌ ΡΠ΅ΠΊΡΠΎΡΠΎΠ².
ΠΠ°ΡΠ΅ΡΡΠ²ΠΎ ΠΏΠΎΠ»ΠΎΡΠ½Π° ΡΠ°ΠΊΠΆΠ΅ ΠΌΠΎΠΆΠ΅Ρ Π±ΡΡΡ ΡΠ°Π·Π½ΡΠΌ β ΠΏΡΠΎΡΠ΅Π·ΠΈΠ½Π΅Π½Π½Π°Ρ ΡΠΊΠ°Π½Ρ, Π±ΡΠ΅Π·Π΅Π½Ρ, ΡΠΈΠ½ΡΠ΅ΡΠΈΠΊΠ° (ΠΠΠ₯), ΠΏΠΈΡΠ΅Π²ΠΎΠ΅ ΠΏΠΎΠΊΡΡΡΠΈΠ΅, ΡΠ΅ΡΡΠ°ΡΠ°Ρ ΠΈ ΡΠΏΠ»ΠΎΡΠ½Π°Ρ Π»Π΅Π½ΡΠ° Ρ ΡΠ°Π·Π½ΠΎΠ³ΠΎ ΡΠΈΠΏΠ° ΡΠΎΠ΅Π΄ΠΈΠ½Π΅Π½ΠΈΠ΅ΠΌ ΡΠ»Π΅ΠΌΠ΅Π½ΡΠΎΠ² β Π³ΠΎΡΡΡΠ°Ρ ΠΈ Ρ ΠΎΠ»ΠΎΠ΄Π½Π°Ρ Π²ΡΠ»ΠΊΠ°Π½ΠΈΠ·Π°ΡΠΈΡ, ΠΌΠ΅Ρ Π°Π½ΠΈΡΠ΅ΡΠΊΠΎΠ΅ ΠΊΡΠ΅ΠΏΠ»Π΅Π½ΠΈΠ΅. ΠΠΎΠ»ΠΎΡΠ½ΠΎ Π² Π·Π°Π²ΠΈΡΠΈΠΌΠΎΡΡΠΈ ΠΎΡ ΠΏΠ΅ΡΠ΅ΠΌΠ΅ΡΠ°Π΅ΠΌΡΡ ΠΌΠ°ΡΠ΅ΡΠΈΠ°Π»ΠΎΠ² ΠΈΠ»ΠΈ ΠΈΠ·Π΄Π΅Π»ΠΈΠΉ ΠΌΠΎΠΆΠ΅Ρ ΠΈΠΌΠ΅ΡΡ ΡΠ°Π·Π½ΡΡ ΠΊΠΎΠ½ΡΠΈΠ³ΡΡΠ°ΡΠΈΡ ΠΏΡΠΎΡΠΈΠ»Ρ β Ρ ΠΏΠ΅ΡΠ΅Π³ΠΎΡΠΎΠ΄ΠΊΠ°ΠΌΠΈ, Π±ΠΎΡΡΠ°ΠΌΠΈ, Π³Π»Π°Π΄ΠΊΡΡ ΠΈΠ»ΠΈ ΡΠΈΡΠ»Π΅Π½ΡΡ, ΠΆΠ΅Π»ΠΎΠ±ΡΠ°ΡΡΡ.
ΠΠ°ΠΆΠ½ΡΠΌΠΈ Ρ Π°ΡΠ°ΠΊΡΠ΅ΡΠΈΡΡΠΈΠΊΠ°ΠΌΠΈ ΡΠ²Π»ΡΡΡΡΡ ΡΠ»Π΅Π΄ΡΡΡΠΈΠ΅:
- ΠΏΡΠΎΠΈΠ·Π²ΠΎΠ΄ΠΈΡΠ΅Π»ΡΠ½ΠΎΡΡΡ, ΠΊΠΎΡΠΎΡΡΡ ΠΈΠ·ΠΌΠ΅ΡΡΡΡ Π² ΠΎΠ±ΡΠ΅ΠΌΠ΅ β ΠΊΡΠ±ΠΎΠΌΠ΅ΡΡΠ°Ρ , ΠΏΠ΅ΡΠ΅ΠΌΠ΅ΡΠ°Π΅ΠΌΡΡ Π·Π° 1 ΡΠ°Ρ ΡΠ°Π±ΠΎΡΠ΅Π³ΠΎ Π²ΡΠ΅ΠΌΠ΅Π½ΠΈ;
- ΡΠΊΠΎΡΠΎΡΡΡ Π΄Π²ΠΈΠΆΠ΅Π½ΠΈΡβ 0,5-5 ΠΌ/Ρ;
- ΡΠ³ΠΎΠ» Π½Π°ΠΊΠ»ΠΎΠ½Π° Π½Π΅ΡΡΡΠ΅ΠΉ ΠΏΠΎΠ²Π΅ΡΡ Π½ΠΎΡΡΠΈ;
- ΡΠΏΠΎΡΠΎΠ± Π·Π°Π³ΡΡΠ·ΠΊΠΈ.
Π‘ΠΊΠΎΡΠΎΡΡΡ Π΄ΠΎΠ»ΠΆΠ½Π° Π±ΡΡΡ ΡΠ΅Π³ΡΠ»ΠΈΡΡΠ΅ΠΌΠΎΠΉ ΠΈ Π²ΡΠ±ΠΈΡΠ°Π΅ΠΌΠΎΠΉ Π² ΡΠΎΠΎΡΠ²Π΅ΡΡΡΠ²ΠΈΠΈ Ρ ΡΠ΅Ρ Π½ΠΎΠ»ΠΎΠ³ΠΈΡΠ΅ΡΠΊΠΎΠΉ ΠΊΠ°ΡΡΠΎΠΉ ΠΊΠΎΠ½ΠΊΡΠ΅ΡΠ½ΠΎΠΉ ΠΏΡΠΎΠΈΠ·Π²ΠΎΠ΄ΡΡΠ²Π΅Π½Π½ΠΎΠΉ ΠΎΠΏΠ΅ΡΠ°ΡΠΈΠΈ.
ΠΠ°ΠΊ ΡΡΡΡΠΎΠ΅Π½ Π»Π΅Π½ΡΠΎΡΠ½ΡΠΉ ΠΊΠΎΠ½Π²Π΅ΠΉΠ΅ΡΠΡΠ½ΠΎΠ²Π½ΡΠΌΠΈ ΡΠ·Π»Π°ΠΌΠΈ ΡΡΠ°Π½ΡΠΏΠΎΡΡΠ΅ΡΠ° ΡΠ²Π»ΡΡΡΡΡ ΡΠ»Π΅Π΄ΡΡΡΠΈΠ΅ ΠΊΠΎΠΌΠΏΠΎΠ½Π΅Π½ΡΡ: ΠΊΠ°ΡΠΊΠ°Ρ, ΠΏΡΠΈΠ²ΠΎΠ΄, Π±Π°ΡΠ°Π±Π°Π½Ρ ΠΏΡΠΈΠ²ΠΎΠ΄Π½ΠΎΠΉ ΠΈ Π½Π°ΡΡΠΆΠ½ΠΎΠΉ, Π»Π΅Π½ΡΠ°, Π½Π°ΠΏΡΠ°Π²Π»ΡΡΡΠΈΠ΅ ΡΠΎΠ»ΠΈΠΊΠΈ.
ΠΡΠΈΠ½ΡΠΈΠΏΠΈΠ°Π»ΡΠ½Π°Ρ ΡΡ Π΅ΠΌΠ° Π°Π³ΡΠ΅Π³Π°ΡΠ° Π²ΡΠ³Π»ΡΠ΄ΠΈΡ ΡΠ»Π΅Π΄ΡΡΡΠΈΠΌ ΠΎΠ±ΡΠ°Π·ΠΎΠΌ: ΠΏΡΠΈΠ²ΠΎΠ΄Π½ΠΎΠΉ Π±Π°ΡΠ°Π±Π°Π½ ΡΠΎΠ΅Π΄ΠΈΠ½Π΅Π½ ΡΠ΅ΡΠ΅Π· ΡΠ΅Π΄ΡΠΊΡΠΎΡ Ρ ΡΠ»Π΅ΠΊΡΡΠΎΠ΄Π²ΠΈΠ³Π°ΡΠ΅Π»Π΅ΠΌ. ΠΡΠΎΡΠΈΠ²ΠΎΡΡΠΎΠΈΡ ΠΏΡΠΈΠ²ΠΎΠ΄Π½ΠΎΠΌΡ Π±Π°ΡΠ°Π±Π°Π½Ρ Π½Π°ΡΡΠΆΠ½ΠΎΠΉ, Π·Π°ΠΊΡΠ΅ΠΏΠ»Π΅Π½Π½ΡΠΉ Π½Π° ΠΏΠΎΠ΄ΡΠΈΠΏΠ½ΠΈΠΊΠ°Ρ . ΠΠ΅ΠΆΠ΄Ρ Π±Π°ΡΠ°Π±Π°Π½Π°ΠΌΠΈ Π½Π°ΡΡΠ½ΡΡΠΎ ΠΏΠΎΠ»ΠΎΡΠ½ΠΎ, Π·Π°ΠΌΠΊΠ½ΡΡΠΎΠ΅ Π² ΠΊΠΎΠ»ΡΡΠΎ. ΠΠ»Ρ ΠΏΠ΅ΡΠ΅ΠΌΠ΅ΡΠ΅Π½ΠΈΡ ΠΏΠΎΠ»ΠΎΡΠ½Π° ΡΠ»ΡΠΆΠ°Ρ ΡΠΎΠ»ΠΈΠΊΠΈ, Π·Π°ΠΊΡΠ΅ΠΏΠ»ΡΠ΅ΠΌΡΠ΅ Π½Π° ΠΊΠ°ΡΠΊΠ°ΡΠ΅. Π’Π°ΠΊΠΎΠ²Π° ΠΎΠ±ΡΠ°Ρ ΡΡ Π΅ΠΌΠ°, ΠΎΠ±Π΅ΡΠΏΠ΅ΡΠΈΠ²Π°ΡΡΠ°Ρ ΠΏΡΠΈ Π²ΠΊΠ»ΡΡΠ΅Π½ΠΈΠΈ Π΄Π²ΠΈΠ³Π°ΡΠ΅Π»Ρ ΠΏΠΎΡΡΠΎΡΠ½Π½ΠΎΠ΅ Π΄Π²ΠΈΠΆΠ΅Π½ΠΈΠ΅ ΠΊΠΎΠ½Π²Π΅ΠΉΠ΅ΡΠ½ΠΎΠΉ Π»Π΅Π½ΡΡ Ρ ΠΎΠΏΡΠ΅Π΄Π΅Π»Π΅Π½Π½ΠΎΠΉ ΡΠΊΠΎΡΠΎΡΡΡΡ ΠΏΡΠΈ ΠΊΠΎΠ½ΠΊΡΠ΅ΡΠ½ΠΎΠΉ Π½Π°Π³ΡΡΠ·ΠΊΠ΅. ΠΠ²Π΅Π΄Π΅Π½ΠΈΠ΅ Π² ΠΊΠΎΠ½ΡΡΡΡΠΊΡΠΈΡ ΠΏΡΠ΅ΠΎΠ±ΡΠ°Π·ΠΎΠ²Π°ΡΠ΅Π»Ρ ΡΠ°ΡΡΠΎΡΡ ΠΏΠΎΠ·Π²ΠΎΠ»ΡΠ΅Ρ ΡΠ΅Π³ΡΠ»ΠΈΡΠΎΠ²Π°ΡΡ ΡΠΊΠΎΡΠΎΡΡΡ ΠΏΠ΅ΡΠ΅ΠΌΠ΅ΡΠ΅Π½ΠΈΡ ΠΏΠΎΠ»ΠΎΡΠ½Π°.
Π₯Π°ΡΠ°ΠΊΡΠ΅ΡΠΈΡΡΠΈΠΊΠΈ ΡΠ»Π΅ΠΊΡΡΠΎΠ΄Π²ΠΈΠ³Π°ΡΠ΅Π»Ρ ΠΈ ΡΠ΅Π΄ΡΠΊΡΠΎΡΠ°, ΠΊΠ°ΡΠ΅ΡΡΠ²ΠΎ ΠΈ ΠΊΠΎΠ½ΡΡΡΡΠΊΡΠΈΡ ΡΠ°Π±ΠΎΡΠ΅ΠΉ Π·ΠΎΠ½Ρ Π² Π·Π½Π°ΡΠΈΡΠ΅Π»ΡΠ½ΠΎΠΉ ΡΡΠ΅ΠΏΠ΅Π½ΠΈ Π·Π°Π²ΠΈΡΡΡ ΠΎΡ ΡΠΎΠ³ΠΎ, Ρ ΠΊΠ°ΠΊΠΎΠ³ΠΎ ΡΠΈΠΏΠ° Π³ΡΡΠ·Π°ΠΌΠΈ ΠΏΡΠΈΠ΄Π΅ΡΡΡ ΠΈΠΌΠ΅ΡΡ Π΄Π΅Π»ΠΎ.
Π’Π°ΠΊ, Π»Π΅Π½ΡΡ Ρ Π³Π»Π°Π΄ΠΊΠΎΠΉ ΠΏΠΎΠ²Π΅ΡΡ
Π½ΠΎΡΡΡΡ Π±ΠΎΠ»Π΅Π΅ ΠΏΠΎΠ΄Ρ
ΠΎΠ΄ΡΡ Π΄Π»Ρ ΠΏΠ΅ΡΠ΅ΠΌΠ΅ΡΠ΅Π½ΠΈΡ ΡΡΡΡΠ½ΡΡ
ΠΈΠ·Π΄Π΅Π»ΠΈΠΉ, ΡΠΎΠ³Π΄Π° ΠΊΠ°ΠΊ ΡΠΈΡΠ»Π΅Π½ΠΈΠ΅ ΠΏΠΎΠ»ΠΎΡΠ½Π° ΠΈ Π½Π°Π»ΠΈΡΠΈΠ΅ Π±ΠΎΡΡΠΎΠ² Π±ΡΠ΄Π΅Ρ Π½Π°ΠΈΠ±ΠΎΠ»Π΅Π΅ ΡΡΡΠ΅ΠΊΡΠΈΠ²Π½ΠΎ Π΄Π»Ρ ΡΡΠ°Π½ΡΠΏΠΎΡΡΠΈΡΠΎΠ²ΠΊΠΈ ΡΡΠΏΡΡΠΈΡ
, ΠΌΠ΅Π»ΠΊΠΈΡ
ΡΡΡΡΠ½ΡΡ
ΠΈΠ·Π΄Π΅Π»ΠΈΠΉ. Π ΠΈΡΠ»Π΅Π½ΠΈΠ΅ ΠΎΠ±Π΅ΡΠΏΠ΅ΡΠΈΠ²Π°Π΅Ρ ΠΌΠ°ΠΊΡΠΈΠΌΠ°Π»ΡΠ½ΡΡ ΠΏΡΠΎΠΈΠ·Π²ΠΎΠ΄ΠΈΡΠ΅Π»ΡΠ½ΠΎΡΡΡ Π½Π΅Π·Π°Π²ΠΈΡΠΈΠΌΠΎ ΠΎΡ ΡΠΈΡΡΠ½ΠΊΠ° ΠΏΡΠΎΡΠ΅ΠΊΡΠΎΡΠΎΠ² β ΡΠΎΠΌΠ±Ρ, ΠΏΠΈΡΠ°ΠΌΠΈΠ΄Ρ, ΡΡΠ΅ΡΠ³ΠΎΠ»ΡΠ½ΠΈΠΊΠΈ ΠΈ Ρ. ΠΏ. ΠΡΠ»ΠΈ ΠΏΠΎΠ»ΠΎΡΠ½ΠΎ ΠΎΡΠ½Π°ΡΠ΅Π½ΠΎ ΠΏΠΎΠΏΠ΅ΡΠ΅ΡΠ½ΡΠΌΠΈ ΠΏΠ΅ΡΠ΅Π³ΠΎΡΠΎΠ΄ΠΊΠ°ΠΌΠΈ, ΡΠΎ ΠΏΠΎΡΠ²Π»ΡΠ΅ΡΡΡ Π²ΠΎΠ·ΠΌΠΎΠΆΠ½ΠΎΡΡΡ ΡΠΎΠ·Π΄Π°Π½ΠΈΡ ΠΊΠΎΠ½ΡΡΡΡΠΊΡΠΈΠΉ Ρ ΡΠ³Π»ΠΎΠΌ Π½Π°ΠΊΠ»ΠΎΠ½Π° ΡΠ°Π±ΠΎΡΠΈΡ
ΠΏΠΎΠ²Π΅ΡΡ
Π½ΠΎΡΡΠ΅ΠΉ Π΄ΠΎ 45 Π³ΡΠ°Π΄ΡΡΠΎΠ².
ΠΠ»Ρ ΡΠ΅Ρ , ΠΊΡΠΎ Π² ΡΠΈΠ»Ρ ΡΠΏΠ΅ΡΠΈΡΠΈΠΊΠΈ ΠΏΡΠΎΠΈΠ·Π²ΠΎΠ΄ΡΡΠ²Π° Π²ΡΠ±ΡΠ°Π» Π»Π΅Π½ΡΠΎΡΠ½ΡΠ΅ ΡΡΠ°Π½ΡΠΏΠΎΡΡΠ΅ΡΡ, ΠΎΡΠ΅Π½Ρ Π±ΡΡΡΡΠΎ ΡΡΠ°Π½ΠΎΠ²ΡΡΡΡ ΠΎΡΠ΅Π²ΠΈΠ΄Π½ΡΠΌΠΈ ΠΏΡΠ΅ΠΈΠΌΡΡΠ΅ΡΡΠ²Π°:
- ΡΠΈΡΠΎΠΊΠΈΠΉ ΡΠ°Π·ΠΌΠ΅ΡΠ½ΡΠΉ ΠΈ ΠΊΠΎΠ½ΡΡΡΡΠΊΡΠΈΠ²Π½ΡΠΉ ΡΡΠ΄ ΡΡΡΡΠΎΠΉΡΡΠ²;
- Π²ΡΡΠΎΠΊΠ°Ρ ΡΠΊΠΎΡΠΎΡΡΡ ΠΈ Π²ΡΡΠΎΠΊΠ°Ρ ΠΏΡΠΎΠΈΠ·Π²ΠΎΠ΄ΠΈΡΠ΅Π»ΡΠ½ΠΎΡΡΡ;
- Π²ΠΎΠ·ΠΌΠΎΠΆΠ½ΠΎΡΡΡ ΠΏΠΎΠ΄Π±ΠΎΡΠ° Π°Π³ΡΠ΅Π³Π°ΡΠ° Π² Π·Π°Π²ΠΈΡΠΈΠΌΠΎΡΡΠΈ ΠΎΡ Ρ Π°ΡΠ°ΠΊΡΠ΅ΡΠΈΡΡΠΈΠΊ Π³ΡΡΠ·ΠΎΠ²;
- ΡΠ΅Π³ΡΠ»ΠΈΡΡΠ΅ΠΌΠ°Ρ ΡΠΊΠΎΡΠΎΡΡΡ Π΄Π²ΠΈΠΆΠ΅Π½ΠΈΡ;
- ΡΠ½Π΅ΡΠ³ΠΎΡΡΡΠ΅ΠΊΡΠΈΠ²Π½ΠΎΡΡΡ;
- Π½Π°Π΄Π΅ΠΆΠ½ΠΎΡΡΡ;
- Π²ΡΡΠΎΠΊΠ°Ρ ΡΡΠ΅ΠΏΠ΅Π½Ρ ΡΠ΅ΠΌΠΎΠ½ΡΠΎΠΏΡΠΈΠ³ΠΎΠ΄Π½ΠΎΡΡΠΈ.

ΠΠΎΠ½ΡΡΡΡΠΊΡΠΈΠ²Π½ΡΠ΅ ΠΎΡΠΎΠ±Π΅Π½Π½ΠΎΡΡΠΈ Π»Π΅Π½ΡΠΎΡΠ½ΠΎΠ³ΠΎ ΠΊΠΎΠ½Π²Π΅ΠΉΠ΅ΡΠ° ΠΏΠΎΠ·Π²ΠΎΠ»ΡΡΡ ΡΡΡΠ°Π½Π°Π²Π»ΠΈΠ²Π°ΡΡ ΠΎΠ±ΠΎΡΡΠ΄ΠΎΠ²Π°Π½ΠΈΠ΅ ΠΊΠ°ΠΊ Π² Π·Π°ΠΊΡΡΡΡΡ ΠΏΠΎΠΌΠ΅ΡΠ΅Π½ΠΈΡΡ , ΡΠ°ΠΊ ΠΈ Π½Π° ΠΎΡΠΊΡΡΡΠΎΠΌ Π²ΠΎΠ·Π΄ΡΡ Π΅, ΠΈΡΠΏΠΎΠ»ΡΠ·ΠΎΠ²Π°ΡΡ ΡΡΡΡΠΎΠΉΡΡΠ²ΠΎ ΠΏΡΠΈ ΡΠ°Π±ΠΎΡΠΈΡ ΡΠ΅ΠΌΠΏΠ΅ΡΠ°ΡΡΡΠ°Ρ ΠΎΡ -50α΅Π‘ Π΄ΠΎ +45α΅Π‘, Π° Π² ΡΠ»ΡΡΠ°Π΅ ΡΠΏΠ΅ΡΠΈΠ°Π»ΡΠ½ΠΎΠ³ΠΎ ΠΎΡΠ½Π°ΡΠ΅Π½ΠΈΡ Π΄ΠΎΠΏΡΡΡΠΈΠΌΠ° ΡΡΠ°Π½ΡΠΏΠΎΡΡΠΈΡΠΎΠ²ΠΊΠ° Π³ΡΡΠ·ΠΎΠ², ΡΠ΅ΠΌΠΏΠ΅ΡΠ°ΡΡΡΠ° ΠΊΠΎΡΠΎΡΡΡ ΠΌΠΎΠΆΠ΅Ρ Π΄ΠΎΡΡΠΈΠ³Π°ΡΡ +200α΅Π‘.
ΠΠ°ΠΊΠΎΠ½Π΅Ρ, Π΄ΠΎΠΏΠΎΠ»Π½ΠΈΡΠ΅Π»ΡΠ½ΠΎΠ΅ ΠΎΡΠ½Π°ΡΠ΅Π½ΠΈΠ΅ Π°Π³ΡΠ΅Π³Π°ΡΠΎΠ² ΡΠΏΠ΅ΡΠΈΠ°Π»ΡΠ½ΡΠΌΠΈ ΠΌΠΎΠ΄ΡΠ»ΡΠΌΠΈ ΡΠ°ΡΡΠΈΡΡΠ΅Ρ ΡΡΠ΅ΡΡ ΠΏΡΠΈΠΌΠ΅Π½Π΅Π½ΠΈΡ ΠΈ Π΄Π΅Π»Π°Π΅Ρ ΠΏΠ΅ΡΠ΅ΠΌΠ΅ΡΠ΅Π½ΠΈΠ΅ Π±ΠΎΠ»Π΅Π΅ ΠΊΠΎΠΌΡΠΎΡΡΠ½ΡΠΌ, Π±Π΅Π·ΠΎΠΏΠ°ΡΠ½ΡΠΌ, ΡΡΡΠ΅ΠΊΡΠΈΠ²Π½ΡΠΌ. Π’Π°ΠΊ, Π½Π°ΠΏΡΠΈΠΌΠ΅Ρ, ΡΡΡΠ΅ΡΡΠ²ΡΡΡ ΠΌΠ΅ΡΠΎΠ΄Ρ ΠΏΡΠ΅Π΄ΠΎΡΠ²ΡΠ°ΡΠ΅Π½ΠΈΡ Π²ΡΠΏΠ°Π΄Π΅Π½ΠΈΡ ΠΌΠ°ΡΠ΅ΡΠΈΠ°Π»ΠΎΠ² ΠΈ ΠΈΠ·Π΄Π΅Π»ΠΈΠΉ, ΡΠ°ΠΌΠΎΠΎΡΠΈΡΠ°ΡΡΠΈΠ΅ΡΡ ΠΏΠΎΠ²Π΅ΡΡ Π½ΠΎΡΡΠΈ ΠΏΠΎΠ»ΠΎΡΠ΅Π½, ΡΠΏΠΎΡΠΎΠ±Ρ, Π³Π°ΡΠ°Π½ΡΠΈΡΡΡΡΠΈΠ΅ ΡΠΎΡΡ ΡΡΡΠ΅ΠΊΡΠΈΠ²Π½ΠΎΡΡΠΈ, ΠΏΡΠΎΠΈΠ·Π²ΠΎΠ΄ΠΈΡΠ΅Π»ΡΠ½ΠΎΡΡΠΈ ΠΈ ΡΡΠΎΠΊΠ° ΡΠΊΡΠΏΠ»ΡΠ°ΡΠ°ΡΠΈΠΈ. ΠΡΠΎΠΌΠ΅ ΡΠΎΠ³ΠΎ, ΠΏΡΠΎΠΈΠ·Π²ΠΎΠ΄ΡΡΠ²ΠΎ Π½ΠΎΠ²ΡΡ ΡΠ΅Ρ Π½ΠΎΠ»ΠΎΠ³ΠΈΡΠ½ΡΡ ΠΌΠ°ΡΠ΅ΡΠΈΠ°Π»ΠΎΠ² ΡΠ°ΡΡΠΈΡΡΠ΅Ρ ΠΈ ΠΊΠ»ΠΈΠΌΠ°ΡΠΈΡΠ΅ΡΠΊΠΈΠ΅ Π³ΡΠ°Π½ΠΈΡΡ ΠΏΡΠΈΠΌΠ΅Π½Π΅Π½ΠΈΡ ΠΊΠΎΠ½Π²Π΅ΠΉΠ΅ΡΠ½ΠΎΠ³ΠΎ ΠΎΠ±ΠΎΡΡΠ΄ΠΎΠ²Π°Π½ΠΈΡ Π² ΡΡΠ»ΠΎΠ²ΠΈΡΡ ΡΡΠ΅Π·Π²ΡΡΠ°ΠΉΠ½ΠΎ Π½ΠΈΠ·ΠΊΠΈΡ ΠΈΠ»ΠΈ Π²ΡΡΠΎΠΊΠΈΡ ΡΠ΅ΠΌΠΏΠ΅ΡΠ°ΡΡΡ ΠΏΡΠΈ Π²ΡΡΠΎΠΊΠΎΠΉ Π²Π»Π°ΠΆΠ½ΠΎΡΡΠΈ.
Π’ΠΈΠΏΡ ΠΊΠΎΠ½Π²Π΅ΠΉΠ΅ΡΠΎΠ²
ΠΠ°ΠΊΠΎΠ΅ ΡΡΠ°Π½ΡΠΏΠΎΡΡΠΈΡΡΡΡΠ΅Π΅, ΠΈΠ»ΠΈ ΠΊΠΎΠ½Π²Π΅ΠΉΠ΅ΡΠ½ΠΎΠ΅, ΠΎΠ±ΠΎΡΡΠ΄ΠΎΠ²Π°Π½ΠΈΠ΅ Π²ΡΠ±ΡΠ°ΡΡ Π΄Π»Ρ Π²ΡΠΏΠΎΠ»Π½Π΅Π½ΠΈΡ Π²ΠΎΠ·Π»Π°Π³Π°Π΅ΠΌΡΡ
Π½Π° Π½Π΅Π³ΠΎ ΡΡΠ½ΠΊΡΠΈΠΉ, ΠΎΠΏΡΠ΅Π΄Π΅Π»ΡΡΡ Π² Π·Π°Π²ΠΈΡΠΈΠΌΠΎΡΡΠΈ ΠΎΡ ΠΊΠΎΠ½ΡΡΡΡΠΊΡΠΈΠ²Π½ΡΡ
ΠΎΡΠΎΠ±Π΅Π½Π½ΠΎΡΡΠ΅ΠΉ, ΠΌΠΎΡΠ½ΠΎΡΡΠΈ ΠΈ ΠΏΡΠΎΠΈΠ·Π²ΠΎΠ΄ΠΈΡΠ΅Π»ΡΠ½ΠΎΡΡΠΈ, ΡΠΈΠΏΠ° ΡΠ°Π±ΠΎΡΠ΅ΠΉ ΠΏΠΎΠ²Π΅ΡΡ
Π½ΠΎΡΡΠΈ, Π²ΠΎΠ·ΠΌΠΎΠΆΠ½ΠΎΡΡΠΈ ΡΠ΅Π³ΡΠ»ΠΈΡΠΎΠ²Π°ΡΡ ΡΠΊΠΎΡΠΎΡΡΡ ΠΈ ΠΈΠ½ΡΠ΅ ΡΠ°Π±ΠΎΡΠΈΠ΅ ΠΏΠ°ΡΠ°ΠΌΠ΅ΡΡΡ.
Π Π΅ΡΠ°ΡΡΡΡ ΡΠΎΠ»Ρ ΠΈΠ³ΡΠ°ΡΡ ΡΠ΅Ρ
Π½ΠΎΠ»ΠΎΠ³ΠΈΡΠ΅ΡΠΊΠΈΠ΅ ΠΎΡΠΎΠ±Π΅Π½Π½ΠΎΡΡΠΈ ΠΏΡΠΎΠΈΠ·Π²ΠΎΠ΄ΡΡΠ²Π°, ΡΠΈΠ·ΠΈΡΠ΅ΡΠΊΠΈΠ΅ ΠΈ Ρ
ΠΈΠΌΠΈΡΠ΅ΡΠΊΠΈΠ΅ ΠΏΠ°ΡΠ°ΠΌΠ΅ΡΡΡ ΠΌΠ°ΡΠ΅ΡΠΈΠ°Π»ΠΎΠ² ΠΈ ΠΈΠ·Π΄Π΅Π»ΠΈΠΉ, ΠΈΡ
Π²Π΅ΡΠΎΠ³Π°Π±Π°ΡΠΈΡΠ½ΡΠ΅ Ρ
Π°ΡΠ°ΠΊΡΠ΅ΡΠΈΡΡΠΈΠΊΠΈ, Π΄Π΅ΠΉΡΡΠ²ΡΡΡΠΈΠ΅ ΡΡΠ°Π½Π΄Π°ΡΡΡ ΠΊΠ°ΡΠ΅ΡΡΠ²Π°, Π²Π°ΡΠΈΠ°Π½ΡΡ ΠΏΠΎΠ΄Π°ΡΠΈ ΡΡΠ°Π½ΡΠΏΠΎΡΡΠΈΡΡΠ΅ΠΌΡΡ
Π³ΡΡΠ·ΠΎΠ². ΠΠ½ΠΎΠ³ΠΎΠΎΠ±ΡΠ°Π·ΠΈΠ΅ ΠΈΡΡ
ΠΎΠ΄Π½ΡΡ
ΡΡΠ»ΠΎΠ²ΠΈΠΉ ΠΏΡΠ΅Π΄ΠΎΠΏΡΠ΅Π΄Π΅Π»ΡΠ΅Ρ ΡΡΡΠ΅ΡΡΠ²ΠΎΠ²Π°Π½ΠΈΠ΅ Π±ΠΎΠ»ΡΡΠΎΠ³ΠΎ ΠΊΠΎΠ»ΠΈΡΠ΅ΡΡΠ²Π° ΡΠΈΠΏΠΎΠ² ΠΊΠΎΠ½Π²Π΅ΠΉΠ΅ΡΠΎΠ², ΠΊΠΎΡΠΎΡΡΠ΅ Π²ΡΡΡΡΠΏΠ°ΡΡ Π² ΠΊΠ°ΡΠ΅ΡΡΠ²Π΅ ΡΠ°ΠΌΠΎΡΡΠΎΡΡΠ΅Π»ΡΠ½ΠΎΠ³ΠΎ ΠΎΠ±ΠΎΡΡΠ΄ΠΎΠ²Π°Π½ΠΈΡ ΠΈΠ»ΠΈ Π²Ρ
ΠΎΠ΄ΡΡ Π² ΡΠΎΡΡΠ°Π² ΡΠ»ΠΎΠΆΠ½ΡΡ
ΠΊΠΎΠΌΠΏΠ»Π΅ΠΊΡΠΎΠ².
ΠΠ»Π°ΡΡΠΈΡΠΈΠΊΠ°ΡΠΈΡ ΡΡΠ°Π½ΡΠΏΠΎΡΡΠ΅ΡΠΎΠ²: ΠΎΡΠ½ΠΎΠ²Π½ΡΠ΅ ΠΏΠ°ΡΠ°ΠΌΠ΅ΡΡΡ ΠΈ ΡΠ°ΠΊΡΠΎΡΡ
Π ΡΡΠ΄ ΠΊΡΠΈΡΠ΅ΡΠΈΠ΅Π², Π²Π°ΠΆΠ½ΡΡ Π΄Π»Ρ ΠΎΠΏΡΠ΅Π΄Π΅Π»Π΅Π½ΠΈΡ ΠΊΠΎΠ½ΡΡΡΡΠΊΡΠΈΠ²Π½ΠΎΠ³ΠΎ ΡΠΈΠΏΠ° ΠΊΠΎΠ½Π²Π΅ΠΉΠ΅ΡΠΎΠ², Π²Ρ ΠΎΠ΄ΡΡ ΡΠ»Π΅Π΄ΡΡΡΠΈΠ΅ ΠΏΠ°ΡΠ°ΠΌΠ΅ΡΡΡ ΠΈ ΡΠ°ΠΊΡΠΎΡΡ:
- ΠΏΡΠΎΡΡΡΠ°Π½ΡΡΠ²Π΅Π½Π½Π°Ρ Π°ΡΡ ΠΈΡΠ΅ΠΊΡΡΡΠ° Π² Π·Π°Π²ΠΈΡΠΈΠΌΠΎΡΡΠΈ ΠΎΡ Π½Π°ΠΏΡΠ°Π²Π»Π΅Π½ΠΈΡ ΡΡΠ°Π½ΡΠΏΠΎΡΡΠΈΡΠΎΠ²ΠΊΠΈ β Π³ΠΎΡΠΈΠ·ΠΎΠ½ΡΠ°Π»ΡΠ½Π°Ρ, Π²Π΅ΡΡΠΈΠΊΠ°Π»ΡΠ½Π°Ρ, Π½Π°ΠΊΠ»ΠΎΠ½Π½Π°Ρ;
- ΠΊΠΎΠ½ΡΡΡΡΠΊΡΠΈΠΈ Ρ ΡΡΠ³ΠΎΠ²ΡΠΌ ΠΎΡΠ³Π°Π½ΠΎΠΌ ΠΈΠ»ΠΈ Π±Π΅Π· Π½Π΅Π³ΠΎ;
- ΡΡΠ³ΠΎΠ²ΡΠΉ ΠΌΠ΅Ρ Π°Π½ΠΈΠ·ΠΌ ΠΈΠΌΠ΅Π΅Ρ Π²ΠΈΠ΄ Π»Π΅Π½ΡΡ, ΡΠ΅ΠΏΠΈ ΠΈΠ»ΠΈ ΠΊΠ°Π½Π°ΡΠ°. ΠΠΈΠ±ΠΊΠΈΠ΅ ΡΡΠ³ΠΎΠ²ΡΠ΅ ΠΎΡΠ³Π°Π½Ρ Π±ΡΠ²Π°ΡΡ Π»Π΅Π½ΡΠΎΡΠ½ΡΠΌΠΈ, ΡΠ΅ΠΏΠ½ΡΠΌΠΈ, ΡΠΎΠ»ΠΈΠΊΠΎΠ²ΡΠΌΠΈ ΠΈΠ»ΠΈ ΠΊΠ°Π½Π°ΡΠ½ΠΎ-Π»Π΅Π½ΡΠΎΡΠ½ΡΠΌΠΈ;
- Β Π² ΡΠ»ΡΡΠ°Π΅ ΠΎΡΡΡΡΡΡΠ²ΠΈΡ ΡΡΠ³ΠΎΠ²ΠΎΠ³ΠΎ ΠΌΠ΅Ρ Π°Π½ΠΈΠ·ΠΌΠ° ΡΠ°Π·Π»ΠΈΡΠ°ΡΡ ΡΠ°Π³ΠΎΠ²ΡΠ΅ ΠΈ Π²ΠΈΠ½ΡΠΎΠ²ΡΠ΅, ΡΡΠ΅Π΄ΠΈ ΠΊΠΎΡΠΎΡΡΡ ΡΡΡΠ΅ΡΡΠ²ΡΡΡ ΠΊΠ°ΡΠ°ΡΡΠΈΠ΅ΡΡ, ΡΡΠ°Π½Π³ΠΎΠ²ΡΠ΅, Π²ΠΈΠ±ΡΠ°ΡΠΈΠΎΠ½Π½ΡΠ΅;
- Β Π² ΡΠ»ΡΡΠ°Π΅ ΠΎΡΡΡΡΡΡΠ²ΠΈΡ ΡΡΠ³ΠΎΠ²ΠΎΠ³ΠΎ ΠΌΠ΅Ρ Π°Π½ΠΈΠ·ΠΌΠ° ΡΡΡΡΠΎΠΉΡΡΠ²Π° Π±ΡΠ²Π°ΡΡ Π³ΡΠ°Π²ΠΈΡΠ°ΡΠΈΠΎΠ½Π½ΡΠΌΠΈ, Π²ΠΈΠ½ΡΠΎΠ²ΡΠΌΠΈ ΠΈΠ»ΠΈ ΠΈΠ½Π΅ΡΡΠΈΠΎΠ½Π½ΡΠΌΠΈ;
- Π»Π΅Π½ΡΠΎΡΠ½ΡΠ΅ ΡΡΡΡΠΎΠΉΡΡΠ²Π° ΠΎΡΠ½Π°ΡΠ°ΡΡ ΠΏΠΎΠ»ΠΎΡΠ½ΠΎΠΌ Ρ ΡΠ°Π·Π½ΠΎΠ³ΠΎ ΡΠΈΠΏΠ° ΠΏΡΠΎΡΠΈΠ»Π΅ΠΌ β Π³Π»Π°Π΄ΠΊΠΎΠ΅, Ρ Π±ΠΎΡΡΠ°ΠΌΠΈ ΠΈ ΠΏΠ΅ΡΠ΅Π³ΠΎΡΠΎΠ΄ΠΊΠ°ΠΌΠΈ, ΡΠΈΡΠ»Π΅Π½ΠΎΠΉ ΠΏΠΎΠ²Π΅ΡΡ Π½ΠΎΡΡΡΡ;
- ΠΌΠ΅ΡΡΠΎ ΡΡΡΠ°Π½ΠΎΠ²ΠΊΠΈ β Π½Π°ΠΏΠΎΠ»ΡΠ½ΡΠ΅ ΠΈΠ»ΠΈ ΠΏΠΎΠ΄Π²Π΅ΡΠ½ΡΠ΅, ΡΡΠ°ΡΠΈΠΎΠ½Π°ΡΠ½ΡΠ΅ ΠΈΠ»ΠΈ ΠΌΠΎΠ±ΠΈΠ»ΡΠ½ΡΠ΅;
- Π²ΠΈΠ΄ ΠΏΠ΅ΡΠ΅ΠΌΠ΅ΡΠ°Π΅ΠΌΡΡ ΠΌΠ°ΡΠ΅ΡΠΈΠ°Π»ΠΎΠ², ΡΡΡΡΡ, ΠΈΠ·Π΄Π΅Π»ΠΈΠΉ, ΡΠΎΠ²Π°ΡΠΎΠ² β ΡΡΠΏΡΡΠΈΠ΅, ΡΡΡΡΠ½ΡΠ΅, ΠΊΡΡΠΊΠΎΠ²ΡΠ΅;
- ΡΡΠ½ΠΊΡΠΈΡ Π² ΡΠΎΡΡΠ°Π²Π΅ ΡΠ΅Ρ Π½ΠΎΠ»ΠΎΠ³ΠΈΡΠ΅ΡΠΊΠΈΡ Π·Π²Π΅Π½ΡΠ΅Π² — ΡΡΠ°Π½ΡΠΏΠΎΡΡΠΈΡΠΎΠ²ΠΎΡΠ½ΡΠ΅, ΡΠ±ΠΎΡΠ½ΡΠ΅ ΠΈΠ»ΠΈ ΡΠΎΡΡΠΈΡΠΎΠ²ΠΎΡΠ½ΡΠ΅;
- ΠΌΠ΅ΡΡΠΎ ΠΎΠΏΠ΅ΡΠ°ΡΠΎΡΠ° β ΡΠ°Π±ΠΎΡΠ΅Π΅, ΡΠΎ Π΅ΡΡΡ Π΄Π²ΠΈΠ³Π°ΡΡΠ΅Π΅ΡΡ Ρ Π»Π΅Π½ΡΠΎΠΉ, ΠΈΠ»ΠΈ ΡΠ°ΡΠΏΡΠ΅Π΄Π΅Π»ΠΈΡΠ΅Π»ΡΠ½ΠΎΠ΅ (Π·Π°ΡΠΈΠΊΡΠΈΡΠΎΠ²Π°Π½Π½ΠΎΠ΅).

ΠΠ½Π°Π½ΠΈΠ΅ ΠΎΡΠ½ΠΎΠ²Π½ΡΡ ΡΠ΅Ρ Π½ΠΈΡΠ΅ΡΠΊΠΈΡ Ρ Π°ΡΠ°ΠΊΡΠ΅ΡΠΈΡΡΠΈΠΊ ΠΈ ΠΎΡΠΎΠ±Π΅Π½Π½ΠΎΡΡΠ΅ΠΉ ΡΠΊΡΠΏΠ»ΡΠ°ΡΠ°ΡΠΈΠΈ ΠΊΠ°ΠΆΠ΄ΠΎΠ³ΠΎ ΠΈΠ· ΡΠΈΠΏΠΎΠ² ΠΊΠΎΠ½Π²Π΅ΠΉΠ΅ΡΠΎΠ² ΠΏΠΎΠ·Π²ΠΎΠ»ΡΠ΅Ρ Π²ΡΠ±ΡΠ°ΡΡ ΠΎΠΏΡΠΈΠΌΠ°Π»ΡΠ½ΡΠΉ Π²Π°ΡΠΈΠ°Π½Ρ Π΄Π»Ρ ΠΊΠΎΠ½ΠΊΡΠ΅ΡΠ½ΡΡ ΠΏΡΠΎΠΈΠ·Π²ΠΎΠ΄ΡΡΠ²Π΅Π½Π½ΡΡ ΡΡΠ»ΠΎΠ²ΠΈΠΉ, Π² ΠΊΠΎΡΠΎΡΡΡ Π²Π°ΠΆΠ½ΡΠΌ ΡΠ²Π»ΡΠ΅ΡΡΡ ΡΠΏΠΎΡΠΎΠ± ΠΏΠ΅ΡΠ΅ΠΌΠ΅ΡΠ΅Π½ΠΈΡ Π³ΡΡΠ·ΠΎΠ², Π² ΡΠ²ΡΠ·ΠΈ Ρ ΠΊΠΎΡΠΎΡΡΠΌ Π²ΡΠ΄Π΅Π»ΡΡΡ ΡΠ°Π±ΠΎΡΠΈΠ΅ ΠΏΠΎΠ²Π΅ΡΡ Π½ΠΎΡΡΠΈ ΡΠ°Π·Π½ΡΡ ΠΊΠΎΠ½ΡΡΡΡΠΊΡΠΈΠΉ:
- Π»Π΅Π½ΡΠΎΡΠ½ΡΠ΅;
- ΡΠΊΡΠ΅Π±ΠΊΠΎΠ²ΡΠ΅,
- ΠΊΠΎΠ²ΡΠΎΠ²ΡΠ΅,
- ΡΠΎΠ»ΠΈΠΊΠΎΠ²ΡΠ΅,
- Π²ΠΈΠ½ΡΠΎΠ²ΡΠ΅,
- ΠΏΠ»Π°ΡΡΠΈΠ½ΡΠ°ΡΡΠ΅.
Π₯Π°ΡΠ°ΠΊΡΠ΅ΡΠΈΡΡΠΈΠΊΠΈ ΠΈ ΡΡΠ½ΠΊΡΠΈΠΎΠ½Π°Π» ΠΊΠ°ΠΆΠ΄ΠΎΠ³ΠΎ ΠΈΠ· ΡΡΠΈΡ ΡΠΈΠΏΠΎΠ² ΠΎΠ±ΠΎΡΡΠ΄ΠΎΠ²Π°Π½ΠΈΡ ΡΡΠΎΠΈΡ ΡΠ°ΡΡΠΌΠΎΡΡΠ΅ΡΡ ΠΎΡΠ΄Π΅Π»ΡΠ½ΠΎ.
ΠΠ΅Π½ΡΠΎΡΠ½ΡΠ΅
ΠΠ΅Π½ΡΠΎΡΠ½ΡΠ΅ ΡΡΠ°Π½ΡΠΏΠΎΡΡΠ΅ΡΡ Ρ
Π°ΡΠ°ΠΊΡΠ΅ΡΠΈΠ·ΡΡΡΡΡ Π½Π°Π»ΠΈΡΠΈΠ΅ΠΌ ΡΠ°Π±ΠΎΡΠ΅ΠΉ ΠΏΠΎΠ²Π΅ΡΡ
Π½ΠΎΡΡΠΈ Π² Π²ΠΈΠ΄Π΅ Π»Π΅Π½ΡΡ, Π΄Π²ΠΈΠΆΠ΅Π½ΠΈΠ΅ΠΌ ΠΊΠΎΡΠΎΡΠΎΠΉ ΡΠΏΡΠ°Π²Π»ΡΡΡ Π½Π°ΡΡΠΆΠ½ΠΎΠΉ ΠΈ ΠΏΡΠΈΠ²ΠΎΠ΄Π½ΠΎΠΉ Π±Π°ΡΠ°Π±Π°Π½Ρ, ΡΠΎΠ»ΠΈΠΊΠΈ. ΠΠ°ΡΠ°ΠΌΠ΅ΡΡΡ ΠΈ ΡΠ΅ΠΆΠΈΠΌΡ ΡΠ°Π±ΠΎΡΡ ΡΠ΅Π³ΡΠ»ΠΈΡΡΡΡ Ρ ΠΏΠΎΠΌΠΎΡΡΡ ΠΎΡΠΊΠ»ΠΎΠ½ΡΡΡΠΈΡ
Π±Π°ΡΠ°Π±Π°Π½ΠΎΠ² ΠΈ ΠΏΡΠ΅ΠΎΠ±ΡΠ°Π·ΠΎΠ²Π°ΡΠ΅Π»Π΅ΠΉ ΡΠ°ΡΡΠΎΡΡ. ΠΠΎΠ»ΠΎΡΠ½ΠΎ ΠΌΠΎΠΆΠ΅Ρ Π±ΡΡΡ ΠΈΠ·Π³ΠΎΡΠΎΠ²Π»Π΅Π½ΠΎ ΠΈΠ· ΡΠ°Π·Π½ΡΡ
ΠΌΠ°ΡΠ΅ΡΠΈΠ°Π»ΠΎΠ² β ΠΠΠ₯, ΠΏΡΠΎΡΠ΅Π·ΠΈΠ½Π΅Π½Π½Π°Ρ ΡΠΊΠ°Π½Ρ, ΠΈΠΌΠ΅ΡΡ ΠΏΡΠΎΡΠΈΠ»Ρ ΡΠΈΡΠ»Π΅Π½ΡΠΉ ΠΈΠ»ΠΈ Π³Π»Π°Π΄ΠΊΠΈΠΉ, Ρ Π±ΠΎΡΡΠ°ΠΌΠΈ ΠΈΠ»ΠΈ ΠΏΠ΅ΡΠ΅Π³ΠΎΡΠΎΠ΄ΠΊΠ°ΠΌΠΈ.
ΠΠ±ΠΎΡΡΠ΄ΠΎΠ²Π°Π½ΠΈΠ΅ ΠΌΠΎΠΆΠ΅Ρ Π±ΡΡΡ ΡΡΠ°ΡΠΈΠΎΠ½Π°ΡΠ½ΡΠΌ ΠΈ ΠΌΠΎΠ±ΠΈΠ»ΡΠ½ΡΠΌ (Π½Π° ΠΊΠΎΠ»Π΅ΡΠ½ΠΎΠΌ Ρ
ΠΎΠ΄Ρ), ΠΈΡΠΏΠΎΠ»ΡΠ·ΠΎΠ²Π°ΡΡΡΡ Π² ΡΠΎΡΡΠ°Π²Π΅ ΡΠ»ΠΎΠΆΠ½ΠΎΠ³ΠΎ ΡΠ΅Ρ
Π½ΠΎΠ»ΠΎΠ³ΠΈΡΠ΅ΡΠΊΠΎΠ³ΠΎ ΠΊΠΎΠΌΠΏΠ»Π΅ΠΊΡΠ° ΠΈΠ»ΠΈ ΠΊΠ°ΠΊ ΡΠ°ΠΌΠΎΡΡΠΎΡΡΠ΅Π»ΡΠ½Π°Ρ Π΅Π΄ΠΈΠ½ΠΈΡΠ°.
ΠΠΎ ΡΠ²ΠΎΠ΅ΠΉ ΡΡΡΠΈ ΡΡΡΡΠΎΠΉΡΡΠ²Π° ΡΠ½ΠΈΠ²Π΅ΡΡΠ°Π»ΡΠ½Ρ ΠΈ ΡΠΏΡΠ°Π²Π»ΡΡΡΡΡ Ρ Π·Π°Π΄Π°ΡΠ°ΠΌΠΈ ΠΏΠ΅ΡΠ΅ΠΌΠ΅ΡΠ΅Π½ΠΈΡ ΠΌΠ°ΡΠ΅ΡΠΈΠ°Π»ΠΎΠ² Π½Π° Π·Π½Π°ΡΠΈΡΠ΅Π»ΡΠ½ΡΠ΅ ΡΠ°ΡΡΡΠΎΡΠ½ΠΈΡ, Π΄ΠΎΡΡΠΈΠ³Π°ΡΡΠΈΠ΅ Π΄Π΅ΡΡΡΠΊΠ° ΠΊΠΈΠ»ΠΎΠΌΠ΅ΡΡΠΎΠ². ΠΡΠΈ ΡΡΠΎΠΌ Π²Π΅ΡΠΎΠ³Π°Π±Π°ΡΠΈΡΠ½ΡΠ΅ Ρ Π°ΡΠ°ΠΊΡΠ΅ΡΠΈΡΡΠΈΠΊΠΈ Π³ΡΡΠ·ΠΎΠ² ΠΌΠΎΠ³ΡΡ Π±ΡΡΡ ΡΠ°Π·Π½ΡΠΌΠΈ β ΡΡΠΏΡΡΠΈΠ΅, ΡΡΡΡΠ½ΡΠ΅, ΠΊΡΡΠΊΠΎΠ²ΡΠ΅, Π° ΠΏΡΠΎΡΡΡΠ°Π½ΡΡΠ²Π΅Π½Π½ΠΎΠ΅ ΡΠ°ΡΠΏΠΎΠ»ΠΎΠΆΠ΅Π½ΠΈΠ΅ Π·Π²Π΅Π½ΡΠ΅Π² ΠΌΠΎΠΆΠ΅Ρ Π²Π°ΡΡΠΈΡΠΎΠ²Π°ΡΡ ΠΈ Π±ΡΡΡ Π³ΠΎΡΠΈΠ·ΠΎΠ½ΡΠ°Π»ΡΠ½ΡΠΌ, Π²Π΅ΡΡΠΈΠΊΠ°Π»ΡΠ½ΡΠΌ, Ρ Π½Π°ΠΊΠ»ΠΎΠ½ΠΎΠΌ, ΠΊΠΎΠΌΠ±ΠΈΠ½ΠΈΡΠΎΠ²Π°Π½Π½ΡΠΌ. ΠΡΠΎΠΌΠ΅ ΡΠΎΠ³ΠΎ, Π² ΠΎΠ΄Π½ΠΎΠΉ ΠΏΠ»ΠΎΡΠΊΠΎΡΡΠΈ ΠΌΠΎΠ³ΡΡ Π±ΡΡΡ ΡΠΎΠ·Π΄Π°Π½Ρ ΡΠ°Π·Π²Π΅ΡΠ²Π»Π΅Π½ΠΈΡ, ΠΈΠ·Π³ΠΈΠ±Ρ, ΠΊΠΎΡΠΎΡΡΠ΅ Π½Π΅ ΡΠΎΠΊΡΠ°ΡΠ°ΡΡ ΠΏΡΠΎΠΈΠ·Π²ΠΎΠ΄ΠΈΡΠ΅Π»ΡΠ½ΠΎΡΡΡ.
ΠΡΠ½ΠΎΠ²Π½ΡΠ΅ ΠΏΡΠ΅ΠΈΠΌΡΡΠ΅ΡΡΠ²Π΅Π½Π½ΡΠ΅ ΠΏΠΎΠΊΠ°Π·Π°ΡΠ΅Π»ΠΈ Π»Π΅Π½ΡΠΎΡΠ½ΡΡ ΠΊΠΎΠ½Π²Π΅ΠΉΠ΅ΡΠΎΠ² β ΡΡΠΎ Π²ΡΡΠΎΠΊΠΈΠ΅ Π½Π°Π΄Π΅ΠΆΠ½ΠΎΡΡΡ, ΠΏΡΠΎΠΈΠ·Π²ΠΎΠ΄ΠΈΡΠ΅Π»ΡΠ½ΠΎΡΡΡ, ΡΠΊΠΎΡΠΎΡΡΡ.
ΠΠΎΠ²ΡΠΎΠ²ΡΠ΅
ΠΡΠΈΠ½ΡΠΈΠΏΠΈΠ°Π»ΡΠ½ΠΎΠ΅ ΠΎΡΠ»ΠΈΡΠΈΠ΅ ΡΡΠΎΠ³ΠΎ Π²ΠΈΠ΄Π° ΡΡΠ°Π½ΡΠΏΠΎΡΡΠ΅ΡΠΎΠ² Π·Π°ΠΊΠ»ΡΡΠ°Π΅ΡΡΡ Π² ΡΠΏΠΎΡΠΎΠ±Π΅ ΡΡΠ°Π½ΡΠΏΠΎΡΡΠΈΡΠΎΠ²ΠΊΠΈ ΠΏΠΎΡΠΎΡΠΊΠΎΠΎΠ±ΡΠ°Π·Π½ΡΡ
, ΡΡΠΏΡΡΠΈΡ
ΠΈ ΠΊΡΡΠΊΠΎΠ²ΡΡ
ΠΌΠ°ΡΠ΅ΡΠΈΠ°Π»ΠΎΠ²: Π³ΡΡΠ· ΠΏΠ΅ΡΠ΅ΠΌΠ΅ΡΠ°ΡΡ Π² ΠΊΠΎΠ²ΡΠ°Ρ
, ΠΈΠ·Π³ΠΎΡΠΎΠ²Π»Π΅Π½Π½ΡΡ
ΠΈΠ· ΡΡΠ°ΠΌΠΏΠΎΠ²Π°Π½Π½ΠΎΠΉ ΠΈΠ»ΠΈ ΡΠ²Π°ΡΠ½ΠΎΠΉ Π»ΠΈΡΡΠΎΠ²ΠΎΠΉ ΡΡΠ°Π»ΠΈ.
ΠΡΠ΅ΠΏΠ»Π΅Π½ΠΈΠ΅ ΠΊΠΎΠ²ΡΠ΅ΠΉ ΠΎΡΡΡΠ΅ΡΡΠ²Π»ΡΡΡ Π½Π° ΠΏΡΠΈΠ²ΠΎΠ΄ΠΈΠΌΠΎΠΉ Π² Π΄Π²ΠΈΠΆΠ΅Π½ΠΈΠ΅ Π»Π΅Π½ΡΠ΅ ΠΈΠ»ΠΈ ΡΠ΅ΠΏΠΈ. ΠΡΠΎΡΡΡΠ°Π½ΡΡΠ²Π΅Π½Π½ΠΎΠ΅ ΡΠ°ΡΠΏΠΎΠ»ΠΎΠΆΠ΅Π½ΠΈΠ΅ ΠΌΠΎΠΆΠ΅Ρ Π±ΡΡΡ ΡΠ°Π·Π½ΡΠΌ β Π²Π΅ΡΡΠΈΠΊΠ°Π»ΡΠ½ΠΎΠ΅ ΠΈΠ»ΠΈ ΠΏΠΎΠ΄ ΡΠ³Π»ΠΎΠΌ, ΠΊΠΎΠΌΠ±ΠΈΠ½ΠΈΡΠΎΠ²Π°Π½Π½ΠΎΠ΅, Ρ ΠΎΡΠ³Π°Π½ΠΈΠ·Π°ΡΠΈΠ΅ΠΉ Π² Π²ΠΈΠ΄Π΅ ΠΏΡΡΠΌΠΎΠΉ, ΠΊΠΎΠ»ΡΡΠ΅ΠΎΠ±ΡΠ°Π·Π½ΠΎΠΉ ΠΈΠ»ΠΈ Π΄ΡΡΠ³ΠΈΡ ΡΡ Π΅ΠΌ Π΄Π²ΠΈΠΆΠ΅Π½ΠΈΡ. ΠΡΠΈ ΡΡΠΎΠΌ ΠΏΠΎΠ»ΠΎΠΆΠ΅Π½ΠΈΠ΅ ΡΠ°Π±ΠΎΡΠΈΡ ΠΎΡΠ³Π°Π½ΠΎΠ² ΡΠ°ΠΊΠΆΠ΅ ΠΌΠΎΠΆΠ΅Ρ Π²Π°ΡΡΠΈΡΠΎΠ²Π°ΡΡΡΡ: ΠΈΡΠΏΠΎΠ»ΡΠ·ΡΡΡ ΡΠ°ΡΡΡΠ°Π²Π»Π΅Π½Π½ΠΎΠ΅ ΠΈΠ»ΠΈ ΡΠ΅ΡΡΠΉΡΠ°ΡΠΎΠ΅ ΠΏΠΎΠ»ΠΎΠΆΠ΅Π½ΠΈΠ΅.
ΠΠ°Π³ΡΡΠ·ΠΊΡ Π²ΡΠΏΠΎΠ»Π½ΡΡΡ Π² Π·Π°Π³ΡΡΠ·ΠΎΡΠ½ΡΠΉ Π±Π°ΡΠΌΠ°ΠΊ, ΠΊΠΎΠ²ΡΠΈ ΠΏΠ΅ΡΠ΅ΠΌΠ΅ΡΠ°ΡΡΡΡ ΠΈ Π² Π²Π΅ΡΡ Π½Π΅ΠΉ ΡΠ°ΡΡΠΈ, ΠΏΡΠΎΡ ΠΎΠ΄Ρ ΡΠ΅ΡΠ΅Π· Π±Π°ΡΠ°Π±Π°Π½ ΠΈΠ»ΠΈ Π·Π²Π΅Π·Π΄ΠΎΡΠΊΡ, ΠΎΠΏΡΠΎΠΊΠΈΠ΄ΡΠ²Π°ΡΡΡΡ ΠΈ ΡΠ°Π·Π³ΡΡΠΆΠ°ΡΡΡΡ. ΠΠΎΠ²ΡΠΎΠ²ΡΠ΅ ΡΡΠ°Π½ΡΠΏΠΎΡΡΠ΅ΡΡ ΠΏΡΠΎΠΈΠ·Π²ΠΎΠ΄ΡΡ Π±ΡΡΡΡΠΎΡ ΠΎΠ΄Π½ΡΠΌΠΈ ΠΈ ΡΠΈΡ ΠΎΡ ΠΎΠ΄Π½ΡΠΌΠΈ, Ρ ΡΠ°ΠΌΠΎΡΠ΅ΡΠ½ΠΎΠΉ ΠΈ ΡΠ΅Π½ΡΡΠΎΠ±Π΅ΠΆΠ½ΠΎΠΉ ΡΠ°Π·Π³ΡΡΠ·ΠΊΠΎΠΉ.
Π ΠΎΠ»ΠΈΠΊΠΎΠ²ΡΠ΅
Π ΠΎΠ»ΠΈΠΊΠΎΠ²ΡΠ΅ ΠΊΠΎΠ½Π²Π΅ΠΉΠ΅ΡΡ ΠΎΡΠ»ΠΈΡΠ½ΠΎ ΠΏΡΠΈΡΠΏΠΎΡΠΎΠ±Π»Π΅Π½Ρ Π΄Π»Ρ ΡΡΠ°Π½ΡΠΏΠΎΡΡΠΈΡΠΎΠ²ΠΊΠΈ ΡΡΡΡΠ½ΡΡ
ΠΈΠ·Π΄Π΅Π»ΠΈΠΉ, Π² ΡΠΎΠΌ ΡΠΈΡΠ»Π΅ Π² ΠΊΠΎΠ½ΡΠ΅ΠΉΠ½Π΅ΡΠ°Ρ
, Π΅ΡΠ»ΠΈ ΡΠ°Π·ΠΌΠ΅Ρ ΠΈΠ·Π΄Π΅Π»ΠΈΠΉ Π½Π΅Π²Π΅Π»ΠΈΠΊ. ΠΠΎΠ½ΡΡΡΡΠΊΡΠΈΠ²Π½Π°Ρ ΡΡΡΡ Π·Π°ΠΊΠ»ΡΡΠ°Π΅ΡΡΡ Π² ΠΊΡΠ΅ΠΏΠ»Π΅Π½ΠΈΠΈ Π½Π° ΠΊΠ°ΡΠΊΠ°ΡΠ΅ ΡΠΈΡΡΠ΅ΠΌ ΠΏΠΎΠ΄ΡΠΈΠΏΠ½ΠΈΠΊΠΎΠ², ΠΎΡΠ½Π°ΡΠ΅Π½Π½ΡΡ
ΠΆΠ΅ΡΡΠΊΠΎ Π·Π°ΠΊΡΠ΅ΠΏΠ»Π΅Π½Π½ΡΠΌΠΈ ΡΠΎΠ»ΠΈΠΊΠ°ΠΌΠΈ, ΠΊΠΎΡΠΎΡΡΠ΅ Π²ΡΠ°ΡΠ°ΡΡΡΡ ΠΈ ΡΠ΅ΠΌ ΡΠ°ΠΌΡΠΌ ΠΎΡΡΡΠ΅ΡΡΠ²Π»ΡΡΡ ΠΏΠ΅ΡΠ΅Π΄Π²ΠΈΠΆΠ΅Π½ΠΈΠ΅ Π½ΠΎΡΠΈΡΠ΅Π»Ρ ΠΈ Π³ΡΡΠ·ΠΎΠ².
Π Π·Π°Π²ΠΈΡΠΈΠΌΠΎΡΡΠΈ ΠΎΡ ΠΏΡΠΈΠ½ΡΠΈΠΏΠ° Π΄Π΅ΠΉΡΡΠ²ΠΈΡ ΡΠ°Π·Π»ΠΈΡΠ°ΡΡ ΡΠΎΠ»ΠΈΠΊΠΎΠ²ΡΠ΅ ΡΡΠ°Π½ΡΠΏΠΎΡΡΠ΅ΡΡ ΠΏΡΠΈΠ²ΠΎΠ΄Π½ΡΠ΅, Π³ΡΠ°Π²ΠΈΡΠ°ΡΠΈΠΎΠ½Π½ΡΠ΅, ΠΈΠ½Π΅ΡΡΠΈΠΎΠ½Π½ΡΠ΅ (ΠΊΠ°ΡΠ°ΡΡΠΈΠ΅ΡΡ ΠΈ Π²ΠΈΠ±ΡΠ°ΡΠΈΠΎΠ½Π½ΡΠ΅). ΠΡΠΈΠ²ΠΎΠ΄Π½ΡΠ΅ ΠΊΠΎΠ½ΡΠ΅ΠΉΠ½Π΅ΡΡ ΡΠ°Π±ΠΎΡΠ°ΡΡ ΠΎΡ ΡΠ»Π΅ΠΊΡΡΠΎΠ΄Π²ΠΈΠ³Π°ΡΠ΅Π»Ρ, ΠΊ ΠΊΠΎΡΠΎΡΠΎΠΌΡ ΡΠ΅ΡΠ΅Π· ΡΠ΅Π΄ΡΠΊΡΠΎΡ ΠΏΠΎΠ΄ΡΠΎΠ΅Π΄ΠΈΠ½Π΅Π½Π° Π»ΠΈΠ½ΠΈΡ. Π’Π°ΠΊΠΎΠΉ Π²Π°ΡΠΈΠ°Π½Ρ Π½Π΅ΠΎΠ±Ρ
ΠΎΠ΄ΠΈΠΌ Π² ΡΠΎΠΌ ΡΠ»ΡΡΠ°Π΅, Π΅ΡΠ»ΠΈ ΡΠ΅Ρ
Π½ΠΎΠ»ΠΎΠ³ΠΈΡΠ΅ΡΠΊΠ°Ρ ΠΎΠΏΠ΅ΡΠ°ΡΠΈΡ ΡΡΠ΅Π±ΡΠ΅Ρ ΠΏΠΎΡΡΠΎΡΠ½Π½ΠΎΠΉ ΡΠΊΠΎΡΠΎΡΡΠΈ Π΄Π²ΠΈΠΆΠ΅Π½ΠΈΡ ΡΠ°Π±ΠΎΡΠ΅ΠΉ ΠΏΠΎΠ²Π΅ΡΡ
Π½ΠΎΡΡΠΈ ΠΏΠΎ Π³ΠΎΡΠΈΠ·ΠΎΠ½ΡΠ°Π»ΠΈ ΠΈΠ»ΠΈ ΠΏΡΠΈ Π½Π΅Π±ΠΎΠ»ΡΡΠΎΠΌ ΡΠΊΠ»ΠΎΠ½Π΅. ΠΡΠ°Π²ΠΈΡΠ°ΡΠΈΠΎΠ½Π½ΡΠ΅ ΡΡΡΡΠΎΠΉΡΡΠ²Π° ΡΡΡΠ°Π½Π°Π²Π»ΠΈΠ²Π°ΡΡ ΠΏΠΎΠ΄ ΡΠ³Π»ΠΎΠΌ Π΄ΠΎ 5 Π³ΡΠ°Π΄ΡΡΠΎΠ², ΠΈ ΡΡΠΎΠ³ΠΎ Π΄ΠΎΡΡΠ°ΡΠΎΡΠ½ΠΎ Π΄Π»Ρ ΡΠΎΠ³ΠΎ, ΡΡΠΎΠ±Ρ Π³ΡΡΠ·Ρ ΠΏΠ΅ΡΠ΅ΠΌΠ΅ΡΠ°Π»ΠΈΡΡ ΠΏΠΎΠ΄ ΡΠΎΠ±ΡΡΠ²Π΅Π½Π½ΡΠΌ Π²Π΅ΡΠΎΠΌ. ΠΠ½Π΅ΡΡΠΈΠΎΠ½Π½ΡΠ΅ ΡΡΡΡΠΎΠΉΡΡΠ²Π° ΡΠ°ΡΠ΅ Π²ΡΠ΅Π³ΠΎ ΡΡΡΠ°Π½Π°Π²Π»ΠΈΠ²Π°ΡΡ ΠΏΠΎΠ΄ ΡΠ³Π»ΠΎΠΌ, ΠΊΠΎΡΠΎΡΡΠΉ ΠΎΠ±Π΅ΡΠΏΠ΅ΡΠΈΠ²Π°Π΅Ρ ΠΏΠ΅ΡΠ΅ΠΌΠ΅ΡΠ΅Π½ΠΈΠ΅ ΠΌΠ°ΡΠ΅ΡΠΈΠ°Π»ΠΎΠ² ΠΈΠ»ΠΈ ΠΈΠ·Π΄Π΅Π»ΠΈΠΉ ΠΏΠΎ ΠΈΠ½Π΅ΡΡΠΈΠΈ, ΠΏΡΠΈ ΡΡΠΎΠΌ ΠΊΠ°ΡΠ°ΡΡΠΈΠ΅ΡΡ ΠΌΠΎΠ΄Π΅Π»ΠΈ Ρ
Π°ΡΠ°ΠΊΡΠ΅ΡΠΈΠ·ΡΡΡΡΡ Π±ΠΎΠ»ΡΡΠΎΠΉ Π°ΠΌΠΏΠ»ΠΈΡΡΠ΄ΠΎΠΉ ΠΈ Π½Π΅Π±ΠΎΠ»ΡΡΠΎΠΉ ΡΠ°ΡΡΠΎΡΠΎΠΉ, ΡΠΎΠ³Π΄Π° ΠΊΠ°ΠΊ Π²ΠΈΠ±ΡΠ°ΡΠΈΠΎΠ½Π½ΡΠ΅ ΠΏΡΠΈ Π±ΠΎΠ»ΡΡΠΎΠΉ ΡΠ°ΡΡΠΎΡΠ΅ ΠΎΠ±Π΅ΡΠΏΠ΅ΡΠΈΠ²Π°ΡΡ ΠΌΠ°Π»ΡΡ Π°ΠΌΠΏΠ»ΠΈΡΡΠ΄Ρ.
Π’ΡΠ°Π½ΡΠΏΠΎΡΡΠ΅ΡΡ ΡΠ°ΠΊΠΎΠ³ΠΎ ΡΠΈΠΏΠ° ΠΈΠ΄Π΅Π°Π»ΡΠ½Ρ Π΄Π»Ρ ΠΏΠ΅ΡΠ΅ΠΌΠ΅ΡΠ΅Π½ΠΈΡ ΠΊΡΡΠΊΠΎΠ²ΡΡ , ΡΡΠΏΡΡΠΈΡ ΠΌΠ°ΡΠ΅ΡΠΈΠ°Π»ΠΎΠ², ΡΡΡΡΠ½ΡΡ ΠΈΠ·Π΄Π΅Π»ΠΈΠΉ Π½Π° ΡΠ±ΠΎΡΠΎΡΠ½ΡΡ ΠΈΠ»ΠΈ Π»ΠΈΡΠ΅ΠΉΠ½ΡΡ ΠΏΠΎΡΠΎΡΠ½ΡΡ Π»ΠΈΠ½ΠΈΡΡ . ΠΠΎΠ½ΡΡΡΡΠΊΡΠΈΠ²Π½ΠΎ ΡΡΡΡΠΎΠΉΡΡΠ²ΠΎ ΠΏΡΠ΅Π΄ΡΡΠ°Π²Π»ΡΠ΅Ρ ΡΠΎΠ±ΠΎΠΉ ΠΆΠ΅Π»ΠΎΠ± ΠΈΠ»ΠΈ ΡΡΡΠ±Ρ, Π² ΡΠ΅Π»Π΅ ΠΊΠΎΡΠΎΡΠΎΠΉ ΠΏΠ΅ΡΠ΅ΠΌΠ΅ΡΠ°ΡΡΡΡ ΡΠΊΡΠ΅Π±ΠΊΠΈ, ΠΏΠ΅ΡΠ΅Π½ΠΎΡΡ Ρ ΡΠΎΠ±ΠΎΠΉ Π³ΡΡΠ·Ρ ΠΏΠΎ Π³ΠΎΡΠΈΠ·ΠΎΠ½ΡΠ°Π»ΡΠ½ΠΎΠΉ, Π²Π΅ΡΡΠΈΠΊΠ°Π»ΡΠ½ΠΎΠΉ ΠΈΠ»ΠΈ Π½Π°ΠΊΠ»ΠΎΠ½Π½ΠΎΠΉ ΠΏΠ»ΠΎΡΠΊΠΎΡΡΠΈ. Π€ΠΎΡΠΌΠ° ΡΠΊΡΠ΅Π±ΠΊΠΎΠ² ΠΈ ΠΆΠ΅Π»ΠΎΠ±Π° Π΄ΠΎΠ»ΠΆΠ½Ρ ΠΎΠ±ΡΠ·Π°ΡΠ΅Π»ΡΠ½ΠΎ ΡΠΎΠ²ΠΏΠ°Π΄Π°ΡΡ Π΄Π»Ρ ΡΠΎΠ³ΠΎ, ΡΡΠΎΠ±Ρ Π»ΠΈΠ½ΠΈΡ Π±ΡΠ»Π° ΡΡΡΠ΅ΠΊΡΠΈΠ²Π½ΠΎΠΉ, Π° ΠΈΠ·Π½ΠΎΡ ΡΡΡΠ±Ρ Π±ΡΠ» Π½Π΅Π·Π½Π°ΡΠΈΡΠ΅Π»Π΅Π½. Π‘ΠΊΡΠ΅Π±ΠΊΠΈ ΡΡΠ°Π΄ΠΈΡΠΈΠΎΠ½Π½ΠΎ ΠΏΡΠΎΠΈΠ·Π²ΠΎΠ΄ΡΡ ΠΈΠ· ΠΌΠ΅ΡΠ°Π»Π»Π°, ΡΠΎΠ³Π΄Π° ΠΊΠ°ΠΊ ΠΆΠ΅Π»ΠΎΠ± ΠΌΠΎΠΆΠ΅Ρ Π±ΡΡΡ ΠΌΠ΅ΡΠ°Π»Π»ΠΈΡΠ΅ΡΠΊΠΈΠΌ ΠΈΠ»ΠΈ Π΄Π΅ΡΠ΅Π²ΡΠ½Π½ΡΠΌ. Π Π°Π·Π»ΠΈΡΠ°ΡΡ ΡΠΊΡΠ΅Π±ΠΊΠΎΠ²ΡΠ΅ ΡΡΠ°Π½ΡΠΏΠΎΡΡΠ΅ΡΡ Ρ ΠΏΠΎΠ³ΡΡΠΆΠ΅Π½Π½ΡΠΌΠΈ ΠΈ ΠΎΠ±ΡΡΠ½ΡΠΌΠΈ ΡΠΊΡΠ΅Π±ΠΊΠ°ΠΌΠΈ, Π½Π΅ΡΡΡΠΈΠΌΠΈ ΠΈ Π²Π΅Π΄ΡΡΠΈΠΌΠΈ ΡΠ΅ΠΏΡΠΌΠΈ, ΡΠ΅Π»Π΅ΠΆΠ΅ΡΠ½ΡΠ΅.
ΠΠΎΠ΄Π°ΡΡ ΠΏΡΠΎΠΈΠ·Π²ΠΎΠ΄ΡΡ ΡΠ΅ΡΠ΅Π· Π·Π°Π³ΡΡΠ·ΠΎΡΠ½ΡΡ Π²ΠΎΡΠΎΠ½ΠΊΡ. Π‘ΠΊΠΎΡΠΎΡΡΡ ΠΏΠ΅ΡΠ΅ΠΌΠ΅ΡΠ΅Π½ΠΈΡ Π²Π°ΡΡΠΈΡΡΠ΅Ρ Π² Π΄ΠΈΠ°ΠΏΠ°Π·ΠΎΠ½Π΅ 0,16 β 1 ΠΌ/ΡΠ΅ΠΊ, Π° ΠΏΡΠΎΠΈΠ·Π²ΠΎΠ΄ΠΈΡΠ΅Π»ΡΠ½ΠΎΡΡΡ ΠΌΠΎΠΆΠ΅Ρ Π΄ΠΎΡΡΠΈΠ³Π°ΡΡ 350 ΡΠΎΠ½Π½ Π² ΡΠ°Ρ.
ΠΠΈΠ½ΡΠΎΠ²ΡΠ΅
ΠΠΈΠ½ΡΠΎΠ²ΡΠ΅ ΡΡΡΡΠΎΠΉΡΡΠ²Π° Π½Π°ΡΠ»ΠΈ ΠΏΡΠΈΠΌΠ΅Π½Π΅Π½ΠΈΠ΅ Π½Π° ΠΏΡΠΎΠΈΠ·Π²ΠΎΠ΄ΡΡΠ²Π°Ρ
, ΡΠ²ΡΠ·Π°Π½Π½ΡΡ
Ρ ΠΈΡΠΏΠΎΠ»ΡΠ·ΠΎΠ²Π°Π½ΠΈΠ΅ΠΌ ΠΊΡΡΠΊΠΎΠ²ΡΡ
, ΡΡΠΏΡΡΠΈΡ
, ΠΏΡΠ»Π΅Π²ΠΈΠ΄Π½ΡΡ
ΠΌΠ°ΡΠ΅ΡΠΈΠ°Π»ΠΎΠ², ΠΊΠΎΡΠΎΡΡΠ΅ Π½Π΅ΠΎΠ±Ρ
ΠΎΠ΄ΠΈΠΌΠΎ ΠΏΠ΅ΡΠ΅ΠΌΠ΅ΡΠ°ΡΡ Π² ΠΏΡΠΎΡΡΡΠ°Π½ΡΡΠ²Π΅ Π½Π° ΡΠ°Π·Π»ΠΈΡΠ½ΡΠ΅ ΡΠ°ΡΡΡΠΎΡΠ½ΠΈΡ.
ΠΠ»Π°Π³ΠΎΠ΄Π°ΡΡ ΠΊΠΎΠ½ΡΡΡΡΠΊΡΠΈΠ²Π½ΡΠΌ ΠΎΡΠΎΠ±Π΅Π½Π½ΠΎΡΡΡΠΌ Π»ΠΈΠ½ΠΈΠΈ ΡΠΎΠ·Π΄Π°ΡΡ Π³ΠΎΡΠΈΠ·ΠΎΠ½ΡΠ°Π»ΡΠ½ΡΠΌΠΈ, Π²Π΅ΡΡΠΈΠΊΠ°Π»ΡΠ½ΡΠΌΠΈ, ΡΡΡΠ°Π½ΠΎΠ²Π»Π΅Π½Π½ΡΠΌΠΈ ΠΏΠΎΠ΄ ΡΠ³Π»ΠΎΠΌ. ΠΠ»Π°Π²Π½ΡΠΌ ΡΠ°Π±ΠΎΡΠΈΠΌ ΠΎΡΠ³Π°Π½ΠΎΠΌ Π² Π½ΠΈΡ
ΡΠ²Π»ΡΠ΅ΡΡΡ Π²ΠΈΠ½Ρ, ΠΊΠΎΡΠΎΡΠΎΠΌΡ ΠΏΡΠΈΠ΄Π°Π΅ΡΡΡ Π²ΡΠ°ΡΠ΅Π½ΠΈΠ΅ ΠΎΡ ΡΠ»Π΅ΠΊΡΡΠΎΠ΄Π²ΠΈΠ³Π°ΡΠ΅Π»Ρ ΡΠ΅ΡΠ΅Π· ΠΏΡΠΈΠ²ΠΎΠ΄. ΠΠΈΠ½ΡΠΎΠ²ΠΎΠΉ ΡΠ½Π΅ΠΊ ΠΏΠΎΠΌΠ΅ΡΠ°ΡΡ Π² ΠΆΠ΅Π»ΠΎΠ± ΠΈΠ»ΠΈ ΠΊΠΎΡΠΎΠ±. ΠΠΎΠΏΠ°ΡΡΠΈ ΡΠ½Π΅ΠΊΠ° ΠΌΠΎΠ³ΡΡ Π±ΡΡΡ ΡΠΏΠ»ΠΎΡΠ½ΡΠΌΠΈ, Π² Π²ΠΈΠ΄Π΅ Π»ΠΎΠΏΠ°ΡΠΎΠΊ ΠΈΠ»ΠΈ Π»Π΅Π½ΡΠΎΡΠ½ΡΠΌΠΈ Π² Π·Π°Π²ΠΈΡΠΈΠΌΠΎΡΡΠΈ ΠΎΡ Ρ
Π°ΡΠ°ΠΊΡΠ΅ΡΠΈΡΡΠΈΠΊ Π³ΡΡΠ·Π° β ΡΡΠΏΡΡΠΈΠΉ, ΡΠ»Π΅ΠΆΠ°Π²ΡΠΈΠΉΡΡ ΠΈΠ»ΠΈ Π»ΠΈΠΏΠΊΠΈΠΉ, Π²Π»Π°ΠΆΠ½ΡΠΉ ΠΈΠ»ΠΈ ΠΊΡΡΠΊΠΎΠ²ΠΎΠΉ. ΠΠΎΠ½Π²Π΅ΠΉΠ΅ΡΠ½Π°Ρ Π»ΠΈΠ½ΠΈΡ ΠΌΠΎΠΆΠ΅Ρ ΡΠΎΡΡΠΎΡΡΡ ΠΈΠ· Π½Π΅ΡΠΊΠΎΠ»ΡΠΊΠΈΡ
ΡΠ΅ΠΊΡΠΈΠΉ, Π΄Π»ΠΈΠ½Π° ΠΊΠ°ΠΆΠ΄ΠΎΠΉ ΠΈΠ· ΠΊΠΎΡΠΎΡΡΡ
Π²Π°ΡΡΠΈΡΡΠ΅Ρ Π² Π΄ΠΈΠ°ΠΏΠ°Π·ΠΎΠ½Π΅ ΠΎΡ 2 Π΄ΠΎ 4 ΠΌ ΠΏΡΠΈ ΠΎΠ±ΡΠ΅ΠΉ Π΄Π»ΠΈΠ½Π΅ ΠΎΠΊΠΎΠ»ΠΎ 40-60 ΠΌΠ΅ΡΡΠΎΠ².
Π’ΡΠ°Π½ΡΠΏΠΎΡΡΠ΅ΡΡ ΠΏΠ»Π°ΡΡΠΈΠ½ΡΠ°ΡΡΠ΅ ΡΡΡΠ΅ΠΊΡΠΈΠ²Π½Ρ Π΄Π»Ρ ΠΏΠ΅ΡΠ΅ΠΌΠ΅ΡΠ΅Π½ΠΈΡ ΡΡΡΡΠ½ΡΡ
ΠΈΠ·Π΄Π΅Π»ΠΈΠΉ ΠΈΠ»ΠΈ ΠΊΡΡΠΏΠ½ΠΎΠΊΡΡΠΊΠΎΠ²ΡΡ
ΠΌΠ°ΡΠ΅ΡΠΈΠ°Π»ΠΎΠ², Ρ ΡΠΈΡΠ»Π΅Π½ΠΈΠ΅ΠΌ ΠΈΠ»ΠΈ ΠΎΡΡΡΡΠΌΠΈ Π³ΡΠ°Π½ΡΠΌΠΈ, ΠΊΠΎΡΠΎΡΡΠ΅ ΡΠΏΠΎΡΠΎΠ±Π½Ρ ΠΏΠΎΠ²ΡΠ΅Π΄ΠΈΡΡ ΠΎΠ±ΡΡΠ½ΡΠΉ Π»Π΅Π½ΡΠΎΡΠ½ΡΠΉ ΠΊΠΎΠ½Π²Π΅ΠΉΠ΅Ρ. Π Π°Π±ΠΎΡΠ°Ρ ΠΏΠΎΠ²Π΅ΡΡ
Π½ΠΎΡΡΡ Π»Π΅Π½ΡΡ ΡΠΎΡΡΠΎΠΈΡ ΠΈΠ· ΠΌΠ΅ΡΠ°Π»Π»ΠΈΡΠ΅ΡΠΊΠΈΡ
, ΠΏΠ»Π°ΡΡΠΈΠΊΠΎΠ²ΡΡ
ΠΈΠ»ΠΈ Π΄Π΅ΡΠ΅Π²ΡΠ½Π½ΡΡ
ΠΏΠ»Π°ΡΡΠΈΠ½, ΡΠΎΠ΅Π΄ΠΈΠ½Π΅Π½Π½ΡΡ
ΠΌΠ΅Ρ
Π°Π½ΠΈΡΠ΅ΡΠΊΠΈΠΌ ΡΠΏΠΎΡΠΎΠ±ΠΎΠΌ ΠΈ ΠΏΡΠΈΠΊΡΠ΅ΠΏΠ»ΡΠ΅ΠΌΡΡ
ΠΊ ΡΡΠ³ΠΎΠ²ΡΠΌ ΠΎΡΠ³Π°Π½Π°ΠΌ β ΡΠ΅ΠΏΡΠΌ. ΠΠΎΠ²Π΅ΡΡ
Π½ΠΎΡΡΡ ΠΏΠ»Π°ΡΡΠΈΠ½ ΠΌΠΎΠΆΠ΅Ρ Π±ΡΡΡ Π³Π»Π°Π΄ΠΊΠΎΠΉ ΠΈΠ»ΠΈ ΡΠΈΡΠ»Π΅Π½ΠΎΠΉ, ΠΈΠΌΠ΅ΡΡ ΠΏΠ»ΠΎΡΠΊΠΈΠΉ, Π²ΠΎΠ»Π½ΠΈΡΡΡΠΉ ΠΈΠ»ΠΈ ΠΊΠΎΡΠΎΠ±ΡΠ°ΡΡΠΉ ΠΏΡΠΎΡΠΈΠ»Ρ, Ρ Π±ΠΎΡΡΠ°ΠΌΠΈ (ΡΡΠ°ΡΠΈΠΎΠ½Π°ΡΠ½ΡΠΌΠΈ ΠΈ ΠΏΠΎΠ΄Π²ΠΈΠΆΠ½ΡΠΌΠΈ) ΠΈ Π±Π΅Π· Π½ΠΈΡ
.
ΠΡΠΈ ΠΌΠΎΠ½ΡΠ°ΠΆΠ΅ ΠΌΠΎΠΆΠ΅Ρ Π±ΡΡΡ ΠΏΡΠΈΠΌΠ΅Π½Π΅Π½Π° Π³ΠΎΡΠΈΠ·ΠΎΠ½ΡΠ°Π»ΡΠ½ΠΎΠ΅ ΡΠ°ΡΠΏΠΎΠ»ΠΎΠΆΠ΅Π½ΠΈΠ΅ Π»ΠΈΠ½ΠΈΠΈ ΠΈΠ»ΠΈ Π½Π°ΠΊΠ»ΠΎΠ½Π½ΠΎΠ΅ (Π΄ΠΎ 35 Π³ΡΠ°Π΄ΡΡΠΎΠ²).
ΠΠ°Π΄Π΅ΠΆΠ½ΠΎΠ΅ ΠΊΡΠ΅ΠΏΠ»Π΅Π½ΠΈΠ΅, Π²ΡΡΠΎΠΊΠ°Ρ ΠΌΠ΅Ρ Π°Π½ΠΈΡΠ΅ΡΠΊΠ°Ρ ΠΏΡΠΎΡΠ½ΠΎΡΡΡ, Π½Π°Π»ΠΈΡΠΈΠ΅ ΠΏΡΠΎΠΌΠ΅ΠΆΡΡΠΎΡΠ½ΡΡ ΠΏΡΠΈΠ²ΠΎΠ΄ΠΎΠ² ΠΏΠΎΠ·Π²ΠΎΠ»ΡΡΡ ΡΠΎΠ·Π΄Π°Π²Π°ΡΡ Π΄ΠΎΠ²ΠΎΠ»ΡΠ½ΠΎ Π΄Π»ΠΈΠ½Π½ΡΠ΅ Π»ΠΈΠ½ΠΈΠΈ Π΄Π»Ρ ΠΏΠ΅ΡΠ΅ΠΌΠ΅ΡΠ΅Π½ΠΈΡ ΡΡΠΆΠ΅Π»ΡΡ , Π½Π΅Π³Π°Π±Π°ΡΠΈΡΠ½ΡΡ Π³ΡΡΠ·ΠΎΠ² Π½Π° Π·Π½Π°ΡΠΈΡΠ΅Π»ΡΠ½ΡΠ΅ ΡΠ°ΡΡΡΠΎΡΠ½ΠΈΡ. ΠΠ°ΠΈΠ±ΠΎΠ»Π΅Π΅ ΠΏΠΎΠΏΡΠ»ΡΡΠ½ΡΠ΅ ΡΡΠ΅ΡΡ ΠΏΡΠΈΠΌΠ΅Π½Π΅Π½ΠΈΡ β Π±Π°Π³Π°ΠΆΠ½ΡΠ΅ Π»Π΅Π½ΡΡ Π² ΡΡΠ°Π½ΡΠΏΠΎΡΡΠ½ΡΡ ΡΠ·Π»Π°Ρ , Π³ΠΎΡΠ½ΠΎΠ΄ΠΎΠ±ΡΠ²Π°ΡΡΠ°Ρ ΠΈ ΠΎΠ±ΡΠ°Π±Π°ΡΡΠ²Π°ΡΡΠ°Ρ ΠΏΡΠΎΠΌΡΡΠ»Π΅Π½Π½ΠΎΡΡΠΈ, ΡΡΠΊΠ°Π»Π°ΡΠΎΡΡ ΠΏΠ°ΡΡΠ°ΠΆΠΈΡΡΠΊΠΈΠ΅ ΠΈ ΡΠ΅Ρ Π½ΠΈΡΠ΅ΡΠΊΠΈΠ΅, ΡΠ°Π·Π»ΠΈΠ²ΠΎΡΠ½ΡΠ΅ ΠΈ ΠΏΡΠΎΡΠΈΠ΅ Π»ΠΈΠ½ΠΈΠΈ. ΠΡΠΎΠΈΠ·Π²ΠΎΠ΄ΠΈΡΠ΅Π»ΡΠ½ΠΎΡΡΡ β Π΄ΠΎ 2000 ΡΠΎΠ½Π½ Π² ΡΠ°Ρ.
ΠΠ΅Π½ΡΠΎΡΠ½ΡΠΉ ΠΊΠΎΠ½Π²Π΅ΠΉΠ΅Ρ (ΡΡΠ°Π½ΡΠΏΠΎΡΡΠ΅Ρ): Π²ΠΈΠ΄Ρ, ΠΏΡΠΈΠ½ΡΠΈΠΏ ΡΠ°Π±ΠΎΡΡ, ΡΡ Π΅ΠΌΡ
ΠΠ»Π°Π²Π½Π°Ρ /ΠΠ»ΠΎΠ³ /
ΠΠΈΠ΄Ρ Π»Π΅Π½ΡΠΎΡΠ½ΡΡ ΠΊΠΎΠ½Π²Π΅ΠΉΠ΅ΡΠΎΠ² (ΡΡΠ°Π½ΡΠΏΠΎΡΡΠ΅ΡΠΎΠ²) ΠΈΒ ΡΡΠ΅ΡΡ ΠΈΡ Β ΠΏΡΠΈΠΌΠ΅Π½Π΅Π½ΠΈΡ
ΠΡΡΠ΅ΠΊΡΠΈΠ²Π½ΠΎΡΡΡ ΠΈ ΠΏΡΠΎΠΈΠ·Π²ΠΎΠ΄ΠΈΡΠ΅Π»ΡΠ½ΠΎΡΡΡ ΡΠΊΠ»Π°Π΄ΡΠΊΠΈΡ
ΠΈ Π»ΠΎΠ³ΠΈΡΡΠΈΡΠ΅ΡΠΊΠΈΡ
ΡΠ΅Π½ΡΡΠΎΠ² Π² ΠΏΠ΅ΡΠ²ΡΡ ΠΎΡΠ΅ΡΠ΅Π΄Ρ Π·Π°Π²ΠΈΡΠΈΡ ΠΎΡ ΡΠΊΡΠΏΠ»ΡΠ°ΡΠΈΡΡΠ΅ΠΌΠΎΠΉ Π½Π° ΠΎΠ±ΡΠ΅ΠΊΡΠ΅ ΡΠ΅Ρ
Π½ΠΈΠΊΠΈ, Π΅Π΅ ΠΊΠ°ΡΠ΅ΡΡΠ²Π° ΠΈ Π½Π°Π΄Π΅ΠΆΠ½ΠΎΡΡΠΈ. ΠΠΎΠ½Π²Π΅ΠΉΠ΅ΡΠ½ΡΠ΅ ΡΠ΅ΡΠ΅Π½ΠΈΡ Π΄Π»Ρ ΡΡΠ°Π½ΡΠΏΠΎΡΡΠΈΡΠΎΠ²ΠΊΠΈ ΡΠΎΠ²Π°ΡΠΎΠ², Π³ΡΡΠ·ΠΎΠ² ΠΈ ΠΏΠΎΡΡΠ»ΠΎΠΊ — ΠΎΠ΄ΠΈΠ½ ΠΈΠ· Π½Π°ΠΈΠ±ΠΎΠ»Π΅Π΅ Π²ΠΎΡΡΡΠ΅Π±ΠΎΠ²Π°Π½Π½ΡΡ
ΡΠΈΠΏΠΎΠ² ΡΠΊΠ»Π°Π΄ΡΠΊΠΎΠ³ΠΎ ΠΈ ΠΏΡΠΎΠΈΠ·Π²ΠΎΠ΄ΡΡΠ²Π΅Π½Π½ΠΎΠ³ΠΎ ΠΎΠ±ΠΎΡΡΠ΄ΠΎΠ²Π°Π½ΠΈΡ.
Β Π Π΄Π°Π½Π½ΠΎΠΉ ΡΡΠ°ΡΡΠ΅ ΠΏΠΎΠ΄ΡΠΎΠ±Π½Π΅Π΅ ΡΠ°ΡΡΠΌΠΎΡΡΠΈΠΌ ΡΠ°Π·Π½ΠΎΠ²ΠΈΠ΄Π½ΠΎΡΡΠΈ ΠΊΠΎΠ½Π²Π΅ΠΉΠ΅ΡΠΎΠ² Π»Π΅Π½ΡΠΎΡΠ½ΠΎΠ³ΠΎ ΡΠΈΠΏΠ°.
ΠΠΎΠ΄Π΅Π»ΠΈΡΡΡΡ:
23 Π‘Π΅Π½ΡΡΠ±ΡΡ 2020
ΠΡΠΈΠ½ΡΠΈΠΏ ΡΠ°Π±ΠΎΡΡ Π»Π΅Π½ΡΠΎΡΠ½ΠΎΠ³ΠΎ ΠΊΠΎΠ½Π²Π΅ΠΉΠ΅ΡΠ° (ΡΡΠ°Π½ΡΠΏΠΎΡΡΠ΅ΡΠ°)Β
ΠΠ΅Π½ΡΠΎΡΠ½ΡΠ΅ ΠΊΠΎΠ½Π²Π΅ΠΉΠ΅ΡΡ ΡΠ°Π·Π»ΠΈΡΠ½ΠΎΠ³ΠΎ ΡΠΈΠΏΠ° ΠΏΡΠΈΠΎΠ±ΡΠ΅Π»ΠΈ ΡΠΈΡΠΎΠΊΠΎΠ΅ ΠΏΡΠΈΠΌΠ΅Π½Π΅Π½ΠΈΠ΅ Π±Π»Π°Π³ΠΎΠ΄Π°ΡΡ ΡΠ²ΠΎΠ΅ΠΉ ΡΠ½ΠΈΠ²Π΅ΡΡΠ°Π»ΡΠ½ΠΎΡΡΠΈ. ΠΠ±ΠΎΡΡΠ΄ΠΎΠ²Π°Π½ΠΈΠ΅ ΠΈΡΠΏΠΎΠ»ΡΠ·ΡΠ΅ΡΡΡ Π΄Π»Ρ ΡΡΠ°Π½ΡΠΏΠΎΡΡΠΈΡΠΎΠ²ΠΊΠΈ ΡΠ°Π·Π»ΠΈΡΠ½ΡΡ ΡΠΈΠΏΠΎΠ² Π³ΡΡΠ·ΠΎΠ², ΡΠΎΠ²Π°ΡΠΎΠ² ΠΈ ΠΏΠΎΡΡΠ»ΠΎΠΊ. ΠΠΎΠ½ΡΡΡΡΠΊΡΠΈΡ ΠΊΠΎΠ½Π²Π΅ΠΉΠ΅ΡΠ° ΠΏΡΠ΅Π΄ΡΡΠ°Π²Π»ΡΠ΅Ρ ΡΠΎΠ±ΠΎΠΉ Π½Π΅ΠΏΡΠ΅ΡΡΠ²Π½ΡΡ Π·Π°ΠΌΠΊΠ½ΡΡΡΡ Π»Π΅Π½ΡΡ, ΠΎΠ³ΠΈΠ±Π°ΡΡΡΡ Π½Π°ΡΡΠΆΠ½ΠΎΠΉ ΠΈ ΠΏΡΠΈΠ²ΠΎΠ΄Π½ΠΎΠΉ Π±Π°ΡΠ°Π±Π°Π½Ρ. ΠΠ΅ΠΆΠ΄Ρ Π±Π°ΡΠ°Π±Π°Π½Π°ΠΌΠΈ ΡΠ°ΡΠΏΠΎΠ»ΠΎΠΆΠ΅Π½Ρ ΠΎΠΏΠΎΡΠ½ΡΠ΅ ΡΠΎΠ»ΠΈΠΊΠΈ, ΡΠ°ΡΠΏΡΠ΅Π΄Π΅Π»ΡΡΡΠΈΠ΅ Π½Π°Π³ΡΡΠ·ΠΊΡ, ΠΊΠΎΡΠΎΡΠ°Ρ Π»ΠΎΠΆΠΈΡΡΡ Π½Π° ΠΊΠΎΠ½Π²Π΅ΠΉΠ΅ΡΠ½ΡΡ Π»Π΅Π½ΡΡ.Β ΠΠ°Π³ΡΡΠ·ΠΊΠ° ΠΈ Π²ΡΠ³ΡΡΠ·ΠΊΠ° ΠΎΠ±ΡΠ΅ΠΊΡΠΎΠ² ΡΡΠ°Π½ΡΠΏΠΎΡΡΠΈΡΠΎΠ²ΠΊΠΈ ΠΎΡΡΡΠ΅ΡΡΠ²Π»ΡΠ΅ΡΡΡ Ρ ΠΏΡΠΎΡΠΈΠ²ΠΎΠΏΠΎΠ»ΠΎΠΆΠ½ΡΡ ΡΡΠΎΡΠΎΠ½ ΠΊΠΎΠ½Π²Π΅ΠΉΠ΅ΡΠ°.Β
Π‘Π°ΠΌΠΈ Π»Π΅Π½ΡΡ ΠΊΠΎΠ½Π²Π΅ΠΉΠ΅ΡΠ° ΡΠ°ΠΊΠΆΠ΅ ΡΠ°Π·Π»ΠΈΡΠ°ΡΡΡΡ Π² Π·Π°Π²ΠΈΡΠΈΠΌΠΎΡΡΠΈ ΠΎΡ Ρ Π°ΡΠ°ΠΊΡΠ΅ΡΠ° ΡΡΠ°Π½ΡΠΏΠΎΡΡΠΈΡΡΠ΅ΠΌΡΡ Π³ΡΡΠ·ΠΎΠ², ΠΈΠ·Π½ΠΎΡΠΎΡΡΡΠΎΠΉΡΠΈΠ²ΠΎΡΡΠΈ, ΡΡΠ΅Π±ΠΎΠ²Π°Π½ΠΈΠΉ ΠΊ Π½Π°ΡΡΠΆΠ΅Π½ΠΈΡ ΠΈ ΠΏΡΠΎΠΈΠ·Π²ΠΎΠ΄ΠΈΡΠ΅Π»ΡΠ½ΠΎΡΡΠΈ. Π Π°Π·Π»ΠΈΡΠ°ΡΡΡΡ ΡΠ»Π΅Π΄ΡΡΡΠΈΠ΅ Π²ΠΈΠ΄Ρ:
- ΡΠ΅Π·ΠΈΠ½ΠΎΡΠΊΠ°Π½Π΅Π²ΡΠ΅
- ΡΠ΅Π·ΠΈΠ½ΠΎΡΡΠΎΡΠΎΠ²ΡΠ΅Β
- ΡΡΠ°Π»ΡΠ½ΡΠ΅Β
Π’ΠΈΠΏΡ Π»Π΅Π½ΡΠΎΡΠ½ΡΡ ΠΊΠΎΠ½Π²Π΅ΠΉΠ΅ΡΠΎΠ²
ΠΠ΅Π½ΡΠΎΡΠ½ΡΠ΅ ΠΊΠΎΠ½Π²Π΅ΠΉΠ΅ΡΡ ΠΌΠΎΠ³ΡΡ ΡΠ°Π·Π»ΠΈΡΠ°ΡΡΡΡ ΠΊΠΎΠ½ΡΡΡΡΠΊΡΠΈΠ²Π½ΠΎ.
ΠΠ°ΠΈΠ±ΠΎΠ»Π΅Π΅ ΡΠ°ΡΠΏΡΠΎΡΡΡΠ°Π½Π΅Π½Ρ ΡΠ»Π΅Π΄ΡΡΡΠΈΠ΅ ΡΠΈΠΏΡ:
ΠΡΡΠΌΡΠ΅ ΠΊΠΎΠ½Π²Π΅ΠΉΠ΅ΡΡ (ΡΡΠ°Π½ΡΠΏΠΎΡΡΠ΅ΡΡ)Β
ΠΡΡΠΌΡΠ΅ ΠΊΠΎΠ½Π²Π΅ΠΉΠ΅ΡΡ ΠΎΠ΄ΠΈΠ½Π°ΠΊΠΎΠ²ΠΎ Π²ΠΎΡΡΡΠ΅Π±ΠΎΠ²Π°Π½Ρ ΠΊΠ°ΠΊ Π΄Π»Ρ ΡΡΠ°Π½ΡΠΏΠΎΡΡΠΈΡΠΎΠ²ΠΊΠΈ ΡΡΠΏΡΡΠΈΡ Π³ΡΡΠ·ΠΎΠ², ΡΠ°ΠΊ ΠΈ ΡΡΡΡΠ½ΡΡ Π³ΡΡΠ·ΠΎΠ² — ΠΊΠΎΡΠΎΠ±ΠΎΠΊ, ΠΏΠΎΡΡΠ»ΠΎΠΊ, ΠΏΠ°Π»Π»Π΅Ρ. ΠΠ»Π°Π³ΠΎΠ΄Π°ΡΡ Π²ΡΡΠΎΠΊΠΎΠΉ ΠΏΡΠΎΠΈΠ·Π²ΠΎΠ΄ΠΈΡΠ΅Π»ΡΠ½ΠΎΡΡΠΈ, ΠΈΠ·Π½ΠΎΡΠΎΡΡΡΠΎΠΉΡΠΈΠ²ΠΎΡΡΠΈ ΠΈ Π½Π°Π΄Π΅ΠΆΠ½ΠΎΡΡΠΈ ΠΊΠΎΠ½ΡΡΡΡΠΊΡΠΈΠΉ ΠΈΠΌΠ΅Π½Π½ΠΎ Π»Π΅Π½ΡΠΎΡΠ½ΡΠ΅ ΠΊΠΎΠ½Π²Π΅ΠΉΠ΅ΡΡ ΠΏΡΠΈΠΌΠ΅Π½ΡΡΡΡΡ Π² Π±ΠΎΠ»ΡΡΠΈΠ½ΡΡΠ²Π΅ Π²ΡΠ΅Ρ ΡΠΈΡΡΠ΅ΠΌ ΡΡΠ°Π½ΡΠΏΠΎΡΡΠΈΡΠΎΠ²ΠΊΠΈ ΠΈ ΡΠΎΡΡΠΈΡΠΎΠ²ΠΊΠΈ Π³ΡΡΠ·ΠΎΠ².Β Β
Π ΠΎΡΠ½ΠΎΠ²Π΅ ΠΊΠΎΠ½ΡΡΡΡΠΊΡΠΈΠΈ Π½Π΅ΠΏΡΠ΅ΡΡΠ²Π½Π°Ρ Π½Π°ΡΡΠΆΠ½Π°Ρ Π»Π΅Π½ΡΠ° ΠΈ Π΄Π²Π° Π±Π°ΡΠ°Π±Π°Π½Π°: ΠΎΠ΄ΠΈΠ½ — ΠΏΡΠΈΠ²ΠΎΠ΄Π½ΠΎΠΉ, Π²ΡΠΎΡΠΎΠΉ ΠΎΠ±Π΅ΡΠΏΠ΅ΡΠΈΠ²Π°Π΅Ρ ΡΠΎΠΎΡΠ²Π΅ΡΡΡΠ²ΡΡΡΠ΅Π΅ Π½Π°ΡΡΠΆΠ΅Π½ΠΈΠ΅.
ΠΠ΅Π»ΠΎΠ±ΡΠ°ΡΡΠ΅ ΠΊΠΎΠ½Π²Π΅ΠΉΠ΅ΡΡΒ
ΠΠ΅Π»ΠΎΠ±ΡΠ°ΡΡΠ΅ ΠΊΠΎΠ½Π²Π΅ΠΉΠ΅ΡΡ — ΠΎΠ΄Π½Π° ΠΈΠ· ΡΠ°Π·Π½ΠΎΠ²ΠΈΠ΄Π½ΠΎΡΡΠ΅ΠΉ Π»Π΅Π½ΡΠΎΡΠ½ΡΡ ΠΊΠΎΠ½Π²Π΅ΠΉΠ΅ΡΠΎΠ². ΠΠ΅ΡΡΡΠ°Ρ ΠΊΠΎΠ½ΡΡΡΡΠΊΡΠΈΡ Π΄ΠΎΠΏΠΎΠ»Π½Π΅Π½Π° ΠΆΠ΅Π»ΠΎΠ±ΡΠ°ΡΡΠΌΠΈ ΠΎΠΏΠΎΡΠ½ΡΠΌΠΈ ΡΠΎΠ»ΠΈΠΊΠ°ΠΌΠΈ ΠΈ Π΄Π΅ΡΠ»Π΅ΠΊΡΠΎΡΠ°ΠΌΠΈ Π΄Π»Ρ ΠΏΡΠ΅Π΄ΠΎΡΠ²ΡΠ°ΡΠ΅Π½ΠΈΡ ΡΠΌΠ΅ΡΠ΅Π½ΠΈΡ Π»Π΅Π½ΡΡ.Β
ΠΠ°ΠΈΠ±ΠΎΠ»ΡΡΡΡ Π²ΠΎΡΡΡΠ΅Π±ΠΎΠ²Π°Π½Π½ΠΎΡΡΡ ΠΆΠ΅Π»ΠΎΠ±ΡΠ°ΡΡΠ΅ Π»Π΅Π½ΡΠΎΡΠ½ΡΠ΅ ΠΊΠΎΠ½Π²Π΅ΠΉΠ΅ΡΡ ΠΏΠΎΠ»ΡΡΠΈΠ»ΠΈ Π² ΡΠ°Π·Π»ΠΈΡΠ½ΡΡ
ΠΎΠ±Π»Π°ΡΡΡΡ
ΠΏΡΠΎΠΌΡΡΠ»Π΅Π½Π½ΠΎΡΡΠΈ, Π² ΡΡΡΠΎΠΈΡΠ΅Π»ΡΡΡΠ²Π΅ ΠΈ ΡΠ½Π΅ΡΠ³Π΅ΡΠΈΡΠ΅ΡΠΊΠΎΠΌ ΠΊΠΎΠΌΠΏΠ»Π΅ΠΊΡΠ΅.
Β
ΠΠ°ΠΊΠ»ΠΎΠ½Π½ΡΠ΅ ΠΊΠΎΠ½Π²Π΅ΠΉΠ΅ΡΡ (ΡΡΠ°Π½ΡΠΏΠΎΡΡΠ΅ΡΡ)
ΠΡΠ½ΠΎΠ²Π½ΡΠΌ ΠΎΡΠ»ΠΈΡΠΈΠ΅ΠΌ ΠΊΠΎΠ½ΡΡΡΡΠΊΡΠΈΠΈ ΡΠ²Π»ΡΠ΅ΡΡΡ ΡΠ°ΡΠΏΠΎΠ»ΠΎΠΆΠ΅Π½ΠΈΠ΅ ΠΏΠΎΠ΄ ΡΠ³Π»ΠΎΠΌ Π»Π΅Π½ΡΡ ΠΊΠΎΠ½Π²Π΅ΠΉΠ΅ΡΠ°. ΠΠ°ΠΊΠ»ΠΎΠ½Π½ΡΠ΅ ΡΡΠ°Π½ΡΠΏΠΎΡΡΠ΅ΡΡ ΠΏΡΠΈΠΌΠ΅Π½ΡΡΡΡΡ Π½Π° ΡΡΠ°ΡΡΠΊΠ°Ρ , Π³Π΄Π΅ Π½Π΅ΠΎΠ±Ρ ΠΎΠ΄ΠΈΠΌΠΎ ΠΎΡΡΡΠ΅ΡΡΠ²ΠΈΡΡ ΠΏΠΎΠ΄ΡΠ΅ΠΌ ΠΈΠ»ΠΈ ΡΠΏΡΡΠΊ ΡΡΠ°Π½ΡΠΏΠΎΡΡΠΈΡΡΠ΅ΠΌΡΡ ΠΎΠ±ΡΠ΅ΠΊΡΠΎΠ². Π£Π³ΠΎΠ» Π½Π°ΠΊΠ»ΠΎΠ½Π° ΠΊΠΎΠ½Π²Π΅ΠΉΠ΅ΡΠ½ΠΎΠΉ Π»Π΅Π½ΡΡ ΠΌΠΎΠΆΠ΅Ρ ΡΠ΅Π³ΡΠ»ΠΈΡΠΎΠ²Π°ΡΡΡΡ ΠΈΠ»ΠΈ ΠΎΡΡΠ°Π²Π°ΡΡΡΡ Π½Π΅ΠΈΠ·ΠΌΠ΅Π½Π½ΡΠΌ.Β
ΠΠ°ΠΊΠ»ΠΎΠ½Π½ΡΠ΅ Π»Π΅Π½ΡΠΎΡΠ½ΡΠ΅ ΠΊΠΎΠ½Π²Π΅ΠΉΠ΅ΡΡ Π²ΠΎΡΡΡΠ΅Π±ΠΎΠ²Π°Π½Ρ ΠΊΠ°ΠΊ Π² Π³ΠΎΡΠ½ΠΎΠ΄ΠΎΠ±ΡΠ²Π°ΡΡΠ΅ΠΉ ΠΈ Π΄ΡΡΠ³ΠΈΡ ΠΎΡΡΠ°ΡΠ»ΡΡ ΠΏΡΠΎΠΌΡΡΠ»Π΅Π½Π½ΠΎΡΡΠΈ, ΡΠ°ΠΊ ΠΈ Π² ΠΎΠ±Π»Π°ΡΡΠΈ ΡΠΊΠ»Π°Π΄ΡΠΊΠΎΠΉ ΠΈ ΠΏΠΎΡΡΠΎΠ²ΠΎΠΉ Π»ΠΎΠ³ΠΈΡΡΠΈΠΊΠΈ. ΠΠΎΠ΄ΡΠ΅ΠΌΠ½ΡΠ΅ ΠΈ ΡΠΏΡΡΠΊΠΎΠ²ΡΠ΅ ΠΌΠ΅Ρ Π°Π½ΠΈΠ·ΠΌΡ ΡΡΡΠΎΠΉΡΠΈΠ²Ρ ΠΊ ΡΡΠ»ΠΎΠ²ΠΈΡΠΌ ΠΎΠΊΡΡΠΆΠ°ΡΡΠ΅ΠΉ ΡΡΠ΅Π΄Ρ: ΠΌΠΎΠ³ΡΡ ΡΠΊΡΠΏΠ»ΡΠ°ΡΠΈΡΠΎΠ²Π°ΡΡΡΡ Π½Π° ΡΠ΅ΡΡΠΈΡΠΎΡΠΈΠΈ ΠΎΠ±ΡΠ΅ΠΊΡΠ° ΠΈΠ»ΠΈ Π½Π° ΠΎΡΠΊΡΡΡΡΡ ΠΏΠ»ΠΎΡΠ°Π΄ΠΊΠ°Ρ .Β Β
ΠΠΎΠ½Π²Π΅ΠΉΠ΅ΡΡ ΡΠΌΠ΅ΡΠ°Π½Π½ΠΎΠ³ΠΎ ΡΠΈΠΏΠ°
ΠΠ°Π½Π½ΡΠΉ Π²ΠΈΠ΄ ΠΊΠΎΠ½Π²Π΅ΠΉΠ΅ΡΠ½ΠΎΠ³ΠΎ ΠΎΠ±ΠΎΡΡΠ΄ΠΎΠ²Π°Π½ΠΈΡ ΠΏΠΎΠ΄ΡΠ°Π·ΡΠΌΠ΅Π²Π°Π΅Ρ ΡΠΎΡΠ΅ΡΠ°Π½ΠΈΠ΅ ΠΏΡΡΠΌΡΡ
ΠΈ Π½Π°ΠΊΠ»ΠΎΠ½Π½ΡΡ
ΡΡΠ°ΡΡΠΊΠΎΠ². ΠΠ°ΠΈΠ±ΠΎΠ»Π΅Π΅ ΡΠ°ΡΠΏΡΠΎΡΡΡΠ°Π½Π΅Π½Ρ L ΠΈ Z-ΠΎΠ±ΡΠ°Π·Π½ΡΠ΅ ΠΊΠΎΠ½ΡΠΈΠ³ΡΡΠ°ΡΠΈΠΈ ΡΡΠ°Π½ΡΠΏΠΎΡΡΠ΅ΡΠΎΠ². ΠΠ΅ΠΎΠ±Ρ
ΠΎΠ΄ΠΈΠΌΠΎΡΡΡ Π² ΠΊΠΎΠ½Π²Π΅ΠΉΠ΅ΡΠ°Ρ
ΡΠΌΠ΅ΡΠ°Π½Π½ΠΎΠ³ΠΎ ΡΠΈΠΏΠ° Π²ΠΎΠ·Π½ΠΈΠΊΠ°Π΅Ρ ΠΏΡΠΈ ΠΈΠ½ΡΡΠ°Π»Π»ΡΡΠΈΠΈ Π½Π° ΡΠ΅ΡΡΠΈΡΠΎΡΠΈΠΈ ΠΎΠ³ΡΠ°Π½ΠΈΡΠ΅Π½Π½ΡΡ
ΠΏΠΎ ΠΏΠ»ΠΎΡΠ°Π΄ΠΈ ΠΎΠ±ΡΠ΅ΠΊΡΠΎΠ².
Β
ΠΠΎΠ²ΠΎΡΠΎΡΠ½ΡΠ΅ ΠΊΠΎΠ½Π²Π΅ΠΉΠ΅ΡΡΒ
ΠΠΎΠ²ΠΎΡΠΎΡΠ½ΡΠ΅ ΠΊΠΎΠ½Π²Π΅ΠΉΠ΅ΡΡ, ΠΏΠΎΠΌΠΈΠΌΠΎ Π½Π°ΠΏΡΠ°Π²Π»ΡΡΡΠΈΡ ΠΊΠΎΠ½ΡΡΡΡΠΊΡΠΈΠΉ, ΡΠΎΡΡΠΎΡΡ ΠΈΠ· ΠΎΠΏΠΎΡΠ½ΡΡ ΠΌΠ΅ΡΠ°Π»Π»ΠΈΡΠ΅ΡΠΊΠΈΡ ΠΏΡΠΎΡΠΈΠ»Π΅ΠΉ — ΠΏΠΎΠ»Π·ΡΠ½ΠΎΠ², ΠΏΠΎ ΠΊΠΎΡΠΎΡΡΠΌ Π΄Π²ΠΈΠΆΠ΅ΡΡΡ ΠΊΠΎΠ½Π²Π΅ΠΉΠ΅ΡΠ½Π°Ρ Π»Π΅Π½ΡΠ°. ΠΠΎΠ»Π·ΡΠ½Ρ ΠΏΠΎΠ΄Π΅Π»Π΅Π½Ρ Π½Π° ΡΠ΅Π³ΠΌΠ΅Π½ΡΡ, ΠΈΡΡ ΠΎΠ΄Ρ ΠΈΠ· ΡΠ³Π»Π° ΠΈ ΡΠ°Π΄ΠΈΡΡΠ° ΠΏΠΎΠ²ΠΎΡΠΎΡΠ°.
Π ΡΠΏΠ΅ΡΠΈΡΠΈΡΠ΅ΡΠΊΠΈΠΌ ΠΎΡΠΎΠ±Π΅Π½Π½ΠΎΡΡΡΠΌ ΠΏΠΎΠ²ΠΎΡΠΎΡΠ½ΡΡ ΠΊΠΎΠ½Π²Π΅ΠΉΠ΅ΡΠΎΠ² ΠΎΡΠ½ΠΎΡΠΈΡΡΡ ΠΌΠ΅Ρ Π°Π½ΠΈΠ·ΠΌ ΠΏΠ΅ΡΠ΅Π΄Π°ΡΠΈ ΡΠ΅ΡΠ΅Π· ΠΏΡΠΈΠ²ΠΎΠ΄Π½ΠΎΠΉ Π²Π°Π» Π²ΡΠ°ΡΠ°ΡΠ΅Π»ΡΠ½ΠΎΠ³ΠΎ ΠΌΠΎΠΌΠ΅Π½ΡΠ°, Π΄Π΅ΠΉΡΡΠ²ΡΡΡΠ΅Π³ΠΎ Π½Π° Π²ΡΡ ΡΠΈΡΠΈΠ½Ρ Π»Π΅Π½ΡΡ ΠΊΠΎΠ½Π²Π΅ΠΉΠ΅ΡΠ°. Π§ΡΠΎ ΠΎΠ±Π΅ΡΠΏΠ΅ΡΠΈΠ²Π°Π΅Ρ ΡΡΡΠ΅ΠΊΡΠΈΠ²Π½ΡΡ ΠΈ Π½Π°Π΄Π΅ΠΆΠ½ΡΡ ΡΡΠ°Π½ΡΠΏΠΎΡΡΠΈΡΠΎΠ²ΠΊΡ Π³ΡΡΠ·ΠΎΠ² Π΄Π°ΠΆΠ΅ Π½Π° Π²ΡΡΠΎΠΊΠΈΡ ΡΠΊΠΎΡΠΎΡΡΡΡ .Β
Π’Π΅Π»Π΅ΡΠΊΠΎΠΏΠΈΡΠ΅ΡΠΊΠΈΠ΅ ΠΊΠΎΠ½Π²Π΅ΠΉΠ΅ΡΡΒ
ΠΡΠΎΠ±Π΅Π½Π½ΠΎΡΡΡΡ ΡΠ΅Π»Π΅ΡΠΊΠΎΠΏΠΈΡΠ΅ΡΠΊΠΈΡ ΠΊΠΎΠ½Π²Π΅ΠΉΠ΅ΡΠΎΠ² ΡΠ²Π»ΡΠ΅ΡΡΡ ΡΠ΅Π³ΡΠ»ΠΈΡΡΠ΅ΠΌΠ°Ρ Π΄Π»ΠΈΠ½Π° ΠΈ ΡΠ³ΠΎΠ» Π½Π°ΠΊΠ»ΠΎΠ½Π°. Π’ΡΠ°Π½ΡΠΏΠΎΡΡΠ΅Ρ ΠΌΠΎΠΆΠ΅Ρ Π±ΡΡΡ ΡΡΡΠ°Π½ΠΎΠ²Π»Π΅Π½ Π² ΠΊΠ°ΡΠ΅ΡΡΠ²Π΅ ΡΠ»Π΅ΠΌΠ΅Π½ΡΠ° ΡΠΈΡΡΠ΅ΠΌΡ ΡΡΠ°Π½ΡΠΏΠΎΡΡΠΈΡΠΎΠ²ΠΊΠΈ Π² Π·ΠΎΠ½Π°Ρ Π·Π°Π³ΡΡΠ·ΠΊΠΈ ΠΈΠ»ΠΈ Π²ΡΠ³ΡΡΠ·ΠΊΠΈ Π³ΡΡΠ·ΠΎΠ² ΠΈΠ»ΠΈ ΠΈΡΠΏΠΎΠ»ΡΠ·ΠΎΠ²Π°ΡΡΡΡ ΠΊΠ°ΠΊ ΠΌΠΎΠ±ΠΈΠ»ΡΠ½ΠΎΠ΅ ΡΠ΅ΡΠ΅Π½ΠΈΠ΅.Β
ΠΠ»ΠΈΠ½Π° ΡΠ΅Π»Π΅ΡΠΊΠΎΠΏΠΈΡΠ΅ΡΠΊΠΈΡ
ΠΊΠΎΠ½Π²Π΅ΠΉΠ΅ΡΠΎΠ² Π·Π°Π²ΠΈΡΠΈΡ ΠΎΡ Π΄Π»ΠΈΠ½Ρ ΠΈ ΠΊΠΎΠ»ΠΈΡΠ΅ΡΡΠ²Π° Π²ΡΠ΄Π²ΠΈΠΆΠ½ΡΡ
ΡΠ»Π΅ΠΌΠ΅Π½ΡΠΎΠ². ΠΠ°ΠΈΠ±ΠΎΠ»Π΅Π΅ Π²ΠΎΡΡΡΠ΅Π±ΠΎΠ²Π°Π½Ρ ΡΠ΅Π»Π΅ΡΠΊΠΎΠΏΠΈΡΠ΅ΡΠΊΠΈΠ΅ ΡΡΠ°Π½ΡΠΏΠΎΡΡΠ΅ΡΡ Π΄Π»Ρ Π²ΡΠ³ΡΡΠ·ΠΊΠΈ ΠΈ Π·Π°Π³ΡΡΠ·ΠΊΠΈ ΡΠΎΠ²Π°ΡΠΎΠ²/Π³ΡΡΠ·ΠΎΠ² ΠΈ ΠΏΠΎΡΡΠΎΠ²ΡΡ
ΠΎΡΠΏΡΠ°Π²Π»Π΅Π½ΠΈΠΉ Ρ ΡΡΠ°Π½ΡΠΏΠΎΡΡΠ½ΡΡ
ΡΡΠ΅Π΄ΡΡΠ² Π½Π° ΡΠ΅ΡΡΠΈΡΠΎΡΠΈΠΈ Π»ΠΎΠ³ΠΈΡΡΠΈΡΠ΅ΡΠΊΠΈΡ
, ΡΠΎΡΡΠΈΡΠΎΠ²ΠΎΡΠ½ΡΡ
ΡΠ΅Π½ΡΡΠΎΠ² ΠΈ ΡΠΊΠ»Π°Π΄ΠΎΠ².
ΠΡΡΠ·ΠΎΠΏΠΎΠ΄ΡΠ΅ΠΌΠ½ΠΎΡΡΡ ΠΈ ΠΌΠΎΡΠ½ΠΎΡΡΡ ΡΡΠ°Π½ΡΠΏΠΎΡΡΠ΅ΡΠΎΠ² ΠΌΠΎΠΆΠ΅Ρ Π±ΡΡΡ ΡΠ°Π·Π»ΠΈΡΠ½ΠΎΠΉ Π² Π·Π°Π²ΠΈΡΠΈΠΌΠΎΡΡΠΈ ΠΎΡ Ρ
Π°ΡΠ°ΠΊΡΠ΅ΡΠ° ΡΡΠ°Π½ΡΠΏΠΎΡΡΠΈΡΡΠ΅ΠΌΡΡ
ΠΌΠ°ΡΠ΅ΡΠΈΠ°Π»ΡΠ½ΡΡ
Π΅Π΄ΠΈΠ½ΠΈΡ.Β
ΠΠΎΠΌΠΏΠ°Π½ΠΈΡ WEKEY ΠΌΠΎΠΆΠ΅Ρ ΠΏΠΎΠ΄ΠΎΠ±ΡΠ°ΡΡ ΠΈ ΡΠ°Π·ΡΠ°Π±ΠΎΡΠ°ΡΡ ΠΊΠ°ΡΡΠΎΠΌΠΈΠ·ΠΈΡΠΎΠ²Π°Π½Π½ΠΎΠ΅ ΡΠ΅ΡΠ΅Π½ΠΈΠ΅ ΠΏΠΎ ΡΡΠ°Π½ΡΠΏΠΎΡΡΠΈΡΠΎΠ²ΠΊΠ΅ ΠΈ ΡΠΎΡΡΠΈΡΠΎΠ²ΠΊΠ΅ Π³ΡΡΠ·ΠΎΠ², ΠΈΡΡ ΠΎΠ΄Ρ ΠΈΠ· Π·Π°Π΄Π°Ρ ΠΠ°ΡΠ΅Π³ΠΎ ΠΎΠ±ΡΠ΅ΠΊΡΠ°. Π‘ΠΎΡΡΡΠ΄Π½ΠΈΡΠ°Ρ Ρ ΠΊΡΡΠΏΠ½Π΅ΠΉΡΠΈΠΌΠΈ ΡΠΎΡΡΠΈΠΉΡΠΊΠΈΠΌΠΈ ΠΈ ΠΌΠΈΡΠΎΠ²ΡΠΌΠΈ ΠΏΠΎΡΡΠ°Π²ΡΠΈΠΊΠ°ΠΌΠΈ ΠΎΠ±ΠΎΡΡΠ΄ΠΎΠ²Π°Π½ΠΈΡ ΠΈ ΠΊΠΎΠΌΠΏΠ»Π΅ΠΊΡΡΡΡΠΈΡ , WEKEY ΠΏΡΠ΅Π΄ΡΡΠ°Π²Π»ΡΠ΅Ρ Π²ΡΡΠΎΠΊΠΎΠΊΠ°ΡΠ΅ΡΡΠ²Π΅Π½Π½ΡΠ΅ ΠΈ Π½Π°Π΄Π΅ΠΆΠ½ΡΠ΅ ΡΠΈΡΡΠ΅ΠΌΡ Ρ ΠΏΠΎΡΠ»Π΅Π΄ΡΡΡΠΈΠΌ ΠΊΠΎΠΌΠΏΠ»Π΅ΠΊΡΠ½ΡΠΌ ΡΠ΅Ρ Π½ΠΈΡΠ΅ΡΠΊΠΈΠΌ ΠΎΠ±ΡΠ»ΡΠΆΠΈΠ²Π°Π½ΠΈΠ΅ΠΌ.Β
ΠΠ΅Π½ΡΠΎΡΠ½ΡΠ΅ ΠΊΠΎΠ½Π²Π΅ΠΉΠ΅ΡΡ
ΠΠ΅Π½ΡΠΎΡΠ½ΡΠ΅Β ΠΊΠΎΠ½Π²Π΅ΠΉΠ΅ΡΡ
ΠΠ΅Π½ΡΠΎΡΠ½ΡΠΉ ΠΊΠΎΠ½Π²Π΅ΠΉΠ΅Ρ ΠΏΡΠ΅Π΄ΡΡΠ°Π²Π»ΡΠ΅Ρ ΡΠΎΠ±ΠΎΠΉ ΡΡΠ°Π½ΡΠΏΠΎΡΡΠΈΡΡΡΡΠ΅Π΅ ΡΡΡΡΠΎΠΉΡΡΠ²ΠΎ Π½Π΅ΠΏΡΠ΅ΡΡΠ²Π½ΠΎΠ³ΠΎ Π΄Π΅ΠΉΡΡΠ²ΠΈΡ, ΡΠ°Π±ΠΎΡΠΈΠΌ ΠΎΡΠ³Π°Π½ΠΎΠΌ ΠΊΠΎΡΠΎΡΠΎΠ³ΠΎ ΡΠ»ΡΠΆΠΈΡ ΠΏΠΎΠ΄Π²ΠΈΠΆΠ½Π°Ρ Π±Π΅ΡΠΊΠΎΠ½Π΅ΡΠ½Π°Ρ Π»Π΅Π½ΡΠ°, ΠΎΠ³ΠΈΠ±Π°ΡΡΠ°Ρ Π΄Π²Π° ΠΊΠΎΠ½ΡΠ΅Π²ΡΡ
Π±Π°ΡΠ°Π±Π°Π½Π° β ΠΏΡΠΈΠ²ΠΎΠ΄Π½ΠΎΠΉ ΠΈ Π½Π°ΡΡΠΆΠ½ΠΎΠΉ. Π’Π°ΠΊΠΈΠ΅ ΠΊΠΎΠ½Π²Π΅ΠΉΠ΅ΡΡ ΠΏΡΠ΅Π΄Π½Π°Π·Π½Π°ΡΠ΅Π½Ρ Π΄Π»Ρ Π½Π΅ΠΏΡΠ΅ΡΡΠ²Π½ΠΎΠ³ΠΎ ΠΏΠ΅ΡΠ΅ΠΌΠ΅ΡΠ΅Π½ΠΈΡ Π² Π³ΠΎΡΠΈΠ·ΠΎΠ½ΡΠ°Π»ΡΠ½ΠΎΠΌ t ΠΈΠ»ΠΈ Π½Π°ΠΊΠ»ΠΎΠ½Π½ΠΎΠΌ (ΠΏΠΎΠ΄ ΡΠ³Π»ΠΎΠΌ 1.0β25Β°) Π½Π°ΠΏΡΠ°Π²Π»Π΅Π½ΠΈΡΡ
ΡΡΠΏΡΡΠΈΡ
(ΠΏΠ΅ΡΠΊΠ°, Π·Π΅ΠΌΠ»ΠΈ, ΡΠ΅ΠΌΠ΅Π½ΡΠ°), ΠΊΡΡΠΊΠΎΠ²ΡΡ
(ΡΠ΅Π±Π½Ρ, ΠΡΠ°Π²ΠΈΡ ΠΈ Π΄Ρ.) ΠΈ ΡΡΡΡΠ½ΡΡ
(ΠΊΠΈΡΠΏΠΈΡΠ°, Π±Π»ΠΎΠΊΠΎΠ², ΠΏΠ»ΠΈΡΠΊΠΈ ΠΈ Π΄Ρ.
) ΠΌΠ°ΡΠ΅ΡΠΈΠ°Π»ΠΎΠ², Π° ΡΠ°ΠΊΠΆΠ΅ ΡΠ°ΡΡΠ²ΠΎΡΠΎΠ², Π±Π΅ΡΠΎΠ½Π½ΠΎΠΉ ΡΠΌΠ΅ΡΠΈ (Π½Π°ΠΏΡΠΈΠΌΠ΅Ρ, ΠΏΡΠΈ Π±Π΅ΡΠΎΠ½ΠΈΡΠΎΠ²Π°Π½ΠΈΠΈ Π±ΠΎΠ»ΡΠ½Π΅ΡΠ°Π·ΠΌΠ΅Ρ-Π½ΡΡ
Π² ΠΏΠ»Π°Π½Π΅ Π±ΡΡΠ·Π³Π°Π»ΡΠ½ΡΡ
Π±Π°ΡΡΠ΅ΠΉΠ½ΠΎΠ², Π°ΡΡΠΎΡΠ΅Π½ΠΊΠΎΠ², ΡΠ΅Π·Π΅ΡΠ²ΡΠ°ΡΠΎΠ² ΠΈ Π΄Ρ.).
ΠΠ΅Π½ΡΠΎΡΠ½ΡΠ΅ ΠΊΠΎΠ½Π²Π΅ΠΉΠ΅ΡΡ ΠΈΡΠΏΠΎΠ»ΡΠ·ΡΡΡΡΡ ΠΊΠ°ΠΊ ΡΠ°ΠΌΠΎΡΡΠΎΡΡΠ΅Π»ΡΠ½ΡΠ΅ ΡΡΠ°Π½ΡΠΏΠΎΡΡΠΈΡΡΡΡΠΈΠ΅ ΡΡΡΡΠΎΠΉΡΡΠ²Π°, Π° ΡΠ°ΠΊΠΆΠ΅ Π²Ρ ΠΎΠ΄ΡΡ Π² ΡΠΎΡΡΠ°Π² ΡΠ°Π·Π»ΠΈΡΠ½ΡΡ ΡΡΡΠΎΠΈΡΠ΅Π»ΡΠ½ΡΡ ΠΌΠ°ΡΠΈΠ½ ΠΈ Π°Π³ΡΠ΅Π³Π°ΡΠΎΠ² (ΠΌΠ½ΠΎΠ³ΠΎΠΊΠΎΠ²ΡΠΎΠ²ΡΡ ΡΠ΅ΠΏΠ½ΡΡ ΠΈ ΡΠΎΡΠΎΡΠ½ΡΡ ΡΠΊΡΠΊΠ°Π²Π°ΡΠΎΡΠΎΠ², ΠΏΠΎΠ³ΡΡΠ·ΠΎΡΠ½ΠΎ-ΡΠ°Π·Π³ΡΡΠ·ΠΎΡΠ½ΡΡ ΠΌΠ°ΡΠΈΠ½, ΠΈΠ½Π²Π΅Π½ΡΠ°ΡΠ½ΡΡ ΡΠ°ΡΡΠ²ΠΎΡΠ½ΡΡ ΡΠ·Π»ΠΎΠ², ΡΡΡΠ°Π½ΠΎΠ²ΠΎΠΊ Π΄Π»Ρ Π±Π΅ΡΡΡΠ°Π½ΡΠ΅ΠΉΠ½ΠΎΠΉ ΠΏΡΠΎΠΊΠ»Π°Π΄ΠΊΠΈ ΠΊΠΎΠΌΠΌΡΠ½ΠΈΠΊΠ°ΡΠΈΠΈ ΠΈ Π΄Ρ.). Π Π°ΡΡΠ΅ΡΠ½ΡΡ Π΄Π»ΠΈΠ½Ρ ΠΊΠΎΠ½Π²Π΅ΠΉΠ΅ΡΠΎΠ² ΠΈΠ·ΠΌΠ΅ΡΡΡΡ ΠΏΠΎ ΡΠ΅Π½ΡΡΠ°ΠΌ ΠΊΠΎΠ½ΡΠ΅Π²ΡΡ Π±Π°ΡΠ°Π±Π°Π½ΠΎΠ².
Π Π°Π·Π»ΠΈΡΠ°ΡΡ ΠΏΠ΅ΡΠ΅Π΄Π²ΠΈΠΆΠ½ΡΠ΅, ΠΏΠ΅ΡΠ΅Π½ΠΎΡΠ½ΡΠ΅ ΠΈ ΡΡΠ°ΡΠΈΠΎΠ½Π°ΡΠ½ΡΠ΅ Π»Π΅Π½ΡΠΎΡΠ½ΡΠ΅ ΠΊΠΎΠ½Π²Π΅ΠΉΠ΅ΡΡ.
Π Π΅ΠΊΠ»Π°ΠΌΠ½ΡΠ΅ ΠΏΡΠ΅Π΄Π»ΠΎΠΆΠ΅Π½ΠΈΡ Π½Π° ΠΎΡΠ½ΠΎΠ²Π΅ Π²Π°ΡΠΈΡ ΠΈΠ½ΡΠ΅ΡΠ΅ΡΠΎΠ²:
ΠΠΎΠΏΠΎΠ»Π½ΠΈΡΠ΅Π»ΡΠ½ΡΠ΅ ΠΌΠ°ΡΠ΅ΡΠΈΠ°Π»Ρ ΠΏΠΎ ΡΠ΅ΠΌΠ΅:
ΠΠ΅ΡΠ΅Π΄Π²ΠΈΠΆΠ½ΡΠ΅ Π»Π΅Π½ΡΠΎΡΠ½ΡΠ΅ ΠΊΠΎΠ½Π²Π΅ΠΉΠ΅ΡΡ, ΡΠ½Π°Π±ΠΆΠ΅Π½Π½ΡΠ΅ ΠΊΠΎΠ»Π΅ΡΠ½ΡΠΌ Ρ
ΠΎΠ΄ΠΎΠΌ, ΠΈΠΌΠ΅ΡΡ Π΄Π»ΠΈΠ½Ρ 5β15 ΠΌ ΠΈ ΠΏΡΠΈΠΌΠ΅Π½ΡΡΡΡΡ Π½Π° ΡΠ°ΡΡΡΠ΅Π΄ΠΎΡΠΎΡΠ΅Π½Π½ΡΡ
ΠΎΠ±ΡΠ΅ΠΊΡΠ°Ρ
Ρ ΠΌΠ°Π»ΡΠΌΠΈ ΠΎΠ±ΡΠ΅ΠΌΠ°ΠΌΠΈ ΡΠ°Π±ΠΎΡ ΠΏΡΠΈ Π½Π΅ΠΎΠ±Ρ
ΠΎΠ΄ΠΈΠΌΠΎΡΡΠΈ ΡΠ°ΡΡΡΡ
ΠΏΠ΅ΡΠ΅ΠΌΠ΅ΡΠ΅Π½ΠΈΠΉ ΠΌΠ°ΡΠΈΠ½Ρ (ΠΎΠ±ΡΡΠ½ΠΎ Π²ΡΡΡΠ½ΡΡ) ΠΏΠΎ ΡΡΡΠΎΠΈΡΠ΅Π»ΡΠ½ΠΎΠΉ ΠΏΠ»ΠΎΡΠ°Π΄ΠΊΠ΅ ΠΈ ΠΏΠ΅ΡΠ΅Π±Π°Π·ΠΈΡΠΎΠ²ΠΎΠΊ (ΡΡΠ³Π°ΡΠΎΠΌ) Ρ ΠΎΠ±ΡΠ΅ΠΊΡΠ° Π½Π° ΠΎΠ±ΡΠ΅ΠΊΡ.
ΠΠ΅ΡΠ΅Π΄Π²ΠΈΠΆΠ½ΡΠ΅ ΠΊΠΎΠ½Π²Π΅ΠΉΠ΅ΡΡ Π²ΡΠΏΠΎΠ»Π½Π΅Π½Ρ ΠΏΠΎ Π΅Π΄ΠΈΠ½ΠΎΠΉ ΠΊΠΎΠ½ΡΡΡΡΠΊΡΠΈΠ²Π½ΠΎΠΉ ΡΡ
Π΅ΠΌΠ΅, ΡΠ½ΠΈΡΠΈΡΠΈΡΠΎΠ²Π°Π½Ρ ΠΈ ΡΠΎΡΡΠΎΡΡ ΠΈΠ· ΡΠ»Π΅Π΄ΡΡΡΠΈΡ
ΠΎΡΠ½ΠΎΠ²Π½ΡΡ
ΡΠ·Π»ΠΎΠ²: Π½Π΅ΡΡΡΠ΅ΠΉ ΡΠ°ΠΌΡ, ΡΡΡΠ°Π½ΠΎΠ²Π»Π΅Π½Π½ΠΎΠΉ Π½Π° Π΄Π²ΡΡ
Ρ
ΠΎΠ΄ΠΎΠ²ΡΡ
ΠΊΠΎΠ»ΡΡΠ°Ρ
, ΠΏΡΠΎΡΠ΅Π·ΠΈΠ½Π΅Π½Π½ΠΎΠΉ ΡΡΠ°Π½ΡΠΏΠΎΡΡΠΈΡΡΡΡΠ΅ΠΉ Π»Π΅Π½ΡΡ, ΠΏΡΠΈΠ²ΠΎΠ΄Π½ΠΎΠ³ΠΎ ΠΈ Π½Π°ΡΡΠΆΠ½ΠΎΠ³ΠΎ Π±Π°ΡΠ°Π±Π°Π½ΠΎΠ², Π²Π΅ΡΡ
Π½ΠΈΡ
ΠΈ Π½ΠΈΠΆΠ½ΠΈΡ
ΡΠΎΠ»ΠΈΠΊΠΎΠΎΠΏΠΎΡ ΠΏΠΎΠ΄Π΄Π΅ΡΠΆΠΈΠ²Π°ΡΡΠΈΡ
ΡΠΎΡΠ²Π΅ΡΡΡΠ²Π΅Π½Π½ΠΎ ΡΠ°Π±ΠΎΡΡΡ (Π³ΡΡΠΆΠ΅Π½ΡΡ) ΠΈ Ρ
ΠΎΠ»ΠΎΡΡΡΡ Π²Π΅ΡΠ²ΠΈ Π»Π΅Π½ΡΡ, Π½Π°ΡΡΠΆΠ½ΠΎΠ³ΠΎ ΡΡΡΡΠΎΠΉΡΡΠ²Π° Π²ΠΈΠ½ΡΠΎΠ²ΠΎΠ³ΠΎ ΡΠΈΠΏΠ°, Π·Π°Π³ΡΡΠ·ΠΎΡΠ½ΠΎΠΉ Π²ΠΎΡΠΎΠ½ΠΊΠΈ ΠΈ ΠΏΡΠΈΠ²ΠΎΠ΄Π°.
ΠΠ°ΡΠ΅ΡΠΈΠ°Π» ΠΏΠΎΡΡΡΠΏΠ°Π΅Ρ Π½Π° Π»Π΅Π½ΡΡ ΡΠ΅ΡΠ΅Π· Π·Π°Π³ΡΡΠ·ΠΎΡΠ½ΠΎΠ΅ ΡΡΡΡΠΎΠΉΡΡΠ²ΠΎ, Π° Π²ΡΠ³ΡΡΠΆΠ°Π΅ΡΡΡ ΠΏΡΠΈ ΠΎΠ³ΠΈΠ±Π°Π½ΠΈΠΈ Π»Π΅Π½ΡΠΎΠΉ ΠΏΡΠΈΠ²ΠΎΠ΄Π½ΠΎΠ³ΠΎ Π±Π°ΡΠ°Π±Π°Π½Π°.
Π‘ΠΊΠΎΡΠΎΡΡΡ Π΄Π²ΠΈΠΆΠ΅Π½ΠΈΡ Π»Π΅Π½ΡΡ Π·Π°Π²ΠΈΡΠΈΡ ΠΎΡ Π²ΠΈΠ΄Π° ΡΡΠ°Π½ΡΠΏΠΎΡΡΠΈΡΡΠ΅ΠΌΡΡ
Π³ΡΡΠ·ΠΎΠ² ΠΈ ΡΠΎΡΡΠ°Π²Π»ΡΠ΅Ρ 1,2β1,6 ΠΌ/Ρ.
ΠΡΠΎΡΠ΅Π·ΠΈΠ½Π΅Π½Π½Π°Ρ Π»Π΅Π½ΡΠ° ΡΠΈΡΠΈΠ½ΠΎΠΉ 0,4β0,5 ΠΌ ΠΎΠ±ΡΠ°Π·ΡΠ΅Ρ Π·Π°ΠΌΠΊΠ½ΡΡΡΠΉ ΠΊΠΎΠ½ΡΡΡ ΠΈ ΡΠ²Π»ΡΠ΅ΡΡΡ ΠΎΠ΄Π½ΠΎΠ²ΡΠ΅ΠΌΠ΅Π½Π½ΠΎ ΡΡΠ³ΠΎΠ²ΡΠΌ ΠΈ Π³ΡΡΠ·ΠΎΠ½Π΅ΡΡΡΠΈΠΌ ΠΎΡΠ³Π°Π½ΠΎΠΌ ΠΊΠΎΠ½Π²Π΅ΠΉΠ΅ΡΠ°. ΠΡΠ½ΠΎΠ²ΠΎΠΉ Π»Π΅Π½ΡΡ ΡΠ»ΡΠΆΠΈΡ Ρ
Π»ΠΎΠΏΡΠ°ΡΠΎΠ±ΡΠΌΠ°ΠΆΠ½Π°Ρ ΠΈΠ»ΠΈ ΠΊΠ°ΠΏΡΠΎΠ½ΠΎΠ²Π°Ρ ΡΠΊΠ°Π½Ρ, ΠΎΠ±ΡΠ°Π·ΡΡΡΠ°Ρ ΡΠ»ΠΎΠΈ (ΠΏΡΠΎΠΊΠ»Π°Π΄ΠΊΠΈ) Π»Π΅Π½ΡΡ, ΠΊΠΎΡΠΎΡΡΠ΅ ΡΠ²ΡΠ·Π°Π½Ρ ΠΌΠ΅ΠΆΠ΄Ρ ΡΠΎΠ±ΠΎΠΉ ΠΈ ΠΏΠΎΠΊΡΡΡΡ ΡΠ½Π°ΡΡΠΆΠΈ Π²ΡΠ»ΠΊΠ°Π½ΠΈΠ·ΠΈΡΠΎΠ²Π°Π½Π½ΠΎΠΉ ΡΠ΅Π·ΠΈΠ½ΠΎΠΉ. Π§ΠΈΡΠ»ΠΎ ΠΏΡΠΎΠΊΠ»Π°Π΄ΠΎΠΊ ΠΏΡΠΈ ΡΠΈΡΠΈΠ½Π΅ Π»Π΅Π½ΡΡ 0~4 ΠΌ ΡΠ°Π²Π½ΠΎ 3β5, Π° ΠΏΡΠΈ ΡΠΈΡΠΈΠ½Π΅ 0,5 ΠΌ ΡΠΎΡΡΠ°Π²Π»ΡΠ΅Ρ 3β6.
Π’ΠΎΠ»ΡΠΈΠ½Π° ΠΎΠ΄Π½ΠΎΠΉ ΠΏΡΠΎΠΊΠ»Π°Π΄ΠΊΠΈ ΠΈΠ· Π±Π΅Π»ΡΡΠΈΠ½Π³Π° 1,25β1,9 ΠΌΠΌ, ΠΈΠ· ΠΊΠ°ΠΏΡΠΎΠ½Π° 0,9β1,4 ΠΌΠΌ. ΠΠΎΠ½ΡΡ Π»Π΅Π½ΡΡ ΠΏΡΠΈ Π΅Π΅ ΠΌΠΎΠ½ΡΠ°ΠΆΠ΅ ΡΠΎΠ΅Π΄ΠΈΠ½ΡΡΡ ΡΡΠ°Π»ΡΠ½ΡΠΌΠΈ ΡΠ°ΡΠ½ΠΈΡΠ°ΠΌΠΈ, ΡΡΡΠΎΠΌΡΡΠ½ΡΠΌΠΈ ΡΠ΅ΠΌΠ΅ΡΠΊΠ°ΠΌΠΈ ΠΈΠ»ΠΈ ΠΊΠ»Π΅Π΅ΠΌ Ρ ΠΏΠΎΡΠ»Π΅Π΄ΡΡΡΠ΅ΠΉ Π²ΡΠ»ΠΊΠ°Π½ΠΈΠ·Π°ΡΠΈΠ΅ΠΉ.
ΠΠ΅Π½ΡΠ° ΠΏΡΠΈΠ²ΠΎΠ΄ΠΈΡΡΡ Π² Π΄Π²ΠΈΠΆΠ΅Π½ΠΈΠ΅ ΡΠΈΠ»ΠΎΠΉ ΡΡΠ΅Π½ΠΈΡ, Π²ΠΎΠ·Π½ΠΈΠΊΠ°ΡΡΠ΅ΠΉ ΠΌΠ΅ΠΆΠ΄Ρ Π½Π΅ΠΉ ΠΈ ΠΏΠΎΠ²Π΅ΡΡ Π½ΠΎΡΡΡΡ ΠΏΡΠΈΠ²ΠΎΠ΄Π½ΠΎΠ³ΠΎ Π±Π°ΡΠ°Π±Π°Π½Π°. ΠΠ΅ΠΎΠ±Ρ ΠΎΠ΄ΠΈΠΌΠΎΠ΅ Π΄Π°Π²Π»Π΅Π½ΠΈΠ΅ Π»Π΅Π½ΡΡ Π½Π° Π±Π°ΡΠ°Π±Π°Π½ ΠΎΠ±Π΅ΡΠΏΠ΅ΡΠΈΠ²Π°Π΅ΡΡΡ Π΅Π΅ Π½Π°ΡΡΠΆΠ΅Π½ΠΈΠ΅ΠΌ ΠΏΡΠΈ ΠΏΠ΅ΡΠ΅ΠΌΠ΅ΡΠ΅Π½ΠΈΠΈ Π½Π΅ΠΏΡΠΈΠ²ΠΎΠ΄Π½ΠΎΠ³ΠΎ (Π½Π°ΡΡΠΆΠ½ΠΎΠ³ΠΎ) Π±Π°ΡΠ°Π±Π°Π½Π° Π²ΠΈΠ½ΡΠΎΠ²ΡΠΌ ΡΡΡΡΠΎΠΉΡΡΠ²ΠΎΠΌ.
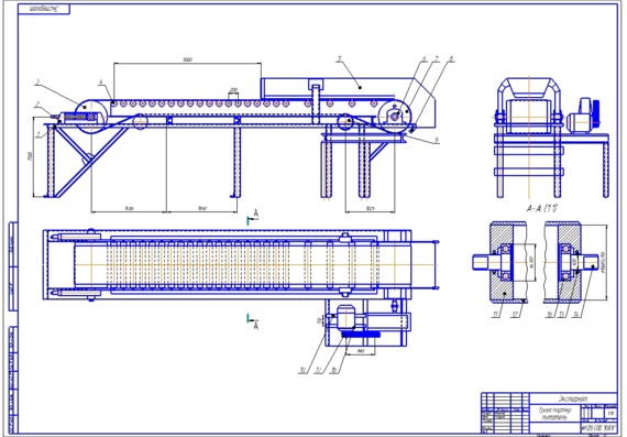
Π ΠΈΡ. 1. ΠΠ΅ΡΠ΅Π΄Π²ΠΈΠΆΠ½ΠΎΠΉ Π»Π΅Π½ΡΠΎΡΠ½ΡΠΉ ΠΊΠΎΠ½Π²Π΅ΠΉΠ΅Ρ:
Π° β ΠΎΠ±ΡΠΈΠΉ Π²ΠΈΠ΄; Π± β ΠΊΠΈΠ½Π΅ΠΌΠ°ΡΠΈΡΠ΅ΡΠΊΠ°Ρ ΡΡ
Π΅ΠΌΠ°; Π² β ΡΡ
Π΅ΠΌΠ° Π·Π°ΠΏΠ°ΡΠΎΠ²ΠΊΠΈ ΠΊΠ°Π½Π°ΡΠΎΠ² ΠΌΠ΅Ρ
Π°Π½ΠΈΠ·ΠΌΠ° ΠΈΠ·ΠΌΠ΅Π½Π΅Π½ΠΈΡ Π²ΡΡΠΎΡΡ ΡΠ°Π·Π³ΡΡΠ·ΠΊΠΈ; Π³ β ΡΠ°ΡΠΏΠΎΠ»ΠΎΠΆΠ΅Π½ΠΈΠ΅ Π»Π΅Π½ΡΡ Π½Π° ΡΠΎΠ»ΠΈΠΊΠΎΠΎΠΏΠΎΡΠ°Ρ
ΠΡΠΈΠ²ΠΎΠ΄Π½ΠΎΠΉ Π±Π°ΡΠ°Π±Π°Π½ ΠΏΠΎΠ»ΡΡΠ°Π΅Ρ Π²ΡΠ°ΡΠ΅Π½ΠΈΠ΅ ΠΎΡ ΡΠ»Π΅ΠΊΡΡΠΎΠ΄Π²ΠΈΠ³Π°ΡΠ΅Π»Ρ ΡΠ΅ΡΠ΅Π· ΡΠ΅Π΄ΡΠΊΡΠΎΡ. Π ΡΠΎΠ²ΠΎΠΊΡΠΏΠ½ΠΎΡΡΠΈ ΠΏΡΠΈΠ²ΠΎΠ΄Π½ΠΎΠΉ Π±Π°ΡΠ°Π±Π°Π½, ΡΠ»Π΅ΠΊΡΡΠΎΠ΄Π²ΠΈΠ³Π°ΡΠ΅Π»Ρ ΠΈ ΡΠ΅Π΄ΡΠΊΡΠΎΡ ΠΎΠ±ΡΠ°Π·ΡΡΡ ΠΏΡΠΈΠ²ΠΎΠ΄Π½ΡΡ ΡΡΠ°Π½ΡΠΈΡ, Π° Π½Π΅ΠΏΡΠΈΠ²ΠΎΠ΄Π½ΠΎΠΉ Π±Π°ΡΠ°Π±Π°Π½ Ρ Π½Π°ΡΡΠΆΠ½ΡΠΌ ΡΡΡΡΠΎΠΉΡΡΠ²ΠΎΠΌ β Π½Π°ΡΡΠΆΠ½ΡΡ ΡΡΠ°Π½ΡΠΈΡ. Π Π°Π±ΠΎΡΠ°Ρ (Π³ΡΡΠΆΠ΅Π½Π°Ρ) Π²Π΅ΡΠ²Ρ Π»Π΅Π½ΡΡ ΠΊΠΎΠ½Π²Π΅ΠΉΠ΅ΡΠ° ΠΏΠΎΠ΄Π΄Π΅ΡΠΆΠΈΠ²Π°Π΅ΡΡΡ Ρ ΠΏΠΎΠΌΠΎΡΡΡ Π΄Π²ΡΡ
- ΠΈΠ»ΠΈ ΡΡΠ΅Ρ
ΡΠΎΠ»ΠΈΠΊΠΎΠ²ΡΡ
ΠΎΠΏΠΎΡ, ΠΊΡΠ°ΠΉΠ½ΠΈΠ΅ ΡΠΎΠ»ΠΈΠΊΠΈ ΠΊΠΎΡΠΎΡΡΡ
ΡΡΡΠ°Π½ΠΎΠ²Π»Π΅Π½Ρ ΠΏΠΎΠ΄ ΡΠ³Π»ΠΎΠΌ 20β30Β° ΠΈ ΠΏΡΠΈΠ΄Π°ΡΡ Π»Π΅Π½ΡΠ΅ ΠΆΠ΅Π»ΠΎΠ±ΡΠ°ΡΡΡ ΡΠΎΡΠΌΡ.
Π’Π°ΠΊΠ°Ρ ΡΠΎΡΠΌΠ° ΠΎΠ±Π΅ΡΠΏΠ΅ΡΠΈΠ²Π°Π΅Ρ Π²ΠΎΠ·ΠΌΠΎΠΆΠ½ΠΎΡΡΡ ΡΡΠ°Π½ΡΠΏΠΎΡΡΠΈΡΠΎΠ²Π°Π½ΠΈΡ ΡΡΠΏΡΡΠΈΡ
Π³ΡΡΠ·ΠΎΠ² ΠΈ ΡΠΏΠΎΡΠΎΠ±ΡΡΠ²ΡΠ΅Ρ ΠΏΠΎΠ²ΡΡΠ΅Π½ΠΈΡ ΠΏΡΠΎΠΈΠ·Π²ΠΎΠ΄ΠΈΡΠ΅Π»ΡΠ½ΠΎΡΡΠΈ ΠΊΠΎΠ½Π²Π΅ΠΉΠ΅ΡΠ°. Π₯ΠΎΠ»ΠΎΡΡΡΡ Π²Π΅ΡΠ²Ρ Π»Π΅Π½ΡΡ ΠΏΠΎΠ΄Π΄Π΅ΡΠΆΠΈΠ²Π°ΡΡ ΠΏΡΡΠΌΡΠ΅ ΠΎΠ΄Π½ΠΎΡΠΎΠ»ΠΈΠΊΠΎΠ²ΡΠ΅ ΠΎΠΏΠΎΡΡ.
Π Π°ΠΌΠ° ΠΊΠΎΠ½Π²Π΅ΠΉΠ΅ΡΠ° ΠΎΠΏΠΈΡΠ°Π΅ΡΡΡ Π½Π° Π΄Π²ΡΡ ΠΊΠΎΠ»Π΅ΡΠ½ΠΎΠ΅ ΡΠ°ΡΡΠΈ, ΡΠΎΡΡΠΎΡΡΠ΅Π΅ ΠΈΠ· Π½Π΅ΠΏΠΎΠ΄Π²ΠΈΠΆΠ½ΠΎΠΉ ΠΈ ΠΏΠΎΠ΄Π²ΠΈΠΆΠ½ΠΎΠΉ ΠΎΠΏΠΎΡ, ΡΠ°ΡΠ½ΠΈΡΠ½ΠΎ ΡΠΎΠ΅Π΄ΠΈΠ½Π΅Π½Π½ΡΡ Ρ ΠΊΠΎΠ»Π΅ΡΠ½ΡΠΌ Ρ ΠΎΠ΄ΠΎΠΌ. Π Π΅Π³ΡΠ»ΠΈΡΠΎΠ²Π°Π½ΠΈΠ΅ Π²ΡΡΠΎΡΡ ΡΠ°Π·Π³ΡΡΠ·ΠΊΠΈ ΠΌΠ°ΡΠ΅ΡΠΈΠ°Π»Π° (Ρ. Π΅. ΠΈΠ·ΠΌΠ΅Π½Π΅Π½ΠΈΠ΅ ΡΠ³Π»Π° Π½Π°ΠΊΠ»ΠΎΠ½Π° ΠΊΠΎΠ½Π²Π΅ΠΉΠ΅ΡΠ°) ΠΏΡΠΎΠΈΡΡ ΠΎΠ΄ΠΈΡ ΠΏΡΠΈ ΠΈΠ·ΠΌΠ΅Π½Π΅Π½ΠΈΠΈ ΡΠ°ΡΡΡΠΎΡΠ½ΠΈΡ ΠΌΠ΅ΠΆΠ΄Ρ Π²Π΅ΡΡ Π½ΠΈΠΌΠΈ ΡΠΎΡΠΊΠ°ΠΌΠΈ ΠΏΠΎΠ΄Π²ΠΈΠΆΠ½ΠΎΠΉ ΠΈ Π½Π΅ΠΏΠΎΠ΄Π²ΠΈΠΆΠ½ΠΎΠΉ ΠΎΠΏΠΎΡ Ρ ΠΏΠΎΠΌΠΎΡΡΡ ΡΡΡΠ½ΠΎΠΉ ΡΠ΅ΡΠ²ΡΡΠ½ΠΎΠΉ Π»Π΅Π±Π΅Π΄ΠΊΠΈ, ΠΏΡΠΈΠΊΡΠ΅ΠΏΠ»Π΅Π½Π½ΠΎΠΉ ΠΊ ΡΠ°ΠΌΠ΅, ΠΈ ΠΊΠ°Π½Π°ΡΠ½ΠΎΠ³ΠΎ ΠΏΠΎΠ»ΠΈΡΠΏΠ°ΡΡΠ°, ΡΠ²ΡΠ·Π°Π½Π½ΠΎΠ³ΠΎ Ρ ΠΊΠ°ΡΠ΅ΡΠΊΠΎΠΉ Π ΠΏΠΎΠ΄Π²ΠΈΠΆΠ½ΠΎΠΉ ΠΎΠΏΠΎΡΡ, ΡΠΊΠΎΠ»ΡΠ·ΡΡΠ΅ΠΉ ΠΏΠΎ Π½Π°ΠΏΡΠ°Π²Π»ΡΡΡΠΈΠΌ Π½ΠΈΠΆΠ½Π΅Π³ΠΎ ΠΏΠΎΡΡΠ° ΡΠ°ΠΌΡ.
ΠΠ°ΠΊΡΠΈΠΌΠ°Π»ΡΠ½Π°Ρ Π²ΡΡΠΎΡΠ° ΡΠ°Π·Π³ΡΡΠ·ΠΊΠΈ ΠΏΠ΅ΡΠ΅Π΄Π²ΠΈΠΆΠ½ΡΡ ΠΊΠΎΠ½Π²Π΅ΠΉΠ΅ΡΠΎΠ² ΠΏΡΠΈ ΡΠ³Π»Π΅ Π½Π°ΠΊΠ»ΠΎΠ½Π° 20Β° ΡΠΎΡΡΠ°Π²Π»ΡΠ΅Ρ 2,1 ΠΌ Π΄Π»Ρ ΠΊΠΎΠ½Π²Π΅ΠΉΠ΅ΡΠΎΠ² Π΄Π»ΠΈΠ½ΠΎΠΉ 5 ΠΌ ΠΈ 5,5 ΠΌ Π΄Π»Ρ ΠΊΠΎΠ½Π²Π΅ΠΉΠ΅ΡΠΎΠ² Π΄Π»ΠΈΠ½ΠΎΠΉ 15 ΠΌ.
Π‘ΡΠ°ΡΠΈΠΎΠ½Π°ΡΠ½ΡΠ΅ Π»Π΅Π½ΡΠΎΡΠ½ΡΠ΅ ΠΊΠΎΠ½Π²Π΅ΠΉΠ΅ΡΡ ΠΈΠΌΠ΅ΡΡ Π΄Π»ΠΈΠ½Ρ 40β80 ΠΌ, ΡΠΊΠΎΡΠΎΡΡΡ Π΄Π²ΠΈΠΆΠ΅Π½ΠΈΡ Π»Π΅Π½ΡΡ Π΄ΠΎ 1,6 ΠΌ/Ρ ΠΈ ΠΏΡΠΈΠΌΠ΅Π½ΡΡΡΡΡ Π½Π° ΠΎΠ±ΡΠ΅ΠΊΡΠ°Ρ
Ρ Π±ΠΎΠ»ΡΡΠΈΠΌΠΈ ΠΎΠ±ΡΠ΅ΠΌΠ°ΠΌΠΈ ΡΠ°Π±ΠΎΡ. Π’Π°ΠΊΠΈΠ΅ ΠΊΠΎΠ½Π²Π΅ΠΉΠ΅ΡΡ ΡΠΎΡΡΠΎΡΡ ΠΈΠ· ΡΠ΅Ρ
ΠΆΠ΅ ΡΠ·Π»ΠΎΠ², ΡΡΠΎ ΠΈ ΠΏΠ΅ΡΠ΅Π΄Π²ΠΈΠΆΠ½ΡΠ΅ ΠΌΠ°ΡΠΈΠ½Ρ (Π·Π° ΠΈΡΠΊΠ»ΡΡΠ΅Π½ΠΈΠ΅ΠΌ ΠΎΡΡΡΡΡΡΠ²ΡΡΡΠΈΡ
ΠΌΠ΅Ρ
Π°Π½ΠΈΠ·ΠΌΠΎΠ² ΠΏΠ΅ΡΠ΅Π΄Π²ΠΈΠΆΠ΅Π½ΠΈΡ ΠΈ ΠΈΠ·ΠΌΠ΅Π½Π΅Π½ΠΈΡ Π²ΡΡΠΎΡΡ ΡΠ°Π·Π³ΡΡΠ·ΠΊΠΈ), Π²ΡΠΏΠΎΠ»Π½Π΅Π½Ρ ΠΏΠΎ Π΅Π΄ΠΈΠ½ΠΎΠΉ ΠΊΠΎΠ½ΡΡΡΡΠΊΡΠΈΠ²Π½ΠΎΠΉ ΡΡ
Π΅ΠΌΠ΅, ΠΏΠΎΠ»Π½ΠΎΡΡΡΡ ΡΠ½ΠΈΡΠΈΡΠΈΡΠΎΠ²Π°Π½Ρ ΠΈ ΠΎΡΠ»ΠΈΡΠ°ΡΡΡΡ Π΄ΡΡΠ³ ΠΎΡ Π΄ΡΡΠ³Π° Π΄Π»ΠΈΠ½ΠΎΠΉ ΠΈ ΠΌΠΎΡΠ½ΠΎΡΡΡΡ ΠΏΡΠΈΠ²ΠΎΠ΄Π°.
Π Π°ΠΌΡ ΡΡΠ°ΡΠΈΠΎΠ½Π°ΡΠ½ΡΡ ΠΊΠΎΠ½Π²Π΅ΠΉΠ΅ΡΠΎΠ² ΡΠΎΠ±ΠΈΡΠ°ΡΡ ΠΈΠ· ΡΠΈΠΏΠΎΠ²ΡΡ Π²Π·Π°ΠΈΠΌΠΎΠ·Π°ΠΌΠ΅Π½ΡΠ΅ΠΌΡΡ ΡΠ΅ΠΊΡΠΈΠΉ β Π·Π²Π΅Π½ΡΠ΅Π² Π΄Π»ΠΈΠ½ΠΎΠΉ 2,5 ΠΌ. Π Π°Π±ΠΎΡΠ°Ρ Π²Π΅ΡΠ²Ρ Π»Π΅Π½ΡΡ ΡΠΈΡΠΈΠ½ΠΎΠΉ 500 ΠΌΠΌ ΠΎΠΏΠΈΡΠ°Π΅ΡΡΡ Π½Π° ΠΆΠ΅Π»ΠΎΠ±ΡΠ°ΡΡΠ΅ ΡΡΠ΅Ρ ΡΠΎΠ»ΠΈΠΊΠΎΠ²ΡΠ΅ ΠΎΠΏΠΎΡΡ, Ρ ΠΎΠ»ΠΎΡΡΠ°Ρ β Π½Π° ΠΏΠ»ΠΎΡΠΊΠΈΠ΅ ΡΠΎΠ»ΠΈΠΊΠΎΠΎΠΏΠΎΡΡ. ΠΠ°Π³ΡΡΠ·ΠΊΠ° ΠΌΠ°ΡΠ΅ΡΠΈΠ°Π»Π° Π½Π° Π»Π΅Π½ΡΡ ΠΏΡΠΎΠΈΠ·Π²ΠΎΠ΄ΠΈΡΡΡ ΡΠ΅ΡΠ΅Π· Π·Π°Π³ΡΡΠ·ΠΎΡΠ½ΡΡ Π²ΠΎΡΠΎΠ½ΠΊΡ, ΡΠ°Π·Π³ΡΡΠ·ΠΊΠ° β Ρ Π±Π°ΡΠ°Π±Π°Π½Π° ΠΏΡΠΈΠ²ΠΎΠ΄Π½ΠΎΠΉ ΡΡΠ°Π½ΡΠΈΠΈ ΠΈΠ»ΠΈ Π½Π° Π»ΡΠ±ΠΎΠΌ ΡΡΠ°ΡΡΠΊΠ΅ Π»Π΅Π½ΡΡ ΠΏΡΠΈ ΠΏΠΎΠΌΠΎΡΠΈ ΡΠ°Π·Π³ΡΡΠ·ΠΎΡΠ½ΡΡ ΡΡΡΡΠΎΠΉΡΡΠ². ΠΡΡΠΎΡΠ° ΡΠ°Π·Π³ΡΡΠ·ΠΊΠΈ Π³ΠΎΡΠΈΠ·ΠΎΠ½ΡΠ°Π»ΡΠ½ΡΡ ΠΊΠΎΠ½Π²Π΅ΠΉΠ΅ΡΠΎΠ² ΡΠΎΡΡΠ°Π²Π»ΡΠ΅Ρ 0,72 ΠΌ, Π½Π°ΠΊΠ»ΠΎΠ½Π½ΡΡ (ΠΌΠ°ΠΊΡΠΈΠΌΠ°Π»ΡΠ½ΡΠΉ ΡΠ³ΠΎΠ» Π½Π°ΠΊΠ»ΠΎΠ½Π° 10Β°) 7 ΠΌ ΠΏΡΠΈ Π΄Π»ΠΈΠ½Π΅ 40 ΠΌ ΠΈ 15 ΠΌ ΠΏΡΠΈ Π΄Π»ΠΈΠ½Π΅ 80 ΠΌ.
β
ΠΠ±ΡΠΈΠ΅ ΡΠ²Π΅Π΄Π΅Π½ΠΈΡ. ΠΠ΅Π½ΡΠΎΡΠ½ΡΠ΅ ΠΊΠΎΠ½Π²Π΅ΠΉΠ΅ΡΡ ΠΈΠΌΠ΅ΡΡ ΡΡΠ³ΠΎΠ²ΡΠΉ ΠΎΡΠ³Π°Π½, Π²ΡΠΏΠΎΠ»Π½Π΅Π½Π½ΡΠΉ Π² Π²ΠΈΠ΄Π΅ Π±Π΅ΡΠΊΠΎΠ½Π΅ΡΠ½ΠΎΠΉ Π»Π΅Π½ΡΡ, ΡΠ²Π»ΡΡΡΠΈΠΉΡΡ ΠΎΠ΄Π½ΠΎΠ²ΡΠ΅ΠΌΠ΅Π½Π½ΠΎ ΠΈ Π½Π΅ΡΡΡΠΈΠΌ ΡΠ»Π΅ΠΌΠ΅Π½ΡΠΎΠΌ ΠΊΠΎΠ½Π²Π΅ΠΉΠ΅ΡΠ°, ΠΏΡΠΈΠ²ΠΎΠ΄Π½ΡΡ ΡΡΠ°Π½ΡΠΈΡ, ΠΏΡΠΈΠ²ΠΎΠ΄ΡΡΡΡ Π² Π΄Π²ΠΈΠΆΠ΅Π½ΠΈΠ΅ ΠΏΡΠΈΠ²ΠΎΠ΄Π½ΠΎΠΉ Π±Π°ΡΠ°Π±Π°Π½, Π½Π°ΡΡΠΆΠ½ΡΡ ΡΡΠ°Π½ΡΠΈΡ Ρ Π½Π°ΡΡΠΆΠ½ΡΠΌ Ρ
Π²ΠΎΡΡΠΎΠ²ΡΠΌ Π±Π°ΡΠ°Π±Π°Π½ΠΎΠΌ, ΠΈ Π½Π°ΡΡΠΆΠ½ΡΠΌ ΡΡΡΡΠΎΠΉΡΡΠ²ΠΎΠΌ, ΠΏΠΎΠ΄Π΄Π΅ΡΠΆΠΈΠ²Π°ΡΡΠΈΡ
ΡΠΎΠ»ΠΈΠΊΠΎΠ² Π½Π° ΡΠ°Π±ΠΎΡΠ΅ΠΉ Π²Π΅ΡΠ²ΠΈ Π»Π΅Π½ΡΡ ΠΈ Π½Π° Ρ
ΠΎΠ»ΠΎΡΡΠΎΠΉ Π²Π΅ΡΠ²ΠΈ Π»Π΅Π½ΡΡ (Π² ΡΡΠ΄Π΅ ΡΠ»ΡΡΠ°Π΅Π² Π²ΠΌΠ΅ΡΡΠΎ ΠΏΠΎΠ΄Π΄Π΅ΡΠΆΠΈΠ²Π°ΡΡΠΈΡ
ΡΠΎΠ»ΠΈΠΊΠΎΠ² ΠΈΡΠΏΠΎΠ»ΡΠ·ΡΠ΅ΡΡΡ ΡΠΏΠ»ΠΎΡΠ½ΠΎΠΉ Π΄Π΅ΡΠ΅Π²ΡΠ½Π½ΡΠΉ ΠΈΠ»ΠΈ ΠΌΠ΅ΡΠ°Π»Π»ΠΈΡΠ΅ΡΠΊΠΈΠΉ Π½Π°ΡΡΠΈΠ»), Π·Π°Π³ΡΡΠ·ΠΎΡΠ½ΠΎΠ΅ ΡΡΡΡΠΎΠΉΡΡΠ²ΠΎ ΠΈ ΡΠ°Π·Π³ΡΡΠ·ΠΎΡΠ½ΠΎΠ΅ ΡΡΡΡΠΎΠΉΡΡΠ²ΠΎ, ΠΎΡΠΊΠ»ΠΎΠ½ΡΡΡΠΈΠΉ Π±Π°ΡΠ°Π±Π°Π½, ΠΈ ΡΡΡΡΠΎΠΉΡΡΠ²ΠΎ Π΄Π»Ρ ΠΎΡΠΈΡΡΠΊΠΈ Π»Π΅Π½ΡΡ.
ΠΡΠ΅ ΡΠ»Π΅ΠΌΠ΅Π½ΡΡ ΠΊΠΎΠ½Π²Π΅ΠΉΠ΅ΡΠ° ΡΠΌΠΎΠ½ΡΠΈΡΠΎΠ²Π°Π½Ρ Π½Π° ΠΌΠ΅ΡΠ°Π»Π»ΠΈΡΠ΅ΡΠΊΠΎΠΉ ΡΠ°ΠΌΠ΅ 9. ΠΠ΅Π½ΡΠΎΡΠ½ΡΠ΅ ΠΊΠΎΠ½Π²Π΅ΠΉΠ΅ΡΡ ΡΠ²Π»ΡΡΡΡΡ Π½Π°ΠΈΠ±ΠΎΠ»Π΅Π΅ ΡΠ°ΡΠΏΡΠΎΡΡΡΠ°Π½Π΅Π½Π½ΡΠΌΠΈ ΡΡΠ°Π½ΡΠΏΠΎΡΡΠΈΡΡΡΡΠΈΠΌΠΈ ΠΌΠ°ΡΠΈΠ½Π°ΠΌΠΈ, ΠΏΡΠΈΠΌΠ΅Π½ΡΠ΅ΠΌΡΠΌΠΈ Π² ΡΠ°ΠΌΡΡ
ΡΠ°Π·Π»ΠΈΡΠ½ΡΡ
ΠΎΠ±Π»Π°ΡΡΡΡ
Π½Π°ΡΠΎΠ΄Π½ΠΎΠ³ΠΎ Ρ
ΠΎΠ·ΡΠΉΡΡΠ²Π° Π΄Π»Ρ ΠΏΠ΅ΡΠ΅ΠΌΠ΅ΡΠ΅Π½ΠΈΡ ΡΠ°Π·Π½ΠΎΠΎΠ±ΡΠ°Π·Π½ΡΡ
ΡΡΡΡΠ½ΡΡ
ΠΈ Π½Π°ΡΡΠΏΠ½ΡΡ
Π³ΡΡΠ·ΠΎΠ².
Π ΠΈΡ. 2. Π‘Ρ Π΅ΠΌΠ° ΡΡΠ°ΡΠΈΠΎΠ½Π°ΡΠ½ΠΎΠ³ΠΎ Π»Π΅Π½ΡΠΎΡΠ½ΠΎΠ³ΠΎ ΠΊΠΎΠ½Π²Π΅ΠΉΠ΅ΡΠ°
Π¨ΠΈΡΠΎΠΊΠΎΠ΅ ΠΏΡΠΈΠΌΠ΅Π½Π΅Π½ΠΈΠ΅ Π»Π΅Π½ΡΠΎΡΠ½ΡΠ΅ ΠΊΠΎΠ½Π²Π΅ΠΉΠ΅ΡΡ ΠΏΠΎΠ»ΡΡΠΈΠ»ΠΈ Π΄Π»Ρ ΠΌΠ΅ΠΆΠΎΠΏΠ΅ΡΠ°ΡΠΈΠΎΠ½Π½ΠΎΠ³ΠΎ ΡΡΠ°Π½ΡΠΏΠΎΡΡΠΈΡΠΎΠ²Π°Π½ΠΈΡ Π³ΡΡΠ·ΠΎΠ² Π² ΠΏΠΎΡΠΎΡΠ½ΠΎΠΌ ΠΏΡΠΎΠΈΠ·Π²ΠΎΠ΄ΡΡΠ²Π΅, Π΄Π»Ρ ΡΡΠ°Π½ΡΠΏΠΎΡΡΠΈΡΠΎΠ²Π°Π½ΠΈΡ Π² Π»ΠΈΡΠ΅ΠΉΠ½ΡΡ
ΡΠ΅Ρ
Π°,Ρ
(ΠΏΠΎΠ΄Π°ΡΠΈ Π·Π΅ΠΌΠ»ΠΈ), Π² ΡΠ°Ρ
ΡΠ½ΠΎΠΌ Ρ
ΠΎΠ·ΡΠΉΡΡΠ²Π΅, Π΄Π»Ρ ΠΏΠΎΠ΄Π°ΡΠΈ ΡΠΎΠΏΠ»ΠΈΠ²Π° ΠΈ Π·Π΅ΡΠ½Π° Π½Π° ΡΠ»Π΅Π²Π°ΡΠΎΡΠ°Ρ
ΠΈ Ρ. ΠΏ. Π‘Ρ
Π΅ΠΌΡ ΡΡΠΈΡ
ΠΊΠΎΠ½Π²Π΅ΠΉΠ΅ΡΠΎΠ² Π²Π΅ΡΡΠΌΠ° ΡΠ°Π·Π½ΠΎΠΎΠ±ΡΠ°Π·Π½Ρ ΠΈ ΠΎΠΏΡΠ΅Π΄Π΅Π»ΡΡΡΡΡ Π½Π°Π·Π½Π°ΡΠ΅Π½ΠΈΠ΅ΠΌ ΠΊΠΎΠ½Π²Π΅ΠΉΠ΅ΡΠ° Π² Π΄Π°Π½Π½ΠΎΠΌ ΡΠ΅Ρ
Π½ΠΎΠ»ΠΎΠ³ΠΈΡΠ΅ΡΠΊΠΎΠΌ ΠΏΡΠΎΡΠ΅ΡΡΠ΅. ΠΠ΅ΠΊΠΎΡΠΎΡΡΠ΅ ΡΡ
Π΅ΠΌΡ ΠΊΠΎΠ½Π²Π΅ΠΉΠ΅ΡΠΎΠ² ΠΏΡΠ΅Π΄ΡΡΠ°Π²Π»Π΅Π½Ρ Π½Π° ΡΠΈΡ. 3. ΠΠ»ΠΈΠ½Π° Π»Π΅Π½ΡΠΎΡΠ½ΡΡ
ΠΊΠΎΠ½Π²Π΅ΠΉΠ΅ΡΠΎΠ² (Ρ. Π΅. ΡΠ°ΡΡΡΠΎΡΠ½ΠΈΠ΅ ΠΌΠ΅ΠΆΠ΄Ρ ΡΠ΅Π½ΡΡΠ°ΠΌΠΈ ΠΏΡΠΈΠ²ΠΎΠ΄Π½ΠΎΠ³ΠΎ ΠΈ Ρ
Π²ΠΎΡΡΠΎΠ²ΠΎΠ³ΠΎ Π±Π°ΡΠ°Π±Π°Π½ΠΎΠ²) Π΄ΠΎΡΡΠΈΠ³Π°Π΅Ρ 4,5 ΠΊΠΌ. ΠΠΎΠ½Π²Π΅ΠΉΠ΅ΡΡ, ΡΡΡΠ°Π½ΠΎΠ²Π»Π΅Π½Π½ΡΠ΅ Π² Π²Π΅ΡΡΠΈΠΊΠ°Π»ΡΠ½ΠΎΠΉ ΠΏΠ»ΠΎΡΠΊΠΎΡΡΠΈ ΠΈΠ»ΠΈ Π² ΠΏΠ»ΠΎΡΠΊΠΎΡΡΠΈ, Π±Π»ΠΈΠ·ΠΊΠΎΠΉ ΠΊ Π²Π΅ΡΡΠΈΠΊΠ°Π»ΠΈ, Π½Π°Π·ΡΠ²Π°ΡΡ ΡΠ»Π΅Π²Π°ΡΠΎΡΠ°ΠΌΠΈ. Π Π½ΠΈΡ
ΡΡΠ³ΠΎΠ²ΡΠΉ ΠΎΡΠ³Π°Π½ ΡΠ½Π°Π±ΠΆΠ°ΡΡ ΠΊΠΎΠ²ΡΠ°ΠΌΠΈ, Π»ΡΠ»ΡΠΊΠ°ΠΌΠΈ ΠΈΠ»ΠΈ ΡΠΏΠ΅ΡΠΈΠ°Π»ΡΠ½ΡΠΌΠΈ Π·Π°Ρ
Π²Π°ΡΠ°ΠΌΠΈ Π΄Π»Ρ Π³ΡΡΠ·Π°.
Π ΠΈΡ. 3. ΠΠ΅ΠΎΠΌΠ΅ΡΡΠΈΡΠ΅ΡΠΊΠΈΠ΅ ΡΡ
Π΅ΠΌΡ Π»Π΅Π½ΡΠΎΡΠ½ΡΡ
ΠΊΠΎΠ½Π²Π΅ΠΉΠ΅ΡΠΎΠ²:
Π° β Π³ΠΎΡΠΈΠ·ΠΎΠ½ΡΠ°Π»ΡΠ½ΡΠΉ; Π± β Π½Π°ΠΊΠ»ΠΎΠ½Π½ΡΠΉ, Π² β Ρ Π΄Π²ΡΠΌΡ ΠΏΠ΅ΡΠ΅Π³ΠΈΠ±Π°ΠΌΠΈ; Π³βΠ³ΠΎΡΠΈΠ·ΠΎΠ½ΡΠ°Π»ΡΠ½ΠΎ-Π½Π°ΠΊΠ»ΠΎΠ½Π½ΡΠΉ Ρ ΠΏΡΠΎΠΌΠ΅ΠΆΡΡΠΎΡΠ½ΠΎΠΉ ΠΏΠ΅ΡΠ΅Π³ΡΡΠ·ΠΊΠΎΠΉ; Π΄ β Π³ΠΎΡΠΈΠ·ΠΎΠ½ΡΠ°Π»ΡΠ½ΡΠΉ Ρ ΠΏΠ΅ΡΠ΅Π΄Π²ΠΈΠΆΠ½ΠΎΠΉ ΡΠ°Π· Π³ΡΡΠ·ΠΎΡΠ½ΠΎΠΉ ΡΠ΅Π»Π΅ΠΆΠΊΠΎΠΉ
ΠΡΠΈΠΆΠΈΠΌΠ½ΡΡ Π»Π΅Π½ΡΡ ΠΈΠ·Π³ΠΎΡΠΎΠ²Π»ΡΡΡ ΠΈΠ· ΠΎΠ±ΡΡΠ½ΠΎΠΉ ΠΏΡΠΎΡΠ΅Π·ΠΈΠ½Π΅Π½Π½ΠΎΠΉ Π»Π΅Π½ΡΡ ΠΈΠ»ΠΈ ΠΈΠ· ΡΠΎΠ΅Π΄ΠΈΠ½Π΅Π½Π½ΡΡ ΠΌΠ΅ΠΆΠ΄Ρ ΡΠΎΠ±ΠΎΠΉ ΡΠ΅ΠΏΠ½ΡΡ (ΡΠ²Π°ΡΠ½ΡΡ ) Π·Π²Π΅Π½ΡΠ΅Π². Π ΠΏΠΎΡΠ»Π΅Π΄Π½Π΅ΠΌ ΡΠ»ΡΡΠ°Π΅ ΠΎΠ½Π° ΠΎΠ±Π»Π°Π΄Π°Π΅Ρ Π²ΡΡΠΎΠΊΠΎΠΉ Π³ΠΈΠ±ΠΊΠΎΡΡΡΡ Π² ΠΏΡΠΎΠ΄ΠΎΠ»ΡΠ½ΠΎΠΌ ΠΈ ΠΏΠΎΠΏΠ΅ΡΠ΅ΡΠ½ΠΎΠΌ Π½Π°ΠΏΡΠ°Π²Π»Π΅Π½ΠΈΡΡ , ΡΡΠΎ ΠΏΠΎΠ·Π²ΠΎΠ»ΡΠ΅Ρ Π΅ΠΉ ΠΏΠ»ΠΎΡΠ½ΠΎ ΠΎΡ Π²Π°ΡΡΠ²Π°ΡΡ Π³ΡΡΠ· ΠΊΠ°ΠΊ Π² ΠΎΠ±ΡΠ΅ΠΉ ΠΌΠ°ΡΡΠ΅, ΡΠ°ΠΊ ΠΈ Π΅Π³ΠΎ ΠΎΡΠ΄Π΅Π»ΡΠ½ΡΠ΅ Π±ΠΎΠ»ΡΡΠΈΠ΅ ΠΊΡΡΠΊΠΈ. ΠΡΠΈΠΆΠΈΠΌΠ½Π°Ρ Π»Π΅Π½ΡΠ° ΠΏΡΠΈΠ²ΠΎΠ΄ΠΈΡΡΡ Π² Π΄Π²ΠΈΠΆΠ΅Π½ΠΈΠ΅ Π»Π΅Π½ΡΠΎΠΉ Π΄ΠΎΠΏΠΎΠ»Π½ΠΈΡΠ΅Π»ΡΠ½ΠΎΠ³ΠΎ ΠΊΠΎΠ½Π²Π΅ΠΉΠ΅ΡΠ°, ΡΡΡΠ°Π½ΠΎΠ²Π»Π΅Π½Π½ΠΎΠ³ΠΎ ΠΏΠ°ΡΠ°Π»Π»Π΅Π»ΡΠ½ΠΎ ΠΎΡΠ½ΠΎΠ²Π½ΠΎΠΌΡ ΠΈ ΠΈΠΌΠ΅ΡΡΠ΅Π³ΠΎ ΡΡ ΠΆΠ΅ ΡΠΊΠΎΡΠΎΡΡΡ. ΠΡΠΈΠΌΠ΅Π½Π΅Π½ΠΈΠ΅ ΠΏΡΠΈΠΆΠΈΠΌΠ½ΠΎΠΉ Π»Π΅Π½ΡΡ ΠΏΠΎΠ·Π²ΠΎΠ»ΡΠ΅Ρ ΠΎΡΡΡΠ΅ΡΡΠ²ΠΈΡΡ ΠΏΠΎΠ΄ΡΠ΅ΠΌ ΡΡΠΏΡΡΠ΅Π³ΠΎ Π³ΡΡΠ·Π° ΠΏΡΠΈ ΡΠ³Π»Π°Ρ Π½Π°ΠΊΠ»ΠΎΠ½Π°, ΡΠ°Π²Π½ΡΡ 48β60Β° ΠΊ Π³ΠΎΡΠΈΠ·ΠΎΠ½ΡΡ.
ΠΠ½Π°Π»ΠΎΠ³ΠΈΡΠ½ΠΎΠ΅ Π½Π°Π·Π½Π°ΡΠ΅Π½ΠΈΠ΅ ΠΈΠΌΠ΅ΡΡ ΡΠΊΡΠ΅Π±ΠΊΠΎΠ²ΠΎ-Π»Π΅Π½ΡΠΎΡΠ½ΡΠ΅ ΠΊΠΎΠ½Π²Π΅ΠΉΠ΅ΡΡ. Π ΡΡΠΎΠΉ ΠΊΠΎΠ½ΡΡΡΡΠΊΡΠΈΠΈ ΠΊ ΡΡΠ³ΠΎΠ²ΠΎΠΉ Π»Π΅Π½ΡΠ΅ ΠΏΡΠΈΠΊΡΠ΅ΠΏΠ»ΡΡΡΡΡ ΡΠΊΡΠ΅Π±ΠΊΠΈ, Π·Π°Ρ
Π²Π°ΡΡΠ²Π°ΡΡΠΈΠ΅ ΠΌΠ°ΡΠ΅ΡΠΈΠ°Π» ΠΈΠ· Π·Π°Π³ΡΡΠ·ΠΎΡΠ½ΠΎΠ³ΠΎ Π±Π°ΡΠΌΠ°ΠΊΠ° ΠΈ ΡΠ΄Π΅ΡΠΆΠΈΠ²Π°ΡΡΠΈΠ΅ Π΅Π³ΠΎ ΠΎΡ ΡΠΎΡΠΊΠ°Π»ΡΠ·ΡΠ²Π°Π½ΠΈΡ Ρ ΡΠ°Π±ΠΎΡΠ΅ΠΉ Π»Π΅Π½ΡΡ ΠΊΠΎΠ½Π²Π΅ΠΉΠ΅ΡΠ°, ΠΏΠ΅ΡΠ΅ΠΌΠ΅ΡΠ°ΡΡΠ΅ΠΉΡΡ ΡΠΎ ΡΠΊΠΎΡΠΎΡΡΡΡ, ΡΠ°Π²Π½ΠΎΠΉ ΡΠΊΠΎΡΠΎΡΡΠΈ ΡΡΠ³ΠΎΠ²ΠΎΠΉ Π»Π΅Π½ΡΡ.
Π’ΡΠ³ΠΎΠ²Π°Ρ Π»Π΅Π½ΡΠ° ΠΈ ΡΠ°Π±ΠΎΡΠ°Ρ Π»Π΅Π½ΡΠ° ΡΠ΄Π΅ΡΠΆΠΈΠ²Π°ΡΡΡΡ ΠΎΡ ΠΏΡΠΎΠ³ΠΈΠ±Π° ΠΈΡ
Π³ΡΡΠ·ΠΎΠΌ ΠΏΡΠΈ ΠΏΠΎΠΌΠΎΡΠΈ Π½Π°ΠΏΡΠ°Π²Π»ΡΡΡΠΈΡ
ΡΠΎΠ»ΠΈΠΊΠΎΠ².
Π‘ΠΊΠΎΡΠΎΡΡΡ ΠΏΠΎΠ»ΠΎΡΠ½Π° ΠΊΠΎΠ½Π²Π΅ΠΉΠ΅ΡΠ° ΠΏΡΠΈ ΡΡΠ°Π½ΡΠΏΠΎΡΡΠΈΡΠΎΠ²Π°Π½ΠΈΠΈ ΡΡΠΏΡΡΠΈΡ Π³ΡΡΠ·ΠΎΠ², Π½Π°Π·Π½Π°ΡΠ°ΡΡ Π² Π·Π°Π²ΠΈΡΠΈΠΌΠΎΡΡΠΈ ΠΎΡ ΡΠ²ΠΎΠΉΡΡΠ² Π³ΡΡΠ·Π°. ΠΠ»Ρ Π»Π΅Π³ΠΊΠΈΡ , ΠΏΡΠ»Π΅Π²ΠΈΠ΄Π½ΡΡ ΠΌΠ°ΡΠ΅ΡΠΈΠ°Π»ΠΎΠ² ΡΠΊΠΎΡΠΎΡΡΡ ΠΎΠ³ΡΠ°Π½ΠΈΡΠΈΠ²Π°Π΅ΡΡΡ Π²ΠΎΠ·ΠΌΠΎΠΆΠ½ΠΎΡΡΡΡ ΡΠ΄ΡΠ²Π°-Π½ΠΈΡ ΠΌΠ°ΡΠ΅ΡΠΈΠ°Π»Π° Ρ ΠΏΠΎΠ»ΠΎΡΠ½Π°. ΠΠ»Ρ ΠΊΡΡΠΏΠ½ΠΎΠΊΡΡΠΊΠΎΠ²ΡΡ , ΡΡΠΆΠ΅Π»ΡΡ ΠΌΠ°ΡΠ΅ΡΠΈΠ°Π»ΠΎΠ² ΡΠΊΠΎΡΠΎΡΡΡ Π΄Π²ΠΈΠΆΠ΅Π½ΠΈΡ ΠΎΠ³ΡΠ°Π½ΠΈΡΠ΅Π½Π° Π²ΠΎΠ·ΠΌΠΎΠΆΠ½ΠΎΡΡΡΡ ΠΏΠΎΠ²ΡΠ΅ΠΆΠ΄Π΅Π½ΠΈΡ Π»Π΅Π½ΡΡ Π²ΡΠ»Π΅Π΄ΡΡΠ²ΠΈΠ΅ ΡΠ΄Π°ΡΠΎΠ² ΠΌΠ°ΡΠ΅ΡΠΈΠ°Π»Π° ΠΏΠΎ Π»Π΅Π½ΡΠ΅ ΠΏΡΠΈ Π½Π°Π±Π΅Π³Π°Π½ΠΈΠΈ Π½Π° ΡΠΎΠ»ΠΈΠΊΠΈ ΠΈ Π±Π°ΡΠ°Π±Π°Π½Ρ. ΠΠ»Ρ ΠΌΠ°ΡΠ΅ΡΠΈΠ°Π»ΠΎΠ², ΡΠ΅Π½Π½ΠΎΡΡΡ ΠΊΠΎΡΠΎΡΡΡ ΡΠΌΠ΅Π½ΡΡΠ°Π΅ΡΡΡ ΠΏΡΠΈ ΠΈΠ·ΠΌΠ΅Π»ΡΡΠ΅Π½ΠΈΠΈ, ΠΊΠ°ΠΊ, Π½Π°ΠΏΡΠΈΠΌΠ΅Ρ, ΠΊΠΎΠΊΡ, ΡΠΊΠΎΡΠΎΡΡΡ Π΄Π²ΠΈΠΆΠ΅Π½ΠΈΡ ΡΠ°ΠΊΠΆΠ΅ ΡΠ½ΠΈΠΆΠ°Π΅ΡΡΡ. ΠΡΠΎΠΌΠ΅ ΡΠΎΠ³ΠΎ, ΡΠΊΠΎΡΠΎΡΡΡ ΡΡΠ°Π½ΡΠΏΠΎΡΡΠΈΡΠΎΠ²Π°Π½ΠΈΡ Π·Π°Π²ΠΈΡΠΈΡ ΠΈ ΠΎΡ ΡΠΈΡΠΈΠ½Ρ Π»Π΅Π½ΡΡ, ΡΠ²Π΅Π»ΠΈΡΠΈΠ²Π°ΡΡΡ Ρ ΡΠ²Π΅Π»ΠΈΡΠ΅Π½ΠΈΠ΅ΠΌ Π΅Π΅ ΡΠΈΡΠΈΠ½Ρ, ΡΠ°ΠΊ ΠΊΠ°ΠΊ Π½Π° Π±ΠΎΠ»Π΅Π΅ ΡΠΈΡΠΎΠΊΠΈΡ Π»Π΅Π½ΡΠ°Ρ ΠΌΠ°ΡΠ΅ΡΠΈΠ°Π» ΡΠ°ΡΠΏΠΎΠ»Π°Π³Π°Π΅ΡΡΡ Π±ΠΎΠ»Π΅Π΅ ΡΠ°Π²Π½ΠΎΠΌΠ΅ΡΠ½ΠΎ ΠΈ Π»Π΅Π½ΡΠ° Π»ΡΡΡΠ΅ ΡΠ΅Π½ΡΡΠΈΡΡΠ΅ΡΡΡ Π½Π° ΡΠΎΠ»ΠΈΠΊΠΎΠΎΠΏΠΎΡΠ°Ρ .
ΠΡΠΈ ΡΡΠ°Π½ΡΠΏΠΎΡΡΠΈΡΠΎΠ²Π°Π½ΠΈΠΈ ΡΡΡΡΠ½ΡΡ
Π³ΡΡΠ·ΠΎΠ² ΡΠΊΠΎΡΠΎΡΡΡ Π»Π΅Π½ΡΡ Π½Π°Π·Π½Π°ΡΠ°Π΅ΡΡΡ Π² Π·Π°Π²ΠΈΡΠΈΠΌΠΎΡΡΠΈ ΠΎΡ Ρ
Π°ΡΠ°ΠΊΡΠ΅ΡΠ° ΠΈ ΡΠΈΡΠΌΠ° ΡΠ΅Ρ
Π½ΠΎΠ»ΠΎΠ³ΠΈΡΠ΅ΡΠΊΠΎΠ³ΠΎ ΠΏΡΠΎΡΠ΅ΡΡΠ°, Π° ΡΠ°ΠΊΠΆΠ΅ ΠΎΡ ΡΠΏΠΎΡΠΎΠ±Π° Π·Π°Π³ΡΡΠ·ΠΊΠΈ ΠΈ ΡΠ°Π·Π³ΡΡΠ·ΠΊΠΈ ΠΊΠΎΠ½Π²Π΅ΠΉΠ΅ΡΠ°.
ΠΠΎΠ½Π²Π΅ΠΉΠ΅ΡΠ½Π°Ρ Π»Π΅Π½ΡΠ°. Π Π»Π΅Π½ΡΠΎΡΠ½ΡΡ ΠΊΠΎΠ½Π²Π΅ΠΉΠ΅ΡΠ°Ρ ΠΏΡΠΈΠΌΠ΅Π½ΡΡΡ ΡΠ°Π·Π»ΠΈΡΠ½ΡΠ΅ ΠΊΠΎΠ½Π²Π΅ΠΉΠ΅ΡΠ½ΡΠ΅ Π»Π΅Π½ΡΡ: ΡΠ΅ΠΊΡΡΠΈΠ»ΡΠ½ΡΠ΅ ΠΏΡΠΎΡΠ΅Π·ΠΈΠ½Π΅Π½Π½ΡΠ΅, ΡΠΊΠ°Π½Ρ ΠΊΠΎΡΠΎΡΡΡ ΠΈΠ·Π³ΠΎΡΠΎΠ²Π»Π΅Π½Π° ΠΈΠ· Ρ Π»ΠΎΠΏΡΠ°ΡΠΎΠ±ΡΠΌΠ°ΠΆΠ½ΠΎΠ³ΠΎ Π²ΠΎΠ»ΠΎΠΊΠ½Π°; Π»Π΅Π½ΡΡ, ΠΈΠ·Π³ΠΎΡΠΎΠ²Π»Π΅Π½Π½ΡΠ΅ ΠΈΠ· ΡΠΈΠ½ΡΠ΅ΡΠΈΡΠ΅ΡΠΊΠΎΠ³ΠΎ Π²ΠΎΠ»ΠΎΠΊΠ½Π° ΠΈΠ»ΠΈ ΠΈΡΠΊΡΡΡΡΠ²Π΅Π½Π½ΠΎΠ³ΠΎ ΡΠ΅Π»ΠΊΠ°, Π° ΡΠ°ΠΊΠΆΠ΅ ΡΡΠ°Π»ΡΠ½ΡΠ΅ Π»Π΅Π½ΡΡ β ΡΠ΅Π»ΡΠ½ΠΎΠΏΡΠΎΠΊΠ°ΡΠ°Π½Π½ΡΠ΅ ΠΈΠ»ΠΈ Π»Π΅Π½ΡΡ, ΠΈΠ·Π³ΠΎΡΠΎΠ²Π»Π΅Π½Π½ΡΠ΅ ΠΈΠ· ΠΏΡΠΎΠ²ΠΎΠ»ΠΎΠΊΠΈ, ΠΈ Π½Π°ΠΊΠΎΠ½Π΅Ρ, ΡΠ΅ΠΊΡΡΠΈΠ»ΡΠ½ΡΠ΅ Π»Π΅Π½ΡΡ Ρ Π·Π°Π²ΡΠ»ΠΊΠ°Π½ΠΈΠ·ΠΈΡΠΎΠ²Π°Π½Π½ΡΠΌΠΈ Π² Π½ΠΈΡ ΡΡΠ°Π»ΡΠ½ΡΠΌΠΈ ΡΡΠΎΡΠ°ΠΌΠΈ.
Π ΠΊΠΎΠ½Π²Π΅ΠΉΠ΅ΡΠ½ΠΎΠΉ Π»Π΅Π½ΡΠ΅ ΠΏΡΠ΅Π΄ΡΡΠ²Π»ΡΡΡΡΡ ΡΠ»Π΅Π΄ΡΡΡΠΈΠ΅ ΡΡΠ΅Π±ΠΎΠ²Π°Π½ΠΈΡ: Π²ΡΡΠΎΠΊΠ°Ρ ΠΏΡΠΎΠ΄ΠΎΠ»ΡΠ½Π°Ρ ΠΏΡΠΎΡΠ½ΠΎΡΡΡ, Π²ΡΡΠΎΠΊΠ°Ρ Π³ΠΈΠ±ΠΊΠΎΡΡΡ Π² ΠΏΡΠΎΠ΄ΠΎΠ»ΡΠ½ΠΎΠΌ (Π½Π° Π±Π°ΡΠ°Π±Π°Π½Π°Ρ
) ΠΈ ΠΏΠΎΠΏΠ΅ΡΠ΅ΡΠ½ΠΎΠΌ (Π½Π° ΠΆΠ΅Π»ΠΎΠ±ΡΠ°ΡΡΡ
ΡΠΎΠ»ΠΈΠΊΠΎΠΎΠΏΠΎΡΠ°Ρ
) Π½Π°ΠΏΡΠ°Π²Π»Π΅Π½ΠΈΡΡ
, Π²ΡΡΠΎΠΊΠ°Ρ ΡΠΎΠΏΡΠΎΡΠΈΠ²Π»ΡΠ΅ΠΌΠΎΡΡΡ ΠΈΠ·Π½Π°ΡΠΈΠ²Π°Π½ΠΈΡ ΠΈ ΡΠ°ΡΡΠ»Π°ΠΈΠ²Π°Π½ΠΈΡ ΠΏΡΠΈ ΠΌΠ½ΠΎΠ³ΠΎΠΊΡΠ°ΡΠ½ΡΡ
ΠΏΠ΅ΡΠ΅Π³ΠΈΠ±Π°Ρ
, Π½Π΅Π±ΠΎΠ»ΡΡΠΎΠ΅ ΡΠΏΡΡΠ³ΠΎΠ΅ ΠΈ ΠΎΡΡΠ°ΡΠΎΡΠ½ΠΎΠ΅ ΡΠ΄Π»ΠΈΠ½Π΅Π½ΠΈΠ΅, ΠΌΠ°Π»Π°Ρ Π³ΠΈΠ³ΡΠΎΡΠΊΠΎΠΏΠΈΡΠ½ΠΎΡΡΡ ΠΈ Π½Π΅Π·Π½Π°ΡΠΈΡΠ΅Π»ΡΠ½ΠΎΠ΅ Π²Π»ΠΈΡΠ½ΠΈΠ΅ Π²Π»Π°Π³ΠΈ Π½Π° ΠΏΡΠΎΡΠ½ΠΎΡΡΡ ΠΈ Π΄ΠΎΠ»Π³ΠΎΠ²Π΅ΡΠ½ΠΎΡΡΡ Π»Π΅Π½ΡΡ. ΠΠ΄Π½Π°ΠΊΠΎ ΡΠ΅ΠΊΡΡΠΈΠ»ΡΠ½ΡΠ΅ ΠΊΠΎΠ½Π²Π΅ΠΉΠ΅ΡΠ½ΡΠ΅ Π»Π΅Π½ΡΡ ΠΎΠ±Π»Π°Π΄Π°ΡΡ Π½Π΅Π΄ΠΎΡΡΠ°ΡΠΎΡΠ½ΠΎΠΉ Π΄ΠΎΠ»Π³ΠΎΠ²Π΅ΡΠ½ΠΎΡΡΡΡ ΠΏΡΠΈ ΡΠ°Π±ΠΎΡΠ΅ Ρ ΠΌΠ°ΡΠ΅ΡΠΈΠ°Π»Π°ΠΌΠΈ, Π½Π°Π³ΡΠ΅ΡΡΠΌΠΈ Π΄ΠΎ Π²ΡΡΠΎΠΊΠΎΠΉ ΡΠ΅ΠΌΠΏΠ΅ΡΠ°ΡΡΡΡ, Π° ΡΠ°ΠΊΠΆΠ΅ ΠΏΡΠΈ ΡΠ°Π±ΠΎΡΠ΅ Ρ ΠΊΡΡΠΏΠ½ΠΎΠΊΡΡΠΊΠΎΠ²ΡΠΌΠΈ ΠΈ Π°Π±ΡΠ°Π·ΠΈΠ²Π½ΡΠΌΠΈ ΠΌΠ°ΡΠ΅ΡΠΈΠ°Π»Π°ΠΌΠΈ.
Π ΠΈΡ. 4. Π’Π΅ΠΊΡΡΠΈΠ»ΡΠ½Π°Ρ ΠΊΠΎΠ½Π²Π΅ΠΉΠ΅ΡΠ½Π°Ρ Π»Π΅Π½ΡΠ°:
Π° β ΠΎΠ±ΡΡΠ½Π°Ρ; Π± β Ρ Π·Π°Π²ΡΠ»ΠΊΠ°Π½ΠΈΠ·ΠΈΡΠΎΠ²Π°Π½Π½ΡΠΌΠΈ ΠΊΠ°Π½Π°ΡΠΈΠΊΠ°ΠΌΠΈ; 1 β ΡΠΊΠ°Π½Π°Ρ ΠΏΡΠΎΡΠ»ΠΎΠΉΠΊΠ°; 2 β ΡΠ΅Π·ΠΈΠ½ΠΎΠ²Π°Ρ ΠΎΠ±ΠΊΠ»Π°Π΄ΠΊΠ°; 3 β ΡΡΠ°Π»ΡΠ½ΠΎΠΉ ΠΊΠ°Π½Π°Ρ
ΠΡΠ΅ΠΈΠΌΡΡΠ΅ΡΡΠ²ΠΎΠΌ ΠΊΠΎΠ½Π²Π΅ΠΉΠ΅ΡΠ½ΡΡ Π»Π΅Π½Ρ ΡΠ²Π»ΡΡΡΡΡ: ΠΌΠ°Π»ΡΠΉ ΡΠΎΠ±ΡΡΠ²Π΅Π½Π½ΡΠΉ Π²Π΅Ρ, ΠΎΡΡΡΡΡΡΠ²ΠΈΠ΅ Π±ΡΡΡΡΠΎΠΈΠ·Π½Π°ΡΠΈΠ²Π°ΡΡΠΈΡ ΡΡ ΡΠ°ΡΠ½ΠΈΡΠΎΠ², Π²ΠΎΠ·ΠΌΠΎΠΆΠ½ΠΎΡΡΡ ΠΏΠ΅ΡΠ΅ΠΌΠ΅ΡΠ΅Π½ΠΈΡ Π³ΡΡΠ·Π° Ρ Π±ΠΎΠ»ΡΡΠΈΠΌΠΈ ΡΠΊΠΎΡΠΎΡΡΡΠΌΠΈ.
Π’Π΅ΠΊΡΡΠΈΠ»ΡΠ½Π°Ρ ΠΊΠΎΠ½Π²Π΅ΠΉΠ΅ΡΠ½Π°Ρ Π»Π΅Π½ΡΠ° ΡΠΎΡΡΠΎΠΈΡ ΠΈΠ· Π½Π΅ΡΠΊΠΎΠ»ΡΠΊΠΈΡ ΡΠ»ΠΎΠ΅Π² Ρ Π»ΠΎΠΏΡΠ°ΡΠΎΠ±ΡΠΌΠ°ΠΆΠ½ΠΎΠΉ ΡΠΊΠ°Π½ΠΈ, ΠΏΡΠΎΠΏΠΈΡΠ°Π½Π½ΠΎΠΉ ΡΠ΅Π·ΠΈΠ½ΠΎΠΉ. ΠΡΠΈ ΡΠ»ΠΎΠΈ ΡΠΎΠ΅Π΄ΠΈΠ½ΡΡΡΡΡ ΠΌΠ΅ΠΆΠ΄Ρ ΡΠΎΠ±ΠΎΠΉ Π²ΡΠ»ΠΊΠ°Π½ΠΈΠ·Π°ΡΠΈΠ΅ΠΉ. ΠΠΎ ΠΏΠΎΠ²Π΅ΡΡ Π½ΠΎΡΡΠΈ Π»Π΅Π½ΡΠ° ΠΎΠ±Π²ΠΎΠ»Π°ΠΊΠΈΠ²Π°Π΅ΡΡΡ ΡΠ»ΠΎΠ΅ΠΌ ΡΠ΅Π·ΠΈΠ½Ρ, ΠΏΡΠ΅Π΄ΠΎΡ ΡΠ°Π½ΡΡΡΠΈΠΌ ΡΠΊΠ°Π½Ρ Π»Π΅Π½ΡΡ ΠΎΡ ΠΈΡΡΠΈΡΠ°Π½ΠΈΡ ΠΌΠ°ΡΠ΅ΡΠΈΠ°Π»ΠΎΠΌ, ΠΎΡ ΠΌΠ΅Ρ Π°Π½ΠΈΡΠ΅ΡΠΊΠΈΡ ΠΏΠΎΠ²ΡΠ΅ΠΆΠ΄Π΅Π½ΠΈΠΉ ΠΈ ΠΎΡ Π²ΠΎΠ·Π΄Π΅ΠΉΡΡΠ²ΠΈΡ Π²Π»Π°Π³ΠΈ. Π’ΠΎΠ»ΡΠΈΠ½Π° ΡΠ»ΠΎΡ ΡΠ΅Π·ΠΈΠ½Ρ Π² Π·Π°Π²ΠΈΡΠΈΠΌΠΎΡΡΠΈ ΠΎΡ ΡΠΈΠΏΠ° ΡΡΠ°Π½ΡΠΏΠΎΡΡΠΈΡΡΠ΅ΠΌΠΎΠ³ΠΎ ΠΌΠ°ΡΠ΅ΡΠΈΠ°Π»Π° ΠΏΡΠΈΠ½ΠΈΠΌΠ°Π΅ΡΡΡ Π½Π° ΡΠ°Π±ΠΎΡΠ΅ΠΉ ΡΡΠΎΡΠΎΠ½Π΅ Π² ΠΏΡΠ΅Π΄Π΅Π»Π°Ρ ΠΎΡ 3 Π΄ΠΎ 6 ΠΌΠΌ (Π΄Π»Ρ ΠΎΡΠΎΠ±ΠΎ ΡΡΠΆΠ΅Π»ΡΡ ΠΈ Π°Π±ΡΠ°Π·ΠΈΠ²Π½ΡΡ Π³ΡΡΠ·ΠΎΠ² β Π΄ΠΎ 10 ΠΌΠΌ), Π° Π½Π° Π½Π΅ΡΠ°Π±ΠΎΡΠ΅ΠΉ ΡΡΠΎΡΠΎΠ½Π΅ β 2 ΠΌΠΌ.
ΠΡΠ½ΠΎΠ²Π½ΡΠ΅ ΠΏΠ°ΡΠ°ΠΌΠ΅ΡΡΡ ΡΠ΅ΠΊΡΡΠΈΠ»ΡΠ½ΡΡ
ΠΏΡΠΎΡΠ΅Π·ΠΈΠ½Π΅Π½Π½ΡΡ
ΠΊΠΎΠ½Π²Π΅ΠΉΠ΅ΡΠ½ΡΡ
Π»Π΅Π½Ρ ΠΏΡΠΈΠ²Π΅Π΄Π΅Π½Ρ Π² ΠΠΠ‘Π’ 20β62. ΠΠ΅Π½ΡΡ, ΠΏΡΠ΅Π΄ΡΡΠΌΠΎΡΡΠ΅Π½Π½ΡΠ΅ ΡΡΠΈΠΌ ΠΠΠ‘Π’ΠΎΠΌ, ΠΈΠΌΠ΅ΡΡ ΡΠΈΡΠΈΠ½Ρ ΠΎΡ 300 Π΄ΠΎ 2000 ΠΌΠΌ ΠΈ ΡΠΈΡΠ»ΠΎ ΡΠ»ΠΎΠ΅Π² ΡΠΊΠ°Π½ΠΈ ΠΎΡ 3 Π΄ΠΎ 12.
Π£Π²Π΅Π»ΠΈΡΠ΅Π½ΠΈΠ΅ ΡΠΈΡΠ»Π° ΠΏΡΠΎΠΊΠ»Π°Π΄ΠΎΠΊ ΠΈΠ· ΡΠΊΠ°Π½ΠΈ ΡΠ²Π΅ΡΡ
15 ΠΏΡΠΈΠ²ΠΎΠ΄ΠΈΡ ΠΊ ΡΠ΅Π·ΠΊΠΎΠΌΡ ΡΠΌΠ΅Π½ΡΡΠ΅Π½ΠΈΡ ΠΎΡΠ½ΠΎΡΠΈΡΠ΅Π»ΡΠ½ΠΎΠΉ Π°Π³ΡΠ΅Π³Π°ΡΠ½ΠΎΠΉ ΠΏΡΠΎΡΠ½ΠΎΡΡΠΈ (Π²ΡΠ»Π΅Π΄ΡΡΠ²ΠΈΠ΅ Π½Π΅ΡΠ°Π²Π½ΠΎΠΌΠ΅ΡΠ½ΠΎΡΡΠΈ Π½Π°Π³ΡΡΠΆΠ΅Π½ΠΈΡ ΠΎΡΠ΄Π΅Π»ΡΠ½ΡΡ
ΡΠ»ΠΎΠ΅Π² Π»Π΅Π½ΡΡ) ΠΈ ΡΠΏΠΎΡΠΎΠ±Π½ΠΎΡΡΠΈ Π»Π΅Π½ΡΡ ΠΊ ΠΈΠ·Π³ΠΈΠ±Ρ.
Π£ΡΠΈΡΡΠ²Π°Ρ ΡΠ»ΠΎΠΆΠ½ΠΎΡΡΡ ΡΠΎΡΠ½ΠΎΠ³ΠΎ ΠΎΠΏΡΠ΅Π΄Π΅Π»Π΅Π½ΠΈΡ Π΄Π΅ΠΉΡΡΠ²ΠΈΡΠ΅Π»ΡΠ½ΠΎΠ³ΠΎ Π½Π°ΠΏΡΡΠΆΠ΅Π½ΠΈΡ Π² ΡΠ»ΠΎΡΡ ΡΠ΅ΠΊΡΡΠΈΠ»ΡΠ½ΠΎΠΉ ΠΊΠΎΠ½Π²Π΅ΠΉΠ΅ΡΠ½ΠΎΠΉ Π»Π΅Π½ΡΡ ΠΏΡΠΈ ΡΠΎΠ²ΠΌΠ΅ΡΡΠ½ΠΎΠΌ Π΄Π΅ΠΉΡΡΠ²ΠΈΠΈ ΡΠ°ΡΡΡΠΆΠ΅Π½ΠΈΡ ΠΈ ΠΈΠ·Π³ΠΈΠ±Π°, ΡΠ°ΡΡΠ΅Ρ Π΅Π΅ Π²Π΅Π΄ΡΡ ΡΠΎΠ»ΡΠΊΠΎ Π½Π° ΡΠ°ΡΡΡΠΆΠ΅Π½ΠΈΠ΅ ΠΏΠΎ Π΄ΠΎΠΏΡΡΠΊΠ°Π΅ΠΌΠΎΠΉ ΠΏΠΎΠ³ΠΎΠ½Π½ΠΎΠΉ Π½Π°Π³ΡΡΠ·ΠΊΠ΅. ΠΠ»ΠΈΡΠ½ΠΈΠ΅ ΠΈΠ·Π³ΠΈΠ±Π° Π»Π΅Π½ΡΡ Π½Π° Π±Π°ΡΠ°Π±Π°Π½Π°Ρ ΠΈ ΡΠΎΠ»ΠΈΠΊΠΎΠΎΠΏΠΎΡΠ°Ρ , Π½Π΅ΡΠ°Π²Π½ΠΎΠΌΠ΅ΡΠ½ΠΎΡΡΠΈ ΡΠ°ΡΠΏΡΠ΅Π΄Π΅Π»Π΅Π½ΠΈΡ Π½Π°Π³ΡΡΠ·ΠΊΠΈ ΠΌΠ΅ΠΆΠ΄Ρ ΠΎΡΠ΄Π΅Π»ΡΠ½ΡΠΌΠΈ ΠΏΡΠΎΠΊΠ»Π°Π΄ΠΊΠ°ΠΌΠΈ, Π²Π»ΠΈΡΠ½ΠΈΠ΅ ΡΡΡΠ°Π»ΠΎΡΡΠΈ ΠΎΡ ΠΏΠ΅ΡΠ΅Π³ΠΈΠ±ΠΎΠ² ΠΈ ΠΎΡΠ»Π°Π±Π»Π΅Π½ΠΈΡ ΠΊΠΎΠ½ΡΠΎΠ² Π»Π΅Π½ΡΡ Π² ΠΌΠ΅ΡΡΠ΅ ΡΠΎΠ΅Π΄ΠΈΠ½Π΅Π½ΠΈΡ ΡΡΠΈΡΡΠ²Π°ΡΡ ΠΏΡΡΠ΅ΠΌ Π²Π²Π΅Π΄Π΅Π½ΠΈΡ ΠΏΠΎΠ²ΡΡΠ΅Π½Π½ΡΡ Π·Π°ΠΏΠ°ΡΠΎΠ² ΠΏΡΠΎΡΠ½ΠΎΡΡΠΈ.
ΠΡΡΠΎΠΊΠΈΠ΅ Π·Π°ΠΏΠ°ΡΡ ΠΏΡΠΎΡΠ½ΠΎΡΡΠΈ, ΠΏΡΠΈΠΌΠ΅Π½ΡΠ΅ΠΌΡΠ΅ ΠΏΡΠΈ ΡΠ°ΡΡΠ΅ΡΠ΅ ΡΠ΅ΠΊΡΡΠΈΠ»ΡΠ½ΠΎΠΉ ΠΊΠΎΠ½Π²Π΅ΠΉΠ΅ΡΠ½ΠΎΠΉ Π»Π΅Π½ΡΡ, ΠΎΠ±ΡΡΡΠ½ΡΡΡΡΡ Π½Π΅ΠΎΠ±Ρ
ΠΎΠ΄ΠΈΠΌΠΎΡΡΡΡ ΡΡΠ΅ΡΠ° ΠΎΡΠ»Π°Π±Π»Π΅Π½ΠΈΡ Π»Π΅Π½ΡΡ Π² ΠΌΠ΅ΡΡΠ΅ ΡΠΎΠ΅Π΄ΠΈΠ½Π΅Π½ΠΈΡ Π΅Π΅ ΠΊΠΎΠ½ΡΠΎΠ² ΠΈ Π½Π°Π»ΠΈΡΠΈΠ΅ΠΌ Π΄ΠΈΠ½Π°ΠΌΠΈΡΠ΅ΡΠΊΠΈΡ
Π½Π°Π³ΡΡΠ·ΠΎΠΊ, ΠΈΡΠΏΡΡΡΠ²Π°Π΅ΠΌΡΡ
Π»Π΅Π½ΡΠΎΠΉ Π² ΠΏΡΠΎΡΠ΅ΡΡΠ΅ ΡΠΊΡΠΏΠ»ΡΠ°ΡΠ°ΡΠΈΠΈ* Π’Π°ΠΊΠΈΠ΅ Π΄ΠΈΠ½Π°ΠΌΠΈΡΠ΅ΡΠΊΠΈΠ΅ Π½Π°Π³ΡΡΠ·ΠΊΠΈ Π²ΠΎΠ·Π½ΠΈΠΊΠ°ΡΡ Π² ΠΌΠ΅ΡΡΠ°Ρ
Π·Π°Π³ΡΡΠ·ΠΊΠΈ ΠΊΠΎΠ½Π²Π΅ΠΉΠ΅ΡΠΎΠ² ΠΈ ΠΏΡΠ½ΠΊΡΠ°Ρ
ΠΏΠ΅ΡΠ΅Π΄Π°ΡΠΈ ΠΌΠ°ΡΠ΅ΡΠΈΠ°Π»Π° ΠΌΠ΅ΠΆΠ΄Ρ ΡΠΎΠΏΡΡΠΆΠ΅Π½Π½ΡΠΌΠΈ ΠΊΠΎΠ½Π²Π΅ΠΉΠ΅ΡΠ°ΠΌΠΈ ΠΏΠΎΠ΄ Π΄Π΅ΠΉΡΡΠ²ΠΈΠ΅ΠΌ ΡΠ΄Π°ΡΠΎΠ² ΠΊΡΡΠΊΠΎΠ² ΠΌΠ°ΡΠ΅ΡΠΈΠ°Π»Π°, ΠΏΠ°Π΄Π°ΡΡΠΈΡ
Ρ Π½Π΅ΠΊΠΎΡΠΎΡΠΎΠΉ Π²ΡΡΠΎΡΡ.
ΠΠ΅Π»ΠΈΡΠΈΠ½Π° ΡΡΠΈΡ
ΡΠ΄Π°ΡΠ½ΡΡ
Π½Π°Π³ΡΡΠ·ΠΎΠΊ Π·Π°Π²ΠΈΡΠΈΡ ΠΎΡ Π²ΠΈΠ΄Π° ΡΡΠ°Π½ΡΠΏΠΎΡΡΠΈΡΡΠ΅ΠΌΠΎΠ³ΠΎ ΠΌΠ°ΡΠ΅ΡΠΈΠ°Π»Π°, ΡΠ°Π·ΠΌΠ΅ΡΠ° ΠΊΡΡΠΊΠΎΠ², Π²ΡΡΠΎΡΡ ΠΏΠ°Π΄Π΅Π½ΠΈΡ, ΡΠΊΠΎΡΠΎΡΡΠΈ ΡΡΠ°Π½ΡΠΏΠΎΡΡΠ°-
ΠΠ»Ρ ΠΏΠΎΠ²ΡΡΠ΅Π½ΠΈΡ ΠΏΡΠΎΡΠ½ΠΎΡΡΠΈ ΠΊΠΎΠ½Π²Π΅ΠΉΠ΅ΡΠ½ΡΡ Π»Π΅Π½Ρ ΡΠΈΡΠΎΠΊΠΎΠ΅ ΠΏΡΠΈΠΌΠ΅Π½Π΅Π½ΠΈΠ΅ Π½Π°Ρ ΠΎΠ΄ΠΈΡ ΠΈΡΠΊΡΡΡΡΠ²Π΅Π½Π½Π°Ρ ΡΠΊΠ°Π½Ρ ΠΈΠ· ΠΏΠ΅ΡΠ»ΠΎΠ½ΠΎΠ²ΡΡ , Π½Π΅ΠΉΠ»ΠΎΠ½ΠΎΠ²ΡΡ ΠΈ ΡΡΠΏΠ΅ΡΠ½Π΅ΠΉΠ»ΠΎΠ½ΠΎΠ²ΡΡ Π½ΠΈΡΠ΅ΠΉ, ΠΈΠ· ΠΊΠΎΡΠΎΡΡΡ ΠΈΠ·Π³ΠΎΡΠΎΠ²Π»ΡΡΡ Π²ΡΡΠΎΠΊΠΎΠΏΡΠΎΡΠ½ΡΠ΅ ΠΏΡΠΎΠΊΠ»Π°Π΄ΠΊΠΈ.
ΠΠ΅Π½ΡΠ° Ρ Π½Π΅ΠΉΠ»ΠΎΠ½ΠΎΠ²ΡΠΌΠΈ ΠΏΡΠΎΠΊΠ»Π°Π΄ΠΊΠ°ΠΌΠΈ ΠΎΠ±Π»Π°Π΄Π°Π΅Ρ Π²ΡΡΠΎΠΊΠΎΠΉ Π³ΠΈΠ±ΠΊΠΎΡΡΡΡ ΠΈ, ΡΠ»Π΅Π΄ΠΎΠ²Π°ΡΠ΅Π»ΡΠ½ΠΎ, ΠΎΠ½Π° ΠΌΠΎΠΆΠ΅Ρ ΡΠ°Π±ΠΎΡΠ°ΡΡ Ρ Π±Π°ΡΠ°Π±Π°Π½Π°ΠΌΠΈ ΠΌΠ°Π»ΠΎΠ³ΠΎ Π΄ΠΈΠ°ΠΌΠ΅ΡΡΠ°, ΡΡΠΎ ΠΏΠΎΠ·Π²ΠΎΠ»ΡΠ΅Ρ ΡΠΌΠ΅Π½ΡΡΠΈΡΡ Π³Π°Π±Π°ΡΠΈΡΡ ΠΈ Π²Π΅Ρ ΠΊΠΎΠ½Π²Π΅ΠΉΠ΅ΡΠ°. ΠΡΠ΅Π΄Π΅Π» ΠΏΡΠΎΡΠ½ΠΎΡΡΠΈ Π»Π΅Π½ΡΡ Ρ Π½Π΅ΠΉΠ»ΠΎΠ½ΠΎΠ²ΡΠΌΠΈ ΠΏΡΠΎΠΊΠ»Π°Π΄ΠΊΠ°ΠΌΠΈ Π΄ΠΎΡΡΠΈΠ³Π°Π΅Ρ 600 ΠΊΠ/ΡΠΌ; Ρ ΠΏΡΠΎΠΊΠ»Π°Π΄ΠΊΠ°ΠΌΠΈ ΠΈΠ· Π»Π°Π²ΡΠ°Π½Π° β 300 ΠΊΠ/ΡΠΌ. ΠΠ΅Π½ΡΠ°, ΠΈΠ·Π³ΠΎΡΠΎΠ²Π»Π΅Π½Π½Π°Ρ ΠΈΠ· ΡΠ΅ΡΠΈΠ»Π΅Π½Π°, Π² ΡΡΠΈ ΡΠ°Π·Π° ΠΏΡΠΎΡΠ½Π΅Π΅ Ρ Π»ΠΎΠΏΡΠ°ΡΠΎΠ±ΡΠΌΠ°ΠΆΠ½ΠΎΠΉ. ΠΡΠΎΡΠ½ΠΎΡΡΡ Π»Π΅Π½Ρ Ρ ΡΡΠΏΠ΅ΡΠ½Π΅ΠΉΠ»ΠΎΠ½ΠΎΠ²ΡΠΌΠΈ ΠΏΡΠΎΠΊΠ»Π°Π΄ΠΊΠ°ΠΌΠΈ ΠΏΡΠΈΠΌΠ΅ΡΠ½ΠΎ Π½Π° 30β40% Π²ΡΡΠ΅ Π½Π΅ΠΉΠ»ΠΎΠ½ΠΎΠ²ΡΡ . ΠΠΎΠ½Π²Π΅ΠΉΠ΅ΡΠ½Π°Ρ Π»Π΅Π½ΡΠ° ΠΎΡΠ΅ΡΠ΅ΡΡΠ²Π΅Π½Π½ΠΎΠ³ΠΎ ΠΏΡΠΎΠΈΠ·Π²ΠΎΠ΄ΡΡΠ²Π° ΠΈΠ· Π°Π½ΠΈΠ΄Π½ΠΎΠ³ΠΎ Π²ΠΎΠ»ΠΎΠΊΠ½Π° ΠΏΡΠΈΠΌΠ΅ΡΠ½ΠΎ Π² ΡΡΠΈ ΡΠ°Π·Π° ΠΏΡΠΎΡΠ½Π΅Π΅ Π»Π΅Π½ΡΡ ΠΈΠ· Ρ Π»ΠΎΠΏΡΠ°ΡΠΎΠ±ΡΠΌΠ°ΠΆΠ½ΠΎΠΉ ΡΠΊΠ°Π½ΠΈ ΠΏΠΎΠ²ΡΡΠ΅Π½Π½ΠΎΠΉ ΠΏΡΠΎΡΠ½ΠΎΡΡΠΈ.
ΠΠ΅Π΄ΠΎΡΡΠ°ΡΠΊΠΎΠΌ ΠΏΠΎΠ»ΠΈΠ°ΠΌΠΈΠ΄Π½ΠΎΠ³ΠΎ Π²ΠΎΠ»ΠΎΠΊΠ½Π° (Π°Π½ΠΈΠ΄Π°, ΠΏΠ΅ΡΠ»ΠΎΠ½Π°, Π½Π΅ΠΉΠ»ΠΎΠ½Π°) ΡΠ²Π»ΡΠ΅ΡΡΡ Π΅Π³ΠΎ Π±ΠΎΠ»ΡΡΠΎΠ΅ ΡΠΏΡΡΠ³ΠΎΠ΅ ΡΠ΄Π»ΠΈΠ½Π΅Π½ΠΈΠ΅, ΡΡΠΎ ΠΏΡΠΈΠ²ΠΎΠ΄ΠΈΡ ΠΊ ΡΡΠ»ΠΎΠΆΠ½Π΅Π½ΠΈΡ ΠΊΠΎΠ½ΡΡΡΡΠΊΡΠΈΠΈ Π½Π°ΡΡΠΆΠ½ΡΡ
ΡΡΠ°Π½ΡΠΈΠΉ.
ΠΡΠΈΠΌΠ΅Π½Π΅Π½ΠΈΠ΅ ΠΏΡΠ΅Π΄Π²Π°ΡΠΈΡΠ΅Π»ΡΠ½ΠΎΠΉ Π²ΡΡΡΠΆΠΊΠΈ Π½ΠΈΡΠ΅ΠΉ ΠΈ ΡΠΎΠ·Π΄Π°Π½ΠΈΠ΅ ΡΠΏΠ΅ΡΠΈΠ°Π»ΡΠ½ΡΡ
ΠΌΠ°ΡΠΎΠΊ Π²ΠΎΠ»ΠΎΠΊΠ½Π° ΡΡΡΡΠ°Π½ΡΠ΅Ρ ΡΡΠΎΡ Π½Π΅Π΄ΠΎΡΡΠ°ΡΠΎΠΊ.
Π’Π°ΠΊ, ΠΏΠΎΠ»ΠΈΡΡΠΈΡΠ½ΠΎΠ΅ Π²ΠΎΠ»ΠΎΠΊΠ½ΠΎ Π»Π°Π²ΡΠ°Π½ (ΡΠ΅ΡΠΈΠ»Π΅Π½) Π½Π΅ ΠΈΠΌΠ΅Π΅Ρ ΡΡΠΎΠ³ΠΎ Π½Π΅Π΄ΠΎΡΡΠ°ΡΠΊΠ°, Π° ΠΏΠΎ ΠΏΡΠΎΡΠ½ΠΎΡΡΠΈ Π½Π΅ ΡΡΡΡΠΏΠ°Π΅Ρ Π»Π΅Π½ΡΠ°ΠΌ ΠΈΠ· ΠΏΠΎΠ»ΠΈΠ°ΠΌΠΈΠ΄Π½ΠΎΠ³ΠΎ Π²ΠΎΠ»ΠΎΠΊΠ½Π°: ΠΡΠΎΠΌΠ΅ ΡΠΎΠ³ΠΎ, Π»Π°Π²ΡΠ°Π½ ΡΡΡΠΎΠΉΡΠΈΠ² ΠΏΡΠΎΡΠΈΠ² Π³Π½ΠΈΠ΅Π½ΠΈΡ, Π½Π΅ ΡΠ΅ΡΡΠ΅Ρ ΠΏΡΠΎΡΠ½ΠΎΡΡΠΈ ΠΏΡΠΈ Π½Π°ΠΌΠΎΠΊΠ°Π½ΠΈΠΈ ΠΈ ΠΌΠΎΠΆΠ΅Ρ ΡΠ°Π±ΠΎΡΠ°ΡΡ ΠΏΡΠΈ ΠΏΠΎΠ²ΡΡΠ΅Π½Π½ΠΎΠΉ ΡΠ΅ΠΌΠΏΠ΅ΡΠ°ΡΡΡΠ΅. ΠΠ΅Π½ΡΡ ΠΈΠ· Π»Π°Π²ΡΠ°Π½Π° ΠΈΠΌΠ΅ΡΡ Π²ΡΡΠΎΠΊΠΎΠ΅ ΡΠΎΠΏΡΠΎΡΠΈΠ²Π»Π΅Π½ΠΈΠ΅ ΠΈΡΡΠΈΡΠ°Π½ΠΈΡ ΠΈ ΡΡΠΎΠΉΠΊΠΎΡΡΡ ΠΊ ΡΠ΄Π°ΡΠ°ΠΌ, Ρ ΠΈΠΌΠΈΡΠ΅ΡΠΊΡΡ ΡΡΡΠΎΠΉΡΠΈΠ²ΠΎΡΡΡ ΠΈ Π»Π΅Π³ΠΊΠΎ ΠΏΠΎΠ΄Π΄Π°ΡΡΡΡ ΠΎΡΠΈΡΡΠΊΠ΅, Π½Π΅ ΡΠ°ΡΡΠ»Π°ΠΈΠ²Π°ΡΡΡΡ. Π‘ΡΠΎΠΊ ΡΠ»ΡΠΆΠ±Ρ Π»Π΅Π½ΡΡ ΠΈΠ· ΠΈΡΠΊΡΡΡΡΠ²Π΅Π½Π½ΠΎΠΉ ΡΠΊΠ°Π½ΠΈ Π·Π½Π°ΡΠΈΡΠ΅Π»ΡΠ½ΠΎ (Π΄ΠΎ 50%) Π²ΡΡΠ΅ ΡΡΠΎΠΊΠ° ΡΠ»ΡΠΆΠ±Ρ ΡΠ΅ΠΊΡΡΠΈΠ»ΡΠ½ΠΎΠΉ ΠΏΡΠΎΡΠ΅Π·ΠΈΠ½Π΅Π½Π½ΠΎΠΉ ΠΊΠΎΠ½Π²Π΅ΠΉΠ΅ΡΠ½ΠΎΠΉ Π»Π΅Π½ΡΡ. ΠΠΎΡΡΠΎΠΌΡ ΡΡΠΈ Π»Π΅Π½ΡΡ Π½Π°Ρ ΠΎΠ΄ΡΡ Π²ΡΠ΅ Π±ΠΎΠ»Π΅Π΅ ΡΠΈΡΠΎΠΊΠΎΠ΅ ΠΏΡΠΈΠΌΠ΅Π½Π΅Π½ΠΈΠ΅ ΠΏΡΠΈ ΠΎΡΠΎΠ±ΠΎ ΡΡΠΆΠ΅Π»ΡΡ ΡΡΠ»ΠΎΠ²ΠΈΡΡ ΡΠ°Π±ΠΎΡΡ, Π½Π°ΠΏΡΠΈΠΌΠ΅Ρ, Π² ΡΠ³ΠΎΠ»ΡΠ½ΠΎΠΉ, Π³ΠΎΡΠ½ΠΎΠ΄ΠΎΠ±ΡΠ²Π°ΡΡΠ΅ΠΉ, Ρ ΠΈΠΌΠΈΡΠ΅ΡΠΊΠΎΠΉ ΠΈ Π΄Ρ. ΠΎΡΡΠ°ΡΠ»ΡΡ ΠΏΡΠΎΠΌΡΡΠ»Π΅Π½Π½ΠΎΡΡΠΈ.
ΠΠ΅Π½ΡΡ ΠΈΠ· ΠΈΡΠΊΡΡΡΡΠ²Π΅Π½Π½ΠΎΠ³ΠΎ ΡΠ΅Π»ΠΊΠ° ΠΈΠΌΠ΅ΡΡ ΠΌΠ°Π»ΡΡ Π²ΡΡΡΠΆΠΊΡ ΠΈ Π²ΡΡΠΎΠΊΡΡ ΠΏΡΠΎΡΠ½ΠΎΡΡΡ (Π΄ΠΎ 250 ΠΊΠ/ΡΠΌ), Π±Π»ΠΈΠ·ΠΊΡΡ ΠΊ ΠΏΡΠΎΡΠ½ΠΎΡΡΠΈ Π»Π΅Π½Ρ ΠΈΠ· ΡΠΈΠ½ΡΠ΅ΡΠΈΡΠ΅ΡΠΊΠΈΡ
Π²ΠΎΠ»ΠΎΠΊΠΎΠ½, Π½ΠΎ ΠΏΡΠΈ Π½Π°ΠΌΠΎΠΊΠ°Π½ΠΈΠΈ ΠΈΡ
ΠΏΡΠΎΡΠ½ΠΎΡΡΡ ΡΠ½ΠΈΠΆΠ°Π΅ΡΡΡ ΠΏΡΠΈΠΌΠ΅ΡΠ½ΠΎ Π² Π΄Π²Π° ΡΠ°Π·Π°.
ΠΠ»Ρ ΡΡΠ°Π½ΡΠΏΠΎΡΡΠΈΡΠΎΠ²Π°Π½ΠΈΡ ΠΈΠ·Π΄Π΅Π»ΠΈΠΉ ΡΠ΅ΡΠ΅Π· ΡΡΡΠΈΠ»ΡΠ½ΡΠ΅ ΠΈ Π½Π°Π³ΡΠ΅Π²Π°ΡΠ΅Π»ΡΠ½ΡΠ΅ ΠΊΠ°ΠΌΠ΅ΡΡ ΠΏΡΠΈ ΡΠ΅ΠΌΠΏΠ΅ΡΠ°ΡΡΡΠ΅ Π΄ΠΎ 210β250Β° Π‘ Π½Π°Ρ ΠΎΠ΄ΡΡ ΠΏΡΠΈΠΌΠ΅Π½Π΅Π½ΠΈΠ΅ Π»Π΅Π½ΡΡ, ΠΈΠ·Π³ΠΎΡΠΎΠ²Π»Π΅Π½Π½ΡΠ΅ ΠΈΠ· ΡΡΠ΅ΠΊΠ»ΠΎΠ²ΠΎΠ»ΠΎΠΊΠ½Π° Ρ ΠΏΠΎΠΊΡΡΡΠΈΠ΅ΠΌ ΠΊΡΠ΅ΠΌΠ½ΠΈΠΉΠΎΡΠ³Π°Π½ΠΈΡΠ΅ΡΠΊΠΈΠΌ ΠΊΠ°ΡΡΡΠΊΠΎΠΌ ΡΠΎΠ»ΡΠΈΠ½ΠΎΠΉ Π΄ΠΎ 6 ΠΌΠΌ, Π° ΡΠ°ΠΊΠΆΠ΅ Π»Π΅Π½ΡΠ° ΠΈΠ· ΠΏΡΠΎΡΠ΅Π·ΠΈΠ½Π΅Π½Π½ΠΎΠΉ ΡΠΊΠ°Π½ΠΈ Ρ ΠΏΠΎΠΊΡΡΡΠΈΠ΅ΠΌ ΡΡΠ΅ΠΊΠ»ΠΎΠ²ΠΎΠ»ΠΎΠΊΠ½ΠΎΠΌ.
ΠΡΠΎΠΌΠ΅ Π»Π΅Π½Ρ Ρ ΠΏΡΠΎΠΊΠ»Π°Π΄ΠΊΠ°ΠΌΠΈ ΠΈΠ· ΠΈΡΠΊΡΡΡΡΠ²Π΅Π½Π½ΡΡ Π²ΠΎΠ»ΠΎΠΊΠΎΠ½, Π½Π°Ρ ΠΎΠ΄ΡΡ ΠΏΡΠΈΠΌΠ΅Π½Π΅Π½ΠΈΠ΅ Π²ΡΡΠΎΠΊΠΎΠΏΡΠΎΡΠ½ΡΠ΅ Π»Π΅Π½ΡΡ ΡΠΎ ΡΡΠ°Π»ΡΠ½ΡΠΌΠΈ ΠΊΠ°Π½Π°ΡΠ°ΠΌΠΈ, Π·Π°Π²ΡΠ»ΠΊΠ°Π½ΠΈ-Π·ΠΈΡΠΎΠ²Π°Π½Π½ΡΠΌΠΈ ΠΌΠ΅ΠΆΠ΄Ρ ΡΠ»ΠΎΡΠΌΠΈ ΡΠΊΠ°Π½ΠΈ Π²Π΄ΠΎΠ»Ρ ΠΏΡΠΎΠ΄ΠΎΠ»ΡΠ½ΠΎΠΉ ΠΎΡΠΈ Π»Π΅Π½ΡΡ. ΠΡΠ΅Π΄Π΅Π» ΠΏΡΠΎΡΠ½ΠΎΡΡΠΈ ΡΠ°ΠΊΠΈΡ Π»Π΅Π½Ρ Π΄ΠΎΡΡΠΈΠ³Π°Π΅Ρ Π=700-Π³-4-6000 ΠΊΠ/ΡΠΌ. ΠΡΠΈ ΠΎΠ΄ΠΈΠ½Π°ΠΊΠΎΠ²ΠΎΠΉ ΡΠΎΠ»ΡΠΈΠ½Π΅ Π»Π΅Π½ΡΠ°, Π°ΡΠΌΠΈΡΠΎΠ²Π°Π½Π½Π°Ρ ΡΡΠ°Π»ΡΠ½ΡΠΌΠΈ ΠΊΠ°Π½Π°ΡΠ°ΠΌΠΈ, ΠΏΡΠΎΡΠ½Π΅Π΅ ΠΎΠ±ΡΡΠ½ΡΡ ΠΏΡΠΎΡΠ΅Π·ΠΈΠ½Π΅Π½Π½ΡΡ Π»Π΅Π½Ρ Π² 15β25 ΡΠ°Π·. ΠΡΠ΅ΠΈΠΌΡΡΠ΅ΡΡΠ²ΠΎΠΌ ΡΠ°ΠΊΠΈΡ Π»Π΅Π½Ρ ΡΠ²Π»ΡΠ΅ΡΡΡ ΠΈΡ ΡΠΏΠΎΡΠΎΠ±Π½ΠΎΡΡΡ Ρ ΠΎΡΠΎΡΠΎ ΠΎΠ±ΡΠ°Π·ΠΎΠ²ΡΠ²Π°ΡΡ ΠΆΠ΅Π»ΠΎΠ±ΡΠ°ΡΡΡ ΡΠΎΡΠΌΡ.
ΠΠ°Ρ
ΠΎΠ΄ΡΡ ΠΏΡΠΈΠΌΠ΅Π½Π΅Π½ΠΈΠ΅ ΡΠ°ΠΊΠΆΠ΅ Π»Π΅Π½ΡΡ Ρ ΠΌΠ΅ΡΡΠ½ΡΠΌ Π°ΡΠΌΠΈΡΠΎΠ²Π°Π½ΠΈΠ΅ΠΌ ΠΎΠ΄Π½ΠΈΠΌ ΠΈΠ»ΠΈ Π½Π΅ΡΠΊΠΎΠ»ΡΠΊΠΈΠΌΠΈ ΠΊΠ°Π½Π°ΡΠ°ΠΌΠΈ. Π ΡΡΠΈΡ
Π»Π΅Π½ΡΠ°Ρ
ΠΎΡΠ½ΠΎΠ²Π½ΡΠΌ ΡΡΠ³ΠΎΠ²ΡΠΌ ΡΠ»Π΅ΠΌΠ΅Π½ΡΠΎΠΌ ΡΠ²Π»ΡΡΡΡΡ ΠΊΠ°Π½Π°ΡΡ, Π° ΡΠ°ΠΌΠ° Π»Π΅Π½ΡΠ° Π²ΡΠΏΠΎΠ»Π½ΡΠ΅Ρ ΡΡΠ½ΠΊΡΠΈΠΈ Π»ΠΈΡΡ Π½Π΅ΡΡΡΠ΅Π³ΠΎ ΡΠ»Π΅ΠΌΠ΅Π½ΡΠ°, ΡΡΠΎ ΠΏΠΎΠ·Π²ΠΎΠ»ΡΠ΅Ρ ΠΏΡΠΈΠΌΠ΅Π½ΡΡΡ Π±ΠΎΠ»Π΅Π΅ ΡΠΎΠ½ΠΊΠΈΠ΅ Π»Π΅Π½ΡΡ Ρ ΠΌΠ΅Π½ΡΡΠΈΠΌ ΡΠΈΡΠ»ΠΎΠΌ ΠΏΡΠΎΠΊΠ»Π°Π΄ΠΎΠΊ.
ΠΠ΅Π΄ΠΎΡΡΠ°ΡΠΊΠΎΠΌ ΡΠ°ΠΊΠΈΡ
Π»Π΅Π½Ρ ΡΠ²Π»ΡΠ΅ΡΡΡ ΡΠ°Π·Π»ΠΈΡΠ½ΠΎΠ΅ ΡΠ΄Π»ΠΈΠ½Π΅Π½ΠΈΠ΅ Π² ΠΏΡΠΎΡΠ΅ΡΡΠ΅ ΡΠ°Π±ΠΎΡΡ Π»Π΅Π½ΡΡ ΠΈ ΠΊΠ°Π½Π°ΡΠΎΠ² Π²ΡΠ»Π΅Π΄ΡΡΠ²ΠΈΠ΅ ΠΎΠ³ΠΈΠ±Π°Π½ΠΈΡ Π±Π°ΡΠ°Π±Π°Π½ΠΎΠ² ΠΏΠΎ ΡΠ°Π·Π»ΠΈΡΠ½ΡΠΌ ΡΠ°Π΄ΠΈΡΡΠ°ΠΌ.
Π ΠΈΡ. 5. ΠΠ°Π½Π°ΡΠ½ΠΎ-Π»Π΅Π½ΡΠΎΡΠ½ΡΠΉ ΠΊΠΎΠ½Π²Π΅ΠΉΠ΅Ρ:
Π° β Π»Π΅Π½ΡΠ°; Π± β ΠΏΠΎΠΏΠ΅ΡΠ΅ΡΠ½ΠΎΠ΅ ΡΠ΅ΡΠ΅Π½ΠΈΠ΅; 1 β ΡΡΠ°Π»ΡΠ½ΡΠ΅ ΠΊΠ°Π½Π°ΡΡ; 2 β ΠΏΡΠΎΡΠ΅Π·ΠΈΠ½Π΅Π½Π½Π°Ρ Π»Π΅Π½ΡΠ°; S β ΡΡΠ°Π»ΡΠ½ΡΠ΅ ΡΡΠ΅ΡΠΆΠ½ΠΈ; 4 β ΡΠΎΠ»ΠΈΠΊΠΈ
Π ΠΈΡ. 6. ΠΠΎΠ½Π²Π΅ΠΉΠ΅ΡΠ½Π°Ρ ΡΠ΅ΠΊΡΡΠΈΠ»ΡΠ½Π°Ρ Π»Π΅Π½ΡΠ° Ρ ΠΌΠ΅ΡΡΠ½ΡΠΌ ΡΡΠΈΠ»Π΅Π½ΠΈΠ΅ΠΌ ΡΡΠ°Π»ΡΠ½ΡΠΌΠΈ ΠΊΠ°Π½Π°ΡΠ°ΠΌΠΈ
ΠΠ»Ρ ΡΡΠ°Π½ΡΠΏΠΎΡΡΠΈΡΠΎΠ²Π°Π½ΠΈΡ Π½Π° Π±ΠΎΠ»ΡΡΠΈΠ΅ ΡΠ°ΡΡΡΠΎΡΠ½ΠΈΡ Π½Π°Ρ
ΠΎΠ΄ΡΡ ΠΏΡΠΈΠΌΠ΅Π½Π΅Π½ΠΈΠ΅ ΠΊΠ°Π½Π°ΡΠ½ΠΎ-Π»Π΅Π½ΡΠΎΡΠ½ΡΠ΅ ΠΊΠΎΠ½Π²Π΅ΠΉΠ΅ΡΡ , Π² ΠΊΠΎΡΠΎΡΡΡ
ΡΡΠ³ΠΎΠ²ΠΎΠ΅ ΡΡΠΈΠ»ΠΈΠ΅ Π²ΠΎΡΠΏΡΠΈΠ½ΠΈΠΌΠ°Π΅ΡΡΡ Π΄Π²ΡΠΌΡ ΡΡΠ°Π»ΡΠ½ΡΠΌΠΈ ΠΊΠ°Π½Π°ΡΠ°ΠΌΠΈ, Π° ΠΏΡΠΎΡΠ΅Π·ΠΈΠ½Π΅Π½Π½Π°Ρ Π»Π΅Π½ΡΠ° ΡΠ²Π»ΡΠ΅ΡΡΡ ΡΠΎΠ»ΡΠΊΠΎ Π½Π΅ΡΡΡΠΈΠΌ ΠΎΡΠ³Π°Π½ΠΎΠΌ, ΡΡΠ°Π½ΡΠΏΠΎΡΡΠΈΡΡΡΡΠΈΠΌ ΠΌΠ°ΡΠ΅ΡΠΈΠ°Π». ΠΠ΅Π½ΡΠ° Π»ΠΎΠΆΠΈΡΡΡ Π½Π° ΠΊΠ°Π½Π°ΡΡ ΡΡΠΎΠ»ΡΠ΅Π½ΠΈΡΠΌΠΈ, ΠΎΡΡΠΎΡΠΌΠΎΠ²Π°Π½Π½ΡΠΌΠΈ Π²Π΄ΠΎΠ»Ρ ΠΎΠ±ΠΎΠΈΡ
ΠΊΡΠΎΠΌΠΎΠΊ Π»Π΅Π½ΡΡ. ΠΠ»Ρ ΠΏΠΎΠ΄Π΄Π΅ΡΠΆΠΊΠΈ ΡΠ°ΠΊΠΎΠΉ Π»Π΅Π½ΡΡ Π½Π΅ ΡΡΠ΅Π±ΡΠ΅ΡΡΡ ΠΆΠ΅Π»ΠΎΠ±ΡΠ°ΡΡΡ
ΡΠΎΠ»ΠΈΠΊΠΎΠΎΠΏΠΎΡ. Π’ΡΠ³ΠΎΠ²ΡΠΉ ΠΊΠ°Π½Π°Ρ ΠΎΠΏΠΈΡΠ°Π΅ΡΡΡ Π½Π° ΡΠΎΠ»ΠΈΠΊΠΈ, ΡΠ°ΡΠΏΠΎΠ»ΠΎΠΆΠ΅Π½Π½ΡΠ΅ Ρ ΡΠ°Π³ΠΎΠΌ 5β8 ΠΌ. Π§ΡΠΎΠ±Ρ Π»Π΅Π½ΡΠ° Π½Π΅ ΡΠ΅ΡΡΠ»Π° ΠΏΠΎΠΏΠ΅ΡΠ΅ΡΠ½ΠΎΠΉ ΡΡΡΠΎΠΉΡΠΈΠ²ΠΎΡΡΠΈ ΠΏΠΎΠ΄ Π²Π»ΠΈΡΠ½ΠΈΠ΅ΠΌ Π²Π΅ΡΠ° Π³ΡΡΠ·Π°, ΠΎΠ½Π° ΡΠ½Π°Π±ΠΆΠ°Π΅ΡΡΡ Π°ΡΠΌΠΈΡΡΡΡΠΈΠΌΠΈ ΠΏΠΎΠΏΠ΅ΡΠ΅ΡΠ½ΡΠΌΠΈ ΡΡΠ°Π»ΡΠ½ΡΠΌΠΈ ΡΡΠ΅ΡΠΆΠ½ΡΠΌΠΈ. ΠΡΠ»Π΅Π΄ΡΡΠ²ΠΈΠ΅ ΡΡΠΎΠ³ΠΎ Π»Π΅Π½ΡΠ° Ρ
ΠΎΡΠΎΡΠΎ ΠΏΡΡΠΆΠΈΠ½ΠΈΡ ΠΈ ΡΠΎΠΏΡΠΎΡΠΈΠ²Π»ΡΠ΅ΡΡΡ ΡΠ΄Π°ΡΠ°ΠΌ.
ΠΠ·Π½ΠΎΡ ΡΠ°ΠΊΠΎΠΉ Π»Π΅Π½ΡΡ Π·Π½Π°ΡΠΈΡΠ΅Π»ΡΠ½ΠΎ ΠΌΠ΅Π½ΡΡΠ΅ ΠΈΠ·Π½ΠΎΡΠ° ΠΎΠ±ΡΡΠ½ΠΎΠΉ ΠΏΡΠΎΡΠ΅Π·ΠΈΠ½Π΅Π½Π½ΠΎΠΉ Π»Π΅Π½ΡΡ β ΡΡΡΡΠ°Π½ΡΠ΅ΡΡΡ ΠΈΠ·Π½ΠΎΡ ΠΊΡΠΎΠΌΠΎΠΊ ΠΈ ΡΠ²Π΅Π»ΠΈΡΠΈΠ²Π°Π΅ΡΡΡ ΡΡΠΎΠΊ ΡΠ»ΡΠΆΠ±Ρ Π»Π΅Π½ΡΡ Π² ΡΠ΅Π»ΠΎΠΌ.
ΠΠ»Ρ ΡΠ²Π΅Π»ΠΈΡΠ΅Π½ΠΈΡ ΠΏΡΠΎΠΈΠ·Π²ΠΎΠ΄ΠΈΡΠ΅Π»ΡΠ½ΠΎΡΡΠΈ ΠΊΠΎΠ½Π²Π΅ΠΉΠ΅ΡΠΎΠ² ΠΏΡΠΈΠΌΠ΅Π½ΡΡΡ ΡΠ΅ΠΊΡΡΠΈΠ»ΡΠ½ΡΡ Π»Π΅Π½ΡΡ, ΡΠ½Π°Π±ΠΆΠ΅Π½Π½ΡΡ ΡΠ΅Π·ΠΈΠ½ΠΎΠ²ΡΠΌΠΈ Π±ΠΎΡΡΠ°ΠΌΠΈ Π²ΡΡΠΎΡΠΎΠΉ 50β80 ΠΌΠΌ, ΠΈΠ΄ΡΡΠΈΠΌΠΈ Π²Π΄ΠΎΠ»Ρ Π²ΡΠ΅ΠΉ Π»Π΅Π½ΡΡ. ΠΠ»Ρ ΡΠΎΠ³ΠΎ ΡΡΠΎΠ±Ρ Π±ΠΎΡΡΠ° ΠΏΡΠΈ ΠΎΠ³ΠΈΠ±Π°Π½ΠΈΠΈ Π±Π°ΡΠ°Π±Π°Π½ΠΎΠ² Π½Π΅ ΡΠ²Π°Π»ΠΈΡΡ, ΠΈΡ Π²ΡΠΏΠΎΠ»Π½ΡΡΡ Π²ΠΎΠ»Π½ΠΈΡΡΡΠΌΠΈ (Π³ΠΎΡΡΠΈΡΠΎΠ²Π°Π½Π½ΡΠΌΠΈ). ΠΠ°Π»ΠΈΡΠΈΠ΅ Π±ΠΎΡΡΠΎΠ² ΡΠΎΠ·Π΄Π°Π΅Ρ ΡΠ²Π΅Π»ΠΈΡΠ΅Π½Π½ΠΎΠ΅ ΡΠ΅ΡΠ΅Π½ΠΈΠ΅ ΠΌΠ°ΡΠ΅ΡΠΈΠ°Π»Π°, ΡΠ°ΡΠΏΠΎΠ»Π°Π³Π°Π΅ΠΌΠΎΠ³ΠΎ Π½Π° Π»Π΅Π½ΡΠ΅, ΠΈ ΠΏΠΎΠ·Π²ΠΎΠ»ΡΠ΅Ρ ΡΠ²Π΅Π»ΠΈΡΠΈΡΡ ΡΠΊΠΎΡΠΎΡΡΡ ΡΡΠ°Π½ΡΠΏΠΎΡΡΠΈΡΠΎΠ²Π°Π½ΠΈΡ ΠΈ ΡΠ³ΠΎΠ» Π½Π°ΠΊΠ»ΠΎΠ½Π° ΠΊΠΎΠ½Π²Π΅ΠΉΠ΅ΡΠ°. ΠΠΎΠΏΡΡΠΊΠ°Π΅ΠΌΡΠΉ ΡΠ³ΠΎΠ» Π½Π°ΠΊΠ»ΠΎΠ½Π° ΠΊΠΎΠ½Π²Π΅ΠΉΠ΅ΡΠ° Π² ΡΡΠΎΠΌ ΡΠ»ΡΡΠ°Π΅ Π±Π»Π°Π³ΠΎΠ΄Π°ΡΡ Π±ΠΎΠΊΠΎΠ²ΠΎΠΌΡ ΡΠΆΠ°ΡΠΈΡ ΠΌΠ°ΡΠ΅ΡΠΈΠ°Π»Π° ΠΏΡΠΈΠΌΠ΅ΡΠ½ΠΎ Π½Π° 10% Π±ΠΎΠ»ΡΡΠ΅, ΡΠ΅ΠΌ Ρ ΠΊΠΎΠ½Π²Π΅ΠΉΠ΅ΡΠ° Ρ ΠΎΠ±ΡΡΠ½ΠΎΠΉ ΠΆΠ΅Π»ΠΎΠ±ΡΠ°ΡΠΎΠΉ Π»Π΅Π½ΡΠΎΠΉ.
Π ΠΈΡ. 7. Π€ΠΎΡΠΌΡ Π²ΡΡΡΡΠΏΠΎΠ² Π½Π° ΡΠ°Π±ΠΎΡΠ΅ΠΉ ΠΏΠΎΠ²Π΅ΡΡ Π½ΠΎΡΡΠΈ Π»Π΅Π½ΡΡ
ΠΠ»Ρ ΡΠ²Π΅Π»ΠΈΡΠ΅Π½ΠΈΡ ΡΠ³Π»Π° Π½Π°ΠΊΠ»ΠΎΠ½Π° ΠΊΠΎΠ½Π²Π΅ΠΉΠ΅ΡΠ° ΠΏΡΠΈΠΌΠ΅Π½ΡΠ΅ΡΡΡ ΡΠ°ΠΊΠΆΠ΅ Π»Π΅Π½ΡΠ°, ΠΈΠΌΠ΅ΡΡΠ°Ρ Π½Π° ΡΠ°Π±ΠΎΡΠ΅ΠΉ ΠΏΠΎΠ²Π΅ΡΡ Π½ΠΎΡΡΠΈ Π²ΡΡΡΡΠΏΡ, ΠΏΡΠ΅ΠΏΡΡΡΡΠ²ΡΡΡΠΈΠ΅ ΡΠΏΠΎΠ΄-Π·Π°Π½ΠΈΡ ΠΌΠ°ΡΠ΅ΡΠΈΠ°Π»Π°, ΠΈΠ»ΠΈ Π»Π΅Π½ΡΠ° Ρ ΠΏΠΎΠΏΠ΅ΡΠ΅ΡΠ½ΡΠΌΠΈ Π½Π°ΠΊΠ»Π°Π΄ΠΊΠ°ΠΌΠΈ ΠΈΠ· ΠΏΠ»ΠΎΡΠ½ΠΎΠΉ ΡΠ΅Π·ΠΈΠ½Ρ.
ΠΡΡΡΡΠΏΡ Π½Π° ΡΠ°Π±ΠΎΡΠ΅ΠΉ ΡΡΠΎΡΠΎΠ½Π΅ ΠΊΠΎΠ½Π²Π΅ΠΉΠ΅ΡΠ½ΠΎΠΉ Π»Π΅Π½ΡΡ ΠΌΠΎΠ³ΡΡ ΠΈΠΌΠ΅ΡΡ ΡΠ°Π·Π»ΠΈΡΠ½ΡΡ ΡΠΎΡΠΌΡ.
Π’Π°ΠΊ, Π½Π° ΡΠΈΡ. 7, Π° ΠΏΠΎΠΊΠ°Π·Π°Π½Ρ Π²ΡΡΡΡΠΏΡ ΡΠ΅Π²ΡΠΎΠ½Π½ΠΎΠΉ ΡΠΎΡΠΌΡ ΠΏΠ΅ΡΠ΅ΠΌΠ΅Π½Π½ΠΎΠ³ΠΎ ΡΠ΅ΡΠ΅Π½ΠΈΡ. Π’Π°ΠΊΠΈΠ΅ Π»Π΅Π½ΡΡ ΠΏΡΠΈΠΌΠ΅Π½ΡΡΡΡΡ ΡΠΎΠ»ΡΠΊΠΎ ΠΏΡΠΈ ΡΠ°Π±ΠΎΡΠ΅ Ρ ΡΠΈΠ»ΠΈΠ½Π΄ΡΠΈΡΠ΅ΡΠΊΠΈΠΌΠΈ ΡΠΎΠ»ΠΈΠΊΠΎΠΎΠΏΠΎΡΠ°ΠΌΠΈ. ΠΡΠΈΠΌΠ΅Π½ΡΡΡ ΠΈΡ
Π½Π° ΠΌΠ½ΠΎΠ³ΠΎΡΠΎΠ»ΠΈΠΊΠΎΠ²ΡΡ
ΠΎΠΏΠΎΡΠ°Ρ
Π½Π΅Π»ΡΠ·Ρ, ΡΠ°ΠΊ ΠΊΠ°ΠΊ ΡΠΏΠ»ΠΎΡΠ½ΠΎΠΉ Π²ΡΡΡΡΠΏ Π½Π΅ Π΄Π°Π΅Ρ Π²ΠΎΠ·ΠΌΠΎΠΆΠ½ΠΎΡΡΠΈ Π»Π΅Π½ΡΠ΅ ΠΏΡΠΈΠ½ΡΡΡ ΠΆΠ΅Π»ΠΎΠ±ΡΠ°ΡΡΡ ΡΠΎΡΠΌΡ. ΠΡΠΈ Π²ΡΡΡΡΠΏΠ°Ρ
Ρ ΠΏΡΠΎΡΠ²Π΅ΡΠ°ΠΌΠΈ ΠΎΠ±ΡΠ°Π·ΠΎΠ²Π°Π½ΠΈΠ΅ ΠΆΠ΅Π»ΠΎΠ±ΡΠ°ΡΠΎΠΉ ΡΠΎΡΠΌΡ ΡΡΠ°Π½ΠΎΠ²ΠΈΡΡΡ Π²ΠΎΠ·ΠΌΠΎΠΆΠ½ΡΠΌ.
ΠΠ»Ρ Π½ΠΎΡΠΌΠ°Π»ΡΠ½ΠΎΠ³ΠΎ ΠΏΡΠΎΡ ΠΎΠΆΠ΄Π΅Π½ΠΈΡ Ρ ΠΎΠ»ΠΎΡΡΠΎΠΉ Π²Π΅ΡΠ²ΠΈ Π»Π΅Π½ΡΡ Π² ΡΡΠ΄Π΅ ΠΊΠΎΠ½ΡΡΡΡΠΊΡΠΈΠΉ ΠΏΡΠ΅Π΄ΡΡΠΌΠ°ΡΡΠΈΠ²Π°Π΅ΡΡΡ ΡΠ°ΡΠΏΠΎΠ»ΠΎΠΆΠ΅Π½ΠΈΠ΅ Π½Π° Π»Π΅Π½ΡΠ΅ ΠΎΠ΄Π½ΠΎΠ³ΠΎ ΠΈΠ»ΠΈ Π½Π΅ΡΠΊΠΎΠ»ΡΠΊΠΈΡ ΠΏΡΠΎΠ΄ΠΎΠ»ΡΠ½ΡΡ Π²ΡΡΡΡΠΏΠΎΠ², ΠΊΠΎΡΠΎΡΡΠΌΠΈ Π»Π΅Π½ΡΠ° ΠΎΠΏΠΈΡΠ°Π΅ΡΡΡ Π½Π° ΡΠΎΠ»ΠΈΠΊΠΈ Ρ ΠΎΠ»ΠΎΡΡΠΎΠΉ Π²Π΅ΡΠ²ΠΈ ΡΡΠ°Π½ΡΠΏΠΎΡΡΠ΅ΡΠ°. ΠΠ»Ρ ΠΎΡΠΎΠ±ΠΎ ΠΊΡΡΡΡΡ ΠΏΠΎΠ΄ΡΠ΅ΠΌΠΎΠ² Π»Π΅Π½ΡΡ ΡΠ½Π°Π±ΠΆΠ°ΡΡΡΡ ΡΠΈΡΠΎΠΊΠΈΠΌΠΈ Π»ΠΎΠΏΠ°ΡΡΡΠΌΠΈ, ΠΎΠ±ΡΠ°Π·ΡΡΡΠΈΠΌΠΈ ΠΏΠ΅ΡΠ΅ΠΊΡΡΡΠΈΠ΅ ΠΆΠ΅Π»ΠΎΠ±Π° Π½Π° ΡΠ°Π±ΠΎΡΠ΅ΠΉ Π²Π΅ΡΠ²ΠΈ ΠΈ Π΄Π°ΡΡΠΈΠΌΠΈ Π²ΠΎΠ·ΠΌΠΎΠΆΠ½ΠΎΡΡΡ ΠΎΠΏΠΎΡΡ Ρ ΠΎΠ»ΠΎΡΡΠΎΠΉ Π²Π΅ΡΠ²ΠΈ ΠΏΠΎ Π½Π°ΠΏΡΠ°Π²Π»ΡΡΡΠΈΠΌ. ΠΠ΅Π΄ΠΎΡΡΠ°ΡΠΊΠΎΠΌ ΡΠ°ΠΊΠΈΡ Π»Π΅Π½Ρ ΡΠ²Π»ΡΠ΅ΡΡΡ ΡΠ»ΠΎΠΆΠ½ΠΎΡΡΡ ΠΈΡ ΠΎΡΠΈΡΡΠΊΠΈ, ΠΈ ΠΏΠΎΡΡΠΎΠΌΡ ΠΎΠ½ΠΈ ΠΌΠ°Π»ΠΎ ΠΏΡΠΈΠΌΠ΅Π½ΠΈΠΌΡ Π΄Π»Ρ ΡΡΠ°Π½ΡΠΏΠΎΡΡΠΈΡΠΎΠ²Π°Π½ΠΈΡ Π²Π»Π°ΠΆΠ½ΡΡ ΠΈ Π»ΠΈΠΏΠΊΠΈΡ Π³ΡΡΠ·ΠΎΠ².
ΠΠ»Ρ ΡΡΠ°Π½ΡΠΏΠΎΡΡΠΈΡΠΎΠ²Π°Π½ΠΈΡ ΡΠ΄ΠΎΠ²ΠΈΡΡΡ
, ΠΏΡΠ»ΡΡΠΈΡ
ΠΈΠ»ΠΈ ΡΡΠ²ΡΡΠ²ΠΈΡΠ΅Π»ΡΠ½ΡΡ
ΠΊ Π²ΠΎΠ·Π΄Π΅ΠΉΡΡΠ²ΠΈΡ Π°ΡΠΌΠΎΡΡΠ΅ΡΡ ΠΌΠ°ΡΠ΅ΡΠΈΠ°Π»ΠΎΠ² Π½Π°Ρ
ΠΎΠ΄ΠΈΡ ΠΏΡΠΈΠΌΠ΅Π½Π΅Π½ΠΈΠ΅ ΡΡΡΠ±ΡΠ°ΡΠ°Ρ Π»Π΅Π½ΡΠ°, ΠΊΠΎΡΠΎΡΠ°Ρ Π² ΡΠ°Π·Π²Π΅ΡΠ½ΡΡΠΎΠΌ Π²ΠΈΠ΄Π΅ ΠΏΡΠ΅Π΄ΡΡΠ°Π²Π»ΡΠ΅Ρ ΡΠΎΠ±ΠΎΠΉ ΠΏΠΎΠ»ΠΎΡΡ, ΡΠΎΡΡΠΎΡΡΡΡ ΠΈΠ· ΡΡΠ΅Π΄Π½Π΅ΠΉ ΡΡΠΎΠ»ΡΠ΅Π½Π½ΠΎΠΉ ΡΠ°ΡΡΠΈ, ΡΠ½Π°Π±ΠΆΠ΅Π½Π½ΠΎΠΉ Π½Π΅ΡΠΊΠΎΠ»ΡΠΊΠΈΠΌΠΈ ΡΠΊΠ°Π½Π΅Π²ΡΠΌΠΈ ΠΏΡΠΎΠΊΠ»Π°Π΄ΠΊΠ°ΠΌΠΈ, ΠΈ Π±ΠΎΠΊΠΎΠ²ΡΡ
ΡΠ°ΡΡΠ΅ΠΉ Π±ΠΎΠ»Π΅Π΅ Π³ΠΈΠ±ΠΊΠΈΡ
Ρ Π·ΡΠ±ΡΠ°ΠΌΠΈ, ΡΠ°ΡΠΏΠΎΠ»ΠΎΠΆΠ΅Π½Π½ΡΠΌΠΈ Π½Π° ΠΊΡΠΎΠΌΠΊΠ°Ρ
.
ΠΡΠ±ΡΡ ΠΏΡΠΈ ΡΠ²Π΅ΡΡΡΠ²Π°Π½ΠΈΠΈ Π»Π΅Π½ΡΡ ΠΏΠΎ Π΅Π΅ Π΄Π»ΠΈΠ½Π΅ ΡΠΎΠ΅Π΄ΠΈΠ½ΡΡΡ ΠΊΡΠΎΠΌΠΊΠΈ Π»Π΅Π½ΡΡ, ΠΎΠ±ΡΠ°Π·ΡΡ Π·Π°ΠΏΠΎΡ ΡΠΈΠΏΠ° Π·Π°ΡΡΠ΅ΠΆΠΊΠΈ Β«ΠΌΠΎΠ»Π½ΠΈΡΒ». ΠΠ° ΡΡΠ°ΡΡΠΊΠ΅ Π·Π°Π³ΡΡΠ·ΠΊΠΈ Π»Π΅Π½ΡΠ° ΠΎΡΠΊΡΡΡΠ° ΠΈ ΠΎΠ±ΡΠ°Π·ΡΠ΅Ρ ΠΆΠ΅Π»ΠΎΠ±, ΠΊΠΎΡΠΎΡΡΠΉ ΠΏΠΎΡΠ»Π΅ Π·Π°ΠΏΠΎΠ»Π½Π΅Π½ΠΈΡ Π»Π΅Π½ΡΡ ΠΌΠ°ΡΠ΅ΡΠΈΠ°Π»ΠΎΠΌ ΠΏΡΠΈ ΠΏΠΎΠΌΠΎΡΠΈ Π΄Π²ΡΡ
ΠΏΠ°Ρ ΡΠΎΠ»ΠΈΠΊΠΎΠ² Π·Π°ΡΡΠ΅Π³ΠΈΠ²Π°Π΅ΡΡΡ, ΠΎΠ±ΡΠ°Π·ΡΡ ΠΏΠ»ΠΎΡΠ½ΠΎ Π·Π°ΠΊΡΡΡΡΡ ΡΡΡΠ±Ρ. Π Π·ΠΎΠ½Π΅ ΡΠ°Π·Π³ΡΡΠ·ΠΊΠΈ Π»Π΅Π½ΡΠ° ΡΠ°ΡΠΊΡΡΠ²Π°Π΅ΡΡΡ ΠΈ Ρ
ΠΎΠ»ΠΎΡΡΠ°Ρ Π²Π΅ΡΠ²Ρ Π΅Π΅ Π΄Π²ΠΈΠΆΠ΅ΡΡΡ Π² ΠΏΠ»ΠΎΡΠΊΠΎΠΌ ΡΠΎΡΡΠΎΡΠ½ΠΈΠΈ, ΡΡΠΎ ΠΏΠΎΠ·Π²ΠΎΠ»ΡΠ΅Ρ ΠΎΡΡΡΠ΅ΡΡΠ²ΠΈΡΡ Π΅Π΅ ΠΎΡΠΈΡΡΠΊΡ. Π’Π°ΠΊΠ°Ρ ΡΡΡΠ±ΡΠ°ΡΠ°Ρ Π»Π΅Π½ΡΠ° Π΄Π°Π΅Ρ Π²ΠΎΠ·ΠΌΠΎΠΆΠ½ΠΎΡΡΡ ΠΎΡΡΡΠ΅ΡΡΠ²ΠΈΡΡ ΡΡΠ°Π½ΡΠΏΠΎΡΡΠΈΡΠΎΠ²Π°Π½ΠΈΠ΅ ΠΌΠ°ΡΠ΅ΡΠΈΠ°Π»Π° Π½Π΅ ΡΠΎΠ»ΡΠΊΠΎ ΠΏΠΎ Π³ΠΎΡΠΈΠ·ΠΎΠ½ΡΠ°Π»ΠΈ, Π½ΠΎ ΠΈ ΠΏΠΎ ΡΠΈΠ»ΡΠ½ΠΎ Π½Π°ΠΊΠ»ΠΎΠ½Π΅Π½Π½ΡΠΌ ΠΈ Π²Π΅ΡΡΠΈΠΊΠ°Π»ΡΠ½ΡΠΌ ΡΡΠ°ΡΡΠΊΠ°ΠΌ ΡΡΠ°ΡΡΡ.
Π Π½Π΅ΠΊΠΎΡΠΎΡΡΡ
ΡΠ»ΡΡΠ°ΡΡ
ΡΠ°ΠΊΠΈΠ΅ ΡΡΡΠ±ΡΠ°ΡΡΠ΅ Π»Π΅Π½ΡΡ Ρ Π·Π°ΡΡΠ΅ΠΆΠΊΠ°ΠΌΠΈ ΡΠΈΠΏΠ° Β«ΠΌΠΎΠ»Π½ΠΈΡΒ» ΠΈΡΠΏΠΎΠ»ΡΠ·ΡΡΡΡΡ Π² ΠΊΠ°ΡΠ΅ΡΡΠ²Π΅ ΠΏΠΎΠ΄Π²Π΅ΡΠ½ΠΎΠ³ΠΎ Π»Π΅Π½ΡΠΎΡΠ½ΠΎΠ³ΠΎ ΠΊΠΎΠ½Π²Π΅ΠΉΠ΅ΡΠ°, Π³Π΄Π΅ ΡΠ°ΠΌΠ° Π»Π΅Π½ΡΠ° ΠΎΡΠ²ΠΎΠ±ΠΎΠΆΠ΄Π΅Π½Π° ΠΎΡ ΠΏΠ΅ΡΠ΅Π΄Π°ΡΠΈ ΡΡΠ³ΠΎΠ²ΠΎΠ³ΠΎ ΡΡΠΈΠ»ΠΈΡ, ΠΊΠΎΡΠΎΡΠΎΠ΅ ΠΏΠ΅ΡΠ΅Π΄Π°Π΅ΡΡΡ ΡΠΎΠ»ΡΠΊΠΎ ΡΠΏΠ΅ΡΠΈΠ°Π»ΡΠ½ΡΠΌ ΡΡΠ³ΠΎΠ²ΡΠΌ ΠΎΡΠ³Π°Π½ΠΎΠΌ (ΠΊΠ°Π½Π°ΡΠΎΠΌ ΠΈΠ»ΠΈ ΡΠ΅ΠΏΡΡ). ΠΡΠΎ ΠΏΠΎΠ·Π²ΠΎΠ»ΡΠ΅Ρ ΠΈΡΠΏΠΎΠ»ΡΠ·ΠΎΠ²Π°ΡΡ Π±ΠΎΠ»Π΅Π΅ ΡΠΎΠ½ΠΊΠΈΠ΅ Π»Π΅Π½ΡΡ. ΠΠ°ΠΊΡΡΠ²Π°Π½ΠΈΠ΅ Π»Π΅Π½Ρ ΠΌΠΎΠΆΠ΅Ρ ΠΏΡΠΎΠΈΠ·Π²ΠΎΠ΄ΠΈΡΡΡΡ ΠΊΠ°ΠΊ ΡΠ²Π΅ΡΡ
Ρ, ΡΠ°ΠΊ ΠΈ ΡΠ±ΠΎΠΊΡ. Π‘ΠΊΠΎΡΠΎΡΡΠΈ Π΄Π²ΠΈΠΆΠ΅Π½ΠΈΡ ΠΏΠΎΠ΄Π²Π΅ΡΠ½ΡΡ
Π»Π΅Π½ΡΠΎΡΠ½ΡΡ
ΠΊΠΎΠ½Π²Π΅ΠΉΠ΅ΡΠΎΠ² ΠΏΡΠΈΠ½ΠΈΠΌΠ°ΡΡΡΡ ΠΎΠ±ΡΡΠ½ΠΎ Π² ΠΏΡΠ΅Π΄Π΅Π»Π°Ρ
0,5β1,0 ΠΌ/ΡΠ΅ΠΊ.
ΠΡΠΈ ΡΠ°ΡΡΠ΅ΡΠ°Ρ
ΠΈΡ
ΠΏΡΠΎΠΈΠ·Π²ΠΎΠ΄ΠΈΡΠ΅Π»ΡΠ½ΠΎΡΡΠΈ Π·Π°ΠΏΠΎΠ»Π½Π΅Π½ΠΈΠ΅ Π»Π΅Π½ΡΡ ΠΏΡΠΈΠ½ΠΈΠΌΠ°Π΅ΡΡΡ ΠΎΠΊΠΎΠ»ΠΎ 3/6 ΠΏΠ»ΠΎΡΠ°Π΄ΠΈ ΠΏΠΎΠΏΠ΅ΡΠ΅ΡΠ½ΠΎΠ³ΠΎ ΡΠ΅ΡΠ΅Π½ΠΈΡ.
Π‘ΠΎΠ΅Π΄ΠΈΠ½Π΅Π½ΠΈΡ ΠΊΠΎΠ½ΡΠΎΠ² ΠΊΠΎΠ½Π²Π΅ΠΉΠ΅ΡΠ½ΡΡ Π»Π΅Π½Ρ Π΄ΠΎΠ»ΠΆΠ½Ρ ΠΎΠ±Π»Π°Π΄Π°ΡΡ ΠΏΡΠΎΡΠ½ΠΎΡΡΡΡ, Π΄ΠΎΡΡΠ°ΡΠΎΡΠ½ΠΎΠΉ Π΄Π»Ρ Π²ΠΎΡΠΏΡΠΈΡΡΠΈΡ ΠΌΠ°ΠΊΡΠΈΠΌΠ°Π»ΡΠ½ΠΎΠ³ΠΎ ΡΡΠ³ΠΎΠ²ΠΎΠ³ΠΎ ΡΡΠΈΠ»ΠΈΡ; Π΄Π»ΠΈΡΠ΅Π»ΡΠ½ΡΠΌ ΡΡΠΎΠΊΠΎΠΌ ΡΠ»ΡΠΆΠ±Ρ, ΠΏΡΠΈΠ±Π»ΠΈΠΆΠ°ΡΡΠΈΠΌΡΡ ΠΊ ΡΡΠΎΠΊΡ ΡΠ»ΡΠΆΠ±Ρ Π»Π΅Π½ΡΡ; Π³ΠΈΠ±ΠΊΠΎΡΡΡΡ Π² ΠΏΡΠΎΠ΄ΠΎΠ»ΡΠ½ΠΎΠΌ ΠΈ ΠΏΠΎΠΏΠ΅ΡΠ΅ΡΠ½ΠΎΠΌ Π½Π°ΠΏΡΠ°Π²Π»Π΅Π½ΠΈΡΡ , Π½Π΅ΠΎΠ±Ρ ΠΎΠ΄ΠΈΠΌΠΎΠΉ Π΄Π»Ρ ΠΏΡΠΈΠ΄Π°Π½ΠΈΡ Π»Π΅Π½ΡΠ΅ ΠΆΠ΅Π»ΠΎΠ±ΡΠ°ΡΠΎΠΉ ΡΠΎΡΠΌΡ ΠΈ Π²ΠΎΠ·ΠΌΠΎΠΆΠ½ΠΎΡΡΠΈ ΠΎΠ³ΠΈΠ±Π°Π½ΠΈΡ Π±Π°ΡΠ°Π±Π°Π½ΠΎΠ² ΠΌΠ°Π»ΠΎΠ³ΠΎ Π΄ΠΈΠ°ΠΌΠ΅ΡΡΠ°; ΠΏΡΠΎΡΡΠΎΡΠΎΠΉ ΠΈ ΠΌΠ°Π»ΠΎΠΉ Π·Π°ΡΡΠ°ΡΠΎΠΉ Π²ΡΠ΅ΠΌΠ΅Π½ΠΈ Π½Π° Π²ΡΠΏΠΎΠ»Π½Π΅Π½ΠΈΠ΅ ΡΠΎΠ΅Π΄ΠΈΠ½Π΅Π½ΠΈΡ; Π½Π΅Π²ΠΎΠ·ΠΌΠΎΠΆΠ½ΠΎΡΡΡΡ ΡΠ°ΠΌΠΎΡΠ°Π·ΡΠ΅Π΄ΠΈΠ½Π΅Π½ΠΈΡ ΡΡΡΠΊΠ°; ΠΌΠ΅Ρ Π°Π½ΠΈΡΠ΅ΡΠΊΠΎΠΉ ΠΏΡΠΎΡΠ½ΠΎΡΡΡΡ ΠΎΡΠ½ΠΎΡΠΈΡΠ΅Π»ΡΠ½ΠΎ ΡΠ΄Π°ΡΠ½ΠΎΠΉ Π½Π°Π³ΡΡΠ·ΠΊΠΈ ΠΏΡΠΈ ΠΏΠ°Π΄Π΅Π½ΠΈΠΈ ΠΊΡΡΠΏΠ½ΡΡ ΠΊΡΡΠΊΠΎΠ² ΠΏΠΎΡΠΎΠ΄Ρ; Π΄ΠΎΠ»ΠΆΠ½Ρ ΠΈΡΠΊΠ»ΡΡΠ°ΡΡ ΠΎΠ΄Π½ΠΎΡΡΠΎΡΠΎΠ½Π½ΡΡ Π²ΡΡΡΠΆΠΊΡ Π»Π΅Π½ΡΡ ΠΈ ΠΏΡΠΎΡΡΠΏΠ°Π½ΠΈΠ΅ ΠΌΠ΅Π»ΠΎΡΠΈ; Π½Π΅ Π΄ΠΎΠ»ΠΆΠ½Ρ ΠΈΠΌΠ΅ΡΡ Π²ΡΡΡΡΠΏΠ°ΡΡΠΈΡ ΡΠ°ΡΡΠ΅ΠΉ.
Π‘ΠΎΠ΅Π΄ΠΈΠ½Π΅Π½ΠΈΡ ΠΊΠΎΠ½ΡΠΎΠ² Π»Π΅Π½Ρ Π²ΡΠΏΠΎΠ»Π½ΡΡΡΡΡ ΡΠ°Π·ΡΠ΅ΠΌΠ½ΡΠΌΠΈ ΠΈ Π½Π΅ΡΠ°Π·ΡΠ΅ΠΌΠ½ΡΠΌΠΈ. Π Π½Π΅ΡΠ°Π·ΡΠ΅ΠΌΠ½ΡΠΌ ΠΎΡΠ½ΠΎΡΡΡΡΡ ΡΠΎΠ΅Π΄ΠΈΠ½Π΅Π½ΠΈΡ, Π²ΡΠΏΠΎΠ»Π½ΡΠ΅ΠΌΡΠ΅ ΠΌΠ΅ΡΠΎΠ΄ΠΎΠΌ Π³ΠΎΡΡΡΠ΅ΠΉ ΠΈ Ρ
ΠΎΠ»ΠΎΠ΄Π½ΠΎΠΉ Π²ΡΠ»ΠΊΠ°Π½ΠΈΠ·Π°ΡΠΈΠΈ, Π° ΡΠ°ΠΊΠΆΠ΅ ΡΠΎΠ΅Π΄ΠΈΠ½Π΅Π½ΠΈΡ ΠΏΡΠΈ ΠΏΠΎΠΌΠΎΡΠΈ Π·Π°ΠΊΠ»Π΅ΠΏΠΎΠΊ. ΠΡΠ°Π·ΡΠ΅ΠΌΠ½ΡΠΌ ΠΎΡΠ½ΠΎΡΡΡΡΡ ΡΠΎΠ΅Π΄ΠΈΠ½Π΅Π½ΠΈΡ, Π² ΠΊΠΎΡΠΎΡΡΡ
ΠΊΠΎΠ½ΡΡ Π»Π΅Π½Ρ ΠΌΠΎΠ³ΡΡ Π±ΡΡΡ ΡΠ°Π·ΡΠ΅Π΄ΠΈΠ½Π΅Π½Ρ Π±Π΅Π· Π΄Π΅ΠΌΠΎΠ½ΡΠ°ΠΆΠ° ΠΎΡΠ½ΠΎΠ²Π½ΡΡ
Π΄Π΅ΡΠ°Π»Π΅ΠΉ.
Π ΠΈΡ. 8. Π’ΡΡΠ±ΡΠ°ΡΠ°Ρ Π»Π΅Π½ΡΠ°:
Π° β Π»Π΅Π½ΡΠΎΡΠ½ΠΎΠ³ΠΎ ΠΊΠΎΠ½Π²Π΅ΠΉΠ΅ΡΠ°; Π± β ΠΏΠΎΠ΄Π²Π΅ΡΠ½ΠΎΠ³ΠΎ ΠΊΠΎΠ½Π²Π΅ΠΉΠ΅ΡΠ° (Ρ Π±ΠΎΠΊΠΎΠ²ΠΎΠΉ Π·Π°ΡΡΠ΅ΠΆΠΊΠΎΠΉ)
Π Π½ΠΈΠΌ ΠΎΡΠ½ΠΎΡΡΡΡΡ ΡΠΎΠ΅Π΄ΠΈΠ½Π΅Π½ΠΈΡ Π½Π° ΠΏΠ΅ΡΠ»ΡΡ , ΠΊΡΡΡΡΡΡ ΠΈ Π½Π΅ΠΊΠΎΡΠΎΡΡΠ΅ ΡΠΈΠΏΡ ΡΠΎΠ΅Π΄ΠΈΠ½Π΅Π½ΠΈΠΉ ΠΏΡΠΈ ΠΏΠΎΠΌΠΎΡΠΈ ΠΏΠ»Π°ΡΡΠΈΠ½, ΠΏΡΠΈΡΠΎΠ΅Π΄ΠΈΠ½ΡΠ΅ΠΌΡΡ Π±ΠΎΠ»ΡΠ°ΠΌΠΈ.
Π Π°Π·ΡΠ΅ΠΌΠ½ΡΠ΅ ΡΠΎΠ΅Π΄ΠΈΠ½Π΅Π½ΠΈΡ ΠΏΡΠΈΠΌΠ΅Π½ΡΡΡΡΡ Π½Π° ΠΏΠ΅ΡΠ΅Π΄Π²ΠΈΠΆΠ½ΡΡ ΠΈ ΠΏΠ΅ΡΠ΅Π½ΠΎΡΠ½ΡΡ ΠΊΠΎΠ½Π²Π΅ΠΉΠ΅ΡΠ°Ρ , Π° ΡΠ°ΠΊΠΆΠ΅ ΠΏΡΠΈ ΡΠ°ΡΡΠΎΠΌ ΠΈΠ·ΠΌΠ΅Π½Π΅Π½ΠΈΠΈ Π΄Π»ΠΈΠ½Ρ ΠΊΠΎΠ½Π²Π΅ΠΉΠ΅ΡΠ°. Π‘ΠΎΠ΅Π΄ΠΈΠ½Π΅Π½ΠΈΠ΅ ΠΌΠ΅ΡΠΎΠ΄ΠΎΠΌ Π²ΡΠ»ΠΊΠ°Π½ΠΈΠ·Π°ΡΠΈΠΈ ΠΎΠ±Π΅ΡΠΏΠ΅ΡΠΈΠ²Π°Π΅Ρ Π²ΡΡΠΎΠΊΡΡ ΠΏΡΠΎΡΠ½ΠΎΡΡΡ ΡΠΎΠ΅Π΄ΠΈΠ½Π΅Π½ΠΈΡ ΠΈ ΠΎΡΡΡΡΡΡΠ²ΠΈΠ΅ ΡΡΠΎΠ»ΡΠ΅Π½ΠΈΠΉ Π² ΠΌΠ΅ΡΡΠ΅ ΡΡΡΠΊΠ°, ΡΡΠΎ Π±Π»Π°Π³ΠΎΠΏΡΠΈΡΡΠ½ΠΎ Π²Π»ΠΈΡΠ΅Ρ Π½Π° ΡΠ°Π±ΠΎΡΡ Π±Π°ΡΠ°Π±Π°Π½ΠΎΠ², ΠΏΠΎΠ΄Π΄Π΅ΡΠΆΠΈΠ²Π°ΡΡΠΈΡ ΡΠΎΠ»ΠΈΠΊΠΎΠ² ΠΈ ΠΎΡΠΈΡΡΠ½ΡΡ ΡΡΡΡΠΎΠΉΡΡΠ².
Π‘ΡΠ°Π»ΡΠ½Π°Ρ ΠΊΠΎΠ½Π²Π΅ΠΉΠ΅ΡΠ½Π°Ρ Π»Π΅Π½ΡΠ° ΠΏΡΠ΅Π΄ΡΡΠ°Π²Π»ΡΠ΅Ρ ΡΠΎΠ±ΠΎΠΉ Ρ ΠΎΠ»ΠΎΠ΄Π½ΠΎΠΊΠ°ΡΠ°Π½ΡΡ Π»Π΅Π½ΡΡ ΠΈΠ· ΡΠ³Π»Π΅ΡΠΎΠ΄ΠΈΡΡΠΎΠΉ ΠΈΠ»ΠΈ Π½Π΅ΡΠΆΠ°Π²Π΅ΡΡΠ΅ΠΉ ΡΡΠ°Π»ΠΈ ΡΠΎΠ»ΡΠΈΠ½ΠΎΠΉ ΠΎΡ 0,6 Π΄ΠΎ 1, 2 ΠΌΠΌ ΠΈ ΡΠΈΡΠΈΠ½ΠΎΠΉ Π² ΠΏΡΠ΅Π΄Π΅Π»Π°Ρ 350β800 ΠΌΠΌ. ΠΡΠΈ ΠΏΡΠΎΠ΄ΠΎΠ»ΡΠ½ΠΎΠΉ ΡΡΠΈΠ²ΠΊΠ΅ Π½Π΅ΡΠΊΠΎΠ»ΡΠΊΠΈΡ Π»Π΅Π½Ρ ΡΠΈΡΠΈΠ½Ρ ΠΊΠΎΠ½Π²Π΅ΠΉΠ΅ΡΠ½ΠΎΠΉ ΡΡΠ°Π»ΡΠ½ΠΎΠΉ Π»Π΅Π½ΡΡ ΠΌΠΎΠΆΠ½ΠΎ ΡΠ²Π΅Π»ΠΈΡΠΈΡΡ Π΄ΠΎ 4 ΠΌ. ΠΠΎ ΡΠ²ΠΎΠ΅ΠΌΡ ΡΡΡΠΎΠ΅Π½ΠΈΡ ΠΈ Π²Π½Π΅ΡΠ½Π΅ΠΌΡ Π²ΠΈΠ΄Ρ ΡΡΠ°Π»ΡΠ½Π°Ρ ΠΊΠΎΠ½Π²Π΅ΠΉΠ΅ΡΠ½Π°Ρ Π»Π΅Π½ΡΠ° ΠΏΠΎΠ΄ΠΎΠ±Π½Π° ΠΏΡΡΠΆΠΈΠ½Π΅ ΡΠ°ΡΠΎΠ²ΠΎΠ³ΠΎ ΠΌΠ΅Ρ Π°Π½ΠΈΠ·ΠΌΠ°.
Π‘ΡΠ°Π»ΡΠ½ΡΡ Π»Π΅Π½ΡΡ ΠΏΡΠΈΠΌΠ΅Π½ΡΡΡ Π² ΡΠ΅Ρ
ΡΠ»ΡΡΠ°ΡΡ
, ΠΊΠΎΠ³Π΄Π° ΠΌΠ°ΡΠ΅ΡΠΈΠ°Π» ΡΡΠ°Π½ΡΠΏΠΎΡΡΠΈΡΡΠ΅ΡΡΡ ΠΏΡΠΈ Π²ΡΡΠΎΠΊΠΈΡ
ΡΠ΅ΠΌΠΏΠ΅ΡΠ°ΡΡΡΠ°Ρ
ΠΈ ΠΏΡΠΈΠΌΠ΅Π½Π΅Π½ΠΈΠ΅ ΡΠ΅ΠΊΡΡΠΈΠ»ΡΠ½ΠΎΠΉ Π»Π΅Π½ΡΡ ΡΡΠ°Π½ΠΎΠ²ΠΈΡΡΡ Π½Π΅Π²ΠΎΠ·ΠΌΠΎΠΆΠ½ΡΠΌ.
ΠΡΠ»Π΅Π΄ΡΡΠ²ΠΈΠ΅ ΡΠΎΠ³ΠΎ, ΡΡΠΎ Π»Π΅Π½ΡΡ ΠΈΠ·Π³ΠΎΡΠΎΠ²Π»ΡΡΡ ΠΌΠ΅ΡΠΎΠ΄ΠΎΠΌ Ρ
ΠΎΠ»ΠΎΠ΄Π½ΠΎΠΉ ΠΏΡΠΎΠΊΠ°ΡΠΊΠΈ, Π½Π° Π΅Π΅ ΠΏΠΎΠ²Π΅ΡΡ
Π½ΠΎΡΡΠΈ Π²ΠΎΠ·Π½ΠΈΠΊΠ°ΡΡ Π·Π½Π°ΡΠΈΡΠ΅Π»ΡΠ½ΡΠ΅ ΠΏΠΎΠ²Π΅ΡΡ
Π½ΠΎΡΡΠ½ΡΠ΅ Π½Π°ΠΏΡΡΠΆΠ΅Π½ΠΈΡ, ΠΏΡΠΈΠ²ΠΎΠ΄ΡΡΠΈΠ΅ ΠΊ Π±ΡΡΡΡΠΎΠΌΡ ΡΠ°Π·ΡΡΡΠ΅Π½ΠΈΡ Π»Π΅Π½ΡΡ. ΠΠ°ΠΈΠ±ΠΎΠ»Π΅Π΅ ΡΠ»Π°Π±ΡΠΌ ΠΌΠ΅ΡΡΠΎΠΌ ΡΡΠ°Π»ΡΠ½ΠΎΠΉ Π»Π΅Π½ΡΡ ΡΠ²Π»ΡΠ΅ΡΡΡ Π΅Π΅ ΠΊΡΠΎΠΌΠΊΠ°. Π‘ΡΠ°Π»ΡΠ½Π°Ρ Π»Π΅Π½ΡΠ° ΠΌΠΎΠΆΠ΅Ρ Π½ΠΎΡΠΌΠ°Π»ΡΠ½ΠΎ ΡΠ°Π±ΠΎΡΠ°ΡΡ ΠΏΡΠΈ ΡΠ°Π²Π½ΠΎΠΌΠ΅ΡΠ½ΠΎΠΌ Π½Π°Π³ΡΠ΅Π²Π°Π½ΠΈΠΈ Π΄ΠΎ 300Β° Π‘ (Π²ΠΌΠ΅ΡΡΠ΅ Ρ Π½Π°Ρ
ΠΎΠ΄ΡΡΠΈΠΌΡΡ Π½Π° Π½Π΅ΠΉ ΠΌΠ°ΡΠ΅ΡΠΈΠ°Π»ΠΎΠΌ). ΠΠ°Π³ΡΡΠ·ΠΊΠ° Π½Π° Π»Π΅Π½ΡΡ Π·Π°ΡΠ°Π½Π΅Π΅ Π½Π°Π³ΡΠ΅ΡΠΎΠ³ΠΎ ΠΌΠ°ΡΠ΅ΡΠΈΠ°Π»Π° ΠΏΡΠΈΠ²ΠΎΠ΄ΠΈΡ ΠΊ ΠΌΠ΅ΡΡΠ½ΠΎΠΌΡ Π½Π°Π³ΡΠ΅Π²Ρ Π»Π΅Π½ΡΡ ΠΈ ΠΏΠΎΡΠ²Π»Π΅Π½ΠΈΡ Π²ΡΡΠΎΠΊΠΈΡ
ΡΠ΅ΡΠΌΠΈΡΠ΅ΡΠΊΠΈΡ
Π½Π°ΠΏΡΡΠΆΠ΅Π½ΠΈΠΉ Π² ΠΏΠΎΠ²Π΅ΡΡ
Π½ΠΎΡΡΠ½ΠΎΠΌ ΡΠ»ΠΎΠ΅. ΠΠΎ ΠΈΠ·Π±Π΅ΠΆΠ°Π½ΠΈΠ΅ ΡΠ°Π·ΡΡΡΠ΅Π½ΠΈΡ ΡΡΠ°Π»ΡΠ½ΠΎΠΉ Π»Π΅Π½ΡΡ Π½Π΅ ΡΠ»Π΅Π΄ΡΠ΅Ρ Π·Π°Π³ΡΡΠΆΠ°ΡΡ Π½Π° Π½Π΅Π΅ ΠΌΠ°ΡΠ΅ΡΠΈΠ°Π», ΠΈΠΌΠ΅ΡΡΠΈΠΉ ΡΠ΅ΠΌΠΏΠ΅ΡΠ°ΡΡΡΡ Π²ΡΡΠ΅ 120 Β°Π‘.
ΠΠΎΠ½Π²Π΅ΠΉΠ΅ΡΡ ΡΠΎ ΡΡΠ°Π»ΡΠ½ΠΎΠΉ Π»Π΅Π½ΡΠΎΠΉ Π½Π°ΡΠ»ΠΈ ΡΠΈΡΠΎΠΊΠΎΠ΅ ΠΏΡΠΈΠΌΠ΅Π½Π΅Π½ΠΈΠ΅ Π² Ρ ΠΈΠΌΠΈΡΠ΅ΡΠΊΠΎΠΉ, ΠΏΠΈΡΠ΅Π²ΠΎΠΉ ΠΈ Π΄ΡΡΠ³ΠΈΡ ΠΎΡΡΠ°ΡΠ»ΡΡ ΠΏΡΠΎΠΌΡΡΠ»Π΅Π½Π½ΠΎΡΡΠΈ.
ΠΠ»Ρ ΡΡΠ°Π½ΡΠΏΠΎΡΡΠΈΡΠΎΠ²Π°Π½ΠΈΡ Π°Π±ΡΠ°Π·ΠΈΠ²Π½ΡΡ
ΠΈ ΠΊΡΡΠΏΠ½ΠΎΠΏΡΡΠΊΠΎΠ²ΡΡ
ΠΌΠ°ΡΠ΅ΡΠΈΠ°Π»ΠΎΠ² Ρ ΠΎΡΡΡΡΠΌΠΈ ΠΊΡΠΎΠΌΠΊΠ°ΠΌΠΈ, Π° ΡΠ°ΠΊΠΆΠ΅ ΠΏΡΠΈ ΡΡΠ°Π½ΡΠΏΠΎΡΡΠΈΡΠΎΠ²Π°Π½ΠΈΠΈ Π΄Π΅ΡΠ°Π»Π΅ΠΉ Ρ ΠΈΡ
ΠΎΠ΄Π½ΠΎΠ²ΡΠ΅ΠΌΠ΅Π½Π½ΠΎΠΉ ΡΠ΅ΡΠΌΠΎΠΎΠ±ΡΠ°Π±ΠΎΡΠΊΠΎΠΉ, Π³Π°Π»ΡΠ²Π°Π½ΠΈΠ·Π°ΡΠΈΠ΅ΠΉ ΠΈΠ»ΠΈ ΠΎΠ±ΠΆΠΈΠ³ΠΎΠΌ ΠΊΠ΅ΡΠ°ΠΌΠΈΡΠ΅ΡΠΊΠΈΡ
ΠΈΠ·Π΄Π΅Π»ΠΈΠΉ ΠΈ Ρ. ΠΏ. ΠΎΠΏΠ΅ΡΠ°ΡΠΈΡΡ
ΠΏΡΠΈΠΌΠ΅Π½ΡΡΡ ΡΡΠ°Π»ΡΠ½ΡΠ΅ Π»Π΅Π½ΡΡ, ΠΈΠ·Π³ΠΎΡΠΎΠ²Π»Π΅Π½Π½ΡΠ΅ ΠΈΠ· ΠΏΡΠΎΠ²ΠΎΠ»ΠΎΠΊΠΈ.
Π’Π°ΠΊΠΈΠ΅ Π»Π΅Π½ΡΡ Ρ
ΠΎΡΠΎΡΠΎ ΡΠΎΠΏΡΠΎΡΠΈΠ²Π»ΡΡΡΡΡ ΡΠ΄Π°ΡΠ°ΠΌ ΠΈ ΠΈΠΌΠ΅ΡΡ Π²ΡΡΠΎΠΊΡΡ ΠΏΡΠΎΡΠ½ΠΎΡΡΡ. ΠΡΡΡΠΈΠΌ ΠΌΠ°ΡΠ΅ΡΠΈΠ°Π»ΠΎΠΌ Π΄Π»Ρ ΠΏΡΠΎΠ²ΠΎΠ»ΠΎΠΊΠΈ ΡΠ²Π»ΡΠ΅ΡΡΡ ΡΡΠ°Π»Ρ. Π‘ΡΡΠ΅ΡΡΠ²ΡΡΡ ΠΏΡΠΎΠ²ΠΎΠ»ΠΎΡΠ½ΡΠ΅ Π»Π΅Π½ΡΡ ΡΠ°Π·Π»ΠΈΡΠ½ΡΡ
ΠΊΠΎΠ½ΡΡΡΡΠΊΡΠΈΠΉ.
Π’Π°ΠΊ, Π½Π° ΡΠΈΡ. 9, Π° ΠΏΡΠ΅Π΄ΡΡΠ°Π²Π»Π΅Π½Π° Π»Π΅Π½ΡΠ°, ΡΠΎΡΡΠΎΡΡΠ°Ρ ΠΈΠ· ΠΎΡΠ΄Π΅Π»ΡΠ½ΡΡ I ΡΠΏΠΈΡΠ°Π»ΡΠ½ΡΡ ΡΠ»Π΅ΠΌΠ΅Π½ΡΠΎΠ² ΠΈΠ· ΠΏΠ»ΠΎΡΠΊΠΎΠΉ ΠΈΠ»ΠΈ ΠΊΡΡΠ³Π»ΠΎΠΉ ΠΏΡΠΎΠ²ΠΎΠ»ΠΎΠΊΠΈ. ΠΡΠ΄Π΅Π»ΡΠ½ΡΠ΅ ΡΠΏΠΈΡΠ°Π»ΠΈ Π»Π΅Π½ΡΡ ΠΌΠ΅ΠΆΠ΄Ρ ΡΠΎΠ±ΠΎΠΉ Π½Π΅ ΡΠΏΠ»Π΅ΡΠ΅Π½Ρ, Π° ΡΠ²ΡΠ·Π°Π½Ρ Π²Π΄Π²ΠΈΠ³Π°Π΅ΠΌΡΠΌΠΈ ΠΌΠ΅ΠΆΠ΄Ρ Π½ΠΈΠΌΠΈ ΠΏΡΡΠΌΡΠΌΠΈ ΠΊΡΡΠ³Π»ΡΠΌΠΈ ΡΡΠ΅ΡΠΆΠ½ΡΠΌΠΈ. ΠΡΠΈ Π»Π΅Π½ΡΡ ΠΈΠΌΠ΅ΡΡ Π½Π΅Π±ΠΎΠ»ΡΡΠΎΠΉ
ΡΠ³ΠΎΠ» Π½Π°ΠΊΠ»ΠΎΠ½Π° ΠΏΡΠΎΠ²ΠΎΠ»ΠΎΠΊΠΈ ΡΠΏΠΈΡΠ°Π»Π΅ΠΉ ΠΈ ΠΏΡΠΈΠΌΠ΅Π½ΡΡΡΡΡ Π΄Π»Ρ Π²ΡΡΠΎΠΊΠΈΡ ΡΡΠ³ΠΎΠ²ΡΡ ΡΡΠΈΠ»ΠΈΠΉ ΠΈ ΡΠ΅ΠΌΠΏΠ΅ΡΠ°ΡΡΡ.
ΠΠ° ΡΠΈΡ. 9, Π± ΠΏΡΠ΅Π΄ΡΡΠ°Π²Π»Π΅Π½Π° Π»Π΅Π½ΡΠ° ΠΈΠ· ΠΏΠ»ΠΎΡΠΊΠΎΠΉ ΠΏΡΠΎΠ²ΠΎΠ»ΠΎΠΊΠΈ Ρ Π±ΠΎΠ»ΡΡΠΈΠΌ ΡΠ³Π»ΠΎΠΌ Π½Π°ΠΊΠ»ΠΎΠ½Π° ΠΏΡΠΎΠ²ΠΎΠ»ΠΎΠΊ Π² ΡΠΏΠΈΡΠ°Π»ΡΡ
. Π Π·Π΄Π΅ΡΡ ΡΠΏΠΈΡΠ°Π»ΠΈ Π½Π΅ ΡΠΏΠ»Π΅ΡΠ΅Π½Ρ ΠΌΠ΅ΠΆΠ΄Ρ ΡΠΎΠ±ΠΎΠΉ, Π° ΡΠΎΠ΅Π΄ΠΈΠ½Π΅Π½Ρ Π²ΡΡΠ°Π²Π»Π΅Π½Π½ΡΠΌΠΈ ΠΌΠ΅ΠΆΠ΄Ρ Π½ΠΈΠΌΠΈ Π²ΠΎΠ»Π½ΠΎΠΎΠ±ΡΠ°Π·Π½ΠΎ ΠΈΠ·ΠΎΠ³Π½ΡΡΡΠΌΠΈ ΠΊΡΡΠ³Π»ΡΠΌΠΈ ΡΡΠ΅ΡΠΆΠ½ΡΠΌΠΈ. ΠΠΌΠ΅ΡΡΡΡ Π»Π΅Π½ΡΡ ΡΠΎ ΡΠΏΠ»Π΅ΡΠ΅Π½Π½ΡΠΌΠΈ ΠΌΠ΅ΠΆΠ΄Ρ ΡΠΎΠ±ΠΎΠΉ ΡΠΏΠΈΡΠ°Π»ΡΠΌΠΈ β ΠΎΠ½ΠΈ ΠΈΡΠΏΠΎΠ»ΡΠ·ΡΡΡΡΡ Π΄Π»Ρ ΠΌΠ°Π»ΡΡ
ΡΡΠ³ΠΎΠ²ΡΡ
ΡΡΠΈΠ»ΠΈΠΉ ΠΈ Π½Π΅Π²ΡΡΠΎΠΊΠΈΡ
ΡΠ΅ΠΌΠΏΠ΅ΡΠ°ΡΡΡ. ΠΠ΅Π»ΠΎΠ±ΡΠ°ΡΡΡ ΡΠΎΡΠΌΡ ΠΏΡΠΈΠ΄Π°ΡΡ ΠΏΡΠΎΠ²ΠΎΠ»ΠΎΡΠ½ΠΎΠΉ Π»Π΅Π½ΡΠ΅ Π½Π΅Π²ΠΎΠ·ΠΌΠΎΠΆΠ½ΠΎ, ΡΠ°ΠΊ ΠΊΠ°ΠΊ ΠΎΠ½Π° ΡΠ²Π»ΡΠ΅ΡΡΡ Π³ΠΈΠ±ΠΊΠΎΠΉ ΡΠΎΠ»ΡΠΊΠΎ Π² ΠΏΡΠΎΠ΄ΠΎΠ»ΡΠ½ΠΎΠΌ Π½Π°ΠΏΡΠ°Π²Π»Π΅Π½ΠΈΠΈ ΠΈ ΠΆΠ΅ΡΡΠΊΠΎΠΉ Π² ΠΏΠΎΠΏΠ΅ΡΠ΅ΡΠ½ΠΎΠΌ.
Π§ΡΠΎΠ±Ρ ΠΏΡΠΈΠ΄Π°ΡΡ Π»Π΅Π½ΡΠ΅ ΡΠΎΡΠΌΡ ΠΆΠ΅Π»ΠΎΠ±Π°, ΠΊ Π΅Π΅ ΠΊΡΠ°ΡΠΌ ΠΏΡΠΈΠΊΡΠ΅ΠΏΠ»ΡΡΡ ΠΏΠ»Π°ΡΡΠΈΠ½Ρ β Π±ΠΎΡΡΠ°.
Π Π·Π°Π²ΠΈΡΠΈΠΌΠΎΡΡΠΈ ΠΎΡ Π½Π°Π·Π½Π°ΡΠ΅Π½ΠΈΡ Π»Π΅Π½ΡΡ Π±ΡΠ²Π°ΡΡ ΠΏΠ»ΠΎΡΠ½ΡΠΌΠΈ ΠΈΠ»ΠΈ Π±ΠΎΠ»Π΅Π΅ ΡΠ΅Π΄ΠΊΠΈΠΌΠΈ. ΠΡΠΎΡΠ΅ΡΡ ΡΡΠ°Π½ΡΠΏΠΎΡΡΠΈΡΠΎΠ²Π°Π½ΠΈΡ ΠΌΠ°ΡΠ΅ΡΠΈΠ°Π»Π° Π½Π° ΠΏΡΠΎΠ²ΠΎΠ»ΠΎΡΠ½ΠΎΠΉ Π»Π΅Π½ΡΠ΅ ΠΌΠΎΠΆΠ½ΠΎ ΡΠΎΠ²ΠΌΠ΅ΡΡΠΈΡΡ Ρ ΠΏΡΠΎΡΠ΅ΡΡΠΎΠΌ ΠΎΡΡΠ΅ΠΈΠ²Π°Π½ΠΈΡ ΠΌΠ΅Π»ΠΎΡΠΈ. ΠΠ΅Π½ΡΠ° ΠΌΠΎΠΆΠ΅Ρ Π±ΡΡΡ ΠΈΠ·Π³ΠΎΡΠΎΠ²Π»Π΅Π½Π° Π±Π΅ΡΠΊΠΎΠ½Π΅ΡΠ½ΠΎΠΉ, Π΅Π΅ Π»Π΅Π³ΠΊΠΎ ΡΠΊΠΎΡΠΎΡΠΈΡΡ ΠΈΠ»ΠΈ ΡΠ΄Π»ΠΈΠ½ΠΈΡΡ. ΠΠ½Π° Π²Π΅ΡΡΠΌΠ° ΡΠ΄ΠΎΠ±Π½Π° Π΄Π»Ρ ΠΊΡΠ΅ΠΏΠ»Π΅Π½ΠΈΡ ΠΊ Π½Π΅ΠΉ ΠΊΠΎΠ²ΡΠ΅ΠΉ ΠΈ Π΄ΡΡΠ³ΠΈΡ ΡΡΡΡΠΎΠΉΡΡΠ².
Π ΠΈΡ. 9. ΠΡΠΎΠ²ΠΎΠ»ΠΎΡΠ½Π°Ρ ΠΊΠΎΠ½Π²Π΅ΠΉΠ΅ΡΠ½Π°Ρ Π»Π΅Π½ΡΠ° ΡΠ°Π·Π»ΠΈΡΠ½ΠΎΠ³ΠΎ ΠΏΠ»Π΅ΡΠ΅Π½ΠΈΡ
Π§ΡΠΎΠ±Ρ ΠΊΠΎΠ½Π²Π΅ΠΉΠ΅ΡΠ½Π°Ρ Π»Π΅Π½ΡΠ° Π½Π΅ ΡΠ±Π΅Π³Π°Π»Π° Ρ Π±Π°ΡΠ°Π±Π°Π½ΠΎΠ² Π² ΡΡΠΎΡΠΎΠ½Ρ, ΠΏΡΠΈΠ²ΠΎΠ΄Π½ΡΠ΅ ΠΈ Π½Π°ΡΡΠΆΠ½ΡΠ΅ Π±Π°ΡΠ°Π±Π°Π½Ρ Π²ΡΠΏΠΎΠ»Π½ΡΡΡ Π±ΠΎΡΠΊΠΎΠΎΠ±ΡΠ°Π·Π½ΡΠΌΠΈ. ΠΡΠΊΠ»ΠΎΠ½ΡΡΡΠΈΠ΅ Π±Π°ΡΠ°Π±Π°Π½Ρ ΠΈΠ·Π³ΠΎΡΠΎΠ²Π»ΡΡΡ ΡΠΈΠ»ΠΈΠ½Π΄ΡΠΈΡΠ΅ΡΠΊΠΈΠΌΠΈ. ΠΠ»ΠΈΠ½Ρ Π±ΠΎΡΠΊΠΎΠΎΠ±ΡΠ°Π·Π½ΠΎΠ³ΠΎ Π±Π°ΡΠ°Π±Π°Π½Π° ΠΏΡΠΈΠ½ΠΈΠΌΠ°ΡΡ ΡΠ°Π²Π½ΠΎΠΉ LβB-\-2C, ΠΏΡΠΈΡΠ΅ΠΌ Π‘=60β 75 ΠΌΠΌ. Π‘ΡΡΠ΅Π»Ρ Π²ΡΠΏΡΠΊΠ»ΠΎΡΡΠΈ ΠΏΡΠΈΠ½ΠΈΠΌΠ°ΡΡ ΠΎΠ±ΡΡΠ½ΠΎ ΡΠ°Π²Π½ΠΎΠΉ L/200, Π½ΠΎ Π½Π΅ ΠΌΠ΅Π½Π΅Π΅ 4 ΠΌΠΌ. ΠΠ°Π΄ΠΎ ΠΈΠΌΠ΅ΡΡ Π² Π²ΠΈΠ΄Ρ, ΡΡΠΎ ΠΏΡΠΈΠΌΠ΅Π½Π΅Π½ΠΈΠ΅ Π²ΡΠΏΡΠΊΠ»ΠΎΠ³ΠΎ Π±Π°ΡΠ°Π±Π°Π½Π° ΠΏΡΠΈΠ²ΠΎΠ΄ΠΈΡ ΠΊ ΠΏΠΎΠ²ΡΡΠ΅Π½ΠΈΡ Π½Π°ΡΡΠΆΠ΅Π½ΠΈΡ (Π΄ΠΎ 40%) Π² ΡΡΠ°Π²Π½ΠΈΡΠ΅Π»ΡΠ½ΠΎ Π½Π΅ΡΠΈΡΠΎΠΊΠΎΠΉ ΡΠ΅Π½ΡΡΠ°Π»ΡΠ½ΠΎΠΉ ΠΏΠΎΠ»ΠΎΡΠ΅ Π»Π΅Π½ΡΡ, ΡΡΠΎ ΡΠ°ΡΡΠΎ Π²ΡΠ·ΡΠ²Π°Π΅Ρ ΠΏΠΎΡΡΡ ΡΡΡΠΊΠ°. ΠΠΎΡΡΠΎΠΌΡ Π² ΠΏΠΎΡΠ»Π΅Π΄Π½Π΅Π΅ Π²ΡΠ΅ΠΌΡ ΡΡΠ°ΡΠ°ΡΡΡΡ ΠΈΠ·Π±Π΅Π³Π°ΡΡ Π²ΡΠΏΡΠΊΠ»ΡΡ
Π±Π°ΡΠ°Π±Π°Π½ΠΎΠ², ΠΎΠ±Π΅ΡΠΏΠ΅ΡΠΈΠ²Π°Ρ ΡΠ΅Π½ΡΡΠΎΠ²ΠΊΡ Π»Π΅Π½ΡΡ ΠΏΡΠΈ ΠΏΠΎΠΌΠΎΡΠΈ ΡΠ΅Π½ΡΡΠΈΡΡΡΡΠΈΡ
ΡΠΎΠ»ΠΈΠΊΠΎΠΎΠΏΠΎΡ.
ΠΠ°ΡΠ°Π±Π°Π½Ρ Π΄Π»Ρ ΡΠ΅ΠΊΡΡΠΈΠ»ΡΠ½ΠΎΠΉ ΠΊΠΎΠ½Π²Π΅ΠΉΠ΅ΡΠ½ΠΎΠΉ Π»Π΅Π½ΡΡ ΠΈΠ·Π³ΠΎΡΠΎΠ²Π»ΡΡΡ Π»ΠΈΡΡΠΌΠΈ ΠΈΠ»ΠΈ ΡΠ²Π°ΡΠ½ΡΠΌΠΈ.
Π ΡΠ»ΡΡΠ°Π΅ Π½Π΅ΠΎΠ±Ρ ΠΎΠ΄ΠΈΠΌΠΎΡΡΠΈ ΠΏΠΎΠ²ΡΡΠ΅Π½ΠΈΡ ΠΊΠΎΡΡΡΠΈΡΠΈΠ΅Π½ΡΠ° ΡΡΠ΅Π½ΠΈΡ ΠΏΠΎΠ²Π΅ΡΡ Π½ΠΎΡΡΡ ΠΏΡΠΈΠ²ΠΎΠ΄Π½ΠΎΠ³ΠΎ Π±Π°ΡΠ°Π±Π°Π½Π° ΡΡΡΠ΅ΡΡΡΡ Π΄Π΅ΡΠ΅Π²ΠΎΠΌ ΠΈΠ»ΠΈ ΡΠΎΠΉ ΠΆΠ΅ ΡΠ΅ΠΊΡΡΠΈΠ»ΡΠ½ΠΎΠΉ Π»Π΅Π½ΡΠΎΠΉ. ΠΠ° ΡΡΠ±Π΅ΠΆΠΎΠΌ Π΄Π»Ρ ΡΡΡΠ΅ΡΠΎΠ²ΠΊΠΈ Π±Π°ΡΠ°Π±Π°Π½ΠΎΠ² ΠΏΡΠΈΠΌΠ΅Π½ΡΡΡ ΠΏΠ»Π°ΡΡΠΌΠ°ΡΡΡ (ΠΏΠΎΠ»ΠΈΠ²ΠΈΠ½ΠΈΠ»Ρ Π»ΠΎΡΠΈΠ΄, ΠΏΠΎΠ»ΠΈΠ°ΠΌΠΈΠ΄ ΠΈ Π΄Ρ.), ΡΡΠΎ Π·Π½Π°ΡΠΈΡΠ΅Π»ΡΠ½ΠΎ ΡΠ²Π΅Π»ΠΈΡΠΈΠ²Π°Π΅Ρ ΠΈΠ·Π½ΠΎΡΠΎΡΡΠΎΠΉΠΊΠΎΡΡΡ Π»Π΅Π½ΡΡ, Π° Π²ΡΡΠΎΠΊΠΈΠΉ ΠΊΠΎΡΡΡΠΈΡΠΈΠ΅Π½Ρ ΡΡΠ΅Π½ΠΈΡ (0,5β0,6) ΠΏΠΎΠ²ΡΡΠ°Π΅Ρ ΡΡΠ³ΠΎΠ²ΡΡ ΡΠΏΠΎΡΠΎΠ±Π½ΠΎΡΡΡ ΠΏΡΠΈΠ²ΠΎΠ΄Π°.
ΠΠ° ΠΏΠ΅ΡΠ΅Π΄Π²ΠΈΠΆΠ½ΡΡ ΠΈ ΡΡΠ°ΡΠΈΠΎΠ½Π°ΡΠ½ΡΡ ΠΊΠΎΠ½Π²Π΅ΠΉΠ΅ΡΠ°Ρ Π½Π΅Π±ΠΎΠ»ΡΡΠΎΠΉ Π΄Π»ΠΈΠ½Ρ Π½Π°Ρ ΠΎΠ΄ΡΡ ΠΏΡΠΈΠΌΠ΅Π½Π΅Π½ΠΈΠ΅ ΡΠ»Π΅ΠΊΡΡΠΎΠ±Π°ΡΠ°Π±Π°Π½Ρ, Π² ΠΊΠΎΡΠΎΡΡΡ Π΄Π²ΠΈΠ³Π°ΡΠ΅Π»Ρ ΠΈ ΡΠ΅Π΄ΡΠΊΡΠΎΡ Π·Π°ΠΊΠ»ΡΡΠ΅Π½Ρ Π²Π½ΡΡΡΠΈ Π±Π°ΡΠ°Π±Π°Π½Π°, ΡΡΠΎ ΠΏΠΎΠ·Π²ΠΎΠ»ΡΠ΅Ρ ΡΠΎΠ·Π΄Π°ΡΡ Π²Π΅ΡΡΠΌΠ° ΠΊΠΎΠΌΠΏΠ°ΠΊΡΠ½ΡΡ ΠΈ Π»Π΅Π³ΠΊΡΡ ΠΊΠΎΠ½ΡΡΡΡΠΊΡΠΈΡ. ΠΠ΄Π½Π°ΠΊΠΎ ΡΡΠ»ΠΎΠ²ΠΈΡ ΡΠ°Π±ΠΎΡΡ ΡΠ»Π΅ΠΊΡΡΠΎΠ΄Π²ΠΈΠ³Π°ΡΠ΅Π»Ρ, Π²ΡΠ»Π΅Π΄ΡΡΠ²ΠΈΠ΅ ΡΡ ΡΠ΄ΡΠ΅Π½ΠΈΡ ΡΡΠ»ΠΎΠ²ΠΈΠΉ ΠΎΡ Π»Π°ΠΆΠ΄Π΅Π½ΠΈΡ, Π² ΡΡΠΈΡ ΠΊΠΎΠ½ΡΡΡΡΠΊΡΠΈΡΡ Π·Π½Π°ΡΠΈΡΠ΅Π»ΡΠ½ΠΎ Π±ΠΎΠ»Π΅Π΅ ΡΡΠΆΠ΅Π»ΡΠ΅, ΡΠ΅ΠΌ Π² Π΄ΡΡΠ³ΠΈΡ .
ΠΠΎΠ²Π΅ΡΡ Π½ΠΎΡΡΡ Π±Π°ΡΠ°Π±Π°Π½Π° Π΄Π»Ρ ΡΡΠ°Π»ΡΠ½ΠΎΠΉ Π»Π΅Π½ΡΡ ΠΈΠΌΠ΅Π΅Ρ ΡΠΈΡΠΎΠΊΠΈΠ΅ ΠΊΠ°Π½Π°Π²ΠΊΠΈ, ΠΏΠΎ ΠΊΠΎΡΠΎΡΡΠΌ ΠΏΡΠΎΡ ΠΎΠ΄ΡΡ ΠΊΡΠ΅ΠΏΠ»Π΅Π½ΠΈΡ Π»Π΅Π½ΡΡ.
Π ΠΈΡ. 10. ΠΠ°ΡΠ°Π±Π°Π½ Π΄Π»Ρ ΡΠ΅ΠΊΡΡΠΈΠ»ΡΠ½ΠΎΠΉ ΠΊΠΎΠ½Π²Π΅ΠΉΠ΅ΡΠ½ΠΎΠΉ Π»Π΅Π½ΡΡ:
Π° β Π½Π΅ΠΏΡΠΈΠ²ΠΎΠ΄Π½ΠΎΠΉ ΡΠΈΠ»ΠΈΠ½Π΄ΡΠΈΡΠ΅ΡΠΊΠΈΠΉ! 6 β ΠΏΡΠΈΠ²ΠΎΠ΄Π½ΠΎΠΉ Π±ΠΎΡΠΊΠΎΠΎΠ±ΡΠ°Π·Π½ΡΠΉ
ΠΠΎΠ΄Π΄Π΅ΡΠΆΠΈΠ²Π°ΡΡΠΈΠ΅ ΡΠΎΠ»ΠΈΠΊΠΈ.
Π§ΡΠΎΠ±Ρ Π»Π΅Π½ΡΠ° ΠΏΠΎΠ΄ Π²Π»ΠΈΡΠ½ΠΈΠ΅ΠΌ ΡΠΎΠ±ΡΡΠ²Π΅Π½Π½ΠΎΠ³ΠΎ Π²Π΅ΡΠ° ΠΈ Π²Π΅ΡΠ° Π³ΡΡΠ·Π° Π½Π΅ ΠΏΡΠΎΠ²ΠΈΡΠ°Π»Π°, ΠΌΠ΅ΠΆΠ΄Ρ Π±Π°ΡΠ°Π±Π°Π½Π°ΠΌΠΈ ΡΡΡΠ°Π½Π°Π²Π»ΠΈΠ²Π°ΡΡ ΠΏΠΎΠ΄Π΄Π΅ΡΠΆΠΈΠ²Π°ΡΡΠΈΠ΅ ΡΠΎΠ»ΠΈΠΊΠΈ. ΠΠΈΠ°ΠΌΠ΅ΡΡ ΡΠΎΠ»ΠΈΠΊΠ° Π²ΡΠ±ΠΈΡΠ°ΡΡ Π² Π·Π°Π²ΠΈΡΠΈΠΌΠΎΡΡΠΈ ΠΎΡ ΡΠΈΡΠΈΠ½Ρ Π»Π΅Π½ΡΡ, Π΅Π΅ ΡΠΊΠΎΡΠΎΡΡΠΈ Π΄Π²ΠΈΠΆΠ΅Π½ΠΈΡ, Π²ΠΈΠ΄Π° Π³ΡΡΠ·Π° ΠΈ, ΠΎΡΠΎΠ±Π΅Π½Π½ΠΎ, Π² Π·Π°Π²ΠΈΡΠΈΠΌΠΎΡΡΠΈ ΠΎΡ ΡΠ°Π·ΠΌΠ΅ΡΠΎΠ² ΠΊΡΡΠΊΠΎΠ².
ΠΠ»Ρ ΠΎΠ±Π΅ΡΠΏΠ΅ΡΠ΅Π½ΠΈΡ ΡΠΎΠ²Π½ΠΎΠ³ΠΎ Ρ ΠΎΠ΄Π° Π»Π΅Π½ΡΡ Π²ΡΠ΅ ΡΠΎΠ»ΠΈΠΊΠΎΠΎΠΏΠΎΡΡ Π΄ΠΎΠ»ΠΆΠ½Ρ Π±ΡΡΡ ΡΠ°ΡΠΏΠΎΠ»ΠΎΠΆΠ΅Π½Ρ Π½ΠΎΡΠΌΠ°Π»ΡΠ½ΠΎ ΠΊ ΠΏΡΠΎΠ΄ΠΎΠ»ΡΠ½ΠΎΠΉ ΠΎΡΠΈ ΠΊΠΎΠ½Π²Π΅ΠΉΠ΅ΡΠ°. Π Π½Π΅ΠΊΠΎΡΠΎΡΡΡ ΡΠ»ΡΡΠ°ΡΡ Π½Π΅ΠΎΠ±Ρ ΠΎΠ΄ΠΈΠΌΠΎ ΠΏΡΠΈΠΌΠ΅Π½ΡΡΡ ΡΠ°ΠΊ Π½Π°Π·ΡΠ²Π°Π΅ΠΌΡΠ΅ ΡΠ΅Π½ΡΡΠΈΡΡΡ? ΡΠΈΠ΅ ΡΠΎΠ»ΠΈΠΊΠΎΠΎΠΏΠΎΡΡ, Π² ΠΊΠΎΡΠΎΡΡΡ Π±Π»ΠΎΠΊ ΠΏΠΎΠ΄Π΄Π΅ΡΠΆΠΈΠ²Π°ΡΡΠΈΡ ΡΠΎΠ»ΠΈΠΊΠΎΠ² ΠΌΠΎΠ½ΡΠΈΡΡΠ΅ΡΡΡ Π½Π° ΡΠ°ΠΌΠΊΠ΅ Ρ ΡΠ°ΠΏΡΠΎΠΉ, ΠΎΠ±Π΅ΡΠΏΠ΅ΡΠΈΠ²Π°ΡΡΠ΅ΠΉ Π²ΠΎΠ·ΠΌΠΎΠΆΠ½ΠΎΡΡΡ ΠΏΠΎΠ²ΠΎΡΠΎΡΠ° Π±Π»ΠΎΠΊΠ° ΠΎΡΠ½ΠΎΡΠΈΡΠ΅Π»ΡΠ½ΠΎ Π²Π΅ΡΡΠΈΠΊΠ°Π»ΡΠ½ΠΎΠΉ ΠΎΡΠΈ. Π‘Π±Π΅Π³Π°Ρ Π² ΡΡΠΎΡΠΎΠ½Ρ, Π»Π΅Π½ΡΠ° ΡΠ²ΠΎΠ΅ΠΉ ΠΊΡΠΎΠΌΠΊΠΎΠΉ Π½Π°ΠΆΠΈΠΌΠ°Π΅Ρ Π½Π° ΡΠ΅Π½ΡΡΠΈΡΡΡΡΠΈΠΉ ΡΠΎΠ»ΠΈΠΊ, ΡΡΠΎ ΠΏΡΠΈΠ²ΠΎΠ΄ΠΈΡ ΠΊ ΠΏΠΎΠ²ΠΎΡΠΎΡΡ ΡΠ°ΠΌΠΊΠΈ Π£. ΠΡΠΈ ΡΡΠΎΠΌ Π²ΠΎΠ·Π½ΠΈΠΊΠ°Π΅Ρ ΡΡΠΈΠ»ΠΈΠ΅, Π²ΠΎΠ·Π²ΡΠ°ΡΠ°ΡΡΠ΅Π΅ Π»Π΅Π½ΡΡ Π² ΡΠ΅Π½ΡΡΠ°Π»ΡΠ½ΠΎΠ΅ ΠΏΠΎΠ»ΠΎΠΆΠ΅Π½ΠΈΠ΅.
Π ΠΎΠ»ΠΈΠΊΠΈ ΠΊΠΎΠ½Π²Π΅ΠΉΠ΅ΡΠ° ΡΠΎ ΡΡΠ°Π»ΡΠ½ΠΎΠΉ Π»Π΅Π½ΡΠΎΠΉ ΠΎΠ±ΡΡΠ½ΠΎ Π²ΡΠΏΠΎΠ»Π½ΡΡΡ ΡΠΎΡΡΠ°Π²Π½ΡΠΌΠΈ ΠΈΠ· Π½Π΅ΡΠΊΠΎΠ»ΡΠΊΠΈΡ
ΡΠ·ΠΊΠΈΡ
ΡΠΎΠ»ΠΈΠΊΠΎΠ², ΠΏΡΠΈΡΠ΅ΠΌ ΡΠ»Π΅ΠΌΠ΅Π½ΡΡ ΠΊΡΠ΅ΠΏΠ»Π΅Π½ΠΈΡ ΠΊΠΎΠ½ΡΠΎΠ² Π»Π΅Π½ΡΡ ΠΏΡΠΎΡ
ΠΎΠ΄ΡΡ ΠΌΠ΅ΠΆΠ΄Ρ ΡΠΎΠ»ΠΈΠΊΠ°ΠΌΠΈ, Π½Π΅ ΠΊΠ°ΡΠ°ΡΡΡ ΠΈΡ
, ΡΡΠΎ ΠΎΠ±Π΅ΡΠΏΠ΅ΡΠΈΠ²Π°Π΅Ρ ΠΏΠ»Π°Π²Π½ΡΡ ΡΠ°Π±ΠΎΡΡ ΠΊΠΎΠ½Π²Π΅ΠΉΠ΅ΡΠ°.
ΠΠ»Ρ ΡΠΌΠ΅Π½ΡΡΠ΅Π½ΠΈΡ ΡΠΎΠ»ΡΠΊΠΎΠ² ΠΈ ΡΠ΄Π°ΡΠΎΠ² ΠΏΡΠΈ ΠΏΠ΅ΡΠ΅Π΄Π²ΠΈΠΆΠ΅Π½ΠΈΠΈ Π»Π΅Π½ΡΡ Π½Π°Ρ ΠΎΠ΄ΡΡ ΠΏΡΠΈΠΌΠ΅Π½Π΅Π½ΠΈΠ΅ ΡΠ°Π·Π»ΠΈΡΠ½ΡΠ΅ ΠΊΠΎΠ½ΡΡΡΡΠΊΡΠΈΠΈ Π°ΠΌΠΎΡΡΠΈΠ·ΠΈΡΡΡΡΠΈΡ ΡΠΎΠ»ΠΈΠΊΠΎ-ΠΎΠΏΠΎΡ. ΠΠ° ΡΠΈΡ. 228, Π° ΠΏΡΠ΅Π΄ΡΡΠ°Π²Π»Π΅Π½Π° ΠΊΠΎΠ½ΡΡΡΡΠΊΡΠΈΡ ΡΠ΅Π·ΠΈΠ½ΠΎΠ²ΡΡ Π°ΠΌΠΎΡΡΠΈΠ·ΠΈΡΡΡΡΠΈΡ ΡΠΎΠ»ΠΈΠΊΠΎΠ², ΠΈΠΌΠ΅ΡΡΠΈΡ Π²ΠΎ Π²Π½ΡΡΡΠ΅Π½Π½Π΅ΠΉ ΠΏΠΎΠ»ΠΎΡΡΠΈ Π²ΠΎΠ·Π΄ΡΡΠ½ΡΠ΅ ΠΊΠ°ΠΌΠ΅ΡΡ. Π£Π΄Π°ΡΡ ΠΊΡΡΠΊΠΎΠ² ΡΡΠΆΠ΅Π»ΠΎΠ³ΠΎ ΠΌΠ°ΡΠ΅ΡΠΈΠ°Π»Π°, ΠΏΠ°Π΄Π°ΡΡΠ΅Π³ΠΎ Π² Π·ΠΎΠ½Π΅ Π·Π°Π³ΡΡΠ·ΠΊΠΈ ΠΊΠΎΠ½Π²Π΅ΠΉΠ΅ΡΠ° Π½Π° Π»Π΅Π½ΡΡ, Π΄Π΅ΠΌΠΏΡΠΈΡΡΡΡΡΡ ΡΠΆΠ°ΡΠΈΠ΅ΠΌ ΡΠ΅Π·ΠΈΠ½ΠΎΠ²ΡΡ ΡΠΈΠ»ΠΈΠ½Π΄ΡΠΎΠ² ΠΈ Π²ΠΎΠ·Π΄ΡΡΠ½ΡΡ ΠΊΠ°ΠΌΠ΅Ρ. ΠΠ°Π»ΠΈΡΠΈΠ΅ Π²ΠΈΠ½ΡΠΎΠ²ΡΡ ΠΊΠ°Π½Π°Π²ΠΎΠΊ Π½Π° ΠΏΠΎΠ²Π΅ΡΡ Π½ΠΎΡΡΠΈ Π±ΠΎΠΊΠΎΠ²ΡΡ ΡΠΎΠ»ΠΈΠΊΠΎΠ² ΠΎΠ±Π΅ΡΠΏΠ΅ΡΠΈΠ²Π°Π΅Ρ ΡΠ΅Π½ΡΡΠΈΡΠΎΠ²Π°Π½ΠΈΠ΅ Π»Π΅Π½ΡΡ.
Π ΠΈΡ. 11. ΠΠΎΠ½Π²Π΅ΠΉΠ΅ΡΠ½ΡΠ΅ ΡΠΎΠ»ΠΈΠΊΠΈ:
Π° β ΠΊΠΎΠ½ΡΡΡΡΠΊΡΠΈΠΈ; Π± β ΡΡΡΠ°Π½ΠΎΠ²ΠΊΠ° ΡΠΎΠ»ΠΈΠΊΠΎΠ² Π΄Π»Ρ ΠΎΠ±ΡΠ°Π·ΠΎΠ²Π°Π½ΠΈΡ ΠΆΠ΅Π»ΠΎΠ±ΡΠ°ΡΠΎΠΉ Π»Π΅Π½ΡΡ; Π² β ΡΠΎΠ»ΠΈΠΊΠΈ Ρ ΠΏΠ΅ΡΠ΅ΠΌΠ΅Π½Π½ΡΠΌ ΡΠ³Π»ΠΎΠΌ Π½Π°ΠΊΠ»ΠΎΠ½Π°
Π ΠΈΡ. 12. Π¦Π΅Π½ΡΡΠΈΡΡΡΡΠ°Ρ ΡΠΎΠ»ΠΈΠΊΠΎΠΎΠΏΠΎΡΠ°
Π° β ΡΠ΅Π·ΠΈΠ½ΠΎΠ²ΡΠ΅ ΡΠΎΠ»ΠΈΠΊΠΈ Ρ Π²ΠΎΠ·Π΄ΡΡΠ½ΠΎΠΉ ΠΊΠ°ΠΌΠ΅ΡΠΎΠΉ; Π± β ΠΏΠΎΠΏΠ΅ΡΠ΅ΡΠ½ΠΎΠ΅ ΡΠ΅ΡΠ΅Π½ΠΈΠ΅ ΠΊΠΎΠ½Π²Π΅ΠΉΠ΅ΡΠ° Ρ ΡΠ΅Π·ΠΈΠ½ΠΎΠ²ΡΠΌΠΈ ΡΠΎΠ»ΠΈΠΊΠ°ΠΌΠΈ Π½Π° ΡΡΠΎΡΡΠ΅; Π² β ΡΡΡΠ°Π½ΠΎΠ²ΠΊΠ° ΠΎΠΏΠΎΡΡ
Π ΠΈΡ. 13. ΠΠΎΠ΄Π΄Π΅ΡΠΆΠΈΠ²Π°ΡΡΠΈΠ΅ ΡΠΎΠ»ΠΈΠΊΠΈ ΠΊΠΎΠ½Π²Π΅ΠΉΠ΅ΡΠ° ΡΠΎ ΡΡΠ°Π»ΡΠ½ΠΎΠΉ Π»Π΅Π½ΡΠΎΠΉ:
Π° β ΠΏΡΠΈ ΠΏΠ»ΠΎΡΠΊΠΎΠΉ Π»Π΅Π½ΡΠ΅; Π± β ΠΏΡΠΈ ΠΆΠ΅Π»ΠΎΠ±ΡΠ°ΡΠΎΠΉ Π»Π΅Π½ΡΠ΅
Π ΠΈΡ. 14. ΠΠΈΠ±ΠΊΠΈΠ΅ ΡΠΎΠ»ΠΈΠΊΠΎΠΎΠΏΠΎΡΡ Π΄Π»Ρ ΡΠ΅ΠΊΡΡΠΈΠ»ΡΠ½ΠΎΠΉ Π»Π΅Π½ΡΡ:
ΠΠ»Ρ ΡΡΠ°Π»ΡΠ½ΠΎΠΉ Π»Π΅Π½ΡΡ ΡΠΈΡΠΎΠΊΠΎΠ΅ ΠΏΡΠΈΠΌΠ΅Π½Π΅Π½ΠΈΠ΅ ΠΏΠΎΠ»ΡΡΠΈΠ»ΠΈ ΠΏΡΡΠΆΠΈΠ½Π½ΡΠ΅ ΡΠΎΠ»ΠΈΠΊΠΎΠΎΠΏΠΎΡΡ, Π΄Π°ΡΡΠΈΠ΅ Π²ΠΎΠ·ΠΌΠΎΠΆΠ½ΠΎΡΡΡ ΡΠΎΠ·Π΄Π°Π½ΠΈΡ ΠΏΡΠΎΠ³ΠΈΠ±Π°, ΠΏΡΠΎΠΏΠΎΡΡΠΈΠΎΠ½Π°Π»ΡΠ½ΠΎΠ³ΠΎ Π²Π΅ΡΡ ΠΏΠ΅ΡΠ΅ΠΌΠ΅ΡΠ°Π΅ΠΌΠΎΠ³ΠΎ Π³ΡΡΠ·Π° ΠΈ ΠΎΠ±ΡΠ°Π·ΠΎΠ²Π°Π½ΠΈΡ ΠΆΠ΅Π»ΠΎΠ±ΡΠ°ΡΠΎΠ³ΠΎ ΡΠ΅ΡΠ΅Π½ΠΈΡ, ΡΡΠΎ ΠΏΠΎΠ²ΡΡΠ°Π΅Ρ Π² 1,5β2 ΡΠ°Π·Π° ΠΏΡΠΎΠΈΠ·Π²ΠΎΠ΄ΠΈΡΠ΅Π»ΡΠ½ΠΎΡΡΡ ΠΊΠΎΠ½Π²Π΅ΠΉΠ΅ΡΠ° ΠΏΡΠΈ ΡΠ΅Ρ
ΠΆΠ΅ ΠΎΡΡΠ°Π»ΡΠ½ΡΡ
ΠΏΠ°ΡΠ°ΠΌΠ΅ΡΡΠ°Ρ
.
ΠΠ»Ρ ΡΠ΅ΠΊΡΡΠΈΠ»ΡΠ½ΠΎΠΉ Π»Π΅Π½ΡΡ ΠΏΡΠΈΠΌΠ΅Π½ΡΡΡ Π³ΠΈΠ±ΠΊΠΈΠ΅ ΡΠΎΠ»ΠΈΠΊΠΎΠΎΠΏΠΎΡΡ, ΡΠΎΡΡΠΎΡΡΠΈΠ΅ ΠΈΠ· ΡΡΠ°Π»ΡΠ½ΠΎΠ³ΠΎ ΡΡΠΎΡΠ° Ρ ΡΠ΅Π·ΠΈΠ½ΠΎΠ²ΡΠΌΠΈ ΡΠΎΠ»ΠΈΠΊΠ°ΠΌΠΈ ΠΈ ΡΡΡΠ±ΠΊΠ°ΠΌΠΈ, Π·Π°ΠΊΡΠ΅ΠΏΠ»Π΅Π½Π½ΡΠΌΠΈ Π½Π° ΡΠΎΠ»ΠΈΠΊΠ΅ ΠΏΡΡΠ΅ΠΌ Π²ΡΠ»ΠΊΠ°Π½ΠΈΠ·Π°ΡΠΈΠΈ. ΠΠΎΠ½ΡΡ ΡΡΠΎΡΠ° Π·Π°Π΄Π΅Π»Π°Π½Ρ Π²ΠΎ Π²ΡΡΠ»ΠΊΠ°Ρ
ΠΈ Π²ΡΠ°ΡΠ°ΡΡΡΡ Π½Π° ΠΏΠΎΠ΄ΡΠΈΠΏΠ½ΠΈΠΊΠ°Ρ
, ΡΡΡΠ°Π½ΠΎΠ²Π»Π΅Π½Π½ΡΡ
Π² Π½Π΅ΠΏΠΎΠ΄Π²ΠΈΠΆΠ½ΡΡ
ΠΎΠΏΠΎΡΠ°Ρ
, Π·Π°ΠΊΡΠ΅ΠΏΠ»Π΅Π½Π½ΡΡ
Π½Π° ΡΠ°ΠΌΠ΅ ΠΊΠΎΠ½Π²Π΅ΠΉΠ΅ΡΠ°. ΠΡΠ° ΠΎΠΏΠΎΡΠ° ΡΠ°ΠΊΠΆΠ΅ ΡΠΎΠ·Π΄Π°Π΅Ρ ΠΆΠ΅Π»ΠΎΠ±ΡΠ°ΡΠΎΡΡΡ Π»Π΅Π½ΡΡ, ΠΏΡΠΎΠΏΠΎΡΡΠΈΠΎΠ½Π°Π»ΡΠ½ΡΡ Π²Π΅ΡΡ Π³ΡΡΠ·Π° Π½Π° Π»Π΅Π½ΡΠ΅, Π½ΠΎ ΠΈΠΌΠ΅Π΅Ρ Π½Π΅ΡΠΊΠΎΠ»ΡΠΊΠΎ Π±ΠΎΠ»ΡΡΠΈΠΉ ΠΊΠΎΡΡΡΠΈΡΠΈΠ΅Π½Ρ ΡΠΎΠΏΡΠΎΡΠΈΠ²Π»Π΅Π½ΠΈΡ Π΄Π²ΠΈΠΆΠ΅Π½ΠΈΡ. Π Π½Π΅ΠΊΠΎΡΠΎΡΡΡ
ΡΠ»ΡΡΠ°ΡΡ
ΠΆΠ΅ΡΡΠΊΠ°Ρ ΠΎΠΏΠΎΡΠ½Π°Ρ ΠΌΠ΅ΡΠ°Π»Π»ΠΈΡΠ΅ΡΠΊΠ°Ρ ΠΊΠΎΠ½ΡΡΡΡΠΊΡΠΈΡ ΡΠ°ΠΌΡ ΠΊΠΎΠ½Π²Π΅ΠΉΠ΅ΡΠ° Π·Π°ΠΌΠ΅Π½ΡΠ΅ΡΡΡ ΠΊΡΠ΅ΠΏΠ»Π΅Π½ΠΈΠ΅ΠΌ ΡΠΎΠ»ΠΈΠΊΠΎΠΎΠΏΠΎΡ Π½Π° Π΄Π²ΡΡ
ΡΡΠ³ΠΎ Π½Π°ΡΡΠ½ΡΡΡΡ
ΡΡΠ°Π»ΡΠ½ΡΡ
ΠΊΠ°Π½Π°ΡΠ°Ρ
, ΠΊ ΠΊΠΎΡΠΎΡΡΠΌ ΡΠΎΠ»ΠΈΠΊΠΎΠΎΠΏΠΎΡΡ ΠΏΡΠΈΠΊΡΠ΅ΠΏΠ»ΡΡΡΡΡ Π·Π°ΠΆΠΈΠΌΠ°ΠΌΠΈ Π½Π° ΡΠ°ΡΡΡΠΎΡΠ½ΠΈΠΈ, ΠΎΠΏΡΠ΅Π΄Π΅Π»ΡΠ΅ΠΌΠΎΠΌ Π² Π·Π°Π²ΠΈΡΠΈΠΌΠΎΡΡΠΈ ΠΎΡ Π²ΠΈΠ΄Π° ΡΡΠ°Π½ΡΠΏΠΎΡΡΠΈΡΡΠ΅ΠΌΠΎΠ³ΠΎ ΠΌΠ°ΡΠ΅ΡΠΈΠ°Π»Π°. Π’Π°ΠΊΠΈΠ΅ ΠΊΠΎΠ½Π²Π΅ΠΉΠ΅ΡΡ ΠΈΠΌΠ΅ΡΡ ΠΎΡΠ½ΠΎΡΠΈΡΠ΅Π»ΡΠ½ΠΎ Π½ΠΈΠ·ΠΊΡΡ ΠΏΠ΅ΡΠ²ΠΎΠ½Π°ΡΠ°Π»ΡΠ½ΡΡ ΡΡΠΎΠΈΠΌΠΎΡΡΡ ΠΈ Π»Π΅Π³ΠΊΠΎ ΡΡΡΠ°Π½Π°Π²Π»ΠΈΠ²Π°ΡΡΡΡ.
Π ΠΈΡ. 15. Π£ΡΡΠ°Π½ΠΎΠ²ΠΊΠ° ΡΠΎΠ»ΠΈΠΊΠΎΠΎΠΏΠΎΡ Π½Π° ΠΊΠ°Π½Π°ΡΠ°Ρ
ΠΡΠΈΠ²ΠΎΠ΄Π½ΡΠ΅ ΡΡΠ°Π½ΡΠΈΠΈ. ΠΠ°Π·Π½Π°ΡΠ΅Π½ΠΈΠ΅ ΠΏΡΠΈΠ²ΠΎΠ΄Π½ΠΎΠΉ ΡΡΠ°Π½ΡΠΈΠΈβΠΏΡΠΈΠ²Π΅Π΄Π΅Π½ΠΈΠ΅ Π² Π΄Π²ΠΈΠΆΠ΅Π½ΠΈΠ΅ ΡΡΠ³ΠΎΠ²ΠΎΠ³ΠΎ ΠΎΡΠ³Π°Π½Π° ΠΊΠΎΠ½Π²Π΅ΠΉΠ΅ΡΠ° ΠΈ Π³ΡΡΠ·Π°. ΠΡΠΈΠ²ΠΎΠ΄Π½Π°Ρ ΡΡΠ°Π½ΡΠΈΡ ΡΠΎΡΡΠΎΠΈΡ ΠΈΠ· Π΄Π²ΠΈΠ³Π°ΡΠ΅Π»Ρ, ΡΠ΅Π΄ΡΠΊΡΠΎΡΠ° Ρ ΡΠΈΠ»ΠΈΠ½Π΄ΡΠΈΡΠ΅ΡΠΊΠΎΠΉ ΠΈΠ»ΠΈ ΡΠ΅ΡΠ²ΡΡΠ½ΠΎΠΉ ΠΏΠ΅ΡΠ΅Π΄Π°ΡΠ΅ΠΉ, Π±Π°ΡΠ°Π±Π°Π½Π°, Π° ΡΠ°ΠΊΠΆΠ΅ ΠΌΡΡΡ, ΡΠΎΠ΅Π΄ΠΈΠ½ΡΡΡΠΈΡ
Π΄Π²ΠΈΠ³Π°ΡΠ΅Π»Ρ Ρ ΡΠ΅Π΄ΡΠΊΡΠΎΡΠΎΠΌ ΠΈ ΡΠ΅Π΄ΡΠΊΡΠΎΡ Ρ Π²Π°Π»ΠΎΠΌ Π±Π°ΡΠ°Π±Π°Π½Π°*.
Π Π·Π°Π²ΠΈΡΠΈΠΌΠΎΡΡΠΈ ΠΎΡ ΡΡΠ΅Π±ΠΎΠ²Π°Π½ΠΈΠΉ ΡΠ΅Ρ
Π½ΠΎΠ»ΠΎΠ³ΠΈΡΠ΅ΡΠΊΠΎΠ³ΠΎ ΠΏΡΠΎΡΠ΅ΡΡΠ° ΠΏΡΠΈΠ²ΠΎΠ΄ ΠΊΠΎΠ½Π²Π΅ΠΉΠ΅ΡΠ° ΠΌΠΎΠΆΠ΅Ρ ΠΎΠ±Π΅ΡΠΏΠ΅ΡΠΈΡΡ Π΄Π²ΠΈΠΆΠ΅Π½ΠΈΠ΅ Π»Π΅Π½ΡΡ Ρ Π½Π΅ΠΈΠ·ΠΌΠ΅Π½Π½ΠΎΠΉ ΠΈΠ»ΠΈ ΠΏΠ΅ΡΠ΅ΠΌΠ΅Π½Π½ΠΎΠΉ ΡΠΊΠΎΡΠΎΡΡΡΡ, ΠΈΠ·ΠΌΠ΅Π½ΡΡΡΠ΅ΠΉΡΡ ΡΡΡΠΏΠ΅Π½ΡΠ°ΡΠΎ ΠΈΠ»ΠΈ ΠΏΠ»Π°Π²Π½ΠΎ.
Π’ΡΠ³ΠΎΠ²ΠΎΠ΅ ΡΡΠΈΠ»ΠΈΠ΅ ΠΌΠΎΠΆΠ½ΠΎ ΡΠ²Π΅Π»ΠΈΡΠΈΡΡ ΠΏΡΡΠ΅ΠΌ ΡΠΎΠ·Π΄Π°Π½ΠΈΡ Π²ΡΡΠΎΠΊΠΎΠ³ΠΎ Π·Π½Π°ΡΠ΅Π½ΠΈΡ ΠΊΠΎΡΡΡΠΈΡΠΈΠ΅Π½ΡΠ° ΡΡΠ΅ΠΏΠ»Π΅Π½ΠΈΡ ΠΈΠ»ΠΈ ΡΠ²Π΅Π»ΠΈΡΠ΅Π½ΠΈΡ ΡΠ³Π»Π° ΠΎΠ±Ρ Π²Π°ΡΠ°. Π ΠΊΠΎΠ½Π²Π΅ΠΉΠ΅ΡΠ°Ρ ΡΠ΅Π΄ΠΊΠΎ ΠΏΡΠΈΠ½ΠΈΠΌΠ°ΡΡ ΡΠ³ΠΎΠ» Π°=180Β°. ΠΠΎΡΠ°Π·Π΄ΠΎ ΡΠ°ΡΠ΅ ΡΡΠΎΡ ΡΠ³ΠΎΠ» Π²ΡΠΏΠΎΠ»Π½ΡΡΡ Π°>180Β°, Π΄Π»Ρ ΡΠ΅Π³ΠΎ ΠΏΡΠΈΠΌΠ΅Π½ΡΡΡ Π΄ΠΎΠΏΠΎΠ»Π½ΠΈΡΠ΅Π»ΡΠ½ΡΠ΅ ΠΎΡΠΊΠ»ΠΎΠ½ΡΡΡΠΈΠ΅ Π±Π°ΡΠ°Π±Π°Π½Ρ. Π ΠΏΡΠΈΠ²ΠΎΠ΄Π°Ρ ΠΊΠΎΠ½Π²Π΅ΠΉΠ΅ΡΠΎΠ², ΠΏΠ΅ΡΠ΅ΠΌΠ΅ΡΠ°ΡΡΠΈΡ ΡΡΠΆΠ΅Π»ΡΠ΅ Π³ΡΡΠ·Ρ Π½Π° Π±ΠΎΠ»ΡΡΠΈΠ΅ ΡΠ°ΡΡΡΠΎΡΠ½ΠΈΡ, Π΄Π»Ρ ΡΠ²Π΅Π»ΠΈΡΠ΅Π½ΠΈΡ ΡΡΠ³ΠΎΠ²ΠΎΠ³ΠΎ ΡΡΠΈΠ»ΠΈΡ ΠΈΠ½ΠΎΠ³Π΄Π° ΠΏΡΠΈΠΌΠ΅Π½ΡΡΡ Π΄Π²ΡΡ Π±Π°ΡΠ°Π±Π°Π½Π½ΡΠΉ ΠΏΡΠΈΠ²ΠΎΠ΄, Π² ΠΊΠΎΡΠΎΡΠΎΠΌ ΡΠ³ΠΎΠ» ΠΎΠ±Ρ Π²Π°ΡΠ° ΠΌΠΎΠΆΠ΅Ρ Π±ΡΡΡ Π·Π½Π°ΡΠΈΡΠ΅Π»ΡΠ½ΠΎ Π±ΠΎΠ»ΡΡΠ΅ 2Π». ΠΠ΄Π½Π°ΠΊΠΎ ΡΡΠΈ ΠΏΡΠΈΠ²ΠΎΠ΄Ρ Π²Π΅ΡΡΠΌΠ° ΡΠ»ΠΎΠΆΠ½Ρ ΠΏΠΎ ΡΠ²ΠΎΠ΅ΠΉ ΠΊΠΎΠ½ΡΡΡΡΠΊΡΠΈΠΈ ΠΈ ΡΠΎΠ·Π΄Π°ΡΡ ΡΠ²Π΅Π»ΠΈΡΠ΅Π½Π½ΡΠΉ ΠΈΠ·Π½ΠΎΡ ΠΊΠΎΠ½Π²Π΅ΠΉΠ΅ΡΠ½ΠΎΠΉ Π»Π΅Π½ΡΡ Π²ΡΠ»Π΅Π΄ΡΡΠ²ΠΈΠ΅ ΠΏΠ΅ΡΠ΅Π³ΠΈΠ±Π°Π½ΠΈΡ Π΅Π΅ Π² ΡΠ°Π·Π»ΠΈΡΠ½ΡΡ Π½Π°ΠΏΡΠ°Π²Π»Π΅Π½ΠΈΡΡ , ΡΡΠΎ ΠΏΠΎΠ²ΡΡΠ°Π΅Ρ ΡΡΡΠ°Π»ΠΎΡΡΡ Π»Π΅Π½ΡΡ ΠΈ ΡΡΠΊΠΎΡΡΠ΅Ρ Π΅Π΅ ΡΠ°ΡΡΠ»Π°ΠΈΠ²Π°Π½ΠΈΠ΅.
Π ΠΈΡ. 16. Π‘Ρ
Π΅ΠΌΡ ΠΏΡΠΈΠ²ΠΎΠ΄Π½ΡΡ
ΡΡΠ°Π½ΡΠΈΠΉ:
Π° β Ρ ΠΎΠ΄Π½ΠΈΠΌ ΠΏΡΠΈΠ²ΠΎΠ΄Π½ΡΠΌ Π±Π°ΡΠ°Π±Π°Π½ΠΎΠΌ; Π± β Ρ Π΄Π²ΡΠΌΡ ΠΏΡΠΈΠ²ΠΎΠ΄Π½ΡΠΌΠΈ Π±Π°ΡΠ°Π±Π°Π½Π°ΠΌΠΈ; 1 β ΠΏΡΠΈΠ²ΠΎΠ΄Π½ΠΎΠΉ Π±Π°ΡΠ°Π±Π°Π½; 2 β ΠΎΡΠΊΠ»ΠΎΠ½ΡΡΡΠΈΠΉ Π±Π°ΡΠ°Π±Π°Π½
ΠΡΠΈ Π΄Π²ΡΡ
Π±Π°ΡΠ°Π±Π°Π½Π½ΠΎΠΌ ΠΏΡΠΈΠ²ΠΎΠ΄Π΅ Π»Π΅Π½ΡΠΎΡΠ½ΡΡ
ΠΊΠΎΠ½Π²Π΅ΠΉΠ΅ΡΠΎΠ² Ρ ΠΆΠ΅ΡΡΠΊΠΎΠΉ ΡΠ²ΡΠ·ΡΡ ΠΌΠ΅ΠΆΠ΄Ρ Π±Π°ΡΠ°Π±Π°Π½Π°ΠΌΠΈ ΠΎΠΊΡΡΠΆΠ½ΡΠ΅ ΡΠΊΠΎΡΠΎΡΡΠΈ ΠΌΠΎΠ³ΡΡ Π±ΡΡΡ Π½Π° ΠΏΠ΅ΡΠ²ΠΎΠΌ ΠΈ Π²ΡΠΎΡΠΎΠΌ Π±Π°ΡΠ°Π±Π°Π½Π°Ρ
ΡΠ°Π·Π»ΠΈΡΠ½Ρ ΠΈΠ·-Π·Π° Π½Π΅ΠΎΠ΄ΠΈΠ½Π°ΠΊΠΎΠ²ΠΎΠΉ ΡΠΎΠ»ΡΠΈΠ½Ρ ΡΠ΅Π·ΠΈΠ½ΠΎΠ²ΡΡ
ΠΎΠ±ΠΊΠ»Π°Π΄ΠΎΠΊ ΠΈ ΡΡΠ΅ΠΏΠ΅Π½ΠΈ ΠΈΡ
ΠΈΠ·Π½ΠΎΡΠ°.
Π ΡΠ΅Π·ΡΠ»ΡΡΠ°ΡΠ΅ ΡΡΠΎΠ³ΠΎ Π½Π° ΠΎΠ΄Π½ΠΎΠΌ ΠΈΠ· Π±Π°ΡΠ°Π±Π°Π½ΠΎΠ² ΠΌΠΎΠΆΠ΅Ρ ΠΏΡΠΎΠΈΡΡ
ΠΎΠ΄ΠΈΡΡ ΠΏΡΠΎΡΠΊΠ°Π»ΡΠ·ΡΠ²Π°Π½ΠΈΠ΅ Π»Π΅Π½ΡΡ, ΡΡΠΎ ΠΏΡΠ΅Π΄ΠΎΡΠ²ΡΠ°ΡΠ°Π΅ΡΡΡ ΠΏΡΡΠ΅ΠΌ ΠΏΡΠΈΠΌΠ΅Π½Π΅Π½ΠΈΡ ΡΡΠ°Π²Π½ΠΈΡΠ΅Π»ΡΠ½ΠΎΠ³ΠΎ Π΄Π²ΡΡ
Π±Π°ΡΠ°Π±Π°Π½Π½ΠΎΠ³ΠΎ ΠΏΡΠΈΠ²ΠΎΠ΄Π° Π² ΠΎΡΠ²Π΅ΡΡΡΠ²Π΅Π½Π½ΡΡ
ΠΏΠ΅ΡΠ΅Π΄Π°ΡΠ°Ρ
Π·Π½Π°ΡΠΈΡΠ΅Π»ΡΠ½ΠΎΠΉ ΠΌΠΎΡΠ½ΠΎΡΡΠΈ. Π£ΡΠ°Π²Π½ΠΈΡΠ΅Π»ΡΠ½ΡΠ΅ ΠΏΡΠΈΠ²ΠΎΠ΄Ρ Ρ ΠΏΠ»Π°Π½Π΅ΡΠ°ΡΠ½ΡΠΌΠΈ ΠΏΠ΅ΡΠ΅Π΄Π°ΡΠ°ΠΌΠΈ ΠΈΠ»ΠΈ Π³ΠΈΠ΄ΡΠ°Π²Π»ΠΈΡΠ΅ΡΠΊΠΈΠΌΠΈ Π΄ΠΈΡΡΠ΅ΡΠ΅Π½ΡΠΈΠ°Π»Π°ΠΌΠΈ ΡΠ°ΡΠΏΡΠ΅Π΄Π΅Π»ΡΡΡ ΠΏΠ΅ΡΠ΅Π΄Π°Π²Π°Π΅ΠΌΡΠΉ Π΄Π²ΠΈΠ³Π°ΡΠ΅Π»Π΅ΠΌ ΠΊΡΡΡΡΡΠΈΠΉ ΠΌΠΎΠΌΠ΅Π½Ρ ΠΌΠ΅ΠΆΠ΄Ρ ΠΎΠ±ΠΎΠΈΠΌΠΈ ΠΏΡΠΈΠ²ΠΎΠ΄Π½ΡΠΌΠΈ Π±Π°ΡΠ°Π±Π°Π½Π°ΠΌΠΈ Π² ΠΎΠΏΡΠ΅Π΄Π΅Π»Π΅Π½Π½ΠΎΠΌ ΠΎΡΠ½ΠΎΡΠ΅Π½ΠΈΠΈ, ΠΏΡΠΈΡΠ΅ΠΌ ΠΊΠ°ΠΆΠ΄ΠΎΠΌΡ Π±Π°ΡΠ°Π±Π°Π½Ρ ΠΏΠ΅ΡΠ΅Π΄Π°Π΅ΡΡΡ ΠΌΠΎΠΌΠ΅Π½Ρ, Π²Π΅Π»ΠΈΡΠΈΠ½Π° ΠΊΠΎΡΠΎΡΠΎΠ³ΠΎ ΡΠΎΠΎΡΠ²Π΅ΡΡΡΠ²ΡΠ΅Ρ ΡΠ°ΡΡΠ΅ΡΠ½ΠΎΠΉ ΡΠΈΠ»Π΅ ΡΡΠ΅ΠΏΠ»Π΅Π½ΠΈΡ.
ΠΠ»Ρ ΡΠΌΠ΅Π½ΡΡΠ΅Π½ΠΈΡ ΠΏΡΠΎΡΠΊΠ°Π»ΡΠ·ΡΠ²Π°Π½ΠΈΡ Π»Π΅Π½ΡΡ Π½Π° ΠΏΡΠΈΠ²ΠΎΠ΄Π½ΠΎΠΌ Π±Π°ΡΠ°Π±Π°Π½Π΅ Π½Π°Ρ
ΠΎΠ΄ΠΈΡ ΠΏΡΠΈΠΌΠ΅Π½Π΅Π½ΠΈΠ΅ ΠΏΡΠΈΠ²ΠΎΠ΄ ΡΠΎ ΡΠΏΠ΅ΡΠΈΠ°Π»ΡΠ½ΠΎΠΉ ΠΏΡΠΈΠΆΠΈΠΌΠ½ΠΎΠΉ Π»Π΅Π½ΡΠΎΠΉ. Π ΡΠ»ΡΡΠ°Π΅ ΠΎΠ΄Π½ΠΎΠ±Π°ΡΠ°Π±Π°Π½Π½ΠΎΠ³ΠΎ ΠΏΡΠΈΠ²ΠΎΠ΄Π° ΠΊΠΎΠ½Π²Π΅ΠΉΠ΅ΡΠ½Π°Ρ Π»Π΅Π½ΡΠ° ΠΏΠΎΠΎΡΠ΅ΡΠ΅Π΄Π½ΠΎ ΠΎΠ³ΠΈΠ±Π°Π΅Ρ Π²Π΅ΡΡ
Π½ΠΈΠΉ ΠΎΡΠΊΠ»ΠΎΠ½ΡΡΡΠΈΠΉ Π±Π°ΡΠ°Π±Π°Π½, ΠΏΡΠΈΠ²ΠΎΠ΄Π½ΠΎΠΉ Π±Π°ΡΠ°Π±Π°Π½ ΠΈ Π½ΠΈΠΆΠ½ΠΈΠΉ ΠΎΡΠΊΠ»ΠΎΠ½ΡΡΡΠΈΠΉ Π±Π°ΡΠ°Π±Π°Π½. ΠΡΠΈΠΆΠΈΠΌΠ½Π°Ρ Π»Π΅Π½ΡΠ° 5 ΠΎΠ³ΠΈΠ±Π°Π΅Ρ ΡΠ΅ ΠΆΠ΅ Π±Π°ΡΠ°Π±Π°Π½Ρ ΡΠ°ΠΊΠΈΠΌ ΠΎΠ±ΡΠ°Π·ΠΎΠΌ, ΡΡΠΎ Π½Π° ΠΏΡΠΈΠ²ΠΎΠ΄Π½ΠΎΠΌ Π±Π°ΡΠ°Π±Π°Π½Π΅ ΠΎΠ½Π° Π»Π΅ΠΆΠΈΡ Π½Π° Π½Π°ΡΡΠΆΠ½ΠΎΠΉ ΠΏΠΎΠ²Π΅ΡΡ
Π½ΠΎΡΡΠΈ ΠΊΠΎΠ½Π²Π΅ΠΉΠ΅ΡΠ½ΠΎΠΉ Π»Π΅Π½ΡΡ, ΠΏΡΠΈΠΆΠΈΠΌΠ°Ρ Π΅Π΅ ΠΊ ΠΏΠΎΠ²Π΅ΡΡ
Π½ΠΎΡΡΠΈ ΠΏΡΠΈΠ²ΠΎΠ΄Π½ΠΎΠ³ΠΎ Π±Π°ΡΠ°Π±Π°Π½Π°. ΠΠ°ΡΡΠΆΠ΅Π½ΠΈΠ΅ ΠΏΡΠΈΠΆΠΈΠΌΠ½ΠΎΠΉ Π»Π΅Π½ΡΡ ΡΠΎΠ·Π΄Π°Π΅ΡΡΡ ΠΏΡΠΈ ΠΏΠΎΠΌΠΎΡΠΈ Π³ΡΡΠ·ΠΎΠ²ΠΎΠ³ΠΎ Π½Π°ΡΡΠΆΠ½ΠΎΠ³ΠΎ ΡΡΡΡΠΎΠΉΡΡΠ²Π°.
Π ΠΈΡ. 17. ΠΡΠΈΠΌΠ΅Π½Π΅Π½ΠΈΠ΅ ΠΏΡΠΈΠΆΠΈΠΌΠ½ΠΎΠΉ Π»Π΅Π½ΡΡ Π΄Π»Ρ ΠΎΠ΄Π½ΠΎ-Π±Π°ΡΠ°Π±Π°Π½Π½ΠΎΠ³ΠΎ β ΠΈ Π΄Π»Ρ Π΄Π²ΡΡ Π±Π°ΡΠ°Π±Π°Π½Π½ΠΎΠ³ΠΎ β ΠΏΡΠΈΠ²ΠΎΠ΄Π°
ΠΠ°ΡΡΠΆΠ½ΡΠ΅ ΡΡΠ°Π½ΡΠΈΠΈ. ΠΠ°Π·Π½Π°ΡΠ΅Π½ΠΈΠ΅ Π½Π°ΡΡΠΆΠ½ΠΎΠΉ ΡΡΠ°Π½ΡΠΈΠΈ β ΡΠΎΠ·Π΄Π°Π½ΠΈΠ΅ ΡΠ°ΠΊΠΎΠ³ΠΎ Π½Π°ΡΡΠΆΠ΅Π½ΠΈΡ Π»Π΅Π½ΡΡ, ΠΏΡΠΈ ΠΊΠΎΡΠΎΡΠΎΠΌ ΠΎΠ±Π΅ΡΠΏΠ΅ΡΠΈΠ²Π°Π΅ΡΡΡ Π½Π΅ΠΎΠ±Ρ ΠΎΠ΄ΠΈΠΌΠΎΠ΅ ΡΡΠ΅ΠΏΠ»Π΅Π½ΠΈΠ΅ Π»Π΅Π½ΡΡ Ρ ΠΏΡΠΈΠ²ΠΎΠ΄Π½ΡΠΌ Π±Π°ΡΠ°Π±Π°Π½ΠΎΠΌ, ΠΎΠ³ΡΠ°Π½ΠΈΡΠ΅Π½ΠΈΠ΅ ΠΏΡΠΎΠ²ΠΈΡΠ°Π½ΠΈΡ Π»Π΅Π½ΡΡ ΠΌΠ΅ΠΆΠ΄Ρ ΠΎΠΏΠΎΡΠ°ΠΌΠΈ ΠΈ ΠΊΠΎΠΌΠΏΠ΅Π½ΡΠ°ΡΠΈΡ Π²ΡΡΡΠΆΠΊΠΈ Π»Π΅Π½ΡΡ Π² ΠΏΡΠΎΡΠ΅ΡΡΠ΅ ΡΠΊΡΠΏΠ»ΡΠ°ΡΠ°ΡΠΈΠΈ. ΠΠ°ΡΡΠΆΠ΅Π½ΠΈΠ΅ Π»Π΅Π½ΡΡ ΠΎΡΡΡΠ΅ΡΡΠ²Π»ΡΠ΅ΡΡΡ ΠΏΡΡΠ΅ΠΌ ΠΏΠ΅ΡΠ΅ΠΌΠ΅ΡΠ΅Π½ΠΈΡ Π½Π°ΡΡΠΆΠ½ΠΎΠ³ΠΎ Π±Π°ΡΠ°Π±Π°Π½Π°.
ΠΠ°ΡΡΠΆΠ½ΡΠ΅ ΡΡΡΡΠΎΠΉΡΡΠ²Π° ΠΏΠΎΠ΄ΡΠ°Π·Π΄Π΅Π»ΡΡΡΡΡ Π½Π° ΡΡΡΡΠΎΠΉΡΡΠ²Π°, ΠΏΠΎΠ΄Π΄Π΅ΡΠΆΠΈΠ²Π°ΡΡΠΈΠ΅ ΠΏΠΎΡΡΠΎΡΠ½Π½ΡΡ ΡΠΈΠ»Ρ Π½Π°ΡΡΠΆΠ΅Π½ΠΈΡ Π»Π΅Π½ΡΡ, ΠΈ ΡΡΡΡΠΎΠΉΡΡΠ²Π°, ΡΠ΅Π³ΡΠ»ΠΈΡΡΡΡΠΈΠ΅ Π½Π°ΡΡΠΆΠ΅Π½ΠΈΠ΅ Π»Π΅Π½ΡΡ Π² Π·Π°Π²ΠΈΡΠΈΠΌΠΎΡΡΠΈ ΠΎΡ ΡΡΠ΅Π±ΡΠ΅ΠΌΠΎΠΉ Π²Π΅Π»ΠΈΡΠΈΠ½Ρ ΠΊΡΡΡΡΡΠ΅Π³ΠΎ ΠΌΠΎΠΌΠ΅Π½ΡΠ° Π½Π° ΠΏΡΠΈΠ²ΠΎΠ΄Π½ΠΎΠΌ Π±Π°ΡΠ°Π±Π°Π½Π΅.
Π ΡΡΡΡΠΎΠΉΡΡΠ²Π°ΠΌ ΠΏΠ΅ΡΠ²ΠΎΠΉ Π³ΡΡΠΏΠΏΡ, ΠΏΠΎΠ΄Π΄Π΅ΡΠΆΠΈΠ²Π°ΡΡΠΈΠΌ ΠΏΠΎΡΡΠΎΡΠ½Π½ΠΎΠ΅ Π½Π°ΡΡΠΆΠ΅Π½ΠΈΠ΅, ΠΎΡΠ½ΠΎΡΡΡΡΡ ΠΌΠ΅Ρ
Π°Π½ΠΈΡΠ΅ΡΠΊΠΈΠ΅ Π½Π°ΡΡΠΆΠ½ΡΠ΅ ΡΡΡΡΠΎΠΉΡΡΠ²Π°, Π² ΠΊΠΎΡΠΎΡΡΡ
Π½Π°ΡΡΠΆΠ΅Π½ΠΈΠ΅ Π»Π΅Π½ΡΡ ΡΠΎΠ·Π΄Π°Π΅ΡΡΡ ΠΏΡΠΈ ΠΏΠΎΠΌΠΎΡΠΈ Π²ΠΈΠ½ΡΠΎΠ²ΡΡ
ΠΈΠ»ΠΈ ΡΠ΅Π΅ΡΠ½ΡΡ
ΠΌΠ΅Ρ
Π°Π½ΠΈΠ·ΠΌΠΎΠ², ΠΈ Π³ΡΡΠ·ΠΎΠ²ΡΠ΅ ΡΡΡΡΠΎΠΉΡΡΠ²Π°, Π΄Π΅ΠΉΡΡΠ²ΡΡΡΠΈΠ΅ ΠΎΡ ΡΠ²ΠΎΠ±ΠΎΠ΄Π½ΠΎ Π²ΠΈΡΡΡΠ΅Π³ΠΎ Π³ΡΡΠ·Π°. ΠΠ°ΡΡΠΆΠ½ΡΡ ΡΡΠ°Π½ΡΠΈΡ ΡΠ°ΡΠΏΠΎΠ»Π°Π³Π°ΡΡ ΡΠ°ΠΌ, Π³Π΄Π΅ Π»Π΅Π½ΡΠ° ΠΈΠΌΠ΅Π΅Ρ ΠΌΠΈΠ½ΠΈΠΌΠ°Π»ΡΠ½ΠΎΠ΅ Π½Π°ΡΡΠΆΠ΅Π½ΠΈΠ΅ (ΠΏΡΠΈ ΡΡΠΎΠΌ ΠΈ ΡΡΠΈΠ»ΠΈΠ΅ Π½Π°ΡΡΠΆΠ΅Π½ΠΈΡ ΡΠ°ΠΊΠΆΠ΅ ΡΠ²Π»ΡΠ΅ΡΡΡ ΠΌΠΈΠ½ΠΈΠΌΠ°Π»ΡΠ½ΡΠΌ), Π»ΠΈΠ±ΠΎ ΡΠ°ΠΌ, Π³Π΄Π΅ ΡΠ΄ΠΎΠ±Π½Π΅Π΅ ΠΎΠ±ΡΠ»ΡΠΆΠΈΠ²Π°ΡΡ Π½Π°ΡΡΠΆΠ½ΡΡ ΡΡΠ°Π½ΡΠΈΡ.
ΠΡΡ Π½Π°ΡΡΠΆΠ½ΠΎΠ³ΠΎ Π±Π°ΡΠ°Π±Π°Π½Π° ΠΎΠΏΠΈΡΠ°Π΅ΡΡΡ Π½Π° ΠΏΠΎΠ΄ΡΠΈΠΏΠ½ΠΈΠΊΠΈ, ΡΡΡΠ°Π½ΠΎΠ²Π»Π΅Π½Π½ΡΠ΅ Π² ΠΊΠΎΡΠΏΡΡΠ°Ρ , Π΄Π²ΠΈΠΆΡΡΠΈΡ ΡΡ ΠΌΠ΅ΠΆΠ΄Ρ Π½Π΅ΠΏΠΎΠ΄Π²ΠΈΠΆΠ½ΡΠΌΠΈ Π½Π°ΠΏΡΠ°Π²Π»ΡΡΡΠΈΠΌΠΈ, Π° Π² ΡΠ»ΡΡΠ°Π΅ ΡΡΡΠ°Π½ΠΎΠ²ΠΊΠΈ ΠΏΠΎΠ΄ΡΠΈΠΏΠ½ΠΈΠΊΠΎΠ² Π² ΡΡΡΠΏΠΈΡΠ°Ρ Π±Π°ΡΠ°Π±Π°Π½Π° ΠΎΡΡ Π·Π°ΠΊΡΠ΅ΠΏΠ»ΡΡΡ Π² ΡΡΠΈΡ ΠΊΠΎΡΠΏΡΡΠ°Ρ . ΠΡΠΈ Π²ΠΈΠ½ΡΠΎΠ²ΠΎΠΌ Π½Π°ΡΡΠΆΠ΅Π½ΠΈΠΈ ΠΊΠΎΡΠΏΡΡΠ° ΡΠΎΠ΅Π΄ΠΈΠ½Π΅Π½Ρ Ρ Π²ΠΈΠ½ΡΠ°ΠΌΠΈ, ΡΠ°Π±ΠΎΡΠ°ΡΡΠΈΠΌΠΈ Π½Π° ΡΠΆΠ°ΡΠΈΠ΅ (ΠΏΡΠΈ Π»Π΅Π½ΡΠ΅, ΠΏΠΎΠΊΠ°Π·Π°Π½Π½ΠΎΠΉ ΡΠΏΠ»ΠΎΡΠ½ΠΎΠΉ Π»ΠΈΠ½ΠΈΠ΅ΠΉ) ΠΈΠ»ΠΈ Π½Π° ΡΠ°ΡΡΡΠΆΠ΅Π½ΠΈΠ΅ (ΠΏΡΠΈ Π»Π΅Π½ΡΠ΅, ΠΏΠΎΠΊΠ°Π·Π°Π½Π½ΠΎΠΉ ΠΏΡΠ½ΠΊΡΠΈΡΠΎΠΌ). ΠΡΠΈ Π±ΠΎΠ»ΡΡΠΎΠΉ Π΄Π»ΠΈΠ½Π΅ Π²ΠΈΠ½ΡΠ°, ΡΠ°Π±ΠΎΡΠ°ΡΡΠ΅Π³ΠΎ Π½Π° ΡΠΆΠ°ΡΠΈΠ΅, Π΄ΠΈΠ°ΠΌΠ΅ΡΡ Π²ΠΈΠ½ΡΠ° ΠΎΠΏΡΠ΅Π΄Π΅Π»ΡΠ΅ΡΡΡ ΡΠ°ΡΡΠ΅ΡΠΎΠΌ Π½Π° ΠΏΡΠΎΠ΄ΠΎΠ»ΡΠ½ΡΠΉ ΠΈΠ·Π³ΠΈΠ±. Π ΡΡΠΎΠΌ ΡΠ»ΡΡΠ°Π΅ ΡΠ΅Π»Π΅ΡΠΎΠΎΠ±ΡΠ°Π·Π½ΠΎ Π΄Π΅Π»Π°ΡΡ Π½Π°ΡΡΠΆΠ½ΡΡ ΡΡΠ°Π½ΡΠΈΡ Ρ Π²ΠΈΠ½ΡΠ°ΠΌΠΈ, ΡΠ°Π±ΠΎΡΠ°ΡΡΠΈΠΌΠΈ Π½Π° ΡΠ°ΡΡΡΠΆΠ΅Π½ΠΈΠ΅, Ρ ΠΎΡΡ ΠΊΠΎΠ½ΡΡΡΡΠΊΡΠΈΡ ΡΠΎΠ΅Π΄ΠΈΠ½Π΅Π½ΠΈΡ Π²ΠΈΠ½ΡΠ° Ρ ΠΊΠΎΡΠΏΡΡΠΎΠΌ ΡΠ»ΠΎΠΆΠ½Π΅Π΅, ΡΠ΅ΠΌ ΠΏΡΠΈ Π²ΠΈΠ½ΡΠ΅, ΡΠ°Π±ΠΎΡΠ°ΡΡΠ΅ΠΌ Π½Π° ΡΠΆΠ°ΡΠΈΠ΅.
Π₯ΠΎΠ΄ Π½Π°ΡΡΠΆΠ½ΠΎΠ³ΠΎ ΡΡΡΡΠΎΠΉΡΡΠ²Π° Π²ΡΠ±ΠΈΡΠ°ΡΡ Π² Π·Π°Π²ΠΈΡΠΈΠΌΠΎΡΡΠΈ ΠΎΡ Π΄Π»ΠΈΠ½Ρ ΠΈ Π²ΠΈΠ΄Π° ΡΡΠ°ΡΡΡ ΠΊΠΎΠ½Π²Π΅ΠΉΠ΅ΡΠ°, ΡΠ°ΠΊ ΡΡΠΎΠ±Ρ Π±ΡΠ»Π° ΠΎΠ±Π΅ΡΠΏΠ΅ΡΠ΅Π½Π° ΠΊΠΎΠΌΠΏΠ΅Π½ΡΠ°ΡΠΈΡ ΡΠ΄Π»ΠΈΠ½Π΅Π½ΠΈΡ Π»Π΅Π½ΡΡ ΠΎΡ Π½Π°Π³ΡΡΠ·ΠΊΠΈ, ΠΎΡ Π²Π»ΠΈΡΠ½ΠΈΡ ΠΈΠ·ΠΌΠ΅Π½Π΅Π½ΠΈΡ ΡΠ΅ΠΌΠΏΠ΅ΡΠ°ΡΡΡΡ ΠΈ ΠΎΡ Π΅Π΅ ΠΈΠ·Π½ΠΎΡΠ°. ΠΡΠΈ ΡΡΠΎΠΌ Π½Π°Π΄ΠΎ ΡΡΠΈΡΡΠ²Π°ΡΡ Π²ΠΎΠ·ΠΌΠΎΠΆΠ½ΠΎΡΡΡ ΠΏΡΠΎΠ²Π΅Π΄Π΅Π½ΠΈΡ Π½Π΅ΠΎΠ±Ρ
ΠΎΠ΄ΠΈΠΌΡΡ
ΠΌΠΎΠ½ΡΠ°ΠΆΠ½ΡΡ
ΠΈ ΡΠ΅ΠΌΠΎΠ½ΡΠ½ΡΡ
ΡΠ°Π±ΠΎΡ. ΠΠ±ΡΡΠ½ΠΎ Π΅Π³ΠΎ ΠΏΡΠΈΠ½ΠΈΠΌΠ°ΡΡ ΠΏΡΠΈΠΌΠ΅ΡΠ½ΠΎ ΡΠ°Π²Π½ΡΠΌ 1% ΠΎΡ Π΄Π»ΠΈΠ½Ρ ΠΊΠΎΠ½Π²Π΅ΠΉΠ΅ΡΠ° (Π½ΠΎ Π½Π΅ ΠΌΠ΅Π½Π΅Π΅ 400 ΠΌΠΌ) Π΄Π»Ρ Π³ΠΎΡΠΈΠ·ΠΎΠ½ΡΠ°Π»ΡΠ½ΡΡ
ΠΊΠΎΠ½Π²Π΅ΠΉΠ΅ΡΠΎΠ² ΠΈ 1,5% Π΄Π»Ρ Π½Π°ΠΊΠ»ΠΎΠ½Π½ΡΡ
ΠΊΠΎΠ½Π²Π΅ΠΉΠ΅ΡΠΎΠ².
ΠΡΠΈ ΡΠ²Π΅Π»ΠΈΡΠ΅Π½ΠΈΠΈ Π²ΡΡΡΠΆΠΊΠΈ Π»Π΅Π½ΡΡ ΡΠ²Π΅ΡΡ
ΡΠΊΠ°Π·Π°Π½Π½ΠΎΠ³ΠΎ ΠΏΡΠ΅Π΄Π΅Π»Π° Π»Π΅Π½ΡΡ ΠΏΠ΅ΡΠ΅ΡΠΈΠ²Π°ΡΡ.
ΠΠ΅Π΄ΠΎΡΡΠ°ΡΠΊΠΎΠΌ Π²ΠΈΠ½ΡΠΎΠ²ΡΡ Π½Π°ΡΡΠΆΠ½ΡΡ ΡΡΠ°Π½ΡΠΈΠΉ ΡΠ²Π»ΡΠ΅ΡΡΡ Π½Π΅ΠΎΠ±Ρ ΠΎΠ΄ΠΈΠΌΠΎΡΡΡ Π² ΠΏΠ΅ΡΠΈΠΎΠ΄ΠΈΡΠ΅ΡΠΊΠΎΠΌ Π½Π°Π±Π»ΡΠ΄Π΅Π½ΠΈΠΈ Π·Π° ΡΠΎΡΡΠΎΡΠ½ΠΈΠ΅ΠΌ ΡΡΠ³ΠΎΠ²ΠΎΠ³ΠΎ ΡΠ»Π΅ΠΌΠ΅Π½ΡΠ° ΠΈ Π΅Π³ΠΎ ΠΏΠΎΠ΄ΡΡΠ³ΠΈΠ²Π°Π½ΠΈΠΈ ΠΏΠΎ ΠΌΠ΅ΡΠ΅ Π²ΡΡΡΠΆΠΊΠΈ. ΠΡΠ΅ΠΈΠΌΡΡΠ΅ΡΡΠ²ΠΎΠΌ Π²ΠΈΠ½ΡΠΎΠ²ΠΎΠ³ΠΎ Π½Π°ΡΡΠΆΠ΅Π½ΠΈΡ ΡΠ²Π»ΡΡΡΡΡ Π΅Π³ΠΎ ΠΌΠ°Π»ΡΠ΅ Π³Π°Π±Π°ΡΠΈΡΡ. ΠΡΠΈ ΠΊΠΎΠ½ΡΡΡΡΠΈΡΠΎΠ²Π°Π½ΠΈΠΈ Π²ΠΈΠ½ΡΠΎΠ²ΠΎΠΉ Π½Π°ΡΡΠΆΠ½ΠΎΠΉ ΡΡΠ°Π½ΡΠΈΠΈ Π½Π΅ ΡΠ»Π΅Π΄ΡΠ΅Ρ ΠΊΠΈΠ½Π΅ΠΌΠ°ΡΠΈΡΠ΅ΡΠΊΠΈ ΡΠ²ΡΠ·ΡΠ²Π°ΡΡ ΠΎΠ±Π° Π²ΠΈΠ½ΡΠ° ΠΌΠ΅ΠΆΠ΄Ρ ΡΠΎΠ±ΠΎΠΉ, ΡΠ°ΠΊ ΠΊΠ°ΠΊ Π²ΡΡΡΠΆΠΊΠ° Π»Π΅Π½ΡΡ ΠΏΠΎ ΡΠΈΡΠΈΠ½Π΅ ΠΌΠΎΠΆΠ΅Ρ Π±ΡΡΡ Π½Π΅ΡΠ°Π²Π½ΠΎΠΌΠ΅ΡΠ½ΠΎΠΉ, Π° ΠΈΠ½ΠΎΠ³Π΄Π°, ΡΡΠΎΠ±Ρ ΡΠΎΠ·Π΄Π°ΡΡ ΡΠ°Π²Π½ΠΎΠΌΠ΅ΡΠ½ΠΎΠ΅ Π½Π°ΡΡΠΆΠ΅Π½ΠΈΠ΅ Π»Π΅Π½ΡΡ ΠΈ ΠΏΡΠ΅Π΄ΠΎΡΠ²ΡΠ°ΡΠΈΡΡ ΡΠ±Π΅Π³ Π»Π΅Π½ΡΡ Ρ Π±Π°ΡΠ°Π±Π°Π½Π°, ΠΎΠ΄Π½Ρ ΡΡΠΎΡΠΎΠ½Ρ Π»Π΅Π½ΡΡ Π½Π°ΡΡΠ³ΠΈΠ²Π°ΡΡ ΡΠΈΠ»ΡΠ½Π΅Π΅ Π΄ΡΡΠ³ΠΎΠΉ.
ΠΡΠΈ ΡΠ°ΡΡΠ΅ΡΠ΅ Π²ΠΈΠ½ΡΠΎΠ² ΡΡΠΈΡΡΠ²Π°ΡΡ Π½Π΅ΡΠ°Π²Π½ΠΎΠΌΠ΅ΡΠ½ΠΎΡΡΡ ΡΠ°ΡΠΏΡΠ΅Π΄Π΅Π»Π΅Π½ΠΈΡ Π½Π°Π³ΡΡΠ·ΠΊΠΈ ΠΌΠ΅ΠΆΠ΄Ρ ΠΎΠ±ΠΎΠΈΠΌΠΈ Π²ΠΈΠ½ΡΠ°ΠΌΠΈ, Π΄Π»Ρ ΡΠ΅Π³ΠΎ ΡΠ°ΡΡΠ΅Ρ Π²ΠΈΠ½ΡΠΎΠ² Π²Π΅Π΄ΡΡ Π½Π° Π½Π°Π³ΡΡΠ·ΠΊΡ, ΡΠ²Π΅Π»ΠΈΡΠ΅Π½Π½ΡΡ Π² 1,5β1,8 ΡΠ°Π·Π° ΠΏΠΎ ΡΡΠ°Π²Π½Π΅Π½ΠΈΡ Ρ ΡΠ΅ΠΎΡΠ΅ΡΠΈΡΠ΅ΡΠΊΠΎΠΉ. ΠΠ»Ρ Π²ΡΡΠ°Π²Π½ΠΈΠ²Π°Π½ΠΈΡ Π½Π°Π³ΡΡΠΆΠ΅Π½ΠΈΡ ΠΎΠ±ΠΎΠΈΡ Π²ΠΈΠ½ΡΠΎΠ² ΠΈΠ½ΠΎΠ³Π΄Π° ΠΏΡΠΈΠΌΠ΅Π½ΡΡΡ ΡΠΏΠ΅ΡΠΈΠ°Π»ΡΠ½ΡΠ΅ Π±Π°Π»Π°Π½ΡΠΈΡΠ½ΡΠ΅ ΡΡΡΡΠΎΠΉΡΡΠ²Π°.
ΠΠΎΠ»Π΅Π΅ ΡΠΎΠ²Π΅ΡΡΠ΅Π½Π½ΡΠΌ ΡΠ²Π»ΡΠ΅ΡΡΡ Π³ΡΡΠ·ΠΎΠ²ΠΎΠ΅ Π½Π°ΡΡΠΆΠ΅Π½ΠΈΠ΅, ΠΏΠΎΠ·Π²ΠΎΠ»ΡΡΡΠ΅Π΅ Π°Π²ΡΠΎΠΌΠ°ΡΠΈΡΠ΅ΡΠΊΠΈ ΡΠ΅Π³ΡΠ»ΠΈΡΠΎΠ²Π°ΡΡ Π½Π°ΡΡΠΆΠ΅Π½ΠΈΠ΅ Π»Π΅Π½ΡΡ ΠΏΡΠΈ Π΅Π΅ Π²ΡΡΡΠΆΠΊΠ΅ ΠΈ ΠΎΠ±Π΅ΡΠΏΠ΅ΡΠΈΠ²Π°ΡΡΠ΅Π΅ Π½Π΅ΠΈΠ·ΠΌΠ΅Π½Π½ΠΎΡΡΡ Π½Π°ΡΡΠΆΠ΅Π½ΠΈΡ Π»Π΅Π½ΡΡ.
ΠΡΠΈ Π³ΡΡΠ·ΠΎΠ²ΠΎΠΌ Π½Π°ΡΡΠΆΠ΅Π½ΠΈΠΈ Π½Π°ΡΡΠΆΠ½ΠΎΠΉ Π±Π°ΡΠ°Π±Π°Π½ ΡΠΊΡΠ΅ΠΏΠ»ΡΡΡ ΡΠ°ΠΊ ΠΆΠ΅, ΠΊΠ°ΠΊ ΠΏΡΠΈ Π²ΠΈΠ½ΡΠΎΠ²ΠΎΠΌ,βΠ² ΠΊΠΎΡΠΏΡΡΠ°Ρ
, ΠΏΠ΅ΡΠ΅Π΄Π²ΠΈΠ³Π°ΡΡΠΈΡ
ΡΡ ΠΏΠΎ Π½Π°ΠΏΡΠ°Π²Π»ΡΡΡΠΈΠΌ, ΠΈΠ»ΠΈ ΠΆΠ΅ ΡΡΡΠ°Π½Π°Π²Π»ΠΈΠ²Π°ΡΡ Π½Π° ΡΠΏΠ΅ΡΠΈΠ°Π»ΡΠ½ΠΎΠΉ ΡΠ΅Π»Π΅ΠΆΠΊΠ΅. ΠΡΠ° ΡΠ΅Π»Π΅ΠΆΠΊΠ° ΡΠΎΠ΅Π΄ΠΈΠ½ΡΠ΅ΡΡΡ ΡΡΠ³ΠΎΠ²ΡΠΌ ΠΎΡΠ³Π°Π½ΠΎΠΌ (ΠΊΠ°Π½Π°ΡΠΎΠΌ ΠΈΠ»ΠΈ ΡΠ΅ΠΏΡΡ) Ρ Π³ΡΡΠ·ΠΎΠΌ G, ΡΠΎΠ·Π΄Π°ΡΡΠΈΠΌ Π½Π΅ΠΈΠ·ΠΌΠ΅Π½Π½ΡΠ΅ Π²Π΅Π»ΠΈΡΠΈΠ½Ρ Π½Π°ΡΡΠΆΠ΅Π½ΠΈΡ Π’1 ΠΈ Π’Π³. Π Π½Π΅ΠΊΠΎΡΠΎΡΡΡ
ΡΠ»ΡΡΠ°ΡΡ
ΡΡΡΠ°Π½Π°Π²Π»ΠΈΠ²Π°ΡΡ Π½Π°ΡΡΠΆΠ½ΡΡ ΡΡΠ°Π½ΡΠΈΡ Π½Π΅ΠΏΠΎΡΡΠ΅Π΄ΡΡΠ²Π΅Π½Π½ΠΎ ΠΎΠΊΠΎΠ»ΠΎ ΠΏΡΠΈΠ²ΠΎΠ΄Π½ΠΎΠ³ΠΎ Π±Π°ΡΠ°Π±Π°Π½Π°, ΠΏΠΎΠ΄Π²Π΅ΡΠΈΠ²Π°Ρ Π½Π° Π»Π΅Π½ΡΠ΅ Π½Π°ΡΡΠΆΠ½ΠΎΠΉ Π±Π°ΡΠ°Π±Π°Π½ ΠΈ Π½Π°ΡΡΠΆΠ½ΠΎΠΉ Π³ΡΡΠ·. Π’ΠΎΠ³Π΄Π° ΠΎΡΠΏΠ°Π΄Π°Π΅Ρ Π½Π΅ΠΎΠ±Ρ
ΠΎΠ΄ΠΈΠΌΠΎΡΡΡ Π² Π΄ΠΎΠΏΠΎΠ»Π½ΠΈΡΠ΅Π»ΡΠ½ΡΡ
ΡΡΡΡΠΎΠΉΡΡΠ²Π°Ρ
, ΠΈ ΠΊΠΎΠ½ΡΡΡΡΠΊΡΠΈΡ Π½Π°ΡΡΠΆΠ½ΠΎΠΉ ΡΡΠ°Π½ΡΠΈΠΈ ΡΠΏΡΠΎΡΠ°Π΅ΡΡΡ.
Π ΠΈΡ. 18. Π‘Ρ
Π΅ΠΌΡ Π½Π°ΡΡΠΆΠ½ΡΡ
ΡΡΠ°Π½ΡΠΈΠΉ!
Π° β Π²ΠΈΠ½ΡΠΎΠ²ΠΎΠΉ; Π± β Π³ΡΡΠ·ΠΎΠ²ΠΎΠΉ ΠΎΠΊΠΎΠ»ΠΎ Ρ
Π²ΠΎΡΡΠΎΠ²ΠΎΠ³ΠΎ Π±Π°ΡΠ°Π±Π°Π½Π°) Π² β Π³ΡΡΠ·ΠΎΠ²ΠΎΠΉ ΠΎΠΊΠΎΠ»ΠΎ ΠΏΡΠΈΠ²ΠΎΠ΄Π½ΠΎΠ³ΠΎ Π±Π°ΡΠ°Π±Π°Π½Π°
ΠΠ·-Π·Π° Π³ΡΠΎΠΌΠΎΠ·Π΄ΠΊΠΎΡΡΠΈ ΠΈ Π±ΠΎΠ»ΡΡΠΎΠ³ΠΎ Π²Π΅ΡΠ° Π³ΡΡΠ·ΠΎΠ²ΡΡ
Π½Π°ΡΡΠΆΠ½ΡΡ
ΡΡΡΡΠΎΠΉΡΡΠ² ΠΈΡ
ΡΠ΅Π»Π΅ΡΠΎΠΎΠ±ΡΠ°Π·Π½ΠΎ ΠΏΡΠΈΠΌΠ΅Π½ΡΡΡ Π»ΠΈΡΡ Π΄Π»Ρ ΡΡΠ°ΡΠΈΠΎΠ½Π°ΡΠ½ΡΡ
ΠΊΠΎΠ½Π²Π΅ΠΉΠ΅ΡΠΎΠ². ΠΠ΅ΡΠ΅Π΄Π²ΠΈΠΆΠ½ΡΠ΅ ΠΊΠΎΠ½Π²Π΅ΠΉΠ΅ΡΡ Ρ ΡΠ΅Π»ΡΡ ΡΠΌΠ΅Π½ΡΡΠ΅Π½ΠΈΡ Π²Π΅ΡΠ° ΠΈ Π³Π°Π±Π°ΡΠΈΡΠΎΠ², ΠΊΠ°ΠΊ ΠΏΡΠ°Π²ΠΈΠ»ΠΎ, ΡΠ½Π°Π±ΠΆΠ°ΡΡΡΡ Π²ΠΈΠ½ΡΠΎΠ²ΡΠΌΠΈ Π½Π°ΡΡΠΆΠ½ΡΠΌΠΈ ΡΡΠ°Π½ΡΠΈΡΠΌΠΈ. Π£ΡΠΈΠ»ΠΈΠ΅, ΡΠ°Π·Π²ΠΈΠ²Π°Π΅ΠΌΠΎΠ΅ Π½Π°ΡΡΠΆΠ½ΠΎΠΉ ΡΡΠ°Π½ΡΠΈΠ΅ΠΉ, Π΄ΠΎΠ»ΠΆΠ½ΠΎ Π±ΡΡΡ ΡΠ°Π²Π½ΠΎ Π³Π΅ΠΎΠΌΠ΅ΡΡΠΈΡΠ΅ΡΠΊΠΎΠΉ ΡΡΠΌΠΌΠ΅ Π½Π°ΡΡΠΆΠ΅Π½ΠΈΠΉ ΠΊΠΎΠ½ΡΠΎΠ² Π»Π΅Π½ΡΡ Π½Π° Π½Π°ΡΡΠΆΠ½ΠΎΠΌ Π±Π°ΡΠ°Π±Π°Π½Π΅ ΠΏΠ»ΡΡ ΡΡΠΈΠ»ΠΈΠ΅, Π½Π΅ΠΎΠ±Ρ
ΠΎΠ΄ΠΈΠΌΠΎΠ΅ Π΄Π»Ρ ΠΏΠ΅ΡΠ΅Π΄Π²ΠΈΠΆΠ΅Π½ΠΈΡ ΠΏΠΎΠ΄ΡΠΈΠΏΠ½ΠΈΠΊΠΎΠ² Π±Π°ΡΠ°Π±Π°Π½Π° Π² Π½Π°ΠΏΡΠ°Π²Π»ΡΡΡΠΈΡ
ΠΈΠ»ΠΈ Π½Π°ΡΡΠΆΠ½ΠΎΠΉ ΡΠ΅Π»Π΅ΠΆΠΊΠΈ ΠΏΠΎ ΡΠ΅Π»ΡΡΠ°ΠΌ.
ΠΠΎ Π²ΡΠΎΡΠΎΠΉ Π³ΡΡΠΏΠΏΠ΅ Π½Π°ΡΡΠΆΠ½ΡΡ ΡΡΡΡΠΎΠΉΡΡΠ², Π°Π²ΡΠΎΠΌΠ°ΡΠΈΡΠ΅ΡΠΊΠΈ ΡΠ΅Π³ΡΠ»ΠΈΡΡΡΡΠΈΡ Π½Π°ΡΡΠΆΠ΅Π½ΠΈΠ΅ Π»Π΅Π½ΡΡ Π² Π·Π°Π²ΠΈΡΠΈΠΌΠΎΡΡΠΈ ΠΎΡ ΠΏΠΎΡΡΠ΅Π±Π½ΠΎΠΉ Π²Π΅Π»ΠΈΡΠΈΠ½Ρ ΠΊΡΡΡΡΡΠ΅Π³ΠΎ ΠΌΠΎΠΌΠ΅Π½ΡΠ°, ΠΎΡΠ½ΠΎΡΠΈΡΡΡ Π»Π΅Π±Π΅Π΄ΠΎΡΠ½ΠΎΠ΅ Π½Π°ΡΡΠΆΠ½ΠΎΠ΅ ΡΡΡΡΠΎΠΉΡΡΠ²ΠΎ, ΠΏΡΠΈΠΌΠ΅Π½ΡΠ΅ΠΌΠΎΠ΅ Π΄Π»Ρ ΠΊΠΎΠ½Π²Π΅ΠΉΠ΅ΡΠΎΠ² Π±ΠΎΠ»ΡΡΠΎΠΉ ΠΏΡΠΎΠΈΠ·Π²ΠΎΠ΄ΠΈΡΠ΅Π»ΡΠ½ΠΎΡΡΠΈ ΠΈ Π΄Π»ΠΈΠ½Ρ. ΠΠ½ΠΎ ΡΠΎΡΡΠΎΠΈΡ ΠΈΠ· Π½Π°ΡΡΠΆΠ½ΠΎΠΉ ΡΠ΅Π»Π΅ΠΆΠΊΠΈ, ΡΠ΄Π²ΠΎΠ΅Π½Π½ΠΎΠ³ΠΎ ΠΌΠ½ΠΎΠ³ΠΎΠΊΡΠ°ΡΠ½ΠΎΠ³ΠΎ ΠΏΠΎΠ»ΠΈΡΠΏΠ°ΡΡΠ°, Π½Π΅ΠΏΠΎΠ΄Π²ΠΈΠΆΠ½ΡΡ Π±Π»ΠΎΠΊΠΎΠ² ΠΈ Π½Π°ΡΡΠΆΠ½ΠΎΠΉ ΡΠ»Π΅ΠΊΡΡΠΈΡΠ΅ΡΠΊΠΎΠΉ Π»Π΅Π±Π΅Π΄ΠΊΠΈ. ΠΠ΄ΠΈΠ½ ΠΈΠ· Π±Π»ΠΎΠΊΠΎΠ² ΠΏΠΎΠ»ΠΈΡΠΏΠ°ΡΡΠ° ΡΡΡΠ°Π½ΠΎΠ²Π»Π΅Π½ Π½Π° Π΄Π²ΡΠΏΠ»Π΅ΡΠ΅ΠΌ ΡΡΡΠ°Π³Π΅ 2, Π²ΡΠΎΡΠΎΠ΅ ΠΏΠ»Π΅ΡΠΎ ΠΊΠΎΡΠΎΡΠΎΠ³ΠΎ ΠΎΠΏΠΈΡΠ°Π΅ΡΡΡ Π½Π° ΡΠ΅Π³ΡΠ»ΡΡΠΎΡ Π½Π°ΡΡΠΆΠ΅Π½ΠΈΡ, ΠΏΡΠ΅Π΄ΡΡΠ°Π²Π»ΡΡΡΠΈΠΉ ΡΠΎΠ±ΠΎΠΉ Π³ΠΈΠ΄ΡΠ°Π²Π»ΠΈΡΠ΅ΡΠΊΠΈΠΉ ΡΠΈΠ»ΠΈΠ½Π΄Ρ (ΠΈΠ»ΠΈ Π² Π΄ΡΡΠ³ΠΈΡ ΠΊΠΎΠ½ΡΡΡΡΠΊΡΠΈΡΡ ΠΏΡΡΠΆΠΈΠ½Π½ΠΎΠ΅ ΡΡΡΡΠΎΠΉΡΡΠ²ΠΎ), ΠΏΠΎΡΡΠ΅Π½Ρ ΠΊΠΎΡΠΎΡΠΎΠ³ΠΎ ΡΠ°ΡΠ½ΠΈΡΠ½ΠΎ ΡΠ²ΡΠ·Π°Π½ Ρ ΡΡΡΠ°Π³ΠΎΠΌ. Π¦ΠΈΠ»ΠΈΠ½Π΄Ρ ΡΠ½Π°Π±ΠΆΠ΅Π½ ΠΊΠΎΠ½ΡΠ°ΠΊΡΠ½ΡΠΌΠΈ ΠΌΠ°Π½ΠΎΠΌΠ΅ΡΡΠ°ΠΌΠΈ. ΠΠ°Π²Π»Π΅Π½ΠΈΠ΅ ΠΆΠΈΠ΄ΠΊΠΎΡΡΠΈ Π² ΡΠΈΠ»ΠΈΠ½Π΄ΡΠ΅ ΠΈ ΠΏΠΎΠ»ΠΎΠΆΠ΅Π½ΠΈΠ΅ ΠΊΠΎΠ½ΡΠ°ΠΊΡΠΎΠ² ΠΌΠ°Π½ΠΎΠΌΠ΅ΡΡΠΎΠ² ΠΎΠΏΡΠ΅Π΄Π΅Π»ΡΠ΅ΡΡΡ Π½Π°ΡΡΠΆΠ΅Π½ΠΈΠ΅ΠΌ ΠΊΠ°Π½Π°ΡΠΎΠ² ΠΏΠΎΠ»ΠΈΡΠΏΠ°ΡΡΠ°. ΠΠ°ΠΌΡΠΊΠ°Π½ΠΈΠ΅ ΠΈ ΡΠ°Π·ΠΌΡΠΊΠ°Π½ΠΈΠ΅ ΠΊΠΎΠ½ΡΠ°ΠΊΡΠΎΠ² ΠΌΠ°Π½ΠΎΠΌΠ΅ΡΡΠΎΠ² ΠΈΡΠΏΠΎΠ»ΡΠ·ΡΠ΅ΡΡΡ Π΄Π»Ρ Π°Π²ΡΠΎΠΌΠ°ΡΠΈΡΠ΅ΡΠΊΠΎΠ³ΠΎ Π²ΠΊΠ»ΡΡΠ΅Π½ΠΈΡ ΠΈ Π²ΡΠΊΠ»ΡΡΠ΅Π½ΠΈΡ Π΄Π²ΠΈΠ³Π°ΡΠ΅Π»Ρ Π½Π°ΡΡΠΆΠ½ΠΎΠΉ Π»Π΅Π±Π΅Π΄ΠΊΠΈ.
Π ΠΈΡ. 19. ΠΠ°ΡΡΠΆΠ½ΠΎΠ΅ ΡΡΡΡΠΎΠΉΡΡΠ²ΠΎ Ρ Π°Π²ΡΠΎΠΌΠ°ΡΠΈΡΠ΅ΡΠΊΠΎΠΉ ΡΠ΅Π³ΡΠ»ΠΈΡΠΎΠ²ΠΊΠΎΠΉ Π½Π°ΡΡΠΆΠ΅Π½ΠΈΡ Π»Π΅Π½ΡΡ
ΠΠΎ Π²ΡΠ΅ΠΌΡ ΠΏΡΡΠΊΠ° ΠΊΠΎΠ½Π²Π΅ΠΉΠ΅ΡΠ° Π΄Π»Ρ ΠΏΡΠ΅ΠΎΠ΄ΠΎΠ»Π΅Π½ΠΈΡ ΠΈΠ½Π΅ΡΡΠΈΠΈ ΡΠ°Π·Π³ΠΎΠ½ΡΠ΅ΠΌΡΡ
ΠΌΠ°ΡΡ Π»Π΅Π½ΡΡ ΠΈ Π³ΡΡΠ·Π° Π½Π΅ΠΎΠ±Ρ
ΠΎΠ΄ΠΈΠΌΠΎ ΡΠΎΠ·Π΄Π°ΡΡ ΠΏΠΎΠ²ΡΡΠ΅Π½Π½ΠΎΠ΅ ΡΡΠ΅ΠΏΠ»Π΅Π½ΠΈΠ΅ Π»Π΅Π½ΡΡ Ρ ΠΏΡΠΈΠ²ΠΎΠ΄Π½ΡΠΌ Π±Π°ΡΠ°Π±Π°Π½ΠΎΠΌ, ΡΡΠΎ ΠΎΠ±Π΅ΡΠΏΠ΅ΡΠΈΠ²Π°Π΅ΡΡΡ ΡΠ²Π΅Π»ΠΈΡΠ΅Π½ΠΈΠ΅ΠΌ Π½Π°ΡΡΠΆΠ΅Π½ΠΈΡ Π»Π΅Π½ΡΡ ΠΏΡΡΠ΅ΠΌ Π²ΠΊΠ»ΡΡΠ΅Π½ΠΈΡ Π΄Π²ΠΈΠ³Π°ΡΠ΅Π»Ρ Π½Π°ΡΡΠΆΠ½ΠΎΠΉ Π»Π΅Π±Π΅Π΄ΠΊΠΈ Π΄ΠΎ Π²ΠΊΠ»ΡΡΠ΅Π½ΠΈΡ ΠΏΡΠΈΠ²ΠΎΠ΄Π½ΠΎΠ³ΠΎ Π΄Π²ΠΈΠ³Π°ΡΠ΅Π»Ρ.
ΠΠΎΡΠ»Π΅ ΡΠΎΠ³ΠΎ ΠΊΠ°ΠΊ Π½Π°ΡΡΠΆΠ½Π°Ρ Π»Π΅Π±Π΅Π΄ΠΊΠ° ΡΠΎΠ·Π΄Π°ΡΡ Π½Π΅ΠΎΠ±Ρ
ΠΎΠ΄ΠΈΠΌΠΎΠ΅ ΡΠ²Π΅Π»ΠΈΡΠ΅Π½Π½ΠΎΠ΅ Π½Π°ΡΡΠΆΠ΅Π½ΠΈΠ΅ Π»Π΅Π½ΡΡ, Π·Π°ΠΌΠΊΠ½ΡΡΡΡ ΠΊΠΎΠ½ΡΠ°ΠΊΡΡ ΠΌΠ°Π½ΠΎΠΌΠ΅ΡΡΠ° ΠΈ Π²ΠΊΠ»ΡΡΠΈΡΡΡ ΠΏΡΠΈΠ²ΠΎΠ΄Π½ΠΎΠΉ Π΄Π²ΠΈΠ³Π°ΡΠ΅Π»Ρ. Π£Π²Π΅Π»ΠΈΡΠ΅Π½Π½ΠΎΠ΅ Π½Π°ΡΡΠΆΠ΅Π½ΠΈΠ΅ Π² Π»Π΅Π½ΡΠ΅ ΡΠΎΡ
ΡΠ°Π½ΡΠ΅ΡΡΡ Π΄ΠΎ ΡΠ΅Ρ
ΠΏΠΎΡ, ΠΏΠΎΠΊΠ° Π½Π΅ ΡΡΡΠ°Π½ΠΎΠ²ΠΈΡΡΡ Π½ΠΎΠΌΠΈΠ½Π°Π»ΡΠ½Π°Ρ ΡΠΊΠΎΡΠΎΡΡΡ. ΠΠΎΡΠ»Π΅ ΡΡΠΎΠ³ΠΎ ΡΡΠ°Π±Π°ΡΡΠ²Π°Π΅Ρ ΡΠ΅Π»Π΅ ΡΠΊΠΎΡΠΎΡΡΠΈ, ΠΊΠΈΠ½Π΅ΠΌΠ°ΡΠΈΡΠ΅ΡΠΊΠΈ ΡΠ²ΡΠ·Π°Π½Π½ΠΎΠ΅ Ρ Π±Π°ΡΠ°Π±Π°Π½ΠΎΠΌ Π½Π°ΡΡΠΆΠ½ΠΎΠΉ Π»Π΅Π±Π΅Π΄ΠΊΠΈ, Π°Π²ΡΠΎΠΌΠ°ΡΠΈΡΠ΅ΡΠΊΠΈ Π²ΠΊΠ»ΡΡΠ°Π΅ΡΡΡ Π΄Π²ΠΈΠ³Π°ΡΠ΅Π»Ρ Π² Π½Π°ΠΏΡΠ°Π²Π»Π΅Π½ΠΈΠΈ ΡΡΡΠ°Π²Π»ΠΈΠ²Π°Π½ΠΈΡ ΠΊΠ°Π½Π°ΡΠ° ΠΈ Π½Π°ΡΡΠΆΠ΅Π½ΠΈΠ΅ Π»Π΅Π½ΡΡ ΡΠΌΠ΅Π½ΡΡΠ°Π΅ΡΡΡ Π΄ΠΎ Π½Π΅ΠΎΠ±Ρ
ΠΎΠ΄ΠΈΠΌΠΎΠΉ Π²Π΅Π»ΠΈΡΠΈΠ½Ρ. ΠΠ°ΡΠ΅ΠΌ Π²ΡΠΊΠ»ΡΡΠ°Π΅ΡΡΡ Π΄Π²ΠΈΠ³Π°ΡΠ΅Π»Ρ Π½Π°ΡΡΠΆΠ½ΠΎΠΉ Π»Π΅Π±Π΅Π΄ΠΊΠΈ.
Π‘ΡΠ°Π±ΠΈΠ»ΠΈΠ·Π°ΡΠΈΡ Π½Π°ΡΡΠΆΠ΅Π½ΠΈΡ Π»Π΅Π½ΡΡ ΠΏΡΠΈ ΡΡΡΠ°Π½ΠΎΠ²ΠΈΠ²ΡΠ΅ΠΌΡΡ ΡΠ΅ΠΆΠΈΠΌΠ΅ ΡΠ°Π±ΠΎΡΡ ΠΊΠΎΠ½Π²Π΅ΠΉΠ΅ΡΠ° ΠΎΠ±Π΅ΡΠΏΠ΅ΡΠΈΠ²Π°Π΅ΡΡΡ ΡΠ΅ΠΌ, ΡΡΠΎ, Π΅ΡΠ»ΠΈ ΠΎΠ½ΠΎ ΡΠΏΠ°Π΄Π΅Ρ ΠΈΠ»ΠΈ ΠΏΠΎΠ²ΡΡΠΈΡΡΡ ΡΠ²Π΅ΡΡ ΡΡΡΠ°Π½ΠΎΠ²Π»Π΅Π½Π½ΠΎΠΉ Π½ΠΎΡΠΌΡ, ΡΠΎ Π΄Π°Π²Π»Π΅Π½ΠΈΠ΅ Π² Π³ΠΈΠ΄ΡΠΎΡΠΈΠ»ΠΈΠ½Π΄ΡΠ΅ ΠΈΠ·ΠΌΠ΅Π½ΠΈΡΡΡ ΠΈ Π² ΡΠ΅Π·ΡΠ»ΡΡΠ°ΡΠ΅ ΡΡΠ°Π±Π°ΡΡΠ²Π°Π½ΠΈΡ ΡΠΎΠΎΡΠ²Π΅ΡΡΡΠ²ΡΡΡΠ΅Π³ΠΎ ΠΊΠΎΠ½ΡΠ°ΠΊΡΠ° ΠΌΠ°Π½ΠΎΠΌΠ΅ΡΡΠ° Π΄Π²ΠΈΠ³Π°ΡΠ΅Π»Ρ Π½Π°ΡΡΠΆΠ½ΠΎΠΉ Π»Π΅Π±Π΅Π΄ΠΊΠΈ Π²ΠΊΠ»ΡΡΠΈΡΡΡ Π² ΡΡΠ΅Π±ΡΠ΅ΠΌΠΎΠΌ Π½Π°ΠΏΡΠ°Π²Π»Π΅Π½ΠΈΠΈ. ΠΡΠΈ Π²ΠΎΡΡΡΠ°Π½ΠΎΠ²Π»Π΅Π½ΠΈΠΈ Π½ΠΎΠΌΠΈΠ½Π°Π»ΡΠ½ΠΎΠΉ Π²Π΅Π»ΠΈΡΠΈΠ½Ρ Π½Π°ΡΡΠΆΠ΅Π½ΠΈΡ Π΄Π²ΠΈΠ³Π°ΡΠ΅Π»Ρ Π»Π΅Π±Π΅Π΄ΠΊΠΈ ΠΎΡΠΊΠ»ΡΡΠ°Π΅ΡΡΡ.
ΠΡΠΈΠΌΠ΅Π½Π΅Π½ΠΈΠ΅ ΠΏΠΎΠ΄ΠΎΠ±Π½ΡΡ
Π½Π°ΡΡΠΆΠ½ΡΡ
ΡΡΡΡΠΎΠΉΡΡΠ² ΠΏΡΠ΅Π΄ΠΎΡΠ²ΡΠ°ΡΠ°Π΅Ρ ΠΏΡΠΎΠ±ΡΠΊΡΠΎΠ²ΠΊΡ ΠΏΡΠΈΠ²ΠΎΠ΄Π½ΠΎΠ³ΠΎ Π±Π°ΡΠ°Π±Π°Π½Π° ΠΏΡΠΈ ΠΏΡΡΠΊΠ΅ ΠΈ Π½Π΅ ΡΡΠ΅Π±ΡΠ΅Ρ ΡΠΎΠ·Π΄Π°Π½ΠΈΡ Π² Π»Π΅Π½ΡΠ΅ ΠΈΠ·Π»ΠΈΡΠ½Π΅ Π²ΡΡΠΎΠΊΠΈΡ
ΡΡΠΈΠ»ΠΈΠΉ ΠΏΡΠΈ Π½ΠΎΡΠΌΠ°Π»ΡΠ½ΠΎΠΉ ΡΠ°Π±ΠΎΡΠ΅ ΠΊΠΎΠ½Π²Π΅ΠΉΠ΅ΡΠ°, ΡΡΠΎ ΡΠΏΠΎΡΠΎΠ±ΡΡΠ²ΡΠ΅Ρ ΡΠ²Π΅Π»ΠΈΡΠ΅Π½ΠΈΡ ΡΡΠΎΠΊΠ° ΡΠ»ΡΠΆΠ±Ρ Π»Π΅Π½ΡΡ.
ΠΠ°Π³ΡΡΠ·ΠΊΠ° ΠΊΠΎΠ½Π²Π΅ΠΉΠ΅ΡΠΎΠ². ΠΠΎΠ½Π²Π΅ΠΉΠ΅Ρ ΠΌΠΎΠΆΠ½ΠΎ Π·Π°Π³ΡΡΠ·ΠΈΡΡ Π² Π»ΡΠ±ΠΎΠΉ ΡΠΎΡΠΊΠ΅ Π΅Π³ΠΎ Π΄Π»ΠΈΠ½Ρ. ΠΠ΄Π½Π°ΠΊΠΎ ΠΎΠ±ΡΡΠ½ΠΎ Π·Π°Π³ΡΡΠ·ΠΊΡ ΠΊΠΎΠ½Π²Π΅ΠΉΠ΅ΡΠΎΠ² ΠΏΡΠΎΠΈΠ·Π²ΠΎΠ΄ΡΡ ΠΎΠΊΠΎΠ»ΠΎ Ρ
Π²ΠΎΡΡΠΎΠ²ΠΎΠ³ΠΎ Π±Π°ΡΠ°Π±Π°Π½Π°. ΠΠΎΠ³ΡΡΠ·ΠΊΡ Π½Π° ΠΏΠΎΠ»ΠΎΡΠ½ΠΎ ΡΡΡΡΠ½ΡΡ
Π³ΡΡΠ·ΠΎΠ² ΠΏΡΠΎΠΈΠ·Π²ΠΎΠ΄ΡΡ ΠΈΠ»ΠΈ Ρ Π»ΠΎΡΠΊΠ°, ΠΏΠΎ ΠΊΠΎΡΠΎΡΠΎΠΌΡ ΡΠΊΠ°ΡΡΠ²Π°ΡΡΡΡ ΡΡΠΈ Π³ΡΡΠ·Ρ, ΠΈΠ»ΠΈ Π²ΡΡΡΠ½ΡΡ. ΠΠ°Π³ΡΡΠ·ΠΊΡ ΠΊΠΎΠ½Π²Π΅ΠΉΠ΅ΡΠ° ΡΡΠΏΡΡΠΈΠΌΠΈ Π³ΡΡΠ·Π°ΠΌΠΈ ΠΏΡΠΎΠΈΠ·Π²ΠΎΠ΄ΡΡ ΠΎΠ±ΡΡΠ½ΠΎ ΠΏΡΠΈ ΠΏΠΎΠΌΠΎΡΠΈ Π·Π°Π³ΡΡΠ·ΠΎΡΠ½ΠΎΠ³ΠΎ Π»ΠΎΡΠΊΠ°. ΠΡΡ
ΠΎΠ΄Π½ΠΎΠ΅ ΠΎΡΠ²Π΅ΡΡΡΠΈΠ΅ Π»ΠΎΡΠΊΠ° Π΄Π΅Π»Π°ΡΡ Π·Π½Π°ΡΠΈΡΠ΅Π»ΡΠ½ΠΎ ΡΠΆΠ΅ ΡΠΈΡΠΈΠ½Ρ Π»Π΅Π½ΡΡ Π, ΡΡΠΎΠ±Ρ ΠΎΠ±Π΅ΡΠΏΠ΅ΡΠΈΡΡ ΡΠ°Π²Π½ΠΎΠΌΠ΅ΡΠ½ΠΎΠ΅ ΠΈ ΡΠ΅Π½ΡΡΠ°Π»ΡΠ½ΠΎΠ΅ ΡΠ°ΡΠΏΡΠ΅Π΄Π΅Π»Π΅Π½ΠΈΠ΅ Π³ΡΡΠ·Π° ΠΏΠΎ Π»Π΅Π½ΡΠ΅. ΠΠ±ΡΡΠ½ΠΎ ΡΠΈΡΠΈΠ½Π° ΠΏΠΎΡΠΎΠΊΠ° Π³ΡΡΠ·Π°, Π²ΡΡ
ΠΎΠ΄ΡΡΠ΅Π³ΠΎ ΠΈΠ· Π»ΠΎΡΠΊΠ°. Π Π·Π°ΡΠ΅ΠΌ ΠΏΠΎΡΠΎΠΊ, ΠΏΠΎΠΏΠ°Π² Π½Π° Π»Π΅Π½ΡΡ, ΡΠ°ΡΡΠ΅ΠΊΠ°Π΅ΡΡΡ ΠΏΠΎ Π½Π΅ΠΉ ΠΈ Π·Π°Π½ΠΈΠΌΠ°Π΅Ρ ΡΠΈΡΠΈΠ½Ρ, ΡΠ°Π²Π½ΡΡ ΠΏΡΠΈΠΌΠ΅ΡΠ½ΠΎ 0,85. Π§ΡΠΎΠ±Ρ Π³ΡΡΠ· Π² Π»ΠΎΡΠΊΠ΅ Π½Π΅ Π·Π°Π΄Π΅ΡΠΆΠΈΠ²Π°Π»ΡΡ, ΡΡΠ΅Π½ΠΊΠΈ Π»ΠΎΡΠΊΠ° ΠΈΠΌΠ΅ΡΡ Π½Π°ΠΊΠ»ΠΎΠ½ Π½Π° 10β15Β° Π±ΠΎΠ»ΡΡΠ΅ ΡΠ³Π»Π° ΡΡΠ΅Π½ΠΈΡ Π΄Π»Ρ Π΄Π°Π½Π½ΠΎΠ³ΠΎ ΠΌΠ°ΡΠ΅ΡΠΈΠ°Π»Π°. ΠΠ»Ρ ΡΠΌΠ΅Π½ΡΡΠ΅Π½ΠΈΡ ΠΈΠ·Π½ΠΎΡΠ° Π»Π΅Π½ΡΡ ΠΏΡΠΈ ΠΏΠ°Π΄Π΅Π½ΠΈΠΈ Π½Π°ΡΡΠΏΠ½ΡΡ
Π³ΡΡΠ·ΠΎΠ² Π½Π° Π»Π΅Π½ΡΡ ΠΏΡΠΈ Π·Π°Π³ΡΡΠ·ΠΊΠ΅ ΠΊΠΎΠ½Π²Π΅ΠΉΠ΅ΡΠ° ΠΈΠ½ΠΎΠ³Π΄Π° Π·Π°Π³ΡΡΠ·ΠΎΡΠ½ΡΠΉ Π»ΠΎΡΠΎΠΊ Π΄Π΅Π»Π°ΡΡ Ρ Π΄Π½ΠΈΡΠ΅ΠΌ, ΠΈΠΌΠ΅ΡΡΠΈΠΌ ΠΎΡΠ²Π΅ΡΡΡΠΈΡ, ΡΠ΅ΡΠ΅Π· ΠΊΠΎΡΠΎΡΡΠ΅ Π½Π° Π»Π΅Π½ΡΡ ΠΏΠ°Π΄Π°ΡΡ ΠΌΠ΅Π»ΠΊΠΈΠ΅ ΡΠ°ΡΡΠΈΡΡ ΠΌΠ°ΡΠ΅ΡΠΈΠ°Π»Π°. Π’ΠΎΠ³Π΄Π° Π±ΠΎΠ»Π΅Π΅ ΠΊΡΡΠΏΠ½ΡΠ΅ ΡΠ°ΡΡΠΈΡΡ, ΡΠΊΠ°ΡΡΠ²Π°ΡΡΡ ΠΏΠΎ Π΄Π½ΠΈΡΡ Π»ΠΎΡΠΊΠ°, ΠΏΠΎΠΏΠ°Π΄Π°ΡΡ Π½Π΅ Π½Π΅ΠΏΠΎΡΡΠ΅Π΄ΡΡΠ²Π΅Π½Π½ΠΎ Π½Π° Π»Π΅Π½ΡΡ, Π° Π½Π° ΡΠ»ΠΎΠΉ ΠΌΠ΅Π»ΠΊΠΎΠ³ΠΎ ΠΌΠ°ΡΠ΅ΡΠΈΠ°Π»Π°.
Π Π°Π·Π³ΡΡΠ·ΠΊΠ° ΠΊΠΎΠ½Π²Π΅ΠΉΠ΅ΡΠΎΠ². ΠΠ°ΠΈΠ±ΠΎΠ»Π΅Π΅ ΠΏΡΠΎΡΡΡΠΌ ΠΈ ΡΠ΄ΠΎΠ±Π½ΡΠΌ ΡΠΏΠΎΡΠΎΠ±ΠΎΠΌ ΡΠ°Π·Π³ΡΡΠ·ΠΊΠΈ ΠΊΠΎΠ½Π²Π΅ΠΉΠ΅ΡΠΎΠ², Π½Π΅ ΡΡΠ΅Π±ΡΡΡΠΈΡ ΡΠΏΠ΅ΡΠΈΠ°Π»ΡΠ½ΡΡ ΡΡΡΡΠΎΠΉΡΡΠ², ΡΠ²Π»ΡΠ΅ΡΡΡ ΡΠ±ΡΠΎΡ ΠΌΠ°ΡΠ΅ΡΠΈΠ°Π»Π° Ρ ΠΏΡΠΈΠ²ΠΎΠ΄Π½ΠΎΠ³ΠΎ Π±Π°ΡΠ°Π±Π°Π½Π°. ΠΠ΄Π½Π°ΠΊΠΎ Π² ΡΡΠ΄Π΅ ΡΠ»ΡΡΠ°Π΅Π² Π²ΠΎΠ·Π½ΠΈΠΊΠ°Π΅Ρ Π½Π΅ΠΎΠ±Ρ ΠΎΠ΄ΠΈΠΌΠΎΡΡΡ ΠΎΡΡΡΠ΅ΡΡΠ²Π»ΡΡΡ ΡΠ°Π·Π³ΡΡΠ·ΠΊΡ Π² ΡΠ°Π·Π»ΠΈΡΠ½ΡΡ ΡΠΎΡΠΊΠ°Ρ ΠΏΠΎ Π΄Π»ΠΈΠ½Π΅ ΠΊΠΎΠ½Π²Π΅ΠΉΠ΅ΡΠ°. Π’Π°ΠΊ, Π½Π°ΠΏΡΠΈΠΌΠ΅Ρ, Π² Π»ΠΈΡΠ΅ΠΉΠ½ΠΎΠΌ ΠΏΡΠΎΠΈΠ·Π²ΠΎΠ΄ΡΡΠ²Π΅ Π½Π΅ΠΎΠ±Ρ ΠΎΠ΄ΠΈΠΌΠΎ ΠΎΡΡΡΠ΅ΡΡΠ²Π»ΡΡΡ ΠΏΠΎΠ΄Π°ΡΡ ΡΠΎΡΠΌΠΎΠ²ΠΎΡΠ½ΠΎΠΉ Π·Π΅ΠΌΠ»ΠΈ ΠΎΠ΄Π½ΠΈΠΌ ΠΊΠΎΠ½Π²Π΅ΠΉΠ΅ΡΠΎΠΌ ΠΊ ΡΠ°Π·Π»ΠΈΡΠ½ΡΠΌ ΡΠΎΡΠΌΠΎΠ²ΠΎΡΠ½ΡΠΌ ΠΌΠ°ΡΠΈΠ½Π°ΠΌ, ΡΠ°ΡΠΏΠΎΠ»ΠΎΠΆΠ΅Π½Π½ΡΠΌ Π²Π΄ΠΎΠ»Ρ Π»ΠΈΠ½ΠΈΠΈ ΠΊΠΎΠ½Π²Π΅ΠΉΠ΅ΡΠ°.
Π ΠΈΡ. 20. ΠΠΎΡΠΎΠΊ Π΄Π»Ρ Π·Π°Π³ΡΡΠ·ΠΊΠΈ ΡΡΠΏΡΡΠΈΡ Π³ΡΡΠ·ΠΎΠ²
Π ΡΡΠΎΠΌ ΡΠ»ΡΡΠ°Π΅ Π½Π΅ΠΎΠ±Ρ ΠΎΠ΄ΠΈΠΌΠΎ ΠΏΡΠΈΠΌΠ΅Π½Π΅Π½ΠΈΠ΅ ΡΠΏΠ΅ΡΠΈΠ°Π»ΡΠ½ΡΡ ΡΠ°Π·Π³ΡΡΠ·ΠΎΡΠ½ΡΡ ΡΡΡΡΠΎΠΉΡΡΠ², ΠΈΠ· ΠΊΠΎΡΠΎΡΡΡ Π½Π°ΠΈΠ±ΠΎΠ»Π΅Π΅ ΠΏΡΠΎΡΡΡΠΌΠΈ ΡΠ²Π»ΡΡΡΡΡ ΠΏΠ»ΡΠΆΠΊΠΎΠ²ΡΠ΅ ΡΠ±ΡΠ°ΡΡΠ²Π°ΡΠ΅Π»ΠΈ, Ρ. Π΅. ΡΠΈΡΡ, ΡΡΡΠ°Π½Π°Π²Π»ΠΈΠ²Π°Π΅ΠΌΡΠ΅ Π½Π° Π»Π΅Π½ΡΠ΅ ΠΏΠΎΠ΄ ΡΠ³Π»ΠΎΠΌ ΠΊ ΠΏΠΎΡΠΎΠΊΡ ΠΌΠ°ΡΠ΅ΡΠΈΠ°Π»Π°. ΠΡΠΈ ΡΡΠΎΠΌ Π³ΡΡΠ· Π΄Π²ΠΈΠ³Π°Π΅ΡΡΡ Π²Π΄ΠΎΠ»Ρ ΡΠΈΡΠ° ΠΈ ΡΠ±ΡΠ°ΡΡΠ²Π°Π΅ΡΡΡ Ρ Π»Π΅Π½ΡΡ Π½Π° ΠΎΠ΄Π½Ρ ΠΈΠ»ΠΈ ΡΡΠ°Π·Ρ Π½Π° ΠΎΠ±Π΅ ΡΡΠΎΡΠΎΠ½Ρ Π»Π΅Π½ΡΡ. ΠΠ΅Π΄ΠΎΡΡΠ°ΡΠΊΠΎΠΌ ΡΠ±ΡΠ°ΡΡΠ²Π°ΡΡΠΈΡ ΡΠΈΡΠΎΠ² ΡΠ²Π»ΡΠ΅ΡΡΡ ΠΏΠΎΠ²ΡΡΠ΅Π½Π½ΡΠΉ ΠΈΠ·Π½ΠΎΡ Π»Π΅Π½ΡΡ Π² ΠΏΡΠΎΡΠ΅ΡΡΠ΅ ΡΠ°Π·Π³ΡΡΠ·ΠΊΠΈ. ΠΠΎΡΡΠΎΠΌΡ ΠΈΡ Π½Π΅ΡΠ΅Π»Π΅ΡΠΎΠΎΠ±ΡΠ°Π·Π½ΠΎ ΠΏΡΠΈΠΌΠ΅Π½ΡΡΡ ΠΏΡΠΈ ΠΈΠ½ΡΠ΅Π½ΡΠΈΠ²Π½ΠΎΠΉ ΡΠ°Π±ΠΎΡΠ΅ ΠΊΠΎΠ½Π²Π΅ΠΉΠ΅ΡΠ°.
ΠΠ°ΠΈΠ±ΠΎΠ»Π΅Π΅ ΡΠ°ΡΠΈΠΎΠ½Π°Π»ΡΠ½ΡΠΌ ΠΌΠ΅ΡΠΎΠ΄ΠΎΠΌ ΡΠ°Π·Π³ΡΡΠ·ΠΊΠΈ ΠΌΠ°ΡΠ΅ΡΠΈΠ°Π»Π° Π² ΡΠ°Π·Π»ΠΈΡΠ½ΡΡ
ΡΠΎΡΠΊΠ°Ρ
ΠΊΠΎΠ½Π²Π΅ΠΉΠ΅ΡΠ° ΡΠ²Π»ΡΠ΅ΡΡΡ ΠΏΡΠΈΠΌΠ΅Π½Π΅Π½ΠΈΠ΅ ΡΠ±ΡΠ°ΡΡΠ²Π°ΡΡΠ΅ΠΉ ΡΠ΅Π»Π΅ΠΆΠΊΠΈ.
Π ΠΈΡ. 21. Π Π°Π·Π³ΡΡΠ·ΠΊΠ° Π»Π΅Π½ΡΠΎΡΠ½ΠΎΠ³ΠΎ ΠΊΠΎΠ½Π²Π΅ΠΉΠ΅ΡΠ°
Π° β ΡΠ΅ΡΠ΅Π· ΠΏΡΠΈΠ²ΠΎΠ΄Π½ΠΎΠΉ Π±Π°ΡΠ°Π±Π°Π½; Π± β ΠΏΡΡΠ΅ΠΌ ΡΠ±ΡΠ°ΡΡΠ²Π°Π½ΠΈΡ Π³ΡΡΠ·Π° Ρ Π»Π΅Π½ΡΡ ΠΏΡΠΈ ΠΏΠΎΠΌΠΎΡΠΈ ΠΏΠΡΠΆΠΊΠΎΠ²ΠΎΠ³ΠΎ ΡΠ±ΡΠ°ΡΡΠ²Π°ΡΠ΅Π»Ρ
Π‘Π±ΡΠ°ΡΡΠ²Π°ΡΡΠ°Ρ ΡΠ΅Π»Π΅ΠΆΠΊΠ° ΠΌΠΎΠΆΠ΅Ρ ΠΏΠ΅ΡΠ΅Π΄Π²ΠΈΠ³Π°ΡΡΡΡ ΠΏΠΎ ΡΠΏΠ΅ΡΠΈΠ°Π»ΡΠ½ΡΠΌ ΡΠ΅Π»ΡΡΠ°ΠΌ Π²Π΄ΠΎΠ»Ρ Π»ΠΈΠ½ΠΈΠΈ ΠΊΠΎΠ½Π²Π΅ΠΉΠ΅ΡΠ° ΠΈ ΠΎΡΡΠ°Π½Π°Π²Π»ΠΈΠ²Π°ΡΡΡΡ Π² ΡΠΎΠΌ ΠΌΠ΅ΡΡΠ΅, Π³Π΄Π΅ Π΄ΠΎΠ»ΠΆΠ½Π° Π±ΡΡΡ ΠΏΡΠΎΠΈΠ·Π²Π΅Π΄Π΅Π½Π° ΡΠ°Π·Π³ΡΡΠ·ΠΊΠ° ΠΌΠ°ΡΠ΅ΡΠΈΠ°Π»Π°. ΠΠ° ΡΠ΅Π»Π΅ΠΆΠΊΠ΅ ΡΡΡΠ°Π½ΠΎΠ²Π»Π΅Π½Ρ Π΄Π²Π° Π±Π°ΡΠ°Π±Π°Π½Π°, ΠΊΠΎΡΠΎΡΡΠ΅ ΠΎΠ³ΠΈΠ±Π°ΡΡΡΡ Π»Π΅Π½ΡΠΎΠΉ ΠΊΠΎΠ½Π²Π΅ΠΉΠ΅ΡΠ°. ΠΠ°ΡΠ΅ΡΠΈΠ°Π» ΠΏΠΎΠ΄Π½ΠΈΠΌΠ°Π΅ΡΡΡ ΠΏΠΎ Π»Π΅Π½ΡΠ΅ Π΄ΠΎ Π²Π΅ΡΡ Π½Π΅Π³ΠΎ Π±Π°ΡΠ°Π±Π°Π½Π° ΡΠ΅Π»Π΅ΠΆΠΊΠΈ ΠΈ ΠΏΠ°Π΄Π°Π΅Ρ Π² ΠΏΠΎΠ΄ΡΡΠ°Π²Π»Π΅Π½Π½ΡΠΉ ΠΆΠ΅Π»ΠΎΠ±, ΠΎΡΠ²ΠΎΠ΄ΡΡΠΈΠΉ Π΅Π³ΠΎ Π² ΡΡΠΎΡΠΎΠ½Ρ ΠΎΡ ΠΏΠΎΠ»ΠΎΡΠ½Π° ΠΊΠΎΠ½Π²Π΅ΠΉΠ΅ΡΠ°.
Π ΠΈΡ. 22. Π‘Π±ΡΠ°ΡΡΠ²Π°ΡΡΠ°Ρ ΡΠ΅Π»Π΅ΠΆΠΊΠ°
Π‘ΡΠ°ΡΠΈΠΊΠ° Π»Π΅Π½ΡΠΎΡΠ½ΠΎΠ³ΠΎ ΠΊΠΎΠ½Π²Π΅ΠΉΠ΅ΡΠ°
ΠΠ±ΡΡΠ½ΠΎ ΠΊΠΎΡΡΡΠΈΡΠΈΠ΅Π½Ρ ΡΠΎΠΏΡΠΎΡΠΈΠ²Π»Π΅Π½ΠΈΡ Π½Π΅ΠΈΠ·Π²Π΅ΡΡΠ΅Π½. ΠΠΎΡΡΠΎΠΌΡ ΠΏΡΠΎΠ²ΠΎΠ΄ΡΡ ΡΡΠ°ΡΠΈΡΠ΅ΡΠΊΠΎΠ΅ ΠΈΡΡΠ»Π΅Π΄ΠΎΠ²Π°Π½ΠΈΠ΅ ΠΊΠΎΠ½Π²Π΅ΠΉΠ΅ΡΠ°, Π·Π°Π΄Π°ΡΠ΅ΠΉ ΠΊΠΎΡΠΎΡΠΎΠ³ΠΎ ΡΠ²Π»ΡΡΡΡΡ-ΠΎΠΏΡΠ΅Π΄Π΅Π»Π΅Π½ΠΈΡ ΠΏΠΎΡΠ΅ΡΡ Π² ΠΊΠΎΠ½Π²Π΅ΠΉΠ΅ΡΠ΅, Π½Π°ΡΡΠΆΠ΅Π½ΠΈΡ Π»Π΅Π½ΡΡ Π² ΡΠ°Π·Π»ΠΈΡΠ½ΡΡ
ΡΠΎΡΠΊΠ°Ρ
Π΅Π³ΠΎ ΠΊΠΎΠ½ΡΡΡΠ° ΠΈ ΠΌΠΎΡΠ½ΠΎΡΡΠΈ ΠΏΡΠΈΠ²ΠΎΠ΄Π½ΠΎΠΉ ΡΡΠ°Π½ΡΠΈΠΈ. Π‘ΠΎΠΏΡΠΎΡΠΈΠ²Π»Π΅Π½ΠΈΡ Π½Π° ΡΡΠ°ΡΡΠΊΠ°Ρ
ΡΡΠ°ΡΡΡ Π»Π΅Π½ΡΠΎΡΠ½ΠΎΠ³ΠΎ ΠΊΠΎΠ½Π²Π΅ΠΉΠ΅ΡΠ° ΠΏΠΎΠ΄ΡΠ°Π·Π΄Π΅Π»ΡΡΡΡΡ Π½Π° ΡΠΎΠΏΡΠΎΡΠΈΠ²Π»Π΅Π½ΠΈΡ, ΡΠ°ΡΠΏΡΠ΅Π΄Π΅Π»Π΅Π½Π½ΡΠ΅ ΠΏΠΎ Π΄Π»ΠΈΠ½Π΅ ΡΡΠ°ΡΡΠΊΠ°, ΠΈ Π½Π° ΡΠΎΠΏΡΠΎΡΠΈΠ²Π»Π΅Π½ΠΈΡ, ΡΠΎΡΡΠ΅Π΄ΠΎΡΠΎΡΠ΅Π½Π½ΡΠ΅ Π² ΠΎΠΏΡΠ΅Π΄Π΅Π»Π΅Π½Π½ΡΡ
ΠΏΡΠ½ΠΊΡΠ°Ρ
ΡΡΠ°ΡΡΡ β Π½Π° Π±Π°ΡΠ°Π±Π°Π½Π°Ρ
, ΠΌΠ΅ΡΡΠ°Ρ
ΠΏΠΎΠ³ΡΡΠ·ΠΊΠΈ ΠΈ ΡΠ°Π·Π³ΡΡΠ·ΠΊΠΈ, Π½Π° ΠΎΡΠΈΡΡΠ½ΡΡ
ΡΡΡΡΠΎΠΉΡΡΠ²Π°Ρ
.
β
ΠΠ΅Π½ΡΠΎΡΠ½ΡΠ΅ ΠΊΠΎΠ½Π²Π΅ΠΉΠ΅ΡΡ ΠΈΡΠΏΠΎΠ»ΡΠ·ΡΡΡΡΡ Π΄Π»Ρ ΡΡΠ°Π½ΡΠΏΠΎΡΡΠΈΡΠΎΠ²Π°Π½ΠΈΡ ΡΡΠ»ΠΎΠ½ΠΎΠ² ΠΈ ΠΊΠΈΠΏ Π½Π° Π½Π΅Π±ΠΎΠ»ΡΡΠΈΠ΅ ΡΠ°ΡΡΡΠΎΡΠ½ΠΈΡ (Π΄ΠΎ 100 ΠΌ). Π’ΡΠ³ΠΎΠ²ΡΠΌ ΠΈ Π½Π΅ΡΡΡΠΈΠΌ ΠΎΡΠ³Π°Π½ΠΎΠΌ ΡΠ»ΡΠΆΠΈΡ ΠΏΡΠΎΡΠ΅Π·ΠΈΠ½Π΅Π½Π½Π°Ρ Π»Π΅Π½ΡΠ°, Π΄Π²ΠΈΠ³Π°ΡΡΠ°ΡΡΡ ΠΏΠΎ ΠΏΠΎΠ΄Π΄Π΅ΡΠΆΠΈΠ²Π°ΡΡΠΈΠΌ ΡΡΡΡΠΎΠΉΡΡΠ²Π°ΠΌ, ΠΊΠΎΡΠΎΡΡΠΌΠΈ ΠΌΠΎΠ³ΡΡ Π±ΡΡΡ ΡΠΎΠ»ΠΈΠΊΠΈ ΠΆΠ΅Π»ΠΎΠ±ΡΠ°ΡΠΎΠΉ ΡΠΎΡΠΌΡ (Π΄Π»Ρ ΡΡΠ»ΠΎΠ½ΠΎΠ²), ΡΠΎΠ»ΠΈΠΊΠΈ ΡΠΈΠ»ΠΈΠ½Π΄ΡΠΈΡΠ΅ΡΠΊΠΈΠ΅ (Π΄Π»Ρ ΠΊΠΈΠΏ ΡΠ΅Π»Π»ΡΠ»ΠΎΠ·Ρ ΠΈ ΡΡΠΎΠΏ Π±ΡΠΌΠ°Π³ΠΈ) ΠΈ ΠΏΠ»ΠΎΡΠΊΠΈΠ΅ Π΄Π΅ΡΠ΅Π²ΡΠ½Π½ΡΠ΅ ΠΈΠ»ΠΈ ΠΌΠ΅ΡΠ°Π»Π»ΠΈΡΠ΅ΡΠΊΠΈΠ΅ Π½Π°ΠΏΡΠ°Π²Π»ΡΡΡΠΈΠ΅ (Π΄Π»Ρ ΡΡΠ»ΠΎΠ½ΠΎΠ² ΠΏΡΠΈ ΡΡΠ°Π½ΡΠΏΠΎΡΡΠΈΡΠΎΠ²Π°Π½ΠΈΠΈ Π½Π° ΡΠ°ΡΡΡΠΎΡΠ½ΠΈΠ΅ Π΄ΠΎ 10β15 ΠΌ). ΠΡΠΈΠΌΠ΅Π½ΡΡΡΡΡ ΠΊΠΎΠ½Π²Π΅ΠΉΠ΅ΡΡ, Ρ ΠΊΠΎΡΠΎΡΡΡ Π»Π΅Π½ΡΠ° Π΄Π²ΠΈΠΆΠ΅ΡΡΡ ΠΏΠΎ Π±ΠΎΠ»ΡΡΠΎΠΌΡ ΡΠΈΡΠ»Ρ ΠΊΠΎΡΠΎΡΠΊΠΈΡ ΡΠΎΠ»ΠΈΠΊΠΎΠ²-Π΄ΠΈΡΠΊΠΎΠ², Π²ΠΌΠΎΠ½ΡΠΈΡΠΎΠ²Π°Π½Π½ΡΡ Π² ΡΡΠ°Π½ΠΈΠ½Ρ.
ΠΠ΅ΡΡΠΏΠ΅ΠΊΡΠΈΠ²Π½ΡΠΌΠΈ Π΄Π»Ρ ΡΡΠ°Π½ΡΠΏΠΎΡΡΠΈΡΠΎΠ²Π°Π½ΠΈΡ ΡΡΠ»ΠΎΠ½ΠΎΠ² ΡΠ²Π»ΡΡΡΡΡ ΠΊΠΎΠ½Π²Π΅ΠΉΠ΅ΡΡ, Ρ ΠΊΠΎΡΠΎΡΡΡ Π»Π΅Π½ΡΠ° Ρ Π½Π°ΡΡΠΆΠ½ΠΎΠΉ ΠΏΠΎΠ²Π΅ΡΡ Π½ΠΎΡΡΠΈ Π² ΡΠ΅Π½ΡΡΠ°Π»ΡΠ½ΠΎΠΉ ΡΠ°ΡΡΠΈ ΠΈΠΌΠ΅Π΅Ρ ΡΠ³Π»ΡΠ±Π»Π΅Π½ΠΈΠ΅, ΠΎΡΠ΅ΡΡΠ΅Π½Π½ΠΎΠ΅ ΠΏΠΎ ΡΠ°Π΄ΠΈΡΡΡ, Π΄Π»ΡβΠΏΡΠ΅Π΄ΠΎΡΠ²ΡΠ°ΡΠ΅Π½ΠΈΡ ΡΠΊΠ°ΡΡΠ²Π°Π½ΠΈΡ ΡΡΠ»ΠΎΠ½Π° Ρ Π»Π΅Π½ΡΡ ΠΏΡΠΈ Π΄Π²ΠΈΠΆΠ΅Π½ΠΈΠΈ Π΅Π΅ ΠΏΠΎ ΡΠΈΠ»ΠΈΠ½Π΄ΡΠΈΡΠ΅ΡΠΊΠΈΠΌ ΡΠΎΠ»ΠΈΠΊΠ°ΠΌ.
ΠΡΠ½ΠΎΠ²Π½ΠΎΠΉ Π½Π΅Π΄ΠΎΡΡΠ°ΡΠΎΠΊ Π»Π΅Π½ΡΠΎΡΠ½ΡΡ
ΠΊΠΎΠ½Π²Π΅ΠΉΠ΅ΡΠΎΠ² Π·Π°ΠΊΠ»ΡΡΠ°Π΅ΡΡΡ Π² ΡΠΎΠΌ, ΡΡΠΎ ΡΠΎΠ»ΠΈΠΊΠΈ Π½Π΅ΠΎΠ±Ρ
ΠΎΠ΄ΠΈΠΌΠΎ ΡΠ°ΡΠΏΠΎΠ»Π°Π³Π°ΡΡ Π½Π° ΡΠ°Π±ΠΎΡΠ΅ΠΉ Π²Π΅ΡΠ²ΠΈ Ρ ΠΌΠ°Π»ΡΠΌ ΡΠ°Π³ΠΎΠΌ (250β400 ΠΌΠΌ), Π° ΡΡΠΎ Π² Π·Π½Π°ΡΠΈΡΠ΅Π»ΡΠ½ΠΎΠΉ ΠΌΠ΅ΡΠ΅ ΡΡΠ»ΠΎΠΆΠ½ΡΠ΅Ρ ΠΈ ΡΡΡΠΆΠ΅Π»ΡΠ΅Ρ ΠΊΠΎΠ½ΡΡΡΡΠΊΡΠΈΡ.
ΠΡΡΠ³ΠΈΠΌ Π½Π΅Π΄ΠΎΡΡΠ°ΡΠΊΠΎΠΌ ΠΊΠΎΠ½Π²Π΅ΠΉΠ΅ΡΠΎΠ² ΠΏΡΠΈ ΡΡΠ°Π½ΡΠΏΠΎΡΡΠΈΡΠΎΠ²Π°Π½ΠΈΠΈ Π»ΠΈΡΡΠΎΠ²ΡΡ ΠΌΠ°ΡΠ΅ΡΠΈΠ°Π»ΠΎΠ² ΡΠ²Π»ΡΠ΅ΡΡΡ Π²ΠΎΠ·ΠΌΠΎΠΆΠ½ΠΎΡΡΡ ΡΠΌΠ΅ΡΠ΅Π½ΠΈΡ Π»ΠΈΡΡΠΎΠ² Π² ΡΡΠΎΠΏΠ΅. ΠΡΠΈ ΠΏΠ΅ΡΠ΅ΠΌΠ΅ΡΠ΅Π½ΠΈΠΈ ΡΡΠΎΠΏ ΡΠ΅Π»Π»ΡΠ»ΠΎΠ·Ρ Π½Π° Π»Π΅Π½ΡΠΎΡΠ½ΠΎΠΌ ΠΊΠΎΠ½Π²Π΅ΠΉΠ΅ΡΠ΅ ΡΠΎ ΡΠΊΠΎΡΠΎΡΡΡΡ Π΄ΠΎ 0,5 ΠΌ/Ρ ΠΏΡΠΈ ΠΏΡΡΠΊΠ΅ ΠΈ ΠΎΡΡΠ°Π½ΠΎΠ²ΠΊΠ΅ ΠΊΠΎΡΠΎΡΠΊΠΎ-Π·Π°ΠΌΠΊΠ½ΡΡΠΎΠ³ΠΎ Π΄Π²ΠΈΠ³Π°ΡΠ΅Π»Ρ ΡΠΌΠ΅ΡΠ΅Π½ΠΈΡ Π»ΠΈΡΡΠΎΠ² Π² ΡΡΠΎΠΏΠ΅ Π²ΡΡΠΎΡΠΎΠΉ 750 ΠΌΠΌ Π½Π΅ Π½Π°Π±Π»ΡΠ΄Π°Π΅ΡΡΡ. ΠΠΈΡΡ ΠΏΡΠΈ ΡΠΊΠΎΡΠΎΡΡΠΈ ΠΎΡ 0,5 Π΄ΠΎ 1,5 ΠΌ/Ρ Π»ΠΈΡΡΡ Π² ΡΡΠΎΠΏΠ΅ ΡΠΌΠ΅ΡΠ°ΡΡΡΡ ΠΎΡ Π²Π΅ΡΡΠΈΠΊΠ°Π»ΠΈ Π½Π° 6β7 ΠΌΠΌ. ΠΡΠΈ ΡΡΠ°Π½ΡΠΏΠΎΡΡΠΈΡΠΎΠ²Π°Π½ΠΈΠΈ ΡΡΠΎΠΏ Π»ΠΈΡΡΠΎΠ²ΠΎΠΉ Π±ΡΠΌΠ°Π³ΠΈ ΡΠΌΠ΅ΡΠ΅Π½ΠΈΠ΅ Π»ΠΈΡΡΠΎΠ² Π² ΡΡΠΎΠΏΠ΅ Π½Π°Π±Π»ΡΠ΄Π°Π»ΠΎΡΡ ΠΏΡΠΈ Π²ΡΡΠΎΡΠ΅ ΡΡΠΎΠΏΡ Π±ΠΎΠ»Π΅Π΅ 400 ΠΌΠΌ ΠΈ ΡΠΊΠΎΡΠΎΡΡΠΈ ΡΠ²ΡΡΠ΅ 0,3 ΠΌ/Ρ. ΠΠ»Ρ Π²ΡΡΠ°Π²Π½ΠΈΠ²Π°Π½ΠΈΡ Π»ΠΈΡΡΠΎΠ² Π±ΡΠΌΠ°Π³ΠΈ Π² ΡΡΠΎΠΏΠ΅ ΠΏΠΎ Π²Π΅ΡΡΠΈΠΊΠ°Π»ΠΈ ΡΡΠ΅Π±ΡΠ΅ΡΡΡ ΡΡΡΠ°Π½ΠΎΠ²ΠΊΠ° ΠΏΠΎΠ²ΠΎΡΠΎΡΠ½ΡΡ ΠΊΡΡΠ³ΠΎΠ² ΠΈΠ»ΠΈ ΠΎΡΡΡΠ΅ΡΡΠ²Π»Π΅Π½ΠΈΠ΅ ΠΏΠ»Π°Π²Π½ΠΎΠ³ΠΎ ΠΏΡΡΠΊΠ° ΠΊΠΎΠ½Π²Π΅ΠΉΠ΅ΡΠ°.
ΠΠ±ΡΠΈΠ΅ ΡΠ²Π΅Π΄Π΅Π½ΠΈΡ ΠΎ ΠΊΠΎΠ½Π²Π΅ΠΉΠ΅ΡΠ½ΡΡ ΡΠΈΡΡΠ΅ΠΌΠ°Ρ β ΡΠΈΠΏΡ, ΠΎΠ±Π»Π°ΡΡΠΈ ΠΏΡΠΈΠΌΠ΅Π½Π΅Π½ΠΈΡ ΠΈ ΡΠΎΠΎΠ±ΡΠ°ΠΆΠ΅Π½ΠΈΡ
ΠΠΎΠ½Π²Π΅ΠΉΠ΅ΡΠ½ΡΠ΅ ΡΠΈΡΡΠ΅ΠΌΡ β ΡΡΠΎ ΠΌΠ΅Ρ
Π°Π½ΠΈΡΠ΅ΡΠΊΠΈΠ΅ ΡΡΡΡΠΎΠΉΡΡΠ²Π° ΠΈΠ»ΠΈ ΡΠ·Π»Ρ, ΠΊΠΎΡΠΎΡΡΠ΅ ΡΡΠ°Π½ΡΠΏΠΎΡΡΠΈΡΡΡΡ ΠΌΠ°ΡΠ΅ΡΠΈΠ°Π» Ρ ΠΌΠΈΠ½ΠΈΠΌΠ°Π»ΡΠ½ΡΠΌΠΈ ΡΡΠΈΠ»ΠΈΡΠΌΠΈ. Π₯ΠΎΡΡ ΡΡΡΠ΅ΡΡΠ²ΡΠ΅Ρ ΠΌΠ½ΠΎΠΆΠ΅ΡΡΠ²ΠΎ ΡΠ°Π·Π»ΠΈΡΠ½ΡΡ
ΡΠΈΠΏΠΎΠ² ΠΊΠΎΠ½Π²Π΅ΠΉΠ΅ΡΠ½ΡΡ
ΡΠΈΡΡΠ΅ΠΌ, ΠΎΠ½ΠΈ ΠΎΠ±ΡΡΠ½ΠΎ ΡΠΎΡΡΠΎΡΡ ΠΈΠ· ΡΠ°ΠΌΡ, ΠΏΠΎΠ΄Π΄Π΅ΡΠΆΠΈΠ²Π°ΡΡΠ΅ΠΉ ΡΠΎΠ»ΠΈΠΊΠΈ, ΠΊΠΎΠ»Π΅ΡΠ° ΠΈΠ»ΠΈ Π»Π΅Π½ΡΡ, ΠΏΠΎ ΠΊΠΎΡΠΎΡΠΎΠΉ ΠΌΠ°ΡΠ΅ΡΠΈΠ°Π»Ρ ΠΏΠ΅ΡΠ΅ΠΌΠ΅ΡΠ°ΡΡΡΡ ΠΈΠ· ΠΎΠ΄Π½ΠΎΠ³ΠΎ ΠΌΠ΅ΡΡΠ° Π² Π΄ΡΡΠ³ΠΎΠ΅.
ΠΠ½ΠΈ ΠΌΠΎΠ³ΡΡ ΠΏΡΠΈΠ²ΠΎΠ΄ΠΈΡΡΡΡ Π² Π΄Π΅ΠΉΡΡΠ²ΠΈΠ΅ Π΄Π²ΠΈΠ³Π°ΡΠ΅Π»Π΅ΠΌ, Π³ΡΠ°Π²ΠΈΡΠ°ΡΠΈΠ΅ΠΉ ΠΈΠ»ΠΈ Π²ΡΡΡΠ½ΡΡ. ΠΡΠΈ ΡΠΈΡΡΠ΅ΠΌΡ ΠΏΠΎΠ³ΡΡΠ·ΠΎΡΠ½ΠΎ-ΡΠ°Π·Π³ΡΡΠ·ΠΎΡΠ½ΡΡ
ΡΠ°Π±ΠΎΡ Π±ΡΠ²Π°ΡΡ ΡΠ°Π·Π½ΡΡ
Π²ΠΈΠ΄ΠΎΠ², ΡΡΠΎΠ±Ρ ΡΠΎΠΎΡΠ²Π΅ΡΡΡΠ²ΠΎΠ²Π°ΡΡ ΡΠ°Π·Π»ΠΈΡΠ½ΡΠΌ ΠΏΡΠΎΠ΄ΡΠΊΡΠ°ΠΌ ΠΈΠ»ΠΈ ΠΌΠ°ΡΠ΅ΡΠΈΠ°Π»Π°ΠΌ, ΠΊΠΎΡΠΎΡΡΠ΅ Π½Π΅ΠΎΠ±Ρ
ΠΎΠ΄ΠΈΠΌΠΎ ΡΡΠ°Π½ΡΠΏΠΎΡΡΠΈΡΠΎΠ²Π°ΡΡ.
ΠΠ°ΠΆΠ½ΡΠ΅ ΡΠ΅Ρ Π½ΠΈΡΠ΅ΡΠΊΠΈΠ΅ Ρ Π°ΡΠ°ΠΊΡΠ΅ΡΠΈΡΡΠΈΠΊΠΈ ΠΊΠΎΠ½Π²Π΅ΠΉΠ΅ΡΠ½ΡΡ ΡΠΈΡΡΠ΅ΠΌ
ΠΠΎΠΏΡΡΡΠΈΠΌΠ°Ρ Π½Π°Π³ΡΡΠ·ΠΊΠ° Π½Π° Π΅Π΄ΠΈΠ½ΠΈΡΡ Π΄Π»ΠΈΠ½Ρ
ΠΡΠΎΠΈΠ·Π²ΠΎΠ΄ΠΈΡΠ΅Π»ΠΈ Π±ΡΠ΄ΡΡ ΠΏΡΠ΅Π΄Π»Π°Π³Π°ΡΡ ΡΡΠΎΡ Π°ΡΡΠΈΠ±ΡΡ Π² ΡΠ΅Ρ ΡΠ»ΡΡΠ°ΡΡ , ΠΊΠΎΠ³Π΄Π° ΠΊΠΎΠ½Π²Π΅ΠΉΠ΅Ρ Π±ΡΠ΄Π΅Ρ ΠΈΠΌΠ΅ΡΡ Π½Π΅ΡΡΠ°Π½Π΄Π°ΡΡΠ½ΡΡ Π΄Π»ΠΈΠ½Ρ, ΡΡΠΎΠ±Ρ ΠΏΠΎΠ»ΡΠ·ΠΎΠ²Π°ΡΠ΅Π»ΠΈ ΠΌΠΎΠ³Π»ΠΈ ΠΎΠΏΡΠ΅Π΄Π΅Π»ΡΡΡ ΠΏΡΠ΅Π΄Π΅Π»Ρ Π·Π°Π³ΡΡΠ·ΠΊΠΈ.
ΠΠ°ΠΊΡΠΈΠΌΠ°Π»ΡΠ½Π°Ρ Π³ΡΡΠ·ΠΎΠΏΠΎΠ΄ΡΠ΅ΠΌΠ½ΠΎΡΡΡ
Π‘Π²ΡΠ·Π°Π½ΠΎ Ρ Π³ΡΡΠ·ΠΎΠΏΠΎΠ΄ΡΠ΅ΠΌΠ½ΠΎΡΡΡΡ Π½Π° Π΅Π΄ΠΈΠ½ΠΈΡΡ Π΄Π»ΠΈΠ½Ρ, ΡΡΠΎ Π·Π½Π°ΡΠ΅Π½ΠΈΠ΅ ΠΌΠΎΠΆΠ΅Ρ Π±ΡΡΡ ΡΠΊΠ°Π·Π°Π½ΠΎ Π΄Π»Ρ ΠΊΠΎΠ½Π²Π΅ΠΉΠ΅ΡΠΎΠ² ΡΠΈΠΊΡΠΈΡΠΎΠ²Π°Π½Π½ΠΎΠΉ Π΄Π»ΠΈΠ½Ρ, ΡΠΏΠ΅ΡΠΈΠ°Π»ΡΠ½ΠΎ ΠΈΠ·Π³ΠΎΡΠΎΠ²Π»Π΅Π½Π½ΡΡ . ΠΡΠΎ ΡΠ°ΠΊΠΆΠ΅ ΠΌΠΎΠΆΠ΅Ρ Π±ΡΡΡ ΠΈΠ·Π²Π΅ΡΡΠ½ΠΎ ΠΊΠ°ΠΊ ΡΠΊΠΎΡΠΎΡΡΡ ΠΏΠΎΡΠΎΠΊΠ°.
Π‘ΠΊΠΎΡΠΎΡΡΡ ΡΠΈΡΡΠ΅ΠΌΡ ΠΊΠΎΠ½Π²Π΅ΠΉΠ΅ΡΠ½ΠΎΠΉ Π»Π΅Π½ΡΡ/Π½ΠΎΠΌΠΈΠ½Π°Π»ΡΠ½Π°Ρ ΡΠΊΠΎΡΠΎΡΡΡ
ΠΠ΅Π½ΡΠΎΡΠ½ΡΠ΅ ΠΊΠΎΠ½Π²Π΅ΠΉΠ΅ΡΡ ΠΎΠ±ΡΡΠ½ΠΎ ΠΎΡΠ΅Π½ΠΈΠ²Π°ΡΡΡΡ ΠΏΠΎ ΡΠΊΠΎΡΠΎΡΡΠΈ Π»Π΅Π½ΡΡ Π² ΡΡΡΠ°Ρ
Π² ΠΌΠΈΠ½ΡΡΡ. Π² ΡΠΎ Π²ΡΠ΅ΠΌΡ ΠΊΠ°ΠΊ ΡΠΎΠ»ΠΈΠΊΠΎΠ²ΡΠ΅ ΠΊΠΎΠ½Π²Π΅ΠΉΠ΅ΡΡ Ρ ΠΏΡΠΈΠ²ΠΎΠ΄ΠΎΠΌ ΠΎΠΏΠΈΡΡΠ²Π°Π»ΠΈ Π»ΠΈΠ½Π΅ΠΉΠ½ΡΡ ΡΠΊΠΎΡΠΎΡΡΡ Π² Π°Π½Π°Π»ΠΎΠ³ΠΈΡΠ½ΡΡ
Π΅Π΄ΠΈΠ½ΠΈΡΠ°Ρ
Π΄Π»Ρ ΡΠΏΠ°ΠΊΠΎΠ²ΠΊΠΈ, ΠΊΠΎΡΠΎΠ±ΠΊΠΈ ΠΈ Ρ.
Π΄., Π΄Π²ΠΈΠΆΡΡΠΈΡ
ΡΡ ΠΏΠΎ ΠΏΡΠΈΠ²ΠΎΠ΄Π½ΡΠΌ ΡΠΎΠ»ΠΈΠΊΠ°ΠΌ. ΠΠΎΠΌΠΈΠ½Π°Π»ΡΠ½Π°Ρ ΡΠΊΠΎΡΠΎΡΡΡ ΡΠ°ΠΊΠΆΠ΅ ΠΎΡΠ½ΠΎΡΠΈΡΡΡ ΠΊ ΠΏΠ»Π°ΡΡΠΈΠ½ΡΠ°ΡΡΠΌ/ΠΏΠ»Π°ΡΡΠΈΠ½ΡΠ°ΡΡΠΌ ΠΊΠΎΠ½Π²Π΅ΠΉΠ΅ΡΠ°ΠΌ, Π° ΡΠ°ΠΊΠΆΠ΅ ΠΊ ΡΠΊΡΠ΅Π±ΠΊΠΎΠ²ΡΠΌ/ΡΠ΅ΠΏΠ½ΡΠΌ/Π±ΡΠΊΡΠΈΡΡΡΡΠΈΠΌ ΠΊΠΎΠ½Π²Π΅ΠΉΠ΅ΡΠ°ΠΌ.
ΠΡΠΎΠΏΡΡΠΊΠ½Π°Ρ ΡΠΏΠΎΡΠΎΠ±Π½ΠΎΡΡΡ
ΠΡΠΎΠΏΡΡΠΊΠ½Π°Ρ ΡΠΏΠΎΡΠΎΠ±Π½ΠΎΡΡΡ ΠΈΠ·ΠΌΠ΅ΡΡΠ΅Ρ ΠΏΡΠΎΠΏΡΡΠΊΠ½ΡΡ ΡΠΏΠΎΡΠΎΠ±Π½ΠΎΡΡΡ ΠΊΠΎΠ½Π²Π΅ΠΉΠ΅ΡΠΎΠ², ΠΊΠΎΡΠΎΡΡΠ΅ ΡΠ°Π±ΠΎΡΠ°ΡΡ Ρ ΠΏΠΎΡΠΎΡΠΊΠΎΠΎΠ±ΡΠ°Π·Π½ΡΠΌΠΈ ΠΌΠ°ΡΠ΅ΡΠΈΠ°Π»Π°ΠΌΠΈ ΠΈ Π°Π½Π°Π»ΠΎΠ³ΠΈΡΠ½ΡΠΌΠΈ ΡΡΠΏΡΡΠΈΠΌΠΈ ΠΏΡΠΎΠ΄ΡΠΊΡΠ°ΠΌΠΈ. ΠΠ³ΠΎ ΡΠ°ΡΡΠΎ Π·Π°Π΄Π°ΡΡ ΠΊΠ°ΠΊ ΠΎΠ±ΡΠ΅ΠΌ Π² Π΅Π΄ΠΈΠ½ΠΈΡΡ Π²ΡΠ΅ΠΌΠ΅Π½ΠΈ, Π½Π°ΠΏΡΠΈΠΌΠ΅Ρ, ΠΊΠ°ΠΊ ΠΊΡΠ±ΠΈΡΠ΅ΡΠΊΠΈΠΉ ΡΡΡ Π² ΠΌΠΈΠ½ΡΡΡ. ΠΡΠΎΡ Π°ΡΡΠΈΠ±ΡΡ ΠΏΡΠΈΠΌΠ΅Π½ΡΠ΅ΡΡΡ ΠΊ ΠΊΠΎΠ²ΡΠΎΠ²ΡΠΌ, ΠΏΠ½Π΅Π²ΠΌΠ°ΡΠΈΡΠ΅ΡΠΊΠΈΠΌ/Π²Π°ΠΊΡΡΠΌΠ½ΡΠΌ, Π²ΠΈΠ½ΡΠΎΠ²ΡΠΌ, Π²ΠΈΠ±ΡΠ°ΡΠΈΠΎΠ½Π½ΡΠΌ ΠΈ ΠΊΠΎΠ½Π²Π΅ΠΉΠ΅ΡΠ°ΠΌ Ρ ΡΠ°Π³Π°ΡΡΠ΅ΠΉ Π±Π°Π»ΠΊΠΎΠΉ.
ΠΠΎΠ½ΡΠΈΠ³ΡΡΠ°ΡΠΈΡ ΠΊΠ°Π΄ΡΠ°
ΠΠΎΠ½ΡΠΈΠ³ΡΡΠ°ΡΠΈΡ ΡΠ°ΠΌΡ ΠΎΡΠ½ΠΎΡΠΈΡΡΡ ΠΊ ΡΠΎΡΠΌΠ΅ ΡΠ°ΠΌΡ ΠΊΠΎΠ½Π²Π΅ΠΉΠ΅ΡΠ°. Π Π°ΠΌΠΊΠΈ ΠΌΠΎΠ³ΡΡ Π±ΡΡΡ ΠΏΡΡΠΌΡΠΌΠΈ, ΠΈΠ·ΠΎΠ³Π½ΡΡΡΠΌΠΈ, z-ΠΎΠ±ΡΠ°Π·Π½ΡΠΌΠΈ ΠΈΠ»ΠΈ ΠΈΠΌΠ΅ΡΡ Π΄ΡΡΠ³ΡΡ ΡΠΎΡΠΌΡ.
Π Π°ΡΠΏΠΎΠ»ΠΎΠΆΠ΅Π½ΠΈΠ΅ ΠΏΡΠΈΠ²ΠΎΠ΄Π°
ΠΡΠΈΠ²ΠΎΠ΄Ρ ΠΌΠΎΠ³ΡΡ ΡΠ°ΡΠΏΠΎΠ»Π°Π³Π°ΡΡΡΡ Π² ΡΠ°Π·Π½ΡΡ
ΠΌΠ΅ΡΡΠ°Ρ
ΠΊΠΎΠ½Π²Π΅ΠΉΠ΅ΡΠ½ΡΡ
ΡΠΈΡΡΠ΅ΠΌ. ΠΠΎΠ»ΠΎΠ²Π½ΠΎΠΉ ΠΈΠ»ΠΈ ΠΊΠΎΠ½ΡΠ΅Π²ΠΎΠΉ ΠΏΡΠΈΠ²ΠΎΠ΄ Π½Π°Ρ
ΠΎΠ΄ΠΈΡΡΡ Π½Π° ΡΠ°Π·Π³ΡΡΠ·ΠΎΡΠ½ΠΎΠΉ ΡΡΠΎΡΠΎΠ½Π΅ ΠΊΠΎΠ½Π²Π΅ΠΉΠ΅ΡΠ° ΠΈ ΡΠ²Π»ΡΠ΅ΡΡΡ Π½Π°ΠΈΠ±ΠΎΠ»Π΅Π΅ ΡΠ°ΡΠΏΡΠΎΡΡΡΠ°Π½Π΅Π½Π½ΡΠΌ ΡΠΈΠΏΠΎΠΌ. Π¦Π΅Π½ΡΡΠ°Π»ΡΠ½ΡΠ΅ ΠΏΡΠΈΠ²ΠΎΠ΄Ρ Π½Π΅ Π²ΡΠ΅Π³Π΄Π° Π½Π°Ρ
ΠΎΠ΄ΡΡΡΡ Π² ΡΠ°ΠΊΡΠΈΡΠ΅ΡΠΊΠΎΠΌ ΡΠ΅Π½ΡΡΠ΅ ΠΊΠΎΠ½Π²Π΅ΠΉΠ΅ΡΠ°, Π° Π³Π΄Π΅-ΡΠΎ ΠΏΠΎ Π΅Π³ΠΎ Π΄Π»ΠΈΠ½Π΅ ΠΈ ΠΌΠΎΠ½ΡΠΈΡΡΡΡΡΡ ΠΏΠΎΠ΄ ΡΠΈΡΡΠ΅ΠΌΠΎΠΉ.
ΠΠ½ΠΈ ΠΈΡΠΏΠΎΠ»ΡΠ·ΡΡΡΡΡ Π΄Π»Ρ ΠΈΠ·ΠΌΠ΅Π½Π΅Π½ΠΈΡ Π½Π°ΠΏΡΠ°Π²Π»Π΅Π½ΠΈΡ ΠΊΠΎΠ½Π²Π΅ΠΉΠ΅ΡΠ°.
Π’ΠΈΠΏΡ ΠΊΠΎΠ½Π²Π΅ΠΉΠ΅ΡΠΎΠ²
- Π Π΅ΠΌΠ΅Π½Ρ
- Π ΠΎΠ»ΠΈΠΊ
- ΠΡΠΈΠ²ΠΎΠ΄Π½ΠΎΠΉ ΡΠΎΠ»ΠΈΠΊ
- ΠΠ»Π°Π½ΠΊΠ°/ΡΠ°ΡΡΡΠΊ
- ΠΠ΅ΡΠ΅Π΄Π°ΡΠ° ΠΌΡΡΠ°
- ΠΠ°Π³Π½ΠΈΡΠ½ΡΠΉ
- ΠΠ΅Π΄ΡΠΎ
- ΠΠ΅Π»ΠΎΠ±
- ΠΡΠΊΡΠΈΡΠΎΠ²ΠΊΠ°/ΡΠ΅ΠΏΡ/Π±ΡΠΊΡΠΈΡΠΎΠ²ΠΊΠ°
- ΠΠ°ΠΊΠ»Π°Π΄Π½ΡΠ΅ ΡΠ°ΡΡ ΠΎΠ΄Ρ
- ΠΠ½Π΅Π²ΠΌΠ°ΡΠΈΡΠ΅ΡΠΊΠΈΠΉ/Π²Π°ΠΊΡΡΠΌΠ½ΡΠΉ
- Π¨Π½Π΅ΠΊ/ΡΠ½Π΅ΠΊ
- ΠΠ΅ΡΡΠΈΠΊΠ°Π»ΡΠ½ΡΠΉ
- ΠΠΈΠ±ΡΠ°ΡΠΈΠΎΠ½Π½ΡΠΉ
- ΠΠ΅Π³ΠΎΠ²Π°Ρ Π±Π°Π»ΠΊΠ°
- ΠΠΎΠ»Π΅ΡΠΎ
Π Π΅ΠΌΠ΅Π½Ρ
ΠΠ΅Π½ΡΠΎΡΠ½ΡΠ΅ ΠΊΠΎΠ½Π²Π΅ΠΉΠ΅ΡΡ — ΡΡΠΎ ΡΠΈΡΡΠ΅ΠΌΡ ΠΎΠ±ΡΠ°Π±ΠΎΡΠΊΠΈ ΠΌΠ°ΡΠ΅ΡΠΈΠ°Π»ΠΎΠ², Π² ΠΊΠΎΡΠΎΡΡΡ
Π΄Π»Ρ ΡΡΠ°Π½ΡΠΏΠΎΡΡΠΈΡΠΎΠ²ΠΊΠΈ ΠΏΡΠΎΠ΄ΡΠΊΡΠΎΠ² ΠΈΠ»ΠΈ ΠΌΠ°ΡΠ΅ΡΠΈΠ°Π»ΠΎΠ² ΠΈΡΠΏΠΎΠ»ΡΠ·ΡΡΡΡΡ Π½Π΅ΠΏΡΠ΅ΡΡΠ²Π½ΡΠ΅ Π»Π΅Π½ΡΡ. Π Π΅ΠΌΠ΅Π½Ρ Π½Π°ΡΡΠ³ΠΈΠ²Π°Π΅ΡΡΡ Π² Π²ΠΈΠ΄Π΅ Π±Π΅ΡΠΊΠΎΠ½Π΅ΡΠ½ΠΎΠΉ ΠΏΠ΅ΡΠ»ΠΈ ΠΌΠ΅ΠΆΠ΄Ρ Π΄Π²ΡΠΌΡ ΠΊΠΎΠ½ΡΠ΅Π²ΡΠΌΠΈ ΡΠΊΠΈΠ²Π°ΠΌΠΈ. ΠΠ±ΡΡΠ½ΠΎ ΠΎΠ΄ΠΈΠ½ ΠΈΠ»ΠΈ ΠΎΠ±Π° ΠΊΠΎΠ½ΡΠ° ΠΈΠΌΠ΅ΡΡ Π²Π°Π»ΠΈΠΊ Π²Π½ΠΈΠ·Ρ. ΠΠΎΠ½Π²Π΅ΠΉΠ΅ΡΠ½Π°Ρ Π»Π΅Π½ΡΠ° ΠΏΠΎΠ΄Π΄Π΅ΡΠΆΠΈΠ²Π°Π΅ΡΡΡ Π»ΠΈΠ±ΠΎ ΠΌΠ΅ΡΠ°Π»Π»ΠΈΡΠ΅ΡΠΊΠΈΠΌ ΡΠΊΠΎΠ»ΡΠ·ΡΡΠΈΠΌ ΠΏΠΎΠ΄Π΄ΠΎΠ½ΠΎΠΌ Π΄Π»Ρ Π»Π΅Π³ΠΊΠΈΡ
Π½Π°Π³ΡΡΠ·ΠΎΠΊ, ΠΊΠΎΠ³Π΄Π° ΠΊ Π»Π΅Π½ΡΠ΅ Π½Π΅ Π±ΡΠ΄Π΅Ρ ΠΏΡΠΈΠ»Π°Π³Π°ΡΡΡΡ ΡΡΠ΅Π½ΠΈΠ΅, Π²ΡΠ·ΡΠ²Π°ΡΡΠ΅Π΅ ΡΠΎΠΏΡΠΎΡΠΈΠ²Π»Π΅Π½ΠΈΠ΅, Π»ΠΈΠ±ΠΎ Π½Π° ΡΠΎΠ»ΠΈΠΊΠ°Ρ
. ΠΠΎΡΠ½ΠΎΡΡΡ ΠΎΠ±Π΅ΡΠΏΠ΅ΡΠΈΠ²Π°Π΅ΡΡΡ Π΄Π²ΠΈΠ³Π°ΡΠ΅Π»ΡΠΌΠΈ, Π² ΠΊΠΎΡΠΎΡΡΡ
ΠΈΡΠΏΠΎΠ»ΡΠ·ΡΡΡΡΡ ΡΠ΅Π΄ΡΠΊΡΠΎΡΡ ΠΏΠ΅ΡΠ΅ΠΌΠ΅Π½Π½ΠΎΠΉ ΠΈΠ»ΠΈ ΠΏΠΎΡΡΠΎΡΠ½Π½ΠΎΠΉ ΡΠΊΠΎΡΠΎΡΡΠΈ.
Π‘Π°ΠΌΠΈ ΡΠ΅ΠΌΠ½ΠΈ ΠΌΠΎΠ³ΡΡ Π±ΡΡΡ ΠΈΠ·Π³ΠΎΡΠΎΠ²Π»Π΅Π½Ρ ΠΈΠ· ΠΌΠ½ΠΎΠΆΠ΅ΡΡΠ²Π° ΠΌΠ°ΡΠ΅ΡΠΈΠ°Π»ΠΎΠ², ΠΊΠΎΡΠΎΡΡΠ΅ Π΄ΠΎΠ»ΠΆΠ½Ρ ΡΠΎΠΎΡΠ²Π΅ΡΡΡΠ²ΠΎΠ²Π°ΡΡ ΡΡΠ»ΠΎΠ²ΠΈΡΠΌ, Π² ΠΊΠΎΡΠΎΡΡΡ Π±ΡΠ΄Π΅Ρ ΡΠΊΡΠΏΠ»ΡΠ°ΡΠΈΡΠΎΠ²Π°ΡΡΡΡ ΡΠ΅ΠΌΠ΅Π½Ρ. ΠΠ±ΡΡΠ½ΡΠ΅ ΠΌΠ°ΡΠ΅ΡΠΈΠ°Π»Ρ Π΄Π»Ρ ΠΊΠΎΠ½Π²Π΅ΠΉΠ΅ΡΠ½ΡΡ Π»Π΅Π½Ρ Π²ΠΊΠ»ΡΡΠ°ΡΡ ΡΠ΅Π·ΠΈΠ½Ρ, ΠΏΠ»Π°ΡΡΠΈΠΊ, ΠΊΠΎΠΆΡ, ΡΠΊΠ°Π½Ρ ΠΈ ΠΌΠ΅ΡΠ°Π»Π». Π’ΡΠ°Π½ΡΠΏΠΎΡΡΠΈΡΠΎΠ²ΠΊΠ° Π±ΠΎΠ»Π΅Π΅ ΡΡΠΆΠ΅Π»ΠΎΠ³ΠΎ Π³ΡΡΠ·Π° ΠΎΠ·Π½Π°ΡΠ°Π΅Ρ, ΡΡΠΎ ΡΡΠ΅Π±ΡΠ΅ΡΡΡ Π±ΠΎΠ»Π΅Π΅ ΡΠΎΠ»ΡΡΠ°Ρ ΠΈ ΠΏΡΠΎΡΠ½Π°Ρ ΠΊΠΎΠ½ΡΡΡΡΠΊΡΠΈΡ ΠΊΠΎΠ½Π²Π΅ΠΉΠ΅ΡΠ½ΠΎΠΉ Π»Π΅Π½ΡΡ. ΠΠ΅Π½ΡΠΎΡΠ½ΡΠ΅ ΠΊΠΎΠ½Π²Π΅ΠΉΠ΅ΡΡ ΠΎΠ±ΡΡΠ½ΠΎ ΠΏΡΠΈΠ²ΠΎΠ΄ΡΡΡΡ Π² Π΄Π΅ΠΉΡΡΠ²ΠΈΠ΅ ΠΈ ΠΌΠΎΠ³ΡΡ ΡΠ°Π±ΠΎΡΠ°ΡΡ Π½Π° ΡΠ°Π·Π»ΠΈΡΠ½ΡΡ ΡΠΊΠΎΡΠΎΡΡΡΡ Π² Π·Π°Π²ΠΈΡΠΈΠΌΠΎΡΡΠΈ ΠΎΡ ΡΡΠ΅Π±ΡΠ΅ΠΌΠΎΠΉ ΠΏΡΠΎΠΏΡΡΠΊΠ½ΠΎΠΉ ΡΠΏΠΎΡΠΎΠ±Π½ΠΎΡΡΠΈ. ΠΠΎΠ½Π²Π΅ΠΉΠ΅ΡΡ ΠΌΠΎΠ³ΡΡ ΡΠ°Π±ΠΎΡΠ°ΡΡ ΠΊΠ°ΠΊ Π³ΠΎΡΠΈΠ·ΠΎΠ½ΡΠ°Π»ΡΠ½ΠΎ, ΡΠ°ΠΊ ΠΈ Π½Π°ΠΊΠ»ΠΎΠ½Π½ΠΎ. ΠΠ΅Π½ΡΠΎΡΠ½ΡΠ΅ ΠΊΠΎΠ½Π²Π΅ΠΉΠ΅ΡΡ ΠΌΠΎΠ³ΡΡ Π±ΡΡΡ ΠΆΠ΅Π»ΠΎΠ±Π½ΡΠΌΠΈ Π΄Π»Ρ ΡΡΠΏΡΡΠΈΡ ΠΈΠ»ΠΈ ΠΊΡΡΠΏΠ½ΡΡ ΠΌΠ°ΡΠ΅ΡΠΈΠ°Π»ΠΎΠ².
Π ΠΎΠ»ΠΈΠΊΠΎΠ²ΡΠ΅ ΠΊΠΎΠ½Π²Π΅ΠΉΠ΅ΡΠ½ΡΠ΅ ΡΠΈΡΡΠ΅ΠΌΡ
Π ΠΎΠ»ΠΈΠΊΠΎΠ²ΡΠ΅ ΠΊΠΎΠ½Π²Π΅ΠΉΠ΅ΡΡ ΠΈΡΠΏΠΎΠ»ΡΠ·ΡΡΡ ΠΏΠ°ΡΠ°Π»Π»Π΅Π»ΡΠ½ΡΠ΅ ΡΠΎΠ»ΠΈΠΊΠΈ, ΡΡΡΠ°Π½ΠΎΠ²Π»Π΅Π½Π½ΡΠ΅ Π² ΡΠ°ΠΌΠ°Ρ
, Π΄Π»Ρ ΡΡΠ°Π½ΡΠΏΠΎΡΡΠΈΡΠΎΠ²ΠΊΠΈ ΠΏΡΠΎΠ΄ΡΠΊΡΠ° ΠΏΠΎΠ΄ Π΄Π΅ΠΉΡΡΠ²ΠΈΠ΅ΠΌ ΡΠΈΠ»Ρ ΡΡΠΆΠ΅ΡΡΠΈ ΠΈΠ»ΠΈ Π²ΡΡΡΠ½ΡΡ. ΠΡΠ½ΠΎΠ²Π½ΡΠ΅ Ρ
Π°ΡΠ°ΠΊΡΠ΅ΡΠΈΡΡΠΈΠΊΠΈ Π²ΠΊΠ»ΡΡΠ°ΡΡ Π΄ΠΈΠ°ΠΌΠ΅ΡΡ ΡΠΎΠ»ΠΈΠΊΠ° ΠΈ ΡΠ΅Π½ΡΡΠ°Π»ΡΠ½ΡΠ΅ ΡΠ°Π·ΠΌΠ΅ΡΡ ΠΎΡΠΈ. Π ΠΎΠ»ΠΈΠΊΠΎΠ²ΡΠ΅ ΠΊΠΎΠ½Π²Π΅ΠΉΠ΅ΡΡ ΠΈΡΠΏΠΎΠ»ΡΠ·ΡΡΡΡΡ Π² ΠΎΡΠ½ΠΎΠ²Π½ΠΎΠΌ Π² ΠΏΡΠΈΠ»ΠΎΠΆΠ΅Π½ΠΈΡΡ
ΠΏΠΎ ΠΎΠ±ΡΠ°Π±ΠΎΡΠΊΠ΅ ΠΌΠ°ΡΠ΅ΡΠΈΠ°Π»ΠΎΠ², ΡΠ°ΠΊΠΈΡ
ΠΊΠ°ΠΊ ΠΏΠΎΠ³ΡΡΠ·ΠΎΡΠ½ΡΠ΅ Π΄ΠΎΠΊΠΈ, Π΄Π»Ρ ΠΎΠ±ΡΠ°Π±ΠΎΡΠΊΠΈ Π±Π°Π³Π°ΠΆΠ° ΠΈΠ»ΠΈ Π½Π° ΡΠ±ΠΎΡΠΎΡΠ½ΡΡ
Π»ΠΈΠ½ΠΈΡΡ
ΡΡΠ΅Π΄ΠΈ ΠΌΠ½ΠΎΠ³ΠΈΡ
Π΄ΡΡΠ³ΠΈΡ
.
Π ΠΎΠ»ΠΈΠΊΠΈ Π½Π΅ ΠΏΡΠΈΠ²ΠΎΠ΄ΡΡΡΡ Π² Π΄Π΅ΠΉΡΡΠ²ΠΈΠ΅ ΠΈ ΠΈΡΠΏΠΎΠ»ΡΠ·ΡΡΡ Π³ΡΠ°Π²ΠΈΡΠ°ΡΠΈΡ, Π΅ΡΠ»ΠΈ ΠΎΠ½ΠΈ Π½Π°ΠΊΠ»ΠΎΠ½Π΅Π½Ρ, Π΄Π»Ρ ΠΏΠ΅ΡΠ΅ΠΌΠ΅ΡΠ΅Π½ΠΈΡ ΠΏΡΠΎΠ΄ΡΠΊΡΠ° ΠΈΠ»ΠΈ Π²ΡΡΡΠ½ΡΡ, Π΅ΡΠ»ΠΈ ΠΎΠ½ΠΈ ΡΡΡΠ°Π½ΠΎΠ²Π»Π΅Π½Ρ Π³ΠΎΡΠΈΠ·ΠΎΠ½ΡΠ°Π»ΡΠ½ΠΎ. ΠΠΎΠ½Π²Π΅ΠΉΠ΅ΡΡ ΠΌΠΎΠ³ΡΡ Π±ΡΡΡ ΠΏΡΡΠΌΡΠΌΠΈ ΠΈΠ»ΠΈ ΠΈΠ·ΠΎΠ³Π½ΡΡΡΠΌΠΈ Π² Π·Π°Π²ΠΈΡΠΈΠΌΠΎΡΡΠΈ ΠΎΡ ΠΎΠ±Π»Π°ΡΡΠΈ ΠΏΡΠΈΠΌΠ΅Π½Π΅Π½ΠΈΡ ΠΈ Π΄ΠΎΡΡΡΠΏΠ½ΠΎΠΉ ΠΏΠ»ΠΎΡΠ°Π΄ΠΈ.
ΠΡΠΈΠ²ΠΎΠ΄Π½ΠΎΠΉ ΡΠΎΠ»ΠΈΠΊ
Π ΠΎΠ»ΠΈΠΊΠΎΠ²ΡΠ΅ ΠΊΠΎΠ½Π²Π΅ΠΉΠ΅ΡΡ Ρ ΠΏΡΠΈΠ²ΠΎΠ΄ΠΎΠΌΠΈΡΠΏΠΎΠ»ΡΠ·ΡΡΡ ΠΏΡΠΈΠ²ΠΎΠ΄Π½ΡΠ΅ ΡΠΎΠ»ΠΈΠΊΠΈ, ΡΡΡΠ°Π½ΠΎΠ²Π»Π΅Π½Π½ΡΠ΅ Π² ΡΠ°ΠΌΠ°Ρ , Π΄Π»Ρ ΡΡΠ°Π½ΡΠΏΠΎΡΡΠΈΡΠΎΠ²ΠΊΠΈ ΠΏΡΠΎΠ΄ΡΠΊΡΠΎΠ². ΠΠ»ΡΡΠ΅Π²ΡΠ΅ Ρ Π°ΡΠ°ΠΊΡΠ΅ΡΠΈΡΡΠΈΠΊΠΈ Π²ΠΊΠ»ΡΡΠ°ΡΡ ΡΠΈΠΏ ΠΏΡΠΈΠ²ΠΎΠ΄Π°, Π΄ΠΈΠ°ΠΌΠ΅ΡΡ ΠΈ ΠΌΠ°ΡΠ΅ΡΠΈΠ°Π» ΡΠΎΠ»ΠΈΠΊΠ°, Π° ΡΠ°ΠΊΠΆΠ΅ ΡΠ°Π·ΠΌΠ΅Ρ ΡΠ΅Π½ΡΡΠ° ΠΎΡΠΈ. Π ΠΎΠ»ΠΈΠΊΠΎΠ²ΡΠ΅ ΠΊΠΎΠ½Π²Π΅ΠΉΠ΅ΡΡ Ρ ΠΌΠ΅Ρ Π°Π½ΠΈΡΠ΅ΡΠΊΠΈΠΌ ΠΏΡΠΈΠ²ΠΎΠ΄ΠΎΠΌ ΠΈΡΠΏΠΎΠ»ΡΠ·ΡΡΡΡΡ Π² ΠΎΡΠ½ΠΎΠ²Π½ΠΎΠΌ Π΄Π»Ρ ΠΏΠΎΠ³ΡΡΠ·ΠΎΡΠ½ΠΎ-ΡΠ°Π·Π³ΡΡΠ·ΠΎΡΠ½ΡΡ ΡΠ°Π±ΠΎΡ, ΡΡΠ΅Π±ΡΡΡΠΈΡ ΠΌΠ΅Ρ Π°Π½ΠΈΠ·ΠΈΡΠΎΠ²Π°Π½Π½ΠΎΠΉ ΡΡΠ°Π½ΡΠΏΠΎΡΡΠΈΡΠΎΠ²ΠΊΠΈ ΠΏΡΠΎΠ΄ΡΠΊΡΠ°. Π Π°Π·Π»ΠΈΡΠ½ΡΠ΅ ΡΠΈΠΏΡ ΠΏΡΠΈΠ²ΠΎΠ΄Π° Π²ΠΊΠ»ΡΡΠ°ΡΡ ΡΠ΅ΠΌΠ½ΠΈ, ΡΠ΅ΠΏΠΈ/Π·Π²Π΅Π·Π΄ΠΎΡΠΊΠΈ ΠΈ ΠΌΠΎΡΠΎΡΠΈΠ·ΠΎΠ²Π°Π½Π½ΡΠ΅ ΡΠΎΠ»ΠΈΠΊΠΈ. ΠΠ΅ΠΊΠΎΡΠΎΡΡΠ΅ ΠΈΠ· ΠΏΡΠΈΠΌΠ΅Π½Π΅Π½ΠΈΠΉ ΡΠΎΠ»ΠΈΠΊΠΎΠ²ΡΡ ΠΊΠΎΠ½Π²Π΅ΠΉΠ΅ΡΠΎΠ² Ρ ΠΏΡΠΈΠ²ΠΎΠ΄ΠΎΠΌ — ΠΎΠ±ΡΠ°Π±ΠΎΡΠΊΠ° ΠΏΠΈΡΠ΅Π²ΡΡ ΠΏΡΠΎΠ΄ΡΠΊΡΠΎΠ², ΠΏΡΠΎΠΈΠ·Π²ΠΎΠ΄ΡΡΠ²ΠΎ ΡΡΠ°Π»ΠΈ ΠΈ ΡΠΏΠ°ΠΊΠΎΠ²ΠΊΠ°.
ΠΠ»Π°ΡΡΠΈΠ½ΡΠ°ΡΡΠΉ Π»Π΅Π½ΡΠΎΡΠ½ΡΠΉ ΠΊΠΎΠ½Π²Π΅ΠΉΠ΅Ρ/ΡΠ°ΡΡΡΠΊ
ΠΠ»Π°ΡΡΠΈΠ½ΡΠ°ΡΡΠ΅/ΠΏΠ»Π°ΡΡΠΈΠ½ΡΠ°ΡΡΠ΅ ΠΊΠΎΠ½Π²Π΅ΠΉΠ΅ΡΡ ΠΈΡΠΏΠΎΠ»ΡΠ·ΡΡΡ ΠΏΠ»Π°Π½ΠΊΠΈ ΠΈΠ»ΠΈ ΠΏΠ»Π°ΡΡΠΈΠ½Ρ ΠΈΠ· ΡΡΠ°Π»ΠΈ, Π΄Π΅ΡΠ΅Π²Π° ΠΈΠ»ΠΈ Π΄ΡΡΠ³ΠΈΡ
ΠΌΠ°ΡΠ΅ΡΠΈΠ°Π»ΠΎΠ², ΠΊΠΎΡΠΎΡΡΠ΅ ΠΎΠ±ΡΡΠ½ΠΎ ΡΡΡΠ°Π½Π°Π²Π»ΠΈΠ²Π°ΡΡΡΡ Π½Π° ΡΠΎΠ»ΠΈΠΊΠΎΠ²ΡΡ
ΡΠ΅ΠΏΡΡ
Π΄Π»Ρ ΡΡΠ°Π½ΡΠΏΠΎΡΡΠΈΡΠΎΠ²ΠΊΠΈ ΠΏΡΠΎΠ΄ΡΠΊΡΠ°.
ΠΠ»Π°Π½ΠΊΠΈ Π½Π΅ ΡΡΠ΅ΠΏΠ»Π΅Π½Ρ ΠΈ Π½Π΅ ΠΏΠ΅ΡΠ΅ΠΊΡΡΠ²Π°ΡΡΡΡ. ΠΠ»Π°ΡΡΠΈΠ½ΡΠ°ΡΡΠ΅/ΠΏΠ»Π°ΡΡΠΈΠ½ΡΠ°ΡΡΠ΅ ΠΊΠΎΠ½Π²Π΅ΠΉΠ΅ΡΡ Π² ΠΎΡΠ½ΠΎΠ²Π½ΠΎΠΌ ΠΈΡΠΏΠΎΠ»ΡΠ·ΡΡΡΡΡ Π² ΠΏΠΎΠ³ΡΡΠ·ΠΎΡΠ½ΠΎ-ΡΠ°Π·Π³ΡΡΠ·ΠΎΡΠ½ΡΡ
ΡΠ°Π±ΠΎΡΠ°Ρ
Π΄Π»Ρ ΠΏΠ΅ΡΠ΅ΠΌΠ΅ΡΠ΅Π½ΠΈΡ Π±ΠΎΠ»ΡΡΠΈΡ
ΠΈ ΡΡΠΆΠ΅Π»ΡΡ
ΠΏΡΠ΅Π΄ΠΌΠ΅ΡΠΎΠ², Π²ΠΊΠ»ΡΡΠ°Ρ ΡΡΠΈΠΊΠΈ, Π±ΠΎΡΠΊΠΈ ΠΈΠ»ΠΈ ΠΏΠΎΠ΄Π΄ΠΎΠ½Ρ, Π² ΡΡΠ»ΠΎΠ²ΠΈΡΡ
ΡΡΠΆΠ΅Π»ΠΎΠΉ ΠΏΡΠΎΠΌΡΡΠ»Π΅Π½Π½ΠΎΡΡΠΈ, Π½Π°ΠΏΡΠΈΠΌΠ΅Ρ, Π½Π° Π»ΠΈΡΠ΅ΠΉΠ½ΡΡ
ΠΈ ΡΡΠ°Π»Π΅Π»ΠΈΡΠ΅ΠΉΠ½ΡΡ
Π·Π°Π²ΠΎΠ΄Π°Ρ
. ΠΡΠΏΠΎΠ»ΡΠ·ΠΎΠ²Π°Π½ΠΈΠ΅ ΠΏΠ»Π°Π½ΠΎΠΊ Π² ΡΡΠΆΠ΅Π»ΡΡ
ΡΡΠ»ΠΎΠ²ΠΈΡΡ
ΡΠΊΡΠΏΠ»ΡΠ°ΡΠ°ΡΠΈΠΈ ΠΏΡΠΎΠ΄Π»Π΅Π²Π°Π΅Ρ ΡΡΠΎΠΊ ΡΠ»ΡΠΆΠ±Ρ ΠΊΠΎΠ½Π²Π΅ΠΉΠ΅ΡΠ° ΠΏΠΎ ΡΡΠ°Π²Π½Π΅Π½ΠΈΡ Ρ Π΄ΡΡΠ³ΠΈΠΌΠΈ ΡΠΈΠΏΠ°ΠΌΠΈ ΠΊΠΎΠ½Π²Π΅ΠΉΠ΅ΡΠΎΠ², Π² ΠΊΠΎΡΠΎΡΡΡ
ΠΈΡΠΏΠΎΠ»ΡΠ·ΡΡΡΡΡ Π»Π΅Π½ΡΡ, ΠΊΠΎΡΠΎΡΡΠ΅ Π±ΡΡΡΡΠ΅Π΅ ΠΈΠ·Π½Π°ΡΠΈΠ²Π°ΡΡΡΡ ΠΏΡΠΈ Π²ΠΎΠ·Π΄Π΅ΠΉΡΡΠ²ΠΈΠΈ Π±ΠΎΠ»ΡΡΠΈΡ
Π½Π°Π³ΡΡΠ·ΠΎΠΊ. ΠΡΠΈ ΠΊΠΎΠ½Π²Π΅ΠΉΠ΅ΡΠ½ΡΠ΅ ΡΠΈΡΡΠ΅ΠΌΡ ΠΎΠ±ΡΡΠ½ΠΎ ΠΏΡΠΈΠ²ΠΎΠ΄ΡΡΡΡ Π² Π΄Π΅ΠΉΡΡΠ²ΠΈΠ΅ ΠΈ Π±ΡΠ²Π°ΡΡ ΡΠ°Π·Π½ΡΡ
ΡΠ°Π·ΠΌΠ΅ΡΠΎΠ² ΠΈ Π³ΡΡΠ·ΠΎΠΏΠΎΠ΄ΡΠ΅ΠΌΠ½ΠΎΡΡΠΈ.
ΠΠΎΠ½Π²Π΅ΠΉΠ΅Ρ Π΄Π»Ρ ΠΏΠ΅ΡΠ΅Π΄Π°ΡΠΈ ΡΠ°ΡΠΎΠ²
Π ΡΡΠΎΠ»Π°Ρ ΠΈΠ»ΠΈ ΠΊΠΎΠ½Π²Π΅ΠΉΠ΅ΡΠ°Ρ Ρ ΡΠ°ΡΠΈΠΊΠ°ΠΌΠΈ ΠΈΡΠΏΠΎΠ»ΡΠ·ΡΠ΅ΡΡΡ ΡΡΠ΄ Π½Π°Π²Π΅ΡΠ½ΡΡ
ΡΠ°ΡΠΈΠΊΠΎΠ²ΡΡ
ΡΠΎΠ»ΠΈΠΊΠΎΠ², ΠΏΠΎΠ·Π²ΠΎΠ»ΡΡΡΠΈΡ
ΠΎΡΡΡΠ΅ΡΡΠ²Π»ΡΡΡ ΡΠ°Π·Π½ΠΎΠ½Π°ΠΏΡΠ°Π²Π»Π΅Π½Π½ΡΡ ΡΡΠ°Π½ΡΠΏΠΎΡΡΠΈΡΠΎΠ²ΠΊΡ ΠΏΡΠΎΠ΄ΡΠΊΡΠ° Π±Π΅Π· ΠΏΡΠΈΠ²ΠΎΠ΄Π°. ΠΡΠ½ΠΎΠ²Π½ΡΠ΅ Ρ
Π°ΡΠ°ΠΊΡΠ΅ΡΠΈΡΡΠΈΠΊΠΈ Π²ΠΊΠ»ΡΡΠ°ΡΡ ΠΌΠ°ΡΠ΅ΡΠΈΠ°Π» ΠΈ ΡΠ°Π·ΠΌΠ΅Ρ ΠΌΡΡΠ°. Π’ΡΠ°Π½ΡΠΏΠΎΡΡΠΈΡΠΎΠ²ΠΎΡΠ½ΡΠ΅ ΠΊΠΎΠ½Π²Π΅ΠΉΠ΅ΡΡ Ρ ΡΠ°ΡΠΈΠΊΠ°ΠΌΠΈ ΠΈΡΠΏΠΎΠ»ΡΠ·ΡΡΡΡΡ Π² ΠΏΡΠΈΠ»ΠΎΠΆΠ΅Π½ΠΈΡΡ
ΠΏΠΎ ΠΎΠ±ΡΠ°Π±ΠΎΡΠΊΠ΅ ΠΌΠ°ΡΠ΅ΡΠΈΠ°Π»ΠΎΠ², ΡΠ°ΠΊΠΈΡ
ΠΊΠ°ΠΊ ΡΠ±ΠΎΡΠΎΡΠ½ΡΠ΅ Π»ΠΈΠ½ΠΈΠΈ ΠΈ ΡΠΏΠ°ΠΊΠΎΠ²ΠΎΡΠ½ΡΠ΅ Π»ΠΈΠ½ΠΈΠΈ, ΡΡΠ΅Π΄ΠΈ ΠΏΡΠΎΡΠ΅Π³ΠΎ.
ΠΡΠΈ ΡΠ°ΡΠΏΠΎΠ»ΠΎΠΆΠ΅Π½ΠΈΠΈ Π½Π° ΠΏΠ΅ΡΠ΅ΡΠ΅ΡΠ΅Π½ΠΈΠΈ Π½Π΅ΡΠΊΠΎΠ»ΡΠΊΠΈΡ
ΠΊΠΎΠ½Π²Π΅ΠΉΠ΅ΡΠ½ΡΡ
Π»ΠΈΠ½ΠΈΠΉ ΠΎΠ½ΠΈ ΠΈΡΠΏΠΎΠ»ΡΠ·ΡΡΡΡΡ Π΄Π»Ρ ΠΏΠ΅ΡΠ΅Π΄Π°ΡΠΈ ΠΏΡΠΎΠ΄ΡΠΊΡΠΎΠ² Ρ ΠΎΠ΄Π½ΠΎΠΉ Π»ΠΈΠ½ΠΈΠΈ Π½Π° Π΄ΡΡΠ³ΡΡ ΠΈ ΡΠ°ΡΡΠΎ ΠΈΡΠΏΠΎΠ»ΡΠ·ΡΡΡΡΡ Π² ΡΠΈΡΡΠ΅ΠΌΠ°Ρ
ΡΠΎΡΡΠΈΡΠΎΠ²ΠΊΠΈ. ΠΠΎΡΡΡΠΏΠ½Ρ ΡΠ°Π·Π»ΠΈΡΠ½ΡΠ΅ ΡΠ°Π·ΠΌΠ΅ΡΡ ΠΈ Π³ΡΡΠ·ΠΎΠΏΠΎΠ΄ΡΠ΅ΠΌΠ½ΠΎΡΡΡ. ΠΠΎΠ½Π²Π΅ΠΉΠ΅ΡΡ Π΄Π»Ρ ΠΏΠ΅ΡΠ΅Π½ΠΎΡΠ° ΡΠ°ΡΠΈΠΊΠΎΠ² Π½Π΅ ΠΏΡΠΈΠ²ΠΎΠ΄ΡΡΡΡ Π² Π΄Π΅ΠΉΡΡΠ²ΠΈΠ΅ ΠΈ ΠΏΠΎΠ»Π°Π³Π°ΡΡΡΡ Π½Π° Π²Π½Π΅ΡΠ½ΠΈΠ΅ ΡΠΈΠ»Ρ Π΄Π»Ρ ΠΏΠ΅ΡΠ΅ΠΌΠ΅ΡΠ΅Π½ΠΈΡ ΠΏΡΠΎΠ΄ΡΠΊΡΠ° ΠΏΠΎ ΠΊΠΎΠ½Π²Π΅ΠΉΠ΅ΡΡ.
ΠΠ°Π³Π½ΠΈΡΠ½ΡΠΉ
ΠΠ°Π³Π½ΠΈΡΠ½ΡΠ΅ ΠΊΠΎΠ½Π²Π΅ΠΉΠ΅ΡΡ ΠΈΡΠΏΠΎΠ»ΡΠ·ΡΡΡ Π΄Π²ΠΈΠΆΡΡΠΈΠ΅ΡΡ ΠΌΠ°Π³Π½ΠΈΡΡ, ΡΡΡΠ°Π½ΠΎΠ²Π»Π΅Π½Π½ΡΠ΅ ΠΏΠΎΠ΄ ΡΡΠ°ΡΠΈΠΎΠ½Π°ΡΠ½ΡΠΌΠΈ ΠΏΠ»ΠΈΡΠ°ΠΌΠΈ, ΡΡΠΎΠ»Π°ΠΌΠΈ ΠΈΠ»ΠΈ Π΄ΡΡΠ³ΠΈΠΌΠΈ Π²ΠΈΠ΄Π°ΠΌΠΈ Π½Π΅ΠΌΠ°Π³Π½ΠΈΡΠ½ΡΡ
ΠΏΠΎΠ»Π·ΡΠ½ΠΊΠΎΠ², Π΄Π»Ρ ΠΏΠ΅ΡΠ΅ΠΌΠ΅ΡΠ΅Π½ΠΈΡ ΠΌΠ°Π³Π½ΠΈΡΠ½ΡΡ
(ΡΠ΅ΡΠ½ΡΡ
) ΠΌΠ°ΡΠ΅ΡΠΈΠ°Π»ΠΎΠ², ΡΠ°ΡΡΠΎ Π² Π²ΠΈΠ΄Π΅ ΠΎΠ±ΡΠ΅Π·ΠΊΠΎΠ². ΠΠ°Π³Π½ΠΈΡΠ½ΡΠ΅ ΠΊΠΎΠ½Π²Π΅ΠΉΠ΅ΡΡ ΠΎΠ±ΡΡΠ½ΠΎ ΠΈΡΠΏΠΎΠ»ΡΠ·ΡΡΡΡΡ Π² ΠΊΠ°ΡΠ΅ΡΡΠ²Π΅ ΠΊΠΎΠ½Π²Π΅ΠΉΠ΅ΡΠΎΠ² Π΄Π»Ρ ΡΠ΄Π°Π»Π΅Π½ΠΈΡ ΡΡΡΡΠΆΠΊΠΈ ΠΈΠ· ΠΎΠ±ΡΠ°Π±Π°ΡΡΠ²Π°ΡΡΠΈΡ
ΡΠ΅Π½ΡΡΠΎΠ². Π‘ΠΈΡΡΠ΅ΠΌΡ ΠΌΠΎΠΆΠ½ΠΎ Π½Π°ΡΡΡΠΎΠΈΡΡ Π΄Π»Ρ ΠΈΡΠΏΠΎΠ»ΡΠ·ΠΎΠ²Π°Π½ΠΈΡ Π³ΠΎΡΠΈΠ·ΠΎΠ½ΡΠ°Π»ΡΠ½ΠΎΠ³ΠΎ Π΄Π²ΠΈΠΆΠ΅Π½ΠΈΡ, Π²Π΅ΡΡΠΈΠΊΠ°Π»ΡΠ½ΠΎΠ³ΠΎ Π΄Π²ΠΈΠΆΠ΅Π½ΠΈΡ ΠΈΠ»ΠΈ ΠΈΡ
ΠΊΠΎΠΌΠ±ΠΈΠ½Π°ΡΠΈΠΈ. ΠΠ½ΠΈ ΠΌΠΎΠ³ΡΡ Π±ΡΡΡ Π±Π΅Π· ΡΠ΅ΠΌΠ½Ρ ΠΈΠ»ΠΈ ΠΌΠΎΠ³ΡΡ ΠΈΡΠΏΠΎΠ»ΡΠ·ΠΎΠ²Π°ΡΡ ΠΊΠΎΠ½Π²Π΅ΠΉΠ΅ΡΠ½ΡΡ Π»Π΅Π½ΡΡ Π²ΠΌΠ΅ΡΡΠΎ ΡΠΊΠΎΠ»ΡΠ·ΡΡΠ΅ΠΉ ΠΏΠ»Π°ΡΡΠΎΡΠΌΡ. ΠΠΎΠ΄ ΠΊΠΎΠ½Π²Π΅ΠΉΠ΅ΡΠ½ΠΎΠΉ Π»Π΅Π½ΡΠΎΠΉ ΡΠ΅Π»ΡΡ Ρ ΡΠ»Π΅ΠΊΡΡΠΎΠΌΠ°Π³Π½ΠΈΡΠΎΠΌ ΠΈΡΠΏΠΎΠ»ΡΠ·ΡΠ΅ΡΡΡ Π΄Π»Ρ ΠΏΡΠΈΡΡΠ³ΠΈΠ²Π°Π½ΠΈΡ ΡΠ΅ΡΠ½ΡΡ
ΠΌΠ΅ΡΠ°Π»Π»ΠΎΠ² ΠΊ Π»Π΅Π½ΡΠ΅.
ΠΠ·-Π·Π° ΠΌΠ°Π³Π½ΠΈΡΠ½ΠΎΠ³ΠΎ ΠΏΡΠΈΡΡΠΆΠ΅Π½ΠΈΡ ΠΏΡΠΎΠ΄ΡΠΊΡΠ° ΠΊ ΠΊΠΎΠ½Π²Π΅ΠΉΠ΅ΡΡ ΡΡΠΈ ΡΠΈΡΡΠ΅ΠΌΡ ΡΠ°ΠΊΠΆΠ΅ ΠΌΠΎΠΆΠ½ΠΎ ΠΈΡΠΏΠΎΠ»ΡΠ·ΠΎΠ²Π°ΡΡ Π² ΠΏΠ΅ΡΠ΅Π²Π΅ΡΠ½ΡΡΠΎΠΌ Π²ΠΈΠ΄Π΅.
ΠΠ΅Π΄ΡΠΎ
ΠΠΎΠ²ΡΠΎΠ²ΡΠ΅ ΠΊΠΎΠ½Π²Π΅ΠΉΠ΅ΡΡ ΠΈΠ»ΠΈ ΠΊΠΎΠ²ΡΠΎΠ²ΡΠ΅ ΡΠ»Π΅Π²Π°ΡΠΎΡΡ ΠΈΡΠΏΠΎΠ»ΡΠ·ΡΡΡ ΠΌΠ½ΠΎΠ³ΠΎΡΡΠΎΡΠΎΠ½Π½ΠΈΠ΅ ΠΊΠΎΠ½ΡΠ΅ΠΉΠ½Π΅ΡΡ, ΠΏΡΠΈΠΊΡΠ΅ΠΏΠ»Π΅Π½Π½ΡΠ΅ ΠΊ ΡΡΠΎΡΠ°ΠΌ, ΡΠ΅ΠΌΠ½ΡΠΌ ΠΈΠ»ΠΈ ΡΠ΅ΠΏΡΠΌ Π΄Π»Ρ ΡΡΠ°Π½ΡΠΏΠΎΡΡΠΈΡΠΎΠ²ΠΊΠΈ ΠΏΡΠΎΠ΄ΡΠΊΡΠΎΠ² ΠΈΠ»ΠΈ ΠΌΠ°ΡΠ΅ΡΠΈΠ°Π»ΠΎΠ². ΠΠΎΠ½ΡΠ΅ΠΉΠ½Π΅ΡΡ ΠΎΡΡΠ°ΡΡΡΡ Π² Π²Π΅ΡΡΠΈΠΊΠ°Π»ΡΠ½ΠΎΠΌ ΠΏΠΎΠ»ΠΎΠΆΠ΅Π½ΠΈΠΈ Π²Π΄ΠΎΠ»Ρ ΡΠΈΡΡΠ΅ΠΌΡ ΠΈ Π½Π°ΠΊΠ»ΠΎΠ½ΡΡΡΡΡ Π΄Π»Ρ Π²ΡΡΠ²ΠΎΠ±ΠΎΠΆΠ΄Π΅Π½ΠΈΡ ΠΌΠ°ΡΠ΅ΡΠΈΠ°Π»Π°. ΠΠΎΠ²ΡΠΎΠ²ΡΠ΅ ΠΊΠΎΠ½Π²Π΅ΠΉΠ΅ΡΡ ΠΈΡΠΏΠΎΠ»ΡΠ·ΡΡΡΡΡ Π² ΡΠ°ΠΊΠΈΡ ΠΏΡΠΈΠ»ΠΎΠΆΠ΅Π½ΠΈΡΡ , ΠΊΠ°ΠΊ Π΄Π΅ΡΠ°Π»ΠΈ, ΡΡΠΏΡΡΠΈΠ΅ ΠΌΠ°ΡΠ΅ΡΠΈΠ°Π»Ρ ΠΈΠ»ΠΈ ΠΎΠ±ΡΠ°Π±ΠΎΡΠΊΠ° ΠΈ ΠΎΠ±ΡΠ°Π±ΠΎΡΠΊΠ° ΠΏΠΈΡΠ΅Π²ΡΡ ΠΏΡΠΎΠ΄ΡΠΊΡΠΎΠ². Π’ΡΠ°Π½ΡΠΏΠΎΡΡΠΈΡΡΠ΅ΠΌΡΠΉ ΠΌΠ°ΡΠ΅ΡΠΈΠ°Π» ΠΌΠΎΠΆΠ΅Ρ Π±ΡΡΡ Π² ΠΆΠΈΠ΄ΠΊΠΎΠΉ ΡΠΎΡΠΌΠ΅ ΠΈΠ»ΠΈ Π² ΡΡΡ ΠΎΠΌ Π²ΠΈΠ΄Π΅, Π½Π°ΠΏΡΠΈΠΌΠ΅Ρ ΡΠ»Π°ΠΌ, ΠΏΠ΅ΡΠΎΠΊ, Π½Π°Π²ΠΎΠ·, ΡΠ°Ρ Π°Ρ ΠΈ Π·Π΅ΡΠ½ΠΎ. Π‘ΠΈΡΡΠ΅ΠΌΡ ΠΌΠΎΠ³ΡΡ ΠΈΡΠΏΠΎΠ»ΡΠ·ΠΎΠ²Π°ΡΡΡΡ Π³ΠΎΡΠΈΠ·ΠΎΠ½ΡΠ°Π»ΡΠ½ΠΎ ΠΈΠ»ΠΈ ΠΌΠΎΠ³ΡΡ Π±ΡΡΡ Π½Π°ΠΊΠ»ΠΎΠ½Π½ΡΠΌΠΈ ΠΈΠ»ΠΈ Π²Π΅ΡΡΠΈΠΊΠ°Π»ΡΠ½ΡΠΌΠΈ Π΄Π»Ρ ΠΈΠ·ΠΌΠ΅Π½Π΅Π½ΠΈΡ ΡΡΠΎΠ²Π½Ρ Π΄ΠΎΡΡΠ°Π²Π»ΡΠ΅ΠΌΡΡ ΠΏΡΠΎΠ΄ΡΠΊΡΠΎΠ². ΠΠΎΡΡΡΠΏΠ½Ρ ΡΠ°Π·Π»ΠΈΡΠ½ΡΠ΅ ΡΠ°Π·ΠΌΠ΅ΡΡ ΠΈ Π³ΡΡΠ·ΠΎΠΏΠΎΠ΄ΡΠ΅ΠΌΠ½ΠΎΡΡΡ Π² Π·Π°Π²ΠΈΡΠΈΠΌΠΎΡΡΠΈ ΠΎΡ ΠΎΠ±Π»Π°ΡΡΠΈ ΠΏΡΠΈΠΌΠ΅Π½Π΅Π½ΠΈΡ.
ΠΠ΅Π»ΠΎΠ±
ΠΠΎΡΠΊΠΎΠ²ΡΠ΅ ΠΈΠ»ΠΈ ΠΆΠ΅Π»ΠΎΠ±Π½ΡΠ΅ ΠΊΠΎΠ½Π²Π΅ΠΉΠ΅ΡΡ β ΡΡΠΎ ΡΠΈΡΡΠ΅ΠΌΡ ΠΏΠΎΠ³ΡΡΠ·ΠΎΡΠ½ΠΎ-ΡΠ°Π·Π³ΡΡΠ·ΠΎΡΠ½ΡΡ
ΡΠ°Π±ΠΎΡ, Π² ΠΊΠΎΡΠΎΡΡΡ
ΠΈΡΠΏΠΎΠ»ΡΠ·ΡΠ΅ΡΡΡ Π³ΡΠ°Π²ΠΈΡΠ°ΡΠΈΡ Π΄Π»Ρ ΠΏΠ΅ΡΠ΅ΠΌΠ΅ΡΠ΅Π½ΠΈΡ ΠΏΡΠΎΠ΄ΡΠΊΡΠ° ΠΏΠΎ Π³Π»Π°Π΄ΠΊΠΈΠΌ ΠΏΠΎΠ²Π΅ΡΡ
Π½ΠΎΡΡΡΠΌ Ρ ΠΎΠ΄Π½ΠΎΠ³ΠΎ ΡΡΠΎΠ²Π½Ρ Π½Π° Π΄ΡΡΠ³ΠΎΠΉ.
ΠΠ»ΡΡΠ΅Π²ΡΠ΅ Ρ
Π°ΡΠ°ΠΊΡΠ΅ΡΠΈΡΡΠΈΠΊΠΈ Π²ΠΊΠ»ΡΡΠ°ΡΡ ΠΌΠ°ΡΠ΅ΡΠΈΠ°Π» ΠΆΠ΅Π»ΠΎΠ±Π° ΠΈ ΡΠΈΠ·ΠΈΡΠ΅ΡΠΊΠΈΠ΅ ΡΠ°Π·ΠΌΠ΅ΡΡ, ΡΠ°ΠΊΠΈΠ΅ ΠΊΠ°ΠΊ Π΄Π»ΠΈΠ½Π° ΠΈ ΡΠΈΡΠΈΠ½Π° ΠΆΠ΅Π»ΠΎΠ±Π°. ΠΠΎΡΠΊΠΎΠ²ΡΠ΅ ΠΊΠΎΠ½Π²Π΅ΠΉΠ΅ΡΡ ΠΈΡΠΏΠΎΠ»ΡΠ·ΡΡΡΡΡ Π΄Π»Ρ ΠΎΠ±ΡΠ°Π±ΠΎΡΠΊΠΈ ΠΌΠ΅ΡΠ°Π»Π»ΠΎΠ»ΠΎΠΌΠ°, ΡΠΏΠ°ΠΊΠΎΠ²ΠΊΠΈ, ΠΏΠΎΡΡΠΎΠ²ΡΡ
ΠΎΡΠΏΡΠ°Π²Π»Π΅Π½ΠΈΠΉ ΠΈΠ»ΠΈ ΠΏΠΎΡΡΡ ΠΈ Ρ. Π΄. ΠΠΎΡΠΊΠΈ ΠΈΠΌΠ΅ΡΡ Π½ΠΈΠ·ΠΊΠΈΠΉ ΠΊΠΎΡΡΡΠΈΡΠΈΠ΅Π½Ρ Π΄ΠΈΠ½Π°ΠΌΠΈΡΠ΅ΡΠΊΠΎΠ³ΠΎ ΡΡΠ΅Π½ΠΈΡ, ΡΡΠΎ ΠΏΠΎΠ·Π²ΠΎΠ»ΡΠ΅Ρ ΠΏΡΠΎΠ΄ΡΠΊΡΡ ΠΈΠ»ΠΈ ΠΌΠ°ΡΠ΅ΡΠΈΠ°Π»Ρ Π»Π΅Π³ΠΊΠΎ ΡΠΊΠΎΠ»ΡΠ·ΠΈΡΡ, ΠΈ ΠΌΠΎΠ³ΡΡ Π±ΡΡΡ ΠΏΡΡΠΌΡΠΌΠΈ ΠΈΠ»ΠΈ ΠΈΠ·ΠΎΠ³Π½ΡΡΡΠΌΠΈ Π² Π·Π°Π²ΠΈΡΠΈΠΌΠΎΡΡΠΈ ΠΎΡ ΠΏΠΎΡΡΠ΅Π±Π½ΠΎΡΡΠ΅ΠΉ. ΠΏΡΠΈΠ»ΠΎΠΆΠ΅Π½ΠΈΡ.
Π¦Π΅ΠΏΠ½ΠΎΠΉ/Π±ΡΠΊΡΠΈΡΠ½ΡΠΉ/ΡΠΊΡΠ΅Π±ΠΊΠΎΠ²ΡΠΉ ΠΊΠΎΠ½Π²Π΅ΠΉΠ΅Ρ
Π‘ΠΊΡΠ΅Π±ΠΊΠΎΠ²ΡΠ΅/ΡΠ΅ΠΏΠ½ΡΠ΅/Π±ΡΠΊΡΠΈΡΠΎΠ²ΠΎΡΠ½ΡΠ΅ ΠΊΠΎΠ½Π²Π΅ΠΉΠ΅ΡΡ ΠΈΡΠΏΠΎΠ»ΡΠ·ΡΡΡ ΠΌΠ΅Ρ
Π°Π½ΠΈΡΠ΅ΡΠΊΠΈΠ΅ ΡΡΡΡΠΎΠΉΡΡΠ²Π°, ΠΏΡΠΈΠΊΡΠ΅ΠΏΠ»Π΅Π½Π½ΡΠ΅ ΠΊ Π΄Π²ΠΈΠΆΡΡΠΈΠΌΡΡ ΡΠ»Π΅ΠΌΠ΅Π½ΡΠ°ΠΌ, ΠΎΠ±ΡΡΠ½ΠΎ ΡΠ΅ΠΏΠΈ ΠΈΠ»ΠΈ ΡΡΠΎΡΡ, Π΄Π»Ρ ΠΏΠ΅ΡΠ΅ΡΠ°ΡΠΊΠΈΠ²Π°Π½ΠΈΡ ΠΈΠ»ΠΈ Π±ΡΠΊΡΠΈΡΠΎΠ²ΠΊΠΈ ΠΏΡΠΎΠ΄ΡΠΊΡΠΎΠ². Π‘ΠΊΡΠ΅Π±ΠΊΠΎΠ²ΡΠ΅ ΠΊΠΎΠ½Π²Π΅ΠΉΠ΅ΡΡ ΠΈΡΠΏΠΎΠ»ΡΠ·ΡΡΡΡΡ Π΄Π»Ρ ΠΏΠ΅ΡΠ΅ΠΌΠ΅ΡΠ΅Π½ΠΈΡ ΡΡΠΏΡΡΠΈΡ
ΠΌΠ°ΡΠ΅ΡΠΈΠ°Π»ΠΎΠ² Π² Π±ΡΠ½ΠΊΠ΅ΡΠ°Ρ
, ΡΠΊΡΠ΅Π±ΠΊΠ°Ρ
ΠΈΠ»ΠΈ Π΄ΡΡΠ³ΠΈΡ
ΠΏΡΠΈΡΠΏΠΎΡΠΎΠ±Π»Π΅Π½ΠΈΡΡ
ΠΈ ΠΌΠΎΠ³ΡΡ ΠΈΠΌΠ΅ΡΡ Π½Π΅ΡΠΊΠΎΠ»ΡΠΊΠΎ ΡΠΎΡΠ΅ΠΊ ΡΠ°Π·Π³ΡΡΠ·ΠΊΠΈ ΠΈΠ»ΠΈ Π·Π°Π³ΡΡΠ·ΠΊΠΈ. Π’ΡΡΠ±ΡΠ°ΡΡΠ΅ ΡΠΊΡΠ΅Π±ΠΊΠΎΠ²ΡΠ΅ ΠΊΠΎΠ½Π²Π΅ΠΉΠ΅ΡΡ ΠΈΡΠΏΠΎΠ»ΡΠ·ΡΡΡ ΠΏΠΎΠ»Π½ΠΎΡΡΡΡ Π·Π°ΠΊΡΡΡΡΡ ΡΠΈΡΡΠ΅ΠΌΡ ΡΠ΅ΠΏΠ΅ΠΉ Π΄Π»Ρ ΡΡΠ°Π½ΡΠΏΠΎΡΡΠΈΡΠΎΠ²ΠΊΠΈ ΠΏΡΠΎΠ΄ΡΠΊΡΠ° Π² Π»ΡΠ±ΠΎΠΌ Π½Π°ΠΏΡΠ°Π²Π»Π΅Π½ΠΈΠΈ. Π¦Π΅ΠΏΠ½ΡΠ΅ ΠΊΠΎΠ½Π²Π΅ΠΉΠ΅ΡΡ ΠΈΡΠΏΠΎΠ»ΡΠ·ΡΡΡ ΡΠ΅ΠΏΡ ΠΈΠ»ΠΈ Π½Π΅ΡΠΊΠΎΠ»ΡΠΊΠΎ ΡΠ΅ΠΏΠ΅ΠΉ Π΄Π»Ρ ΠΏΠ΅ΡΠ΅ΠΌΠ΅ΡΠ΅Π½ΠΈΡ ΠΏΠΎΠ΄Π΄ΠΎΠ½ΠΎΠ² ΠΈΠ»ΠΈ Π΄ΡΡΠ³ΠΈΡ
ΠΏΡΠΎΠ΄ΡΠΊΡΠΎΠ², ΠΊΠΎΡΠΎΡΡΠ΅ ΡΡΡΠ΄Π½ΠΎ ΡΡΠ°Π½ΡΠΏΠΎΡΡΠΈΡΠΎΠ²Π°ΡΡ.
ΠΡΠΊΡΠΈΡΠ½ΡΠ΅ ΠΊΠΎΠ½Π²Π΅ΠΉΠ΅ΡΡ ΠΈΡΠΏΠΎΠ»ΡΠ·ΡΡΡ Π±ΡΠΊΡΠΈΡΠ½ΡΠΉ ΡΡΠΎΡ, ΡΠ°ΠΊΠΎΠΉ ΠΊΠ°ΠΊ ΡΡΠΎΡΡ ΠΈΠ»ΠΈ ΡΠ΅ΠΏΠΈ, ΠΎΠ±ΡΡΠ½ΠΎ Π² ΠΏΠΎΠ»Ρ ΠΈΠ»ΠΈ ΠΏΡΡΠΌΠΎ Π½Π°Π΄ Π½ΠΈΠΌ, Π΄Π»Ρ Π±ΡΠΊΡΠΈΡΠΎΠ²ΠΊΠΈ ΠΏΡΠΎΠ΄ΡΠΊΡΠ° Π½Π°ΠΏΡΡΠΌΡΡ ΠΈΠ»ΠΈ Π΄Π»Ρ Π±ΡΠΊΡΠΈΡΠΎΠ²ΠΊΠΈ ΠΊΠΎΠ»Π΅ΡΠ½ΡΡ
ΡΠ΅Π»Π΅ΠΆΠ΅ΠΊ ΠΈΠ»ΠΈ ΡΠ΅Π»Π΅ΠΆΠ΅ΠΊ.
ΠΠ°ΠΊΠ»Π°Π΄Π½ΡΠ΅ ΡΠ°ΡΡ ΠΎΠ΄Ρ
ΠΠΎΠ΄Π²Π΅ΡΠ½ΡΠ΅ ΠΊΠΎΠ½Π²Π΅ΠΉΠ΅ΡΡ ΠΌΠΎΠ½ΡΠΈΡΡΡΡΡΡ Π½Π° ΠΏΠΎΡΠΎΠ»ΠΊΠ΅, Π² ΠΊΠΎΡΠΎΡΠΎΠΌ ΠΈΡΠΏΠΎΠ»ΡΠ·ΡΡΡΡΡ ΡΠ΅Π»Π΅ΠΆΠΊΠΈ ΠΈΠ»ΠΈ Π΄Π΅ΡΠΆΠ°ΡΠ΅Π»ΠΈ, ΠΏΠ΅ΡΠ΅ΠΌΠ΅ΡΠ°Π΅ΠΌΡΠ΅ Ρ ΠΏΠΎΠΌΠΎΡΡΡ ΡΠ΅ΠΏΠ΅ΠΉ, ΡΡΠΎΡΠΎΠ² ΠΈΠ»ΠΈ ΠΏΠΎΠ΄ΠΎΠ±Π½ΡΡ
ΡΠΎΠ΅Π΄ΠΈΠ½Π΅Π½ΠΈΠΉ. ΠΠΎΠ΄Π²Π΅ΡΠ½ΡΠ΅ ΠΊΠΎΠ½Π²Π΅ΠΉΠ΅ΡΡ Π² ΠΎΡΠ½ΠΎΠ²Π½ΠΎΠΌ ΠΈΡΠΏΠΎΠ»ΡΠ·ΡΡΡΡΡ Π² ΠΏΡΠΈΠ»ΠΎΠΆΠ΅Π½ΠΈΡΡ
ΠΏΠΎ ΠΎΠ±ΡΠ°Π±ΠΎΡΠΊΠ΅ ΠΌΠ°ΡΠ΅ΡΠΈΠ°Π»ΠΎΠ², Π³Π΄Π΅ ΠΏΡΠΎΠ΄ΡΠΊΡ Π½Π΅ΠΎΠ±Ρ
ΠΎΠ΄ΠΈΠΌΠΎ ΠΏΠΎΠ΄Π²Π΅ΡΠΈΠ²Π°ΡΡ, Π½Π°ΠΏΡΠΈΠΌΠ΅Ρ, Π½Π° Π»ΠΈΠ½ΠΈΡΡ
Ρ
ΠΈΠΌΠΈΡΠ΅ΡΠΊΠΎΠΉ ΡΠΈΡΡΠΊΠΈ ΠΎΠ΄Π΅ΠΆΠ΄Ρ, Π»ΠΈΠ½ΠΈΡΡ
ΠΏΠΎΠΊΡΠ°ΡΠΊΠΈ ΠΈΠ»ΠΈ ΡΠΈΡΡΠ΅ΠΌΠ°Ρ
ΠΎΠ±ΡΠ°Π±ΠΎΡΠΊΠΈ Π΄Π΅ΡΠ°Π»Π΅ΠΉ, Π° ΡΠ°ΠΊΠΆΠ΅ Π΄Π»Ρ ΠΎΡ
Π»Π°ΠΆΠ΄Π΅Π½ΠΈΡ ΠΈ ΠΎΡΠ²Π΅ΡΠΆΠ΄Π΅Π½ΠΈΡ. ΠΠΎΡΡΡΠΏΠ½Ρ ΡΠ°Π·Π»ΠΈΡΠ½ΡΠ΅ ΡΠΈΠΏΡ ΠΊΠΎΠ½ΡΠΈΠ³ΡΡΠ°ΡΠΈΠΉ ΠΏΠΎΠ΄Π²Π΅ΡΠ½ΡΡ
ΠΊΠΎΠ½Π²Π΅ΠΉΠ΅ΡΠ½ΡΡ
ΡΠΈΡΡΠ΅ΠΌ, Π²ΠΊΠ»ΡΡΠ°Ρ ΡΠ»Π΅ΠΊΡΡΠΈΡΠ΅ΡΠΊΠΈΠ΅ Π³ΡΡΠ΅Π½ΠΈΡΡ, ΠΌΠΎΠ½ΠΎΡΠ΅Π»ΡΡΡ, ΡΠ΅Π»Π΅ΠΆΠΊΠΈ, Π° ΡΠ°ΠΊΠΆΠ΅ Π½Π°ΠΊΠ»ΠΎΠ½Π½ΡΠ΅ ΠΈΠ»ΠΈ Π½Π°ΠΊΠ»ΠΎΠ½Π½ΡΠ΅. Π Π·Π°Π²ΠΈΡΠΈΠΌΠΎΡΡΠΈ ΠΎΡ ΠΏΡΠΈΠΌΠ΅Π½Π΅Π½ΠΈΡ, Π³ΡΡΠ·ΠΎΠΏΠΎΠ΄ΡΠ΅ΠΌΠ½ΠΎΡΡΡ ΠΌΠΎΠΆΠ΅Ρ Π±ΡΡΡ ΠΊΡΠΈΡΠΈΡΠ΅ΡΠΊΠΎΠΉ. ΠΠΎΠ»ΡΡΠΈΠ½ΡΡΠ²ΠΎ ΡΠΈΡΡΠ΅ΠΌ ΠΏΠΎΠ΄Π²Π΅ΡΠ½ΡΡ
ΠΊΠΎΠ½Π²Π΅ΠΉΠ΅ΡΠΎΠ² ΡΠΏΡΠ°Π²Π»ΡΡΡΡΡ ΠΈ ΡΠΏΡΠ°Π²Π»ΡΡΡΡΡ, Π² ΡΠΎ Π²ΡΠ΅ΠΌΡ ΠΊΠ°ΠΊ Π΄ΡΡΠ³ΠΈΠ΅ ΠΏΡΠ΅Π΄ΡΡΠ°Π²Π»ΡΡΡ ΡΠΎΠ±ΠΎΠΉ Π»Π΅Π½ΡΠΎΡΠ½ΡΠ΅ ΠΊΠΎΠ½Π²Π΅ΠΉΠ΅ΡΡ Ρ ΡΡΡΠ½ΡΠΌ ΡΠΏΡΠ°Π²Π»Π΅Π½ΠΈΠ΅ΠΌ.
ΠΠ½Π΅Π²ΠΌΠ°ΡΠΈΡΠ΅ΡΠΊΠΈΠΉ/Π²Π°ΠΊΡΡΠΌΠ½ΡΠΉ
ΠΠ½Π΅Π²ΠΌΠ°ΡΠΈΡΠ΅ΡΠΊΠΈΠ΅/Π²Π°ΠΊΡΡΠΌΠ½ΡΠ΅ ΠΊΠΎΠ½Π²Π΅ΠΉΠ΅ΡΡ ΠΈΡΠΏΠΎΠ»ΡΠ·ΡΡΡ Π΄Π°Π²Π»Π΅Π½ΠΈΠ΅ Π²ΠΎΠ·Π΄ΡΡ Π° ΠΈΠ»ΠΈ Π²Π°ΠΊΡΡΠΌ Π΄Π»Ρ ΡΡΠ°Π½ΡΠΏΠΎΡΡΠΈΡΠΎΠ²ΠΊΠΈ ΠΌΠ°ΡΠ΅ΡΠΈΠ°Π»ΠΎΠ² ΠΈΠ»ΠΈ ΠΏΡΠ΅Π΄ΠΌΠ΅ΡΠΎΠ² Π² ΠΈΠ»ΠΈ ΡΠ΅ΡΠ΅Π· Π·Π°ΠΊΡΡΡΡΠ΅ ΡΡΡΠ±Ρ ΠΈΠ»ΠΈ Π²ΠΎΠ·Π΄ΡΡ ΠΎΠ²ΠΎΠ΄Ρ ΠΈΠ»ΠΈ Π²Π΄ΠΎΠ»Ρ ΠΏΠΎΠ²Π΅ΡΡ Π½ΠΎΡΡΠ΅ΠΉ. ΠΠ½Π΅Π²ΠΌΠ°ΡΠΈΡΠ΅ΡΠΊΠΈΠ΅/Π²Π°ΠΊΡΡΠΌΠ½ΡΠ΅ ΠΊΠΎΠ½Π²Π΅ΠΉΠ΅ΡΡ ΠΈΡΠΏΠΎΠ»ΡΠ·ΡΡΡΡΡ Π² ΠΎΡΠ½ΠΎΠ²Π½ΠΎΠΌ Π΄Π»Ρ ΠΎΠ±ΡΠ°Π±ΠΎΡΠΊΠΈ ΠΌΠ°ΡΠ΅ΡΠΈΠ°Π»ΠΎΠ², ΡΠ°ΠΊΠΈΡ ΠΊΠ°ΠΊ ΡΠ±ΠΎΡ ΠΏΡΠ»ΠΈ, ΠΎΠ±ΡΠ°Π±ΠΎΡΠΊΠ° Π±ΡΠΌΠ°Π³ΠΈ, Π΄ΠΎΡΡΠ°Π²ΠΊΠ° Π±ΠΈΠ»Π΅ΡΠΎΠ² ΠΈ Ρ. Π΄., Π° ΡΠ°ΠΊΠΆΠ΅ Π² ΡΠ°ΠΊΠΈΡ ΠΏΡΠΎΡΠ΅ΡΡΠ°Ρ , ΠΊΠ°ΠΊ Ρ ΠΈΠΌΠΈΡΠ΅ΡΠΊΠ°Ρ, ΠΌΠΈΠ½Π΅ΡΠ°Π»ΡΠ½Π°Ρ, Π»ΠΎΠΌΠΎΠ²Π°Ρ ΠΈ ΠΏΠΈΡΠ΅Π²Π°Ρ. ΠΠ°ΡΠ΅ΡΠΈΠ°Π»Ρ Π΄Π»Ρ ΠΊΠΎΠ½Π²Π΅ΠΉΠ΅ΡΠΎΠ² ΠΌΠΎΠ³ΡΡ Π±ΡΡΡ ΠΌΠ΅ΡΠ°Π»Π»ΠΈΡΠ΅ΡΠΊΠΈΠΌΠΈ ΠΈΠ»ΠΈ Π½Π΅ΠΌΠ΅ΡΠ°Π»Π»ΠΈΡΠ΅ΡΠΊΠΈΠΌΠΈ Π² Π·Π°Π²ΠΈΡΠΈΠΌΠΎΡΡΠΈ ΠΎΡ ΡΡΠ°Π½ΡΠΏΠΎΡΡΠΈΡΡΠ΅ΠΌΠΎΠ³ΠΎ Π½ΠΎΡΠΈΡΠ΅Π»Ρ. ΠΠΎΡΡΡΠΏΠ½Ρ ΡΠ°Π·Π»ΠΈΡΠ½ΡΠ΅ ΡΠ°Π·ΠΌΠ΅ΡΡ Π² Π·Π°Π²ΠΈΡΠΈΠΌΠΎΡΡΠΈ ΠΎΡ ΡΡΠ΅Π±ΠΎΠ²Π°Π½ΠΈΠΉ ΠΊ Π½Π°Π³ΡΡΠ·ΠΊΠ΅ ΠΈ ΠΏΡΠΎΠΏΡΡΠΊΠ½ΠΎΠΉ ΡΠΏΠΎΡΠΎΠ±Π½ΠΎΡΡΠΈ.
ΠΠΈΠ½ΡΠΎΠ²ΠΎΠΉ ΠΊΠΎΠ½Π²Π΅ΠΉΠ΅Ρ Π½Π° Π²ΠΈΠ½ΠΎΠ΄Π΅Π»ΡΠ½Π΅ ΠΏΡΠΎΡΠ°Π»ΠΊΠΈΠ²Π°Π΅Ρ Π²ΠΈΠ½ΠΎΠ³ΡΠ°Π΄ ΠΊ ΠΏΡΠ΅ΡΡΡ.ΠΠ·ΠΎΠ±ΡΠ°ΠΆΠ΅Π½ΠΈΠ΅ ΠΏΡΠ΅Π΄ΠΎΡΡΠ°Π²Π»Π΅Π½ΠΎ: ΠΠΎΠ·Π΅Ρ ΠΠΎΠ³ΠΈΠ»Π°/Shutterstock.com
Π¨Π½Π΅ΠΊ/ΡΠ½Π΅ΠΊ
ΠΠΈΠ½ΡΠΎΠ²ΡΠ΅ ΠΊΠΎΠ½Π²Π΅ΠΉΠ΅ΡΡ, ΠΈΠ½ΠΎΠ³Π΄Π° Π½Π°Π·ΡΠ²Π°Π΅ΠΌΡΠ΅ ΡΠΏΠΈΡΠ°Π»ΡΠ½ΡΠΌΠΈ, ΡΠ΅ΡΠ²ΡΡΠ½ΡΠΌΠΈ ΠΈΠ»ΠΈ ΡΠ½Π΅ΠΊΠΎΠ²ΡΠΌΠΈ ΠΊΠΎΠ½Π²Π΅ΠΉΠ΅ΡΠ°ΠΌΠΈ, ΠΈΡΠΏΠΎΠ»ΡΠ·ΡΡΡ ΡΠΏΠΈΡΠ°Π»ΡΠ½ΡΠ΅ ΡΠ»Π΅ΠΌΠ΅Π½ΡΡ Π΄Π»Ρ ΠΏΠ΅ΡΠ΅ΠΌΠ΅ΡΠ΅Π½ΠΈΡ ΠΌΠ°ΡΠ΅ΡΠΈΠ°Π»ΠΎΠ².
ΠΠ½ΠΈ ΡΠΎΡΡΠΎΡΡ ΠΈΠ· Π²ΠΈΠ½ΡΠΎΠ²ΠΎΠ³ΠΎ ΡΠ»Π΅ΠΌΠ΅Π½ΡΠ° ΠΈΠ»ΠΈ ΡΡΠ°Π»ΡΠ½ΠΎΠ³ΠΎ ΡΠ½Π΅ΠΊΠ°, ΠΊΠΎΡΠΎΡΡΠΉ Π²ΡΠ°ΡΠ°Π΅ΡΡΡ Π²ΠΎΠΊΡΡΠ³ ΡΠ΅Π½ΡΡΠ°Π»ΡΠ½ΠΎΠ³ΠΎ Π²Π°Π»Π°, ΠΏΠ΅ΡΠ΅ΠΌΠ΅ΡΠ°Ρ ΡΠ°Π±ΠΎΡΠΈΠΉ ΠΌΠ°ΡΠ΅ΡΠΈΠ°Π» Π² ΡΠΎΠΎΡΠ²Π΅ΡΡΡΠ²ΠΈΠΈ Ρ ΠΊΠΎΠ½ΡΡΡΡΠΊΡΠΈΠ΅ΠΉ ΡΠ½Π΅ΠΊΠ° ΠΈ Π½Π°ΠΏΡΠ°Π²Π»Π΅Π½ΠΈΠ΅ΠΌ Π²ΡΠ°ΡΠ΅Π½ΠΈΡ. ΠΠΈΠ½ΡΠΎΠ²ΠΎΠΉ Π²ΠΈΠ½Ρ ΡΡΠ½ΠΊΡΠΈΠΎΠ½ΠΈΡΡΠ΅Ρ Π²Π½ΡΡΡΠΈ ΠΊΠΎΠΆΡΡ
Π°, ΠΆΠ΅Π»ΠΎΠ±Π° ΠΈΠ»ΠΈ ΠΎΡΡΠ΅ΠΊΠ°, ΡΡΠΎΠ±Ρ Π² ΠΏΠΎΠ»Π½ΠΎΠΉ ΠΌΠ΅ΡΠ΅ ΠΈΡΠΏΠΎΠ»ΡΠ·ΠΎΠ²Π°ΡΡ Π²ΡΠ°ΡΠ°ΡΠ΅Π»ΡΠ½ΠΎΠ΅ ΡΡΠΈΠ»ΠΈΠ΅. ΠΡΠΎΠΈΠ·Π²ΠΎΠ΄ΠΈΡΠ΅Π»ΠΈ ΠΈΡΠΏΠΎΠ»ΡΠ·ΡΡΡ Π²ΠΈΠ½ΡΠΎΠ²ΡΠ΅ ΠΊΠΎΠ½Π²Π΅ΠΉΠ΅ΡΡ Π΄Π»Ρ ΡΡΠ°Π½ΡΠΏΠΎΡΡΠΈΡΠΎΠ²ΠΊΠΈ ΡΠ°ΠΊΠΈΡ
ΠΌΠ°ΡΠ΅ΡΠΈΠ°Π»ΠΎΠ², ΠΊΠ°ΠΊ Ρ
Π»ΠΎΠΏΡΡ, Π·Π΅ΡΠ½Π°, ΠΏΠΎΡΠΎΡΠΊΠΈ, ΡΠ΅ΠΌΠ΅Π½Π° ΠΈ Π³ΡΠ°Π½ΡΠ»Ρ. Π ΠΊΠ°ΡΠ΅ΡΡΠ²Π΅ Π°Π»ΡΡΠ΅ΡΠ½Π°ΡΠΈΠ²Ρ ΡΡΠΈ ΡΡΡΡΠΎΠΉΡΡΠ²Π° ΠΌΠΎΠΆΠ½ΠΎ ΠΈΡΠΏΠΎΠ»ΡΠ·ΠΎΠ²Π°ΡΡ Π΄Π»Ρ ΡΠΌΠ΅ΡΠΈΠ²Π°Π½ΠΈΡ, Π²Π·Π±Π°Π»ΡΡΠ²Π°Π½ΠΈΡ ΠΈΠ»ΠΈ ΡΠΌΠ΅ΡΠΈΠ²Π°Π½ΠΈΡ ΡΠ°ΠΊΠΈΡ
ΠΌΠ°ΡΠ΅ΡΠΈΠ°Π»ΠΎΠ² ΠΈΠ»ΠΈ Π΄Π»Ρ ΠΏΠΎΠ΄Π΄Π΅ΡΠΆΠ°Π½ΠΈΡ ΡΠ°ΡΡΠ²ΠΎΡΠΎΠ². ΠΠ½ΠΈ ΡΠΈΡΠΎΠΊΠΎ ΠΈΡΠΏΠΎΠ»ΡΠ·ΡΡΡΡΡ Π² ΡΠ΅Π»ΡΡΠΊΠΎΠΌ Ρ
ΠΎΠ·ΡΠΉΡΡΠ²Π΅, ΠΎΡ ΠΈΡΠΏΠΎΠ»ΡΠ·ΠΎΠ²Π°Π½ΠΈΡ Π² ΡΠ΅Π»ΡΡΠΊΠΎΡ
ΠΎΠ·ΡΠΉΡΡΠ²Π΅Π½Π½ΡΡ
ΠΌΠ°ΡΠΈΠ½Π°Ρ
, ΡΠ°ΠΊΠΈΡ
ΠΊΠ°ΠΊ ΠΌΠΎΠ»ΠΎΡΠΈΠ»ΠΊΠΈ ΠΈ ΠΏΡΠ΅ΡΡ-ΠΏΠΎΠ΄Π±ΠΎΡΡΠΈΠΊΠΈ, Π΄ΠΎ Π·Π°Π²ΠΎΠ΄ΡΠΊΠΈΡ
Π·Π΅ΡΠ½ΠΎΠ²ΡΡ
ΠΈ Π·Π΅ΡΠ½ΠΎΠ²ΠΎΠ·ΠΎΠ². ΠΠΈΠ½ΠΈ-Π²ΠΈΠ½ΡΠΎΠ²ΠΎΠΉ ΠΊΠΎΠ½Π²Π΅ΠΉΠ΅Ρ ΡΠ°ΠΊΠΆΠ΅ ΠΌΠΎΠΆΠ΅Ρ ΡΡΠ°Π½ΡΠΏΠΎΡΡΠΈΡΠΎΠ²Π°ΡΡ Π²Π»Π°ΠΆΠ½ΡΠ΅, Π½Π΅ΡΠ΅ΠΊΡΡΠΈΠ΅ ΠΈ ΡΠ»Π΅ΠΆΠΈΠ²Π°ΡΡΠΈΠ΅ΡΡ ΠΌΠ°ΡΠ΅ΡΠΈΠ°Π»Ρ, ΠΊΠΎΡΠΎΡΡΠ΅ Π² ΠΏΡΠΎΡΠΈΠ²Π½ΠΎΠΌ ΡΠ»ΡΡΠ°Π΅ Π±ΡΠ»ΠΎ Π±Ρ ΡΡΡΠ΄Π½ΠΎ ΠΏΠ΅ΡΠ΅ΠΌΠ΅ΡΠ°ΡΡ, Π½Π°ΠΏΡΠΈΠΌΠ΅Ρ, Π±Π΅ΡΠΎΠ½. ΠΡΡΠ³ΠΈΠΌΠΈ ΠΎΠ±Π»Π°ΡΡΡΠΌΠΈ ΠΏΡΠΈΠΌΠ΅Π½Π΅Π½ΠΈΡ Π²ΠΈΠ½ΡΠΎΠ²ΡΡ
ΠΊΠΎΠ½Π²Π΅ΠΉΠ΅ΡΠΎΠ² ΡΠ²Π»ΡΡΡΡΡ ΡΡΠ°Π½ΡΠΏΠΎΡΡΠΈΡΠΎΠ²ΠΊΠ° ΡΠ°Π·Π»ΠΈΡΠ½ΡΡ
ΠΌΠ΅Ρ
Π°Π½ΠΈΡΠ΅ΡΠΊΠΈΡ
ΡΠ°ΡΡΠ΅ΠΉ ΠΈΠ»ΠΈ ΡΠ°Π±ΠΎΡΠ° Π² ΠΊΠ°ΡΠ΅ΡΡΠ²Π΅ ΠΊΠΎΠ½Π²Π΅ΠΉΠ΅ΡΠ° ΡΠΈΡΡΠ΅ΠΌΡ ΡΠΎΠ·Π»ΠΈΠ²Π°.
ΠΠΈΠ½Ρ ΠΌΠΎΠΆΠ΅Ρ ΠΈΠΌΠ΅ΡΡ Π»ΠΎΠΏΠ°ΡΡΠ½ΡΡ ΠΈΠ»ΠΈ Π»Π΅Π½ΡΠΎΡΠ½ΡΡ ΠΊΠΎΠ½ΡΡΡΡΠΊΡΠΈΡ Π² Π·Π°Π²ΠΈΡΠΈΠΌΠΎΡΡΠΈ ΠΎΡ ΠΏΡΠΈΠΌΠ΅Π½Π΅Π½ΠΈΡ ΠΈ ΠΌΠΎΠΆΠ΅Ρ ΠΏΡΠΈΠ²ΠΎΠ΄ΠΈΡΡΡΡ Π² Π΄Π²ΠΈΠΆΠ΅Π½ΠΈΠ΅ Ρ ΠΏΠΎΠΌΠΎΡΡΡ ΡΠ΅ΠΏΠΈ ΠΈ Π·Π²Π΅Π·Π΄ΠΎΡΠΊΠΈ, Π·ΡΠ±ΡΠ°ΡΡΡ
ΠΊΠΎΠ»Π΅Ρ ΠΈΠ»ΠΈ ΠΏΡΡΠΌΠΎΠ³ΠΎ ΠΏΡΠΈΠ²ΠΎΠ΄Π°.
Π’ΠΈΠΏΡ Π²ΠΈΠ½ΡΠΎΠ²ΡΡ ΠΊΠΎΠ½Π²Π΅ΠΉΠ΅ΡΠΎΠ² Π²ΠΊΠ»ΡΡΠ°ΡΡ Π½ΠΈΠΆΠ½ΠΈΠ΅ ΠΊΠΎΠ½Π²Π΅ΠΉΠ΅ΡΡ ΠΈ Π±Π΅ΡΡΠ΅Π½ΡΡΠΎΠ²ΡΠ΅ Π²ΠΈΠ½ΡΠΎΠ²ΡΠ΅ ΠΊΠΎΠ½Π²Π΅ΠΉΠ΅ΡΡ. Π Π½ΠΈΠΆΠ½ΠΈΡ ΠΊΠΎΠ½Π²Π΅ΠΉΠ΅ΡΠ°Ρ ΠΈΡΠΏΠΎΠ»ΡΠ·ΡΠ΅ΡΡΡ Π½Π΅ΡΠΊΠΎΠ»ΡΠΊΠΎ ΡΠ½Π΅ΠΊΠΎΠ² Π² ΠΎΡΠΊΡΡΡΠΎΠΌ ΠΆΠ΅Π»ΠΎΠ±Π΅. ΠΠ΅ΡΡΠ΅Π½ΡΡΠΎΠ²ΡΠ΅ ΠΈΠ»ΠΈ Π±Π΅Π·Π²Π°Π»ΠΎΠ²ΡΠ΅ Π²ΠΈΠ½ΡΠΎΠ²ΡΠ΅ ΠΊΠΎΠ½Π²Π΅ΠΉΠ΅ΡΡ Π½Π΅ ΡΠΎΠ΄Π΅ΡΠΆΠ°Ρ ΡΠ΅Π½ΡΡΠ°Π»ΡΠ½ΠΎΠ³ΠΎ Π²Π°Π»Π° ΠΈ Π²ΠΌΠ΅ΡΡΠΎ ΡΡΠΎΠ³ΠΎ ΡΠΎΡΡΠΎΡΡ ΠΈΠ· ΠΏΡΡΡΠΎΠΉ ΡΠΏΠΈΡΠ°Π»ΠΈ. ΠΡΠ° ΠΊΠΎΠ½ΡΡΡΡΠΊΡΠΈΡ ΠΏΠΎ-ΠΏΡΠ΅ΠΆΠ½Π΅ΠΌΡ ΠΏΠ΅ΡΠ΅ΠΌΠ΅ΡΠ°Π΅Ρ ΠΏΠΎΠ΄Π»ΠΎΠΆΠΊΡ, Π½ΠΎ Π΄Π°Π΅Ρ Π±ΠΎΠ»ΡΡΠ΅ ΡΠ²ΠΎΠ±ΠΎΠ΄Ρ Π²Π½ΡΡΡΠΈ ΠΊΠΎΡΠΏΡΡΠ°. ΠΠ°ΡΠ΅ΡΠΈΠ°Π»Ρ ΠΌΠΎΠ³ΡΡ Π±ΡΡΡ ΠΌΠ΅ΡΠ°Π»Π»ΠΈΡΠ΅ΡΠΊΠΈΠΌΠΈ ΠΈΠ»ΠΈ Π½Π΅ΠΌΠ΅ΡΠ°Π»Π»ΠΈΡΠ΅ΡΠΊΠΈΠΌΠΈ Π² Π·Π°Π²ΠΈΡΠΈΠΌΠΎΡΡΠΈ ΠΎΡ ΡΡΠ°Π½ΡΠΏΠΎΡΡΠΈΡΡΠ΅ΠΌΠΎΠ³ΠΎ Π½ΠΎΡΠΈΡΠ΅Π»Ρ.
ΠΠ°Π±ΠΎΡΡ ΡΠ½Π΅ΠΊΠΎΠ², ΠΈΡΠΏΠΎΠ»ΡΠ·ΡΠ΅ΠΌΡΡ ΠΏΡΠΈ ΡΠΎΠ·Π΄Π°Π½ΠΈΠΈ Π½Π΅ΡΡΠ°Π½Π΄Π°ΡΡΠ½ΡΡ Π²ΠΈΠ½ΡΠΎΠ²ΡΡ ΠΊΠΎΠ½Π²Π΅ΠΉΠ΅ΡΠΎΠ²
ΠΠ·ΠΎΠ±ΡΠ°ΠΆΠ΅Π½ΠΈΠ΅ ΠΏΡΠ΅Π΄ΠΎΡΡΠ°Π²Π»Π΅Π½ΠΎ: Reinke & Schomann, Inc.
ΠΠ΅ΡΡΠΈΠΊΠ°Π»ΡΠ½ΡΠΉ
ΠΠ΅ΡΡΠΈΠΊΠ°Π»ΡΠ½ΡΠ΅ ΠΊΠΎΠ½Π²Π΅ΠΉΠ΅ΡΡ ΠΏΠ΅ΡΠ΅ΠΌΠ΅ΡΠ°ΡΡ ΠΏΡΠΎΠ΄ΡΠΊΡΡ Π²Π΅ΡΡΠΈΠΊΠ°Π»ΡΠ½ΠΎ ΠΌΠ΅ΠΆΠ΄Ρ ΡΡΠΎΠ²Π½ΡΠΌΠΈ ΠΊΠΎΠ½Π²Π΅ΠΉΠ΅ΡΠ½ΡΡ
Π»ΠΈΠ½ΠΈΠΉ. ΠΡΠ½ΠΎΠ²Π½ΡΠ΅ Ρ
Π°ΡΠ°ΠΊΡΠ΅ΡΠΈΡΡΠΈΠΊΠΈ Π²ΠΊΠ»ΡΡΠ°ΡΡ ΡΠΊΠΎΡΠΎΡΡΡ ΠΏΠΎΠ΄ΡΠ΅ΠΌΠ° ΠΈ ΠΌΠ°ΠΊΡΠΈΠΌΠ°Π»ΡΠ½ΡΡ Π²ΡΡΠΎΡΡ Π³ΡΡΠ·Π°.
ΠΠ΅ΡΡΠΈΠΊΠ°Π»ΡΠ½ΡΠ΅ ΠΊΠΎΠ½Π²Π΅ΠΉΠ΅ΡΡ ΠΏΠ΅ΡΠ΅ΠΌΠ΅ΡΠ°ΡΡ ΠΌΠ°ΡΠ΅ΡΠΈΠ°Π» ΠΈΠ»ΠΈ ΠΏΡΠΎΠ΄ΡΠΊΡ Π½Π° Π±ΠΎΠ»Π΅Π΅ Π²ΡΡΠΎΠΊΠΈΠ΅ ΡΡΠΎΠ²Π½ΠΈ Π²Π½ΡΡΡΠΈ ΠΏΡΠ΅Π΄ΠΏΡΠΈΡΡΠΈΡ. ΠΠ½ΠΈ ΡΠ°ΠΊΠΆΠ΅ ΠΊΠ»Π°ΡΡΠΈΡΠΈΡΠΈΡΡΡΡΡΡ ΠΊΠ°ΠΊ Π½Π΅ΠΏΡΠ΅ΡΡΠ²Π½ΡΠ΅ ΠΏΠΎΠ΄ΡΠ΅ΠΌΠ½ΡΠ΅ ΠΈΠ»ΠΈ Π²ΠΎΠ·Π²ΡΠ°ΡΠ½ΠΎ-ΠΏΠΎΡΡΡΠΏΠ°ΡΠ΅Π»ΡΠ½ΡΠ΅. Π Π·Π°Π²ΠΈΡΠΈΠΌΠΎΡΡΠΈ ΠΎΡ ΠΏΡΠΈΠΌΠ΅Π½Π΅Π½ΠΈΡ Π΄ΠΎΡΡΡΠΏΠ½Ρ ΡΠ°Π·Π»ΠΈΡΠ½ΡΠ΅ ΡΠ°Π·ΠΌΠ΅ΡΡ ΠΈ Π²ΠΎΠ·ΠΌΠΎΠΆΠ½ΠΎΡΡΠΈ Π½Π°Π³ΡΡΠ·ΠΊΠΈ.
ΠΠΈΠ±ΡΠ°ΡΠΈΡ
ΠΠΈΠ±ΡΠ°ΡΠΈΠΎΠ½Π½ΡΠ΅ ΠΊΠΎΠ½Π²Π΅ΠΉΠ΅ΡΡ ΠΌΠΎΠ΄Π΅Π»ΠΈΠΈΡΠΏΠΎΠ»ΡΠ·ΡΡΡ Π²ΡΠ°ΡΠ°ΡΠ΅Π»ΡΠ½ΡΡ ΠΈΠ»ΠΈ Π»ΠΈΠ½Π΅ΠΉΠ½ΡΡ Π²ΠΈΠ±ΡΠ°ΡΠΈΡ Π΄Π»Ρ ΠΏΠ΅ΡΠ΅ΠΌΠ΅ΡΠ΅Π½ΠΈΡ ΠΌΠ°ΡΠ΅ΡΠΈΠ°Π»Π° Π²Π΄ΠΎΠ»Ρ ΡΠ²ΠΎΠ΅ΠΉ ΡΠΈΡΡΠ΅ΠΌΡ. ΠΠΈΠ±ΡΠ°ΡΠΈΠΎΠ½Π½ΡΠ΅ ΠΊΠΎΠ½Π²Π΅ΠΉΠ΅ΡΡ ΠΈΡΠΏΠΎΠ»ΡΠ·ΡΡΡΡΡ Π΄Π»Ρ ΠΏΠ΅ΡΠ΅ΠΌΠ΅ΡΠ΅Π½ΠΈΡ ΡΡΡ ΠΈΡ ΡΡΠΏΡΡΠΈΡ ΠΌΠ°ΡΠ΅ΡΠΈΠ°Π»ΠΎΠ², ΡΠ°ΠΊΠΈΡ ΠΊΠ°ΠΊ Π·Π°ΠΏΠΎΠ»Π½ΠΈΡΠ΅Π»Ρ, Π³ΡΠ°Π²ΠΈΠΉ, ΡΠ³ΠΎΠ»Ρ ΠΈ Ρ. Π΄. Π‘ΡΠ°Π½ΠΈΠ½Π° ΠΊΠΎΠ½Π²Π΅ΠΉΠ΅ΡΠ° Π²ΠΈΠ±ΡΠΈΡΡΠ΅Ρ, ΠΏΠ΅ΡΠ΅ΠΌΠ΅ΡΠ°Ρ ΠΌΠ°ΡΠ΅ΡΠΈΠ°Π» ΠΏΠΎ Π²ΡΠ΅ΠΉ Π΅Π³ΠΎ Π΄Π»ΠΈΠ½Π΅. ΠΠΎΠ½Π²Π΅ΠΉΠ΅Ρ ΠΌΠΎΠΆΠ΅Ρ Π±ΡΡΡ ΠΆΠ΅Π»ΠΎΠ±ΠΎΠΌ, ΡΡΡΠ±ΠΎΠΉ ΠΈΠ»ΠΈ ΠΏΠ»ΠΎΡΠΊΠΎΠΉ ΡΡΠΎΠ»Π΅ΡΠ½ΠΈΡΠ΅ΠΉ. ΠΠΎΡΡΡΠΏΠ½Ρ ΠΌΠ½ΠΎΠ³ΠΈΠ΅ ΡΠ°Π·ΠΌΠ΅ΡΡ Π² Π·Π°Π²ΠΈΡΠΈΠΌΠΎΡΡΠΈ ΠΎΡ ΠΎΠ±Π»Π°ΡΡΠΈ ΠΏΡΠΈΠΌΠ΅Π½Π΅Π½ΠΈΡ.
ΠΠ΅Π³ΠΎΠ²Π°Ρ Π±Π°Π»ΠΊΠ°
ΠΠΎΠ½Π²Π΅ΠΉΠ΅ΡΡ Ρ ΡΠ°Π³Π°ΡΡΠΈΠΌΠΈ Π±Π°Π»ΠΊΠ°ΠΌΠΈ ΠΈΡΠΏΠΎΠ»ΡΠ·ΡΡΡ ΠΊΠΎΠΌΠ±ΠΈΠ½Π°ΡΠΈΡ ΡΡΠ°ΡΠΈΡΠ΅ΡΠΊΠΈΡ
ΠΈ ΠΏΠΎΠ΄Π²ΠΈΠΆΠ½ΡΡ
ΠΎΠΏΠΎΡ Π΄Π»Ρ ΠΈΠ½Π΄Π΅ΠΊΡΠ°ΡΠΈΠΈ Π·Π°Π³ΠΎΡΠΎΠ²ΠΎΠΊ Π² ΠΏΡΠΎΠΈΠ·Π²ΠΎΠ΄ΡΡΠ²Π΅Π½Π½ΡΡ
ΡΡΠ΅ΠΉΠΊΠ°Ρ
. ΠΠΎΠ½Π²Π΅ΠΉΠ΅ΡΡ Ρ ΡΠ°Π³Π°ΡΡΠΈΠΌΠΈ Π±Π°Π»ΠΊΠ°ΠΌΠΈ ΠΈΡΠΏΠΎΠ»ΡΠ·ΡΡΡΡΡ Π½Π° Π°Π²ΡΠΎΠΌΠ°ΡΠΈΡΠ΅ΡΠΊΠΈΡ
ΠΈ ΡΠ±ΠΎΡΠΎΡΠ½ΡΡ
Π»ΠΈΠ½ΠΈΡΡ
, Π³Π΄Π΅ ΡΠ»Π΅ΠΌΠ΅Π½ΡΡ Π½Π΅ΠΎΠ±Ρ
ΠΎΠ΄ΠΈΠΌΠΎ ΠΏΠΎΡΠ»Π΅Π΄ΠΎΠ²Π°ΡΠ΅Π»ΡΠ½ΠΎ ΡΠ°Π·ΠΌΠ΅ΡΠ°ΡΡ Π² ΠΎΠΏΡΠ΅Π΄Π΅Π»Π΅Π½Π½ΡΡ
ΠΌΠ΅ΡΡΠ°Ρ
.
ΠΡΠ΅Π΄ΠΌΠ΅Ρ, ΠΏΠΎΠ΄Π΄Π΅ΡΠΆΠΈΠ²Π°Π΅ΠΌΡΠΉ Π² ΡΡΠ°ΡΠΈΠΎΠ½Π°ΡΠ½ΠΎΠΌ ΠΏΠΎΠ»ΠΎΠΆΠ΅Π½ΠΈΠΈ, ΠΏΠΎΠ΄Ρ
Π²Π°ΡΡΠ²Π°Π΅ΡΡΡ ΠΏΠΎΠ΄Π²ΠΈΠΆΠ½ΠΎΠΉ Π±Π°Π»ΠΊΠΎΠΉ ΠΈ ΠΏΠ΅ΡΠ΅ΠΌΠ΅ΡΠ°Π΅ΡΡΡ Π² ΡΠ»Π΅Π΄ΡΡΡΠ΅Π΅ ΠΏΠΎΠ»ΠΎΠΆΠ΅Π½ΠΈΠ΅, Π³Π΄Π΅ ΠΏΡΠΎΠΈΡΡ
ΠΎΠ΄ΠΈΡ Π΅ΡΠ΅ ΠΎΠ΄ΠΈΠ½ ΠΏΡΠΎΠΈΠ·Π²ΠΎΠ΄ΡΡΠ²Π΅Π½Π½ΡΠΉ ΡΡΠ°ΠΏ. ΠΡΠΎ Π΄Π²ΠΈΠΆΠ΅Π½ΠΈΠ΅ ΠΏΠΎΠ²ΡΠΎΡΡΠ΅ΡΡΡ ΠΏΠΎ Π²ΡΠ΅ΠΉ Π΄Π»ΠΈΠ½Π΅ ΠΊΠΎΠ½Π²Π΅ΠΉΠ΅ΡΠ°. ΠΠΎΠ½Π²Π΅ΠΉΠ΅ΡΡ Ρ ΡΠ°Π³Π°ΡΡΠΈΠΌΠΈ Π±Π°Π»ΠΊΠ°ΠΌΠΈ ΠΌΠΎΠ³ΡΡ ΠΈΠΌΠ΅ΡΡ ΠΎΠ΄Π½Ρ ΠΈΠ»ΠΈ Π½Π΅ΡΠΊΠΎΠ»ΡΠΊΠΎ Π»ΠΈΠ½ΠΈΠΉ Π² Π·Π°Π²ΠΈΡΠΈΠΌΠΎΡΡΠΈ ΠΎΡ ΠΏΡΠΎΠ΄ΡΠΊΡΠ°.
ΠΠΎΠ»Π΅ΡΠ½ΡΠΉ ΠΊΠΎΠ½Π²Π΅ΠΉΠ΅Ρ
ΠΠΎΠ»Π΅ΡΠ½ΡΠ΅ ΠΊΠΎΠ½Π²Π΅ΠΉΠ΅ΡΡΠΈΡΠΏΠΎΠ»ΡΠ·ΡΡΡ ΠΊΠΎΠ»Π΅ΡΠ° Π±Π΅Π· ΠΏΡΠΈΠ²ΠΎΠ΄Π° Π΄Π»Ρ ΠΏΠ΅ΡΠ΅ΠΌΠ΅ΡΠ΅Π½ΠΈΡ ΠΎΠ±ΡΠ΅ΠΊΡΠΎΠ² ΠΏΠΎ ΠΈΡ Π΄Π»ΠΈΠ½Π΅ ΠΏΠΎΠ΄ Π΄Π΅ΠΉΡΡΠ²ΠΈΠ΅ΠΌ ΡΠΈΠ»Ρ ΡΡΠΆΠ΅ΡΡΠΈ ΠΈΠ»ΠΈ ΡΡΡΠ½ΠΎΠΉ ΡΠΈΠ»Ρ. ΠΠΎΠ»Π΅ΡΠ½ΡΠ΅ ΠΊΠΎΠ½Π²Π΅ΠΉΠ΅ΡΡ ΠΈΡΠΏΠΎΠ»ΡΠ·ΡΡΡΡΡ Π΄Π»Ρ ΠΎΠ±ΡΠ°Π±ΠΎΡΠΊΠΈ ΠΏΡΠ΅Π΄ΠΌΠ΅ΡΠΎΠ² ΠΈΠ»ΠΈ ΡΠΏΠ°ΠΊΠΎΠ²ΠΎΠΊ ΠΈ ΠΎΠ±ΡΡΠ½ΠΎ ΠΈΡΠΏΠΎΠ»ΡΠ·ΡΡΡΡΡ Π΄Π»Ρ Π·Π°Π³ΡΡΠ·ΠΊΠΈ ΠΈ ΡΠ°Π·Π³ΡΡΠ·ΠΊΠΈ Π³ΡΡΠ·ΠΎΠ²ΠΈΠΊΠΎΠ² ΠΈ ΠΏΠ΅ΡΠ΅ΠΌΠ΅ΡΠ΅Π½ΠΈΡ ΡΠΏΠ°ΠΊΠΎΠ²ΠΎΠΊ, ΠΏΠΎΠ΄Π΄ΠΎΠ½ΠΎΠ² ΠΈ Ρ. Π. Π§Π΅ΡΠ΅Π· ΠΎΠ±ΡΠ΅ΠΊΡΡ ΠΈΠ»ΠΈ Π²Π΄ΠΎΠ»Ρ ΡΠ±ΠΎΡΠΎΡΠ½ΡΡ Π»ΠΈΠ½ΠΈΠΉ. ΠΠΎΠ½Π²Π΅ΠΉΠ΅ΡΡ ΠΊΠΎΠ½ΡΠΈΠ³ΡΡΠΈΡΡΡΡΡΡ ΠΏΠΎ ΠΊΠΎΠ»ΠΈΡΠ΅ΡΡΠ²Ρ ΠΊΠΎΠ»Π΅Ρ ΠΈ ΡΠ°ΡΡΡΠΎΡΠ½ΠΈΡ ΠΌΠ΅ΠΆΠ΄Ρ ΠΊΠΎΠ»Π΅ΡΠ°ΠΌΠΈ Π² Π·Π°Π²ΠΈΡΠΈΠΌΠΎΡΡΠΈ ΠΎΡ ΡΡΠ΅Π±ΠΎΠ²Π°Π½ΠΈΠΉ ΠΊ Π½Π°Π³ΡΡΠ·ΠΊΠ΅ ΠΈ ΠΎΠ±Π»Π°ΡΡΠΈ ΠΏΡΠΈΠΌΠ΅Π½Π΅Π½ΠΈΡ.
ΠΠ΅Π½ΡΠΎΡΠ½ΡΠΉ ΠΊΠΎΠ½Π²Π΅ΠΉΠ΅Ρ Π½Π° ΠΊΠ°ΡΡΠΎΡΠ΅Π»Π΅ΠΏΠ΅ΡΠ΅ΡΠ°Π±Π°ΡΡΠ²Π°ΡΡΠ΅ΠΌ Π·Π°Π²ΠΎΠ΄Π΅.ΠΠ·ΠΎΠ±ΡΠ°ΠΆΠ΅Π½ΠΈΠ΅ ΠΏΡΠ΅Π΄ΠΎΡΡΠ°Π²Π»Π΅Π½ΠΎ: 279photo Studio/Shutterstock.com
Π Π΅ΠΊΠΎΠΌΠ΅Π½Π΄Π°ΡΠΈΠΈ ΠΏΠΎ Π²ΡΠ±ΠΎΡΡ ΠΊΠΎΠ½Π²Π΅ΠΉΠ΅ΡΠ½ΡΡ ΡΠΈΡΡΠ΅ΠΌ
ΠΡΠΈ ΠΏΡΠΈΠ½ΡΡΠΈΠΈ ΡΠ΅ΡΠ΅Π½ΠΈΡ ΠΎ ΡΠΎΠΌ, ΠΊΠ°ΠΊΠ°Ρ ΠΊΠΎΠ½Π²Π΅ΠΉΠ΅ΡΠ½Π°Ρ ΡΠΈΡΡΠ΅ΠΌΠ° Π»ΡΡΡΠ΅ Π²ΡΠ΅Π³ΠΎ ΡΠΎΠΎΡΠ²Π΅ΡΡΡΠ²ΡΠ΅Ρ Π²Π°ΡΠΈΠΌ ΠΏΠΎΡΡΠ΅Π±Π½ΠΎΡΡΡΠΌ, ΠΊΠ»ΡΡΠ΅Π²ΡΠΌ ΠΌΠΎΠΌΠ΅Π½ΡΠΎΠΌ ΡΠ²Π»ΡΠ΅ΡΡΡ ΡΡΠ°Π½ΡΠΏΠΎΡΡΠΈΡΡΠ΅ΠΌΡΠΉ ΠΌΠ°ΡΠ΅ΡΠΈΠ°Π».
ΠΠ΅ΠΊΠΎΡΠΎΡΡΠΌΠΈ Π²Π°ΠΆΠ½ΡΠΌΠΈ Ρ
Π°ΡΠ°ΠΊΡΠ΅ΡΠΈΡΡΠΈΠΊΠ°ΠΌΠΈ, ΠΊΠΎΡΠΎΡΡΠ΅ ΡΠ»Π΅Π΄ΡΠ΅Ρ ΡΡΠΈΡΡΠ²Π°ΡΡ, ΡΠ²Π»ΡΡΡΡΡ ΡΠ°Π·ΠΌΠ΅Ρ, ΡΠ΅ΠΊΡΡΠ΅ΡΡΡ, Π°Π±ΡΠ°Π·ΠΈΠ²Π½ΠΎΡΡΡ, ΠΊΠΎΡΡΠΎΠ·ΠΈΠΎΠ½Π½Π°Ρ Π°ΠΊΡΠΈΠ²Π½ΠΎΡΡΡ, ΡΠΎΠ΄Π΅ΡΠΆΠ°Π½ΠΈΠ΅ Π²Π»Π°Π³ΠΈ ΠΈ ΡΠ΅ΠΌΠΏΠ΅ΡΠ°ΡΡΡΠ°, ΠΏΡΠΈ ΠΊΠΎΡΠΎΡΠΎΠΉ Π΅Π³ΠΎ ΡΠ»Π΅Π΄ΡΠ΅Ρ Ρ
ΡΠ°Π½ΠΈΡΡ. Π‘Π»Π΅Π΄ΡΠ΅Ρ ΡΠ°ΠΊΠΆΠ΅ ΡΡΠΈΡΡΠ²Π°ΡΡ ΡΠΎΡΡΠ°Π² ΠΌΠ°ΡΠ΅ΡΠΈΠ°Π»Π°, Π΅ΡΠ»ΠΈ ΠΏΠ΅ΡΠ΅Π²ΠΎΠ·ΡΡΡΡ ΠΏΠΎΡΠΎΡΠΊΠΈ, Π³ΡΠ°Π½ΡΠ»Ρ, ΠΏΠ΅Π»Π»Π΅ΡΡ, Π²ΠΎΠ»ΠΎΠΊΠ½Π° ΠΈΠ»ΠΈ Ρ
Π»ΠΎΠΏΡΡ, Π° ΡΠ°ΠΊΠΆΠ΅ ΡΠ°Π·ΠΌΠ΅Ρ ΡΠ°ΡΡΠΈΡ, Π²Π΅Ρ ΠΈ ΠΏΠ»ΠΎΡΠ½ΠΎΡΡΡ.
Π€ΡΠ½ΠΊΡΠΈΡ ΡΠ°ΠΌΠΎΠΉ ΠΊΠΎΠ½Π²Π΅ΠΉΠ΅ΡΠ½ΠΎΠΉ ΡΠΈΡΡΠ΅ΠΌΡ ΠΌΠΎΠΆΠ΅Ρ ΡΠ°Π·Π»ΠΈΡΠ°ΡΡΡΡ. ΠΠ²ΡΠΌΡ ΠΎΡΠ½ΠΎΠ²Π½ΡΠΌΠΈ ΠΊΠ°ΡΠ΅Π³ΠΎΡΠΈΡΠΌΠΈ ΠΏΠ΅ΡΠ΅ΠΌΠ΅ΡΠ΅Π½ΠΈΡ ΠΌΠ°ΡΠ΅ΡΠΈΠ°Π»Π° Π² ΠΏΡΠΎΡΠ΅ΡΡΠ΅ ΡΠ²Π»ΡΡΡΡΡ ΡΡΠ°Π½ΡΠΏΠΎΡΡΠΈΡΠΎΠ²ΠΊΠ° ΠΈ ΠΏΠΎΠ΄Π°ΡΠ°. Π’ΡΠ°Π½ΡΠΏΠΎΡΡΠΈΡΠΎΠ²ΠΊΠ° β ΡΡΠΎ ΠΏΠ΅ΡΠ΅ΠΌΠ΅ΡΠ΅Π½ΠΈΠ΅ ΠΌΠ°ΡΠ΅ΡΠΈΠ°Π»ΠΎΠ² ΠΈΠ· ΠΎΠ΄Π½ΠΎΠ³ΠΎ ΠΈΠ»ΠΈ Π½Π΅ΡΠΊΠΎΠ»ΡΠΊΠΈΡ ΠΏΡΠ½ΠΊΡΠΎΠ² Π²ΡΠ΄Π°ΡΠΈ Π² ΠΎΠ΄ΠΈΠ½ ΠΈΠ»ΠΈ Π½Π΅ΡΠΊΠΎΠ»ΡΠΊΠΎ ΠΏΡΠ½ΠΊΡΠΎΠ² Π²ΡΠ΄Π°ΡΠΈ. Π‘Π»Π΅Π΄ΡΠ΅Ρ ΡΡΠΈΡΡΠ²Π°ΡΡ ΠΆΠ΅Π»Π°Π΅ΠΌΠΎΠ΅ Π²ΡΠ΅ΠΌΠ΅Π½Π½ΠΎΠ΅ ΠΎΠΊΠ½ΠΎ Π΄Π»Ρ ΡΡΠΎΠ³ΠΎ ΠΏΠ΅ΡΠ΅ΠΌΠ΅ΡΠ΅Π½ΠΈΡ, Π° ΡΠ°ΠΊΠΆΠ΅ ΠΊΠΎΠ»ΠΈΡΠ΅ΡΡΠ²ΠΎ ΡΠΎΡΠ΅ΠΊ Π·Π°Ρ Π²Π°ΡΠ° ΠΈ ΡΠ±ΡΠΎΡΠ°, ΠΊΠΎΠ»ΠΈΡΠ΅ΡΡΠ²ΠΎ ΠΏΠ΅ΡΠ΅ΠΌΠ΅ΡΠ°Π΅ΠΌΠΎΠ³ΠΎ ΠΌΠ°ΡΠ΅ΡΠΈΠ°Π»Π° ΠΈ Π½Π°Π»ΠΈΡΠΈΠ΅ ΠΏΠ΅ΡΠ΅ΠΊΡΠ΅ΡΡΠ½ΠΎΠ³ΠΎ Π·Π°Π³ΡΡΠ·Π½Π΅Π½ΠΈΡ ΠΌΠ΅ΠΆΠ΄Ρ Π½Π΅ΡΠΊΠΎΠ»ΡΠΊΠΈΠΌΠΈ ΠΌΠ°ΡΠ΅ΡΠΈΠ°Π»Π°ΠΌΠΈ.
ΠΠΎΡΠΌΠ»Π΅Π½ΠΈΠ΅ Π±ΠΎΠ»Π΅Π΅ ΡΡΠ²ΡΡΠ²ΠΈΡΠ΅Π»ΡΠ½ΠΎ ΠΊΠΎ Π²ΡΠ΅ΠΌΠ΅Π½ΠΈ, ΠΈ ΡΠΈΡΡΠ΅ΠΌΡ ΠΏΠΎΠ΄Π°ΡΠΈ Π΄ΠΎΠ»ΠΆΠ½Ρ Π±ΡΡΡ Π±ΠΎΠ»Π΅Π΅ ΡΠΎΡΠ½ΡΠΌΠΈ, ΡΠ΅ΠΌ ΡΠΈΡΡΠ΅ΠΌΡ ΠΏΠΎΠ΄Π°ΡΠΈ. ΠΠ°ΡΠ΅ΡΠΈΠ°Π» ΠΎΠ±ΡΡΠ½ΠΎ ΠΏΠ΅ΡΠ΅ΠΌΠ΅ΡΠ°Π΅ΡΡΡ ΠΈΠ· ΠΎΠ΄Π½ΠΎΠΉ ΡΠΎΡΠΊΠΈ ΠΏΠΎΠ»ΡΡΠ΅Π½ΠΈΡ Π² ΠΎΠ΄Π½Ρ ΡΠΎΡΠΊΡ ΡΠ±ΡΠΎΡΠ°.
ΠΠ΅ΡΠ΅ΠΌΠ΅ΡΠ°Π΅ΠΌΡΠΉ ΠΏΡΠΎΠ΄ΡΠΊΡ, Π²ΠΎΠ·ΠΌΠΎΠΆΠ½ΠΎ, ΠΏΡΠΈΠ΄Π΅ΡΡΡ Π΄ΠΎΡΡΠ°Π²Π»ΡΡΡ ΠΏΠ°ΡΡΠΈΡΠΌΠΈ ΠΈΠ»ΠΈ Ρ ΠΊΠΎΠ½ΡΡΠΎΠ»ΠΈΡΡΠ΅ΠΌΠΎΠΉ Π½Π΅ΠΏΡΠ΅ΡΡΠ²Π½ΠΎΠΉ ΡΠΊΠΎΡΠΎΡΡΡΡ.
ΠΠ°ΠΆΠ½ΡΠΌ ΡΠ°ΠΊΡΠΎΡΠΎΠΌ, ΠΊΠΎΡΠΎΡΡΠΉ ΡΠ»Π΅Π΄ΡΠ΅Ρ ΡΡΠΈΡΡΠ²Π°ΡΡ ΠΏΠ΅ΡΠ΅Π΄ Π²ΡΠ±ΠΎΡΠΎΠΌ ΠΊΠΎΠ½Π²Π΅ΠΉΠ΅ΡΠ½ΠΎΠΉ ΡΠΈΡΡΠ΅ΠΌΡ, ΡΠ²Π»ΡΠ΅ΡΡΡ ΡΡΠ΅Π΄Π°, Π² ΠΊΠΎΡΠΎΡΠΎΠΉ ΠΎΠ½Π° Π±ΡΠ΄Π΅Ρ ΠΈΡΠΏΠΎΠ»ΡΠ·ΠΎΠ²Π°ΡΡΡΡ. ΠΡΡΠΎΠΊΠ°Ρ Π²Π»Π°ΠΆΠ½ΠΎΡΡΡ, ΡΠ΅ΠΌΠΏΠ΅ΡΠ°ΡΡΡΠ°, Π²ΠΈΠ±ΡΠ°ΡΠΈΡ, Π΄Π°Π²Π»Π΅Π½ΠΈΠ΅, Ρ ΡΡΠΏΠΊΠΈΠ΅ ΠΈΠ»ΠΈ ΠΎΠΏΠ°ΡΠ½ΡΠ΅ ΠΌΠ°ΡΠ΅ΡΠΈΠ°Π»Ρ ΠΈ Π»Π΅Π³ΠΊΠΎΠ²ΠΎΡΠΏΠ»Π°ΠΌΠ΅Π½ΡΡΡΠΈΠ΅ΡΡ ΠΏΡΠΎΠ΄ΡΠΊΡΡ Π½Π° ΠΎΠ±ΡΠ΅ΠΊΡΠ΅ Π΄ΠΎΠ»ΠΆΠ½Ρ Π±ΡΡΡ ΠΎΠ±ΡΡΠΆΠ΄Π΅Π½Ρ Ρ ΠΏΡΠΎΠΈΠ·Π²ΠΎΠ΄ΠΈΡΠ΅Π»Π΅ΠΌ ΠΊΠΎΠ½Π²Π΅ΠΉΠ΅ΡΠ°, ΡΡΠΎΠ±Ρ ΠΎΠΏΡΠ΅Π΄Π΅Π»ΠΈΡΡ Π»ΡΠ±ΡΠ΅ ΠΏΠΎΡΠ΅Π½ΡΠΈΠ°Π»ΡΠ½ΡΠ΅ ΡΠΈΡΠΊΠΈ ΠΈ Π½Π΅ΠΎΠ±Ρ ΠΎΠ΄ΠΈΠΌΡΠ΅ ΠΊΠΎΠ½ΡΡΠΌΠ΅ΡΡ ΠΈ ΠΎΠ±Ρ ΠΎΠ΄Π½ΡΠ΅ ΠΏΡΡΠΈ. Π‘Π»Π΅Π΄ΡΠ΅Ρ ΡΡΠΈΡΡΠ²Π°ΡΡ ΡΠ°Π·ΠΌΠ΅Ρ ΡΠΈΡΡΠ΅ΠΌΡ ΠΏΠΎ ΡΡΠ°Π²Π½Π΅Π½ΠΈΡ Ρ ΠΎΠ±ΡΠ΅ΠΌΠΎΠΌ Π΄ΠΎΡΡΡΠΏΠ½ΠΎΠ³ΠΎ ΡΠ°Π±ΠΎΡΠ΅Π³ΠΎ ΠΏΡΠΎΡΡΡΠ°Π½ΡΡΠ²Π°, Π° ΡΠ°ΠΊΠΆΠ΅ ΡΠΎ, ΠΊΠ°ΠΊ ΠΎΠ½Π° Π±ΡΠ΄Π΅Ρ ΡΠΎΡΠ΅ΡΠ°ΡΡΡΡ Ρ ΡΡΡΠ΅ΡΡΠ²ΡΡΡΠΈΠΌ ΠΎΠ±ΠΎΡΡΠ΄ΠΎΠ²Π°Π½ΠΈΠ΅ΠΌ.
ΠΠΎΠ½Π²Π΅ΠΉΠ΅ΡΠ½ΡΠ΅ ΡΠΈΡΡΠ΅ΠΌΡ ΡΠ°ΡΡΠΎ ΠΈΠΌΠ΅ΡΡ ΠΎΡΠ½ΠΎΡΠΈΡΠ΅Π»ΡΠ½ΠΎ ΡΠ»ΠΎΠΆΠ½ΡΡ ΠΊΠΎΠ½ΡΡΡΡΠΊΡΠΈΡ ΠΈ ΠΊΠΎΠ½ΡΡΡΡΠΊΡΠΈΡ ΠΈΠ·-Π·Π° ΠΈΡ
Π±ΠΎΠ»ΡΡΠΈΡ
ΠΌΠ°ΡΡΡΠ°Π±ΠΎΠ² ΠΈ ΠΈΠ½ΡΠ΅Π³ΡΠ°ΡΠΈΠΈ Π² ΡΠ°Π·Π»ΠΈΡΠ½ΡΠ΅ ΠΏΡΠΎΠΈΠ·Π²ΠΎΠ΄ΡΡΠ²Π΅Π½Π½ΡΠ΅ ΠΏΡΠΎΡΠ΅ΡΡΡ. Π’Π΅ΠΌ Π½Π΅ ΠΌΠ΅Π½Π΅Π΅, ΠΌΠΎΠ΄ΡΠ»ΡΠ½Π°Ρ ΠΏΡΠΈΡΠΎΠ΄Π° ΠΌΠ½ΠΎΠ³ΠΈΡ
ΠΊΠΎΠΌΠΏΠΎΠ½Π΅Π½ΡΠΎΠ² ΠΊΠΎΠ½Π²Π΅ΠΉΠ΅ΡΠ° Π΄Π΅Π»Π°Π΅Ρ Π»Π΅Π³ΠΊΠΎ Π΄ΠΎΡΡΠΈΠΆΠΈΠΌΡΠΌΠΈ Π΄Π°ΠΆΠ΅ Π΄Π»ΠΈΠ½Π½ΡΠ΅ ΠΈ ΡΠ»ΠΎΠΆΠ½ΡΠ΅ ΡΠΈΡΡΠ΅ΠΌΡ. ΠΡΠΎΠΈΠ·Π²ΠΎΠ΄ΠΈΡΠ΅Π»ΠΈ ΡΠ°ΠΊΠΈΡ
ΡΠΈΡΡΠ΅ΠΌ ΠΌΠΎΠ³ΡΡ ΠΏΡΠ΅Π΄Π»ΠΎΠΆΠΈΡΡ ΠΏΠΎΠΌΠΎΡΡ Π² ΠΏΡΠΎΠ΅ΠΊΡΠΈΡΠΎΠ²Π°Π½ΠΈΠΈ, ΡΡΠΎΠ±Ρ ΠΊΠΎΠ½Π²Π΅ΠΉΠ΅Ρ ΡΠΎΠΎΡΠ²Π΅ΡΡΡΠ²ΠΎΠ²Π°Π» ΡΠ°Π±ΠΎΡΠ΅ΠΌΡ ΠΏΡΠΎΡΡΡΠ°Π½ΡΡΠ²Ρ.
ΠΠΎΠΏΠΎΠ»Π½ΠΈΡΠ΅Π»ΡΠ½ΡΠ΅ ΡΠ°ΠΊΡΠΎΡΡ Π²ΡΠ±ΠΎΡΠ° ΠΊΠΎΠ½Π²Π΅ΠΉΠ΅ΡΠ½ΡΡ ΡΠΈΡΡΠ΅ΠΌ
Π¨ΠΈΠΏΡ, ΡΠ΅ΠΌΠ½ΠΈ Ρ Π²ΡΡΠΎΠΊΠΈΠΌ ΠΊΠΎΡΡΡΠΈΡΠΈΠ΅Π½ΡΠΎΠΌ ΡΡΠ΅Π½ΠΈΡ, ΠΊΠΎΠ²ΡΠΈ ΠΈ Ρ. Π΄. ΡΠ²Π»ΡΡΡΡΡ ΡΠ°ΡΠΏΡΠΎΡΡΡΠ°Π½Π΅Π½Π½ΡΠΌΠΈ ΡΠΎΡΠΌΠ°ΠΌΠΈ ΠΏΡΠ΅Π΄ΠΎΡΠ²ΡΠ°ΡΠ΅Π½ΠΈΡ ΠΏΡΠΎΡΠΊΠ°Π»ΡΠ·ΡΠ²Π°Π½ΠΈΡ ΠΏΡΠΎΠ΄ΡΠΊΡΠ°. Π‘ΠΈΠ»ΡΠ½ΠΎ Π½Π°Π³ΡΡΠΆΠ΅Π½Π½ΡΠΉ Π½Π°ΠΊΠ»ΠΎΠ½Π½ΡΠΉ Π»Π΅Π½ΡΠΎΡΠ½ΡΠΉ ΠΊΠΎΠ½Π²Π΅ΠΉΠ΅Ρ ΠΌΠΎΠΆΠ΅Ρ ΡΠΎΡΠΊΠ°Π»ΡΠ·ΡΠ²Π°ΡΡ Π½Π°Π·Π°Π΄ ΠΏΡΠΈ Π²ΡΠΊΠ»ΡΡΠ΅Π½Π½ΠΎΠΌ ΠΏΡΠΈΠ²ΠΎΠ΄Π΅. Π ΡΠ°ΠΊΠΈΡ ΠΊΠΎΠ½Π²Π΅ΠΉΠ΅ΡΠ°Ρ ΠΈΡΠΏΠΎΠ»ΡΠ·ΡΡΡΡΡ ΡΠΎΡΠΌΠΎΠ·Π° ΠΎΠ±ΡΠ°ΡΠ½ΠΎΠ³ΠΎ Ρ ΠΎΠ΄Π°, ΠΊΠΎΡΠΎΡΡΠ΅ Π²ΠΊΠ»ΡΡΠ°ΡΡΡΡ Π°Π²ΡΠΎΠΌΠ°ΡΠΈΡΠ΅ΡΠΊΠΈ ΠΏΡΠΈ ΠΎΠ±Π΅ΡΡΠΎΡΠΈΠ²Π°Π½ΠΈΠΈ Π΄Π²ΠΈΠ³Π°ΡΠ΅Π»Π΅ΠΉ. Π§Π°ΡΡΠΎ ΡΠΎΡΠΌΠΎΠ· ΠΌΠΎΠΆΠ½ΠΎ ΠΎΡΠΏΡΡΡΠΈΡΡ, ΡΡΠΎΠ±Ρ ΠΊΠΎΠ½Π²Π΅ΠΉΠ΅Ρ ΠΌΠΎΠ³ ΠΏΠΎΠ²Π΅ΡΠ½ΡΡΡΡΡ Π½Π°Π·Π°Π΄ Π΄Π»Ρ ΡΠ°Π·Π³ΡΡΠ·ΠΊΠΈ ΠΏΠ΅ΡΠ΅Π΄ ΠΎΠ±ΡΠ»ΡΠΆΠΈΠ²Π°Π½ΠΈΠ΅ΠΌ. Π Π½Π΅ΠΊΠΎΡΠΎΡΡΡ ΠΊΠΎΠ½Π²Π΅ΠΉΠ΅ΡΠ°Ρ ΠΆΠ΅Π»Π°ΡΠ΅Π»ΡΠ½ΠΎ ΠΎΠΏΡΠ΅Π΄Π΅Π»Π΅Π½Π½ΠΎΠ΅ ΠΏΡΠΎΡΠΊΠ°Π»ΡΠ·ΡΠ²Π°Π½ΠΈΠ΅; ΡΠ΅, ΠΊΡΠΎ ΡΠ°Π±ΠΎΡΠ°Π΅Ρ ΡΠΎ ΡΡΠ΅ΠΊΠ»ΡΠ½Π½ΡΠΌΠΈ Π±ΡΡΡΠ»ΠΊΠ°ΠΌΠΈ Π½Π° ΡΠΏΠ°ΠΊΠΎΠ²ΠΎΡΠ½ΡΡ Π»ΠΈΠ½ΠΈΡΡ , ΡΠ°ΡΡΠΎ ΠΈΡΠΏΠΎΠ»ΡΠ·ΡΡΡ Π½Π΅ΠΊΠΎΡΠΎΡΡΡ ΡΠΎΡΠΌΡ ΡΠ±ΡΠΎΡΠ° ΠΎΠ±ΡΠ°ΡΠ½ΠΎΠ³ΠΎ Π΄Π°Π²Π»Π΅Π½ΠΈΡ, ΡΡΠΎΠ±Ρ ΠΏΡΠ΅Π΄ΠΎΡΠ²ΡΠ°ΡΠΈΡΡ ΠΏΠΎΠ»ΠΎΠΌΠΊΡ Π±ΡΡΡΠ»ΠΎΠΊ, ΠΊΠΎΠ³Π΄Π° ΠΎΠ½ΠΈ Π½Π°ΠΊΠ°ΠΏΠ»ΠΈΠ²Π°ΡΡΡΡ Π² Π·ΠΎΠ½Π΅ ΠΏΠΎΠ΄Π³ΠΎΡΠΎΠ²ΠΊΠΈ, Π½Π°ΠΏΡΠΈΠΌΠ΅Ρ, Π½Π° Π²Ρ ΠΎΠ΄Π΅ Π½Π°ΠΏΠΎΠ»Π½ΠΈΡΠ΅Π»Ρ.
ΠΠΎΠ½Π²Π΅ΠΉΠ΅ΡΠ½Π°Ρ Π»Π΅Π½ΡΠ° ΡΡΠ²ΡΡΠ²ΠΈΡΠ΅Π»ΡΠ½Π° ΠΊ ΡΡΠ°ΡΠΈΡΠ΅ΡΠΊΠΎΠΌΡ ΡΠ»Π΅ΠΊΡΡΠΈΡΠ΅ΡΡΠ²Ρ, ΠΏΠΎΡΠΊΠΎΠ»ΡΠΊΡ Π»Π΅Π½ΡΠ° ΠΏΠΎΡΡΠΎΡΠ½Π½ΠΎ Π½Π°ΡΡΠ³ΠΈΠ²Π°Π΅ΡΡΡ Π½Π° ΠΊΠΎΠ½ΡΠ΅Π²ΡΠ΅ ΡΠΊΠΈΠ²Ρ. ΠΡΠΈ ΡΡΠ°Π½ΡΠΏΠΎΡΡΠΈΡΠΎΠ²ΠΊΠ΅ ΡΠ»Π΅ΠΊΡΡΠΈΡΠ΅ΡΠΊΠΈΡ
ΠΊΠΎΠΌΠΏΠΎΠ½Π΅Π½ΡΠΎΠ² ΡΡΠ°ΡΠΈΡΠ΅ΡΠΊΠΎΠ΅ ΡΠ»Π΅ΠΊΡΡΠΈΡΠ΅ΡΡΠ²ΠΎ ΠΌΠΎΠΆΠ΅Ρ Π±ΡΡΡ ΠΎΠΏΠ°ΡΠ½ΡΠΌ.
ΠΠ»Ρ Π·Π°ΡΠΈΡΡ ΠΏΡΠΎΠ΄ΡΠΊΡΠΎΠ² ΡΠ»Π΅Π΄ΡΠ΅Ρ ΠΏΡΠ΅Π΄ΡΡΠΌΠΎΡΡΠ΅ΡΡ Π°Π½ΡΠΈΡΡΠ°ΡΠΈΡΠ΅ΡΠΊΠΈΠ΅ ΠΌΠ΅ΡΡ ΠΊΠΎΠ½Π²Π΅ΠΉΠ΅ΡΠ½ΠΎΠΉ Π»Π΅Π½ΡΡ, ΡΠ°ΠΊΠΈΠ΅ ΠΊΠ°ΠΊ ΡΠΎΠΊΠΎΠΏΡΠΎΠ²ΠΎΠ΄ΡΡΠΈΠ΅ Π»Π΅Π½ΡΡ ΠΈΠ»ΠΈ ΡΠ΅ΡΠΊΠΈ Π΄Π»Ρ ΠΊΠΎΠ½ΡΡΠΎΠ»Ρ ΡΡΠ°ΡΠΈΡΠ΅ΡΠΊΠΎΠ³ΠΎ ΡΠ»Π΅ΠΊΡΡΠΈΡΠ΅ΡΡΠ²Π°.
ΠΠ·-Π·Π° ΡΠ°ΡΡΠΎ Π±ΠΎΠ»ΡΡΠΎΠΉ Π΄Π»ΠΈΠ½Ρ ΠΊΠΎΠ½Π²Π΅ΠΉΠ΅ΡΠ° ΠΈ Π΅Π³ΠΎ Π±Π»ΠΈΠ·ΠΎΡΡΠΈ ΠΊ ΠΏΠ΅ΡΡΠΎΠ½Π°Π»Ρ Π½Π΅ΠΎΠ±Ρ ΠΎΠ΄ΠΈΠΌΠΎ ΡΠΎΠ±Π»ΡΠ΄Π°ΡΡ Π΄ΡΡΠ³ΠΈΠ΅ ΠΌΠ΅ΡΡ Π±Π΅Π·ΠΎΠΏΠ°ΡΠ½ΠΎΡΡΠΈ. Π ΠΎΠ»ΡΠ³Π°Π½Π³ΠΎΠ²ΡΠ΅ ΠΊΠΎΠ½Π²Π΅ΠΉΠ΅ΡΡ ΠΌΠΎΠ³ΡΡ Π±ΡΡΡ ΡΠ½Π°Π±ΠΆΠ΅Π½Ρ Π²ΡΠ΄Π²ΠΈΠΆΠ½ΡΠΌΠΈ ΡΠΎΠ»ΠΈΠΊΠ°ΠΌΠΈ, ΠΊΠΎΡΠΎΡΡΠ΅ ΠΎΡΡΠΎΠ΅Π΄ΠΈΠ½ΡΡΡΡΡ ΠΎΡ ΠΏΡΠΈΠ²ΠΎΠ΄Π½ΡΡ ΡΠ΅ΠΌΠ½Π΅ΠΉ, Π΅ΡΠ»ΠΈ ΡΡΠΊΠ° ΠΈΠ»ΠΈ Π½ΠΎΠ³Π° ΡΠ΅Π»ΠΎΠ²Π΅ΠΊΠ° ΠΏΡΠΎΡΠΊΠ°Π»ΡΠ·ΡΠ²Π°Π΅Ρ ΠΌΠ΅ΠΆΠ΄Ρ ΡΠΎΠ»ΠΈΠΊΠ°ΠΌΠΈ. ΠΡΠΎΡΡΠΎΠ²Π΅ΡΡ ΠΌΠΎΠ³ΡΡ ΠΈΡΠΏΠΎΠ»ΡΠ·ΠΎΠ²Π°ΡΡΡΡ Π΄Π»Ρ ΡΠΎΠ³ΠΎ, ΡΡΠΎΠ±Ρ Π»ΡΠ΄ΠΈ ΠΌΠΎΠ³Π»ΠΈ ΠΏΡΠΎΡ ΠΎΠ΄ΠΈΡΡ ΡΠ΅ΡΠ΅Π· Π΄Π»ΠΈΠ½Π½ΡΠ΅ ΡΡΠ°ΡΡΠΊΠΈ Π»Π΅Π½ΡΠΎΡΠ½ΡΡ ΠΊΠΎΠ½Π²Π΅ΠΉΠ΅ΡΠΎΠ². Π ΠΎΠ»ΠΈΠΊΠΎΠ²ΡΠ΅ ΠΊΠΎΠ½Π²Π΅ΠΉΠ΅ΡΡ ΡΠ°ΡΡΠΎ ΠΈΡΠΏΠΎΠ»ΡΠ·ΡΡΡ Π΄Π»Ρ ΡΡΠΎΠ³ΠΎ ΡΠ΅ΠΊΡΠΈΠΈ Π²ΠΎΡΠΎΡ Ρ ΡΡΡΠ½ΡΠΌ ΠΈΠ»ΠΈ ΠΌΠ΅Ρ Π°Π½ΠΈΡΠ΅ΡΠΊΠΈΠΌ ΠΏΡΠΈΠ²ΠΎΠ΄ΠΎΠΌ.
ΠΠΎΠ½Π²Π΅ΠΉΠ΅ΡΡ ΡΠ°ΡΡΠΎ Π²ΠΊΠ»ΡΡΠ°ΡΡ ΠΊΠ°ΠΊΠΎΠΉ-Π»ΠΈΠ±ΠΎ ΡΠΈΠΏ ΡΡΡΡΠΎΠΉΡΡΠ²Π° ΠΏΠ»Π°Π²Π½ΠΎΠ³ΠΎ ΠΏΡΡΠΊΠ° ΠΈΠ»ΠΈ ΠΌΠ΅Ρ
Π°Π½ΠΈΠ·ΠΌΠ° ΡΡΠ΅ΠΏΠ»Π΅Π½ΠΈΡ, ΡΡΠΎΠ±Ρ ΠΈΠ·Π±Π΅ΠΆΠ°ΡΡ ΠΏΠ΅ΡΠ΅Π³ΡΡΠ·ΠΊΠΈ Π΄Π²ΠΈΠ³Π°ΡΠ΅Π»Π΅ΠΉ ΠΏΡΠΈ Π·Π°ΠΏΡΡΠΊΠ΅ ΠΏΠΎΠ»Π½ΠΎΡΡΡΡ Π½Π°Π³ΡΡΠΆΠ΅Π½Π½ΡΡ
ΡΠ΅ΠΌΠ½Π΅ΠΉ, ΡΠ΅ΠΏΠ΅ΠΉ ΠΈ Ρ. Π΄. ΠΠ΅ΠΊΠΎΡΠΎΡΡΠ΅ Π»Π΅Π½ΡΠΎΡΠ½ΡΠ΅ ΠΊΠΎΠ½Π²Π΅ΠΉΠ΅ΡΡ ΠΎΡΠ½Π°ΡΠ΅Π½Ρ ΠΌΠΎΡΠΎΡ-ΡΠ΅Π΄ΡΠΊΡΠΎΡΠ½ΡΠΌΠΈ ΠΏΡΠΈΠ²ΠΎΠ΄Π°ΠΌΠΈ, ΠΊΠΎΡΠΎΡΡΠ΅ Π²ΠΊΠ»ΡΡΠ°ΡΡ Π²Π½ΡΡΡΠ΅Π½Π½ΠΈΠ΅ Π΄Π²ΠΈΠ³Π°ΡΠ΅Π»ΠΈ ΠΈ Π·ΡΠ±ΡΠ°ΡΡΠ΅ ΠΏΠ΅ΡΠ΅Π΄Π°ΡΠΈ Π²Π½ΡΡΡΠΈ Π³ΠΎΠ»ΠΎΠ²Π½ΡΡ
ΡΠΎΠ»ΠΈΠΊΠΎΠ², ΡΡΠΎ ΡΡΡΡΠ°Π½ΡΠ΅Ρ Π½Π΅ΠΎΠ±Ρ
ΠΎΠ΄ΠΈΠΌΠΎΡΡΡ Π΄Π»Ρ Π²Π½Π΅ΡΠ½ΠΈΡ
Π΄Π²ΠΈΠ³Π°ΡΠ΅Π»Π΅ΠΉ ΠΈ ΠΊΠΎΠΌΠΏΠΎΠ½Π΅Π½ΡΠΎΠ² ΡΠΈΠ»ΠΎΠ²ΠΎΠΉ ΠΏΠ΅ΡΠ΅Π΄Π°ΡΠΈ.
Π₯ΠΎΡΡ ΠΌΠ½ΠΎΠ³ΠΈΠ΅ ΠΊΠΎΠ½Π²Π΅ΠΉΠ΅ΡΠ½ΡΠ΅ ΡΠΈΡΡΠ΅ΠΌΡ ΡΠ²Π»ΡΡΡΡΡ ΡΡΠ°ΡΠΈΠΎΠ½Π°ΡΠ½ΡΠΌΠΈ ΠΈ ΡΡΠ°ΡΠΈΠΎΠ½Π°ΡΠ½ΡΠΌΠΈ, ΠΌΠ½ΠΎΠ³ΠΈΠ΅ ΠΈΠ· Π½ΠΈΡ ΡΠ°ΠΊΠΆΠ΅ ΡΠ²Π»ΡΡΡΡΡ ΠΏΠ΅ΡΠ΅Π½ΠΎΡΠ½ΡΠΌΠΈ ΠΈ ΠΏΡΠ΅Π΄Π½Π°Π·Π½Π°ΡΠ΅Π½Ρ Π΄Π»Ρ Π·Π°Π³ΡΡΠ·ΠΊΠΈ Π³ΡΡΠ·ΠΎΠ²ΠΈΠΊΠΎΠ², ΠΆΠ΅Π»Π΅Π·Π½ΠΎΠ΄ΠΎΡΠΎΠΆΠ½ΡΡ Π²Π°Π³ΠΎΠ½ΠΎΠ², ΡΠΈΠ»ΠΎΡΠΎΠ² ΠΈ Ρ. Π΄. Π Π°Π·Π³ΡΡΠ·ΠΎΡΠ½ΡΠ΅ ΠΈ ΠΏΠΎΠ΄Π°ΡΡΠΈΠ΅ ΠΊΠΎΠ½Π²Π΅ΠΉΠ΅ΡΡ, ΡΠΎΠ·Π΄Π°Π½Π½ΡΠ΅ ΡΠΏΠ΅ΡΠΈΠ°Π»ΡΠ½ΠΎ Π΄Π»Ρ ΡΠΏΠ°ΠΊΠΎΠ²ΠΎΡΠ½ΡΡ ΠΎΠΏΠ΅ΡΠ°ΡΠΈΠΉ, ΡΠ°ΡΡΠΎ ΡΡΡΠ°Π½Π°Π²Π»ΠΈΠ²Π°ΡΡΡΡ Π½Π° ΡΠΎΠ»ΠΈΠΊΠ°Ρ Π΄Π»Ρ ΡΠ΄ΠΎΠ±ΡΡΠ²Π° ΡΡΠ°Π½ΡΠΏΠΎΡΡΠΈΡΠΎΠ²ΠΊΠΈ Π² ΠΏΡΠ΅Π΄Π΅Π»Π°Ρ ΠΏΡΠ΅Π΄ΠΏΡΠΈΡΡΠΈΡ.
ΠΠΎΠ΄Π²Π΅ΡΠ½ΠΎΠΉ ΠΊΠΎΠ½Π²Π΅ΠΉΠ΅Ρ, Π½Π΅ΡΡΡΠΈΠΉ ΠΊΡΠ·ΠΎΠ² Π°Π²ΡΠΎΠΌΠΎΠ±ΠΈΠ»Ρ.ΠΠ·ΠΎΠ±ΡΠ°ΠΆΠ΅Π½ΠΈΠ΅ ΠΏΡΠ΅Π΄ΠΎΡΡΠ°Π²Π»Π΅Π½ΠΎ: TRAIMAK/Shutterstock.com
ΠΠΎΠ½Π²Π΅ΠΉΠ΅ΡΠ½ΡΠ΅ ΠΏΡΠΈΠ»ΠΎΠΆΠ΅Π½ΠΈΡ ΠΈ ΠΎΡΡΠ°ΡΠ»ΠΈ
ΠΡΠ±ΠΎΡ ΠΊΠΎΠ½Π²Π΅ΠΉΠ΅ΡΠ° Π·Π°Π²ΠΈΡΠΈΡ ΠΎΡ ΡΠΈΠΏΠ° ΠΏΡΠΎΠ΄ΡΠΊΡΠ°, ΠΏΡΠΎΠΏΡΡΠΊΠ½ΠΎΠΉ ΡΠΏΠΎΡΠΎΠ±Π½ΠΎΡΡΠΈ ΠΈΠ»ΠΈ ΡΠΊΠΎΡΠΎΡΡΠΈ, ΠΈΠ·ΠΌΠ΅Π½Π΅Π½ΠΈΡ Π²ΡΡΠΎΡΡ ΠΈ, Π² Π½Π΅ΠΊΠΎΡΠΎΡΡΡ
ΡΠ»ΡΡΠ°ΡΡ
, ΠΎΡ ΠΎΡΡΠ°ΡΠ»Π΅Π²ΠΎΠΉ Π½Π°ΠΏΡΠ°Π²Π»Π΅Π½Π½ΠΎΡΡΠΈ. ΠΠ΅Π½ΡΠΎΡΠ½ΡΠ΅ ΠΊΠΎΠ½Π²Π΅ΠΉΠ΅ΡΡ, Π½Π°ΠΏΡΠΈΠΌΠ΅Ρ, Π±ΡΠ²Π°ΡΡ ΡΠ°Π·Π½ΡΡ
ΡΠ°Π·ΠΌΠ΅ΡΠΎΠ² ΠΈ ΠΌΠΎΠ³ΡΡ Π²Π°ΡΡΠΈΡΠΎΠ²Π°ΡΡΡΡ ΠΎΡ Π΅Π΄ΠΈΠ½ΠΈΡ Π΄Π»ΠΈΠ½ΠΎΠΉ Π² ΡΡΡ, ΠΈΡΠΏΠΎΠ»ΡΠ·ΡΠ΅ΠΌΡΡ
Π½Π° ΡΠΏΠ°ΠΊΠΎΠ²ΠΎΡΠ½ΡΡ
Π»ΠΈΠ½ΠΈΡΡ
, Π΄ΠΎ ΡΠΈΡΡΠ΅ΠΌ Π΄Π»ΠΈΠ½ΠΎΠΉ Π² ΠΌΠΈΠ»Ρ, ΠΈΡΠΏΠΎΠ»ΡΠ·ΡΠ΅ΠΌΡΡ
Π² Π³ΠΎΡΠ½ΠΎΠ΄ΠΎΠ±ΡΠ²Π°ΡΡΠ΅ΠΉ ΠΏΡΠΎΠΌΡΡΠ»Π΅Π½Π½ΠΎΡΡΠΈ. ΠΠΎΠ½Π²Π΅ΠΉΠ΅ΡΡ ΠΌΠΎΠ³ΡΡ Π±ΡΡΡ Ρ ΡΡΡΠ½ΡΠΌ ΠΏΡΠΈΠ²ΠΎΠ΄ΠΎΠΌ, ΠΊΠΎΠ³Π΄Π° ΠΏΡΠΎΠ΄ΡΠΊΡΡ ΠΏΠ΅ΡΠ΅ΠΌΠ΅ΡΠ°ΡΡΡΡ Π²ΡΡΡΠ½ΡΡ ΠΏΠΎ ΡΠΎΠ»ΠΈΠΊΠ°ΠΌ ΠΈΠ»ΠΈ ΠΊΠΎΠ»Π΅ΡΠ°ΠΌ, ΠΈΠ»ΠΈ Ρ ΠΏΡΠΈΠ²ΠΎΠ΄ΠΎΠΌ ΠΎΡ Π΄Π²ΠΈΠ³Π°ΡΠ΅Π»Ρ/ΠΌΠΎΡΠΎΡΠ°, ΠΈΠ»ΠΈ Ρ ΠΏΡΠΈΠ²ΠΎΠ΄ΠΎΠΌ ΠΎΡ ΡΠΈΠ»Ρ ΡΡΠΆΠ΅ΡΡΠΈ.
ΠΠ΄Π½Π°ΠΊΠΎ, ΠΊΠ°ΠΊ ΠΏΡΠ°Π²ΠΈΠ»ΠΎ, ΠΎΠ½ΠΈ ΠΏΡΠΈΠ²ΠΎΠ΄ΡΡΡΡ Π² Π΄Π²ΠΈΠΆΠ΅Π½ΠΈΠ΅ Π΄Π²ΠΈΠ³Π°ΡΠ΅Π»ΡΠΌΠΈ ΠΏΠ΅ΡΠ΅ΠΌΠ΅Π½Π½ΠΎΠ³ΠΎ ΠΈ ΠΏΠΎΡΡΠΎΡΠ½Π½ΠΎΠ³ΠΎ ΡΠΎΠΊΠ° Π»ΠΈΠ±ΠΎ Π½Π°ΠΏΡΡΠΌΡΡ, Π»ΠΈΠ±ΠΎ ΡΠ΅ΡΠ΅Π· ΡΠ΅Π΄ΡΠΊΡΠΎΡΡ, ΡΠ΅ΠΏΠΈ, Π·Π²Π΅Π·Π΄ΠΎΡΠΊΠΈ ΠΈ Ρ. Π΄. ΠΡΠΎΠ΄ΡΠΊΡΡ ΠΎΠ±ΡΡΠ½ΠΎ ΠΏΠ΅ΡΠ΅ΠΌΠ΅ΡΠ°ΡΡΡΡ ΠΏΠΎ Π²Π΅ΡΡ
Π½ΠΈΠΌ ΠΏΠΎΠ²Π΅ΡΡ
Π½ΠΎΡΡΡΠΌ ΠΊΠΎΠ½Π²Π΅ΠΉΠ΅ΡΠΎΠ², Ρ
ΠΎΡΡ ΡΡΡΠ΅ΡΡΠ²ΡΡΡ ΠΈΡΠΊΠ»ΡΡΠ΅Π½ΠΈΡ.
ΠΠΎΠ΄Π²Π΅ΡΠ½ΡΠ΅ ΠΊΠΎΠ½Π²Π΅ΠΉΠ΅ΡΡ, ΠΈΡΠΏΠΎΠ»ΡΠ·ΡΠ΅ΠΌΡΠ΅ Π² Ρ
ΠΈΠΌΡΠΈΡΡΠΊΠ°Ρ
, ΡΠΊΠΎΡΠΎΠ±ΠΎΠΉΠ½ΡΡ
ΠΈ Π΄ΡΡΠ³ΠΈΡ
ΠΌΠ΅ΡΡΠ°Ρ
, Π³Π΄Π΅ Π²Π°ΠΆΠ½Π° ΠΏΠ»ΠΎΡΠ°Π΄Ρ ΠΏΠΎΠ»Π°, ΠΏΠΎΠ΄Π²Π΅ΡΠΈΠ²Π°ΡΡ ΡΠ²ΠΎΠΈ Π³ΡΡΠ·Ρ ΠΊ ΡΠ΅Π»Π΅ΠΆΠΊΠ°ΠΌ, ΠΊΠΎΡΠΎΡΡΠ΅ ΠΏΠ΅ΡΠ΅ΠΌΠ΅ΡΠ°ΡΡΡΡ ΠΏΠΎ ΠΏΠΎΠ΄Π²Π΅ΡΠ½ΡΠΌ ΠΏΡΡΡΠΌ. ΠΡΡΠ³ΠΈΠ΅ ΠΊΠΎΠ½Π²Π΅ΠΉΠ΅ΡΡ, ΡΠ°ΠΊΠΈΠ΅ ΠΊΠ°ΠΊ Π²ΠΈΠ½ΡΠΎΠ²ΡΠ΅ ΠΈ ΠΏΠ½Π΅Π²ΠΌΠ°ΡΠΈΡΠ΅ΡΠΊΠΈΠ΅, ΡΡΠ°Π½ΡΠΏΠΎΡΡΠΈΡΡΡΡ ΡΠ²ΠΎΡ ΠΏΡΠΎΠ΄ΡΠΊΡΠΈΡ ΡΠ΅ΡΠ΅Π· ΠΏΠΎΠ»ΡΠ·Π°ΠΊΡΡΡΡΠ΅ ΠΆΠ΅Π»ΠΎΠ±Π° ΠΈΠ»ΠΈ ΡΡΡΠ±Ρ. ΠΡΠΈ ΠΊΠΎΠ½Π²Π΅ΠΉΠ΅ΡΡ ΡΠ°ΡΡΠΎ ΡΠ°Π±ΠΎΡΠ°ΡΡ Ρ ΡΡΡ
ΠΈΠΌΠΈ ΠΏΡΠΎΠ΄ΡΠΊΡΠ°ΠΌΠΈ ΠΈ ΠΏΠΎΡΠΎΡΠΊΠ°ΠΌΠΈ. ΠΠ΅ΠΊΠΎΡΠΎΡΡΠ΅ ΠΊΠΎΠ½Π²Π΅ΠΉΠ΅ΡΡ ΠΏΡΠ΅Π΄Π½Π°Π·Π½Π°ΡΠ΅Π½Ρ Π΄Π»Ρ ΠΏΠ΅ΡΠ΅ΠΌΠ΅ΡΠ΅Π½ΠΈΡ ΠΏΡΠΎΠ΄ΡΠΊΡΠΈΠΈ ΠΈΠΌΠ΅Π½Π½ΠΎ ΠΌΠ΅ΠΆΠ΄Ρ ΠΏΡΠΎΠΈΠ·Π²ΠΎΠ΄ΡΡΠ²Π΅Π½Π½ΡΠΌΠΈ ΠΎΠΏΠ΅ΡΠ°ΡΠΈΡΠΌΠΈ. ΠΠΎΠ½Π²Π΅ΠΉΠ΅ΡΡ Ρ ΡΠ°Π³Π°ΡΡΠΈΠΌΠΈ Π±Π°Π»ΠΊΠ°ΠΌΠΈ ΡΠ²Π»ΡΡΡΡΡ ΠΏΡΠΈΠΌΠ΅ΡΠΎΠΌ ΡΡΠΎΠ³ΠΎ ΡΠΈΠΏΠ°. ΠΡΡΠ³ΠΈΠ΅ ΠΊΠΎΠ½Π²Π΅ΠΉΠ΅ΡΡ ΡΡΠ°Π½ΡΠΏΠΎΡΡΠΈΡΡΡΡ ΠΏΡΠΎΠ΄ΡΠΊΡΡ, Ρ ΠΊΠΎΡΠΎΡΡΠΌΠΈ ΡΡΡΠ΄Π½ΠΎ ΠΎΠ±ΡΠ°ΡΠ°ΡΡΡΡ, ΡΠ°ΠΊΠΈΠ΅ ΠΊΠ°ΠΊ ΠΊΠΎΡΠΌΠ΅ΡΠΈΡΠ΅ΡΠΊΠΈΠ΅ ΡΠ»Π°ΠΊΠΎΠ½Ρ, ΡΠ΅ΡΠ΅Π· Π½Π°ΠΏΠΎΠ»Π½ΠΈΡΠ΅Π»ΠΈ, ΡΡΠΈΠΊΠ΅ΡΠΈΡΠΎΠ²ΠΎΡΠ½ΡΠ΅ ΠΌΠ°ΡΠΈΠ½Ρ ΠΈ Π΄ΡΡΠ³ΠΈΠ΅ ΠΏΡΠΎΡΠ΅ΡΡΡ, ΡΠ΄Π΅ΡΠΆΠΈΠ²Π°Ρ ΠΊΠ°ΠΆΠ΄ΡΠΉ ΠΊΠΎΠ½ΡΠ΅ΠΉΠ½Π΅Ρ Π² ΠΎΡΠ΄Π΅Π»ΡΠ½ΡΡ
ΡΠ°ΠΉΠ±Π°Ρ
ΠΈΠ»ΠΈ ΠΏΠΎΠ΄Π΄ΠΎΠ½Π°Ρ
.
ΠΈΠ½ΠΎΠ³Π΄Π° ΠΈΠ·Π³ΠΎΡΠ°Π²Π»ΠΈΠ²Π°ΡΡΡΡ ΠΏΠΎ ΠΈΠ½Π΄ΠΈΠ²ΠΈΠ΄ΡΠ°Π»ΡΠ½ΠΎΠΌΡ Π·Π°ΠΊΠ°Π·Ρ ΠΈΠ· ΠΌΠΎΠ΄ΡΠ»ΡΠ½ΡΡ ΠΊΠΎΠΌΠΏΠΎΠ½Π΅Π½ΡΠΎΠ², ΡΠ°ΠΊΠΈΡ ΠΊΠ°ΠΊ ΠΏΡΡΠΌΡΠ΅ Π»ΠΈΠ½ΠΈΠΈ, ΠΊΡΠΈΠ²ΡΠ΅, ΠΏΠ΅ΡΠ΅Ρ ΠΎΠ΄Ρ, ΡΠ»ΠΈΡΠ½ΠΈΡ, ΡΠ°Π·Π΄Π΅Π»ΠΈΡΠ΅Π»ΠΈ ΠΈ Ρ. Π΄. ΠΡΠΎΠΈΠ·Π²ΠΎΠ΄ΠΈΡΠ΅Π»ΠΈ ΡΠ°ΠΊΠΈΡ ΠΊΠΎΠΌΠΏΠΎΠ½Π΅Π½ΡΠΎΠ² ΡΠ°ΡΡΠΎ ΠΏΡΠ΅Π΄ΠΎΡΡΠ°Π²Π»ΡΡΡ ΡΡΠ»ΡΠ³ΠΈ ΠΏΠΎ ΠΏΡΠΎΠ΅ΠΊΡΠΈΡΠΎΠ²Π°Π½ΠΈΡ ΠΈ ΠΏΠΎΠΌΠΎΡΡ Π² ΡΡΡΠ°Π½ΠΎΠ²ΠΊΠ΅. ΠΡΡΠ³ΠΈΠ΅ ΠΊΠΎΠ½Π²Π΅ΠΉΠ΅ΡΡ ΠΏΡΠ΅Π΄ΡΡΠ°Π²Π»ΡΡΡ ΡΠΎΠ±ΠΎΠΉ Π°Π²ΡΠΎΠ½ΠΎΠΌΠ½ΡΠ΅ ΡΠΈΡΡΠ΅ΠΌΡ Ρ ΠΏΡΠΈΠ²ΠΎΠ΄Π°ΠΌΠΈ ΠΈ ΡΡΠ΅Π΄ΡΡΠ²Π°ΠΌΠΈ ΡΠΏΡΠ°Π²Π»Π΅Π½ΠΈΡ. Π ΠΎΠ»ΠΈΠΊΠΎΠ²ΡΠ΅ ΠΈ ΠΊΠΎΠ»Π΅ΡΠ½ΡΠ΅ ΠΊΠΎΠ½Π²Π΅ΠΉΠ΅ΡΡ ΡΡΡΠ½ΠΎΠ³ΠΎ ΡΠΈΠΏΠ° ΠΎΠ±ΡΡΠ½ΠΎ ΠΌΠΎΠΆΠ½ΠΎ ΠΏΡΠΈΠΎΠ±ΡΠ΅ΡΡΠΈ ΠΎΡΠ΄Π΅Π»ΡΠ½ΡΠΌΠΈ ΡΠ΅ΠΊΡΠΈΡΠΌΠΈ ΠΈ ΡΠΊΡΠ΅ΠΏΠΈΡΡ Π±ΠΎΠ»ΡΠ°ΠΌΠΈ Π΄Π»Ρ ΡΠΎΡΠΌΠΈΡΠΎΠ²Π°Π½ΠΈΡ ΡΠΈΡΡΠ΅ΠΌ ΠΎΠ±ΡΠ°Π±ΠΎΡΠΊΠΈ ΠΌΠ°ΡΠ΅ΡΠΈΠ°Π»ΠΎΠ² ΠΏΡΠ°ΠΊΡΠΈΡΠ΅ΡΠΊΠΈ Π»ΡΠ±ΠΎΠΉ Π΄Π»ΠΈΠ½Ρ. ΠΠ°ΠΊ ΠΏΡΠ°Π²ΠΈΠ»ΠΎ, Π² ΠΏΡΠΈΠ²ΠΎΠ΄Π½ΡΡ ΠΊΠΎΠ½Π²Π΅ΠΉΠ΅ΡΠ°Ρ ΠΈΡΠΏΠΎΠ»ΡΠ·ΡΡΡΡΡ Π³ΠΎΠ»ΠΎΠ²Π½ΠΎΠΉ ΠΈ Ρ Π²ΠΎΡΡΠΎΠ²ΠΎΠΉ Π²Π°Π»Ρ, Π³Π΄Π΅ Π³ΠΎΠ»ΠΎΠ²Π½ΠΎΠΉ ΠΊΠΎΠ½Π΅Ρ ΠΎΠ±Π΅ΡΠΏΠ΅ΡΠΈΠ²Π°Π΅Ρ ΠΏΡΠΈΠ²ΠΎΠ΄Π½ΠΎΠ΅ ΡΡΡΡΠΎΠΉΡΡΠ²ΠΎ, Π° Π·Π°Π΄Π½ΠΈΠΉ ΠΊΠΎΠ½Π΅Ρ ΠΎΠ±Π΅ΡΠΏΠ΅ΡΠΈΠ²Π°Π΅Ρ ΡΠ΅Π³ΡΠ»ΠΈΡΠΎΠ²ΠΊΡ Π½Π°ΡΡΠΆΠ΅Π½ΠΈΡ ΡΠ΅ΠΏΠΈ ΠΈΠ»ΠΈ ΡΠ΅ΠΌΠ½Ρ.
ΠΠΎΠ½Π²Π΅ΠΉΠ΅ΡΠ½ΡΠ΅ ΡΡΡΡΠΎΠΉΡΡΠ²Π° ΠΌΠΎΠ³ΡΡ Π±ΡΡΡ ΠΏΡΠΎΡΡΡΠΌΠΈ ΡΠΈΠΏΠ°ΠΌΠΈ Π²ΠΊΠ»ΡΡΠ΅Π½ΠΈΡ / Π²ΡΠΊΠ»ΡΡΠ΅Π½ΠΈΡ, Π½Π΅ΠΌΠ½ΠΎΠ³ΠΎ Π±ΠΎΠ»Π΅Π΅ ΡΠ»ΠΎΠΆΠ½ΡΠΌΠΈ ΡΠΈΠΏΠ°ΠΌΠΈ ΠΏΠ»Π°Π²Π½ΠΎΠ³ΠΎ ΠΏΡΡΠΊΠ°, ΠΊΠΎΡΠΎΡΡΠ΅ Π°ΠΌΠΎΡΡΠΈΠ·ΠΈΡΡΡΡ Π½Π°Π³ΡΡΠ·ΠΊΠΈ ΠΏΡΠΈ Π·Π°ΠΏΡΡΠΊΠ΅, ΠΈΠ»ΠΈ ΡΠ°ΡΡΠΎΡΠ½ΠΎ-ΡΠ΅Π³ΡΠ»ΠΈΡΡΠ΅ΠΌΡΠΌΠΈ ΠΏΡΠΈΠ²ΠΎΠ΄Π°ΠΌΠΈ, ΠΊΠΎΡΠΎΡΡΠ΅ ΠΌΠΎΠ³ΡΡ ΡΠΏΡΠ°Π²Π»ΡΡΡ ΡΠΊΠΎΡΠΎΡΡΡΡ, ΡΡΠΊΠΎΡΠ΅Π½ΠΈΠ΅ΠΌ ΠΈ Ρ. Π΄. Π΄Π²ΠΈΠ³Π°ΡΠ΅Π»Π΅ΠΉ ΠΏΠ΅ΡΠ΅ΠΌΠ΅Π½Π½ΠΎΠ³ΠΎ ΡΠΎΠΊΠ°.
ΠΡΠ΅Π½Ρ Π΄Π»ΠΈΠ½Π½ΡΠ΅ Π»Π΅Π½ΡΠΎΡΠ½ΡΠ΅ ΠΊΠΎΠ½Π²Π΅ΠΉΠ΅ΡΡ, ΡΡΠ°Π½ΡΠΏΠΎΡΡΠΈΡΡΡΡΠΈΠ΅ ΡΡΠ΄Ρ ΠΈ Π΄ΡΡΠ³ΠΈΠ΅ ΠΏΡΠΎΠ΄ΡΠΊΡΡ, ΡΠ°ΡΡΠΎ ΠΈΡΠΏΠΎΠ»ΡΠ·ΡΡΡ Π½Π°ΡΡΠΆΠ½ΡΠ΅ ΡΠΎΠ»ΠΈΠΊΠΈ ΠΊΠΎΠ½Π²Π΅ΠΉΠ΅ΡΠ½ΠΎΠΉ Π»Π΅Π½ΡΡ, ΠΎΠ±ΡΠ°Π·ΡΡΡΠΈΠ΅ ΠΆΠ΅Π»ΠΎΠ±Π° Π² Π»Π΅Π½ΡΠ°Ρ
, ΡΡΠΎΠ±Ρ Π»ΡΡΡΠ΅ ΡΠ΄Π΅ΡΠΆΠΈΠ²Π°ΡΡ ΡΡΠ°Π½ΡΠΏΠΎΡΡΠΈΡΡΠ΅ΠΌΡΠ΅ ΠΌΠ°ΡΠ΅ΡΠΈΠ°Π»Ρ.
ΠΠΎΠ½Π²Π΅ΠΉΠ΅ΡΠ½ΡΠ΅ ΡΠΈΡΡΠ΅ΠΌΡ — ΠΡΠ°ΡΠΊΠΈΠΉ ΠΎΠ±Π·ΠΎΡ
Π ΡΡΠΎΠΌ ΡΡΠΊΠΎΠ²ΠΎΠ΄ΡΡΠ²Π΅ ΠΏΡΠ΅Π΄ΡΡΠ°Π²Π»Π΅Π½Ρ ΠΎΡΠ½ΠΎΠ²Π½ΡΠ΅ ΡΠ²Π΅Π΄Π΅Π½ΠΈΡ ΠΎ ΡΠ°Π·Π½ΠΎΠ²ΠΈΠ΄Π½ΠΎΡΡΡΡ ΠΊΠΎΠ½Π²Π΅ΠΉΠ΅ΡΠ½ΡΡ ΡΠΈΡΡΠ΅ΠΌ, ΡΠΎΠΎΠ±ΡΠ°ΠΆΠ΅Π½ΠΈΡΡ ΠΏΠΎ ΠΈΡ ΠΏΡΠΈΠΌΠ΅Π½Π΅Π½ΠΈΡ, ΠΈΡ ΠΏΡΠΈΠΌΠ΅Π½Π΅Π½ΠΈΠΈ ΠΈ ΠΏΡΠΎΠΌΡΡΠ»Π΅Π½Π½ΠΎΠΌ ΠΈΡΠΏΠΎΠ»ΡΠ·ΠΎΠ²Π°Π½ΠΈΠΈ. ΠΠ»Ρ ΠΏΠΎΠ»ΡΡΠ΅Π½ΠΈΡ Π΄ΠΎΠΏΠΎΠ»Π½ΠΈΡΠ΅Π»ΡΠ½ΠΎΠΉ ΠΈΠ½ΡΠΎΡΠΌΠ°ΡΠΈΠΈ ΠΎ ΡΠΎΠΏΡΡΡΡΠ²ΡΡΡΠΈΡ ΠΏΡΠΎΠ΄ΡΠΊΡΠ°Ρ ΠΎΠ·Π½Π°ΠΊΠΎΠΌΡΡΠ΅ΡΡ Ρ Π΄ΡΡΠ³ΠΈΠΌΠΈ Π½Π°ΡΠΈΠΌΠΈ ΡΡΠ°ΡΡΡΠΌΠΈ ΠΈ ΡΡΠΊΠΎΠ²ΠΎΠ΄ΡΡΠ²Π°ΠΌΠΈ ΠΈΠ»ΠΈ ΠΏΠΎΡΠ΅ΡΠΈΡΠ΅ ΠΏΠ»Π°ΡΡΠΎΡΠΌΡ ΠΏΠΎΠΈΡΠΊΠ° ΠΏΠΎΡΡΠ°Π²ΡΠΈΠΊΠΎΠ² Thomas, ΡΡΠΎΠ±Ρ Π½Π°ΠΉΡΠΈ ΠΏΠΎΡΠ΅Π½ΡΠΈΠ°Π»ΡΠ½ΡΠ΅ ΠΈΡΡΠΎΡΠ½ΠΈΠΊΠΈ ΠΈΠ»ΠΈ ΠΏΡΠΎΡΠΌΠΎΡΡΠ΅ΡΡ ΡΠ²Π΅Π΄Π΅Π½ΠΈΡ ΠΎ ΠΊΠΎΠ½ΠΊΡΠ΅ΡΠ½ΡΡ ΠΏΡΠΎΠ΄ΡΠΊΡΠ°Ρ .
ΠΡΡΠΎΡΠ½ΠΈΠΊΠΈ:- https://law.resource.org/pub/us/cfr/ibr/002/ansi.b20.1.1957.pdf
- http://www.cemanet.org/
- https://patents.google.com/patent/US6364093B1/en
- https://www.britannica.com/technology/conveyor#ref195013
- http://www.broxtec.
cz/en/page/67987.magnetic-conveyors-mc/ - https://www.slideshare.net/shantanudut/Π»ΠΎΡΠΊΠΎΠ²ΡΠΉ-Π»Π΅Π½ΡΠΎΡΠ½ΡΠΉ-ΠΊΠΎΠ½Π²Π΅ΠΉΠ΅Ρ-ΠΏΠ»ΠΎΡΠΊΠΈΠΉ-Π»Π΅Π½ΡΠΎΡΠ½ΡΠΉ-ΠΊΠΎΠ½Π²Π΅ΠΉΠ΅Ρ-18114525
- http://www.ckit.co.za
- https://www.processingmagazine.com/6-key-considerations-for-conveyor-selection/
- https://www.bigskyeng.com/custom-conveyor-system/
- https://www.mc3mfg.com/products/chip-scrap-conveyors/
ΠΡΠΎΡΠΈΠ΅ ΠΊΠΎΠ½Π²Π΅ΠΉΠ΅ΡΡ ΠΡΡΠΈΠΊΡΠ»
- ΠΠ²ΡΠΎΠΌΠ°ΡΠΈΠ·ΠΈΡΠΎΠ²Π°Π½Π½ΡΠ΅ ΠΊΠΎΠ½Π²Π΅ΠΉΠ΅ΡΠ½ΡΠ΅ ΡΠΈΡΡΠ΅ΠΌΡ
- ΠΠ΅Π΄ΡΡΠΈΠ΅ ΠΏΠΎΡΡΠ°Π²ΡΠΈΠΊΠΈ ΠΊΠΎΠ½Π²Π΅ΠΉΠ΅ΡΠ½ΡΡ Π»Π΅Π½Ρ
- ΠΡΠ΅ ΠΎ ΡΠΎΠ»ΠΈΠΊΠΎΠ²ΡΡ ΠΊΠΎΠ½Π²Π΅ΠΉΠ΅ΡΠ°Ρ β ΡΠΈΠΏΡ, ΠΊΠΎΠ½ΡΡΡΡΠΊΡΠΈΡ ΠΈ ΠΏΡΠΈΠΌΠ΅Π½Π΅Π½ΠΈΠ΅
- ΠΡΠ΅ ΠΎ Π²ΠΈΠ½ΡΠΎΠ²ΡΡ ΠΊΠΎΠ½Π²Π΅ΠΉΠ΅ΡΠ°Ρ β ΡΠΈΠΏΡ, ΠΊΠΎΠ½ΡΡΡΡΠΊΡΠΈΡ ΠΈ ΠΏΡΠΈΠΌΠ΅Π½Π΅Π½ΠΈΠ΅
- ΠΡΠ΅ ΠΎ Π²Π΅ΡΡΠΈΠΊΠ°Π»ΡΠ½ΡΡ ΠΊΠΎΠ½Π²Π΅ΠΉΠ΅ΡΠ°Ρ β ΡΠΈΠΏΡ, ΠΊΠΎΠ½ΡΡΡΡΠΊΡΠΈΡ ΠΈ ΠΏΡΠΈΠΌΠ΅Π½Π΅Π½ΠΈΠ΅
- ΠΡΠ΅ ΠΎ ΠΏΠ»Π°ΡΡΠΈΠ½ΡΠ°ΡΡΡ ΠΊΠΎΠ½Π²Π΅ΠΉΠ΅ΡΠ°Ρ β ΡΠΈΠΏΡ, ΠΊΠΎΠ½ΡΡΡΡΠΊΡΠΈΡ ΠΈ ΠΏΡΠΈΠΌΠ΅Π½Π΅Π½ΠΈΠ΅
- ΠΡΠ΅ ΠΎ ΠΏΠ½Π΅Π²ΠΌΠ°ΡΠΈΡΠ΅ΡΠΊΠΈΡ ΠΊΠΎΠ½Π²Π΅ΠΉΠ΅ΡΠ°Ρ β ΡΠΈΠΏΡ, ΠΊΠΎΠ½ΡΡΡΡΠΊΡΠΈΡ ΠΈ ΠΈΡΠΏΠΎΠ»ΡΠ·ΠΎΠ²Π°Π½ΠΈΠ΅
- ΠΡΠ΅ ΠΎ ΡΠΊΡΠ΅Π±ΠΊΠΎΠ²ΡΡ ΠΊΠΎΠ½Π²Π΅ΠΉΠ΅ΡΠ°Ρ β ΡΠΈΠΏΡ, ΠΊΠΎΠ½ΡΡΡΡΠΊΡΠΈΡ ΠΈ ΠΈΡΠΏΠΎΠ»ΡΠ·ΠΎΠ²Π°Π½ΠΈΠ΅
- ΠΡΠ΅ ΠΎ ΠΊΠΎΠ²ΡΠΎΠ²ΡΡ ΠΊΠΎΠ½Π²Π΅ΠΉΠ΅ΡΠ°Ρ β ΡΠΈΠΏΡ, ΠΊΠΎΠ½ΡΡΡΡΠΊΡΠΈΡ ΠΈ ΠΈΡΠΏΠΎΠ»ΡΠ·ΠΎΠ²Π°Π½ΠΈΠ΅
- ΠΡΠ΅ ΠΎ ΠΏΠΎΠ΄Π²Π΅ΡΠ½ΡΡ ΠΊΠΎΠ½Π²Π΅ΠΉΠ΅ΡΠ°Ρ β ΡΠΈΠΏΡ, ΠΊΠΎΠ½ΡΡΡΡΠΊΡΠΈΡ ΠΈ ΠΈΡΠΏΠΎΠ»ΡΠ·ΠΎΠ²Π°Π½ΠΈΠ΅
- ΠΡΠ΅ ΠΎ Π²ΠΈΠ±ΡΠ°ΡΠΈΠΎΠ½Π½ΡΡ ΠΊΠΎΠ½Π²Π΅ΠΉΠ΅ΡΠ°Ρ β ΡΠΈΠΏΡ, ΠΊΠΎΠ½ΡΡΡΡΠΊΡΠΈΡ ΠΈ ΠΈΡΠΏΠΎΠ»ΡΠ·ΠΎΠ²Π°Π½ΠΈΠ΅
- ΠΡΠ΅ ΠΎ ΠΌΠ°Π³Π½ΠΈΡΠ½ΡΡ ΠΊΠΎΠ½Π²Π΅ΠΉΠ΅ΡΠ°Ρ β ΡΠΈΠΏΡ, ΠΊΠΎΠ½ΡΡΡΡΠΊΡΠΈΡ ΠΈ ΠΏΡΠΈΠΌΠ΅Π½Π΅Π½ΠΈΠ΅
- ΠΡΠ΅ ΠΎ Π²Π°ΠΊΡΡΠΌΠ½ΡΡ ΠΊΠΎΠ½Π²Π΅ΠΉΠ΅ΡΠ°Ρ β ΡΠΈΠΏΡ, ΠΊΠΎΠ½ΡΡΡΡΠΊΡΠΈΡ ΠΈ ΠΈΡΠΏΠΎΠ»ΡΠ·ΠΎΠ²Π°Π½ΠΈΠ΅
- ΠΠ΅Π΄ΡΡΠΈΠ΅ ΠΏΡΠΎΠΈΠ·Π²ΠΎΠ΄ΠΈΡΠ΅Π»ΠΈ ΠΈ ΠΏΠΎΡΡΠ°Π²ΡΠΈΠΊΠΈ ΠΊΠΎΠ½Π²Π΅ΠΉΠ΅ΡΠΎΠ² Π² Π‘Π¨Π
ΠΠΎΠ»ΡΡΠ΅ ΠΈΠ· ΠΠ±ΡΠ°Π±ΠΎΡΠΊΠ° ΠΌΠ°ΡΠ΅ΡΠΈΠ°Π»ΠΎΠ²
Π Π°Π±ΠΎΡΠ° Π»Π΅Π½ΡΠΎΡΠ½ΡΡ ΠΊΠΎΠ½Π²Π΅ΠΉΠ΅ΡΠΎΠ², ΠΈΡ ΡΠΈΠΏΡ ΠΈ ΠΈΡΠΏΠΎΠ»ΡΠ·ΠΎΠ²Π°Π½ΠΈΠ΅
Π‘ΠΈΡΡΠ΅ΠΌΠ° Π»Π΅Π½ΡΠΎΡΠ½ΡΡ
ΠΊΠΎΠ½Π²Π΅ΠΉΠ΅ΡΠΎΠ² ΡΡΠ°Π½ΡΠΏΠΎΡΡΠΈΡΡΠ΅Ρ ΡΠ°Π·Π»ΠΈΡΠ½ΡΠ΅ ΡΠΈΠΏΡ ΠΌΠ°ΡΠ΅ΡΠΈΠ°Π»ΠΎΠ², Π²ΠΊΠ»ΡΡΠ°Ρ ΡΡΡΡΠ΅ ΠΈ Π³ΠΎΡΠΎΠ²ΡΡ ΠΏΡΠΎΠ΄ΡΠΊΡΠΈΡ, ΠΌΠ΅ΠΆΠ΄Ρ ΠΏΡΠ½ΠΊΡΠ°ΠΌΠΈ.
ΠΠΎΠ½Π²Π΅ΠΉΠ΅ΡΡ ΠΌΠΎΠ³ΡΡ ΠΏΠ΅ΡΠ΅ΠΌΠ΅ΡΠ°ΡΡ ΡΠΎΠ²Π°ΡΡ Π² Π·Π°Π΄Π°Π½Π½ΠΎΠ΅ ΠΌΠ΅ΡΡΠΎ Π½Π° ΡΠΎΠΌ ΠΆΠ΅ ΡΡΠ°ΠΆΠ΅ ΠΈΠ»ΠΈ Π² Π΄ΡΡΠ³ΠΎΠ΅ ΠΌΠ΅ΡΡΠΎ Π½Π° ΠΎΠ±ΡΠ΅ΠΊΡΠ΅. ΠΡΠΎΠΌΡΡΠ»Π΅Π½Π½ΡΠ΅ ΠΊΠΎΠ½Π²Π΅ΠΉΠ΅ΡΠ½ΡΠ΅ ΡΠΈΡΡΠ΅ΠΌΡ ΠΎΠ±Π»Π΅Π³ΡΠ°ΡΡ ΡΡΡΠ΄Π½ΡΡ Π·Π°Π΄Π°ΡΡ ΠΏΠΎ ΠΎΠ±ΡΠ°Π±ΠΎΡΠΊΠ΅ ΠΌΠ°ΡΠ΅ΡΠΈΠ°Π»ΠΎΠ² Π² ΡΠ°Π·Π»ΠΈΡΠ½ΡΡ ΠΎΡΡΠ°ΡΠ»ΡΡ , Π²ΠΊΠ»ΡΡΠ°Ρ ΡΠΊΠ»Π°Π΄Ρ, ΡΠΎΡΠ³ΠΎΠ²ΡΠ΅ ΠΏΠ»ΠΎΡΠ°Π΄ΠΈ, ΡΠΏΠ°ΠΊΠΎΠ²ΠΊΡ, ΠΏΡΠΎΠΈΠ·Π²ΠΎΠ΄ΡΡΠ²ΠΎ ΠΈ ΠΏΡΠΎΠΈΠ·Π²ΠΎΠ΄ΡΡΠ²ΠΎ.
ΠΠΎΠ½Π²Π΅ΠΉΠ΅ΡΠ½ΡΠ΅ ΡΠΈΡΡΠ΅ΠΌΡ ΡΡΠ°Π»ΠΈ Π½Π΅Π·Π°ΠΌΠ΅Π½ΠΈΠΌΡΠΌΠΈ Π΄Π»Ρ ΠΏΡΠ΅Π΄ΠΏΡΠΈΡΡΠΈΠΉ, ΡΠ°Π±ΠΎΡΠ°ΡΡΠΈΡ Ρ ΡΠ°ΠΊΠΈΠΌΠΈ ΠΌΠ°ΡΠ΅ΡΠΈΠ°Π»Π°ΠΌΠΈ, ΠΊΠ°ΠΊ ΡΡΡΡΠ΅, ΡΡΠΆΠ΅Π»ΡΠ΅ Π³ΡΡΠ·Ρ, ΡΡΠΏΡΡΠΈΠ΅ ΠΏΡΠΎΠ΄ΡΠΊΡΡ ΠΈ ΠΎΡΡΡΡΠ΅ ΠΏΡΠ΅Π΄ΠΌΠ΅ΡΡ.
Π Π°Π±ΠΎΡΠ° ΠΈ ΡΠ°ΡΡΠΈ ΡΠΈΡΡΠ΅ΠΌΡ Π»Π΅Π½ΡΠΎΡΠ½ΡΡ ΠΊΠΎΠ½Π²Π΅ΠΉΠ΅ΡΠΎΠ²
ΠΠΎΠ½Π²Π΅ΠΉΠ΅ΡΡ ΠΌΠΎΠ³ΡΡ Π±ΡΡΡ ΡΡΠ°ΡΠΈΠΎΠ½Π°ΡΠ½ΡΠΌΠΈ ΠΈΠ»ΠΈ ΠΏΠΎΠ΄Π²ΠΈΠΆΠ½ΡΠΌΠΈ. Π‘ΡΠ°ΡΠΈΠΎΠ½Π°ΡΠ½ΡΠΉ ΠΊΠΎΠ½Π²Π΅ΠΉΠ΅Ρ ΠΎΠ±ΡΡΠ½ΠΎ ΠΏΠΎΠ΄ΠΊΠ»ΡΡΠ°Π΅ΡΡΡ ΠΊ Π²ΡΠΏΠΎΠΌΠΎΠ³Π°ΡΠ΅Π»ΡΠ½ΠΎΠΌΡ ΠΎΠ±ΠΎΡΡΠ΄ΠΎΠ²Π°Π½ΠΈΡ Ρ ΠΏΠΎΠΌΠΎΡΡΡ ΠΏΠ΅ΡΠΈΡΠ΅ΡΠΈΠΉΠ½ΡΡ ΠΊΠΎΠΌΠΏΠΎΠ½Π΅Π½ΡΠΎΠ². ΠΠ±ΠΎΡΡΠ΄ΠΎΠ²Π°Π½ΠΈΠ΅ ΠΌΠΎΠΆΠ΅Ρ Π±ΡΡΡ Π½Π΅ΠΊΠΎΠ½Π²Π΅ΠΉΠ΅ΡΠ½ΡΠΌ ΠΈΠ»ΠΈ ΡΠΆΠ΅ ΡΡΡΠ΅ΡΡΠ²ΡΡΡΠ΅ΠΉ ΠΊΠΎΠ½Π²Π΅ΠΉΠ΅ΡΠ½ΠΎΠΉ ΡΠΈΡΡΠ΅ΠΌΠΎΠΉ.
Π‘ΡΡΠ΅ΡΡΠ²ΡΡΡ ΡΠ°ΠΊΠΆΠ΅ ΠΏΠ΅ΡΠ΅Π½ΠΎΡΠ½ΡΠ΅ ΠΊΠΎΠ½Π²Π΅ΠΉΠ΅ΡΠ½ΡΠ΅ ΡΠΈΡΡΠ΅ΠΌΡ, ΠΊΠΎΡΠΎΡΡΠ΅ ΠΌΠΎΠΆΠ½ΠΎ Π»Π΅Π³ΠΊΠΎ ΠΏΠ΅ΡΠ΅ΠΌΠ΅ΡΠ°ΡΡ. ΠΠ΅ΡΠ΅Π½ΠΎΡΠ½ΠΎΠΉ ΠΊΠΎΠ½Π²Π΅ΠΉΠ΅Ρ ΡΠ°ΠΊΠΆΠ΅ ΠΈΠ·Π²Π΅ΡΡΠ΅Π½ ΠΊΠ°ΠΊ ΠΌΠΎΠ±ΠΈΠ»ΡΠ½Π°Ρ Π»Π΅Π½ΡΠΎΡΠ½Π°Ρ ΠΊΠΎΠ½Π²Π΅ΠΉΠ΅ΡΠ½Π°Ρ ΡΠΈΡΡΠ΅ΠΌΠ°. ΠΠ½ ΠΏΠΎΠΏΡΠ»ΡΡΠ΅Π½ Π² ΡΠ°ΠΊΠΈΡ
ΠΎΡΡΠ°ΡΠ»ΡΡ
, ΠΊΠ°ΠΊ Π΄ΠΎΡΡΠ°Π²ΠΊΠ° ΠΏΠΎΡΡΠ»ΠΎΠΊ ΠΈ Π»ΠΎΠ³ΠΈΡΡΠΈΠΊΠ°, Π³Π΄Π΅ ΠΌΠ°ΡΠ΅ΡΠΈΠ°Π»Ρ ΠΏΠ΅ΡΠ΅ΠΌΠ΅ΡΠ°ΡΡΡΡ ΠΏΠΎ ΡΡΠ°ΠΆΠ°ΠΌ ΠΈ Π² ΡΠΎΠΎΡΠ²Π΅ΡΡΡΠ²ΠΈΠΈ Ρ Π²Ρ
ΠΎΠ΄ΡΡΠ΅ΠΉ Π·Π°Π³ΡΡΠ·ΠΊΠΎΠΉ ΠΌΠ°ΡΠ΅ΡΠΈΠ°Π»ΠΎΠ².
ΠΠ΅ΡΠ΅Π½ΠΎΡΠ½ΡΠ΅ ΠΊΠΎΠ½Π²Π΅ΠΉΠ΅ΡΠ½ΡΠ΅ ΡΠΈΡΡΠ΅ΠΌΡ ΠΌΠΎΠΆΠ½ΠΎ Π½Π°ΡΡΡΠΎΠΈΡΡ Π΄Π»Ρ ΠΎΠ±ΡΠ°Π±ΠΎΡΠΊΠΈ ΡΠ°Π·Π»ΠΈΡΠ½ΡΡ Π³ΡΡΠ·ΠΎΠ² ΠΈ Π»Π΅Π³ΠΊΠΎ ΠΏΠ΅ΡΠ΅ΠΌΠ΅ΡΠ°ΡΡ, ΡΡΠΎ Π΄Π΅Π»Π°Π΅Ρ ΠΈΡ Π½Π΅Π·Π°ΠΌΠ΅Π½ΠΈΠΌΡΠΌΠΈ Π² ΡΠ°ΠΊΠΈΡ ΠΎΡΡΠ°ΡΠ»ΡΡ .
Π‘ΠΎΠ²ΡΠ΅ΠΌΠ΅Π½Π½Π°Ρ ΠΊΠΎΠ½Π²Π΅ΠΉΠ΅ΡΠ½Π°Ρ Π»Π΅Π½ΡΠ°
Π§Π°ΡΡΠΈ ΡΠΈΡΡΠ΅ΠΌΡ ΠΊΠΎΠ½Π²Π΅ΠΉΠ΅ΡΠ½ΠΎΠΉ Π»Π΅Π½ΡΡ
ΠΠ»ΡΡΠ΅Π²ΡΠ΅ ΠΊΠΎΠΌΠΏΠΎΠ½Π΅Π½ΡΡ ΡΠΈΡΡΠ΅ΠΌΡ ΠΊΠΎΠ½Π²Π΅ΠΉΠ΅ΡΠ½ΠΎΠΉ Π»Π΅Π½ΡΡ:
- Π¨ΠΊΠΈΠ²Ρ. ΠΠΎΠ½Π²Π΅ΠΉΠ΅Ρ ΠΌΠΎΠΆΠ΅Ρ ΡΠΎΡΡΠΎΡΡΡ ΠΈΠ· Π΄Π²ΡΡ
ΠΈΠ»ΠΈ Π±ΠΎΠ»Π΅Π΅ ΡΠΊΠΈΠ²ΠΎΠ², ΠΊΠΎΡΠΎΡΡΠ΅ ΡΡΠ½ΡΡ ΠΊΠΎΠ½Π²Π΅ΠΉΠ΅ΡΠ½ΡΡ Π»Π΅Π½ΡΡ. ΠΠ΅ΡΠ²ΠΈΡΠ½ΡΠΉ ΡΠΊΠΈΠ² Π½Π°Π·ΡΠ²Π°Π΅ΡΡΡ Π²Π΅Π΄ΡΡΠΈΠΌ ΡΠΊΠΈΠ²ΠΎΠΌ, ΠΊΠΎΡΠΎΡΡΠΉ ΠΏΡΠΈΠ²ΠΎΠ΄ΠΈΡΡΡ Π² Π΄Π΅ΠΉΡΡΠ²ΠΈΠ΅ ΠΈ ΠΏΡΠΈΠ²ΠΎΠ΄ΠΈΡ ΠΈΠ»ΠΈ ΡΡΠ½Π΅Ρ ΡΠ΅ΠΌΠ΅Π½Ρ.
ΠΡΡΠ³ΠΎΠΉ ΡΠ΅ΠΌΠ΅Π½Ρ β ΡΡΠΎ Π½Π°ΡΡΠΆΠ½ΠΎΠΉ ΡΠΊΠΈΠ². ΠΡΠΎΡ ΡΠΊΠΈΠ² Π²ΡΠΏΠΎΠ»Π½ΡΠ΅Ρ Π½Π΅ΡΠΊΠΎΠ»ΡΠΊΠΎ ΡΡΠ½ΠΊΡΠΈΠΉ. ΠΠ½ ΠΈΠ·ΠΌΠ΅Π½ΡΠ΅Ρ Π½Π°ΠΏΡΠ°Π²Π»Π΅Π½ΠΈΠ΅ ΠΏΠ΅ΡΠ΅Π΄Π°ΡΠΈ Π½Π°Π³ΡΡΠ·ΠΊΠΈ, ΡΠ»Π°Π²Π»ΠΈΠ²Π°Π΅Ρ ΠΏΡΠΎΠ²ΠΈΡΠ°Π½ΠΈΠ΅ ΡΠ΅ΠΌΠ½Ρ ΠΈΠ»ΠΈ Π°ΠΊΡΠΈΠ²ΠΈΡΡΠ΅Ρ ΡΡΠ΅ΠΏΠ»Π΅Π½ΠΈΠ΅.
ΠΠ°ΡΡΠΆΠ½ΡΠ΅ ΡΠΎΠ»ΠΈΠΊΠΈ Π½Π΅ ΡΠ»ΡΠΆΠ°Ρ ΠΌΠ΅Ρ Π°Π½ΠΈΡΠ΅ΡΠΊΠΈΠΌ ΡΠ΅Π»ΡΠΌ. ΠΡ ΠΎΡΠ½ΠΎΠ²Π½Π°Ρ ΡΡΠ½ΠΊΡΠΈΡ ΡΠΎΡΡΠΎΠΈΡ Π² ΡΠΎΠΌ, ΡΡΠΎΠ±Ρ ΠΏΠΎΠ΄Π΄Π΅ΡΠΆΠΈΠ²Π°ΡΡ Π΄Π²ΠΈΠΆΠ΅Π½ΠΈΠ΅ ΠΊΠΎΠ½Π²Π΅ΠΉΠ΅ΡΠ½ΠΎΠΉ Π»Π΅Π½ΡΡ ΠΈ Π²Π΅ΡΡΠΈ Π΅Π΅ ΠΏΠΎ ΠΊΡΡΠ³Ρ.
ΠΠ΅Π΄ΡΡΠΈΠΉ ΠΈ ΠΏΡΠΎΠΌΠ΅ΠΆΡΡΠΎΡΠ½ΡΠΉ ΡΠΊΠΈΠ²Ρ ΡΠΎΠ²ΠΌΠ΅ΡΡΠ½ΠΎ ΡΠ΅Π³ΡΠ»ΠΈΡΡΡΡ Π΄Π²ΠΈΠΆΠ΅Π½ΠΈΠ΅ ΡΠ΅ΠΌΠ΅Π½Π½ΠΎΠΉ ΡΠΈΡΡΠ΅ΠΌΡ.
- ΠΡΠΈΠ²ΠΎΠ΄Π½ΠΎΠΉ Π±Π»ΠΎΠΊ β ΠΡΠΈΠ²ΠΎΠ΄Π½ΠΎΠΉ Π±Π»ΠΎΠΊ ΠΎΠ±Π΅ΡΠΏΠ΅ΡΠΈΠ²Π°Π΅Ρ Π΄Π²ΠΈΠΆΠ΅Π½ΠΈΠ΅ ΠΊΠΎΠ½Π²Π΅ΠΉΠ΅ΡΠ½ΠΎΠΉ ΡΠΈΡΡΠ΅ΠΌΡ.
ΠΡΠΎΡ ΡΠ·Π΅Π» ΡΠΎΡΡΠΎΠΈΡ ΠΈΠ· ΠΊΠΎΠ½ΡΡΠΎΠΏΠΎΡΠ½ΠΎΠ³ΠΎ ΠΊΠΎΠΌΠΏΠΎΠ½Π΅Π½ΡΠ°, ΠΊΠΎΡΠΎΡΡΠΉ ΠΎΠ±Π΅ΡΠΏΠ΅ΡΠΈΠ²Π°Π΅Ρ ΠΏΠ»Π°Π²Π½ΠΎΠ΅ Π΄Π²ΠΈΠΆΠ΅Π½ΠΈΠ΅ Π²ΡΠ΅Ρ
ΡΠ°ΡΡΠ΅ΠΉ ΠΊΠΎΠ½Π²Π΅ΠΉΠ΅ΡΠ°. ΠΠ΅Π·Π°Π²ΠΈΡΠΈΠΌΠΎ ΠΎΡ ΡΠΎΠ³ΠΎ, Π΄Π²ΠΈΠΆΠ΅ΡΡΡ Π»ΠΈ ΠΊΠΎΠ½Π²Π΅ΠΉΠ΅Ρ Π²ΠΏΠ΅ΡΠ΅Π΄ ΠΈΠ»ΠΈ Π½Π°Π·Π°Π΄, ΠΏΡΠΈΠ²ΠΎΠ΄ ΠΎΠ±Π΅ΡΠΏΠ΅ΡΠΈΠ²Π°Π΅Ρ Π½Π΅ΠΎΠ±Ρ
ΠΎΠ΄ΠΈΠΌΠΎΠ΅ Π΄Π²ΠΈΠΆΠ΅Π½ΠΈΠ΅ ΡΠΈΡΡΠ΅ΠΌΡ.ΠΡΠΈΠ²ΠΎΠ΄ ΡΠ°ΠΊΠΆΠ΅ ΠΏΠΎΠ·Π²ΠΎΠ»ΡΠ΅Ρ ΠΊΠΎΠ½Π²Π΅ΠΉΠ΅ΡΡ ΠΏΡΠΈΡΠΏΠΎΡΠ°Π±Π»ΠΈΠ²Π°ΡΡΡΡ ΠΊ ΡΡΠ΅Π±ΠΎΠ²Π°Π½ΠΈΡΠΌ ΠΈΠ·ΠΌΠ΅Π½Π΅Π½ΠΈΡ Π½Π°ΠΏΡΠ°Π²Π»Π΅Π½ΠΈΡ, Π³Π΄Π΅ ΠΈ ΠΊΠΎΠ³Π΄Π° ΡΡΠΎ Π½Π΅ΠΎΠ±Ρ ΠΎΠ΄ΠΈΠΌΠΎ. Π Π°Π²ΡΠΎΠΌΠ°ΡΠΈΠ·ΠΈΡΠΎΠ²Π°Π½Π½ΠΎΠΉ ΠΊΠΎΠ½Π²Π΅ΠΉΠ΅ΡΠ½ΠΎΠΉ ΡΠΈΡΡΠ΅ΠΌΠ΅ ΠΏΡΠΈΠ²ΠΎΠ΄ ΠΏΡΠΈΠ²ΠΎΠ΄ΠΈΡΡΡ Π² Π΄Π΅ΠΉΡΡΠ²ΠΈΠ΅ Π΄Π²ΠΈΠ³Π°ΡΠ΅Π»Π΅ΠΌ. Π ΠΊΠΎΠ½Π²Π΅ΠΉΠ΅ΡΠ½ΡΡ ΡΠΈΡΡΠ΅ΠΌΠ°Ρ Ρ ΡΡΡΠ½ΡΠΌ ΡΠΏΡΠ°Π²Π»Π΅Π½ΠΈΠ΅ΠΌ ΠΏΡΠΈΠ²ΠΎΠ΄ Π½Π΅ ΠΏΡΠΈΠ²ΠΎΠ΄ΠΈΡΡΡ Π² Π΄Π΅ΠΉΡΡΠ²ΠΈΠ΅ Π΄Π²ΠΈΠ³Π°ΡΠ΅Π»Π΅ΠΌ.
ΠΡΡΠ΅ΡΠΊΠ°Π·Π°Π½Π½ΡΠ΅ ΠΊΠΎΠΌΠΏΠΎΠ½Π΅Π½ΡΡ ΠΏΡΠΈΡΡΡΡΡΠ²ΡΡΡ Π²ΠΎ Π²ΡΠ΅Ρ ΡΠΈΡΡΠ΅ΠΌΠ°Ρ ΠΊΠΎΠ½Π²Π΅ΠΉΠ΅ΡΠ½ΡΡ Π»Π΅Π½Ρ; ΠΎΠ΄Π½Π°ΠΊΠΎ ΠΎΠ½ΠΈ ΠΌΠΎΠ³ΡΡ ΡΠ°Π·Π»ΠΈΡΠ°ΡΡΡΡ ΠΏΠΎ ΡΠ°ΡΠΏΠΎΠ»ΠΎΠΆΠ΅Π½ΠΈΡ ΠΈ ΠΌΠ°ΡΠ΅ΡΠΈΠ°Π»Ρ, ΠΈΡΠΏΠΎΠ»ΡΠ·ΡΠ΅ΠΌΠΎΠΌΡ Π΄Π»Ρ ΡΠ°Π·Π»ΠΈΡΠ½ΡΡ ΠΊΠΎΠ½ΡΡΡΡΠΊΡΠΈΠΉ ΠΊΠΎΠ½Π²Π΅ΠΉΠ΅ΡΠΎΠ².
ΠΠ°ΠΊ ΡΠ°Π±ΠΎΡΠ°Π΅Ρ ΠΊΠΎΠ½Π²Π΅ΠΉΠ΅ΡΠ½Π°Ρ ΡΠΈΡΡΠ΅ΠΌΠ°?
ΠΠΎΠ½Π²Π΅ΠΉΠ΅ΡΠ½Π°Ρ Π»Π΅Π½ΡΠ° ΠΎΠ±ΡΠ°Π·ΡΠ΅Ρ Π·Π°ΠΌΠΊΠ½ΡΡΡΡ ΠΏΠ΅ΡΠ»Ρ Π½Π° ΡΠΊΠΈΠ²Π°Ρ
, ΡΡΠΎ ΠΎΠ±Π΅ΡΠΏΠ΅ΡΠΈΠ²Π°Π΅Ρ Π½Π΅ΠΏΡΠ΅ΡΡΠ²Π½ΠΎΠ΅ Π΄Π²ΠΈΠΆΠ΅Π½ΠΈΠ΅ ΡΠΈΡΡΠ΅ΠΌΡ. ΠΠΎΠ½Π²Π΅ΠΉΠ΅ΡΠ½ΡΠ΅ ΡΠΈΡΡΠ΅ΠΌΡ Π² ΠΎΡΠ½ΠΎΠ²Π½ΠΎΠΌ ΠΈΡΠΏΠΎΠ»ΡΠ·ΡΡΡ ΡΠΎΡΠΎΡ Π΄Π»Ρ ΠΏΡΠΈΠ²ΠΎΠ΄Π° ΡΠ΅ΠΌΠ½Ρ ΠΈ ΡΠΊΠΈΠ²Π°. ΠΠ°Π»ΠΈΡΠΈΠ΅ ΡΡΠ΅Π½ΠΈΡ ΠΌΠ΅ΠΆΠ΄Ρ ΡΠΎΡΠΎΡΠΎΠΌ ΠΈ ΡΠ΅ΠΌΠ½Π΅ΠΌ ΠΏΠΎΠ·Π²ΠΎΠ»ΡΠ΅Ρ ΡΠ΅ΠΌΠ½Ρ ΠΏΠΎΡΡΠΎΡΠ½Π½ΠΎ ΠΏΠ»ΠΎΡΠ½ΠΎ ΠΏΡΠΈΠ»Π΅Π³Π°ΡΡ ΠΊ ΡΠΎΡΠΎΡΡ.
ΠΠ΅ΡΠ°Π»Π»ΠΈΡΠ΅ΡΠΊΠΈΠΉ ΡΠΎΡΠΎΡ ΠΈ ΡΠ΅ΠΌΠ΅Π½Ρ
ΠΠ°ΡΡΠΆΠ½ΠΎΠΉ ΡΠΎΠ»ΠΈΠΊ ΠΈ Π²Π΅Π΄ΡΡΠΈΠΉ ΡΠΊΠΈΠ² Π²ΡΠ΅Π³Π΄Π° ΡΡΡΠ°Π½Π°Π²Π»ΠΈΠ²Π°ΡΡΡΡ Π² ΠΎΠ΄Π½ΠΎΠΌ Π½Π°ΠΏΡΠ°Π²Π»Π΅Π½ΠΈΠΈ β ΠΏΠΎ ΡΠ°ΡΠΎΠ²ΠΎΠΉ ΡΡΡΠ΅Π»ΠΊΠ΅ ΠΈΠ»ΠΈ Π² ΠΎΠ±ΡΠ°ΡΠ½ΠΎΠΌ Π½Π°ΠΏΡΠ°Π²Π»Π΅Π½ΠΈΠΈ β Π΄Π»Ρ ΠΎΠ±Π΅ΡΠΏΠ΅ΡΠ΅Π½ΠΈΡ ΠΏΠ»Π°Π²Π½ΠΎΠ³ΠΎ ΠΈ ΡΡΡΠ΅ΠΊΡΠΈΠ²Π½ΠΎΠ³ΠΎ Π΄Π²ΠΈΠΆΠ΅Π½ΠΈΡ ΡΠ΅ΠΌΠ½Ρ.
Π‘ΡΠ°Π½Π΄Π°ΡΡΠ½ΡΠ΅ ΠΊΠΎΠ½Π²Π΅ΠΉΠ΅ΡΡ, ΠΈΡΠΏΠΎΠ»ΡΠ·ΡΠ΅ΠΌΡΠ΅, Π½Π°ΠΏΡΠΈΠΌΠ΅Ρ, Π΄Π»Ρ ΠΏΡΠΎΠ΄ΡΠΊΡΠΎΠ²ΡΡ ΠΌΠ°Π³Π°Π·ΠΈΠ½ΠΎΠ² ΠΈΠ»ΠΈ Π΄Π²ΠΈΠΆΡΡΠΈΡ ΡΡ Π΄ΠΎΡΠΎΠΆΠ΅ΠΊ, ΠΈΠΌΠ΅ΡΡ ΠΏΡΡΠΌΡΡ ΠΊΠΎΠ½ΡΡΡΡΠΊΡΠΈΡ.
Π ΡΠ΅Ρ ΡΠ»ΡΡΠ°ΡΡ , ΠΊΠΎΠ³Π΄Π° ΡΡΠ΅Π±ΡΠ΅ΡΡΡ ΠΊΠΎΠ½Π²Π΅ΠΉΠ΅Ρ Π΄Π»Ρ ΠΏΠΎΠ²ΠΎΡΠΎΡΠΎΠ², ΠΈΡΠΏΠΎΠ»ΡΠ·ΡΠΉΡΠ΅ Π΄Π»Ρ ΡΡΠΎΠΉ ΡΠ΅Π»ΠΈ ΡΠΎΡΠΎΡ ΠΈΠ»ΠΈ ΠΊΠΎΠ»Π΅ΡΠ°. ΠΡΠΎΡ ΡΠΎΡΠΎΡ ΠΈΠ»ΠΈ ΠΊΠΎΠ»Π΅ΡΠΎ ΠΏΠΎΠ·Π²ΠΎΠ»ΡΠ΅Ρ Π»Π΅Π½ΡΠ΅ ΠΏΠ΅ΡΠ΅ΠΌΠ΅ΡΠ°ΡΡΡΡ ΠΏΠΎ ΠΈΠ·Π³ΠΈΠ±Ρ, Π½Π΅ ΠΏΠ΅ΡΠ΅ΠΊΡΡΡΠΈΠ²Π°ΡΡΡ.
Π’ΠΈΠΏΡ Π»Π΅Π½ΡΠΎΡΠ½ΡΡ ΠΊΠΎΠ½Π²Π΅ΠΉΠ΅ΡΠΎΠ²
ΠΡΠΎΠΈΠ·Π²ΠΎΠ΄ΠΈΡΠ΅Π»ΠΈ Π»Π΅Π½ΡΠΎΡΠ½ΡΡ
ΠΊΠΎΠ½Π²Π΅ΠΉΠ΅ΡΠΎΠ² ΡΠ°Π·ΡΠ°Π±Π°ΡΡΠ²Π°ΡΡ Π΄Π²Π° ΠΎΡΠ½ΠΎΠ²Π½ΡΡ
ΡΠΈΠΏΠ° ΡΠΈΡΡΠ΅ΠΌ. Π Π½ΠΈΠΌ ΠΎΡΠ½ΠΎΡΡΡΡΡ Π»Π΅Π½ΡΠΎΡΠ½ΡΠ΅ ΡΠΈΡΡΠ΅ΠΌΡ Π΄Π»Ρ ΠΎΠ±ΡΠ΅ΠΉ ΠΎΠ±ΡΠ°Π±ΠΎΡΠΊΠΈ ΠΌΠ°ΡΠ΅ΡΠΈΠ°Π»ΠΎΠ² ΠΈ ΡΠ΅ΠΌΠ½ΠΈ Π΄Π»Ρ ΠΎΠ±ΡΠ°Π±ΠΎΡΠΊΠΈ ΡΡΠΏΡΡΠΈΡ
ΠΌΠ°ΡΠ΅ΡΠΈΠ°Π»ΠΎΠ².
- ΠΠ±ΡΠΈΠ΅ Π Π΅ΠΌΠ½ΠΈ Π΄Π»Ρ ΠΏΠΎΠ³ΡΡΠ·ΠΎΡΠ½ΠΎ-ΡΠ°Π·Π³ΡΡΠ·ΠΎΡΠ½ΡΡ
ΡΠ°Π±ΠΎΡ. ΠΡΠΈ ΡΠ΅ΠΌΠ½ΠΈ ΡΠΎΡΡΠΎΡΡ ΠΈΠ· Π΄Π²ΡΡ
ΡΠ»ΠΎΠ΅Π² ΠΌΠ°ΡΠ΅ΡΠΈΠ°Π»Π°. ΠΠ½Π΅ΡΠ½ΠΈΠΉ ΡΠ»ΠΎΠΉ ΠΈΠ·Π²Π΅ΡΡΠ΅Π½ ΠΊΠ°ΠΊ ΠΠΎΠΊΡΡΡΠΈΠ΅. Π¦Π΅Π»Ρ ΠΊΡΡΡΠΊΠΈ β Π·Π°ΡΠΈΡΠΈΡΡ Π²Π½ΡΡΡΠ΅Π½Π½ΠΈΠΉ ΡΠ»ΠΎΠΉ, Π½Π°Π·ΡΠ²Π°Π΅ΠΌΡΠΉ ΠΠ°ΡΠΊΠ°ΡΠΎΠΌ.
Π‘ΡΡΡΠΊΡΡΡΠ° ΡΠ»ΠΎΡ Carcass ΠΎΠΏΡΠ΅Π΄Π΅Π»ΡΠ΅Ρ ΠΏΡΠΎΡΠ½ΠΎΡΡΡ ΠΊΠΎΠ½Π²Π΅ΠΉΠ΅ΡΠ½ΠΎΠΉ Π»Π΅Π½ΡΡ Π½Π° ΡΠ°ΡΡΡΠΆΠ΅Π½ΠΈΠ΅.
ΠΠ°ΡΠΊΠ°Ρ ΡΡΠ½ΠΊΡΠΈΠΎΠ½ΠΈΡΡΠ΅Ρ, ΠΏΠΎΠ³Π»ΠΎΡΠ°Ρ ΡΠΈΠ»Ρ, ΠΊΠΎΠ³Π΄Π° Π½Π°Π³ΡΡΠ·ΠΊΠ° ΠΏΡΠΈΠΊΠ»Π°Π΄ΡΠ²Π°Π΅ΡΡΡ ΠΊ ΡΠ΅ΠΌΠ½Ρ. Π§Π΅ΠΌ Π±ΠΎΠ»ΡΡΠ΅ ΠΏΡΠΎΡΠ½ΠΎΡΡΡ ΠΊΠ°ΡΠΊΠ°ΡΠ° Π½Π° ΡΠ°ΡΡΡΠΆΠ΅Π½ΠΈΠ΅, ΡΠ΅ΠΌ ΡΡΡΠ΅ΠΊΡΠΈΠ²Π½Π΅Π΅ Π»Π΅Π½ΡΠ° ΠΏΡΠΈ ΠΏΠ΅ΡΠ΅ΠΌΠ΅ΡΠ΅Π½ΠΈΠΈ ΠΌΠ°ΡΠ΅ΡΠΈΠ°Π»ΠΎΠ², ΡΡΠ΅Π±ΡΡΡΠΈΡ
Π±ΠΎΠ»ΡΡΠ΅ΠΉ ΡΠΈΠ»Ρ ΡΠΎΠ»ΠΊΠ°Π½ΠΈΡ.ΠΠΎΠ½ΡΡΡΡΠΊΡΠΈΡ ΠΊΠ°ΡΠΊΠ°ΡΠ° Π·Π°Π²ΠΈΡΠΈΡ ΠΎΡ ΠΌΠ°ΡΠ΅ΡΠΈΠ°Π»ΠΎΠ², ΠΈΡΠΏΠΎΠ»ΡΠ·ΡΠ΅ΠΌΡΡ Π² ΡΠ΅ΠΌΠ½Π΅. ΠΠ°ΠΏΡΠΈΠΌΠ΅Ρ, Π² Π»Π΅Π½ΡΠ°Ρ ΡΠΎ ΡΡΠ°Π»ΡΠ½ΡΠΌ ΠΊΠΎΡΠ΄ΠΎΠΌ ΠΊΠ°ΡΠΊΠ°Ρ ΡΠΎΡΡΠΎΠΈΡ ΠΈΠ· ΡΡΠ°Π»ΡΠ½ΡΡ ΡΡΠΎΡΠΎΠ², ΡΠ°ΡΠΏΠΎΠ»ΠΎΠΆΠ΅Π½Π½ΡΡ ΠΏΠΎΡΠ»Π΅Π΄ΠΎΠ²Π°ΡΠ΅Π»ΡΠ½ΠΎ Π² Π»Π΅Π½ΡΠ΅. ΠΠ°Π±Π΅Π»ΠΈ Π°ΠΌΠΎΡΡΠΈΠ·ΠΈΡΠΎΠ²Π°Π½Ρ ΡΠ΅Π·ΠΈΠ½ΠΎΠΉ. Π ΡΠΊΠ°Π½Π΅Π²ΡΡ ΡΠ΅ΠΌΠ½ΡΡ Carcass ΠΈΠΌΠ΅Π΅Ρ Β«ΠΊΠΎΠ²ΡΠΈΠΊΠΈΒ» ΠΈΠ· ΡΠΊΠ°Π½ΠΈ, Π·Π°ΡΠΈΡΠ΅Π½Π½ΡΠ΅ ΡΠ»ΠΎΡΠΌΠΈ Π°ΠΌΠΎΡΡΠΈΠ·Π°ΡΠΈΠΈ.
- ΠΠ΅Π½ΡΡ Π΄Π»Ρ ΡΡΠ°Π½ΡΠΏΠΎΡΡΠΈΡΠΎΠ²ΠΊΠΈ ΡΡΠΏΡΡΠΈΡ
ΠΌΠ°ΡΠ΅ΡΠΈΠ°Π»ΠΎΠ². Π ΠΎΡΡΠ°ΡΠ»ΡΡ
, ΠΎΡΠΈΠ΅Π½ΡΠΈΡΠΎΠ²Π°Π½Π½ΡΡ
Π½Π° ΡΠ°Π±ΠΎΡΡ Ρ ΡΡΠΏΡΡΠΈΠΌΠΈ ΠΌΠ°ΡΠ΅ΡΠΈΠ°Π»Π°ΠΌΠΈ, ΡΠ°ΠΊΠΈΡ
ΠΊΠ°ΠΊ ΠΏΠ΅ΡΠ΅ΡΠ°Π±Π°ΡΡΠ²Π°ΡΡΠΈΠ΅ ΠΏΡΠ΅Π΄ΠΏΡΠΈΡΡΠΈΡ, ΠΈΡΠΏΠΎΠ»ΡΠ·ΡΡΡΡΡ ΠΊΠΎΠ½Π²Π΅ΠΉΠ΅ΡΠ½ΡΠ΅ ΡΠΈΡΡΠ΅ΠΌΡ Ρ Π»Π΅Π½ΡΠ°ΠΌΠΈ Π΄Π»Ρ ΡΡΠ°Π½ΡΠΏΠΎΡΡΠΈΡΠΎΠ²ΠΊΠΈ ΡΡΠΏΡΡΠΈΡ
ΠΌΠ°ΡΠ΅ΡΠΈΠ°Π»ΠΎΠ². ΠΡΠΈ ΡΠ΅ΠΌΠ½ΠΈ ΠΈΠ·Π³ΠΎΡΠ°Π²Π»ΠΈΠ²Π°ΡΡΡΡ ΠΈΠ· ΡΠ΅Π·ΠΈΠ½Ρ, ΠΏΠΎΠ»ΠΈΡΡΡΠ΅ΡΠ° ΠΈΠ»ΠΈ Π½Π΅ΠΎΠΏΡΠ΅Π½Π°. Π‘Π»ΠΎΠΈ ΡΡΠΈΡ
ΡΠ΅ΠΌΠ½Π΅ΠΉ ΡΠ°ΠΊΠΈΠ΅ ΠΆΠ΅, ΠΊΠ°ΠΊ Ρ ΠΎΠ±ΡΡΠ½ΡΡ
ΡΠ΅ΠΌΠ½Π΅ΠΉ.
ΠΠ°ΡΠ΅ΡΠΈΠ°Π» ΠΎΠΏΡΠ΅Π΄Π΅Π»ΡΠ΅ΡΡΡ Π² ΡΠΎΠΎΡΠ²Π΅ΡΡΡΠ²ΠΈΠΈ Ρ ΠΌΠ°ΡΠ΅ΡΠΈΠ°Π»Π°ΠΌΠΈ, ΠΊΠΎΡΠΎΡΡΠ΅ Π±ΡΠ΄ΡΡ ΠΎΠ±ΡΠ°Π±Π°ΡΡΠ²Π°ΡΡΡΡ ΠΊΠΎΠ½Π²Π΅ΠΉΠ΅ΡΠΎΠΌ. ΠΠ°ΠΏΡΠΈΠΌΠ΅Ρ, Π² ΡΠ°ΠΊΠΈΡ ΠΎΡΡΠ°ΡΠ»ΡΡ , ΠΊΠ°ΠΊ ΡΡΠ΅Π·Π΅ΡΠΎΠ²Π°Π½ΠΈΠ΅ ΠΈ Π³ΠΎΡΠ½ΠΎΠ΄ΠΎΠ±ΡΠ²Π°ΡΡΠ°Ρ ΠΏΡΠΎΠΌΡΡΠ»Π΅Π½Π½ΠΎΡΡΡ, Π³Π΄Π΅ ΠΈΡΠΏΠΎΠ»ΡΠ·ΡΡΡΡΡ ΡΡΠΆΠ΅Π»ΡΠ΅ ΡΡΠΏΡΡΠΈΠ΅ ΠΌΠ°ΡΠ΅ΡΠΈΠ°Π»Ρ, ΡΠΈΡΡΠ΅ΠΌΡ ΠΊΠΎΠ½Π²Π΅ΠΉΠ΅ΡΠ½ΡΡ Π»Π΅Π½Ρ ΠΈΠ·Π³ΠΎΡΠ°Π²Π»ΠΈΠ²Π°ΡΡΡΡ ΠΈΠ· ΡΠ΅Π·ΠΈΠ½Ρ.
ΠΠ΅Π½ΡΡ Π΄Π»Ρ ΡΡΠ°Π½ΡΠΏΠΎΡΡΠΈΡΠΎΠ²ΠΊΠΈ ΡΡΠΏΡΡΠΈΡ
ΠΌΠ°ΡΠ΅ΡΠΈΠ°Π»ΠΎΠ² ΡΠ°ΠΊΠΆΠ΅ ΠΈΠΌΠ΅ΡΡ Π΄ΡΡΠ³ΡΡ ΡΠΎΠ»ΡΠΈΠ½Ρ ΠΈ Ρ
Π°ΡΠ°ΠΊΡΠ΅ΡΠΈΡΡΠΈΠΊΠΈ ΠΏΠΎΠΊΡΡΡΠΈΡ ΠΏΠΎ ΡΡΠ°Π²Π½Π΅Π½ΠΈΡ Ρ Π»Π΅Π½ΡΠ°ΠΌΠΈ ΠΎΠ±ΡΠ΅Π³ΠΎ Π½Π°Π·Π½Π°ΡΠ΅Π½ΠΈΡ.
Π Π·Π°ΠΊΠ»ΡΡΠ΅Π½ΠΈΠ΅
ΠΠΎΠ½Π²Π΅ΠΉΠ΅ΡΠ½Π°Ρ ΡΠΈΡΡΠ΅ΠΌΠ° Π΄Π΅Π»Π°Π΅Ρ ΡΡΠ°Π½ΡΠΏΠΎΡΡΠΈΡΠΎΠ²ΠΊΡ ΠΌΠ°ΡΠ΅ΡΠΈΠ°Π»ΠΎΠ² ΠΏΡΠΎΡΠ΅, Π±ΡΡΡΡΠ΅Π΅, Π±Π΅Π·ΠΎΠΏΠ°ΡΠ½Π΅Π΅ ΠΈ ΡΡΡΠ΅ΠΊΡΠΈΠ²Π½Π΅Π΅. Π₯ΠΎΡΠΎΡΠΎ ΡΠΏΡΠΎΠ΅ΠΊΡΠΈΡΠΎΠ²Π°Π½Π½ΡΠ΅ ΠΊΠΎΠ½Π²Π΅ΠΉΠ΅ΡΡ ΡΠ°Π·Π³ΡΡΠΆΠ°ΡΡ Π½Π°Π³ΡΡΠ·ΠΊΡ, ΡΠ²ΡΠ·Π°Π½Π½ΡΡ Ρ ΡΡΠ°Π½ΡΠΏΠΎΡΡΠΈΡΠΎΠ²ΠΊΠΎΠΉ ΠΌΠ°ΡΠ΅ΡΠΈΠ°Π»ΠΎΠ² Π½Π° ΠΏΡΠΎΠΈΠ·Π²ΠΎΠ΄ΡΡΠ²Π΅Π½Π½ΡΡ Π»ΠΈΠ½ΠΈΡΡ .
ΠΡΠΎΡΠ΅ΡΡΡ, Π² ΠΊΠΎΡΠΎΡΡΡ ΠΈΡΠΏΠΎΠ»ΡΠ·ΡΡΡΡΡ ΠΌΠ°ΡΠ΅ΡΠΈΠ°Π»Ρ, ΠΊΠΎΡΠΎΡΡΠ΅ ΠΌΠΎΠ³ΡΡ Π±ΡΡΡ ΡΠ»ΠΈΡΠΊΠΎΠΌ Π³ΡΠΎΠΌΠΎΠ·Π΄ΠΊΠΈΠΌΠΈ Π΄Π»Ρ Π»ΡΠ΄Π΅ΠΉ, ΠΌΠΎΠ³ΡΡ Π²ΡΠΈΠ³ΡΠ°ΡΡ ΠΎΡ ΠΊΠΎΠ½Π²Π΅ΠΉΠ΅ΡΠ½ΡΡ ΡΠΈΡΡΠ΅ΠΌ. Π ΡΡΠ½Π°Ρ ΠΎΠ±ΡΠ°Π±ΠΎΡΠΊΠ° ΠΌΠΎΠΆΠ΅Ρ ΠΏΡΠΈΠ²Π΅ΡΡΠΈ ΠΊ ΠΏΠΎΡΠ΅ΡΠ΅ Π²ΡΠ΅ΠΌΠ΅Π½ΠΈ, ΠΌΠ°ΡΠ΅ΡΠΈΠ°Π»ΡΠ½ΠΎΠΌΡ ΡΡΠ΅ΡΠ±Ρ, ΡΠΈΠ·ΠΈΡΠ΅ΡΠΊΠΎΠΌΡ Π½Π°ΠΏΡΡΠΆΠ΅Π½ΠΈΡ ΠΈ Π΄Π°ΠΆΠ΅ ΡΡΠ°Π²ΠΌΠ°ΠΌ. ΠΠ²ΡΠΎΠΌΠ°ΡΠΈΠ·ΠΈΡΡΡ ΠΏΠ΅ΡΠ΅ΠΌΠ΅ΡΠ΅Π½ΠΈΠ΅ ΠΌΠ°ΡΠ΅ΡΠΈΠ°Π»ΠΎΠ², ΠΊΠΎΠ½Π²Π΅ΠΉΠ΅ΡΠ½Π°Ρ ΡΠΈΡΡΠ΅ΠΌΠ° ΡΠΊΠΎΠ½ΠΎΠΌΠΈΡ Π²ΡΠ΅ΠΌΡ ΠΈ ΡΠ΅ΡΡΡΡΡ Π΄Π»Ρ Π±ΠΈΠ·Π½Π΅ΡΠ°.
ΠΠ°ΠΊΠ»ΠΎΠ½Π½ΡΠΉ ΠΊΠΎΠ½Π²Π΅ΠΉΠ΅Ρ Π»ΡΡΡΠ΅ Π²ΡΠ΅Π³ΠΎ ΠΏΠΎΠ΄Ρ ΠΎΠ΄ΠΈΡ Π΄Π»Ρ ΠΏΡΠΎΡΠ΅ΡΡΠΎΠ², ΠΊΠΎΠ³Π΄Π° ΠΌΠ°ΡΠ΅ΡΠΈΠ°Π»Ρ Π½Π΅ΠΎΠ±Ρ ΠΎΠ΄ΠΈΠΌΠΎ ΠΏΠ΅ΡΠ΅ΠΌΠ΅ΡΠ°ΡΡ ΠΏΠΎ ΡΡΠ°ΠΆΠ°ΠΌ ΠΈΠ»ΠΈ ΠΏΠΎ Π½Π΅ΡΠΊΠΎΠ»ΡΠΊΠΈΠΌ ΡΡΠΎΠ²Π½ΡΠΌ Π½Π° ΠΎΠ΄Π½ΠΎΠΌ ΡΡΠ°ΠΆΠ΅. ΠΡΠΎ ΡΠΏΡΠΎΡΠ°Π΅Ρ ΠΈ ΡΡΠΊΠΎΡΡΠ΅Ρ Π·Π°Π΄Π°ΡΡ ΠΏΠ΅ΡΠ΅ΠΌΠ΅ΡΠ΅Π½ΠΈΡ ΠΌΠ°ΡΠ΅ΡΠΈΠ°Π»ΠΎΠ² Π²Π²Π΅ΡΡ ΠΈ Π²Π½ΠΈΠ·.
ΠΡΠΎΠΌΡΡΠ»Π΅Π½Π½ΡΠΉ ΠΊΠΎΠ½Π²Π΅ΠΉΠ΅Ρ
ΠΡΡΠ΅ΠΊΡΠΈΠ²Π½ΠΎΡΡΡ ΡΠΈΡΡΠ΅ΠΌ ΠΊΠΎΠ½Π²Π΅ΠΉΠ΅ΡΠ½ΡΡ
Π»Π΅Π½Ρ ΠΏΡΠΈ ΠΎΠ±ΡΠ°Π±ΠΎΡΠΊΠ΅ ΡΠΈΡΠΎΠΊΠΎΠ³ΠΎ ΡΠΏΠ΅ΠΊΡΡΠ° ΠΌΠ°ΡΠ΅ΡΠΈΠ°Π»ΠΎΠ², ΠΎΡ ΡΡΡΡΡ Π΄ΠΎ ΡΡΠΆΠ΅Π»ΡΡ
ΠΊΠΎΠ½Π΅ΡΠ½ΡΡ
ΠΏΡΠΎΠ΄ΡΠΊΡΠΎΠ², ΡΠ°ΠΊΠΈΡ
ΠΊΠ°ΠΊ ΡΡΠ°Π½ΡΠΏΠΎΡΡΠ½ΡΠ΅ ΡΡΠ΅Π΄ΡΡΠ²Π°, Π΄Π΅Π»Π°Π΅Ρ ΠΈΡ
Π²Π°ΠΆΠ½ΡΠΌ ΠΏΡΠ΅ΠΈΠΌΡΡΠ΅ΡΡΠ²ΠΎΠΌ Π΄Π»Ρ Π±ΠΈΠ·Π½Π΅ΡΠ°.
SRSI ΡΠΎΡΡΡΠ΄Π½ΠΈΡΠ°Π΅Ρ ΡΠΎΠ»ΡΠΊΠΎ Ρ ΠΏΡΠΎΠΈΠ·Π²ΠΎΠ΄ΠΈΡΠ΅Π»ΡΠΌΠΈ ΠΊΠΎΠ½Π²Π΅ΠΉΠ΅ΡΠΎΠ² ΠΌΠΈΡΠΎΠ²ΠΎΠ³ΠΎ ΠΊΠ»Π°ΡΡΠ°, ΠΏΠΎΡΡΠΎΠΌΡ ΠΌΡ ΠΌΠΎΠΆΠ΅ΠΌ ΠΏΡΠ΅Π΄ΠΎΡΡΠ°Π²ΠΈΡΡ Π²Π°ΠΌ ΠΏΡΠΎΠ΄ΡΠΊΡΠΈΡ ΡΠ°ΠΌΠΎΠ³ΠΎ Π²ΡΡΠΎΠΊΠΎΠ³ΠΎ ΠΊΠ°ΡΠ΅ΡΡΠ²Π°.
ΠΡ ΡΠ°ΡΡΠΌΠ°ΡΡΠΈΠ²Π°Π΅ΡΠ΅ ΠΊΠΎΠ½Π²Π΅ΠΉΠ΅ΡΠ½ΡΡ ΡΠΈΡΡΠ΅ΠΌΡ Π΄Π»Ρ ΡΠ²ΠΎΠ΅Π³ΠΎ Π±ΠΈΠ·Π½Π΅ΡΠ°? Π‘Π²ΡΠΆΠΈΡΠ΅ΡΡ Ρ SRSI ΡΠ΅Π³ΠΎΠ΄Π½Ρ, ΡΡΠΎΠ±Ρ ΠΏΠΎΠ»ΡΡΠΈΡΡ ΡΠ΅ΡΠ΅Π½ΠΈΡ ΠΏΠΎ ΠΏΡΠΎΠ΅ΠΊΡΠΈΡΠΎΠ²Π°Π½ΠΈΡ ΠΈ Π²Π½Π΅Π΄ΡΠ΅Π½ΠΈΡ: [email protected]
Π§ΡΠΎ ΡΠ°ΠΊΠΎΠ΅ ΠΊΠΎΠ½Π²Π΅ΠΉΠ΅ΡΠ½Π°Ρ ΡΠΈΡΡΠ΅ΠΌΠ°? ΠΠΏΡΠ΅Π΄Π΅Π»Π΅Π½ΠΈΠ΅, ΡΠΈΠΏΡ, Π΄ΠΈΠ·Π°ΠΉΠ½ ΠΈ ΠΈΡΠΏΠΎΠ»ΡΠ·ΠΎΠ²Π°Π½ΠΈΠ΅
ΠΠΎΠ½Π²Π΅ΠΉΠ΅ΡΠ½Π°Ρ ΡΠΈΡΡΠ΅ΠΌΠ° β ΡΡΠΎ Π±ΡΡΡΡΠΎΠ΅ ΠΈ ΡΡΡΠ΅ΠΊΡΠΈΠ²Π½ΠΎΠ΅ ΠΌΠ΅Ρ Π°Π½ΠΈΡΠ΅ΡΠΊΠΎΠ΅ ΠΏΠΎΠ³ΡΡΠ·ΠΎΡΠ½ΠΎ-ΡΠ°Π·Π³ΡΡΠ·ΠΎΡΠ½ΠΎΠ΅ ΡΡΡΡΠΎΠΉΡΡΠ²ΠΎ Π΄Π»Ρ Π°Π²ΡΠΎΠΌΠ°ΡΠΈΡΠ΅ΡΠΊΠΎΠΉ ΡΡΠ°Π½ΡΠΏΠΎΡΡΠΈΡΠΎΠ²ΠΊΠΈ Π³ΡΡΠ·ΠΎΠ² ΠΈ ΠΌΠ°ΡΠ΅ΡΠΈΠ°Π»ΠΎΠ² Π² ΠΏΡΠ΅Π΄Π΅Π»Π°Ρ ΠΎΠ±Π»Π°ΡΡΠΈ. ΠΡΠ° ΡΠΈΡΡΠ΅ΠΌΠ° ΡΠ²ΠΎΠ΄ΠΈΡ ΠΊ ΠΌΠΈΠ½ΠΈΠΌΡΠΌΡ ΡΠ΅Π»ΠΎΠ²Π΅ΡΠ΅ΡΠΊΠΈΠΉ ΡΠ°ΠΊΡΠΎΡ, ΡΠ½ΠΈΠΆΠ°Π΅Ρ ΡΠΈΡΠΊΠΈ Π½Π° ΡΠ°Π±ΠΎΡΠ΅ΠΌ ΠΌΠ΅ΡΡΠ΅ ΠΈ ΡΠ½ΠΈΠΆΠ°Π΅Ρ Π·Π°ΡΡΠ°ΡΡ Π½Π° ΠΎΠΏΠ»Π°ΡΡ ΡΡΡΠ΄Π° β ΡΡΠ΅Π΄ΠΈ ΠΏΡΠΎΡΠΈΡ ΠΏΡΠ΅ΠΈΠΌΡΡΠ΅ΡΡΠ². ΠΠ½ΠΈ ΠΏΠΎΠ»Π΅Π·Π½Ρ, ΠΏΠΎΠΌΠΎΠ³Π°Ρ ΠΏΠ΅ΡΠ΅ΠΌΠ΅ΡΠ°ΡΡ Π³ΡΠΎΠΌΠΎΠ·Π΄ΠΊΠΈΠ΅ ΠΈΠ»ΠΈ ΡΡΠΆΠ΅Π»ΡΠ΅ ΠΏΡΠ΅Π΄ΠΌΠ΅ΡΡ ΠΈΠ· ΠΎΠ΄Π½ΠΎΠΉ ΡΠΎΡΠΊΠΈ Π² Π΄ΡΡΠ³ΡΡ. ΠΠΎΠ½Π²Π΅ΠΉΠ΅ΡΠ½Π°Ρ ΡΠΈΡΡΠ΅ΠΌΠ° ΠΌΠΎΠΆΠ΅Ρ ΠΈΡΠΏΠΎΠ»ΡΠ·ΠΎΠ²Π°ΡΡ Π»Π΅Π½ΡΡ, ΠΊΠΎΠ»Π΅ΡΠ°, ΡΠΎΠ»ΠΈΠΊΠΈ ΠΈΠ»ΠΈ ΡΠ΅ΠΏΡ Π΄Π»Ρ ΡΡΠ°Π½ΡΠΏΠΎΡΡΠΈΡΠΎΠ²ΠΊΠΈ ΠΎΠ±ΡΠ΅ΠΊΡΠΎΠ².
ΠΠ°ΠΊ ΡΠ°Π±ΠΎΡΠ°ΡΡ ΠΊΠΎΠ½Π²Π΅ΠΉΠ΅ΡΠ½ΡΠ΅ ΡΠΈΡΡΠ΅ΠΌΡ
ΠΠ°ΠΊ ΠΏΡΠ°Π²ΠΈΠ»ΠΎ, ΠΊΠΎΠ½Π²Π΅ΠΉΠ΅ΡΠ½ΡΠ΅ ΡΠΈΡΡΠ΅ΠΌΡ ΡΠΎΡΡΠΎΡΡ ΠΈΠ· Π»Π΅Π½ΡΡ, Π½Π°ΡΡΠ½ΡΡΠΎΠΉ Π½Π° Π΄Π²Π° ΠΈΠ»ΠΈ Π±ΠΎΠ»Π΅Π΅ ΡΠΊΠΈΠ²ΠΎΠ².
Π Π΅ΠΌΠ΅Π½Ρ ΠΎΠ±ΡΠ°Π·ΡΠ΅Ρ Π·Π°ΠΌΠΊΠ½ΡΡΡΡ ΠΏΠ΅ΡΠ»Ρ Π²ΠΎΠΊΡΡΠ³ ΡΠΊΠΈΠ²ΠΎΠ², ΠΏΠΎΡΡΠΎΠΌΡ ΠΎΠ½ ΠΌΠΎΠΆΠ΅Ρ ΠΏΠΎΡΡΠΎΡΠ½Π½ΠΎ Π²ΡΠ°ΡΠ°ΡΡΡΡ. ΠΠ΄ΠΈΠ½ ΡΠΊΠΈΠ², ΠΈΠ·Π²Π΅ΡΡΠ½ΡΠΉ ΠΊΠ°ΠΊ Π²Π΅Π΄ΡΡΠΈΠΉ ΡΠΊΠΈΠ², ΠΏΡΠΈΠ²ΠΎΠ΄ΠΈΡ Π² Π΄Π²ΠΈΠΆΠ΅Π½ΠΈΠ΅ ΠΈΠ»ΠΈ Π±ΡΠΊΡΠΈΡΡΠ΅Ρ ΡΠ΅ΠΌΠ΅Π½Ρ, ΠΏΠ΅ΡΠ΅ΠΌΠ΅ΡΠ°Ρ ΠΏΡΠ΅Π΄ΠΌΠ΅ΡΡ ΠΈΠ· ΠΎΠ΄Π½ΠΎΠ³ΠΎ ΠΌΠ΅ΡΡΠ° Π² Π΄ΡΡΠ³ΠΎΠ΅.
Π Π½Π°ΠΈΠ±ΠΎΠ»Π΅Π΅ ΡΠ°ΡΠΏΡΠΎΡΡΡΠ°Π½Π΅Π½Π½ΡΡ ΠΊΠΎΠ½ΡΡΡΡΠΊΡΠΈΡΡ ΠΊΠΎΠ½Π²Π΅ΠΉΠ΅ΡΠ½ΡΡ ΡΠΈΡΡΠ΅ΠΌ ΠΈΡΠΏΠΎΠ»ΡΠ·ΡΠ΅ΡΡΡ ΡΠΎΡΠΎΡ Π΄Π»Ρ ΠΏΡΠΈΠ²ΠΎΠ΄Π° ΠΏΡΠΈΠ²ΠΎΠ΄Π½ΠΎΠ³ΠΎ ΡΠΊΠΈΠ²Π° ΠΈ ΡΠ΅ΠΌΠ½Ρ. Π Π΅ΠΌΠ΅Π½Ρ ΠΎΡΡΠ°Π΅ΡΡΡ ΠΏΡΠΈΠΊΡΠ΅ΠΏΠ»Π΅Π½Π½ΡΠΌ ΠΊ ΡΠΎΡΠΎΡΡ Π·Π° ΡΡΠ΅Ρ ΡΡΠ΅Π½ΠΈΡ ΠΌΠ΅ΠΆΠ΄Ρ Π΄Π²ΡΠΌΡ ΠΏΠΎΠ²Π΅ΡΡ Π½ΠΎΡΡΡΠΌΠΈ. Π§ΡΠΎΠ±Ρ ΡΠ΅ΠΌΠ΅Π½Ρ Π΄Π²ΠΈΠ³Π°Π»ΡΡ ΡΡΡΠ΅ΠΊΡΠΈΠ²Π½ΠΎ, Π²Π΅Π΄ΡΡΠΈΠΉ ΡΠΊΠΈΠ² ΠΈ Π½Π°ΡΡΠΆΠ½ΠΎΠΉ ΡΠΎΠ»ΠΈΠΊ Π΄ΠΎΠ»ΠΆΠ½Ρ Π²ΡΠ°ΡΠ°ΡΡΡΡ Π² ΠΎΠ΄Π½ΠΎΠΌ Π½Π°ΠΏΡΠ°Π²Π»Π΅Π½ΠΈΠΈ, ΠΏΠΎ ΡΠ°ΡΠΎΠ²ΠΎΠΉ ΡΡΡΠ΅Π»ΠΊΠ΅ ΠΈΠ»ΠΈ ΠΏΡΠΎΡΠΈΠ² ΡΠ°ΡΠΎΠ²ΠΎΠΉ ΡΡΡΠ΅Π»ΠΊΠΈ.
Π ΡΠΎ Π²ΡΠ΅ΠΌΡ ΠΊΠ°ΠΊ ΠΎΠ±ΡΡΠ½ΡΠ΅ ΠΊΠΎΠ½Π²Π΅ΠΉΠ΅ΡΠ½ΡΠ΅ ΡΠΈΡΡΠ΅ΠΌΡ, ΡΠ°ΠΊΠΈΠ΅ ΠΊΠ°ΠΊ Π΄Π²ΠΈΠΆΡΡΠΈΠ΅ΡΡ Π΄ΠΎΡΠΎΠΆΠΊΠΈ ΠΈ ΠΊΠΎΠ½Π²Π΅ΠΉΠ΅ΡΡ ΠΏΡΠΎΠ΄ΡΠΊΡΠΎΠ²ΡΡ ΠΌΠ°Π³Π°Π·ΠΈΠ½ΠΎΠ², ΡΠ²Π»ΡΡΡΡΡ ΠΏΡΡΠΌΡΠΌΠΈ, ΠΈΠ½ΠΎΠ³Π΄Π° ΡΡΡΡΠΎΠΉΡΡΠ²Ρ Π½Π΅ΠΎΠ±Ρ ΠΎΠ΄ΠΈΠΌΠΎ ΠΏΠΎΠ²Π΅ΡΠ½ΡΡΡΡΡ, ΡΡΠΎΠ±Ρ Π΄ΠΎΡΡΠ°Π²ΠΈΡΡ ΡΠΎΠ²Π°ΡΡ Π² Π½ΡΠΆΠ½ΠΎΠ΅ ΠΌΠ΅ΡΡΠΎ. ΠΠ»Ρ ΠΏΠΎΠ²ΠΎΡΠΎΡΠΎΠ² ΠΈΡΠΏΠΎΠ»ΡΠ·ΡΡΡΡΡ ΡΠ½ΠΈΠΊΠ°Π»ΡΠ½ΡΠ΅ ΠΊΠΎΠ½ΡΡΠΎΠΎΠ±ΡΠ°Π·Π½ΡΠ΅ ΠΊΠΎΠ»Π΅ΡΠ° ΠΈΠ»ΠΈ ΡΠΎΡΠΎΡΡ, ΠΊΠΎΡΠΎΡΡΠ΅ ΠΏΠΎΠ·Π²ΠΎΠ»ΡΡΡ Π»Π΅Π½ΡΠ΅ ΡΠ»Π΅Π΄ΠΎΠ²Π°ΡΡ ΠΈΠ·Π³ΠΈΠ±Ρ ΠΈΠ»ΠΈ ΡΠΊΡΡΡΠΈΠ²Π°Π½ΠΈΡ, Π½Π΅ Π·Π°ΠΏΡΡΡΠ²Π°ΡΡΡ.
ΠΡΠ΅ΠΈΠΌΡΡΠ΅ΡΡΠ²Π° ΠΊΠΎΠ½Π²Π΅ΠΉΠ΅ΡΠ½ΡΡ ΡΠΈΡΡΠ΅ΠΌ
ΠΡΠ½ΠΎΠ²Π½ΠΎΠ΅ Π½Π°Π·Π½Π°ΡΠ΅Π½ΠΈΠ΅ ΠΊΠΎΠ½Π²Π΅ΠΉΠ΅ΡΠ½ΠΎΠΉ ΡΠΈΡΡΠ΅ΠΌΡ β ΠΏΠ΅ΡΠ΅ΠΌΠ΅ΡΠ΅Π½ΠΈΠ΅ ΠΎΠ±ΡΠ΅ΠΊΡΠΎΠ² ΠΈΠ· ΠΎΠ΄Π½ΠΎΠ³ΠΎ ΠΌΠ΅ΡΡΠ° Π² Π΄ΡΡΠ³ΠΎΠ΅.
ΠΠΎΠ½ΡΡΡΡΠΊΡΠΈΡ ΠΏΠΎΠ·Π²ΠΎΠ»ΡΠ΅Ρ ΠΏΠ΅ΡΠ΅ΠΌΠ΅ΡΠ°ΡΡ ΠΏΡΠ΅Π΄ΠΌΠ΅ΡΡ, ΠΊΠΎΡΠΎΡΡΠ΅ ΡΠ»ΠΈΡΠΊΠΎΠΌ ΡΡΠΆΠ΅Π»ΡΠ΅ ΠΈΠ»ΠΈ ΡΠ»ΠΈΡΠΊΠΎΠΌ Π³ΡΠΎΠΌΠΎΠ·Π΄ΠΊΠΈΠ΅, ΡΡΠΎΠ±Ρ Π»ΡΠ΄ΠΈ ΠΌΠΎΠ³Π»ΠΈ Π½Π΅ΡΡΠΈ ΠΈΡ
Π²ΡΡΡΠ½ΡΡ.
ΠΠΎΠ½Π²Π΅ΠΉΠ΅ΡΠ½ΡΠ΅ ΡΠΈΡΡΠ΅ΠΌΡ ΡΠΊΠΎΠ½ΠΎΠΌΡΡ Π²ΡΠ΅ΠΌΡ ΠΏΡΠΈ ΡΡΠ°Π½ΡΠΏΠΎΡΡΠΈΡΠΎΠ²ΠΊΠ΅ ΠΏΡΠ΅Π΄ΠΌΠ΅ΡΠΎΠ² ΠΈΠ· ΠΎΠ΄Π½ΠΎΠ³ΠΎ ΠΌΠ΅ΡΡΠ° Π² Π΄ΡΡΠ³ΠΎΠ΅. ΠΠΎΡΠΊΠΎΠ»ΡΠΊΡ ΠΎΠ½ΠΈ ΠΌΠΎΠ³ΡΡ ΡΠ°ΡΠΏΠΎΠ»Π°Π³Π°ΡΡΡΡ Π½Π° Π½Π΅ΡΠΊΠΎΠ»ΡΠΊΠΈΡ ΡΡΠΎΠ²Π½ΡΡ , ΠΎΠ½ΠΈ ΡΠΏΡΠΎΡΠ°ΡΡ ΠΏΠ΅ΡΠ΅ΠΌΠ΅ΡΠ΅Π½ΠΈΠ΅ ΠΏΡΠ΅Π΄ΠΌΠ΅ΡΠΎΠ² Π²Π²Π΅ΡΡ ΠΈ Π²Π½ΠΈΠ· ΠΏΠΎ ΡΡΠ°ΠΆΠ°ΠΌ β Π·Π°Π΄Π°ΡΠ°, ΠΊΠΎΡΠΎΡΠ°Ρ ΠΏΡΠΈ Π²ΡΠΏΠΎΠ»Π½Π΅Π½ΠΈΠΈ Π»ΡΠ΄ΡΠΌΠΈ Π²ΡΡΡΠ½ΡΡ Π²ΡΠ·ΡΠ²Π°Π΅Ρ ΡΠΈΠ·ΠΈΡΠ΅ΡΠΊΠΎΠ΅ Π½Π°ΠΏΡΡΠΆΠ΅Π½ΠΈΠ΅. ΠΠ°ΠΊΠ»ΠΎΠ½Π½ΡΠ΅ ΡΠ΅ΠΌΠ½ΠΈ ΠΌΠΎΠ³ΡΡ Π°Π²ΡΠΎΠΌΠ°ΡΠΈΡΠ΅ΡΠΊΠΈ Π²ΡΠ³ΡΡΠΆΠ°ΡΡ ΠΌΠ°ΡΠ΅ΡΠΈΠ°Π», ΡΡΡΡΠ°Π½ΡΡ Π½Π΅ΠΎΠ±Ρ ΠΎΠ΄ΠΈΠΌΠΎΡΡΡ Π² ΡΠΎΠΌ, ΡΡΠΎΠ±Ρ ΠΊΡΠΎ-ΡΠΎ Π½Π°Ρ ΠΎΠ΄ΠΈΠ»ΡΡ Π½Π° ΠΏΡΠΎΡΠΈΠ²ΠΎΠΏΠΎΠ»ΠΎΠΆΠ½ΠΎΠΌ ΠΊΠΎΠ½ΡΠ΅ Π΄Π»Ρ ΠΏΡΠΈΠ΅ΠΌΠ° Π΄Π΅ΡΠ°Π»Π΅ΠΉ.
Π’ΠΈΠΏΡ ΠΈ ΠΏΡΠΈΠΌΠ΅ΡΡ ΠΊΠΎΠ½Π²Π΅ΠΉΠ΅ΡΠ½ΡΡ ΡΠΈΡΡΠ΅ΠΌ
ΠΡ, Π²Π΅ΡΠΎΡΡΠ½ΠΎ, ΠΌΠΎΠΆΠ΅ΡΠ΅ ΠΏΡΠ΅Π΄ΡΡΠ°Π²ΠΈΡΡ ΡΠ΅Π±Π΅ Π±ΠΎΠ»ΡΡΠΎΠΉ ΡΠΊΠ»Π°Π΄, Π·Π°ΠΏΠΎΠ»Π½Π΅Π½Π½ΡΠΉ ΠΊΠΎΠ½Π²Π΅ΠΉΠ΅ΡΠ°ΠΌΠΈ, ΠΈΡΠΏΠΎΠ»ΡΠ·ΡΡΡΠΈΠΌΠΈ Π»Π΅Π½ΡΡ ΠΈ ΡΠΎΠ»ΠΈΠΊΠΈ Π΄Π»Ρ ΠΏΠ΅ΡΠ΅ΠΌΠ΅ΡΠ΅Π½ΠΈΡ ΡΡΠΈΠΊΠΎΠ² ΠΈ Π΄ΡΡΠ³ΠΎΠ³ΠΎ ΡΡΠΆΠ΅Π»ΠΎΠ³ΠΎ ΠΎΠ±ΠΎΡΡΠ΄ΠΎΠ²Π°Π½ΠΈΡ, Π½ΠΎ ΡΡΠΎ Π»ΠΈΡΡ ΠΎΠ΄ΠΈΠ½ ΠΈΠ· Π½Π΅ΡΠΊΠΎΠ»ΡΠΊΠΈΡ
ΡΠΈΠΏΠΎΠ² ΠΊΠΎΠ½Π²Π΅ΠΉΠ΅ΡΠ½ΡΡ
ΡΠΈΡΡΠ΅ΠΌ. ΠΡ ΡΠ°ΠΊΠΆΠ΅ Π½Π°ΠΉΠ΄Π΅ΡΠ΅ ΠΊΠΎΠ½Π²Π΅ΠΉΠ΅ΡΠ½ΡΠ΅ ΡΠΈΡΡΠ΅ΠΌΡ Π² Π°ΡΡΠΎΠΏΠΎΡΡΠ°Ρ
, Π³Π΄Π΅ ΠΎΠ½ΠΈ ΠΈΡΠΏΠΎΠ»ΡΠ·ΡΡΡΡΡ Π΄Π»Ρ ΠΏΠ΅ΡΠ΅Π²ΠΎΠ·ΠΊΠΈ Π±Π°Π³Π°ΠΆΠ°. ΠΡΡΠ³ΠΈΠ΅ ΠΏΡΠΈΠΌΠ΅ΡΡ Π²ΠΊΠ»ΡΡΠ°ΡΡ ΡΡΠΊΠ°Π»Π°ΡΠΎΡΡ ΠΈ Π»ΡΠΆΠ½ΡΠ΅ ΠΏΠΎΠ΄ΡΠ΅ΠΌΠ½ΠΈΠΊΠΈ.
Π ΡΡΠΈΡ
ΡΡΡΡΠΎΠΉΡΡΠ²Π°Ρ
Π΄ΠΎ ΡΠΈΡ
ΠΏΠΎΡ ΠΈΡΠΏΠΎΠ»ΡΠ·ΡΠ΅ΡΡΡ ΡΠ΅ΠΌΠ΅Π½Ρ ΠΈΠ»ΠΈ ΡΠ΅ΠΏΡ ΠΈ ΡΠΊΠΈΠ²Ρ Π΄Π»Ρ ΠΏΠ΅ΡΠ΅ΠΌΠ΅ΡΠ΅Π½ΠΈΡ ΡΡΠΆΠ΅Π»ΡΡ
ΠΏΡΠ΅Π΄ΠΌΠ΅ΡΠΎΠ² ΠΈΠ· ΠΎΠ΄Π½ΠΎΠΉ ΡΠΎΡΠΊΠΈ Π² Π΄ΡΡΠ³ΡΡ.
There are many types of conveyor systems, including:
- Belt
- Roller
- Slat/apron
- Ball transfer
- Overhead
- Pneumatic
- Bucket
- Chute
- Magnetic
- Vertical
- Wheel
- Π¨Π°Π³Π°ΡΡΠ°Ρ Π±Π°Π»ΠΊΠ°
- ΠΠΈΠ±ΡΠ°ΡΠΈΠΎΠ½Π½ΡΠΉ
- ΠΠΈΠ½Ρ/ΡΠ½Π΅ΠΊ
- Π¦Π΅ΠΏΡ
ΠΠ°ΠΆΠ΄ΡΠΉ ΡΠΈΠΏ ΠΊΠΎΠ½Π²Π΅ΠΉΠ΅ΡΠ° ΡΠ»ΡΠΆΠΈΡ ΠΎΠΏΡΠ΅Π΄Π΅Π»Π΅Π½Π½ΠΎΠΉ ΡΠ΅Π»ΠΈ. ΠΠ°ΠΏΡΠΈΠΌΠ΅Ρ, ΠΏΠ»Π°ΡΡΠΈΠ½ΡΠ°ΡΡΠΉ ΠΊΠΎΠ½Π²Π΅ΠΉΠ΅Ρ, Π²ΡΠΏΠΎΠ»Π½Π΅Π½Π½ΡΠΉ ΠΈΠ· ΠΏΠ»Π°Π½ΠΎΠΊ ΠΈΠ»ΠΈ ΠΏΠ»Π°ΡΡΠΈΠ½ Π²ΠΌΠ΅ΡΡΠΎ Π»Π΅Π½ΡΡ, ΠΏΡΠ΅Π΄Π½Π°Π·Π½Π°ΡΠ΅Π½ Π΄Π»Ρ ΠΏΠ΅ΡΠ΅ΠΌΠ΅ΡΠ΅Π½ΠΈΡ ΡΡΠΆΠ΅Π»ΡΡ ΠΌΠ°ΡΠ΅ΡΠΈΠ°Π»ΠΎΠ². ΠΠ°ΡΠ΅ΡΠΈΠ°Π»Ρ, ΡΡΠ°Π½ΡΠΏΠΎΡΡΠΈΡΡΠ΅ΠΌΡΠ΅ ΠΏΠ»Π°ΡΡΠΈΠ½ΡΠ°ΡΠΎΠΉ ββΡΠΈΡΡΠ΅ΠΌΠΎΠΉ, ΠΎΠ±ΡΡΠ½ΠΎ ΡΠ»ΠΈΡΠΊΠΎΠΌ Π²Π΅Π»ΠΈΠΊΠΈ ΠΈΠ»ΠΈ ΡΡΠΆΠ΅Π»Ρ Π΄Π»Ρ ΡΡΠ°Π΄ΠΈΡΠΈΠΎΠ½Π½ΠΎΠ³ΠΎ Π»Π΅Π½ΡΠΎΡΠ½ΠΎΠ³ΠΎ Π΄Π²ΠΈΠΆΠ΅Π½ΠΈΡ.
ΠΡΠΊΠ°Π»Π°ΡΠΎΡ ΡΠ²Π»ΡΠ΅ΡΡΡ ΠΏΡΠΈΠΌΠ΅ΡΠΎΠΌ ΠΊΠΎΠ½Π²Π΅ΠΉΠ΅ΡΠ½ΠΎΠΉ ΡΠΈΡΡΠ΅ΠΌΡ Ρ ΡΠ΅ΠΏΠ½ΡΠΌ ΠΏΡΠΈΠ²ΠΎΠ΄ΠΎΠΌ. ΠΠΌΠ΅ΡΡΠΎ ΡΠΈΡΡΠ΅ΠΌΡ ΡΠΊΠΈΠ²ΠΎΠ², ΠΊΠΎΡΠΎΡΠ°Ρ ΡΡΠ½Π΅Ρ ΠΏΡΠ΅Π΄ΠΌΠ΅ΡΡ, ΡΠ΅ΠΏΠ½ΠΎΠΉ ΠΊΠΎΠ½Π²Π΅ΠΉΠ΅Ρ ΠΈΡΠΏΠΎΠ»ΡΠ·ΡΠ΅Ρ ΡΠΈΡΡΠ΅ΠΌΡ Π±ΡΠΊΡΠΈΡΠΎΠ²ΠΊΠΈ, ΠΊΠΎΡΠΎΡΠ°Ρ ΡΡΠ½Π΅Ρ ΡΡΡΠΏΠ΅Π½ΡΠΊΠΈ Π²Π²Π΅ΡΡ
ΠΈΠ»ΠΈ Π²Π½ΠΈΠ·.
ΠΠΎΠ΄ΡΠ΅ΠΌΠ½ΠΈΠΊΠΈ ΡΠ²Π»ΡΡΡΡΡ ΠΏΡΠΈΠΌΠ΅ΡΠΎΠΌ ΠΏΠΎΠ΄Π²Π΅ΡΠ½ΠΎΠ³ΠΎ ΠΊΠΎΠ½Π²Π΅ΠΉΠ΅ΡΠ°. Π ΡΡΠΈΡ ΡΡΡΡΠΎΠΉΡΡΠ²Π°Ρ ΠΈΡΠΏΠΎΠ»ΡΠ·ΡΠ΅ΡΡΡ ΡΠ»Π΅ΠΊΡΡΠΈΡΠ΅ΡΠΊΠ°Ρ Π³ΡΡΠ΅Π½ΠΈΡΠ°, ΠΊΠΎΡΠΎΡΠ°Ρ Π½Π°ΠΊΠ»ΠΎΠ½ΡΠ΅Ρ ΡΡΡΠ»ΡΡ Π²Π²Π΅ΡΡ ΠΈΠ»ΠΈ Π²Π½ΠΈΠ· ΠΏΠΎ ΡΠΊΠ»ΠΎΠ½Ρ Π³ΠΎΡΡ. ΠΠ°ΠΊ ΠΈ Π² ΡΡΠΊΠ°Π»Π°ΡΠΎΡΠ΅, Π² ΡΡΠΈΡ ΡΠΈΡΡΠ΅ΠΌΠ°Ρ ΠΈΡΠΏΠΎΠ»ΡΠ·ΡΠ΅ΡΡΡ Π±ΡΠΊΡΠΈΡΠΎΠ²ΠΎΡΠ½Π°Ρ ΡΠΈΡΡΠ΅ΠΌΠ° Ρ ΡΠ΅ΠΏΠ½ΡΠΌ ΠΏΡΠΈΠ²ΠΎΠ΄ΠΎΠΌ.
ΠΡΠ½ΠΎΠ²Π½ΡΠ΅ ΡΠ°ΡΡΠΈ ΠΊΠΎΠ½Π²Π΅ΠΉΠ΅ΡΠ½ΠΎΠΉ ΡΠΈΡΡΠ΅ΠΌΡ
ΠΠΎΠ½Π²Π΅ΠΉΠ΅ΡΠ½Π°Ρ ΡΠΈΡΡΠ΅ΠΌΠ° ΡΠΎΡΡΠΎΠΈΡ ΠΈΠ· ΡΡΠ΅Ρ ΠΎΡΠ½ΠΎΠ²Π½ΡΡ ΡΠ°ΡΡΠ΅ΠΉ: ΠΎΠΏΠΎΡΡ Π»Π΅Π½ΡΡ, ΡΠΊΠΈΠ²Π° ΠΈ ΠΏΡΠΈΠ²ΠΎΠ΄Π½ΠΎΠ³ΠΎ ΡΠ·Π»Π°. ΠΠ°ΠΆΠ΄ΡΠΉ ΠΊΠΎΠΌΠΏΠΎΠ½Π΅Π½Ρ ΠΈΠ³ΡΠ°Π΅Ρ Π²Π°ΠΆΠ½ΡΡ ΡΠΎΠ»Ρ Π² ΡΠ°Π±ΠΎΡΠ΅ ΠΊΠΎΠ½Π²Π΅ΠΉΠ΅ΡΠ½ΠΎΠΉ ΡΡΡΠ°Π½ΠΎΠ²ΠΊΠΈ. Π₯ΠΎΡΡ Π²ΡΠ΅ ΠΊΠΎΠ½Π²Π΅ΠΉΠ΅ΡΠ½ΡΠ΅ ΡΠΈΡΡΠ΅ΠΌΡ ΡΠΎΠ΄Π΅ΡΠΆΠ°Ρ ΡΡΠΈ Π΄Π΅ΡΠ°Π»ΠΈ, ΠΊΠΎΠ½ΡΡΡΡΠΊΡΠΈΠΈ ΡΠ°Π·Π»ΠΈΡΠ°ΡΡΡΡ ΠΊΠΎΠ½ΡΡΡΡΠΊΡΠΈΠΎΠ½Π½ΡΠΌΠΈ ΠΌΠ°ΡΠ΅ΡΠΈΠ°Π»Π°ΠΌΠΈ ΠΈ ΡΠ°ΡΠΏΠΎΠ»ΠΎΠΆΠ΅Π½ΠΈΠ΅ΠΌ ΠΊΠ°ΠΆΠ΄ΠΎΠ³ΠΎ ΠΊΠΎΠΌΠΏΠΎΠ½Π΅Π½ΡΠ°.
ΠΠΏΠΎΡΠ° ΡΠ΅ΠΌΠ½Ρ β ΡΡΠΎ ΠΊΠΎΠΌΠΏΠΎΠ½Π΅Π½Ρ, ΠΎΠ±Π΅ΡΠΏΠ΅ΡΠΈΠ²Π°ΡΡΠΈΠΉ ΠΏΠ»Π°Π²Π½ΠΎΠ΅ Π΄Π²ΠΈΠΆΠ΅Π½ΠΈΠ΅ ΡΠ΅ΠΌΠ½Ρ. ΠΡΠ»ΠΈ ΠΎΠΏΠΎΡΠ½ΡΠΉ Π±Π»ΠΎΠΊ Π½Π΅ ΡΠ²Π»ΡΠ΅ΡΡΡ ΠΏΡΠΎΡΠ½ΡΠΌ, Π»Π΅Π½ΡΠ° ΠΏΡΠΎΠ²ΠΈΡΠ°Π΅Ρ, ΠΊΠΎΠ³Π΄Π° ΡΠ°Π±ΠΎΡΠΈΠ΅ ΠΊΠ»Π°Π΄ΡΡ ΡΠ²Π΅ΡΡ Ρ ΡΡΠΆΠ΅Π»ΡΠΉ ΠΏΡΠ΅Π΄ΠΌΠ΅Ρ, ΠΈ ΠΏΡΠΎΠ²ΠΈΡΠ°Π½ΠΈΠ΅ ΠΏΡΠΈΠ²ΠΎΠ΄ΠΈΡ ΠΊ ΡΠΎΠΌΡ, ΡΡΠΎ Π»Π΅Π½ΡΠ° Π½Π΅ Π΄Π²ΠΈΠΆΠ΅ΡΡΡ ΠΏΠ»Π°Π²Π½ΠΎ ΠΈΠ»ΠΈ Π±ΡΡΡΡΠΎ, ΠΊΠ°ΠΊ ΡΠ»Π΅Π΄ΡΠ΅Ρ. ΠΡΠΏΠΎΠ»ΡΠ·ΠΎΠ²Π°Π½ΠΈΠ΅ ΠΏΡΠΎΡΠ½ΠΎΠ³ΠΎ ΠΎΠΏΠΎΡΠ½ΠΎΠ³ΠΎ ΡΠ·Π»Π° ΠΎΠ±Π΅ΡΠΏΠ΅ΡΠΈΠ²Π°Π΅Ρ Π½Π°ΡΡΠΆΠ΅Π½ΠΈΠ΅ ΡΠ΅ΠΌΠ½Ρ ΠΈ Π΅Π³ΠΎ ΡΡΡΠ΅ΠΊΡΠΈΠ²Π½ΡΡ ΡΠ°Π±ΠΎΡΡ.
Π‘ΠΈΡΡΠ΅ΠΌΠ° ΡΠΊΠΈΠ²ΠΎΠ² β ΡΡΠΎ Π²Π½Π΅ΡΠ½ΠΈΠΉ ΠΊΠΎΠΌΠΏΠΎΠ½Π΅Π½Ρ, ΠΈΡΠΏΠΎΠ»ΡΠ·ΡΠ΅ΠΌΡΠΉ Π΄Π»Ρ ΡΠΏΡΠ°Π²Π»Π΅Π½ΠΈΡ Π΄Π²ΠΈΠΆΠ΅Π½ΠΈΠ΅ΠΌ ΡΠ΅ΠΌΠ½Ρ.
ΠΠ°ΠΆΠ΄ΡΠΉ Π°Π³ΡΠ΅Π³Π°Ρ ΠΈΠΌΠ΅Π΅Ρ Π½Π΅ ΠΌΠ΅Π½Π΅Π΅ Π΄Π²ΡΡ
ΡΠΊΠΈΠ²ΠΎΠ², ΠΎΠ΄ΠΈΠ½ ΡΠ°Π±ΠΎΡΠ°ΡΡΠΈΠΉ ΠΏΠΎΠ΄ Π½Π°ΠΏΡΡΠΆΠ΅Π½ΠΈΠ΅ΠΌ, Π° Π΄ΡΡΠ³ΠΎΠΉ Ρ
ΠΎΠ»ΠΎΡΡΠΎΠΉ. ΠΠΎΠ»Π΅Π΅ ΡΠ»ΠΎΠΆΠ½ΡΠ΅ ΠΊΠΎΠ½Π²Π΅ΠΉΠ΅ΡΠ½ΡΠ΅ ΡΠΈΡΡΠ΅ΠΌΡ ΠΌΠΎΠ³ΡΡ ΠΈΠΌΠ΅ΡΡ Π΄ΠΎΠΏΠΎΠ»Π½ΠΈΡΠ΅Π»ΡΠ½ΡΠ΅ ΡΠΎΡΠΎΡΡ ΠΏΠΎ Π²ΡΠ΅ΠΉ ΡΠ°ΠΌΠ΅.
ΠΡΠΈΠ²ΠΎΠ΄ ΠΏΠΎΠ·Π²ΠΎΠ»ΡΠ΅Ρ ΡΠΈΡΡΠ΅ΠΌΠ΅ Π΄Π²ΠΈΠ³Π°ΡΡΡΡ. ΠΠ»ΠΎΠΊ ΡΠΎΠ΄Π΅ΡΠΆΠΈΡ ΠΊΠΎΠ½ΡΡΠΏΠΎΠ΄ΡΠΈΠΏΠ½ΠΈΠΊ, ΠΊΠΎΡΠΎΡΡΠΉ ΠΎΠ±Π΅ΡΠΏΠ΅ΡΠΈΠ²Π°Π΅Ρ ΡΡΡΠ΅ΠΊΡΠΈΠ²Π½ΠΎΠ΅ ΠΏΠ΅ΡΠ΅ΠΌΠ΅ΡΠ΅Π½ΠΈΠ΅ Π΄Π΅ΡΠ°Π»Π΅ΠΉ. ΠΡΠΎΡ Π±Π»ΠΎΠΊ ΡΠ°ΠΊΠΆΠ΅ ΠΏΠΎΠ·Π²ΠΎΠ»ΡΠ΅Ρ Π»Π΅Π½ΡΠ΅ Π΄Π²ΠΈΠ³Π°ΡΡΡΡ Π² ΠΎΠ±ΡΠ°ΡΠ½ΠΎΠΌ Π½Π°ΠΏΡΠ°Π²Π»Π΅Π½ΠΈΠΈ ΠΈ ΡΠΏΡΠ°Π²Π»ΡΡΡ ΠΏΠΎΠ²ΡΠΎΡΠ½ΡΠΌΠΈ ΠΊΠΎΡΡΠ΅ΠΊΡΠΈΡΠΎΠ²ΠΊΠ°ΠΌΠΈ Π½Π°ΠΏΡΠ°Π²Π»Π΅Π½ΠΈΡ Π΄Π»Ρ Π½Π΅ΠΊΠΎΡΠΎΡΡΡ ΡΠΈΡΡΠ΅ΠΌ. ΠΠ΅ΠΊΠΎΡΠΎΡΡΠ΅ ΠΊΠΎΠ½Π²Π΅ΠΉΠ΅ΡΠ½ΡΠ΅ ΡΠΈΡΡΠ΅ΠΌΡ ΡΠΏΡΠ°Π²Π»ΡΡΡΡΡ Π²ΡΡΡΠ½ΡΡ. Π ΡΡΠΈΡ ΡΠΈΡΡΠ΅ΠΌΠ°Ρ ΠΏΠΎ-ΠΏΡΠ΅ΠΆΠ½Π΅ΠΌΡ ΠΈΡΠΏΠΎΠ»ΡΠ·ΡΠ΅ΡΡΡ ΠΏΡΠΈΠ²ΠΎΠ΄; ΠΎΠ΄Π½Π°ΠΊΠΎ ΠΎΠ½ Π½Π΅ ΠΌΠΎΡΠΎΡΠΈΠ·ΠΎΠ²Π°Π½.
ΠΠ°ΠΊ ΠΏΡΠ°Π²ΠΈΠ»ΡΠ½ΠΎ Π²ΡΠ±ΡΠ°ΡΡ ΠΊΠΎΠ½Π²Π΅ΠΉΠ΅ΡΠ½ΡΡ ΡΠΈΡΡΠ΅ΠΌΡ
ΠΠΎΠ½Π²Π΅ΠΉΠ΅Ρ Π±ΠΎΠ»Π΅Π΅ ΠΈΠ»ΠΈ ΠΌΠ΅Π½Π΅Π΅ Π΄Π΅ΠΉΡΡΠ²ΡΠ΅Ρ ΠΊΠ°ΠΊ ΡΠ΅Π½ΡΡΠ°Π»ΡΠ½Π°Ρ Π½Π΅ΡΠ²Π½Π°Ρ ΡΠΈΡΡΠ΅ΠΌΠ° Π΄Π»Ρ ΠΎΠΏΠ΅ΡΠ°ΡΠΈΠΉ ΠΏΠΎ ΠΏΡΠΈΠ΅ΠΌΡ, ΠΎΠ±ΡΠ°Π±ΠΎΡΠΊΠ΅, Ρ ΡΠ°Π½Π΅Π½ΠΈΡ, ΡΠ°ΡΠΏΡΠ΅Π΄Π΅Π»Π΅Π½ΠΈΡ, ΠΏΡΠΎΠΈΠ·Π²ΠΎΠ΄ΡΡΠ²Ρ ΠΈΠ»ΠΈ ΠΎΡΠ³ΡΡΠ·ΠΊΠ΅ ΠΏΡΠΎΠ΄ΡΠΊΡΠΈΠΈ. ΠΡΠ±ΠΎΡ ΠΏΡΠ°Π²ΠΈΠ»ΡΠ½ΠΎΠΉ ΠΊΠΎΠ½Π²Π΅ΠΉΠ΅ΡΠ½ΠΎΠΉ ΡΠΈΡΡΠ΅ΠΌΡ ΠΌΠΎΠΆΠ΅Ρ Π±ΡΡΡ ΡΠ»ΠΎΠΆΠ½ΠΎΠΉ Π·Π°Π΄Π°ΡΠ΅ΠΉ Π΄Π»Ρ ΠΌΠ΅Π½Π΅Π΄ΠΆΠ΅ΡΠΎΠ² ΡΠΊΠ»Π°Π΄Π° ΠΈ Π΄ΡΡΠ³ΠΈΡ Π·Π°ΠΈΠ½ΡΠ΅ΡΠ΅ΡΠΎΠ²Π°Π½Π½ΡΡ ΡΡΠΎΡΠΎΠ½ ΠΈΠ·-Π·Π° Π½Π΅ΡΠΊΠΎΠ»ΡΠΊΠΈΡ ΡΠΈΠΏΠΎΠ² ΠΊΠΎΠ½Π²Π΅ΠΉΠ΅ΡΠΎΠ² ΠΈ ΡΠΎΡΠ΅Π½ Π²ΠΎΠ·ΠΌΠΎΠΆΠ½ΡΡ ΠΊΠΎΠ½ΡΠΈΠ³ΡΡΠ°ΡΠΈΠΉ Π½Π° Π²ΡΠ±ΠΎΡ.
ΠΡΠΎΠΌΠ΅ ΡΠΎΠ³ΠΎ, Π΅ΡΡΡ Π½Π΅ΡΠΊΠΎΠ»ΡΠΊΠΎ ΡΠ°ΠΊΡΠΎΡΠΎΠ², ΠΊΠΎΡΠΎΡΡΠ΅ Π½Π΅ΠΎΠ±Ρ
ΠΎΠ΄ΠΈΠΌΠΎ ΡΡΠΈΡΡΠ²Π°ΡΡ ΠΏΡΠΈ Π²ΡΠ±ΠΎΡΠ΅ ΠΈ ΠΏΠΎΠΊΡΠΏΠΊΠ΅ ΠΈΠ΄Π΅Π°Π»ΡΠ½ΠΎΠΉ ΠΊΠΎΠ½Π²Π΅ΠΉΠ΅ΡΠ½ΠΎΠΉ ΡΠΈΡΡΠ΅ΠΌΡ Π΄Π»Ρ Π²Π°ΡΠ΅Π³ΠΎ ΡΠΊΠ»Π°Π΄Π° ΠΈΠ»ΠΈ ΡΠ°ΡΠΏΡΠ΅Π΄Π΅Π»ΠΈΡΠ΅Π»ΡΠ½ΠΎΠ³ΠΎ ΠΏΡΠ΅Π΄ΠΏΡΠΈΡΡΠΈΡ.
ΠΡ Π΄ΠΎΠ»ΠΆΠ½Ρ ΠΎΠ΄Π½ΠΎΠ²ΡΠ΅ΠΌΠ΅Π½Π½ΠΎ ΡΡΠΈΡΡΠ²Π°ΡΡ ΡΡΠ΅Π±ΠΎΠ²Π°Π½ΠΈΡ ΠΊΠ°ΠΊ ΠΊ ΠΏΡΠΎΠ΄ΡΠΊΡΡ, ΡΠ°ΠΊ ΠΈ ΠΊ ΠΏΡΠΎΡΠ΅ΡΡΡ.
ΠΠΎ-ΠΏΠ΅ΡΠ²ΡΡ , ΠΈΠ΄Π΅Π°Π»ΡΠ½Π°Ρ ΠΊΠΎΠ½Π²Π΅ΠΉΠ΅ΡΠ½Π°Ρ ΡΠΈΡΡΠ΅ΠΌΠ° Π΄ΠΎΠ»ΠΆΠ½Π° Π±ΡΡΡ:
- ΠΠΊΡΠΏΠ»ΡΠ°ΡΠ°ΡΠΈΠΎΠ½Π½ΠΎ Π±Π΅Π·ΠΎΠΏΠ°ΡΠ½ΠΎΠΉ
- ΠΠ½Π΅ΡΠ³ΠΎΡΡΡΠ΅ΠΊΡΠΈΠ²Π½ΠΎΠΉ
- ΠΠ°Π΄Π΅ΠΆΠ½ΠΎΠΉ (Π΄Π΅ΡΠ°Π»ΠΈ ΠΈ ΠΊΠΎΠΌΠΏΠΎΠ½Π΅Π½ΡΡ ΡΠ°ΡΡΡΠΈΡΠ°Π½Ρ Π½Π° Π΄Π»ΠΈΡΠ΅Π»ΡΠ½ΡΠΉ ΡΡΠΎΠΊ ΡΠ»ΡΠΆΠ±Ρ)
- ΠΠ΄Π°ΠΏΡΠΈΡΡΠ΅ΠΌΠΎΠΉ ΠΊ ΠΈΠ·ΠΌΠ΅Π½ΡΡΡΠΈΠΌΡΡ ΠΏΠΎΡΡΠ΅Π±Π½ΠΎΡΡΡΠΌ ΠΎΠ±ΡΠ°Ρ ΡΡΠΎΠΈΠΌΠΎΡΡΡ Π²Π»Π°Π΄Π΅Π½ΠΈΡ)
Π£ΡΡΠ°Π½ΠΎΠ²ΠΊΠ° Π½Π΅ΠΏΡΠ°Π²ΠΈΠ»ΡΠ½ΠΎΠΉ ΠΊΠΎΠ½Π²Π΅ΠΉΠ΅ΡΠ½ΠΎΠΉ ΡΠΈΡΡΠ΅ΠΌΡ Π±ΡΡΡΡΠΎ ΡΠ½ΠΈΠ·ΠΈΡ ΡΡΡΠ΅ΠΊΡΠΈΠ²Π½ΠΎΡΡΡ ΡΠ°Π±ΠΎΡΡ ΡΠΊΠ»Π°Π΄Π°, ΡΡΠΎ ΠΏΡΠΈΠ²Π΅Π΄Π΅Ρ ΠΊ ΡΠ²Π΅Π»ΠΈΡΠ΅Π½ΠΈΡ Π·Π°ΡΡΠ°Ρ ΠΈ ΡΠ½ΠΈΠΆΠ΅Π½ΠΈΡ ΡΠ΄ΠΎΠ²Π»Π΅ΡΠ²ΠΎΡΠ΅Π½Π½ΠΎΡΡΠΈ ΠΊΠ»ΠΈΠ΅Π½ΡΠΎΠ², ΡΡΠΎ Π² ΠΊΠΎΠ½Π΅ΡΠ½ΠΎΠΌ ΠΈΡΠΎΠ³Π΅ Π»ΠΈΡΠΈΡ Π±ΠΈΠ·Π½Π΅Ρ Π΅Π³ΠΎ ΠΊΠΎΠ½ΠΊΡΡΠ΅Π½ΡΠ½ΡΡ ΠΏΡΠ΅ΠΈΠΌΡΡΠ΅ΡΡΠ².
ΠΠ°Π²Π°ΠΉΡΠ΅ Π±Π΅Π· Π»ΠΈΡΠ½ΠΈΡ ΡΠ»ΠΎΠ² ΡΠ°ΡΡΠΌΠΎΡΡΠΈΠΌ ΡΠ°ΠΊΡΠΎΡΡ, ΠΊΠΎΡΠΎΡΡΠ΅ Π½Π΅ΠΎΠ±Ρ ΠΎΠ΄ΠΈΠΌΠΎ ΡΡΠΈΡΡΠ²Π°ΡΡ ΠΏΡΠΈ ΠΎΡΠ΅Π½ΠΊΠ΅ ΠΈ Π²ΡΠ±ΠΎΡΠ΅ ΠΏΠΎΠ΄Ρ ΠΎΠ΄ΡΡΠ΅ΠΉ ΠΊΠΎΠ½Π²Π΅ΠΉΠ΅ΡΠ½ΠΎΠΉ ΡΠΈΡΡΠ΅ΠΌΡ Π΄Π»Ρ Π²Π°ΡΠ΅ΠΉ ΠΎΠΏΠ΅ΡΠ°ΡΠΈΠΈ.
Π’ΡΠ΅Π±ΠΎΠ²Π°Π½ΠΈΡ ΠΊ ΠΏΡΠΎΠ΄ΡΠΊΡΡ
ΠΠΎ ΡΡΡΠΈ, ΠΊΠΎΠ½Π²Π΅ΠΉΠ΅ΡΠ½Π°Ρ ΡΠΈΡΡΠ΅ΠΌΠ° ΠΈΡΠΏΠΎΠ»ΡΠ·ΡΠ΅ΡΡΡ Π΄Π»Ρ ΠΏΠ΅ΡΠ΅ΠΌΠ΅ΡΠ΅Π½ΠΈΡ ΡΠΎΠ²Π°ΡΠΎΠ² ΠΌΠ΅ΠΆΠ΄Ρ ΡΡΠ½ΠΊΡΠΈΠΎΠ½Π°Π»ΡΠ½ΡΠΌΠΈ Π·ΠΎΠ½Π°ΠΌΠΈ ΡΠ°ΡΠΏΡΠ΅Π΄Π΅Π»ΠΈΡΠ΅Π»ΡΠ½ΠΎΠ³ΠΎ ΠΏΡΠ΅Π΄ΠΏΡΠΈΡΡΠΈΡ. Π’Π°ΠΊΠΈΠΌ ΠΎΠ±ΡΠ°Π·ΠΎΠΌ, ΡΠΈΠΏ ΠΏΠ΅ΡΠ΅ΠΌΠ΅ΡΠ°Π΅ΠΌΡΡ
ΠΏΡΠ΅Π΄ΠΌΠ΅ΡΠΎΠ² Π±ΡΠ΄Π΅Ρ ΠΎΠΏΡΠ΅Π΄Π΅Π»ΡΡΡ ΠΊΠΎΠ½ΡΡΡΡΠΊΡΠΈΡ, ΡΠ°Π·ΠΌΠ΅ΡΡ ΠΈ ΡΠΈΠΏ ΡΡΡΠ°Π½Π°Π²Π»ΠΈΠ²Π°Π΅ΠΌΠΎΠΉ ΠΊΠΎΠ½Π²Π΅ΠΉΠ΅ΡΠ½ΠΎΠΉ ΡΠΈΡΡΠ΅ΠΌΡ.
ΠΡΠΈ ΠΏΠΎΠΈΡΠΊΠ΅ Π»ΡΡΡΠ΅ΠΉ ΠΊΠΎΠ½Π²Π΅ΠΉΠ΅ΡΠ½ΠΎΠΉ ΡΠΈΡΡΠ΅ΠΌΡ Π΄Π»Ρ Π²Π°ΡΠ΅Π³ΠΎ ΠΏΡΠ΅Π΄ΠΏΡΠΈΡΡΠΈΡ ΠΎΡΠ²Π΅ΡΡ Π½Π° ΡΠ»Π΅Π΄ΡΡΡΠΈΠ΅ Π²ΠΎΠΏΡΠΎΡΡ ΠΏΠΎΠΌΠΎΠ³ΡΡ Π²Π°ΠΌ ΠΎΠΏΡΠ΅Π΄Π΅Π»ΠΈΡΡ ΡΡΠ΅Π±ΠΎΠ²Π°Π½ΠΈΡ ΠΊ ΠΊΠΎΠ½ΡΡΡΡΠΊΡΠΈΠΈ ΠΈ ΠΊΠΎΠ½ΡΠΈΠ³ΡΡΠ°ΡΠΈΠΈ, Π° ΡΠ°ΠΊΠΆΠ΅ ΡΠ°ΡΡΡΠΈΡΠ°ΡΡ ΡΠ°ΠΊΠΈΠ΅ ΠΏΠ°ΡΠ°ΠΌΠ΅ΡΡΡ, ΠΊΠ°ΠΊ ΠΌΠΎΡΠ½ΠΎΡΡΡ ΠΈ Π½Π°ΡΡΠΆΠ΅Π½ΠΈΠ΅ Π»Π΅Π½ΡΡ Π΄Π»Ρ ΠΎΡΠ΄Π΅Π»ΡΠ½ΡΡ ΠΊΠΎΠ½Π²Π΅ΠΉΠ΅ΡΠΎΠ²:
- ΠΠ°ΠΊΠΎΠΉ ΡΠΈΠΏ ΠΏΡΠΎΠ΄ΡΠΊΡΠ° ΡΡΠ°Π½ΡΠΏΠΎΡΡΠΈΡΡΠ΅ΡΡΡ?
- ΠΠ°ΠΊΠΎΠ² ΡΡΠ΅Π΄Π½ΠΈΠΉ Π²Π΅Ρ ΠΏΡΠΎΠ΄ΡΠΊΡΠ° Π½Π° ΡΡΡ?
- ΠΠ°ΠΊΠΎΠ² ΠΌΠ°ΠΊΡΠΈΠΌΠ°Π»ΡΠ½ΡΠΉ Π²Π΅Ρ ΠΏΡΠΎΠ΄ΡΠΊΡΠΎΠ²?
- ΠΠ°ΠΊΠΎΠ²Ρ ΠΌΠΈΠ½ΠΈΠΌΠ°Π»ΡΠ½ΡΠ΅, ΠΌΠ°ΠΊΡΠΈΠΌΠ°Π»ΡΠ½ΡΠ΅ ΠΈ ΡΡΠ΅Π΄Π½ΠΈΠ΅ ΡΠ°Π·ΠΌΠ΅ΡΡ ΠΏΡΠΎΠ΄ΡΠΊΡΠ° (Ρ. Π΅. Π΄Π»ΠΈΠ½Π°, ΡΠΈΡΠΈΠ½Π° ΠΈ Π²ΡΡΠΎΡΠ°)?
- ΠΠ°ΠΊΠΎΠ²Ρ ΡΠ°Π·ΠΌΠ΅ΡΠ½ΡΠ΅ Π΄Π°Π½Π½ΡΠ΅ Π΄Π»Ρ ΠΊΠ°ΠΆΠ΄ΠΎΠ³ΠΎ ΠΏΡΠΎΠ΄ΡΠΊΡΠ°?
- ΠΠ°ΠΊ ΡΡΠ°Π½ΡΠΏΠΎΡΡΠΈΡΡΡΡΡΡ ΠΏΡΠΎΠ΄ΡΠΊΡΡ ΠΈ Π² ΠΊΠ°ΠΊΠΎΠΉ ΠΎΡΠΈΠ΅Π½ΡΠ°ΡΠΈΠΈ?
Π’Π°ΠΊΠΈΠ΅ ΡΠ°ΠΊΡΠΎΡΡ, ΠΊΠ°ΠΊ Π²Π΅Ρ ΠΏΡΠΎΠ΄ΡΠΊΡΠ°, ΡΠ°Π·ΠΌΠ΅ΡΡ ΠΈ Ρ ΡΡΠΏΠΊΠΎΡΡΡ, ΡΠΈΠ»ΡΠ½ΠΎ ΠΏΠΎΠ²Π»ΠΈΡΡΡ Π½Π° Π²Π°Ρ ΠΏΡΠΎΡΠ΅ΡΡ ΠΏΡΠΈΠ½ΡΡΠΈΡ ΡΠ΅ΡΠ΅Π½ΠΈΡ. Π Π°Π·ΠΌΠ΅ΡΡ ΠΈΠ·Π΄Π΅Π»ΠΈΠΉ Π½Π° Π²Π°ΡΠ΅ΠΌ ΠΏΡΠ΅Π΄ΠΏΡΠΈΡΡΠΈΠΈ Π±ΡΠ΄ΡΡ ΠΎΠΏΡΠ΅Π΄Π΅Π»ΡΡΡ ΡΠΈΡΠΈΠ½Ρ ΠΊΠΎΠ½Π²Π΅ΠΉΠ΅ΡΠ°, ΡΠ΅Ρ Π½ΠΈΡΠ΅ΡΠΊΠΈΠ΅ Ρ Π°ΡΠ°ΠΊΡΠ΅ΡΠΈΡΡΠΈΠΊΠΈ Π½Π°ΠΏΡΠ°Π²Π»ΡΡΡΠΈΡ ΠΈ ΡΠ΅Π½ΡΡΡ ΡΠΎΠ»ΠΈΠΊΠΎΠ², Π° Π²Π΅Ρ ΠΏΡΠΎΠ΄ΡΠΊΡΠΎΠ² ΠΎΠΏΡΠ΅Π΄Π΅Π»ΡΠ΅Ρ ΠΊΠ°Π»ΠΈΠ±Ρ ΡΠΎΠ»ΠΈΠΊΠΎΠ², Π΄ΠΈΠ°ΠΌΠ΅ΡΡ ΡΠΎΠ»ΠΈΠΊΠΎΠ² ΠΈ ΡΡΠ΅Π±ΠΎΠ²Π°Π½ΠΈΡ ΠΊ ΡΠ°Π·ΠΌΠ΅ΡΠ°ΠΌ Π΄Π²ΠΈΠ³Π°ΡΠ΅Π»Ρ.
Π’ΡΠ΅Π±ΠΎΠ²Π°Π½ΠΈΡ ΠΊ ΠΏΡΠΎΡΠ΅ΡΡΡ
Π’ΡΠ΅Π±ΠΎΠ²Π°Π½ΠΈΡ ΠΊ ΠΏΡΠΎΡΠ΅ΡΡΡ ΠΎΡ
Π²Π°ΡΡΠ²Π°ΡΡ ΡΠ°ΠΊΡΠΎΡΡ, ΠΎΠΏΡΠ΅Π΄Π΅Π»ΡΡΡΠΈΠ΅, ΠΊΠ°ΠΊ Π΄ΠΎΠ»ΠΆΠ΅Π½ Π΄Π²ΠΈΠ³Π°ΡΡΡΡ ΠΊΠΎΠ½Π²Π΅ΠΉΠ΅Ρ, ΠΈ ΡΠ½ΠΈΠΊΠ°Π»ΡΠ½ΡΠ΅ ΡΡΠ»ΠΎΠ²ΠΈΡ ΡΠ°Π±ΠΎΡΠ΅ΠΉ ΡΡΠ΅Π΄Ρ.
ΠΡΠΈ ΡΠΎΠΎΠ±ΡΠ°ΠΆΠ΅Π½ΠΈΡ Π²ΠΊΠ»ΡΡΠ°ΡΡ Π² ΡΠ΅Π±Ρ:
- Π Π°ΡΡΡΠΎΡΠ½ΠΈΠ΅, ΠΊΠΎΡΠΎΡΠΎΠ΅ ΡΠ»Π΅ΠΌΠ΅Π½ΡΡ Π΄ΠΎΠ»ΠΆΠ½Ρ ΠΏΠ΅ΡΠ΅ΠΌΠ΅ΡΠ°ΡΡ ΠΌΠ΅ΠΆΠ΄Ρ ΡΡΠ½ΠΊΡΠΈΠΎΠ½Π°Π»ΡΠ½ΡΠΌΠΈ Π·ΠΎΠ½Π°ΠΌΠΈ
- ΠΡΡΡ, ΠΏΠΎ ΠΊΠΎΡΠΎΡΠΎΠΌΡ ΠΎΠ½ΠΈ ΠΏΠ΅ΡΠ΅ΠΌΠ΅ΡΠ°ΡΡΡΡ β Π΅ΡΡΡ Π»ΠΈ ΠΎΡΡΠ°Π½ΠΎΠ²ΠΊΠΈ, ΠΏΠ΅ΡΠ΅ΠΏΠ°Π΄Ρ Π²ΡΡΠΎΡ, ΠΊΡΠΈΠ²ΡΠ΅ ΠΈΠ»ΠΈ ΠΎΡΠΊΠ»ΠΎΠ½Π΅Π½ΠΈΡ?
- ΠΡΠΈΠ΅Π½ΡΠ°ΡΠΈΡ ΡΠΎΠ²Π°ΡΠ° β Π΄ΠΎΠ»ΠΆΠ½Ρ Π»ΠΈ ΡΠΎΠ²Π°ΡΡ ΡΠ°ΡΠΏΠΎΠ»Π°Π³Π°ΡΡΡΡ ΠΎΠΏΡΠ΅Π΄Π΅Π»Π΅Π½Π½ΡΠΌ ΠΎΠ±ΡΠ°Π·ΠΎΠΌ (Π΄Π»Ρ ΡΠ΄ΠΎΠ±ΡΡΠ²Π° ΡΠΊΠ°Π½ΠΈΡΠΎΠ²Π°Π½ΠΈΡ ΡΡΡΠΈΡ -ΠΊΠΎΠ΄ΠΎΠ², ΠΏΠ΅ΡΠ΅Π½ΠΎΡΠ° ΠΈ Ρ. Π΄.)?
- Π‘ΠΊΠΎΡΠΎΡΡΡ ΠΏΠ΅ΡΠ΅Π΄Π°ΡΠΈ β ΠΊΠΎΡΠΎΡΠΊΠ°Ρ, Π±ΡΡΡΡΠ°Ρ ΠΈΠ»ΠΈ ΠΌΠ΅Π΄Π»Π΅Π½Π½Π°Ρ, ΡΡΡΠΎΠΉΡΠΈΠ²Π°Ρ?
- ΠΠΊΡΡΠΆΠ°ΡΡΠ°Ρ ΡΡΠ΅Π΄Π°
- Π‘Π²ΠΎΠ±ΠΎΠ΄Π½ΠΎΠ΅ ΠΏΡΠΎΡΡΡΠ°Π½ΡΡΠ²ΠΎ
Π‘ΠΊΠΎΡΠΎΡΡΡ ΠΏΠΎΡΠΎΠΊΠ°
ΠΠ°ΡΠ° ΠΊΠΎΠ½Π²Π΅ΠΉΠ΅ΡΠ½Π°Ρ ΡΠΈΡΡΠ΅ΠΌΠ° Π΄ΠΎΠ»ΠΆΠ½Π° Π²ΡΠ΄Π΅ΡΠΆΠΈΠ²Π°ΡΡ ΡΡΠ΅Π΄Π½ΡΡ ΡΠΊΠΎΡΠΎΡΡΡ ΠΏΠ΅ΡΠ΅Π΄Π°ΡΠΈ Π½Π° Π²Π°ΡΠ΅ΠΌ ΠΎΠ±ΡΠ΅ΠΊΡΠ΅, Π° ΡΠ°ΠΊΠΆΠ΅ ΠΏΠ΅ΡΠΈΠΎΠ΄Ρ ΠΏΠΈΠΊΠΎΠ²ΠΎΠ³ΠΎ ΡΠΏΡΠΎΡΠ° ΠΈΠ·-Π·Π° ΡΠ΅Π·ΠΎΠ½Π½ΡΡ ΠΊΠΎΠ»Π΅Π±Π°Π½ΠΈΠΉ. ΠΠΎΠ»ΠΈΡΠ΅ΡΡΠ²ΠΎ ΠΏΡΠΎΠ΄ΡΠΊΡΠΎΠ², ΠΊΠΎΡΠΎΡΡΠ΅ Π½Π΅ΠΎΠ±Ρ ΠΎΠ΄ΠΈΠΌΠΎ ΡΡΠ°Π½ΡΠΏΠΎΡΡΠΈΡΠΎΠ²Π°ΡΡ Π² ΡΠ°Ρ (ΠΈΠ»ΠΈ Π² ΠΌΠΈΠ½ΡΡΡ), Π±ΡΠ΄Π΅Ρ ΠΎΠΏΡΠ΅Π΄Π΅Π»ΡΡΡ Π΄Π»ΠΈΠ½Ρ ΠΈ ΡΠΊΠΎΡΠΎΡΡΡ ΠΊΠΎΠ½Π²Π΅ΠΉΠ΅ΡΠ°.
ΠΡΠΎΠΌΠ΅ ΡΠΎΠ³ΠΎ, ΠΎΠΏΡΠ΅Π΄Π΅Π»Π΅Π½Π½ΡΠ΅ Π²ΠΈΠ΄Ρ ΠΊΠΎΠ½Π²Π΅ΠΉΠ΅ΡΠΎΠ² ΠΈΠ΄Π΅Π°Π»ΡΠ½ΠΎ ΠΏΠΎΠ΄Ρ
ΠΎΠ΄ΡΡ Π΄Π»Ρ ΠΎΠΏΡΠ΅Π΄Π΅Π»Π΅Π½Π½ΡΡ
ΠΏΡΠΎΠ΄ΡΠΊΡΠΎΠ². ΠΠΎΠ»ΡΡΠΎΠΉ ΠΏΠ»Π°ΡΡΠΈΠΊΠΎΠ²ΡΠΉ ΡΠ΅ΠΏΠ½ΠΎΠΉ ΠΊΠΎΠ½Π²Π΅ΠΉΠ΅Ρ Π»ΡΡΡΠ΅ Π²ΡΠ΅Π³ΠΎ ΠΈΡΠΏΠΎΠ»ΡΠ·ΠΎΠ²Π°ΡΡ Π΄Π»Ρ ΠΏΠ΅ΡΠ΅ΠΌΠ΅ΡΠ΅Π½ΠΈΡ ΠΏΠΎΠ΄Π΄ΠΎΠ½ΠΎΠ² Ρ ΠΏΠ»Π°ΡΡΠΈΠΊΠΎΠ²ΡΠΌΠΈ Π½ΠΎΠΆΠΊΠ°ΠΌΠΈ, Π° ΡΠΎΠ»ΠΈΠΊΠΎΠ²ΡΠΉ ΠΊΠΎΠ½Π²Π΅ΠΉΠ΅Ρ Ρ ΡΠ΅ΠΏΠ½ΡΠΌ ΠΏΡΠΈΠ²ΠΎΠ΄ΠΎΠΌ Π»ΡΡΡΠ΅ Π²ΡΠ΅Π³ΠΎ ΠΏΠΎΠ΄Ρ
ΠΎΠ΄ΠΈΡ Π΄Π»Ρ Π΄Π΅ΡΠ΅Π²ΡΠ½Π½ΡΡ
ΠΏΠΎΠ΄Π΄ΠΎΠ½ΠΎΠ².
ΠΡΠΎΠΌΠ΅ ΡΠΎΠ³ΠΎ, ΠΏΠ΅ΡΠ²ΡΠΉ Π»ΡΡΡΠ΅ Π²ΡΠ΅Π³ΠΎ ΠΈΡΠΏΠΎΠ»ΡΠ·ΠΎΠ²Π°ΡΡ Π΄Π»Ρ ΠΏΠ΅ΡΠ΅ΠΌΠ΅ΡΠ΅Π½ΠΈΡ Π½Π΅Π±ΠΎΠ»ΡΡΠΈΡ
ΠΊΠΎΡΠΎΠ±ΠΎΠΊ ΠΈΠ»ΠΈ ΡΠΎΡΠ°Π»ΠΈΠ·Π°ΡΠΎΡΠΎΠ², ΡΠ΅ΠΌ ΠΏΠΎΡΠ»Π΅Π΄Π½ΠΈΠΉ.
Π’ΡΠ΅Π±ΠΎΠ²Π°Π½ΠΈΡ ΠΊ ΠΏΠ΅ΡΠ΅ΠΌΠ΅ΡΠ΅Π½ΠΈΡ
Π’ΠΎΡΠΊΠ°, Π² ΠΊΠΎΡΠΎΡΠΎΠΉ ΠΏΡΠ΅Π΄ΠΌΠ΅ΡΡ ΠΏΠ΅ΡΠ΅ΠΌΠ΅ΡΠ°ΡΡΡΡ Π½Π° ΠΊΠΎΠ½Π²Π΅ΠΉΠ΅Ρ ΠΈ Ρ ΠΊΠΎΠ½Π²Π΅ΠΉΠ΅ΡΠ°, ΡΠ²Π»ΡΠ΅ΡΡΡ ΠΊΡΠΈΡΠΈΡΠ΅ΡΠΊΠΈ Π²Π°ΠΆΠ½ΠΎΠΉ. ΠΠΎΠ»ΡΡΠΈΠ½ΡΡΠ²ΠΎ ΠΊΠΎΠ½Π²Π΅ΠΉΠ΅ΡΠΎΠ² ΠΈΡΠΏΠΎΠ»ΡΠ·ΡΡΡ Π±ΠΎΠΊΠΎΠ²ΡΠ΅ ΠΏΠ΅ΡΠ΅Π΄Π°ΡΠΈ, ΠΌΠ΅Ρ Π°Π½ΠΈΡΠ΅ΡΠΊΠΈΠ΅ ΠΏΠ΅ΡΠ΅Π΄Π°ΡΠΈ, ΠΌΠ΅ΡΡΠ²ΡΠ΅ ΠΏΠ»Π°ΡΡΠΈΠ½Ρ, Π³ΡΠ°Π²ΠΈΡΠ°ΡΠΈΠΎΠ½Π½ΡΠ΅ ΡΠΎΠ»ΠΈΠΊΠΈ ΠΈ Ρ. Π., Π§ΡΠΎΠ±Ρ ΠΎΠ±Π»Π΅Π³ΡΠΈΡΡ ΡΡΠΎ. ΠΠ»Ρ ΠΏΡΠΎΠ΄ΡΠΊΡΠΎΠ² Ρ ΠΌΠ΅Π½ΡΡΠ΅ΠΉ ΠΏΠ»ΠΎΡΠ°Π΄ΡΡ ΠΌΠΎΠΆΠ΅Ρ ΠΏΠΎΡΡΠ΅Π±ΠΎΠ²Π°ΡΡΡΡ ΠΌΠ΅Ρ Π°Π½ΠΈΠ·ΠΈΡΠΎΠ²Π°Π½Π½Π°Ρ ΠΏΠ΅ΡΠ΅Π΄Π°ΡΠ°, Π² ΡΠΎ Π²ΡΠ΅ΠΌΡ ΠΊΠ°ΠΊ Π΄Π»Ρ Π±ΠΎΠ»Π΅Π΅ ΠΊΡΡΠΏΠ½ΡΡ ΠΈ Π΄Π»ΠΈΠ½Π½ΡΡ ΠΏΡΠΎΠ΄ΡΠΊΡΠΎΠ² ΠΌΠΎΠ³ΡΡ ΠΏΠΎΡΡΠ΅Π±ΠΎΠ²Π°ΡΡΡΡ Π³ΡΠ°Π²ΠΈΡΠ°ΡΠΈΠΎΠ½Π½ΡΠ΅ ΡΠΎΠ»ΠΈΠΊΠΈ.
Π‘ΠΊΠΎΠ»ΡΠΊΠΎ ΡΡΠΎΡΡ ΠΊΠΎΠ½Π²Π΅ΠΉΠ΅ΡΠ½ΡΠ΅ ΡΠΈΡΡΠ΅ΠΌΡ?
ΠΠ»Ρ ΡΠΎΠ²ΡΠ΅ΠΌΠ΅Π½Π½ΡΡ ΡΠΊΠ»Π°Π΄ΠΎΠ² ΡΡΡΠ½ΡΠ΅ ΠΎΠΏΠ΅ΡΠ°ΡΠΈΠΈ ΠΏΠ΅ΡΠ΅ΠΌΠ΅ΡΠ΅Π½ΠΈΡ Π½Π΅ Π² ΡΠΎΡΡΠΎΡΠ½ΠΈΠΈ ΠΏΠΎΠ΄Π΄Π΅ΡΠΆΠΈΠ²Π°ΡΡ ΡΡΠΎΠ²Π΅Π½Ρ ΠΏΡΠΎΠΏΡΡΠΊΠ½ΠΎΠΉ ΡΠΏΠΎΡΠΎΠ±Π½ΠΎΡΡΠΈ, Π½Π΅ΠΎΠ±Ρ ΠΎΠ΄ΠΈΠΌΡΠΉ Π΄Π»Ρ Π±ΡΡΡΡΠΎΠ³ΠΎ Π²ΡΠΏΠΎΠ»Π½Π΅Π½ΠΈΡ Π·Π°ΠΊΠ°Π·ΠΎΠ² Ρ ΠΌΠΈΠ½ΠΈΠΌΠ°Π»ΡΠ½ΡΠΌΠΈ Π·Π°ΡΡΠ°ΡΠ°ΠΌΠΈ. ΠΠΎΠ½Π²Π΅ΠΉΠ΅ΡΠ½Π°Ρ ΡΠΈΡΡΠ΅ΠΌΠ° ΠΏΠΎΠ²ΡΡΠ°Π΅Ρ ΠΏΡΠΎΠΈΠ·Π²ΠΎΠ΄ΠΈΡΠ΅Π»ΡΠ½ΠΎΡΡΡ, ΡΠ»ΡΡΡΠ°Π΅Ρ ΡΡΠ³ΠΎΠ½ΠΎΠΌΠΈΠΊΡ, ΡΠ½ΠΈΠΆΠ°Π΅Ρ Π²Π΅ΡΠΎΡΡΠ½ΠΎΡΡΡ ΠΏΠΎΠ²ΡΠ΅ΠΆΠ΄Π΅Π½ΠΈΡ ΠΏΡΠΎΠ΄ΡΠΊΡΠΈΠΈ, ΠΎΠ±Π΅ΡΠΏΠ΅ΡΠΈΠ²Π°Π΅Ρ Π»ΡΡΡΠΈΠΉ Π΄ΠΎΡΡΡΠΏ ΠΊ ΠΌΠ°ΡΠ΅ΡΠΈΠ°Π»Π°ΠΌ ΠΈ ΡΠ½ΠΈΠΆΠ°Π΅Ρ ΠΎΠΏΠ°ΡΠ½ΠΎΡΡΡ Π½Π° ΡΠ°Π±ΠΎΡΠ΅ΠΌ ΠΌΠ΅ΡΡΠ΅.
ΠΠ΄Π½Π°ΠΊΠΎ ΡΡΠΎΠΈΠΌΠΎΡΡΡ ΠΏΡΠΈΠΎΠ±ΡΠ΅ΡΠ΅Π½ΠΈΡ, ΡΡΡΠ°Π½ΠΎΠ²ΠΊΠΈ ΠΈ ΠΎΠ±ΡΠ»ΡΠΆΠΈΠ²Π°Π½ΠΈΡ ΡΠ°ΠΊΠΈΡ
ΡΠΈΡΡΠ΅ΠΌ ΠΌΠΎΠΆΠ΅Ρ Π±ΡΡΡ Π²ΡΡΠΎΠΊΠΎΠΉ Π΄Π»Ρ ΠΌΠ°Π»ΡΡ
ΠΈ ΡΡΠ΅Π΄Π½ΠΈΡ
ΠΏΡΠ΅Π΄ΠΏΡΠΈΡΡΠΈΠΉ.
ΠΠ½ ΠΌΠΎΠΆΠ΅Ρ Π²Π°ΡΡΠΈΡΠΎΠ²Π°ΡΡΡΡ ΠΎΡ ΡΠΎΡΠ΅Π½ ΡΡΡΡΡ Π΄ΠΎ ΠΌΠΈΠ»Π»ΠΈΠΎΠ½ΠΎΠ² Π΄ΠΎΠ»Π»Π°ΡΠΎΠ² Π² Π·Π°Π²ΠΈΡΠΈΠΌΠΎΡΡΠΈ ΠΎΡ ΡΠ°ΠΊΠΈΡ
ΡΠ°ΠΊΡΠΎΡΠΎΠ², ΠΊΠ°ΠΊ:
- Π’ΠΈΠΏ ΠΊΠΎΠ½Π²Π΅ΠΉΠ΅ΡΠ½ΠΎΠΉ ΡΠΈΡΡΠ΅ΠΌΡ
- ΠΠ±ΡΠ°Ρ Π΄Π»ΠΈΠ½Π°
- Π’ΡΠ΅Π±ΡΠ΅ΠΌΠ°Ρ ΡΠΊΠΎΡΠΎΡΡΡ
- Π Π°Π·ΠΌΠ΅ΡΡ
- ΠΠ·Π³ΠΈΠ± ΠΈ ΡΠΏΠΎΡΠΎΠ± ΠΏΠ΅ΡΠ΅ΠΌΠ΅ΡΠ΅Π½ΠΈΡ
ΠΎΡΠ΅Π½ΠΊΠΈ ΠΏΠΎΠΊΠ°Π·ΡΠ²Π°ΡΡ, ΡΡΠΎ ΠΊΠΎΠ½Π²Π΅ΠΉΠ΅ΡΡ Belt Curve AC ΠΈ Roller Curve AC ΡΡΠΎΡΡ ΠΏΡΠΈΠ±Π»ΠΈΠ·ΠΈΡΠ΅Π»ΡΠ½ΠΎ 5 243 ΠΈ 2 686 Π΄ΠΎΠ»Π»Π°ΡΠΎΠ² Π·Π° ΠΏΠΎΠ³ΠΎΠ½Π½ΡΠΉ ΡΡΡ ΠΏΡΠΈ ΡΠ»Π΅Π΄ΡΡΡΠΈΡ ΠΏΡΠ΅Π΄ΠΏΠΎΠ»ΠΎΠΆΠ΅Π½ΠΈΡΡ :
- ΠΠ·Π³ΠΈΠ±Ρ β 90 Π³ΡΠ°Π΄ΡΡΠΎΠ²
- Π‘ΠΊΠΎΡΠΎΡΡΡ β ΠΎΡ 65 Π΄ΠΎ 90 ΡΡΡΠΎΠ² Π² ΠΌΠΈΠ½ΡΡΡ
- 9-Π΄ΡΠΉΠΌΠΎΠ²ΡΠ΅ ΡΠΎΠ»ΠΈΠΊΠΈ Π½Π° 3-Π΄ΡΠΉΠΌΠΎΠ²ΠΎΠΌ ΡΠ΅Π½ΡΡΠ΅
- ΠΠ±ΡΠ°Ρ ΡΠΈΡΠΈΠ½Π° β 24 Π΄ΡΠΉΠΌΠ°
ΠΡΠΈΠΌΠ΅ΡΠ°Π½ΠΈΠ΅. ΠΡΠΎ ΡΠΎΠ»ΡΠΊΠΎ ΠΏΡΠ΅Π΄Π²Π°ΡΠΈΡΠ΅Π»ΡΠ½Π°Ρ ΡΡΠΎΠΈΠΌΠΎΡΡΡ ΠΊΠΎΠ½Π²Π΅ΠΉΠ΅ΡΠ½ΠΎΠ³ΠΎ ΠΎΠ±ΠΎΡΡΠ΄ΠΎΠ²Π°Π½ΠΈΡ . ΠΠΎΠΌΠΈΠΌΠΎ Π·Π°ΡΡΠ°Ρ Π½Π° ΡΡΡΠ°Π½ΠΎΠ²ΠΊΡ, Π²Π°ΠΌ ΡΠ°ΠΊΠΆΠ΅ Π½Π΅ΠΎΠ±Ρ
ΠΎΠ΄ΠΈΠΌΠΎ ΡΡΠΈΡΡΠ²Π°ΡΡ ΡΡΠΎΠΈΠΌΠΎΡΡΡ ΡΠ΅ΡΡΡΡΠΊΡΡΡΠΈΠ·Π°ΡΠΈΠΈ ΡΠΊΠ»Π°Π΄ΡΠΊΠΈΡ
ΠΏΠΎΠΌΠ΅ΡΠ΅Π½ΠΈΠΉ Π΄Π»Ρ ΡΠ°Π·ΠΌΠ΅ΡΠ΅Π½ΠΈΡ ΠΊΠΎΠ½Π²Π΅ΠΉΠ΅ΡΠ½ΠΎΠΉ ΡΠΈΡΡΠ΅ΠΌΡ. Π‘Π°ΠΌ ΠΏΡΠΎΡΠ΅ΡΡ ΡΡΡΠ°Π½ΠΎΠ²ΠΊΠΈ ΠΌΠΎΠΆΠ΅Ρ Π·Π°Π½ΡΡΡ Π½Π΅ΠΊΠΎΡΠΎΡΠΎΠ΅ Π²ΡΠ΅ΠΌΡ ΠΈ ΠΏΠΎΠ²Π»ΠΈΡΡΡ Π½Π° Π²ΡΠΏΠΎΠ»Π½Π΅Π½ΠΈΠ΅ Π·Π°ΠΊΠ°Π·ΠΎΠ² ΠΈ Π΄ΡΡΠ³ΠΈΠ΅ ΡΠΊΠ»Π°Π΄ΡΠΊΠΈΠ΅ ΠΎΠΏΠ΅ΡΠ°ΡΠΈΠΈ. ΠΠ°ΠΊΠΎΠ½Π΅Ρ, ΡΠΊΡΠΏΠ»ΡΠ°ΡΠ°ΡΠΈΠΎΠ½Π½ΡΠ΅ ΡΠ°ΡΡ
ΠΎΠ΄Ρ ΠΈ ΡΠ°ΡΡ
ΠΎΠ΄Ρ Π½Π° ΡΠ΅Ρ
Π½ΠΈΡΠ΅ΡΠΊΠΎΠ΅ ΠΎΠ±ΡΠ»ΡΠΆΠΈΠ²Π°Π½ΠΈΠ΅ Π² Π³ΠΎΠ΄, Π²Π΅ΡΠΎΡΡΠ½ΠΎ, ΠΏΡΠ΅Π²ΡΡΡΡ ΠΏΠ΅ΡΠ²ΠΎΠ½Π°ΡΠ°Π»ΡΠ½ΡΠ΅ Π·Π°ΡΡΠ°ΡΡ Π½Π° ΠΏΠΎΠΊΡΠΏΠΊΡ ΠΈ ΡΡΡΠ°Π½ΠΎΠ²ΠΊΡ.